Скачать Типовой проект 902-2-321 Альбом III. Часть 1. Блок емкостей АМ-230. Контактные резервуарыДата актуализации: 01.01.2021
|
| Обозначение: | Типовой проект 902-2-321 |
| Обозначение англ: | 902-2-321 |
| Статус: | действует |
| Название рус.: | Альбом III. Часть 1. Блок емкостей АМ-230. Контактные резервуары |
| Дата добавления в базу: | 01.09.2013 |
| Дата актуализации: | 01.01.2021 |
| Дата введения: | 29.09.1978 |
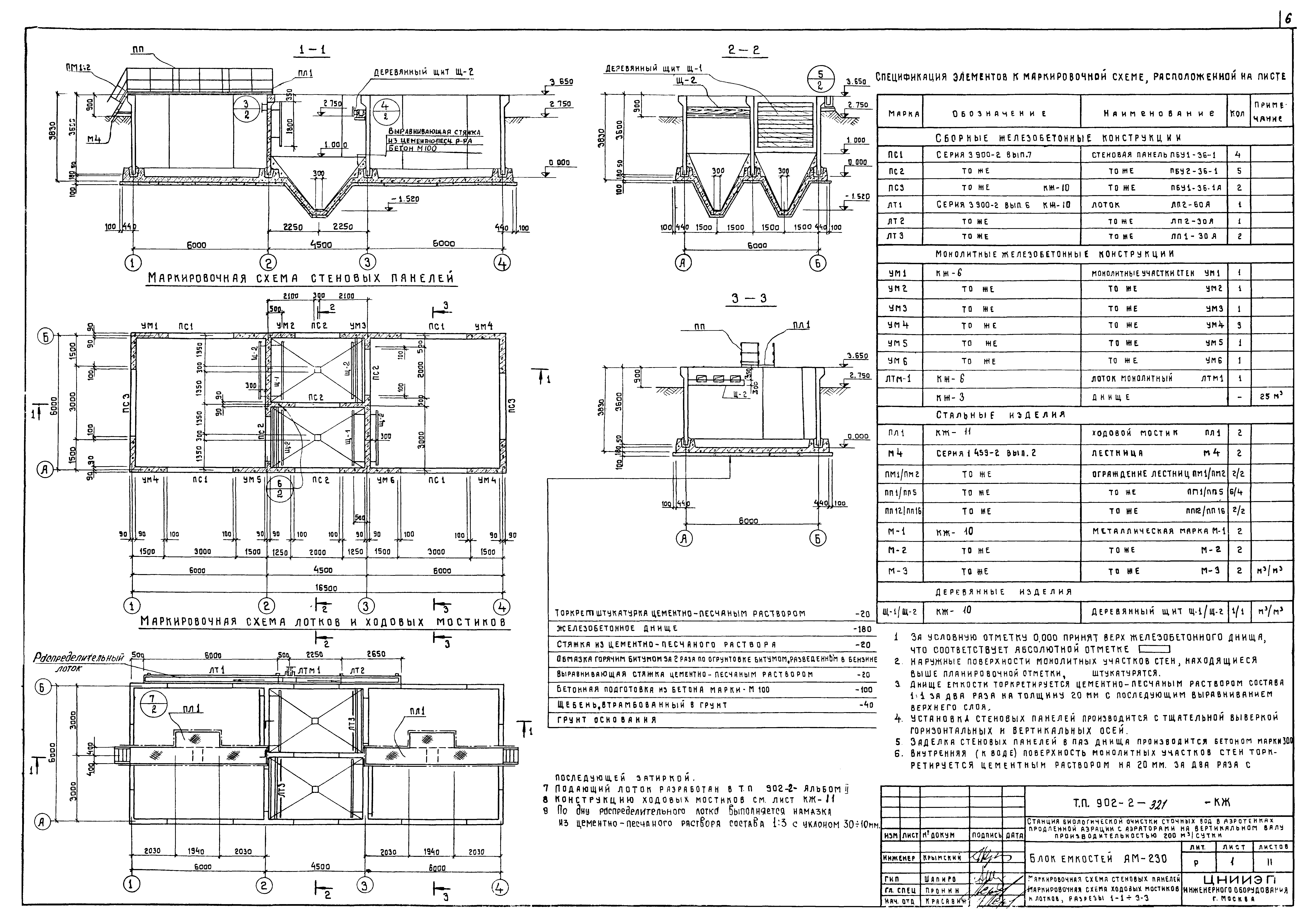
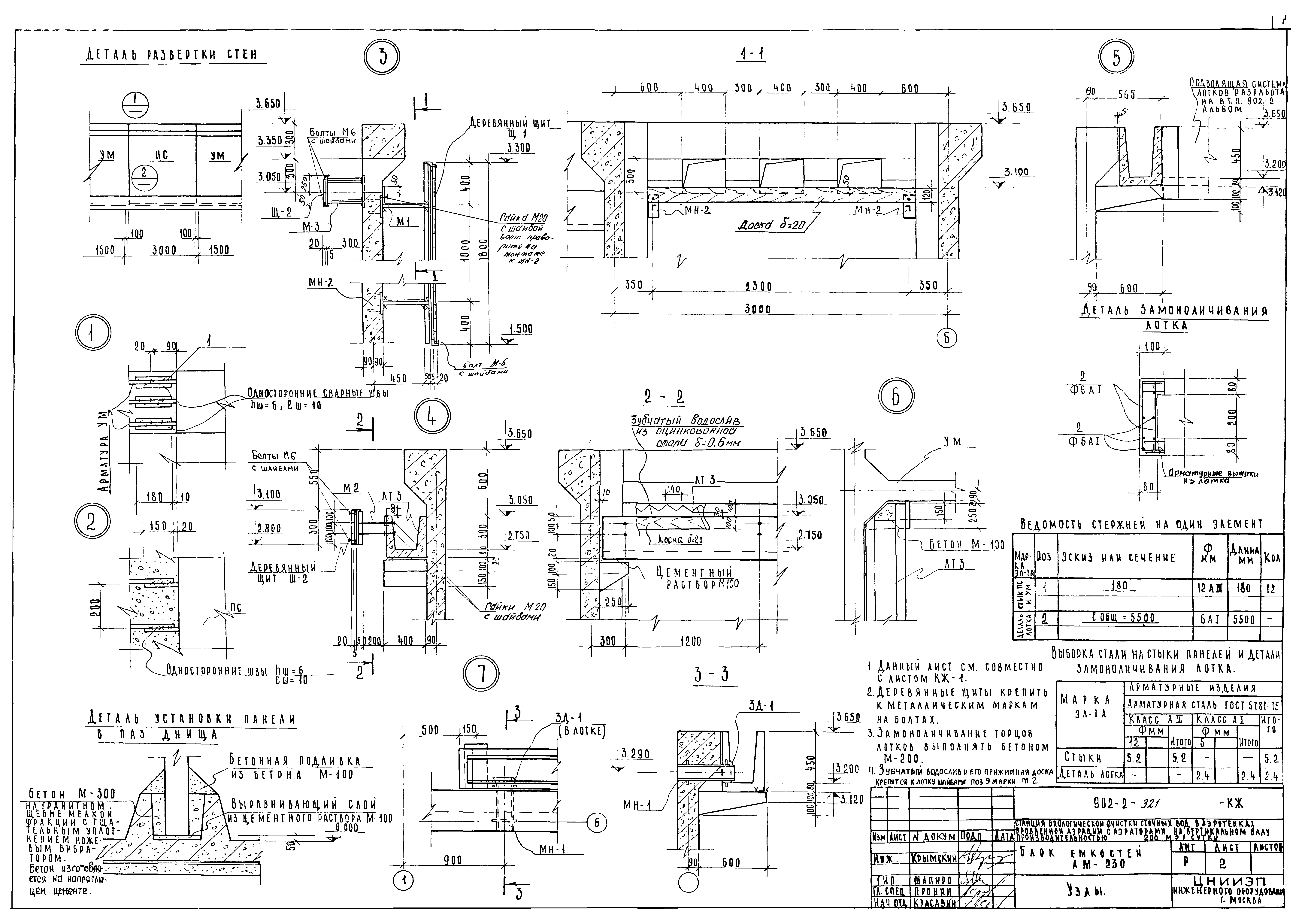
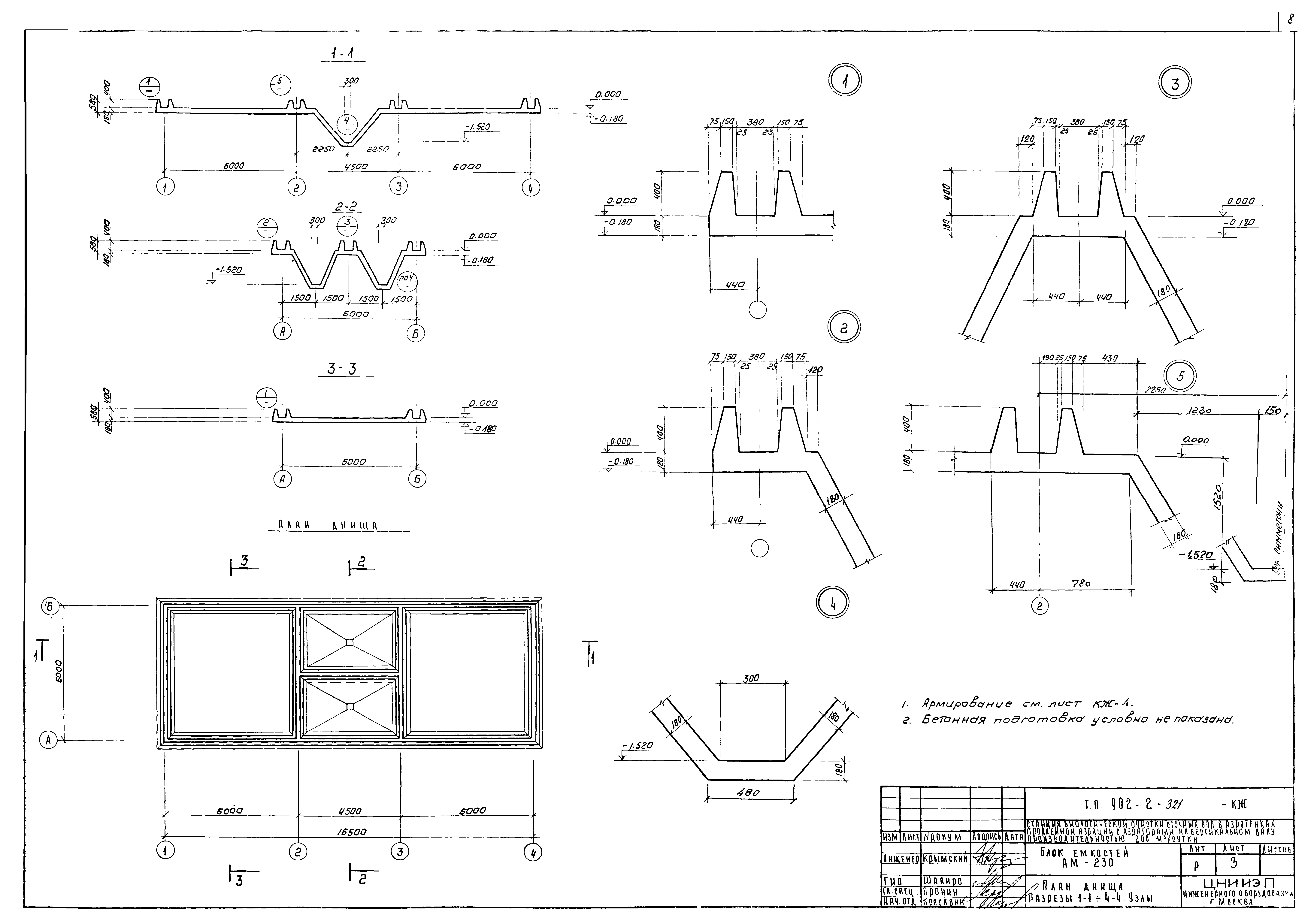
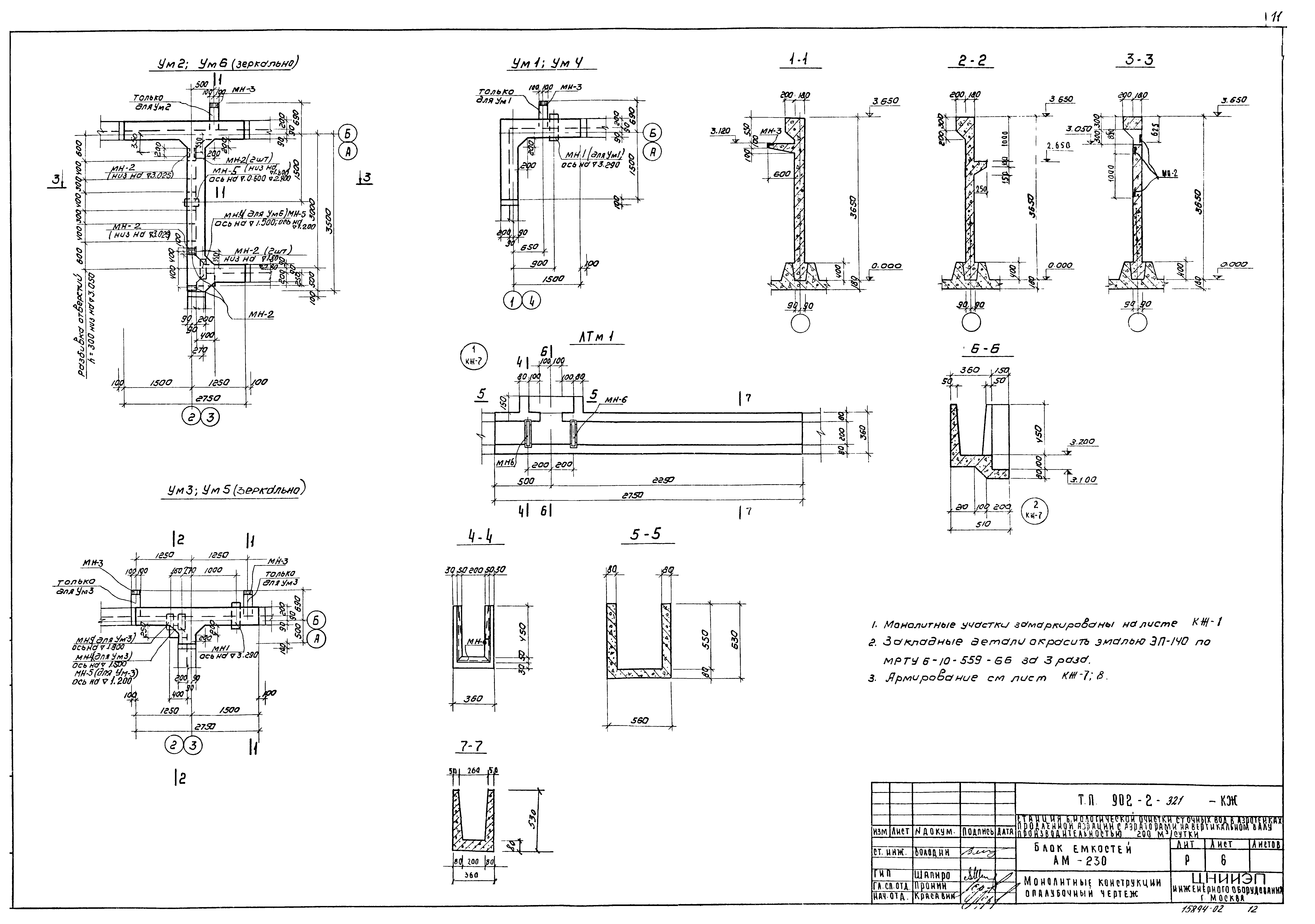
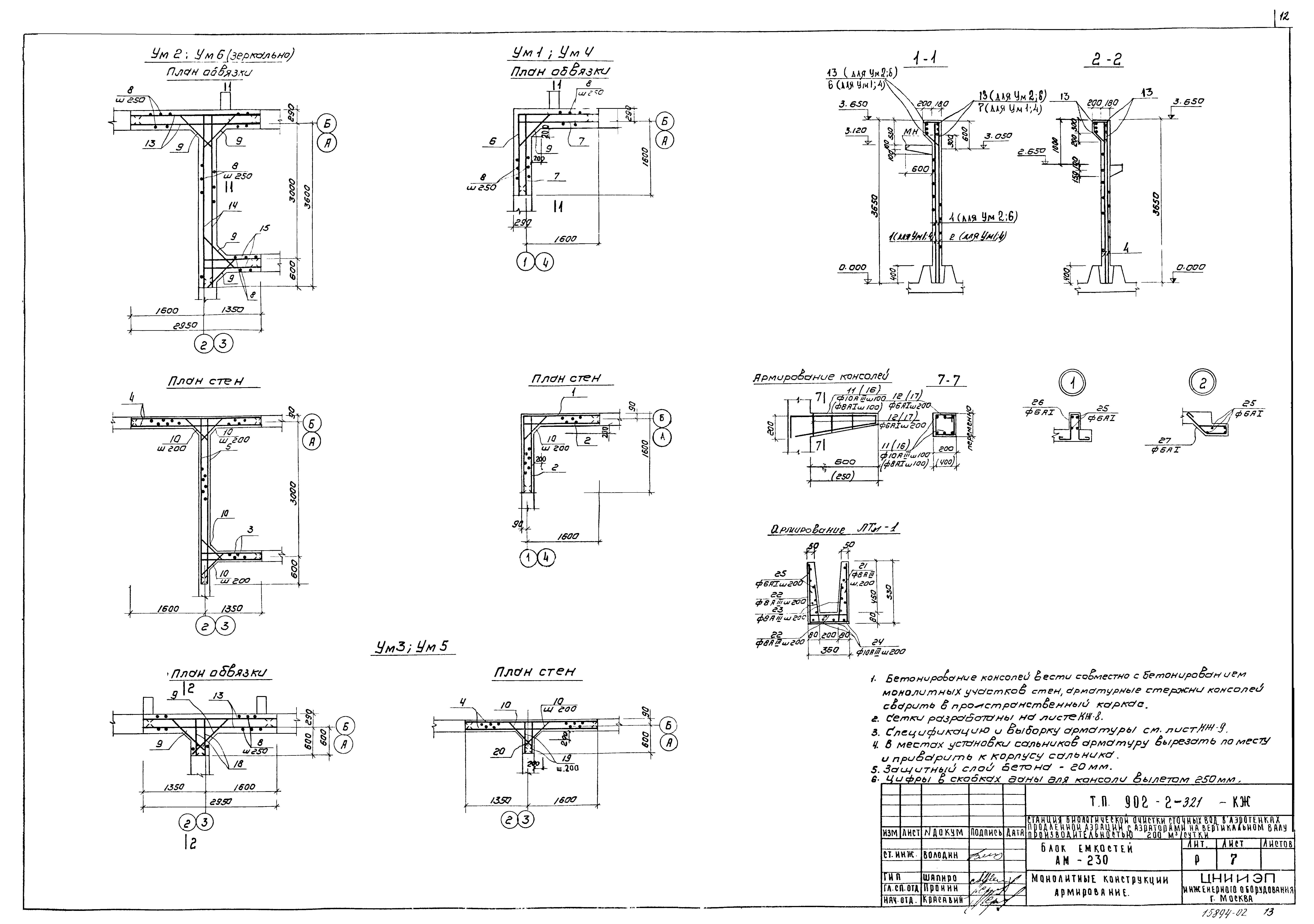
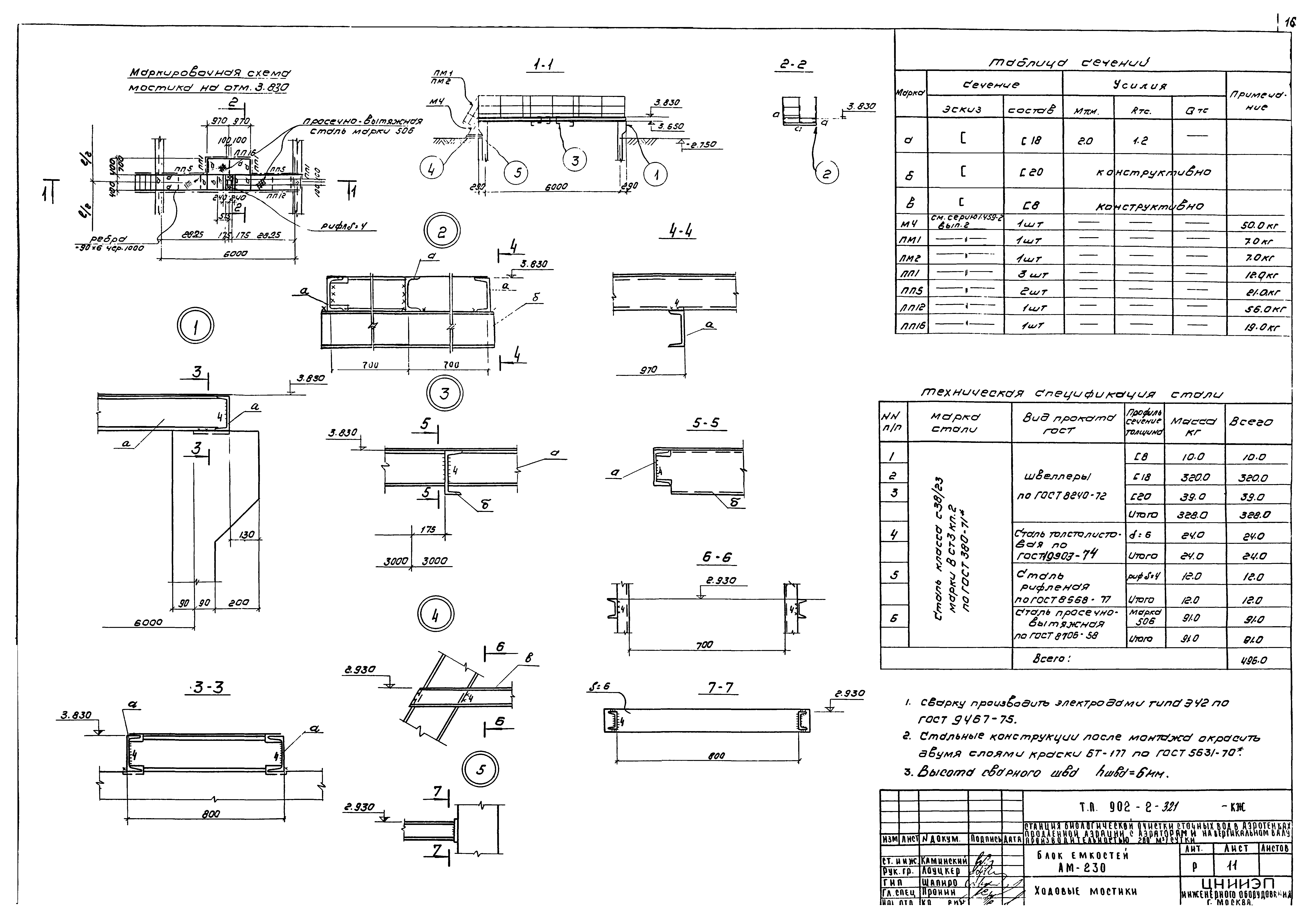
| Оглавление: | ТП 902-2-321 Содержание альбома ТП 902-2-321-КГ-1 Общие данные ТП 902-2-321-КГ Технологическая часть ТП 902-2-321 Блок емкостей ТП 902-2-321-КГ-2 План. Разрезы ТП 902-2-321 Контактные резервуары ТП 902-2-321-КГ-3 План. Разрезы ТП 902-2-321-КЖ Конструкции железобетонные ТП 902-2-321-КЖ-1 Маркировочная схема стеновых панелей. Маркировочная схема лотков и ходовых мостиков. Разрезы 1-1÷3-3 ТП 902-2-321-КЖ-2 Узлы ТП 902-2-321-КЖ-3 План днища. Разрезы 1-1÷4-4. Узлы ТП 902-2-321-КЖ-4 Днище. Армирование. План раскладки верхних и нижних сеток. План раскладки каркасов. Разрезы. Узлы ТП 902-2-321-КЖ-5 Днище. Армирование. Сетки. Каркасы. Спецификации ТП 902-2-321-КЖ-6 Монолитные конструкции. Опалубочный чертеж ТП 902-2-321-КЖ-7 Монолитные конструкции. Армирование ТП 902-2-321-КЖ-8 Монолитные конструкции. Арматурные сетки С1-С5. Спецификации ТП 902-2-321-КЖ-9 Монолитные конструкции. Спецификации ТП 902-2-321-КЖ-10 Сборные железобетонные элементы. Металлические марки М1-М2-М3. Щиты ТП 902-2-321-КЖ-11 Ходовые мостики ТП 902-2-321-ЭЛ Электротехническая часть ТП 902-2-321-ЭЛ-1 Общие данные |
| Разработан: | ЦНИИЭП |
| Утверждён: | 19.07.1977 Госгражданстрой (Gosgrazhdanstroy 144) |


















