Скачать Типовой проект 902-2-322 Альбом III. Часть 2. Блок емкостей АМ-560. Контактные резервуарыДата актуализации: 01.01.2021
|
| Обозначение: | Типовой проект 902-2-322 |
| Обозначение англ: | 902-2-322 |
| Статус: | действует |
| Название рус.: | Альбом III. Часть 2. Блок емкостей АМ-560. Контактные резервуары |
| Дата добавления в базу: | 01.09.2013 |
| Дата актуализации: | 01.01.2021 |
| Дата введения: | 29.09.1978 |
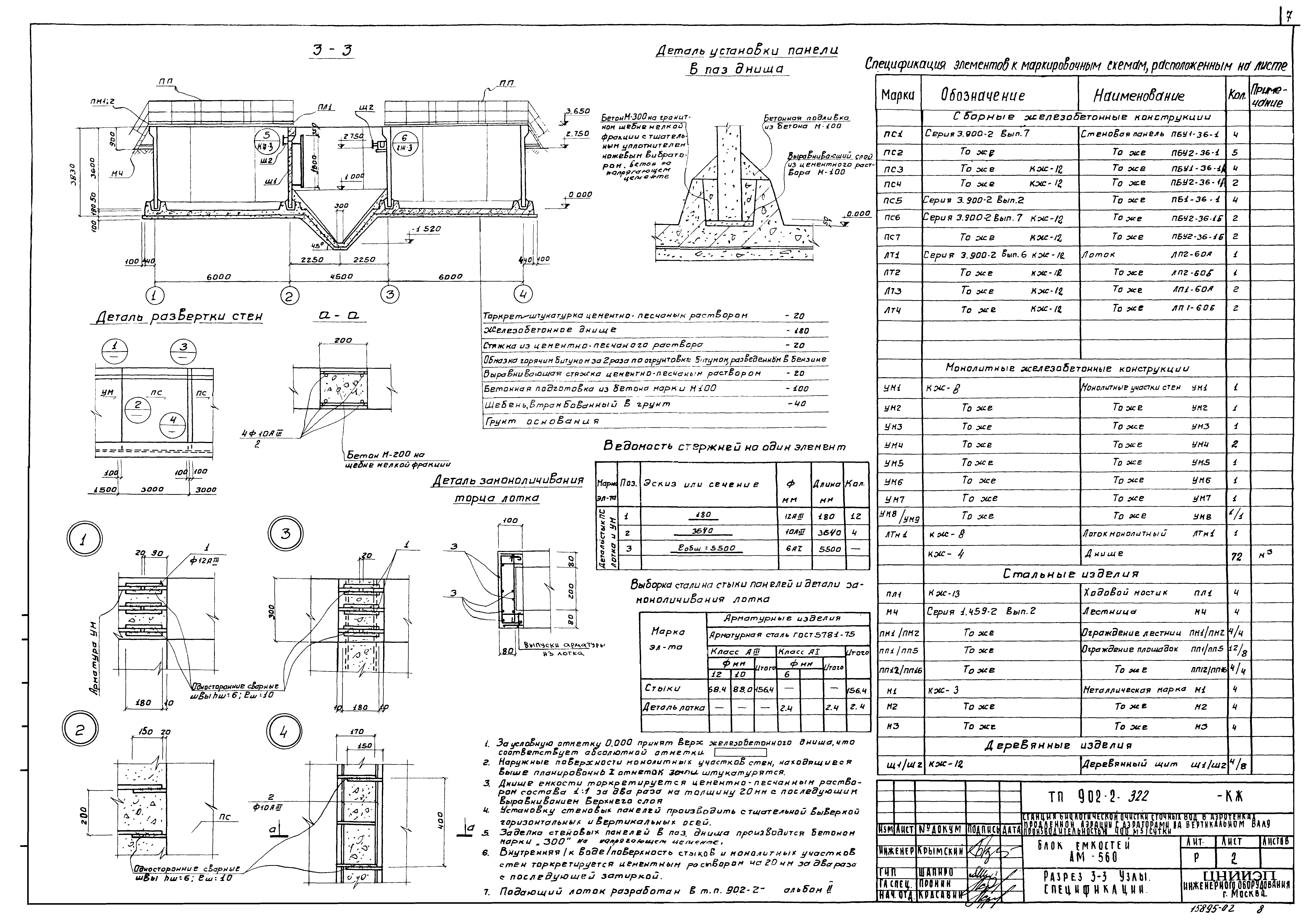
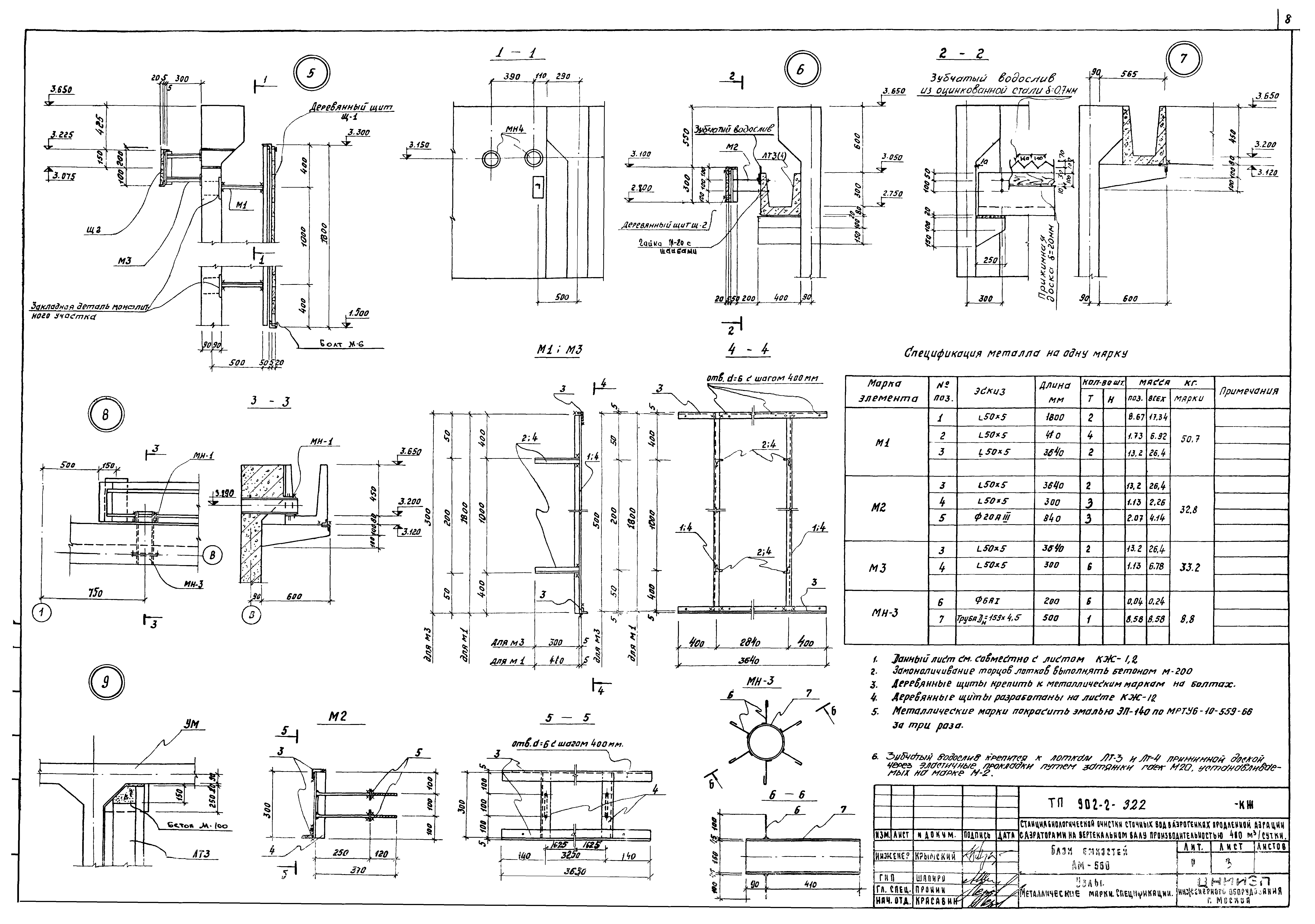
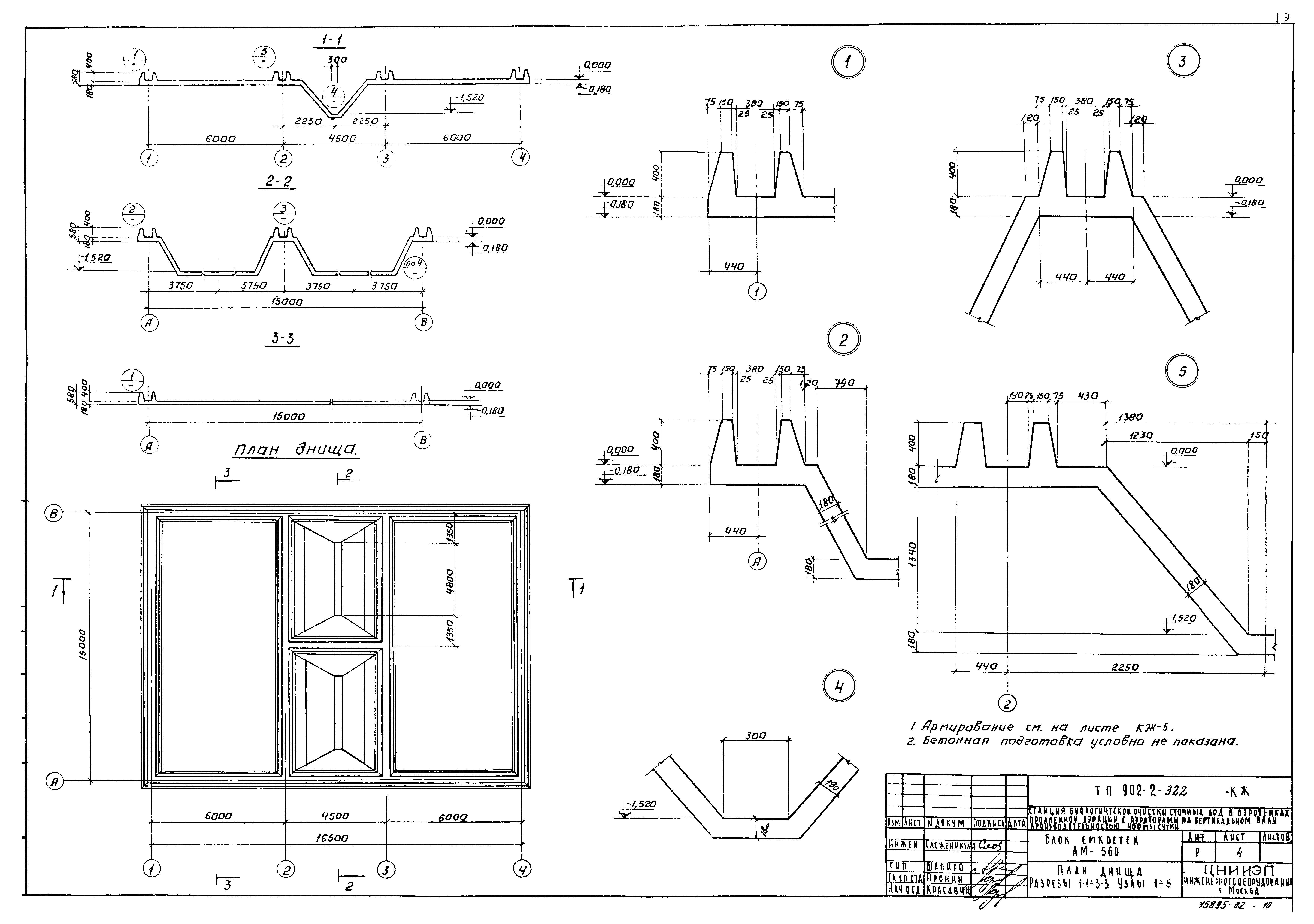
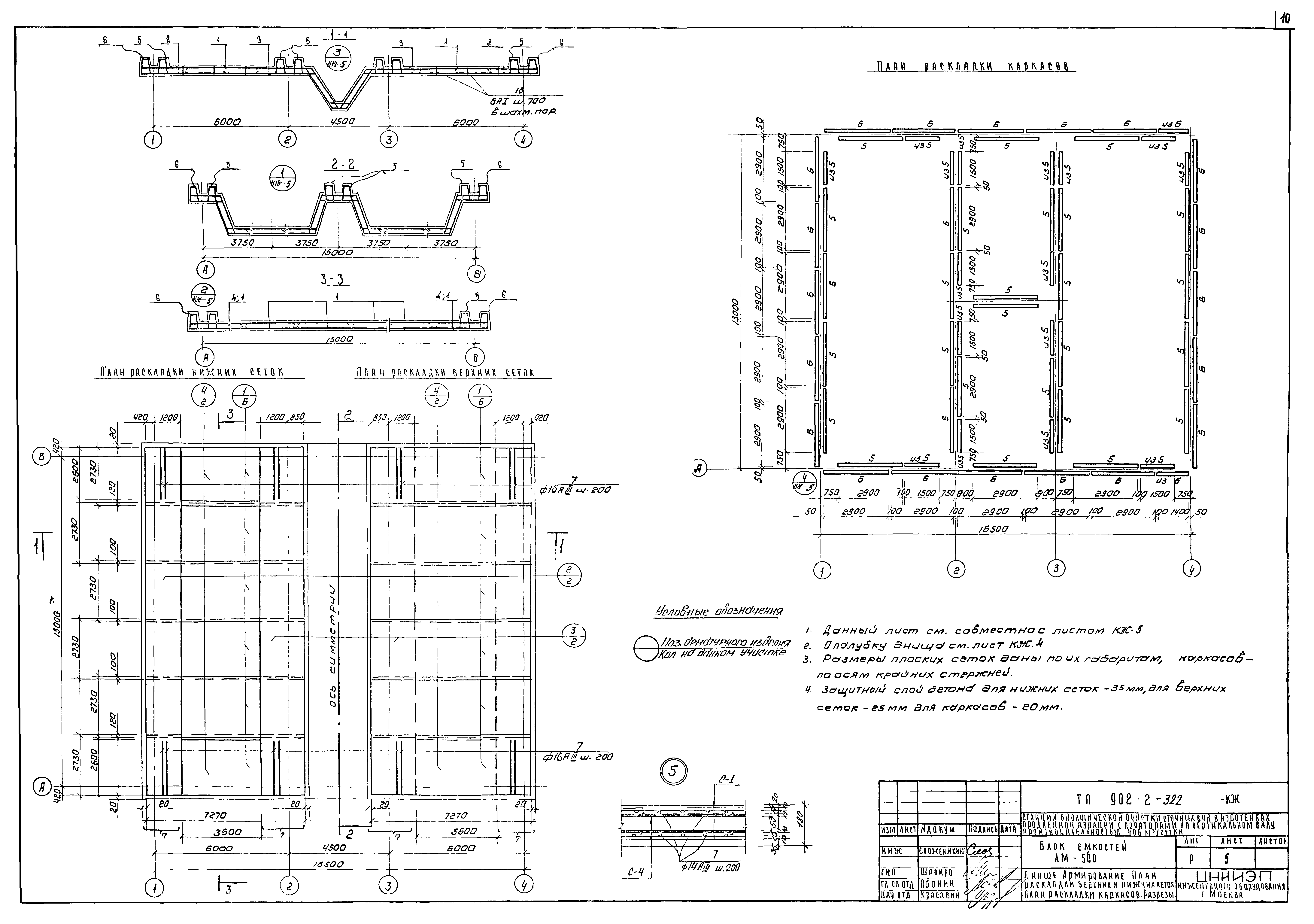
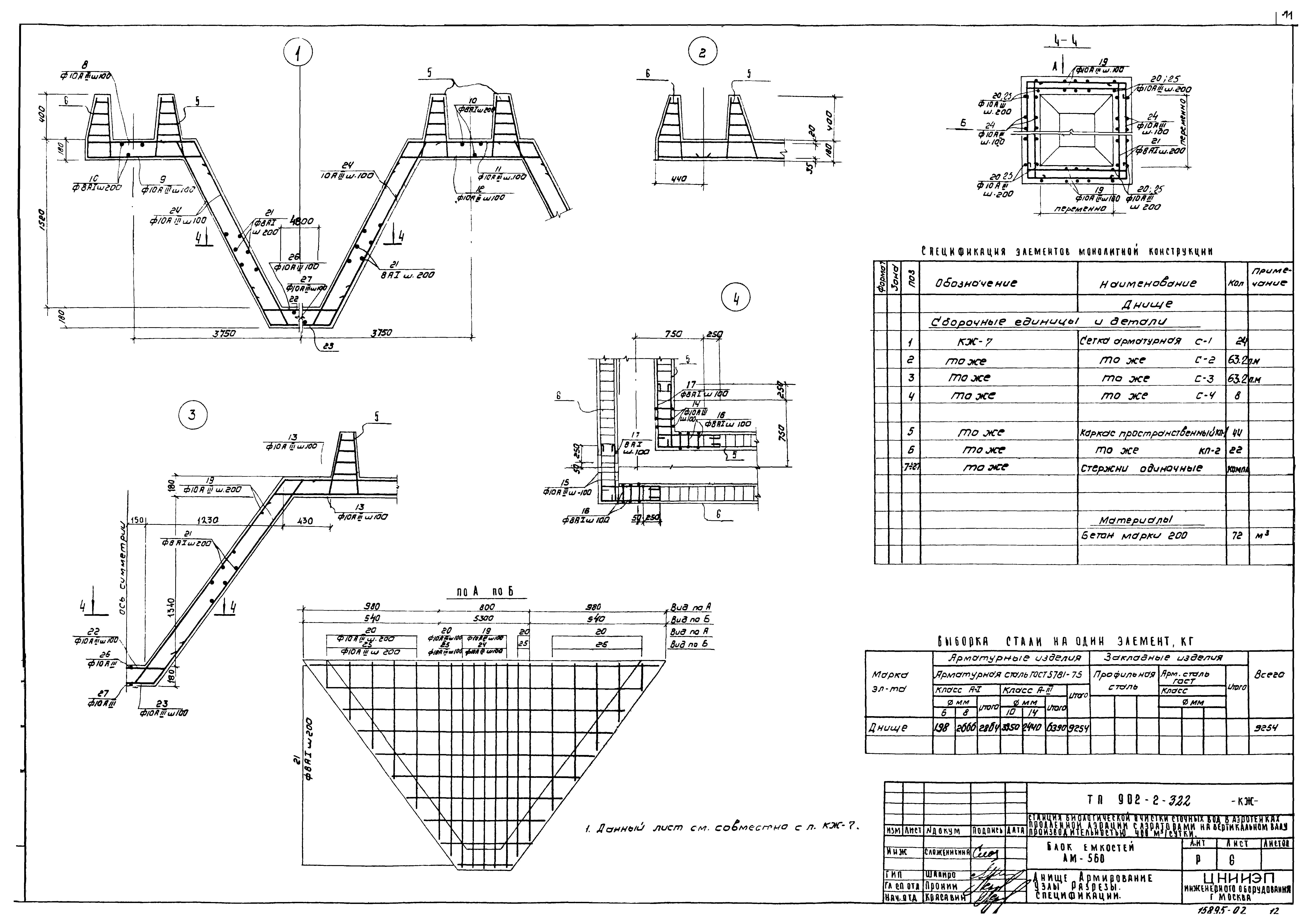
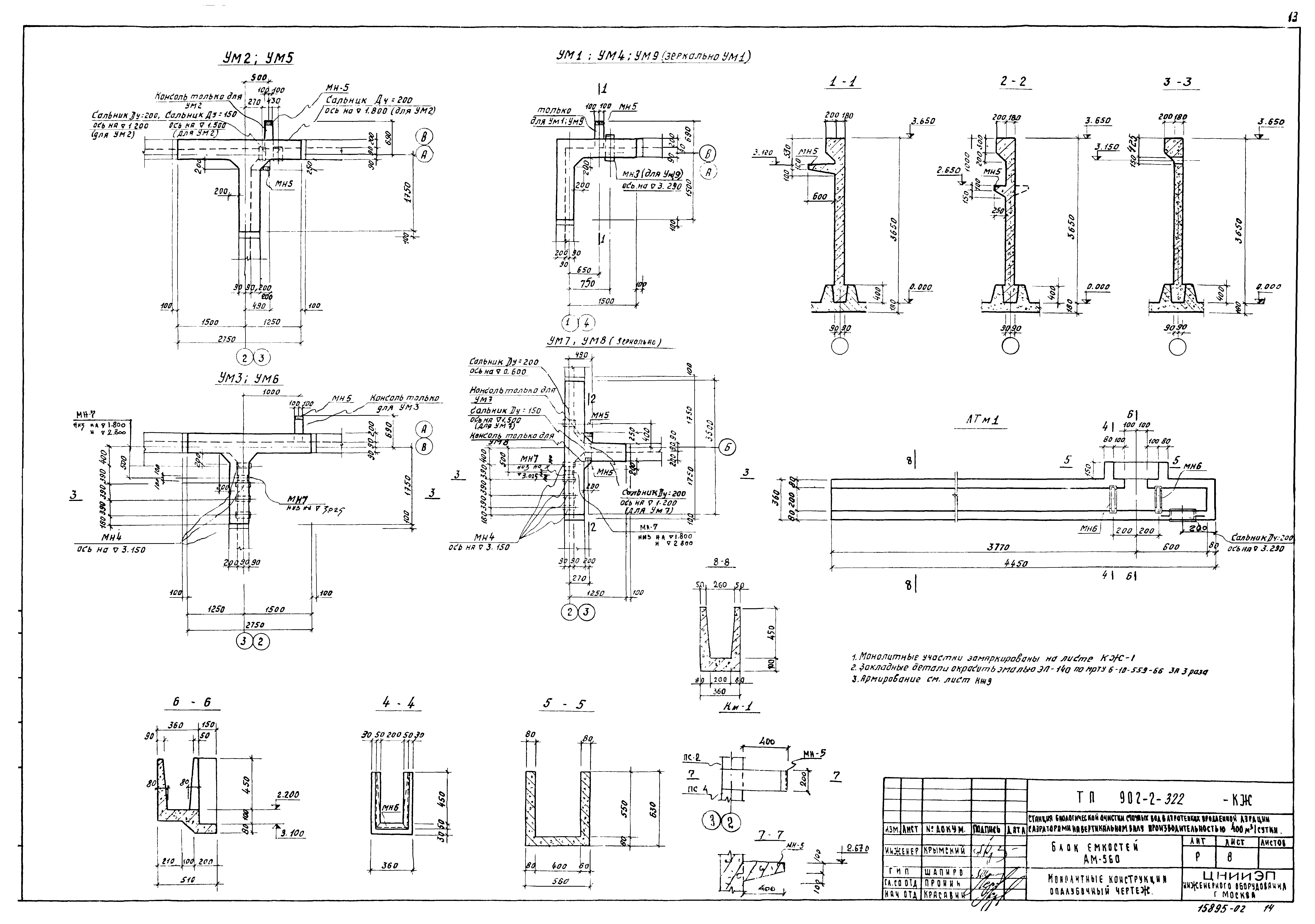
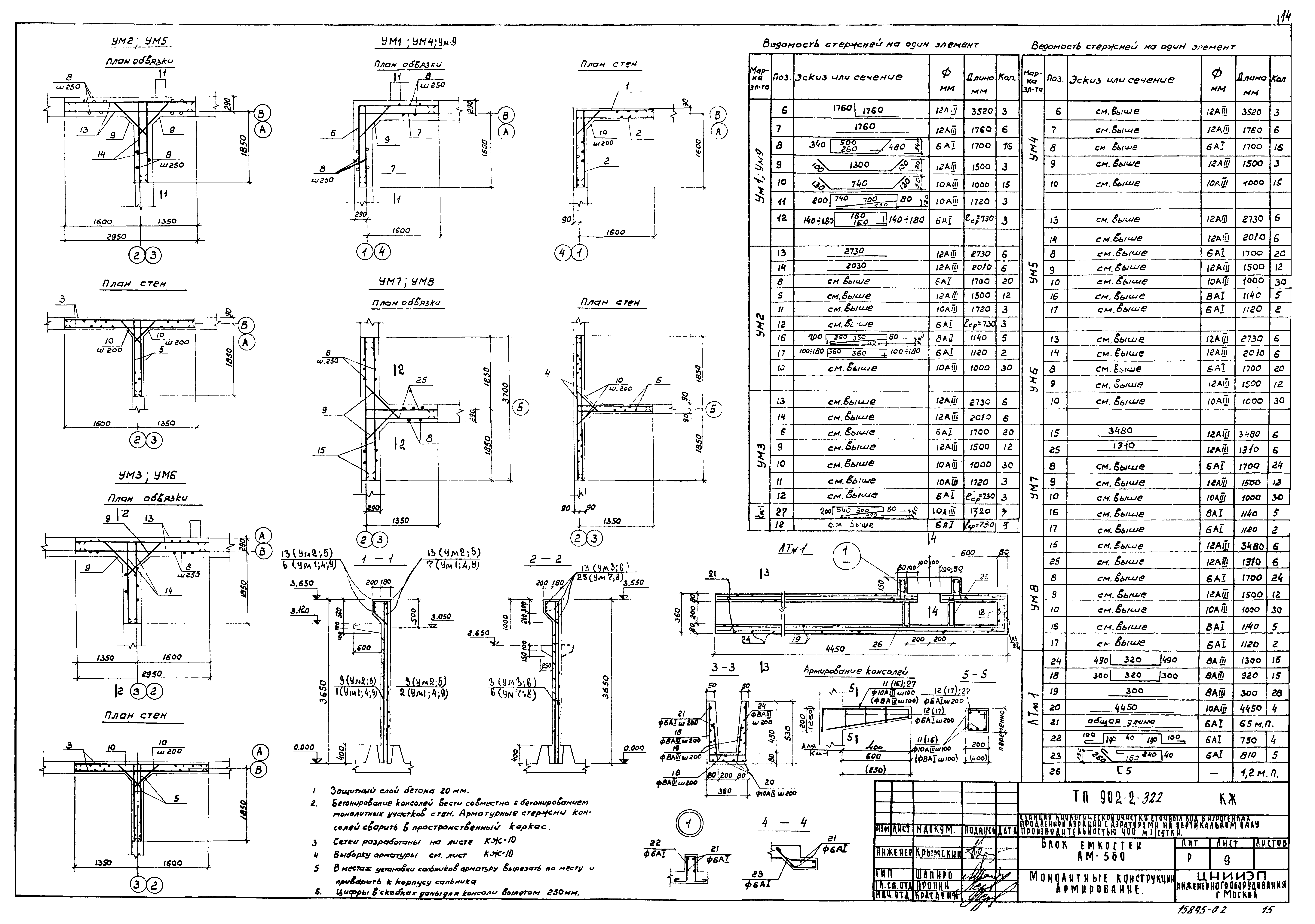
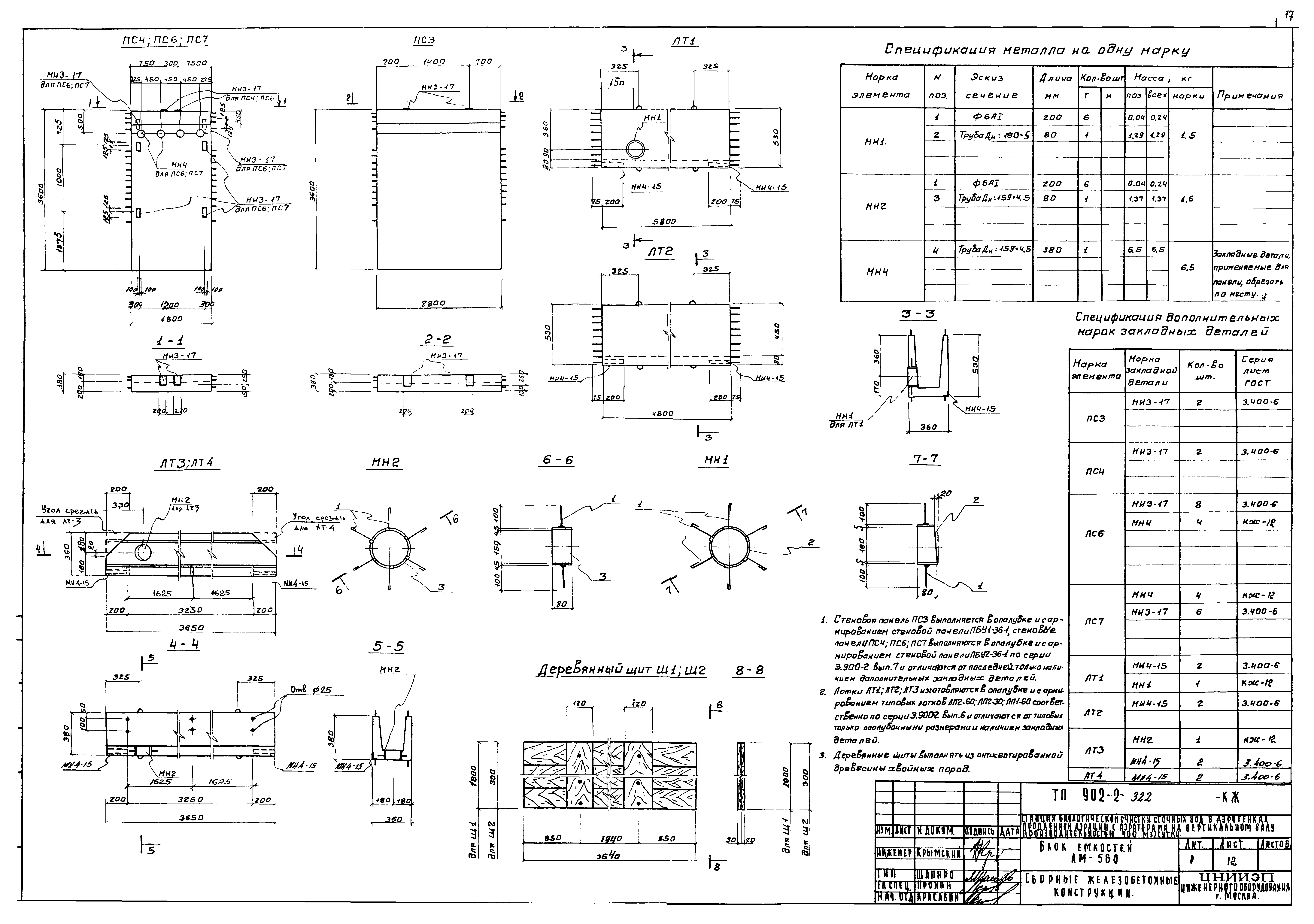
| Оглавление: | ТП 902-2-322 Содержание альбома ТП 902-2-322-КГ-1 Общие данные ТП 902-2-322-КГ Технологическая часть ТП 902-2-322 Блок емкостей ТП 902-2-322-КГ-2 План. Разрезы ТП 902-2-322 Контактные резервуары ТП 902-2-322-КГ-3 План. Разрезы ТП 902-2-322-КЖ Конструкции железобетонные ТП 902-2-322-КЖ-1 Маркировочная схема стеновых панелей. Маркировочная схема лотков и ходовых мостиков. Разрезы 1-1;2-2 ТП 902-2-322-КЖ-2 Разрез 3-3. Узлы. Спецификация ТП 902-2-322-КЖ-3 Узлы. Металлические марки. Спецификация ТП 902-2-322-КЖ-4 План днища. Разрезы 1-1÷3-3. Узлы 1-5 ТП 902-2-322-КЖ-5 Днище. Армирование. План раскладки верхних и нижних сеток. План раскладки каркасов. Разрезы ТП 902-2-322-КЖ-6 Днище. Армирование. Узлы. Разрезы. Спецификации ТП 902-2-322-КЖ-7 Днище. Армирование. Сетки. Каркасы. Спецификации ТП 902-2-322-КЖ-8 Монолитные конструкции. Опалубочный чертеж ТП 902-2-322-КЖ-9 Монолитные конструкции. Армирование ТП 902-2-322-КЖ-10 Монолитные конструкции. Арматурные сетки С1-С6. Спецификации ТП 902-2-322-КЖ-11 Монолитные конструкции. Спецификации ТП 902-2-322-КЖ-12 Сборные железобетонные конструкции ТП 902-2-322-КЖ-13 Ходовые мостики ТП 902-2-322-ЭЛ Электротехническая часть ТП 902-2-322-ЭЛ-1 Общие данные |
| Разработан: | ЦНИИЭП |
| Утверждён: | 19.07.1977 Госгражданстрой (Gosgrazhdanstroy 144) |




















