Скачать Типовой проект 902-2-328 Альбом III. Строительная частьДата актуализации: 01.01.2021
|
| Обозначение: | Типовой проект 902-2-328 |
| Обозначение англ: | 902-2-328 |
| Статус: | действует |
| Название рус.: | Альбом III. Строительная часть |
| Дата добавления в базу: | 01.09.2013 |
| Дата актуализации: | 01.01.2021 |
| Дата введения: | 22.03.1979 |
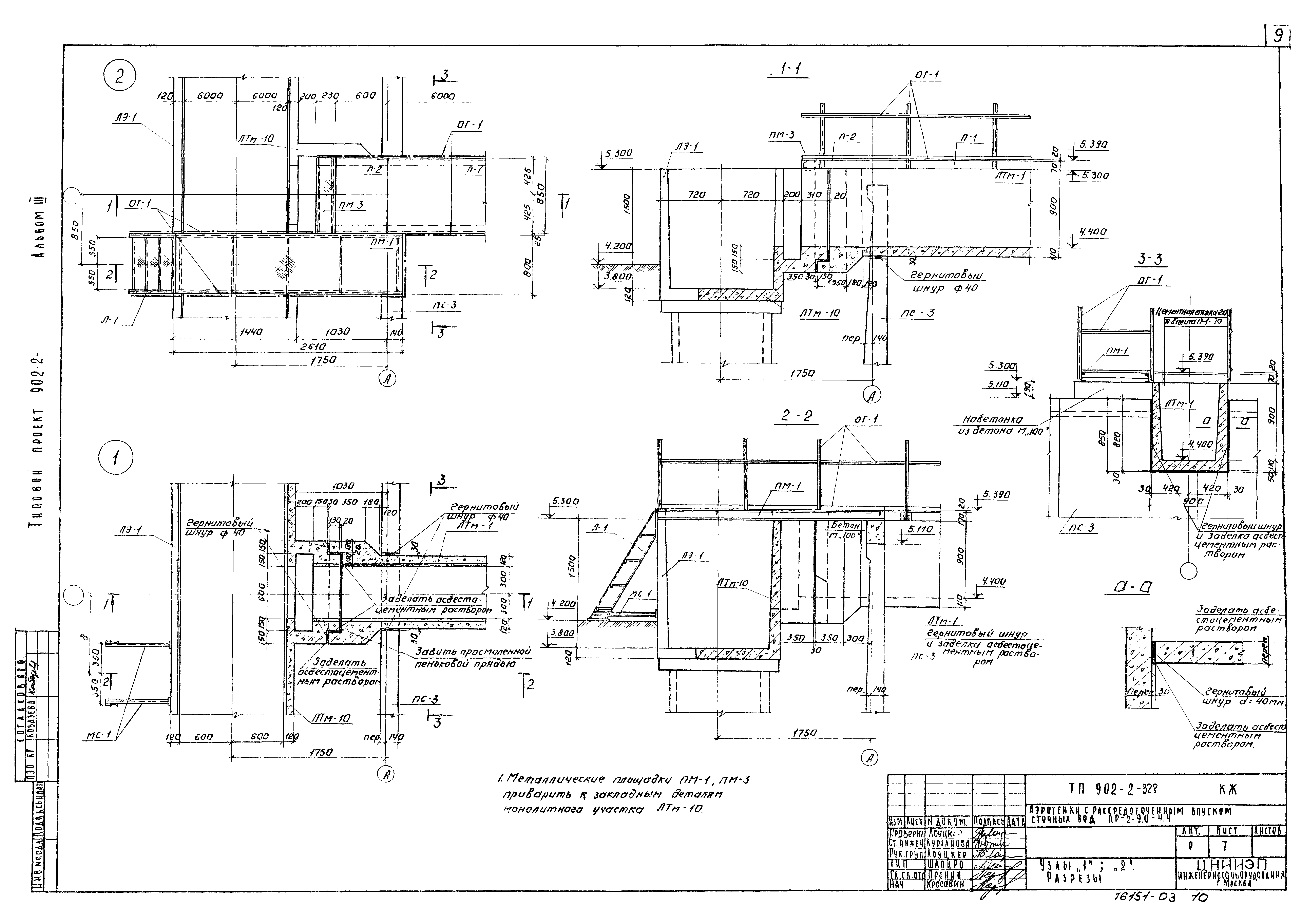
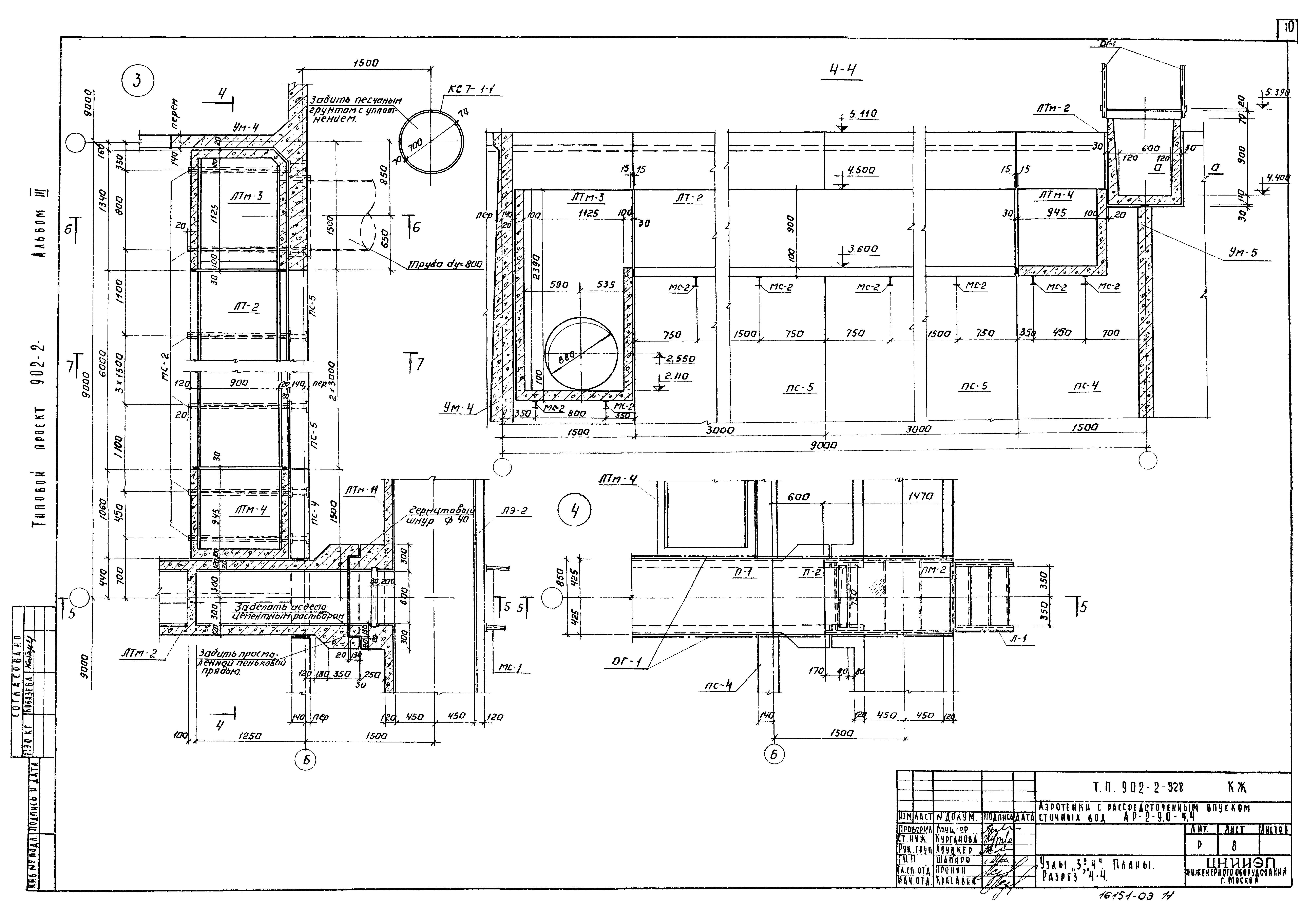
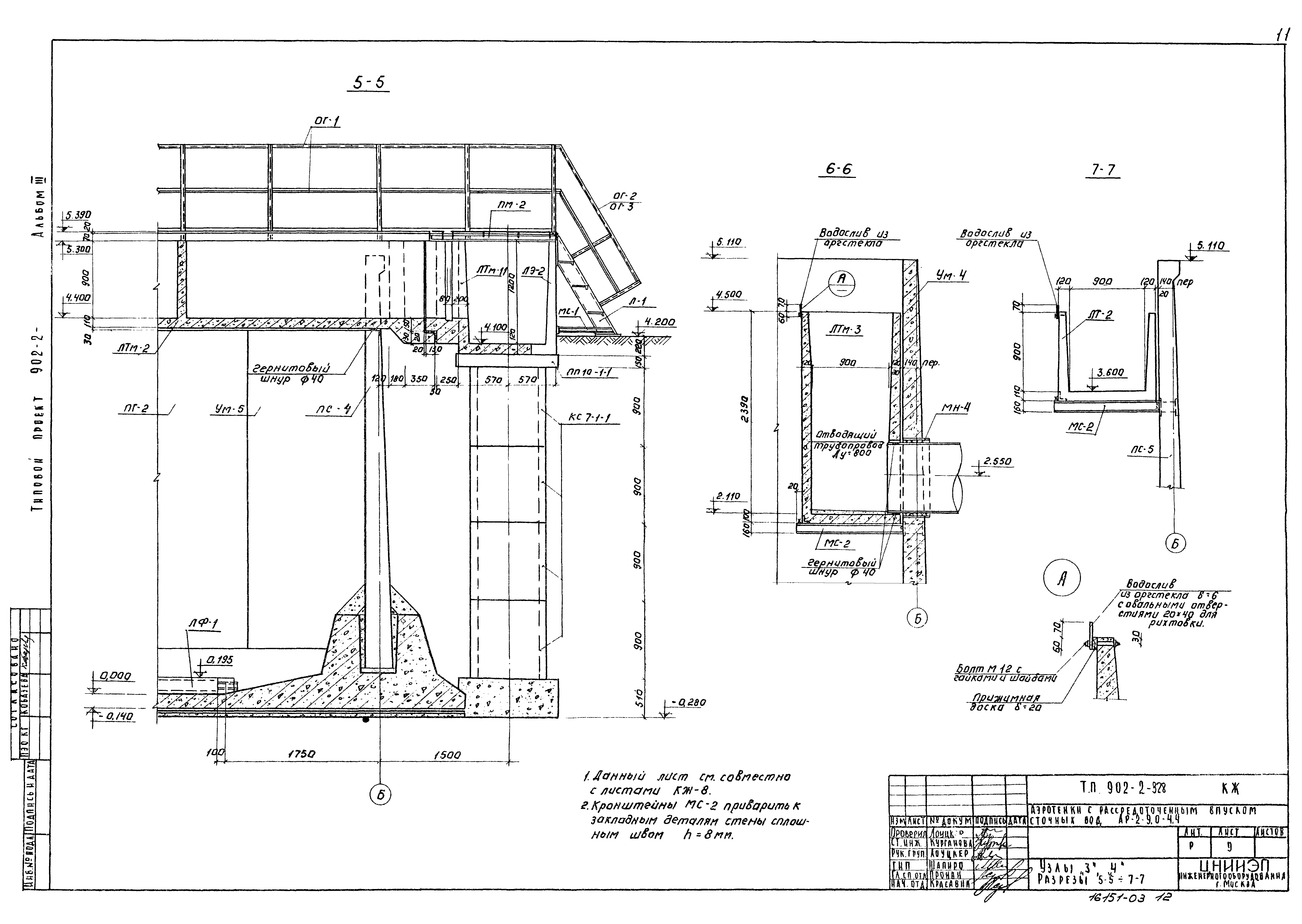
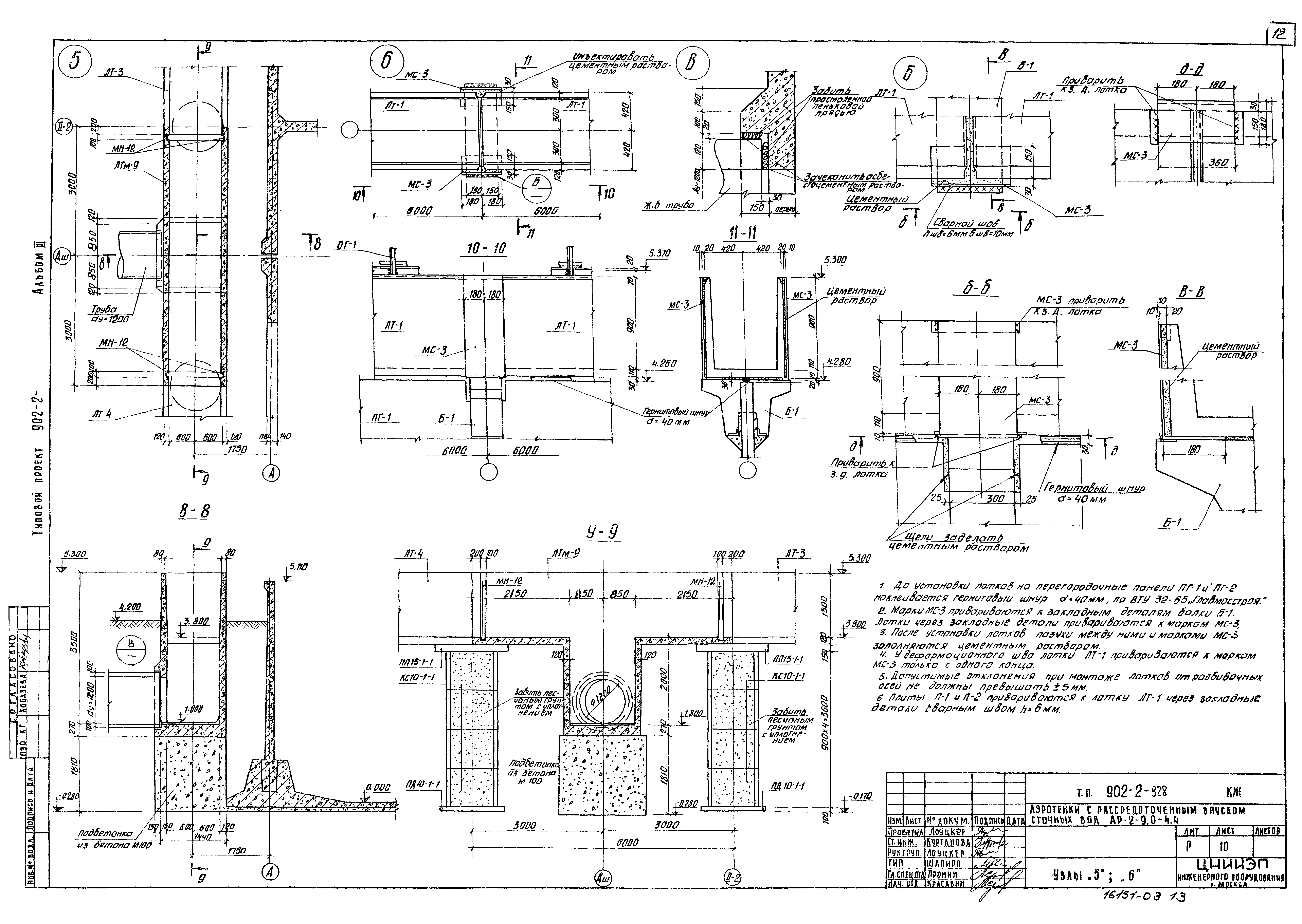
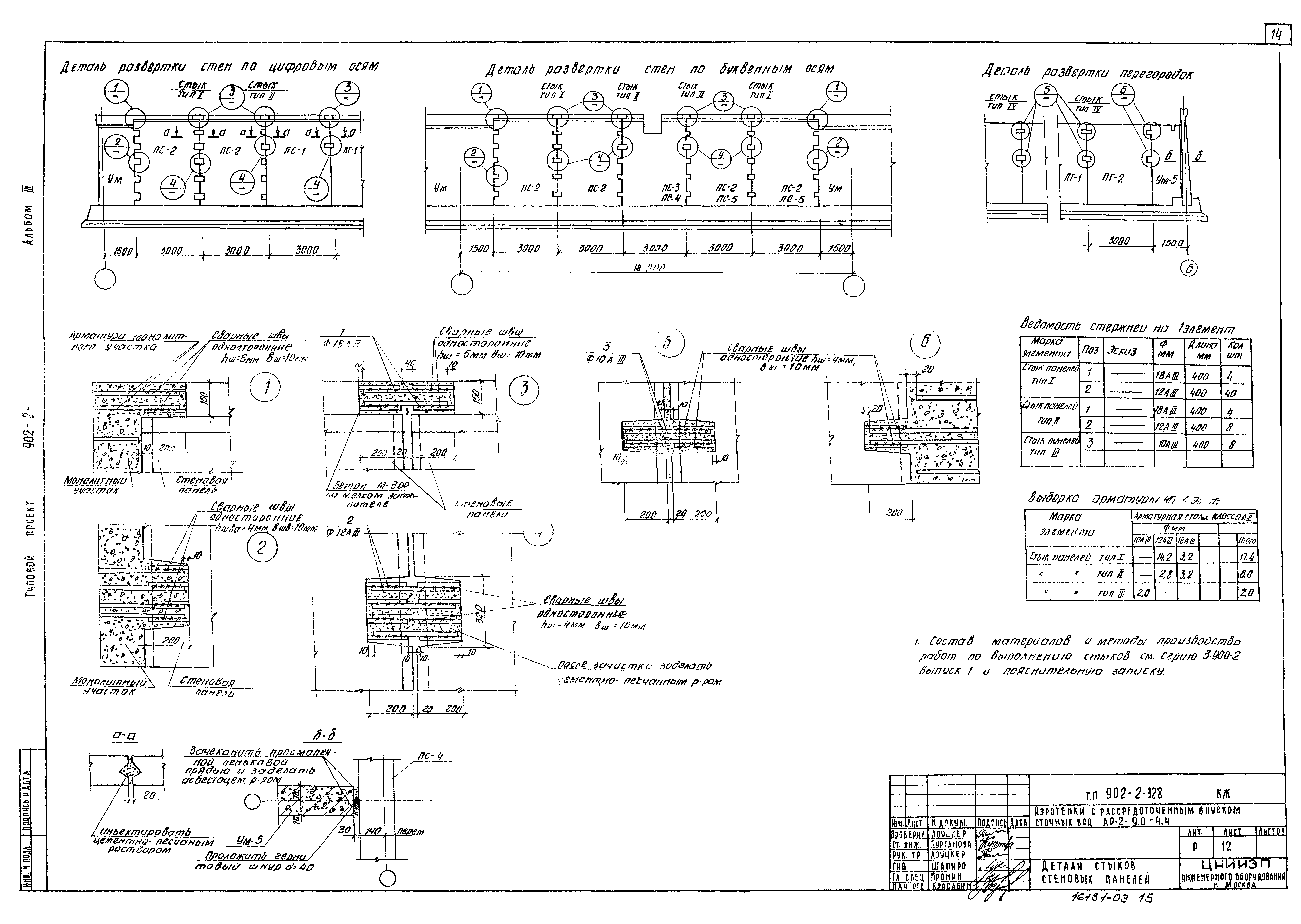
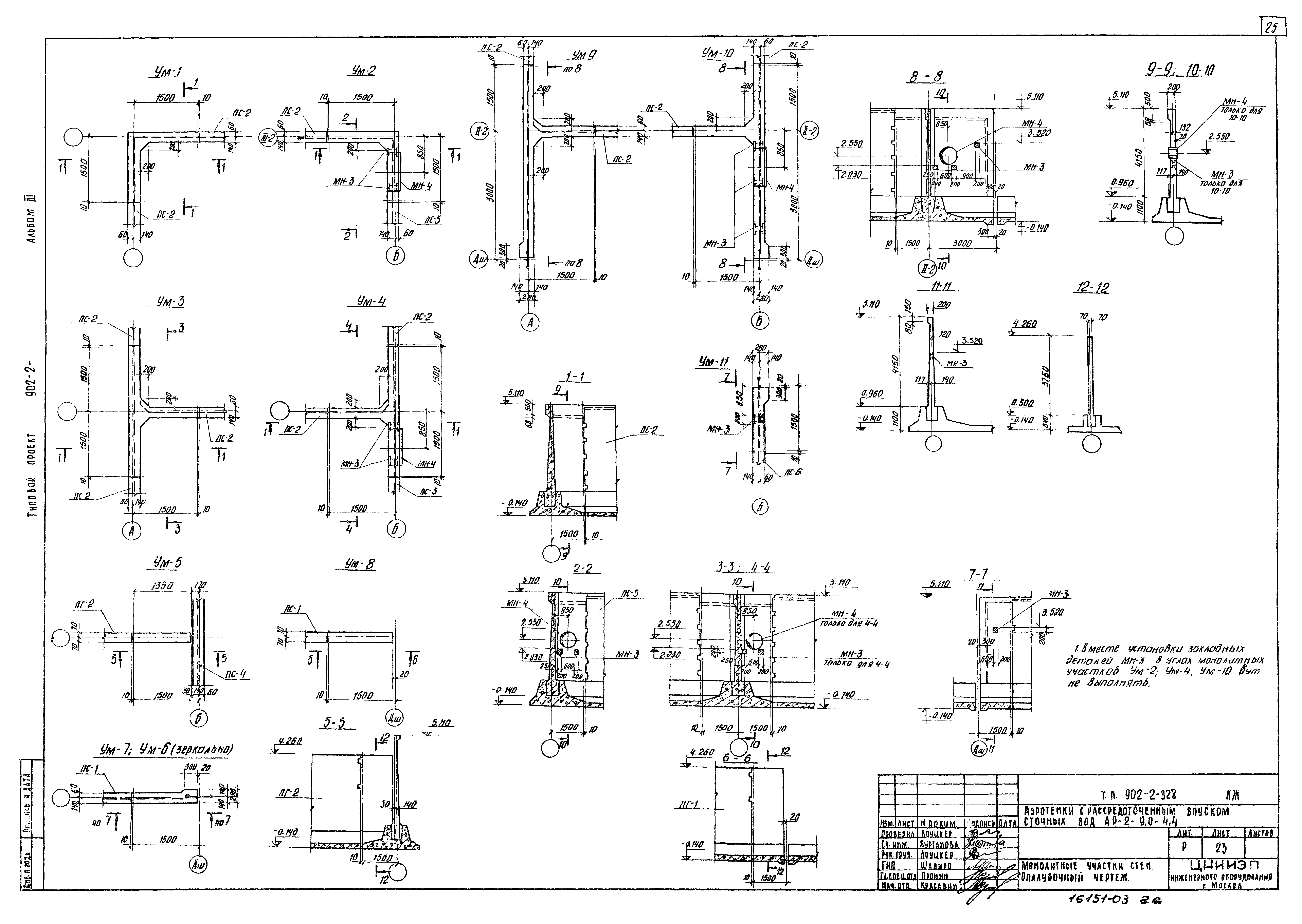
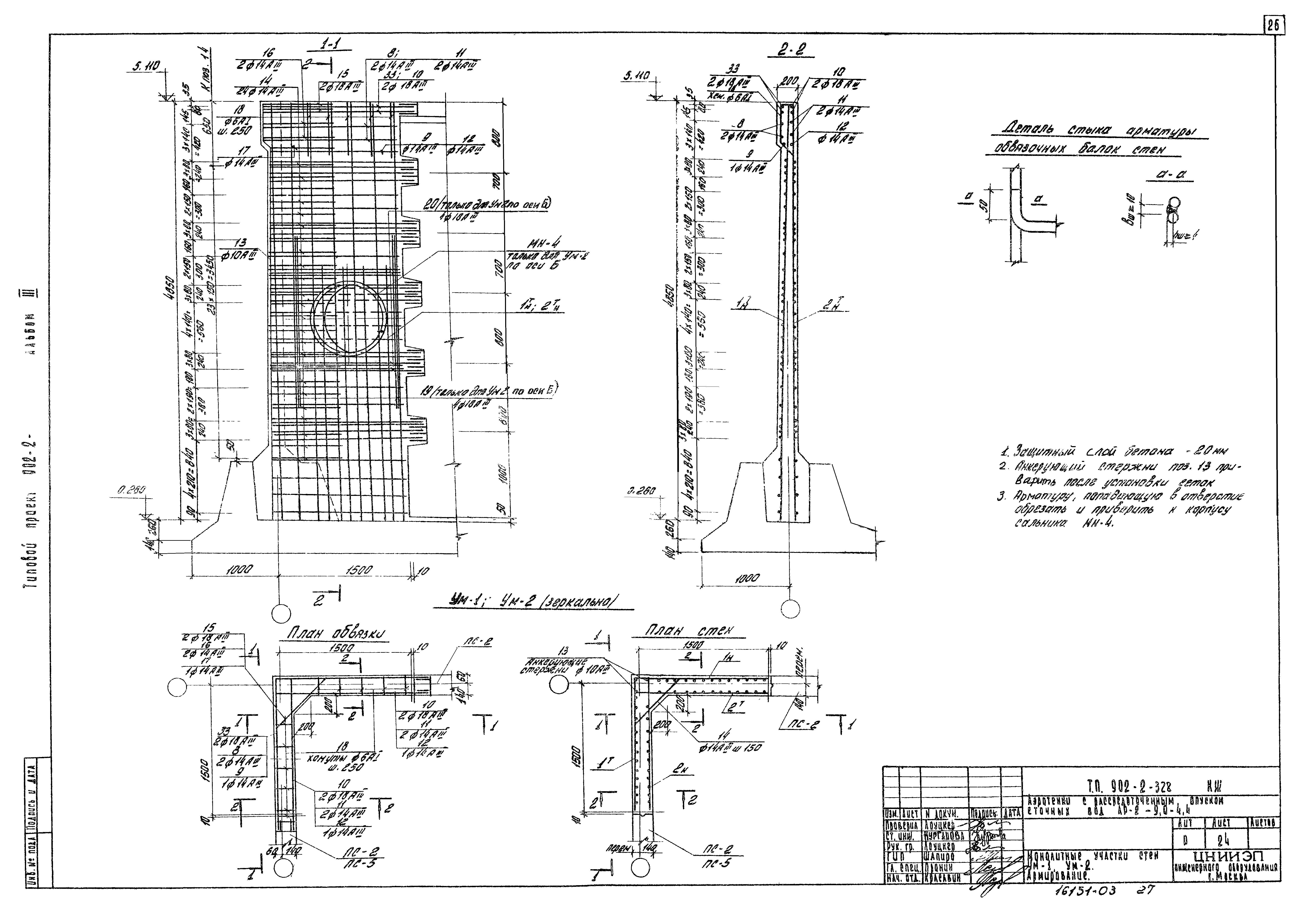
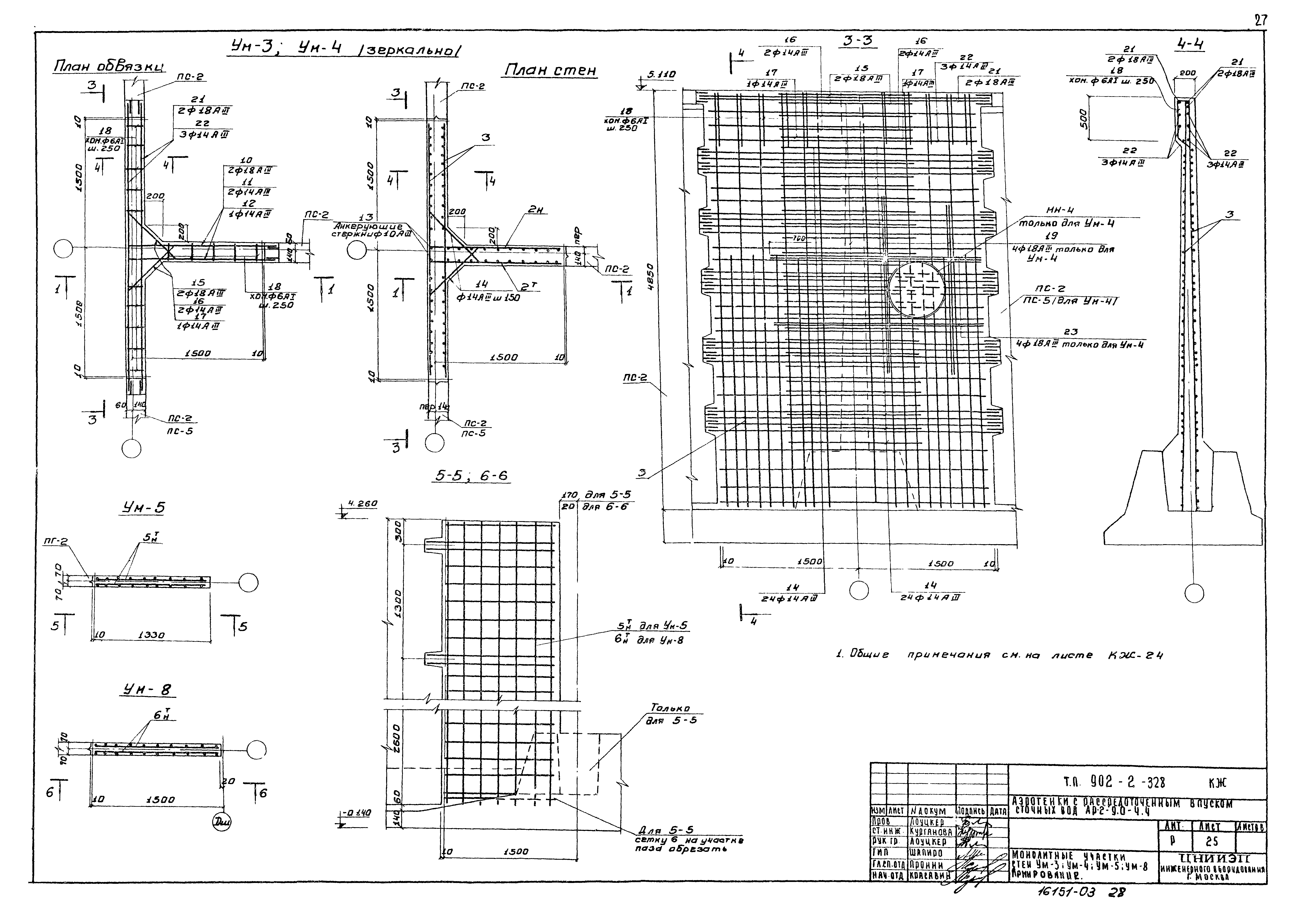
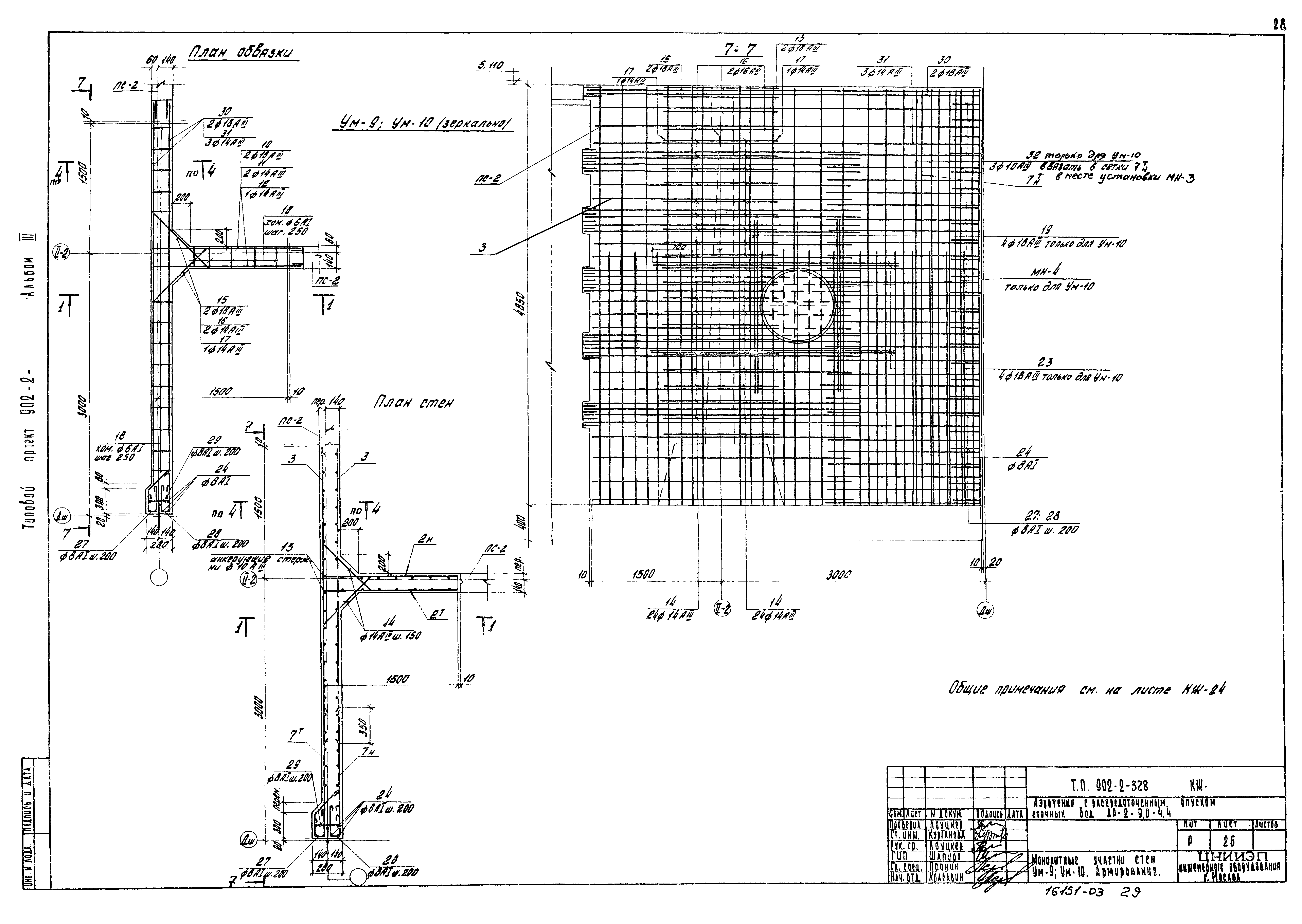
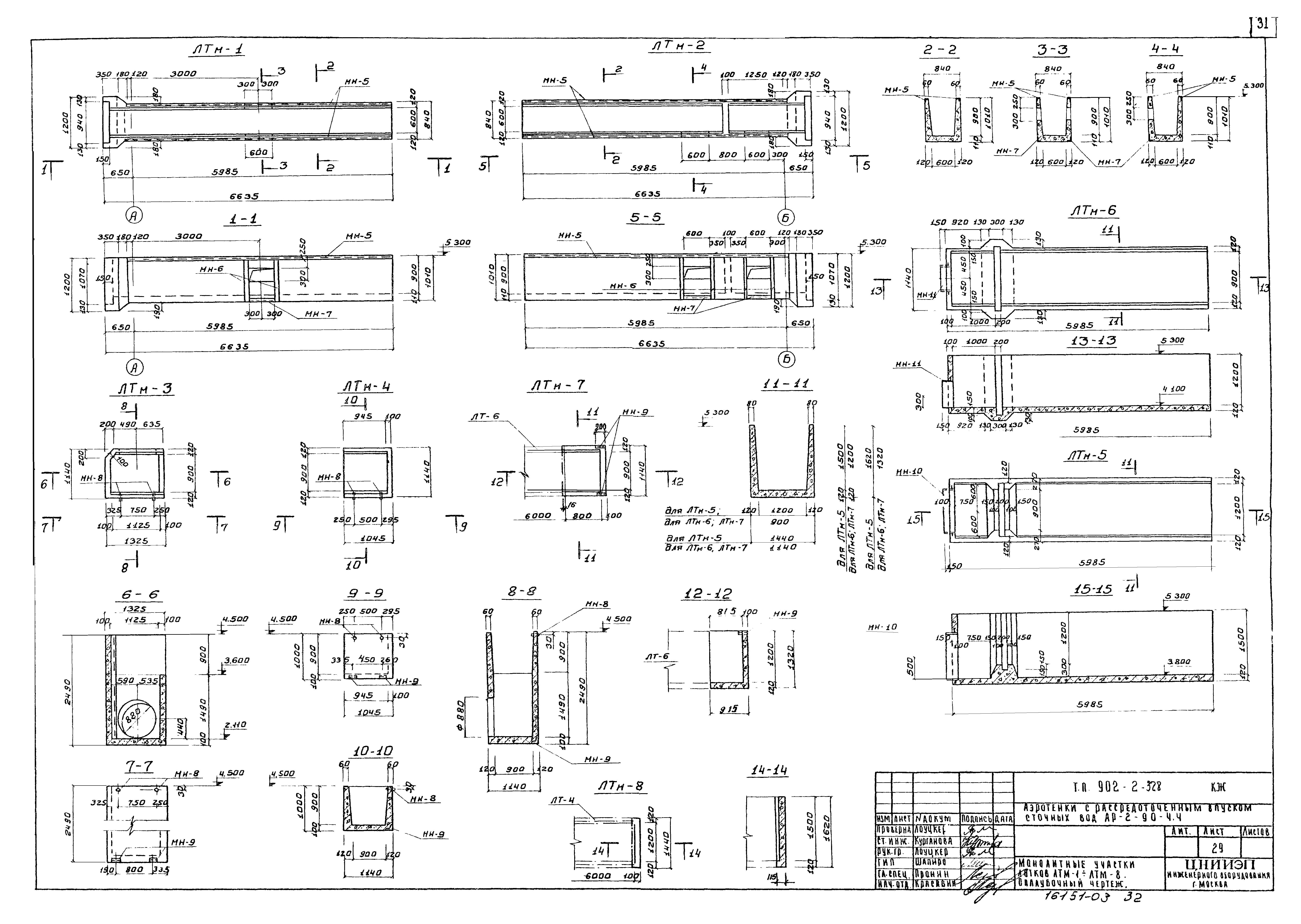
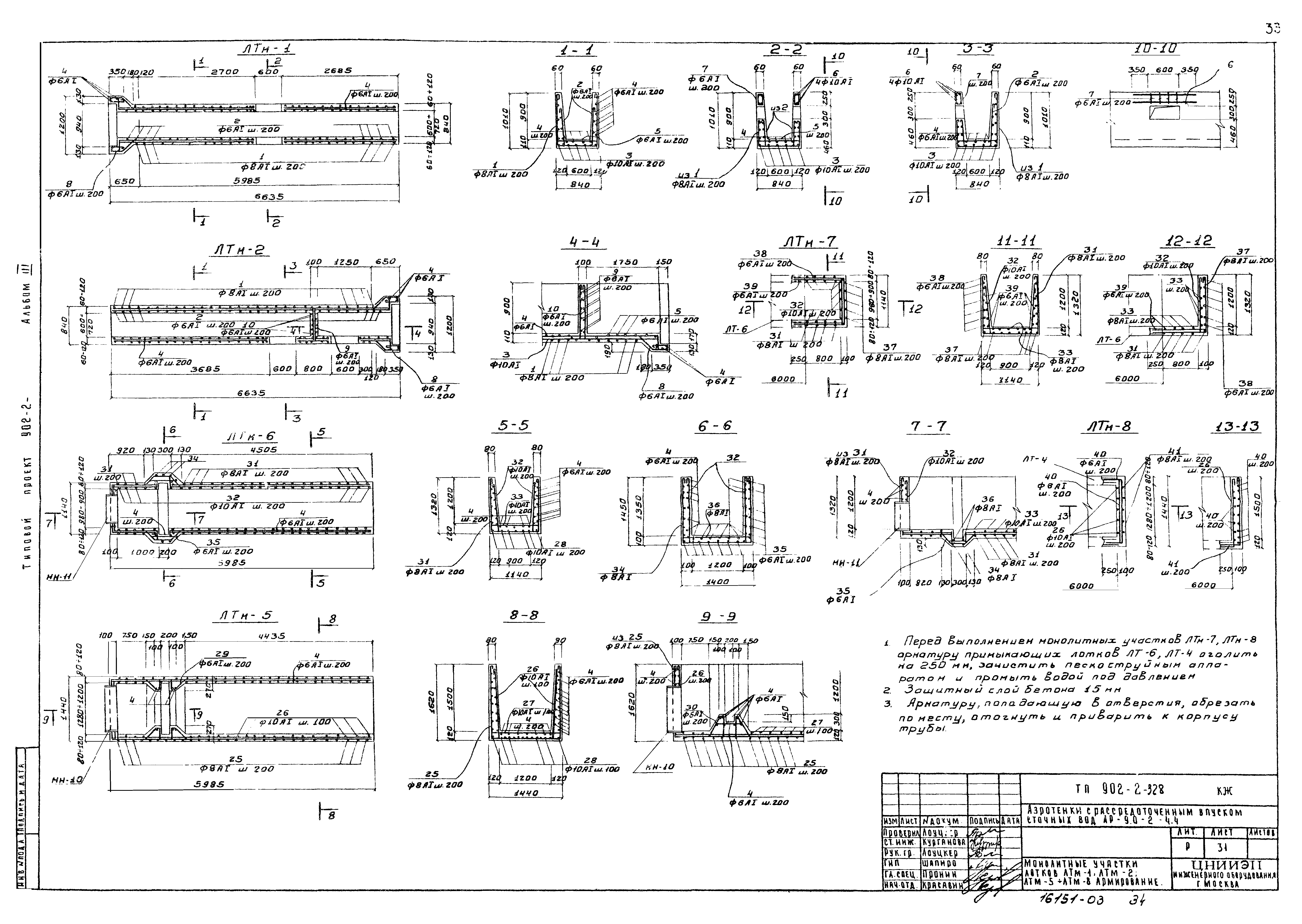
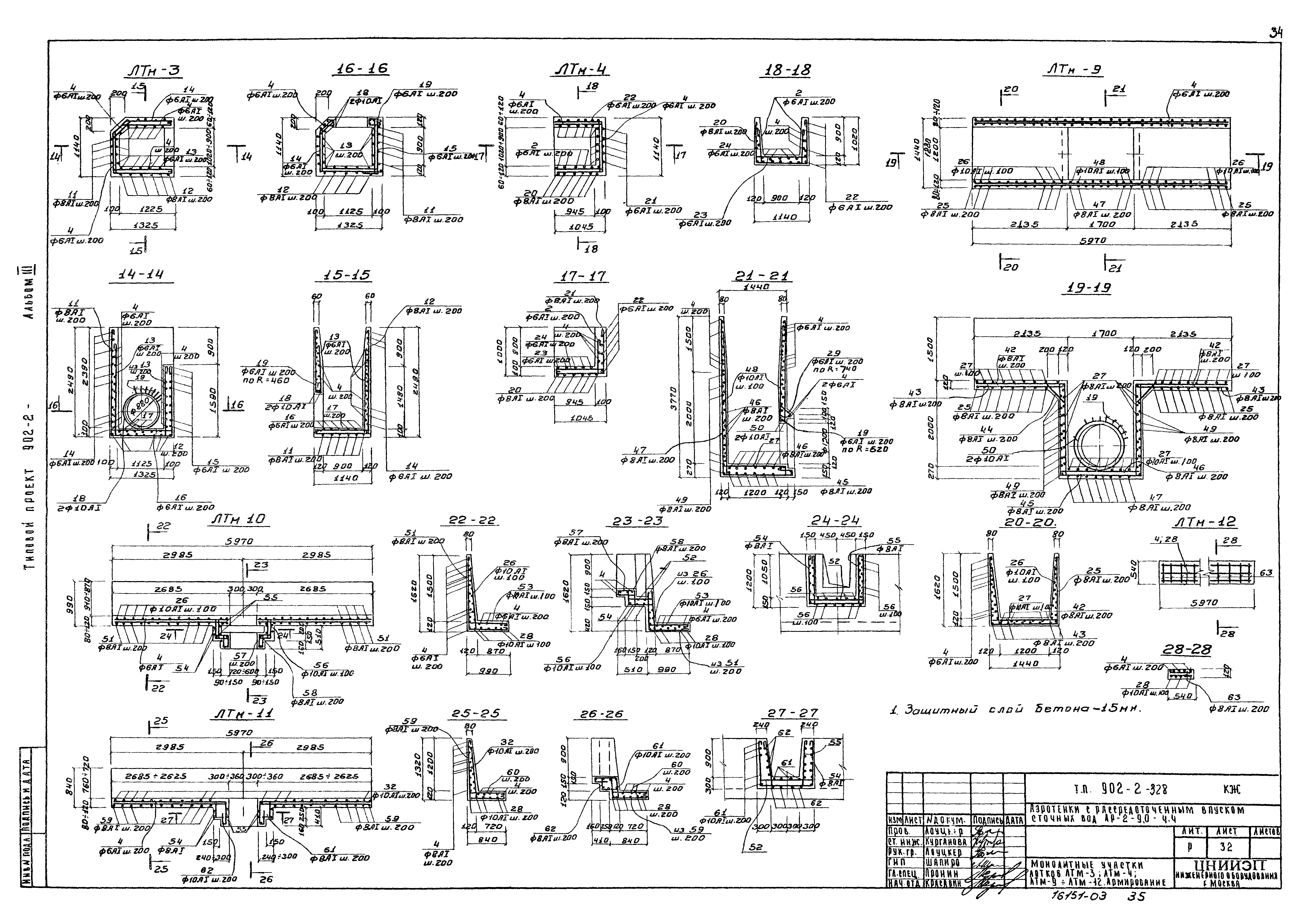
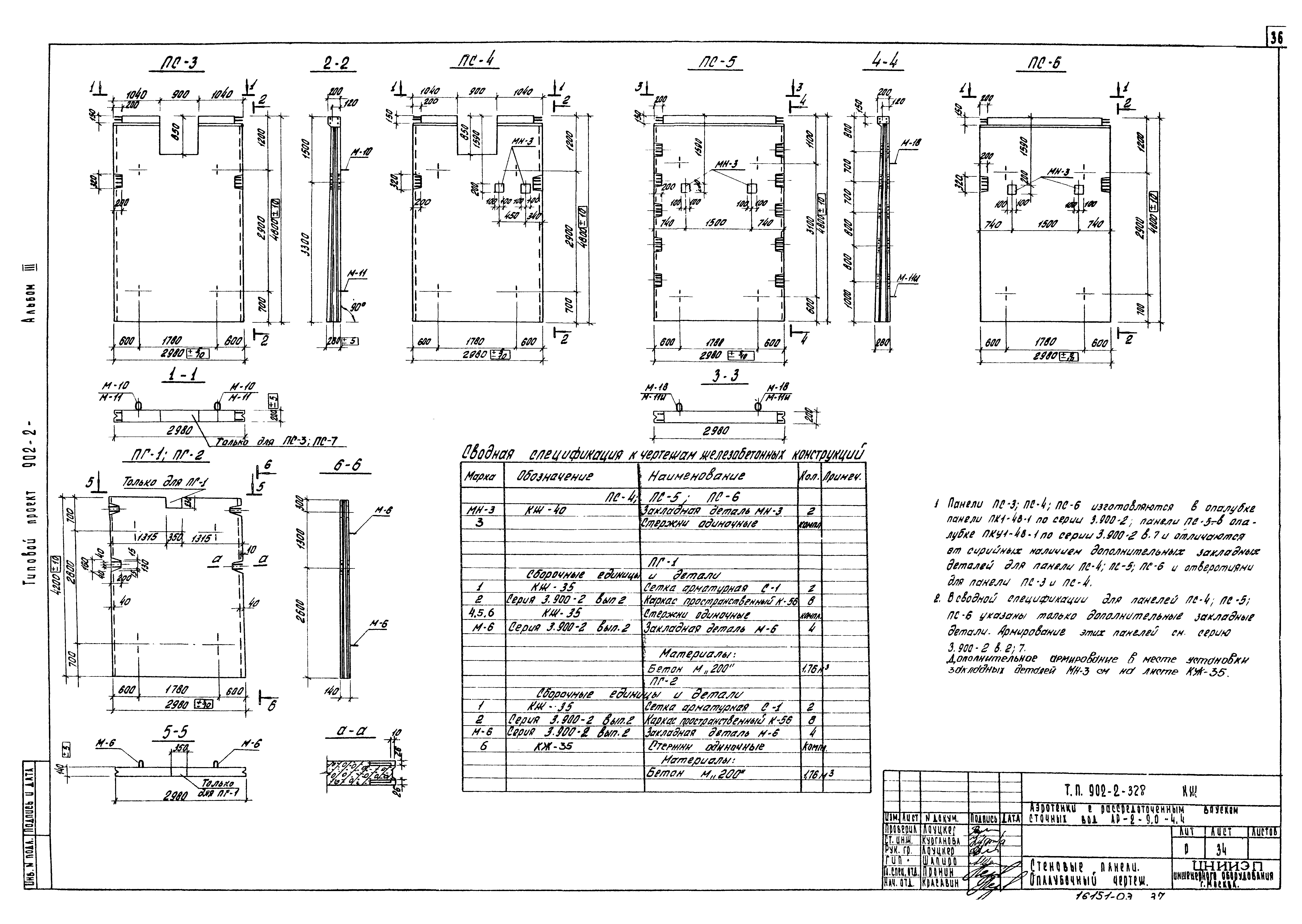
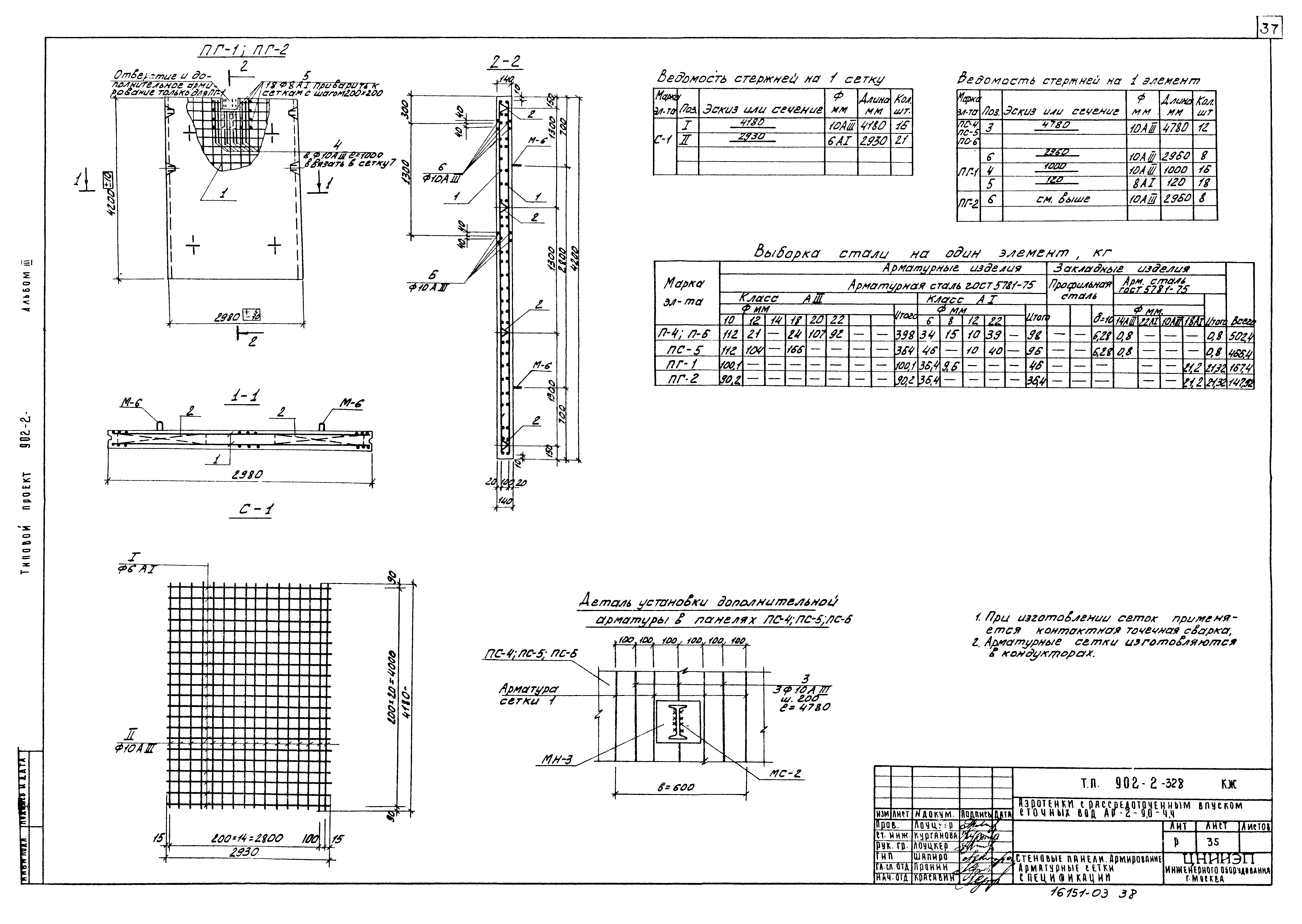
| Оглавление: | ТП 902-2-328 7 Содержание альбома ТП 902-2-328 7-КЖ-1 Общие данные ТП 902-2-328 7-КЖ-2 Примеры компоновки секций аэротенков ТП 902-2-328 7-КЖ-3 Маркировочные схемы стеновых панелей и фильтросных лотков ТП 902-2-328 7-КЖ-4 Маркировочные схемы лотков и балок. Разрезы 1-1÷4-4 ТП 902-2-328 7-КЖ-5 Планы мостиков. Спецификация ТП 902-2-328 7-КЖ-6 Маркировочная схема лотков осветленной воды и активного ила. Спецификации ТП 902-2-328 7-КЖ-7 Узлы "1","2". Разрезы ТП 902-2-328 7-КЖ-8 Узлы "3","4". Планы. Разрез 4-4 ТП 902-2-328 7-КЖ-9 Узлы "3","4". Разрезы 5-5÷7-7 ТП 902-2-328 7-КЖ-10 Узлы "5","6" ТП 902-2-328 7-КЖ-11 Детали установки панелей, балок, лотков, подвижной опоры под воздуховод ТП 902-2-328 7-КЖ-12 Детали стыков стеновых панелей ТП 902-2-328 7-КЖ-13 Детали установки фильтросных лотков ТП 902-2-328 7-КЖ-14 Днище. Опалубочный чертеж. Разрезы. План чистого пола днища ТП 902-2-328 7-КЖ-15 Днище. Опалубочный чертеж. Узлы. Детали ТП 902-2-328 7-КЖ-16 Днище. Армирование. План раскладки нижних сеток ТП 902-2-328 7-КЖ-17 Днище. Армирование. План раскладки верхних сеток ТП 902-2-328 7-КЖ-18 Днище. Армирование. План раскладки каркасов ТП 902-2-328 7-КЖ-19 Днище. Армирование. Разрезы. Спецификации ТП 902-2-328 7-КЖ-20 Днище. Армирование. Узлы 1-4 ТП 902-2-328 7-КЖ-21 Днище. Армирование. Узлы 5-9 ТП 902-2-328 7-КЖ-22 Днище. Армирование. Арматурные сетки и каркасы ТП 902-2-328 7-КЖ-23 Монолитные участки стен. Опалубочный чертеж ТП 902-2-328 7-КЖ-24 Монолитные участки стен УМ-1,УМ-2. Армирование ТП 902-2-328 7-КЖ-25 Монолитные участки стен УМ-3,УМ-4,УМ-5,УМ-8. Армирование ТП 902-2-328 7-КЖ-26 Монолитные участки стен УМ-9,УМ-10. Армирование ТП 902-2-328 7-КЖ-27 Монолитные участки стен УМ-6,УМ-7,УМ-11. Армирование. Спецификации ТП 902-2-328 7-КЖ-28 Монолитные участки стен. Арматурные сетки ТП 902-2-328 7-КЖ-29 Монолитные участки лотков ЛТМ-1÷ЛТМ-8. Опалубочный чертеж ТП 902-2-328 7-КЖ-30 Монолитные участки лотков ЛТМ-9÷ЛТМ-12. Опалубочный чертеж ТП 902-2-328 7-КЖ-31 Монолитные участки лотков ЛТМ-1,ЛТМ-2,ЛТМ-5÷ЛТМ-8. Армирование ТП 902-2-328 7-КЖ-32 Монолитные участки лотков ЛТМ-3,ЛТМ-4,ЛТМ-9÷ЛТМ-12. Армирование ТП 902-2-328 7-КЖ-33 Монолитные участки лотков. Выборки. Спецификации ТП 902-2-328 7-КЖ-34 Стеновые панели. Опалубочный чертеж ТП 902-2-328 7-КЖ-35 Стеновые панели. Армирование. Арматурные сетки. Спецификации ТП 902-2-328 7-КЖ-36 Сборные железобетонные элементы. Опалубочный чертеж ТП 902-2-328 7-КЖ-37 Сборные железобетонные элементы. Армирование. Спецификации ТП 902-2-328 7-КЖ-38 Сборные железобетонные элементы. Арматурные сетки ТП 902-2-328 7-КЖ-39 6ти метровая вставка ТП 902-2-328 7-КЖ-40 Металлические площадки. Закладные детали |
| Разработан: | ЦНИИЭП |
| Утверждён: | 22.07.1974 Госгражданстрой (Gosgrazhdanstroy 164) |











































