Скачать Типовой проект 704-1-53 Альбом II. Рабочие чертежи КМ понтонаДата актуализации: 01.01.2021
|
| Обозначение: | Типовой проект 704-1-53 |
| Обозначение англ: | 704-1-53 |
| Статус: | не действует |
| Название рус.: | Альбом II. Рабочие чертежи КМ понтона |
| Дата добавления в базу: | 01.09.2013 |
| Дата актуализации: | 01.01.2021 |
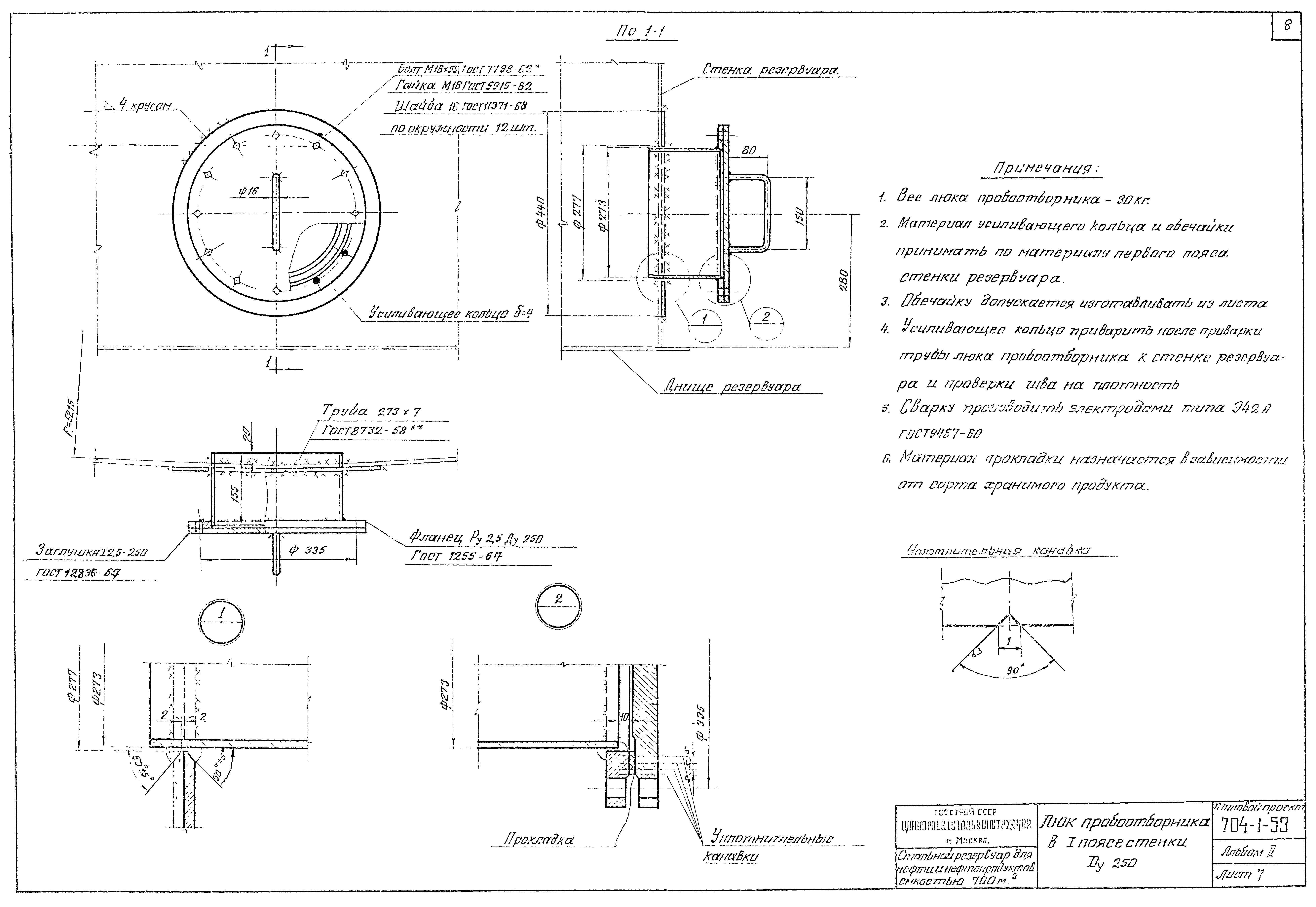
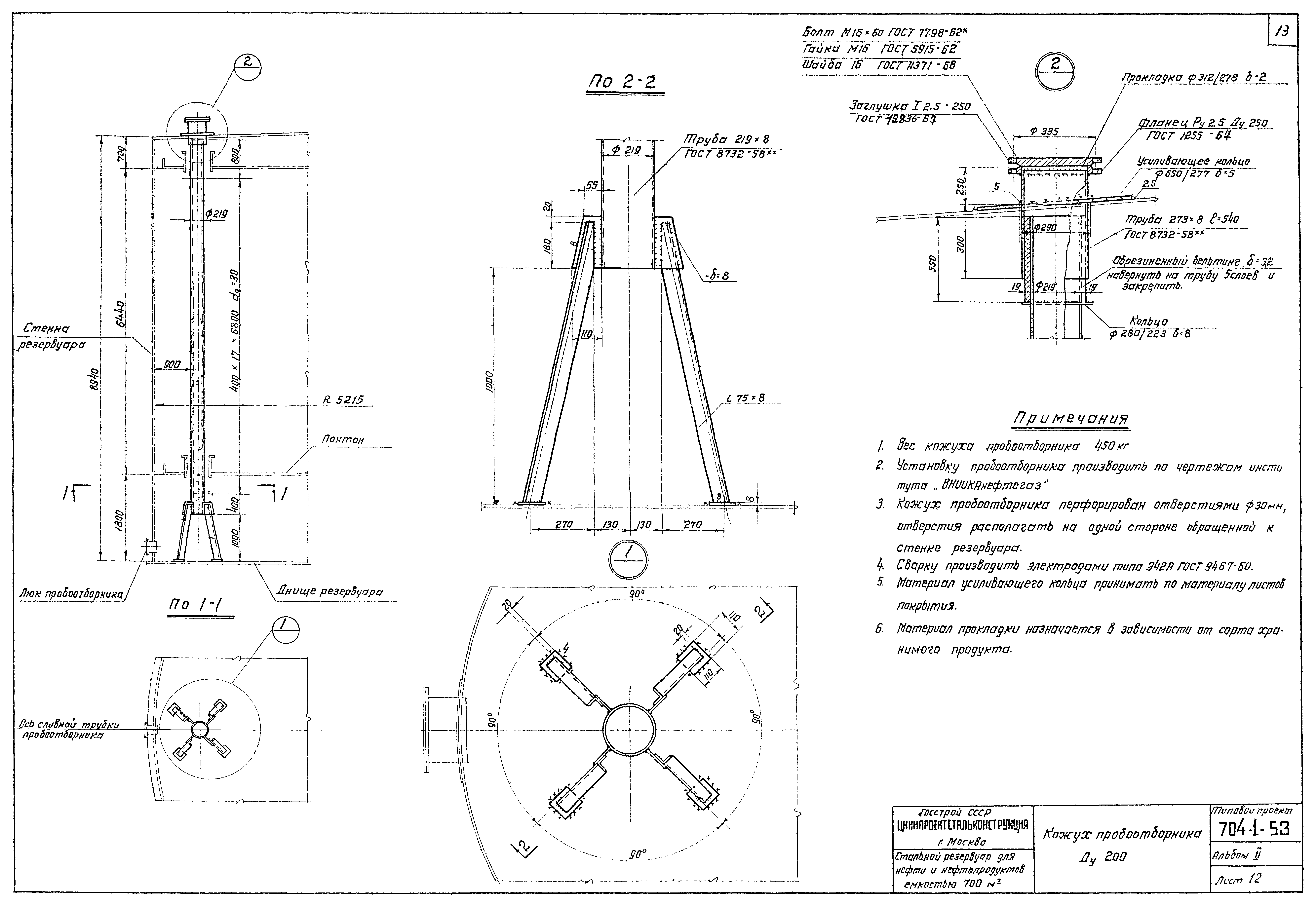
| Оглавление: | ТП 704-1-53-1и Содержание альбома 2 и пояснительная записка ТП 704-1-53-2и Техническая спецификация стали и материалов на понтон ТП 704-1-53-3 Понтон. План и разрез ТП 704-1-53-4 Понтон. Днище и узлы ТП 704-1-53-5 Кронштейн ТП 704-1-53-6 Площадка и стремянка у люк-лаза во 2 поясе стенки ТП 704-1-53-7 Свободный ТП 704-1-53-8 Люк-лак во 2 поясе стенки Ду500 ТП 704-1-53-9 Патрубок в понтоне для УДУ Ду500 ТП 704-1-53-10 Патрубок в понтоне для кожуха пробоотборника и трубы ручного замера Ду350 ТП 704-1-53-11 Патрубок предохранителя Ду150,Ду200 ТП 704-1-53-12 Кожух пробоотборника Ду200 ТП 704-1-53-13 Труба ручного замера Ду200 ТП 704-1-53-14 Пелевой затвор |
| Разработан: | ЦНИИпроектстальконструкция |
| Утверждён: | 29.12.1969 ЦНИИпроектстальконструкция (TsNIIprojectstalkonstruktsiya 221) |















