Скачать Типовой проект 704-1-53 Альбом IV. Оборудование резервуара с понтоном для нефти и бензинаДата актуализации: 01.01.2021
|
| Обозначение: | Типовой проект 704-1-53 |
| Обозначение англ: | 704-1-53 |
| Статус: | не действует |
| Название рус.: | Альбом IV. Оборудование резервуара с понтоном для нефти и бензина |
| Дата добавления в базу: | 01.09.2013 |
| Дата актуализации: | 01.01.2021 |
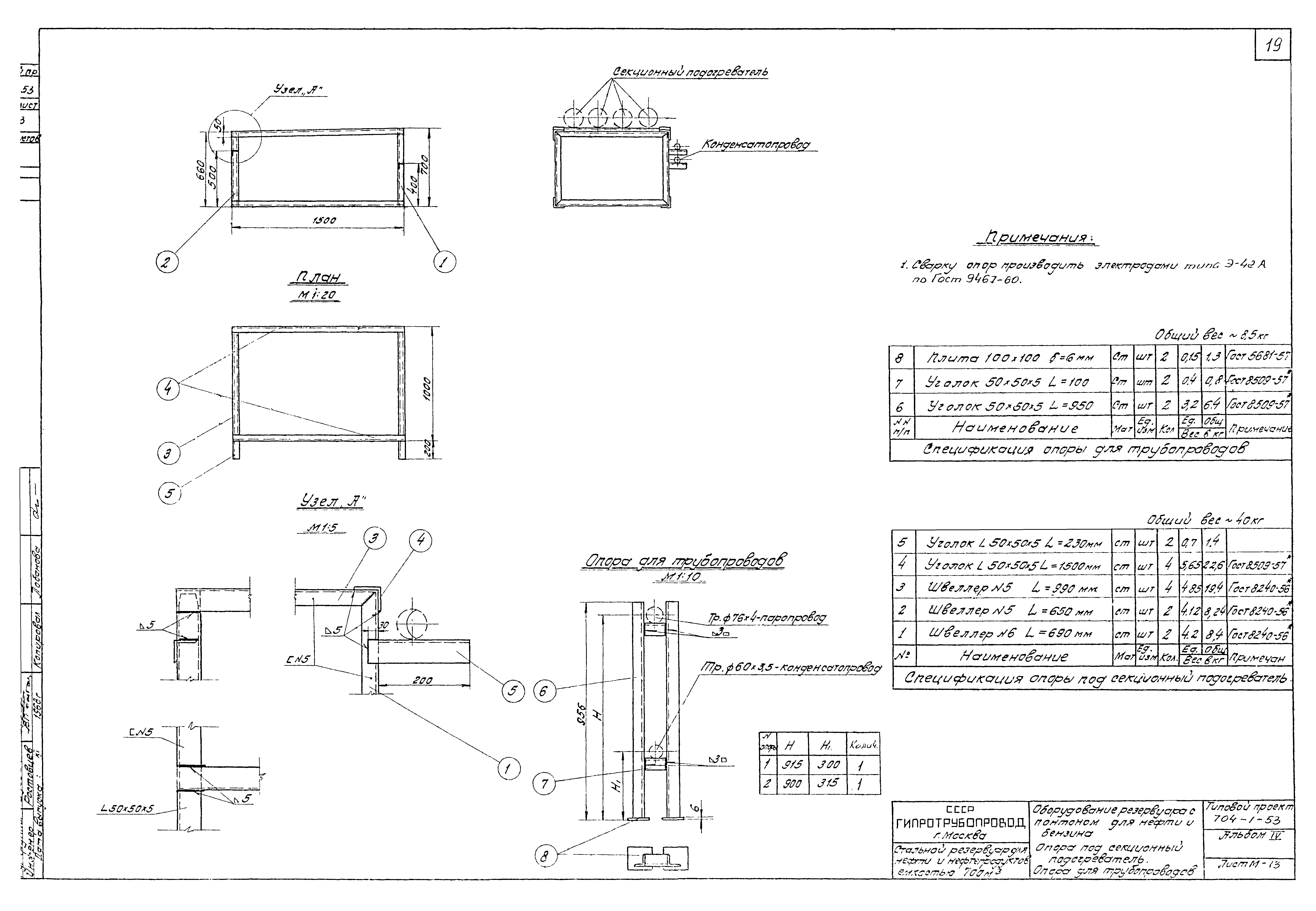
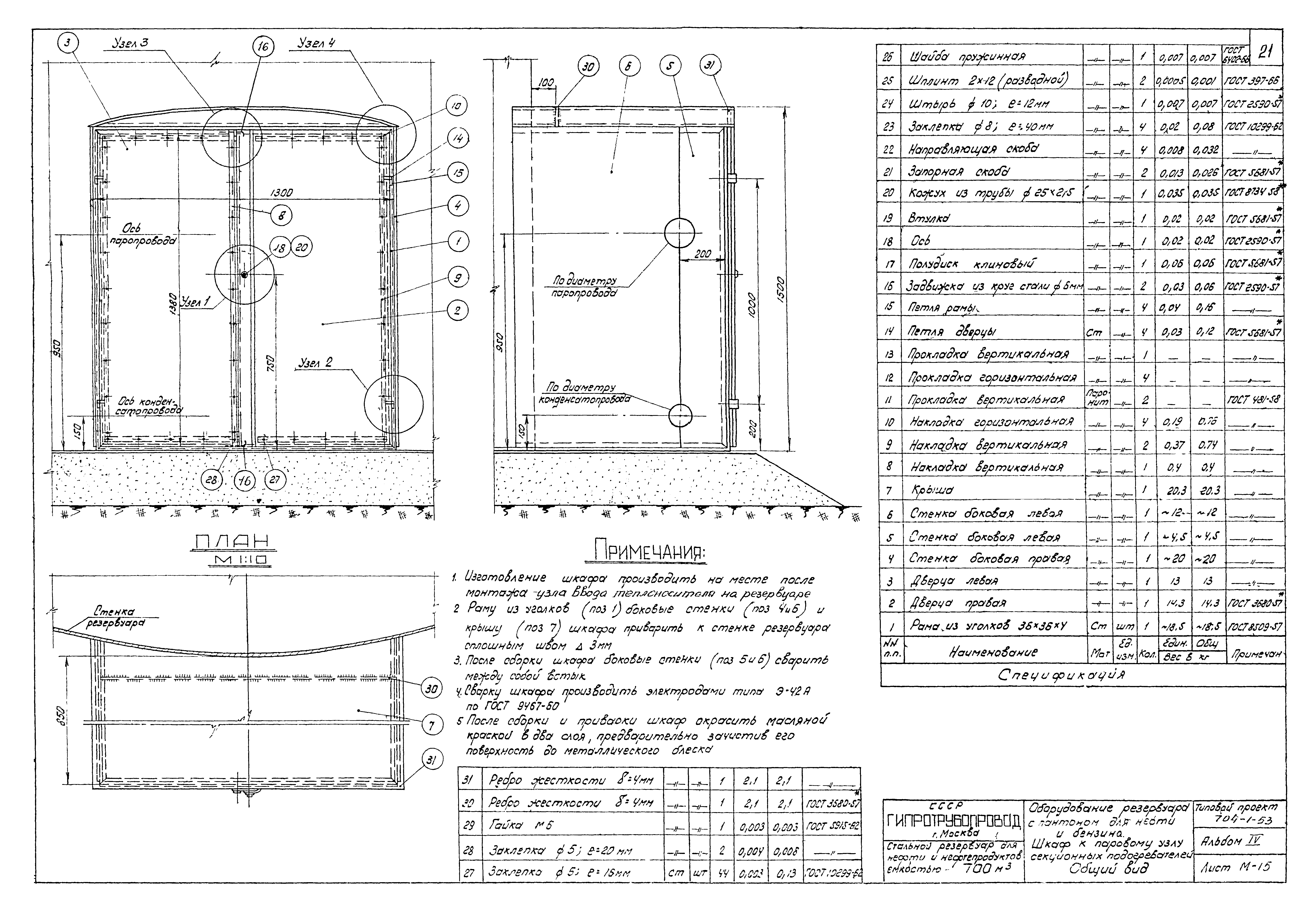
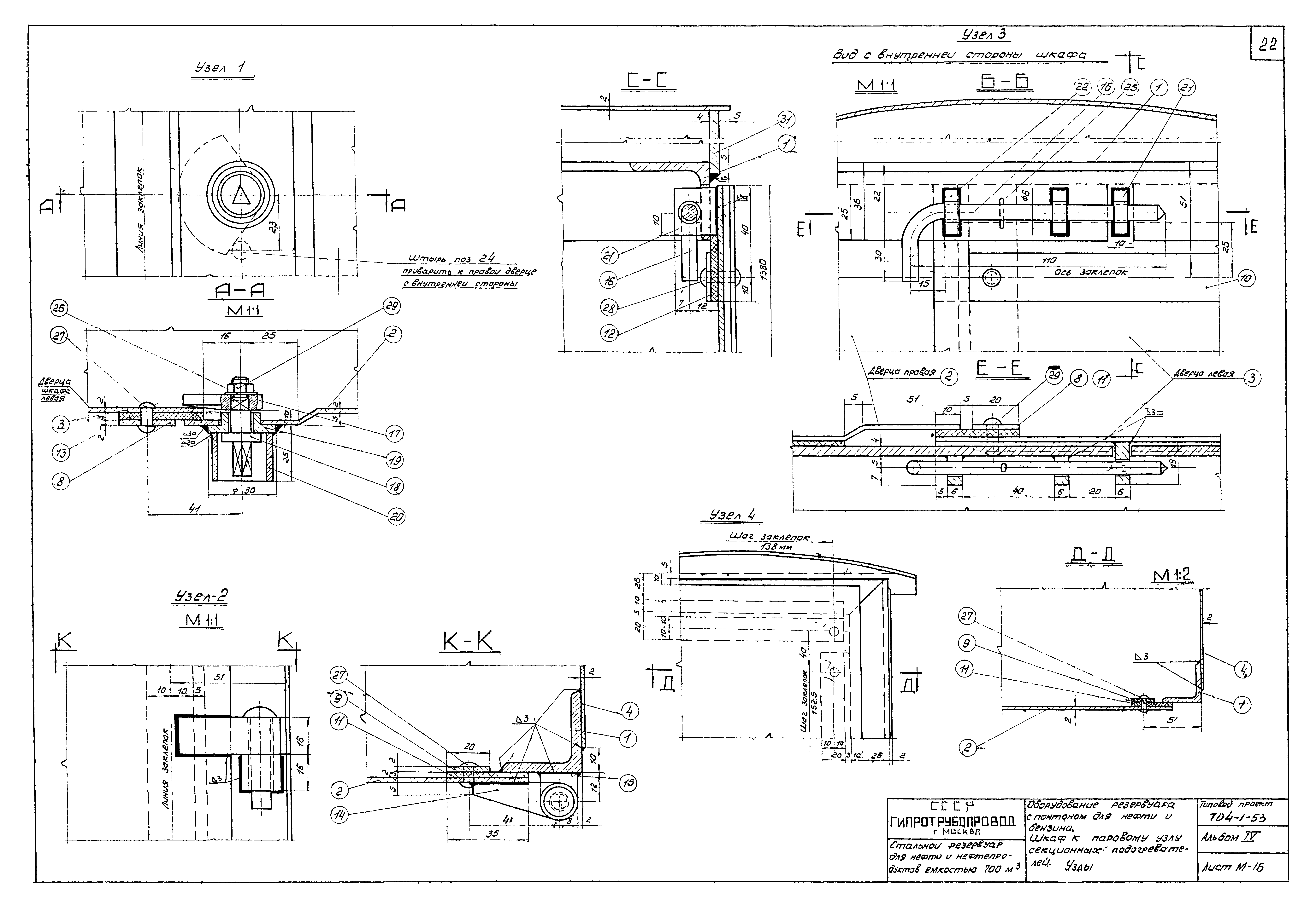
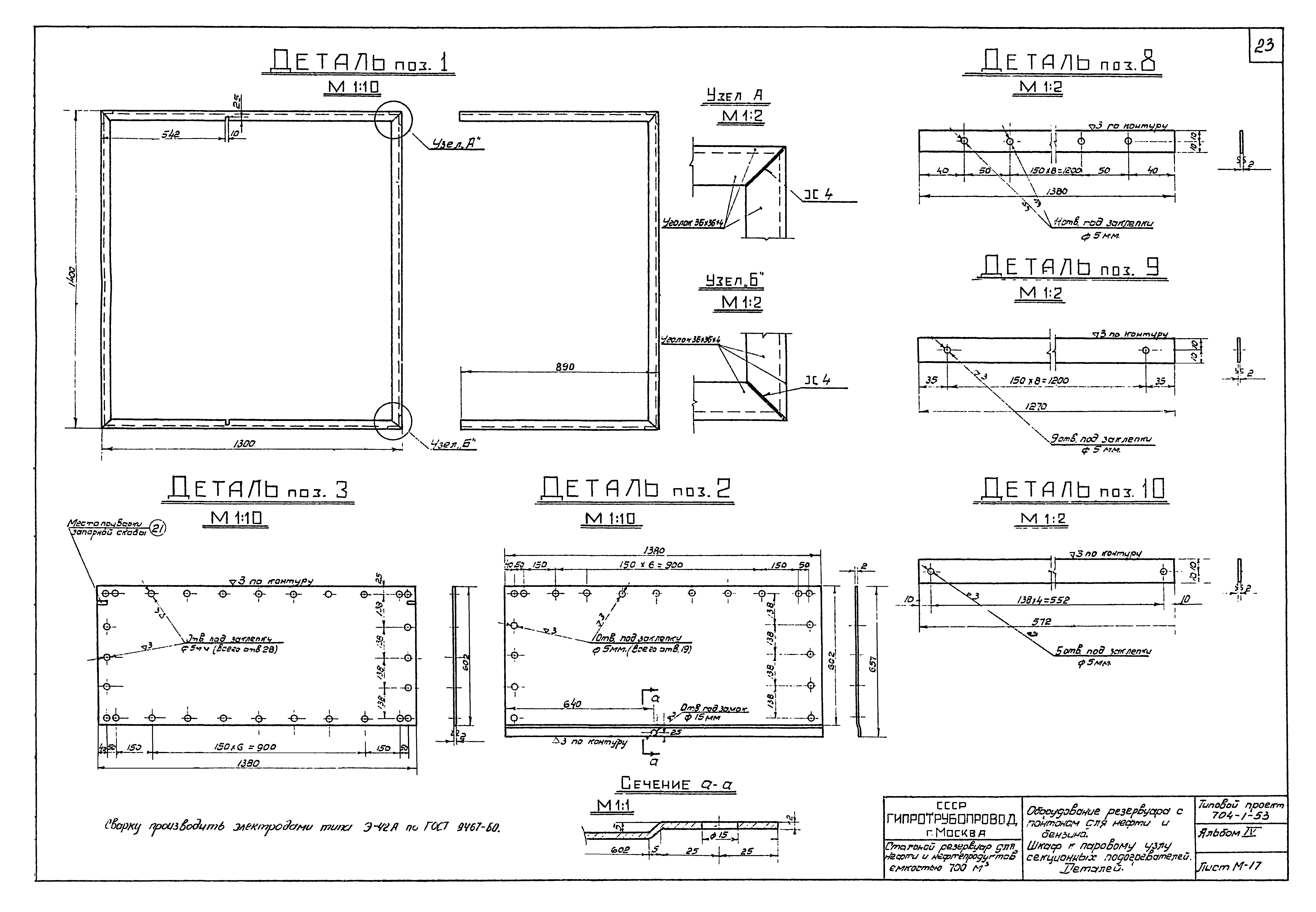
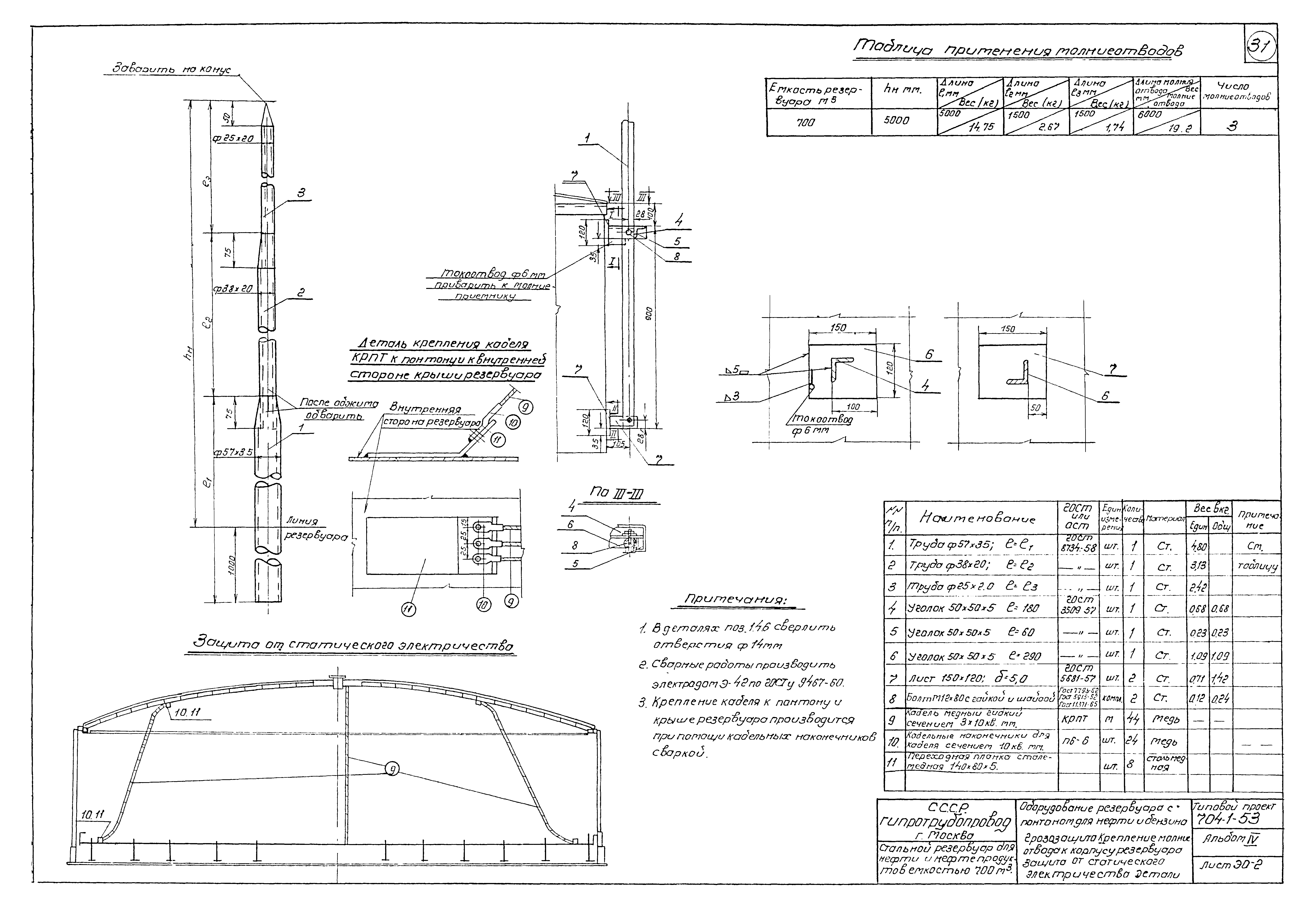
| Оглавление: | ТП 704-1-53 Обложка ТП 704-1-53-С-1 Содержание альбома ТП 704-1-53-ПЗ-1÷ПЗ-4 Пояснительная записка ТП 704-1-53-М-1 Общий вид оборудования резервуара ТП 704-1-53-М-2 Спецификация ТП 704-1-53-М-3 Установка приемораздаточного патрубка Ду150. Узел "А" ТП 704-1-53-М-4 Установка приемораздаточного патрубка Ду200. Узел "А" ТП 704-1-53-М-5 Установка огневого предохранителя ОП-150 ТП 704-1-53-М-6 Установка огневого предохранителя ОП-200 ТП 704-1-53-М-7 Установка винтовых мешалок ТП 704-1-53-М-8 Подогревательная система и система предотвращения выпадения осадков ТП 704-1-53-М-9 Общий вид "размывающей головки" ТП 704-1-53-М-10 Опора скользящая под трубу Ду150 ТП 704-1-53-М-11 Опора скользящая под трубу Ду200 ТП 704-1-53-М-12 Подогреватель секционный ПС-1 ТП 704-1-53-М-13 Опора под секционный подогреватель. Опора для трубопроводов ТП 704-1-53-М-14 Узел ввода теплоносителя ТП 704-1-53-М-15 Шкаф к паровому узлу секционных подогревателей. Общий вид ТП 704-1-53-М-16 Шкаф к паровому узлу секционных подогревателей. Узлы ТП 704-1-53-М-17 Шкаф к паровому узлу секционных подогревателей. Детали ТП 704-1-53-М-18 Шкаф к паровому узлу секционных подогревателей. Детали ТП 704-1-53-М-19 Шкаф к паровому узлу секционных подогревателей. Детали ТП 704-1-53-А-1 Принципиальная схема автоматизации для резервуара с подогревом ТП 704-1-53-А-2 Принципиальная схема автоматизации для резервуара без подогрева ТП 704-1-53-А-3 Установка указателя уровня УДУ-5 ТП 704-1-53-А-4 Установка пробоотборника ПСР-7 ТП 704-1-53-ЭО-1 Грозозащита и защита от статического электричества. Общий вид ТП 704-1-53-ЭО-2 Грозозащита и защита от статического электричества. Детали |
| Разработан: | ЦНИИпроектстальконструкция |
| Утверждён: | 29.12.1969 ЦНИИпроектстальконструкция (TsNIIprojectstalkonstruktsiya 221) |































