Скачать Типовой проект 704-1-53 Альбом V. Оборудование резервуара для светлых нефтепродуктовДата актуализации: 01.01.2021
|
| Обозначение: | Типовой проект 704-1-53 |
| Обозначение англ: | 704-1-53 |
| Статус: | не действует |
| Название рус.: | Альбом V. Оборудование резервуара для светлых нефтепродуктов |
| Дата добавления в базу: | 01.09.2013 |
| Дата актуализации: | 01.01.2021 |
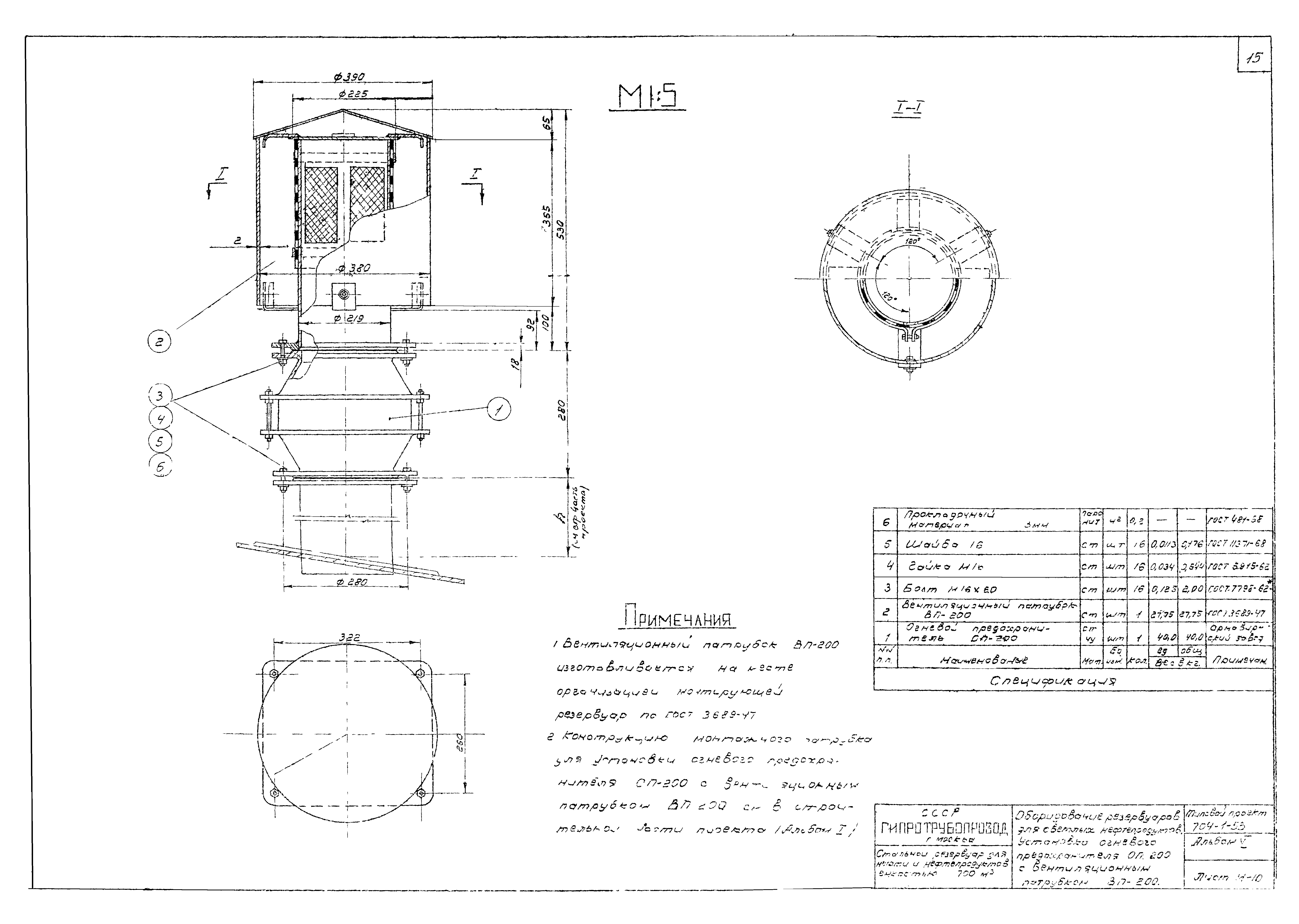
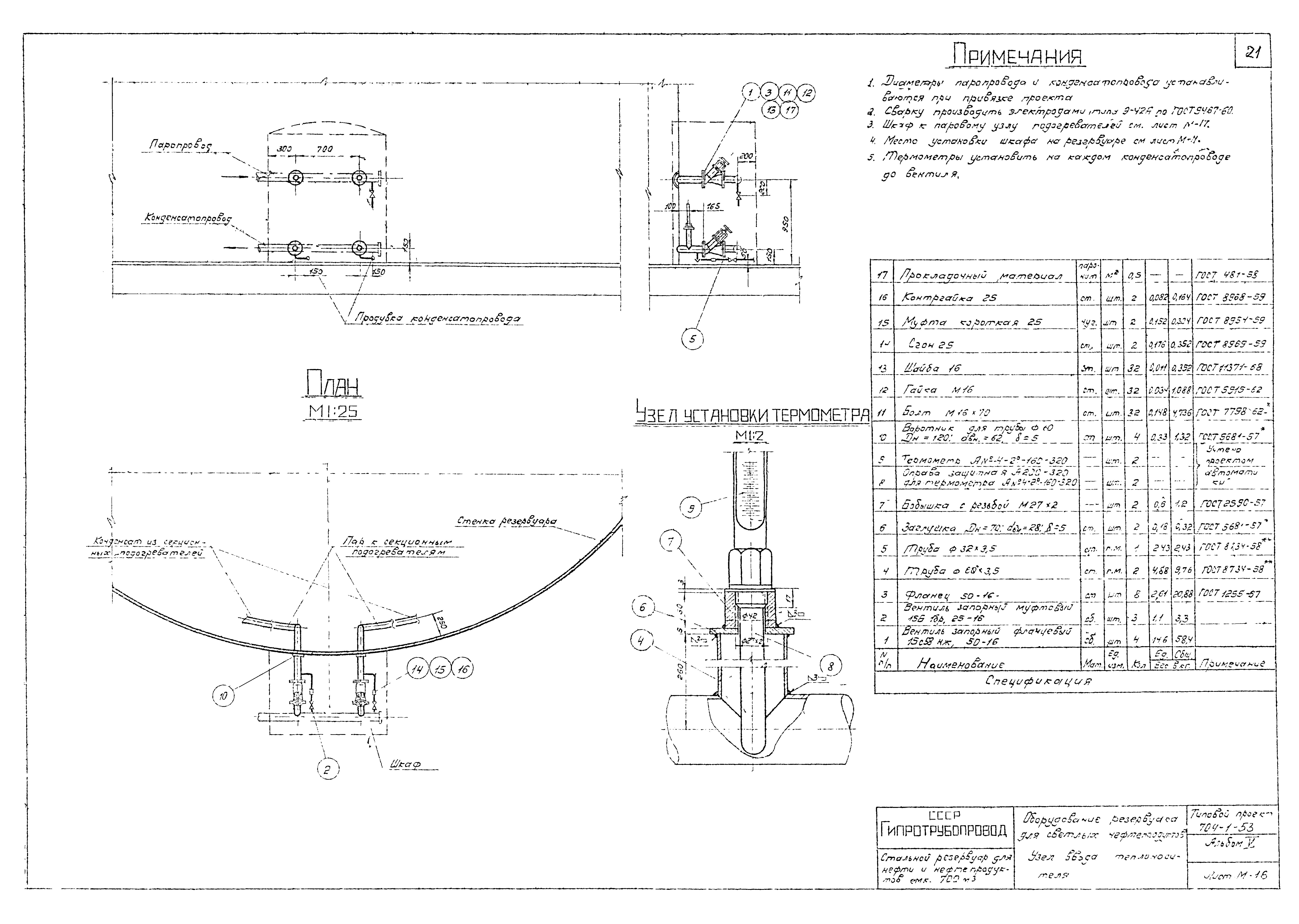
| Оглавление: | ТП 704-1-53 Обложка ТП 704-1-53-С-1 Содержание альбома ТП 704-1-53-ПЗ-1÷ПЗ-3 Пояснительная записка ТП 704-1-53-М-1 Общий вид оборудования резервуара для хранения светлых нефтепродуктов (кроме дизтоплива) ТП 704-1-53-М-2 Общий вид оборудования резервуара для хранения светлых нефтепродуктов (кроме дизтоплива). Спецификация ТП 704-1-53-М-3 Общий вид оборудования резервуара для хранения дизельного топлива ТП 704-1-53-М-4 Общий вид оборудования резервуара для хранения дизельного топлива. Спецификация ТП 704-1-53-М-5 Установка приемораздаточного патрубка Ду150. Узел "А" ТП 704-1-53-М-6 Установка приемораздаточного патрубка Ду200. Узел "А" ТП 704-1-53-М-7 Установка клапана непримерзающего двухмембранного типа НДКМ-200 ТП 704-1-53-М-8 Установка клапана предохранительного гидравлического типа КПГ-200 ТП 704-1-53-М-9 Установка огневого предохранителя ОП-150 с вентиляционным патрубком ВП-150 ТП 704-1-53-М-10 Установка огневого предохранителя ОП-200 с вентиляционным патрубком ВП-200 ТП 704-1-53-М-11 Расположение секционных подогревателей общей поверхностью нагрева 10 м² ТП 704-1-53-М-12 Подогревательный элемент ПЭ-2 ТП 704-1-53-М-13 Подогревательная система. Стойка С-1 ТП 704-1-53-М-14 Подогревательная система. Стойка С-4 ТП 704-1-53-М-15 Подогревательная система. Стойка С-5 ТП 704-1-53-М-16 Узел ввода теплоносителя ТП 704-1-53-М-17 Шкаф к узлу ввода теплоносителя. Общий вид ТП 704-1-53-М-18 Шкаф к узлу ввода теплоносителя. Узлы ТП 704-1-53-М-19 Шкаф к узлу ввода теплоносителя. Детали ТП 704-1-53-М-20 Шкаф к узлу ввода теплоносителя. Детали ТП 704-1-53-М-21 Шкаф к узлу ввода теплоносителя. Детали ТП 704-1-53-М-22 Установка термометра технического ртутного. Общий вид. Узлы. Детали ТП 704-1-53-А-1 Принципиальная схема автоматизации (без подогрева) ТП 704-1-53-А-2 Принципиальная схема автоматизации (с подогревом) ТП 704-1-53-А-3 Установка указателя уровня УДУ-5 ТП 704-1-53-ЭО-1 Грозозащита и заземление |
| Разработан: | ЦНИИпроектстальконструкция |
| Утверждён: | 29.12.1969 ЦНИИпроектстальконструкция (TsNIIprojectstalkonstruktsiya 221) |































