Скачать Типовой проект 0901-9-19.1.87 Альбом I. Общая пояснительная записка. Технологическая часть. Архитектурно-строительная часть. Отопление и вентиляцияДата актуализации: 01.01.2021
|
| Обозначение: | Типовой проект 0901-9-19.1.87 |
| Обозначение англ: | 0901-9-19.1.87 |
| Статус: | не определен законодательством |
| Название рус.: | Альбом I. Общая пояснительная записка. Технологическая часть. Архитектурно-строительная часть. Отопление и вентиляция |
| Дата добавления в базу: | 01.09.2013 |
| Дата актуализации: | 01.01.2021 |
| Дата введения: | 16.10.1987 |
| Дата окончания срока действия: | 30.06.2003 |
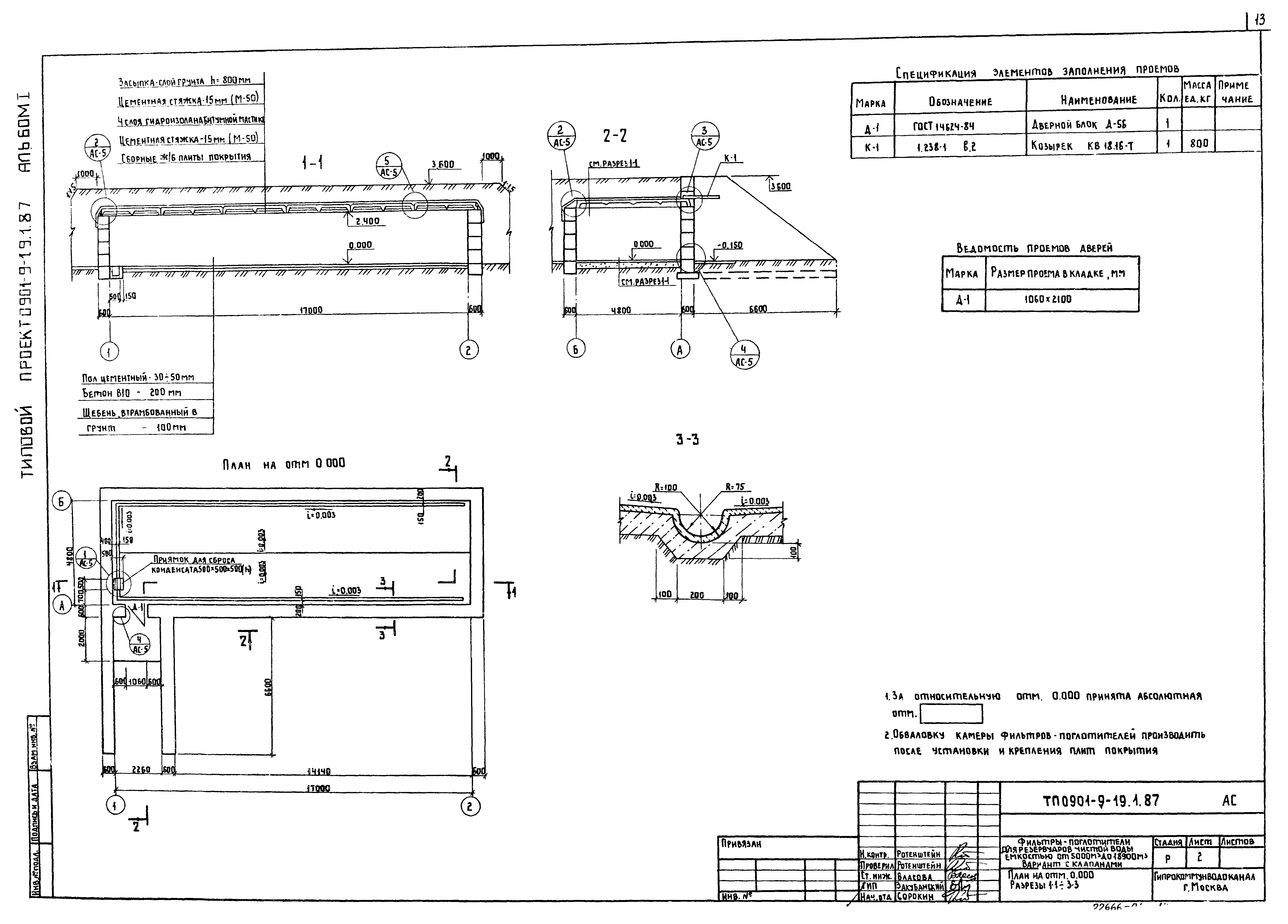
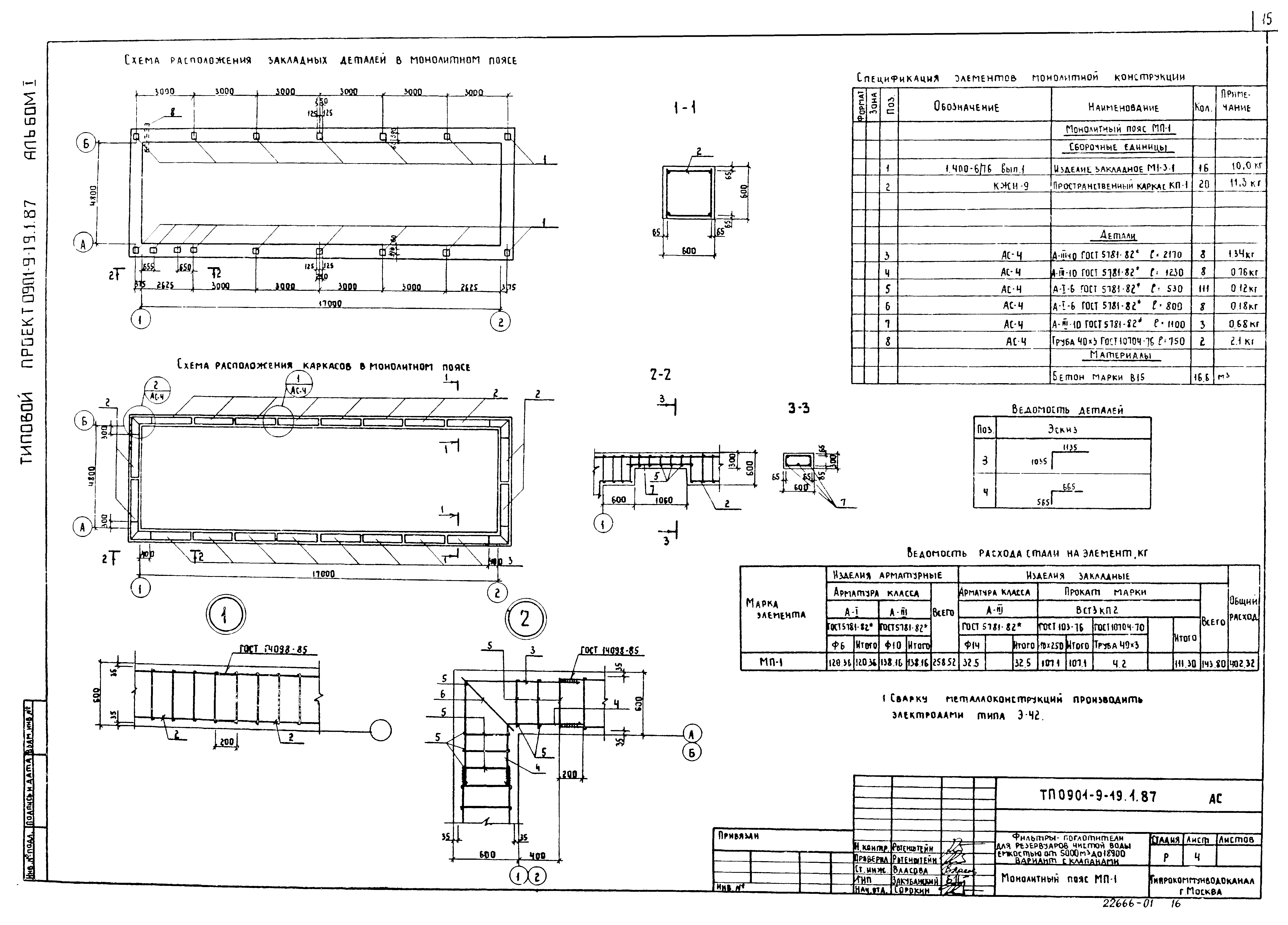
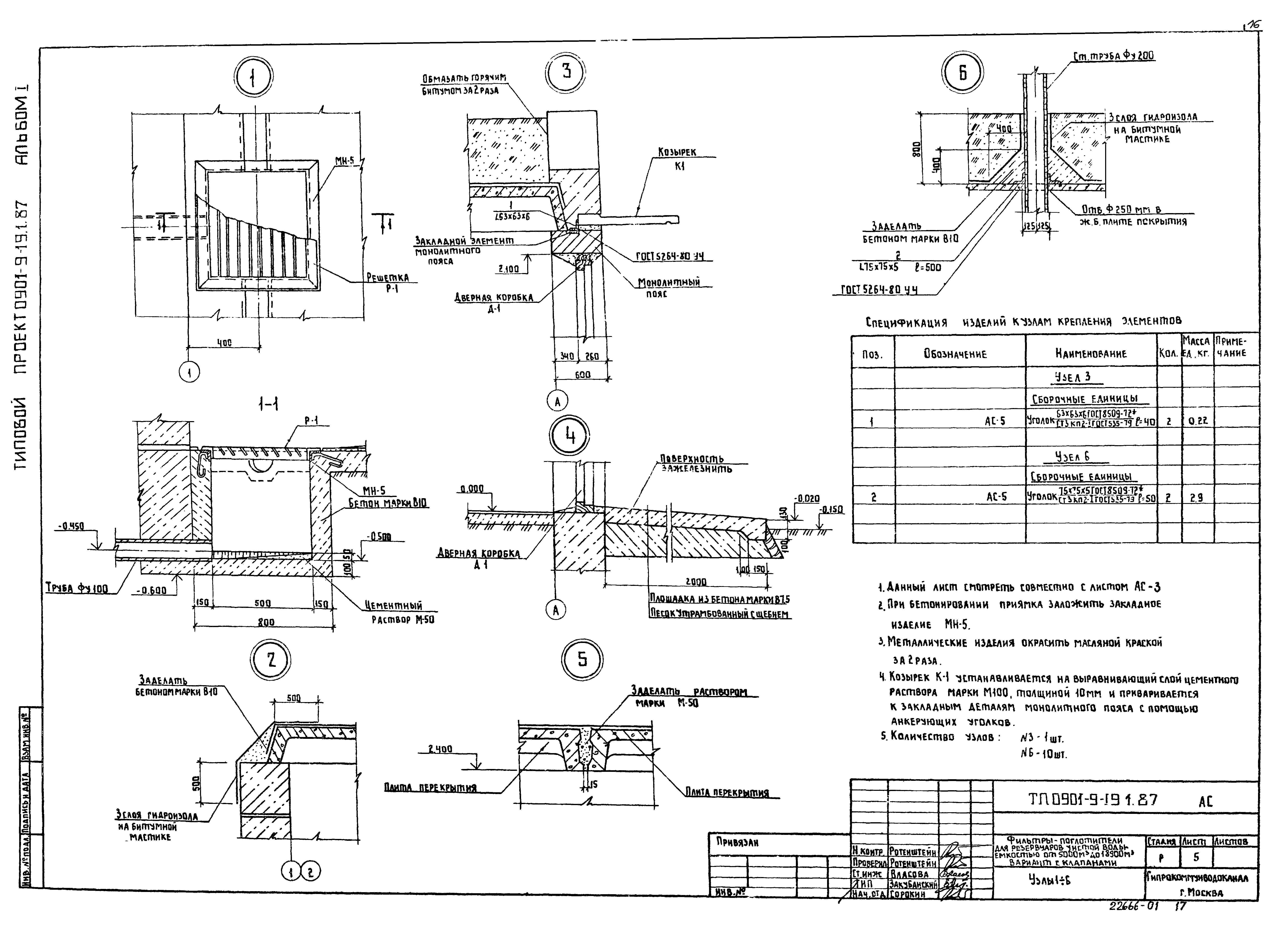
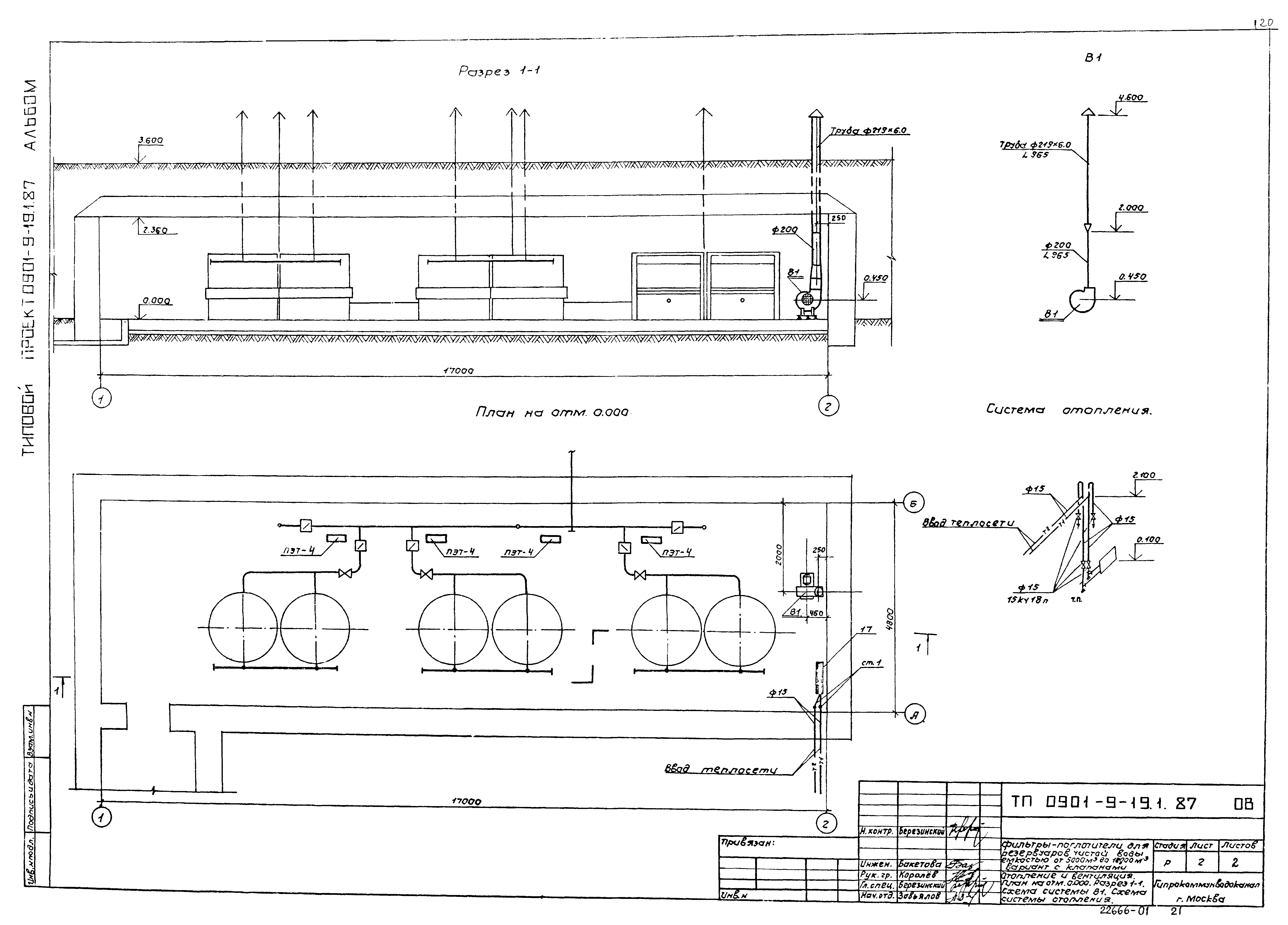
| Оглавление: | ТП 0901-9-19.1.87 Содержание альбома ТП 0901-9-19.1.87-ПЗ1-ПЗ6 Общая пояснительная записка ТП 0901-9-19.1.87-ТХ Технологическая часть ТП 0901-9-19.1.87-ТХ-1 Общие данные ТП 0901-9-19.1.87-ТХ-2 ФП1,ФП1М. План на отм. 0.000. Разрезы 1-1,2-2. Схема ТП 0901-9-19.1.87-ТХ-3 ФП2Б,ФП2К. План на отм. 0.000. Разрезы 1-1,2-2. Схема ТП 0901-9-19.1.87-АС Архитектурно-строительная часть ТП 0901-9-19.1.87-АС-1 Общие данные ТП 0901-9-19.1.87-АС-2 План на отм. 0.000. Разрезы 1-1÷3-3 ТП 0901-9-19.1.87-АС-3 Схема расположения стеновых блоков на отм. 0.000. Раскладка блоков по осям 1,2,А,Б. Схемы расположения плит покрытия ТП 0901-9-19.1.87-АС-4 Монолитный пояс МП-1 ТП 0901-9-19.1.87-АС-5 Узлы 1-6 ТП 0901-9-19.1.87-АС-6 Фильтры-поглотители ФП1,ФП1М ТП 0901-9-19.1.87-АС-7 Фильтры-поглотители ФП2Б,ФП2К ТП 0901-9-19.1.87-ОВ Основной комплект марки ОВ ТП 0901-9-19.1.87-ОВ-1 Общие данные ТП 0901-9-19.1.87-ОВ-2 План на отм. 0.000. Разрез 1-1. Схема системы В1. Схема системы отопления ТП 0901-9-19.1.87-ОВН Общие виды нетиповых конструкций марки ОВН ТП 0901-9-19.1.87-ОВН1 Ограждение отверстия входного патрубка центробежного вентилятора |
| Разработан: | Гипрокоммунводоканал Минжилкомхоза РСФСР |
| Утверждён: | 16.10.1987 Минжилкомхоз РСФСР (Russian Federation Minzhilkomkhoz 12-ТД) |






















