Скачать Типовой проект 310-5-4 Альбом IV. КЖИ. Изделия заводского изготовления. Изделия бетонные и железобетонные (из ТП 310-4-1)Дата актуализации: 01.01.2021
|
| Обозначение: | Типовой проект 310-5-4 |
| Обозначение англ: | 310-5-4 |
| Статус: | не определен законодательством |
| Название рус.: | Альбом IV. КЖИ. Изделия заводского изготовления. Изделия бетонные и железобетонные (из ТП 310-4-1) |
| Дата добавления в базу: | 01.09.2013 |
| Дата актуализации: | 01.01.2021 |
| Дата введения: | 12.04.1982 |
| Дата окончания срока действия: | 30.06.2003 |
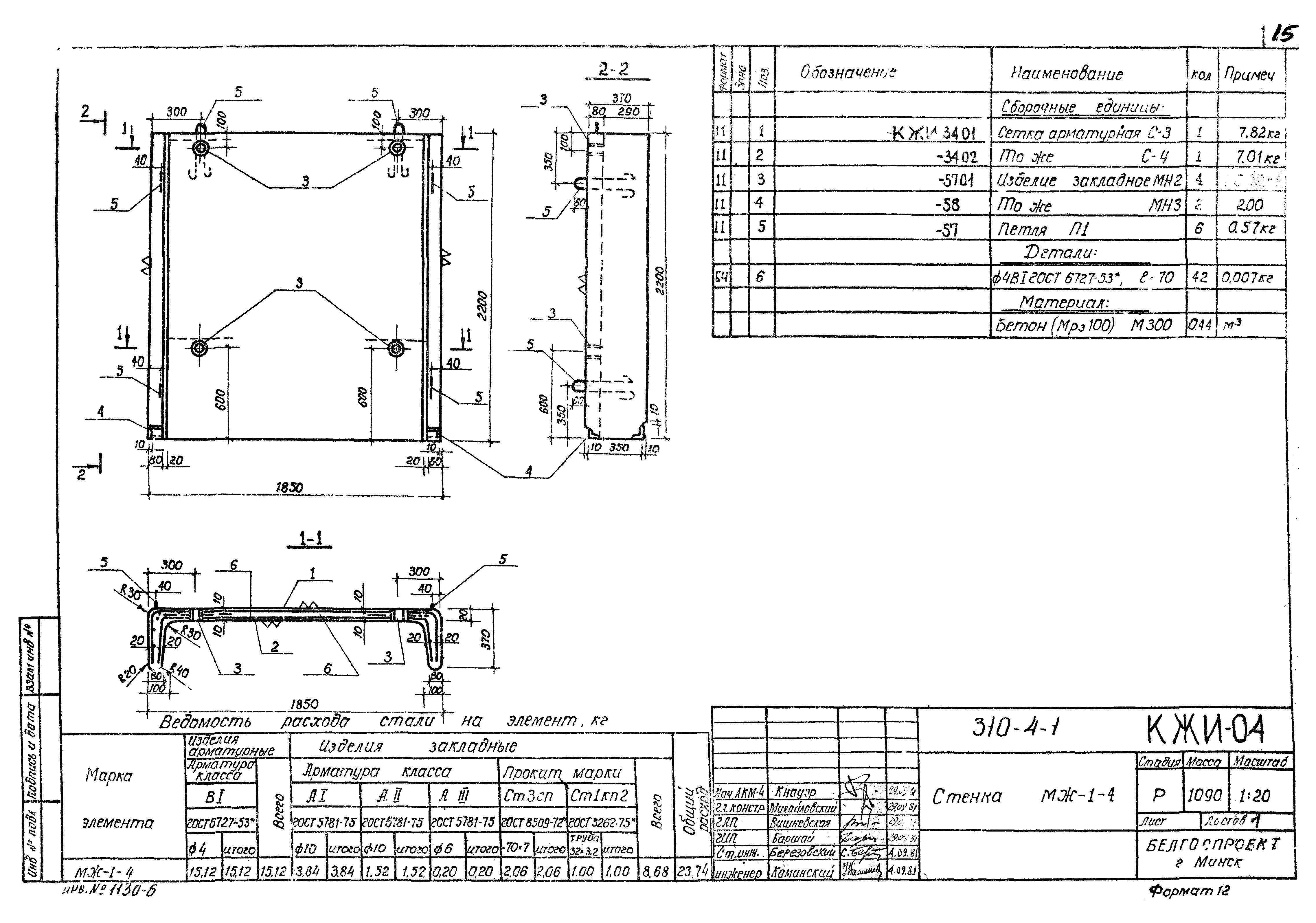
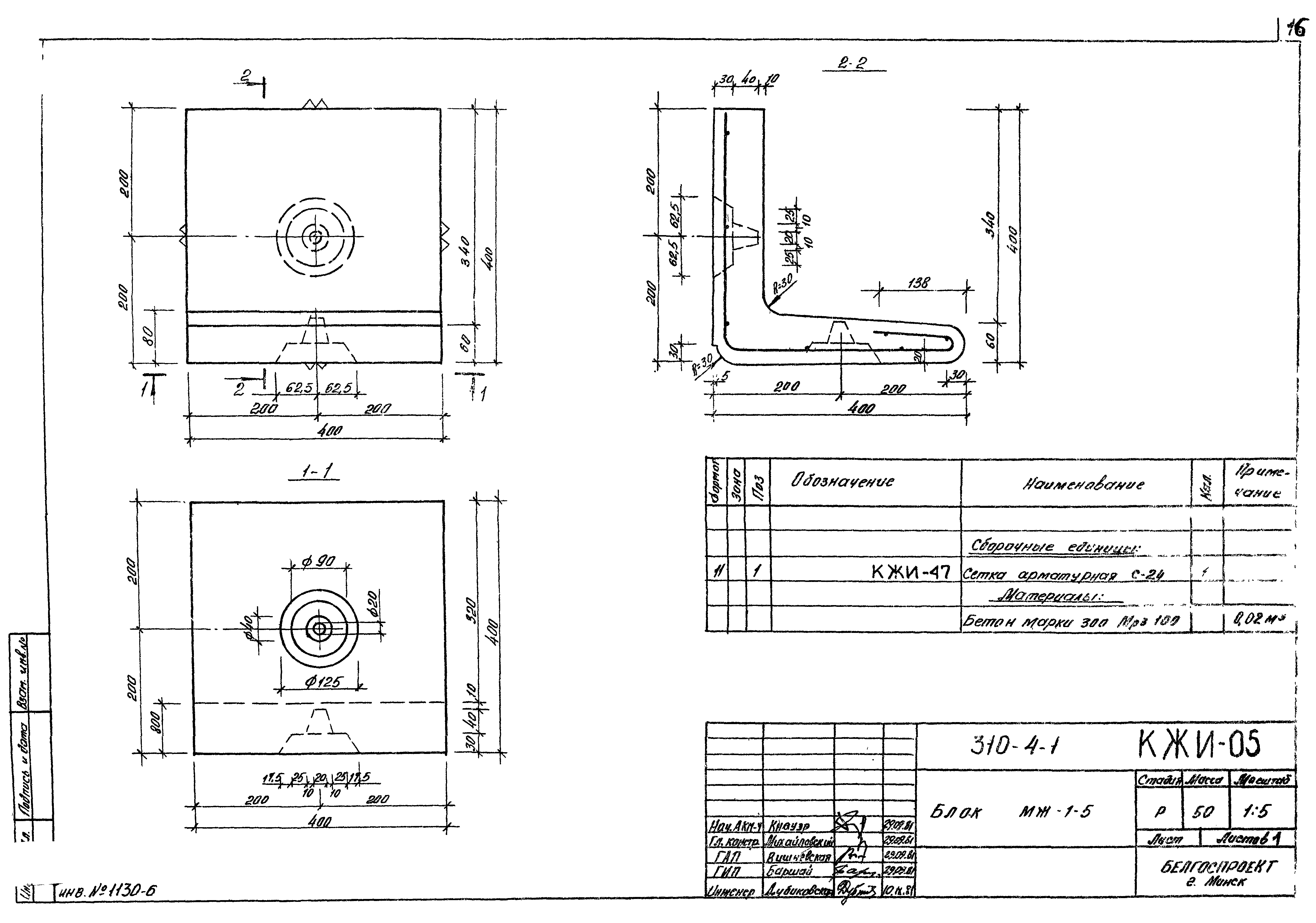
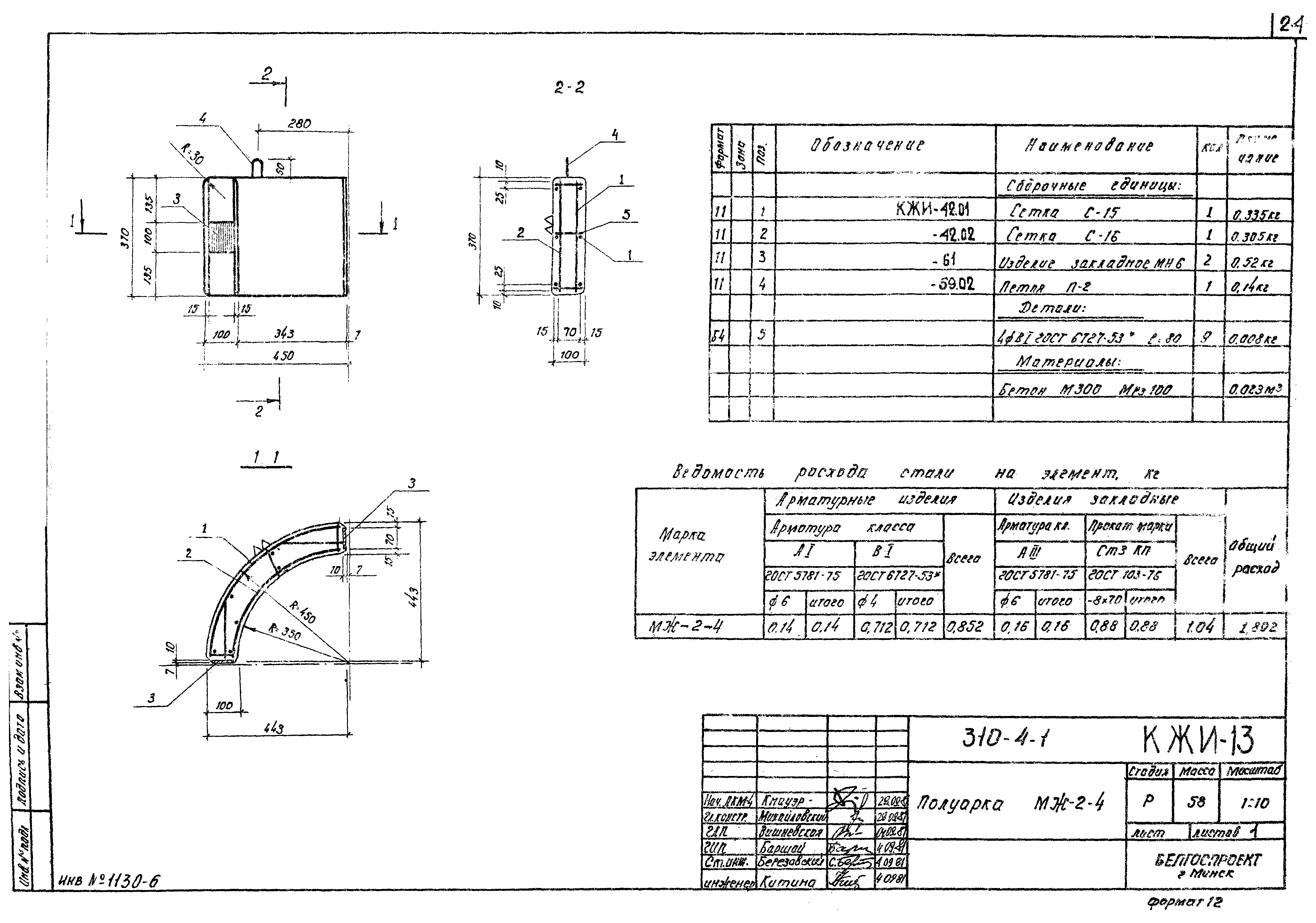
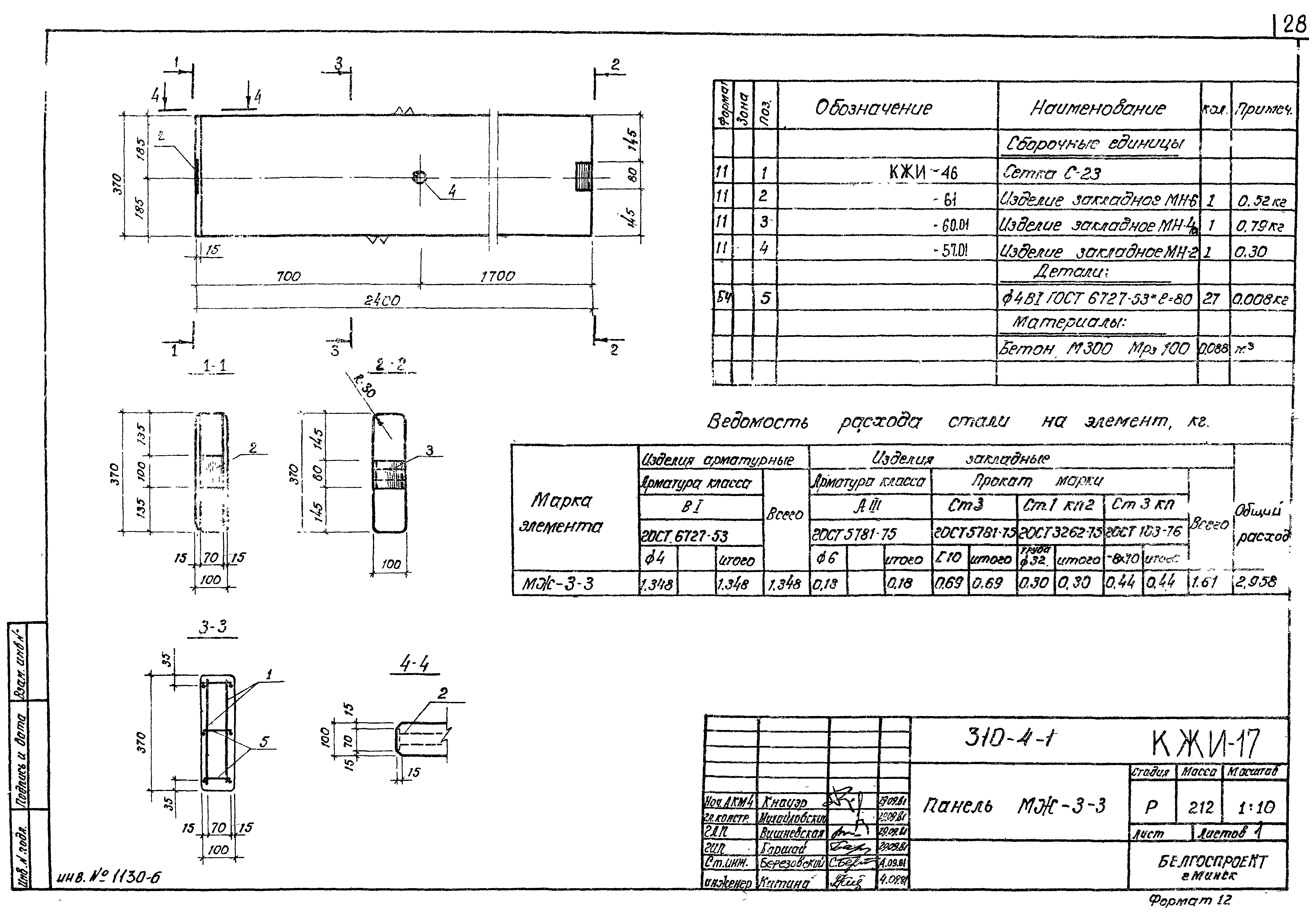
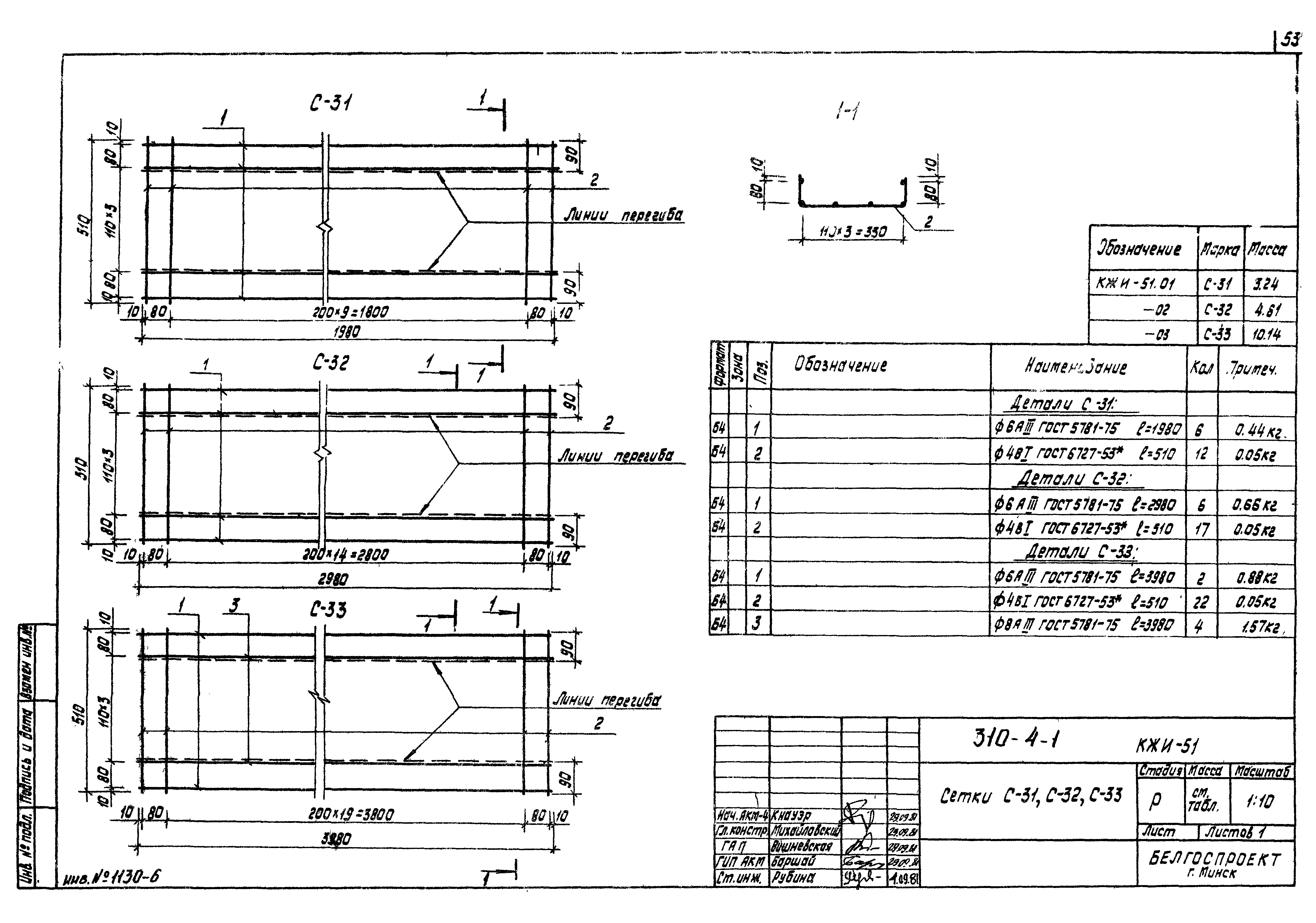
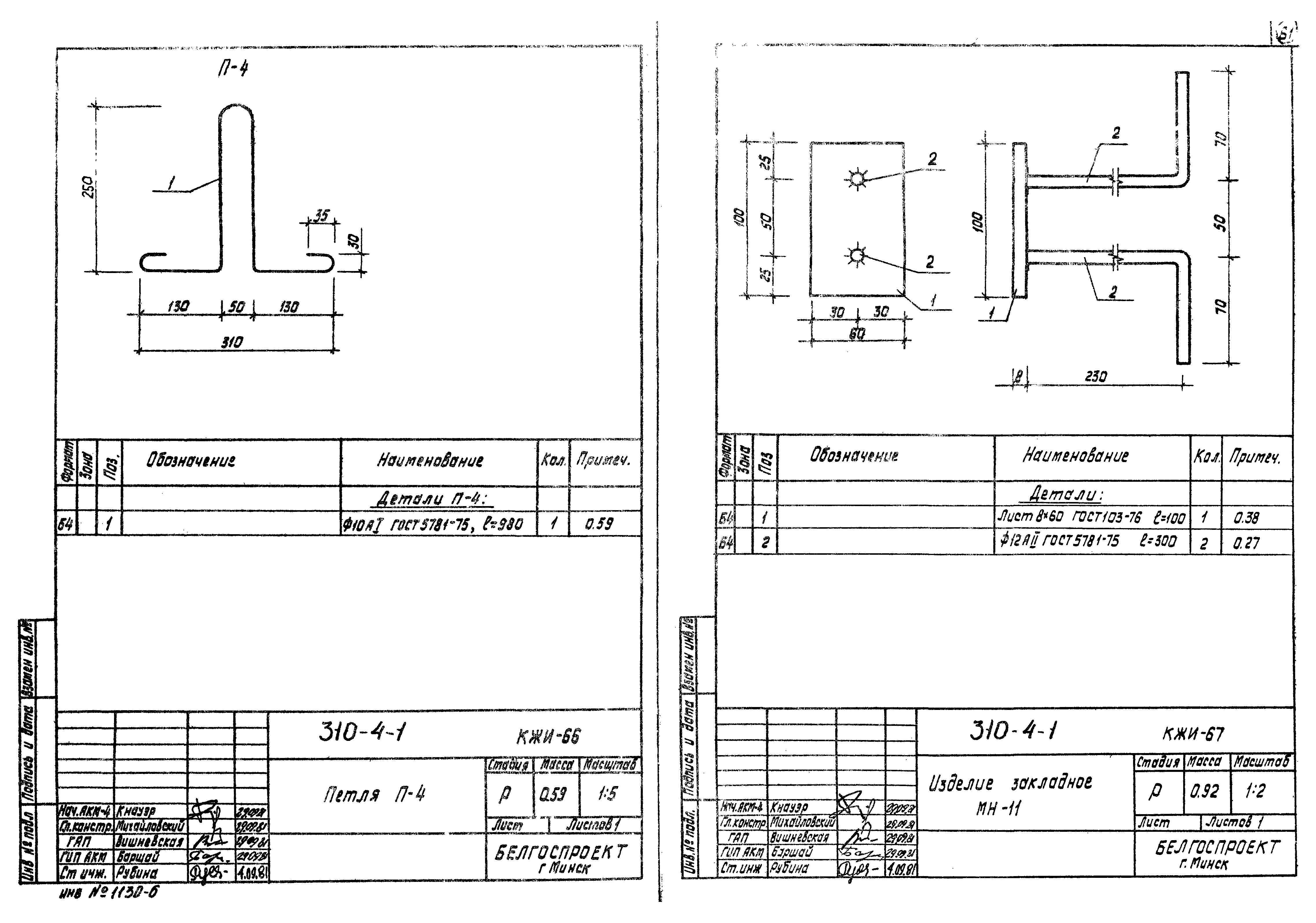
| Оглавление: | ТП 310-4-1-КЖИ-ДО Общие данные (начало) ТП 310-4-1-КЖИ-ДО Общие данные (продолжение) ТП 310-4-1-КЖИ-ДО Общие данные (окончание) ТП 310-4-1-КЖИ-00 Номенклатура железобетонных изделий (начало) ТП 310-4-1-КЖИ-00 Номенклатура железобетонных изделий (продолжение) ТП 310-4-1-КЖИ-00 Номенклатура железобетонных изделий (окончание) ТП 310-4-1-КЖИ-01 Блок МЖ-1-1 ТП 310-4-1-КЖИ-02 Блок МЖ-1-2 ТП 310-4-1-КЖИ-03 Блок МЖ-1-3 ТП 310-4-1-КЖИ-04 Блок МЖ-1-4 ТП 310-4-1-КЖИ-05 Блок МЖ-1-5 ТП 310-4-1-КЖИ-06 Блок МЖ-1-12,МЖ-1-13,МЖ-1-14 ТП 310-4-1-КЖИ-07 Стенка МЖ-1-15 ТП 310-4-1-КЖИ-08 Стенка МЖ-1-16 ТП 310-4-1-КЖИ-09 Стенка МЖ-1-17 ТП 310-4-1-КЖИ-10 Арка МЖ-2-1,МЖ-2-1А ТП 310-4-1-КЖИ-11 Арка МЖ-2-2 ТП 310-4-1-КЖИ-12 Арка МЖ-2-3 ТП 310-4-1-КЖИ-13 Полуарка МЖ-2-4 ТП 310-4-1-КЖИ-14 Полуарка МЖ-2-5 ТП 310-4-1-КЖИ-15 Полуарка МЖ-2-6 ТП 310-4-1-КЖИ-16 Панель МЖ-3-1,МЖ-3-2 ТП 310-4-1-КЖИ-17 Панель МЖ-3-3 ТП 310-4-1-КЖИ-18 Фундамент МЖ-3-4 ТП 310-4-1-КЖИ-19 Фундамент МЖ-3-5,МЖ-3-6 ТП 310-4-1-КЖИ-20 Фундамент МЖ-3-7 ТП 310-4-1-КЖИ-21 Лестничные косоуры МЖ-3-8,МЖ-3-9 ТП 310-4-1-КЖИ-22 Ступени МЖ-3-10,МЖ-3-11 ТП 310-4-1-КЖИ-23 Ступени МЖ-3-12,МЖ-3-12Н ТП 310-4-1-КЖИ-24 Ступени МЖ-3-13,МЖ-3-13Н ТП 310-4-1-КЖИ-25 Ступени МЖ-3-14,МЖ-3-14Н ТП 310-4-1-КЖИ-26 Ограждение МЖ-3-15 ТП 310-4-1-КЖИ-27 Ограждение МЖ-3-16 ТП 310-4-1-КЖИ-28 Ограждение МЖ-3-17 ТП 310-4-1-КЖИ-29 Ограждение МЖ-3-18,МЖ-3-19,МЖ-3-20 ТП 310-4-1-КЖИ-30 Армоцементная плита МЖ-3-21 ТП 310-4-1-КЖИ-31 Плита перекрытия П-1 ТП 310-4-1-КЖИ-32 Плита перекрытия П-2 ТП 310-4-1-КЖИ-33 Сетки С-1,С-2 ТП 310-4-1-КЖИ-34 Сетки С-3,С-4 ТП 310-4-1-КЖИ-35 Сетка С-5 ТП 310-4-1-КЖИ-36 Сетка С-6 ТП 310-4-1-КЖИ-37 Сетка С-7 ТП 310-4-1-КЖИ-38 Сетка С-8 ТП 310-4-1-КЖИ-39 Сетки С-9,С-10 ТП 310-4-1-КЖИ-40 Сетки С-11,С-12 ТП 310-4-1-КЖИ-41 Сетки С-13,С-14 ТП 310-4-1-КЖИ-42 Сетки С-15,С-16 ТП 310-4-1-КЖИ-43 Сетки С-17,С-18 ТП 310-4-1-КЖИ-44 Сетки С-19,С-20 ТП 310-4-1-КЖИ-45 Сетки С-21,С-22 ТП 310-4-1-КЖИ-46 Сетка С-23 ТП 310-4-1-КЖИ-47 Сетка С-24 ТП 310-4-1-КЖИ-48 Сетки С-25,С-26 ТП 310-4-1-КЖИ-49 Сетки С-27,С-28 ТП 310-4-1-КЖИ-50 Сетки С-29,С-30 ТП 310-4-1-КЖИ-51 Сетки С-31,С-32,С-33 ТП 310-4-1-КЖИ-52 Каркас плоский КР-1 ТП 310-4-1-КЖИ-53 Каркасы плоские КР-2,КР-3 ТП 310-4-1-КЖИ-54 Каркасы плоские КР-4,КР-5,КР-6 ТП 310-4-1-КЖИ-55 Каркасы плоские КР-7,КР-8,КР-9 ТП 310-4-1-КЖИ-56 Изделие закладное МН-1 ТП 310-4-1-КЖИ-57 Изделие закладное МН-2 ТП 310-4-1-КЖИ-57 Петля П-1 ТП 310-4-1-КЖИ-58 Изделие закладное МН-3 ТП 310-4-1-КЖИ-59 Изделие закладное МН-4 ТП 310-4-1-КЖИ-59 Петля П-2 ТП 310-4-1-КЖИ-60 Изделия закладные МН-4а,МН-5 ТП 310-4-1-КЖИ-61 Изделие закладное МН-6 ТП 310-4-1-КЖИ-62 Изделия закладные МН-7,МН-8 ТП 310-4-1-КЖИ-63 Изделие закладное МН-9 ТП 310-4-1-КЖИ-64 Изделие закладное МН-10 ТП 310-4-1-КЖИ-64 Петля П-3 ТП 310-4-1-КЖИ-65 Петли П-5,П-6 ТП 310-4-1-КЖИ-66 Петля П-4 ТП 310-4-1-КЖИ-67 Изделие закладное МН-11 |
| Разработан: | Белгоспроект |
| Утверждён: | 30.04.1976 Госстрой БССР (BSSR Gosstroy 59) |





























































