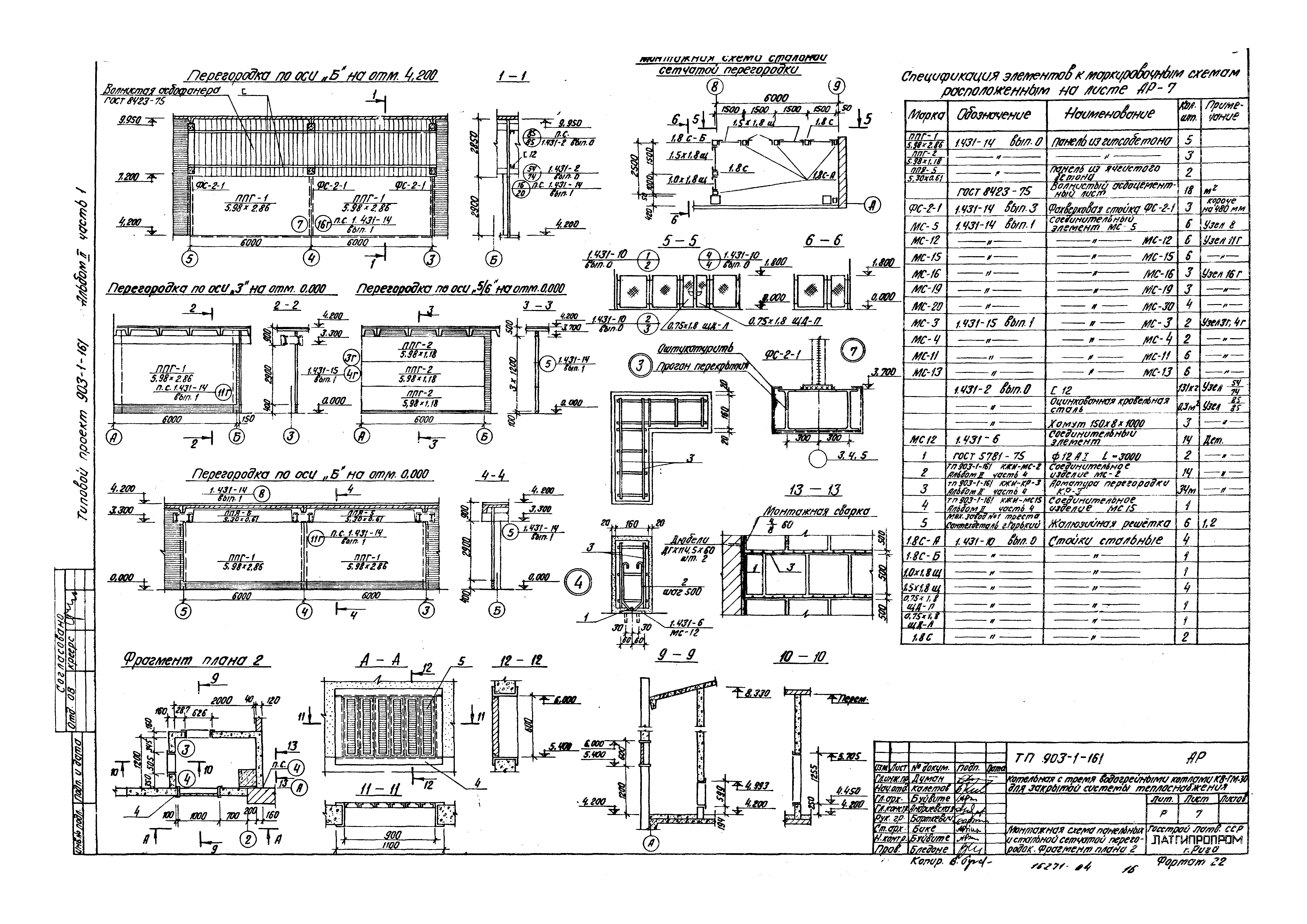
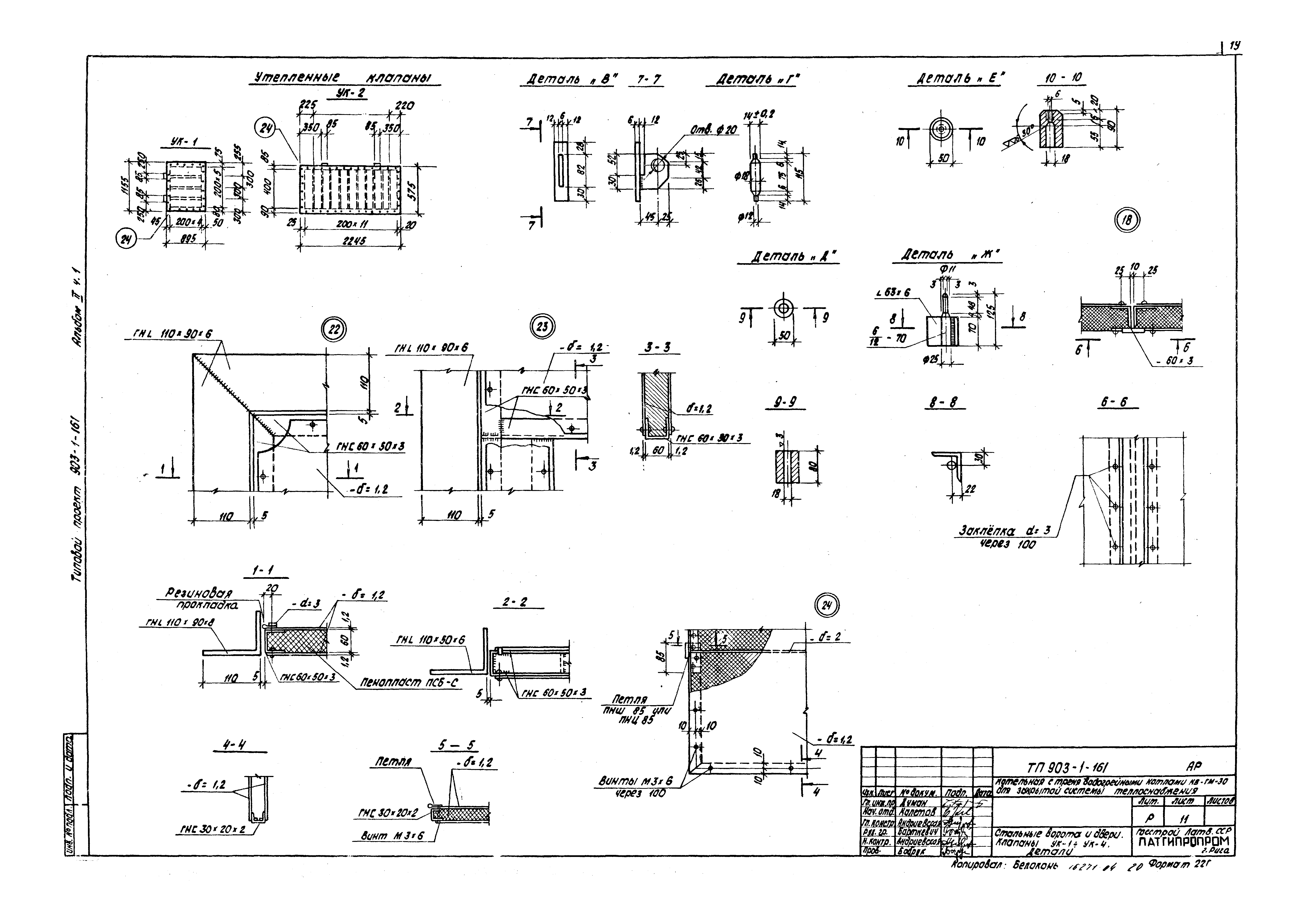
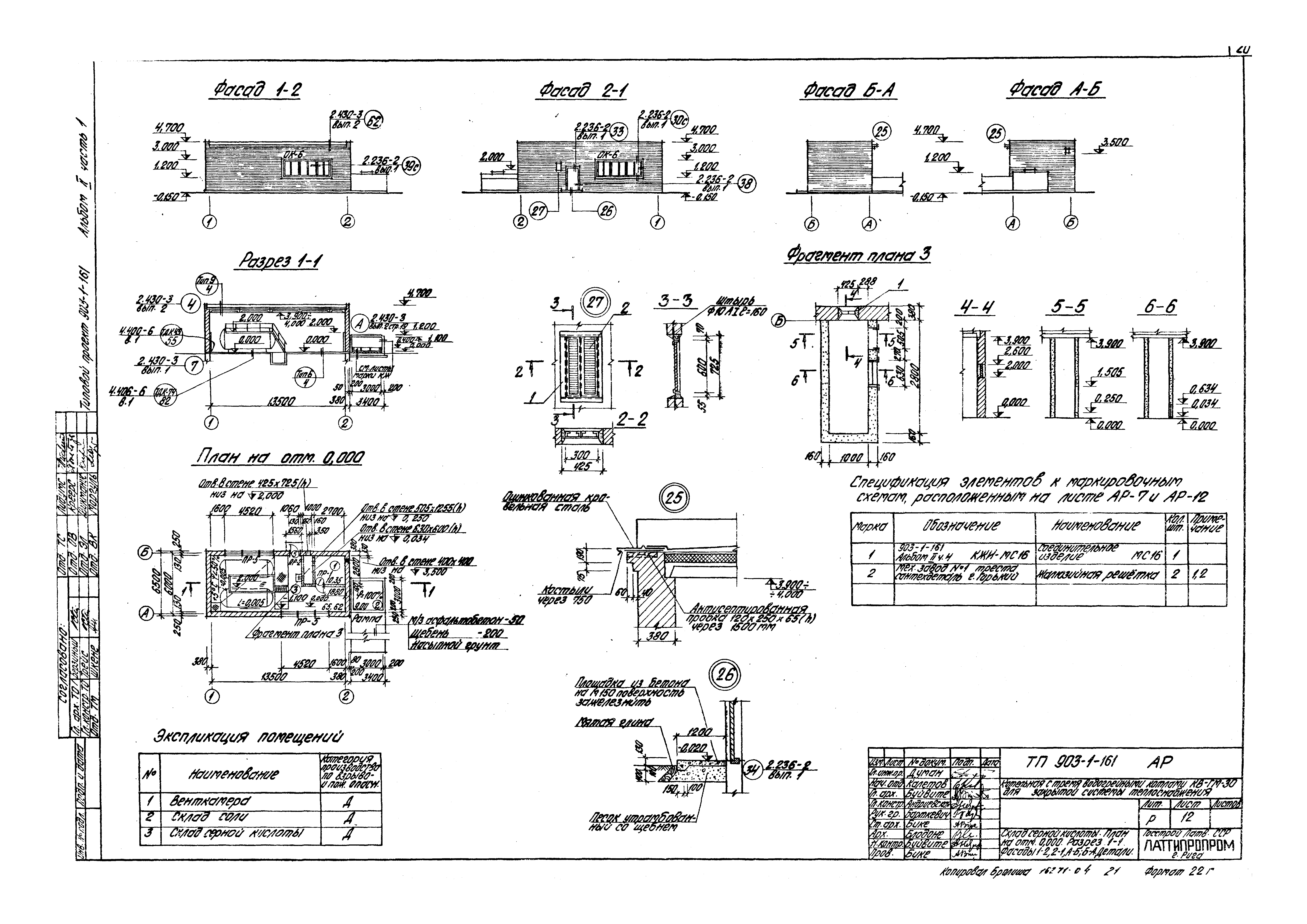
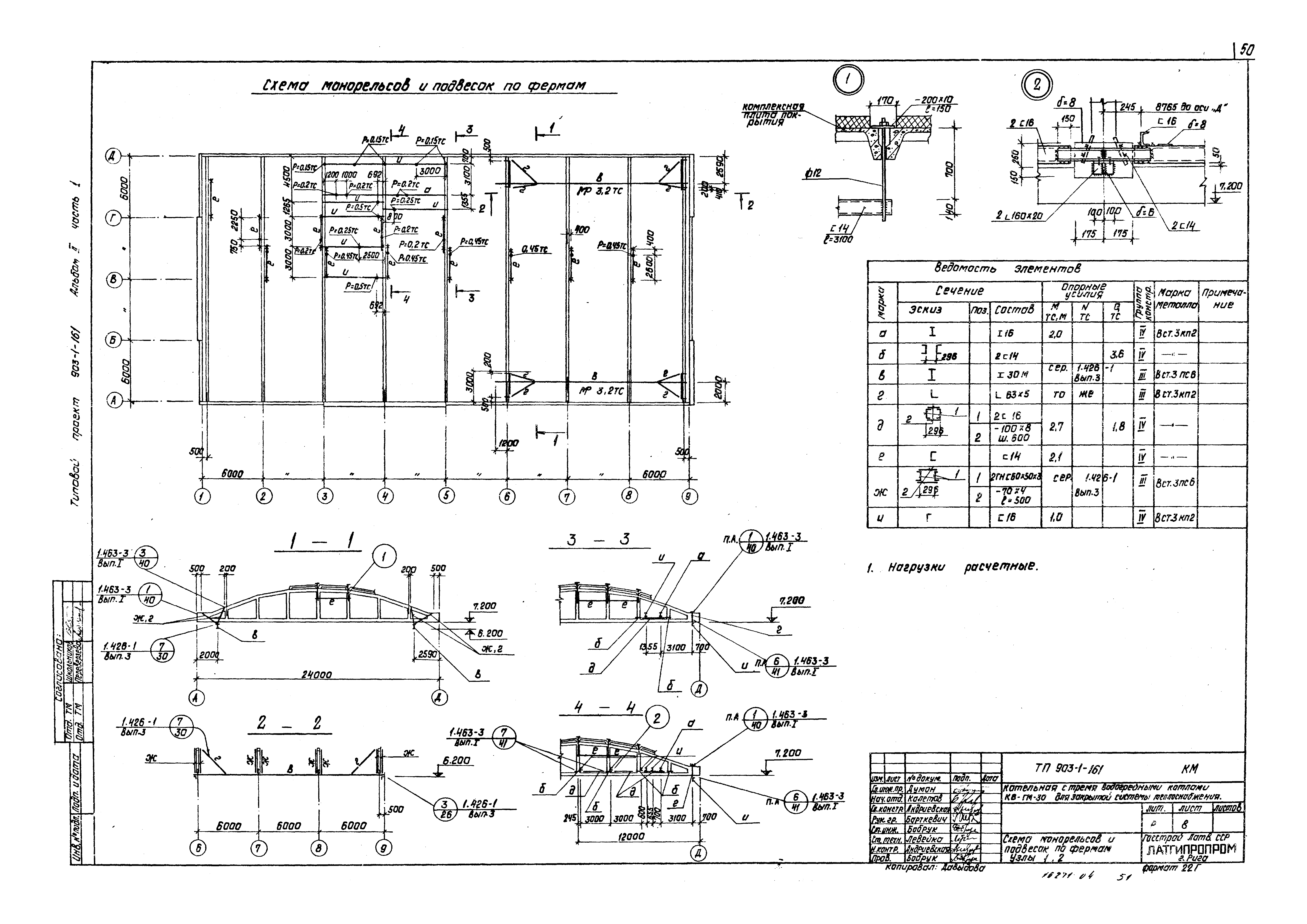
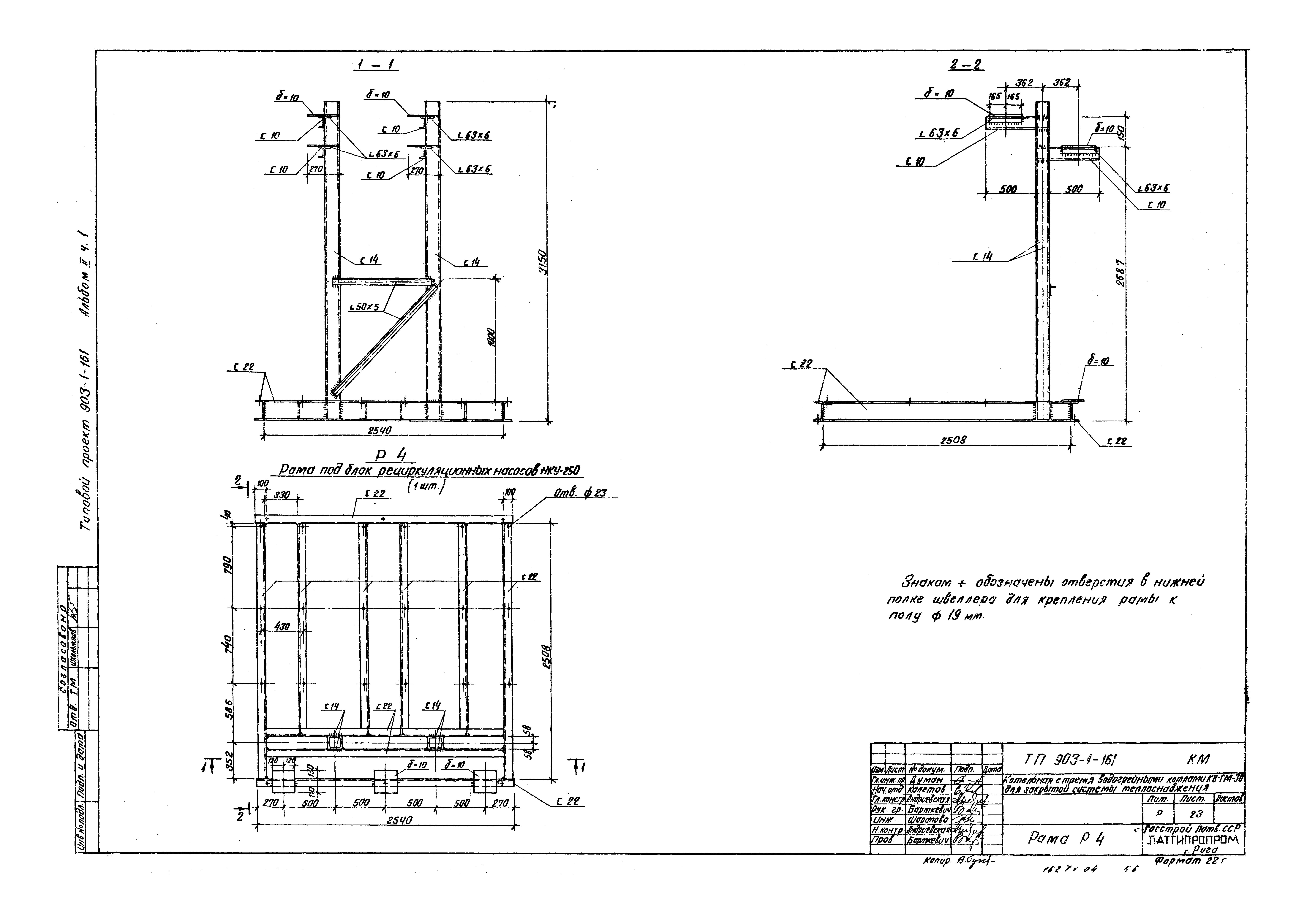
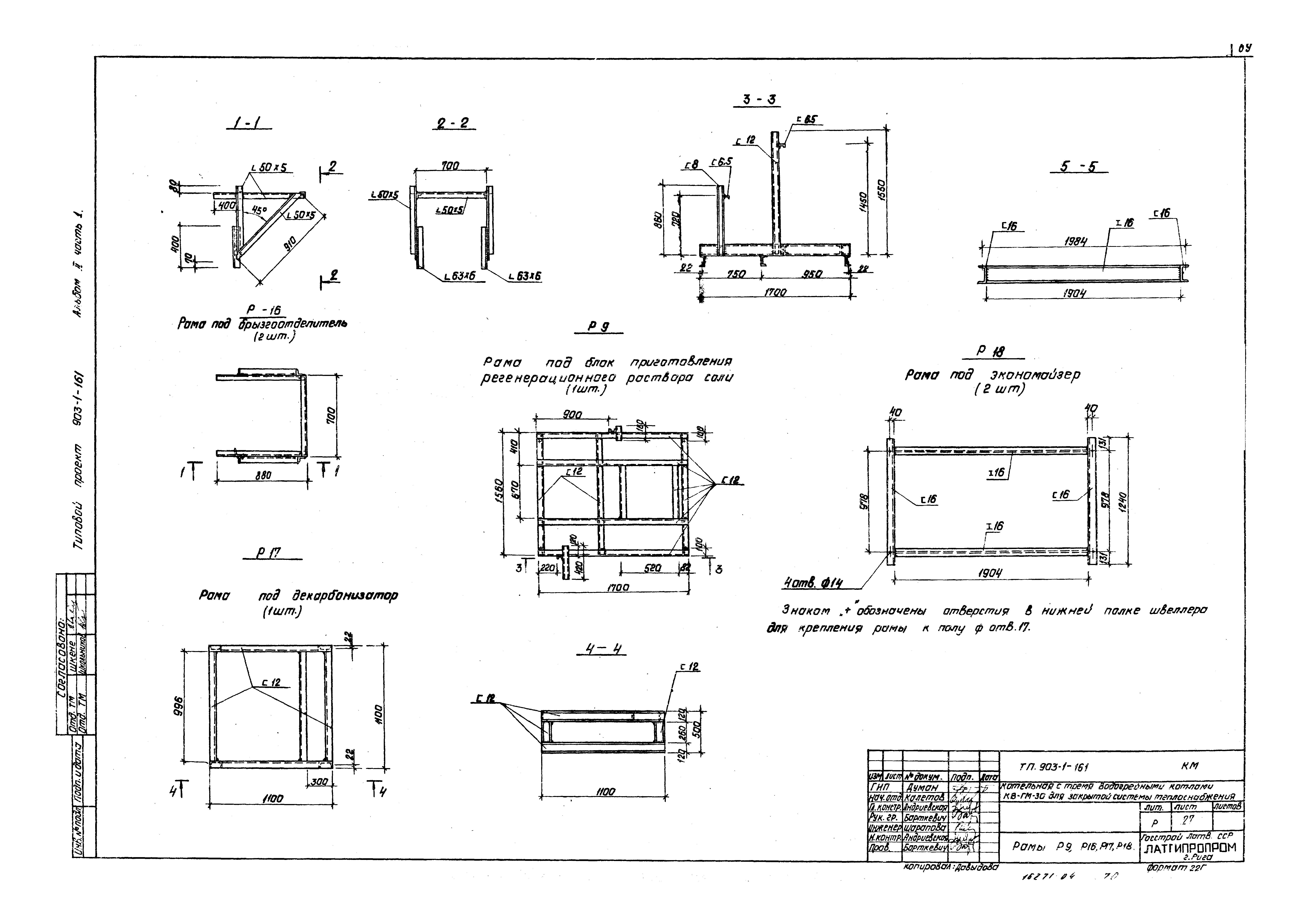
Скачать Типовой проект 903-1-161 Альбом II. Часть 1. Архитектурно-строительная часть. Общие чертежи и нулевой циклДата актуализации: 01.01.2021 Типовой проект 903-1-161
Альбом II. Часть 1. Архитектурно-строительная часть. Общие чертежи и нулевой цикл| Обозначение: | Типовой проект 903-1-161 | | Обозначение англ: | 903-1-161 | | Статус: | заменен | | Название рус.: | Альбом II. Часть 1. Архитектурно-строительная часть. Общие чертежи и нулевой цикл | | Дата добавления в базу: | 01.09.2013 | | Дата актуализации: | 01.01.2021 | | Дата введения: | 27.04.1979 | | Дата окончания срока действия: | 01.09.1989 | | Разработан: | Латгипропром
| | Утверждён: | 27.04.1979 Главпромстройпроект Госстроя СССР (27)
| | Чем заменён: | |
                                                                              
|