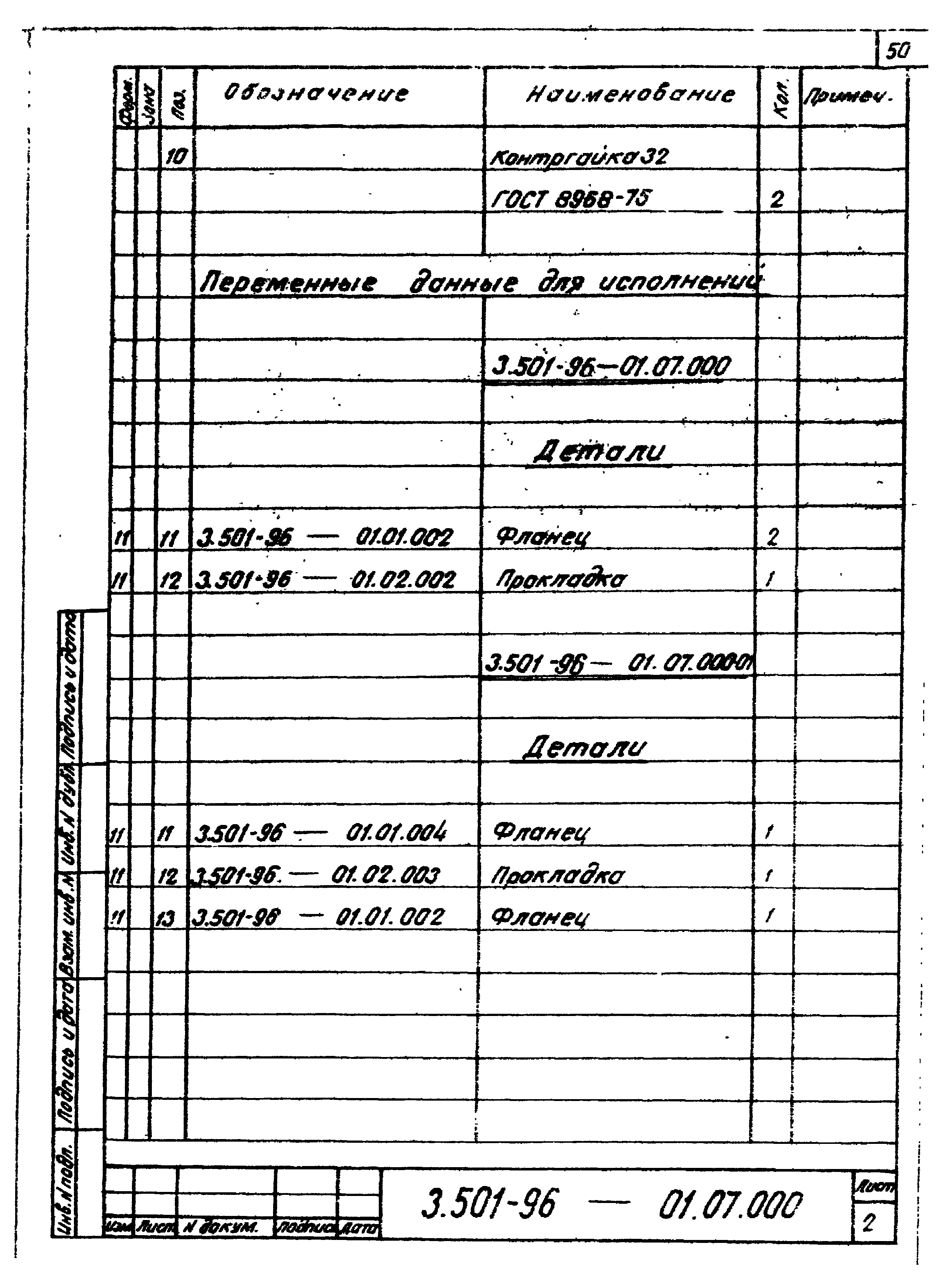
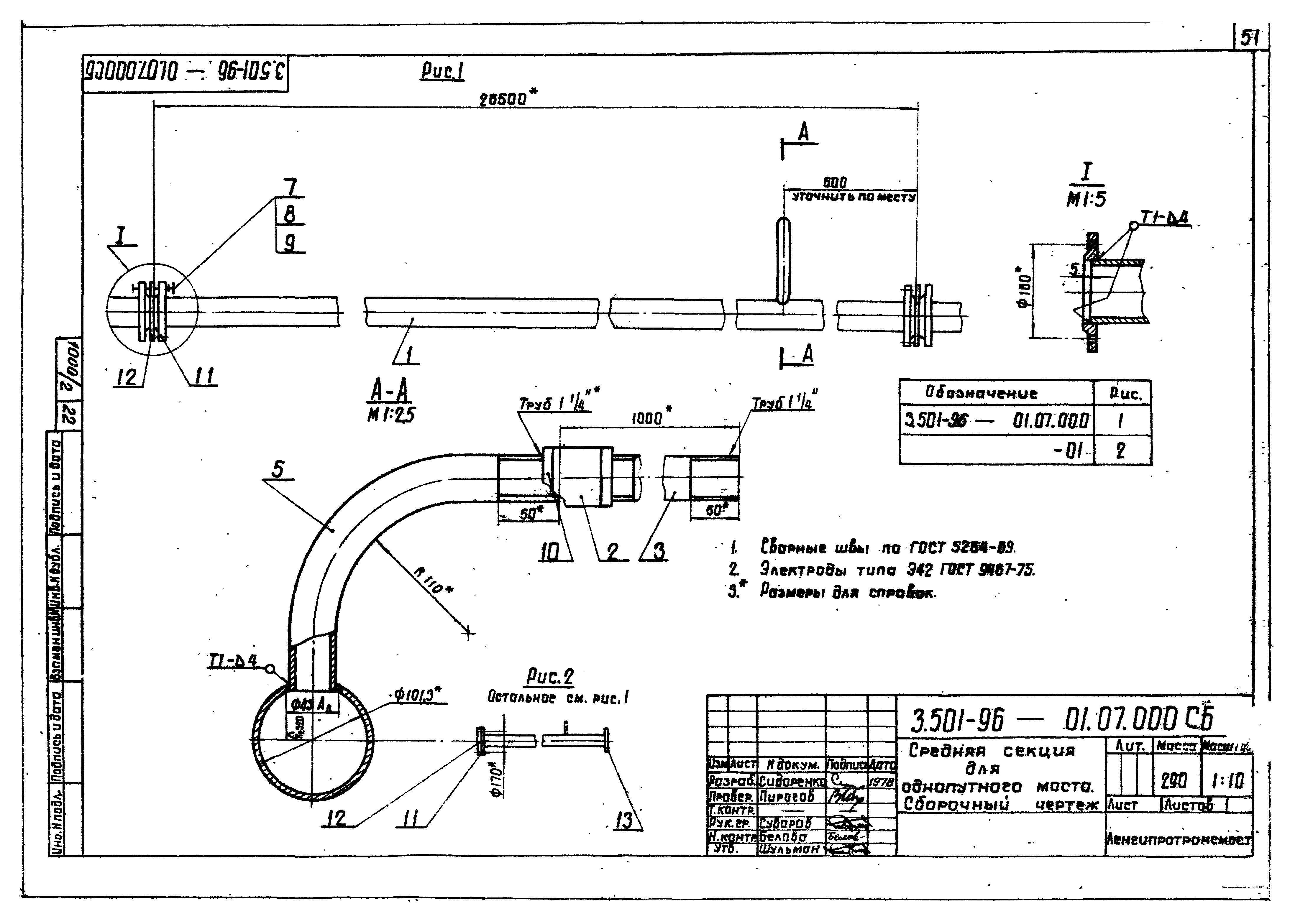
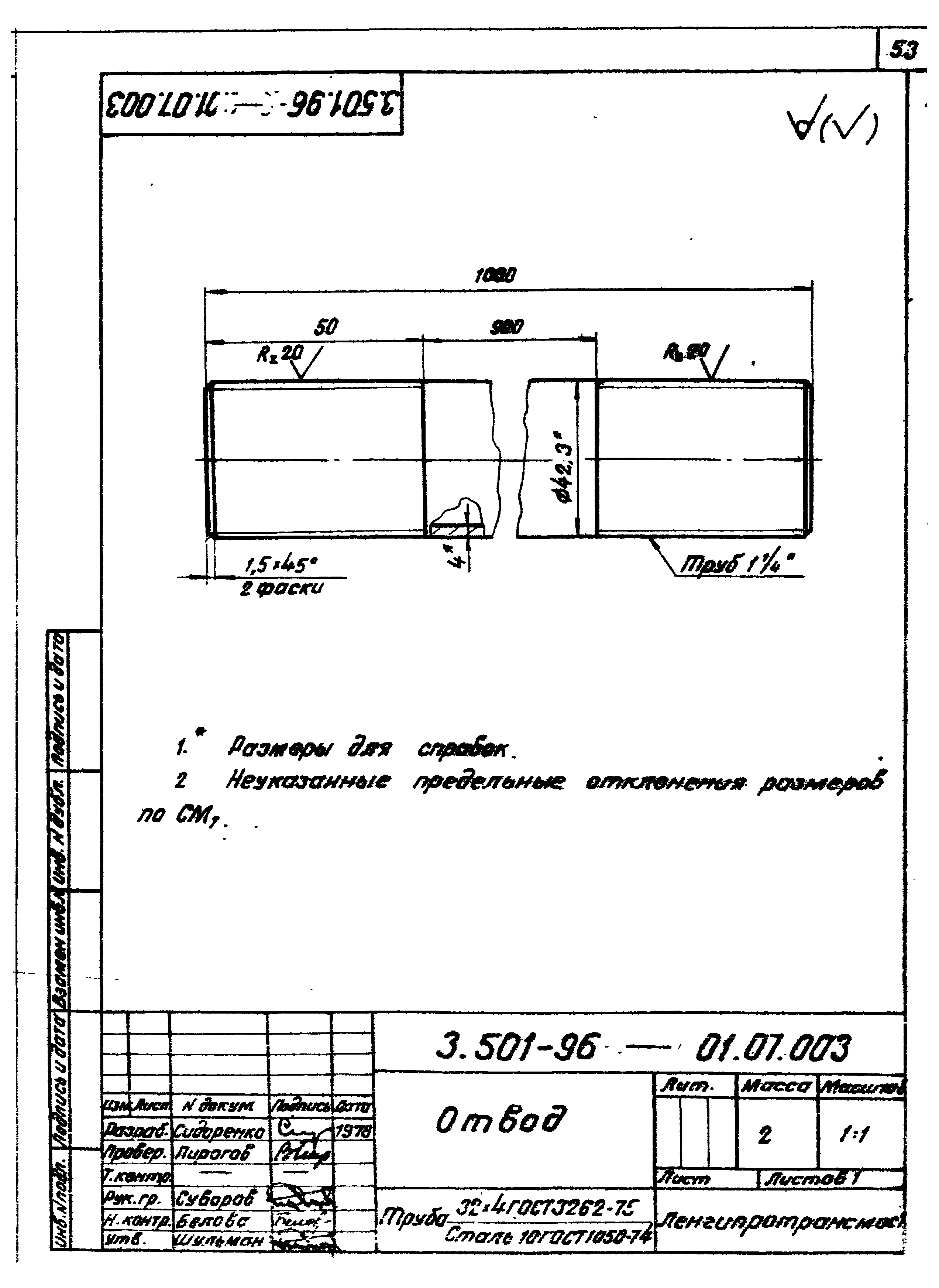
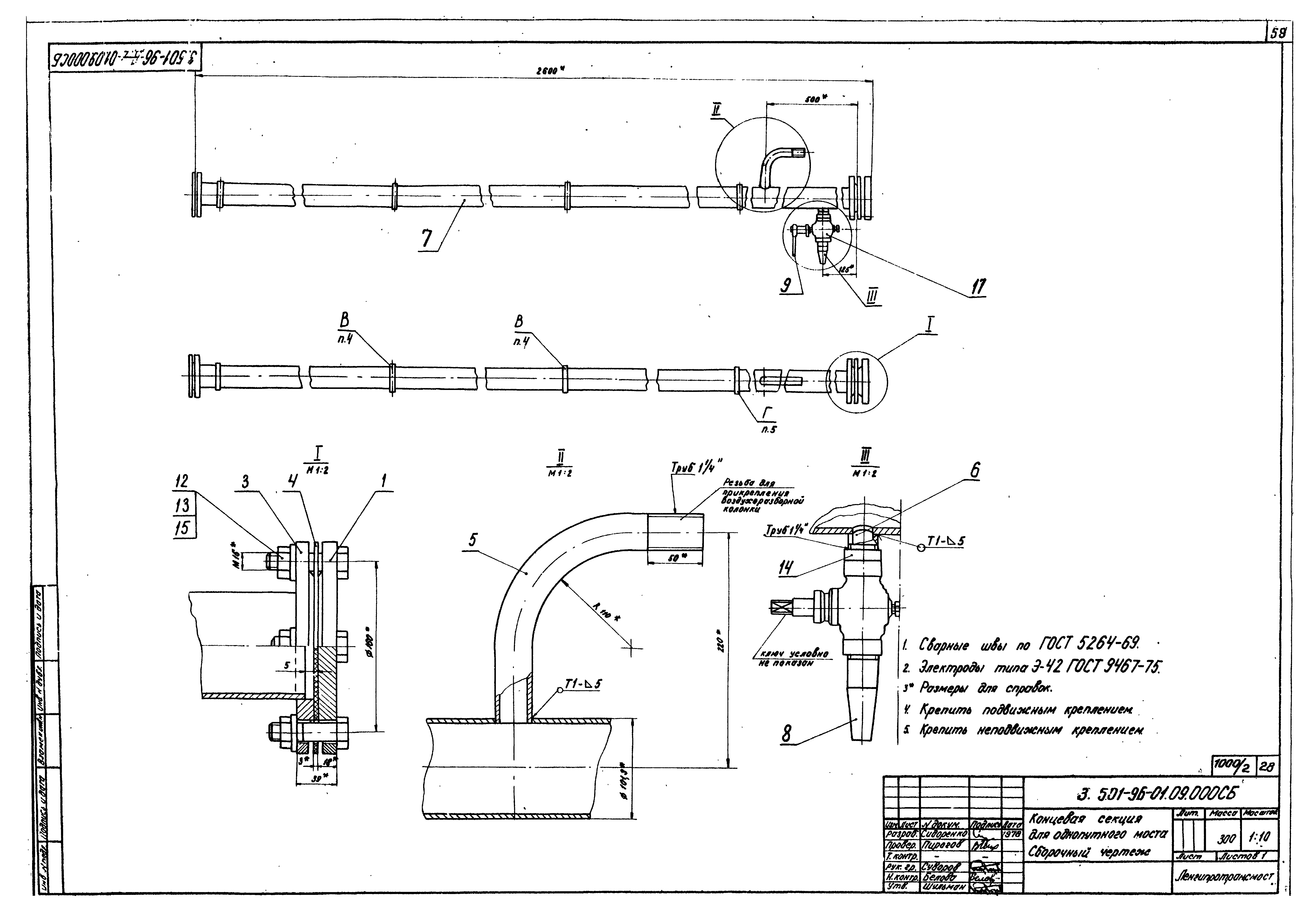
Скачать Серия 3.501-96 Дополнение. Альбом 2. Компрессорные станции и разводящая сеть на мостах. Рабочие чертежиДата актуализации: 01.01.2021 Серия 3.501-96
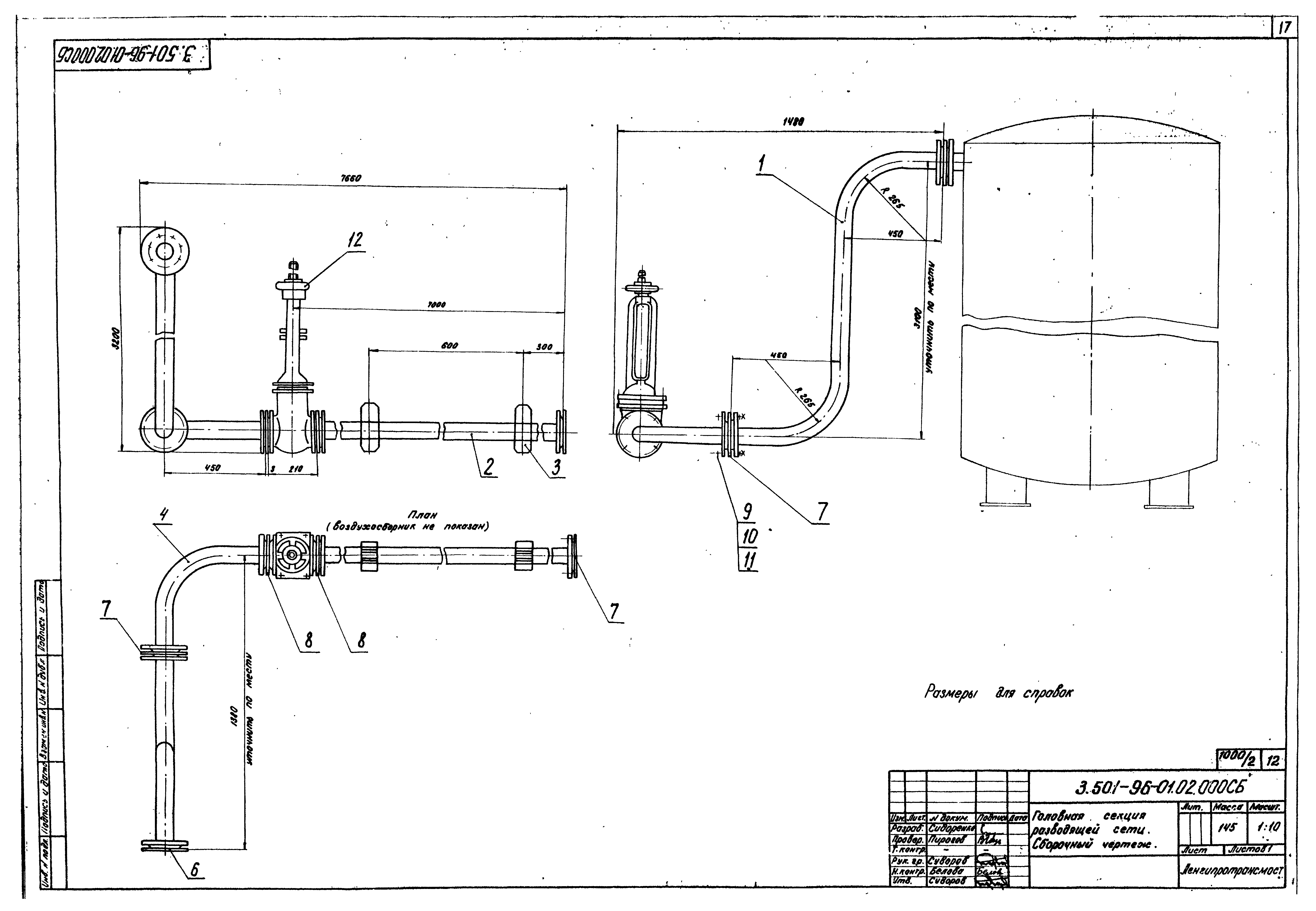
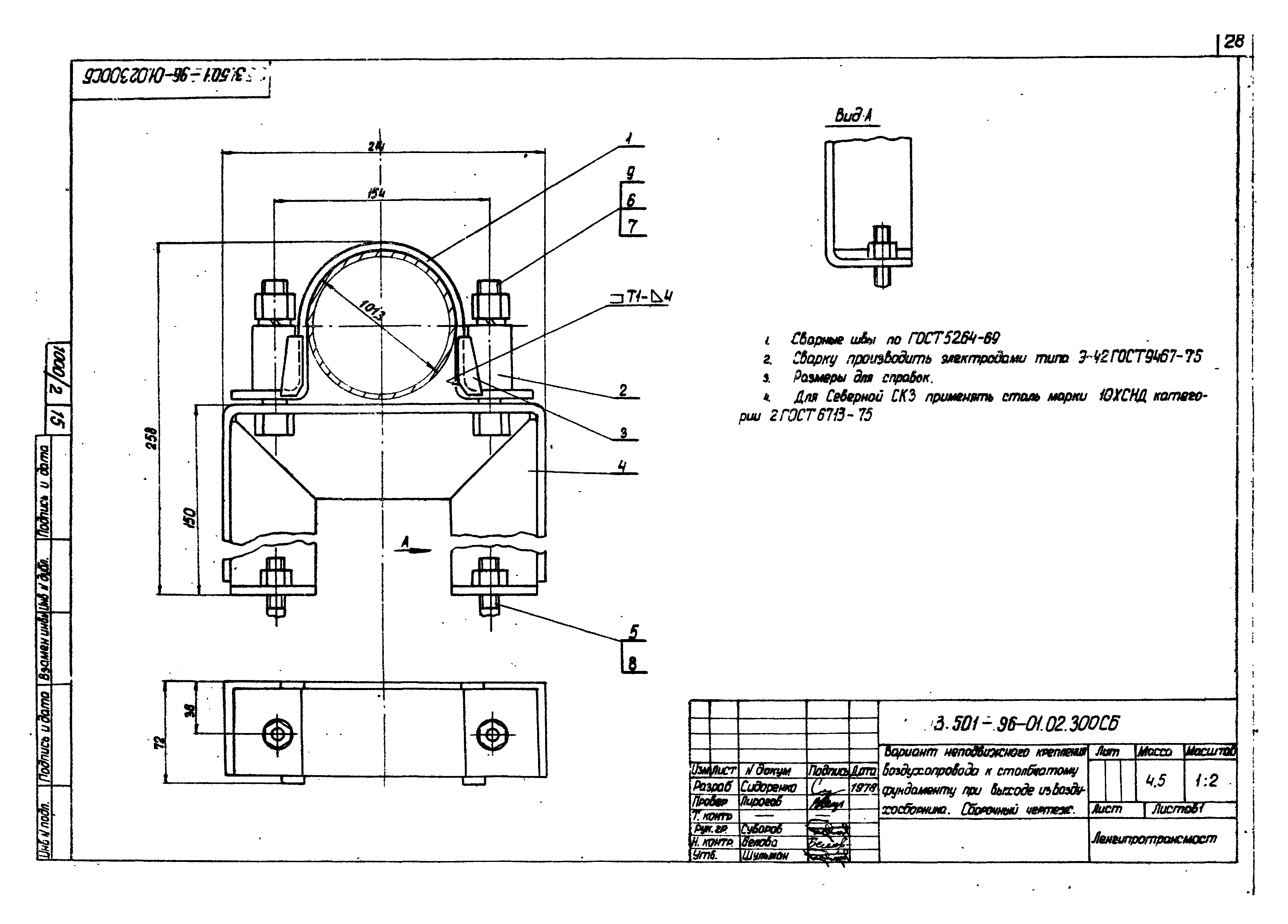
Дополнение. Альбом 2. Компрессорные станции и разводящая сеть на мостах. Рабочие чертежи| Обозначение: | Серия 3.501-96 | | Обозначение англ: | Series 3.501-96 | | Статус: | не действует | | Название рус.: | Дополнение. Альбом 2. Компрессорные станции и разводящая сеть на мостах. Рабочие чертежи | | Дата добавления в базу: | 01.09.2013 | | Дата актуализации: | 01.01.2021 | | Дата введения: | 01.10.1979 | | Дата окончания срока действия: | 01.10.2000 | | Разработан: | Ленгипротрансмост
| | Утверждён: | 25.05.1979 МПС (Ministry of Railroads А-17911)
|
                                                                                                 
|