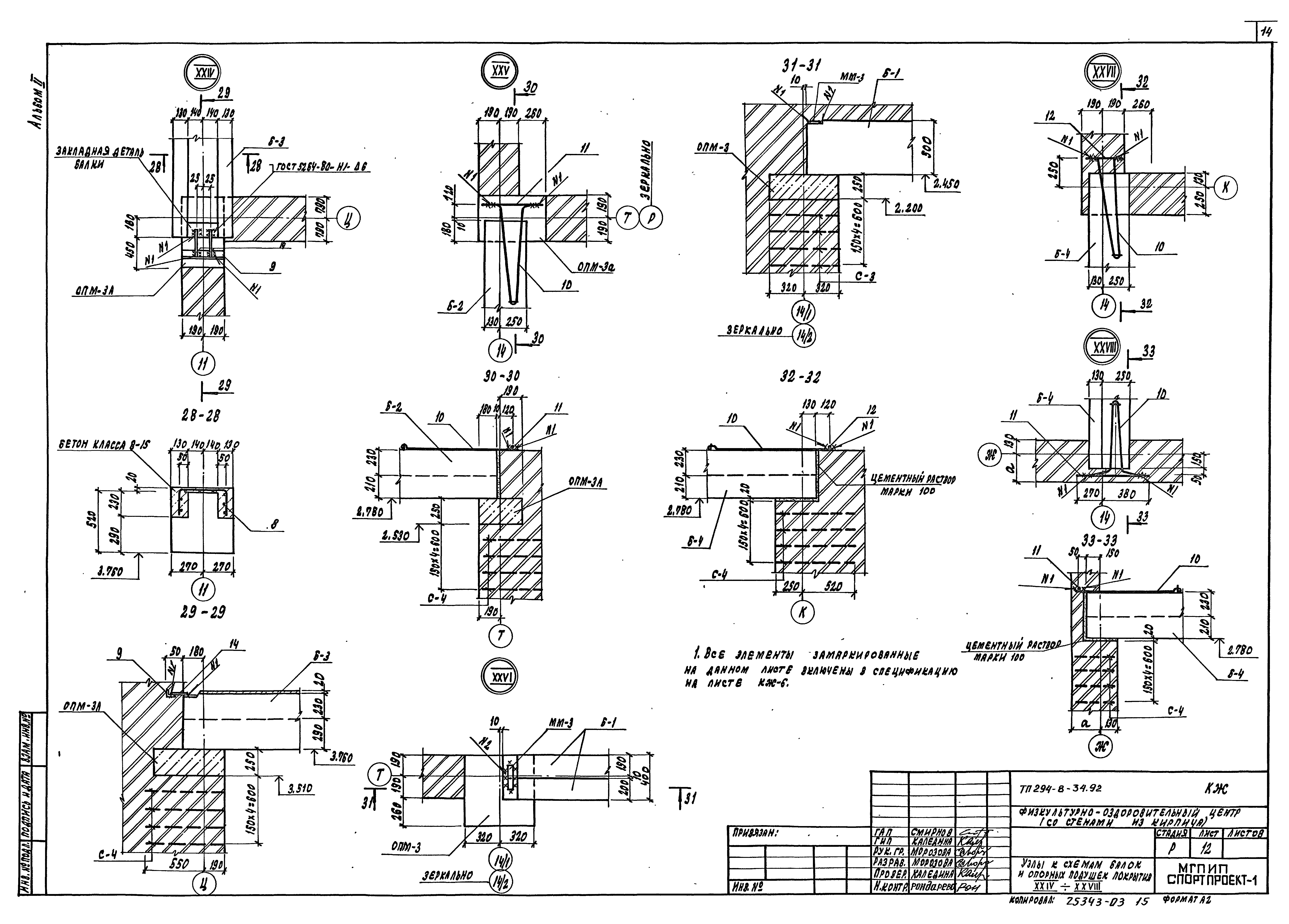
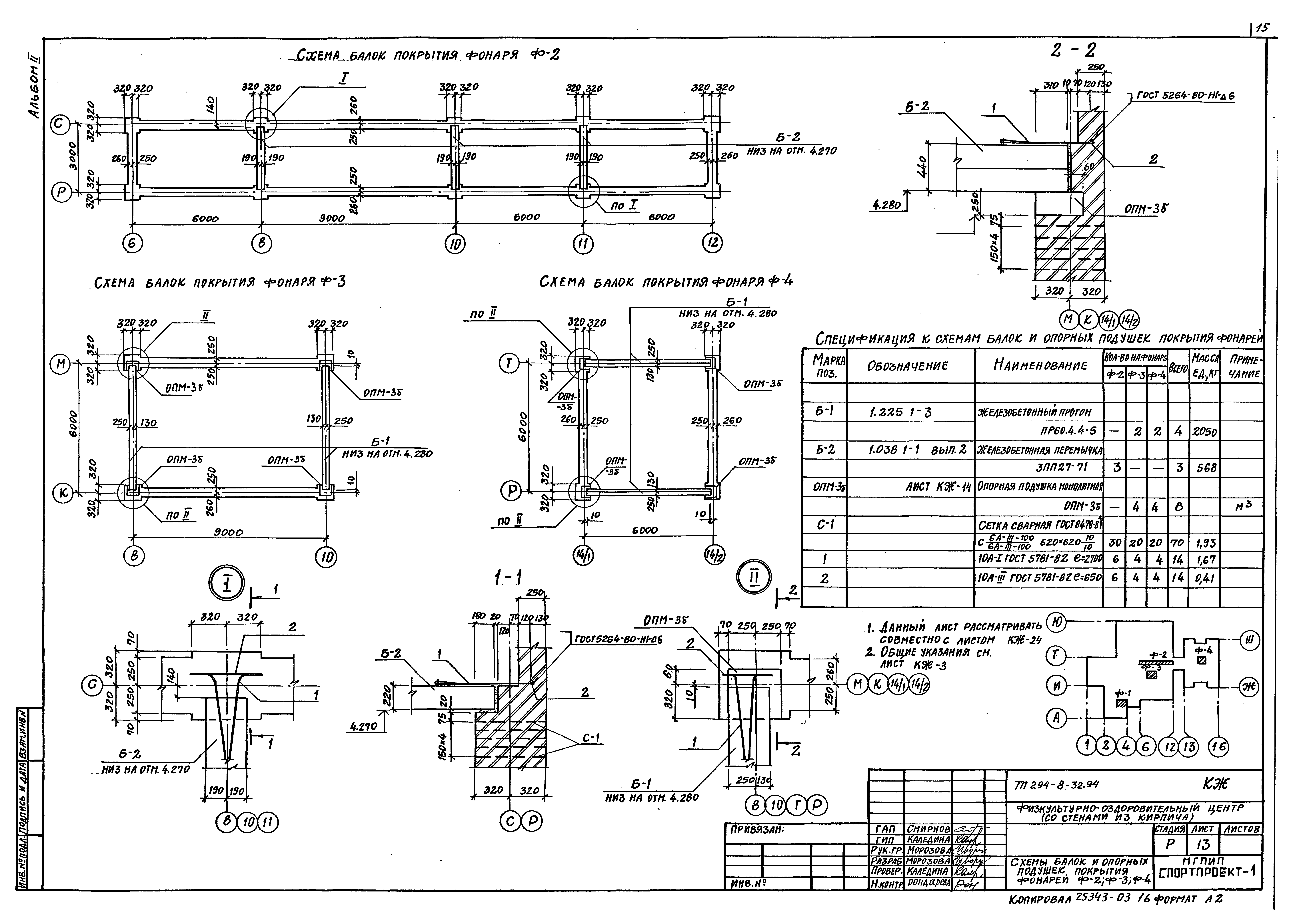
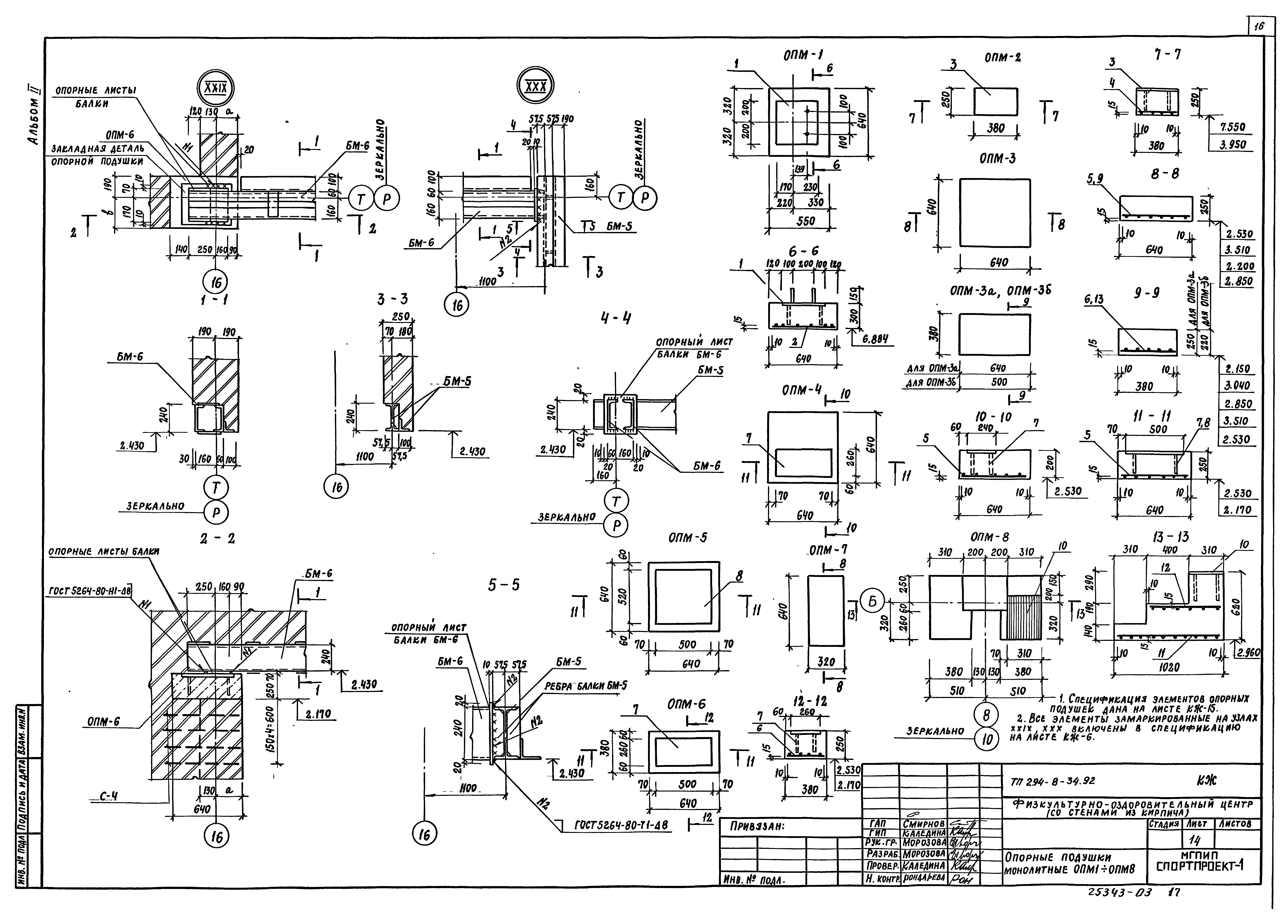
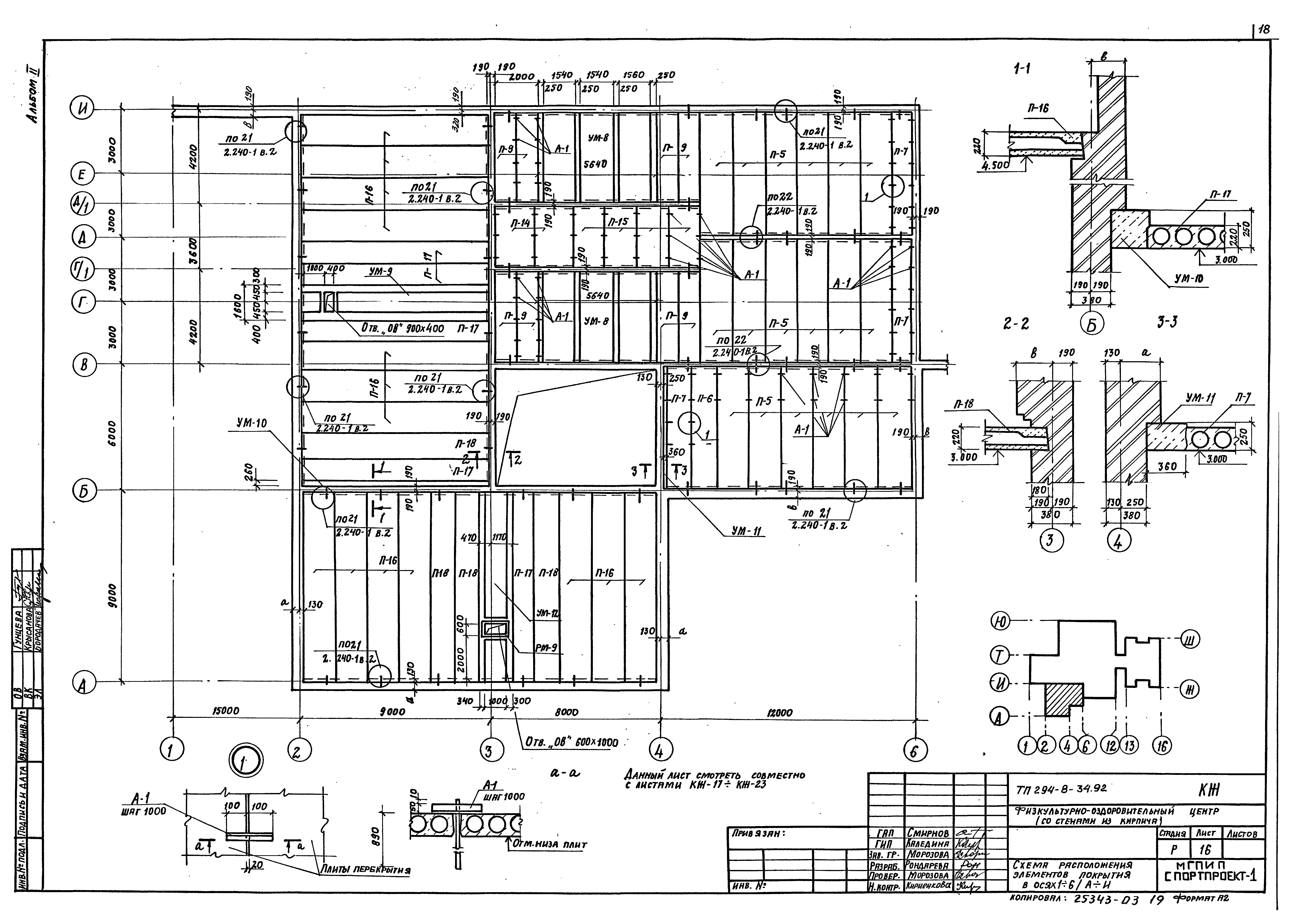
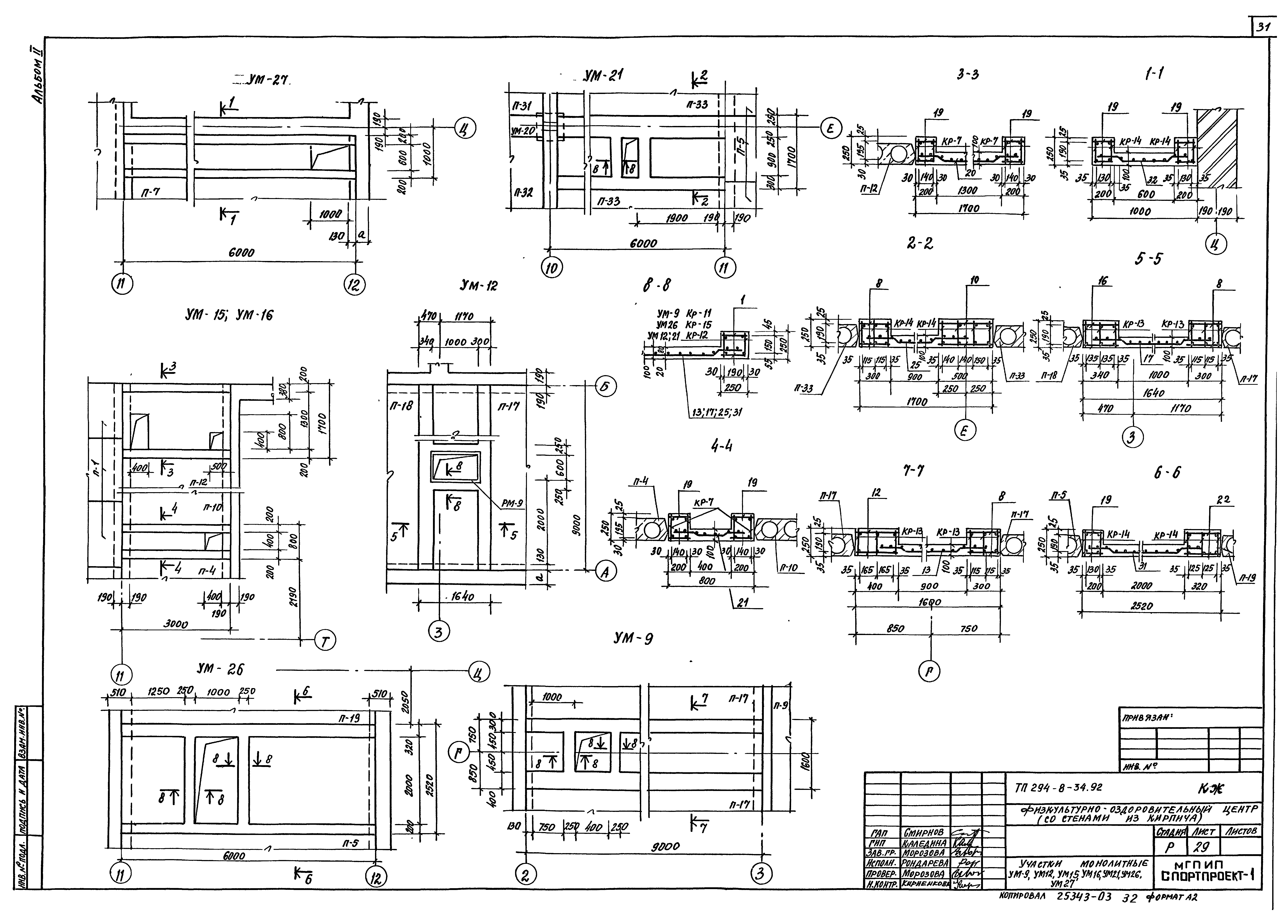
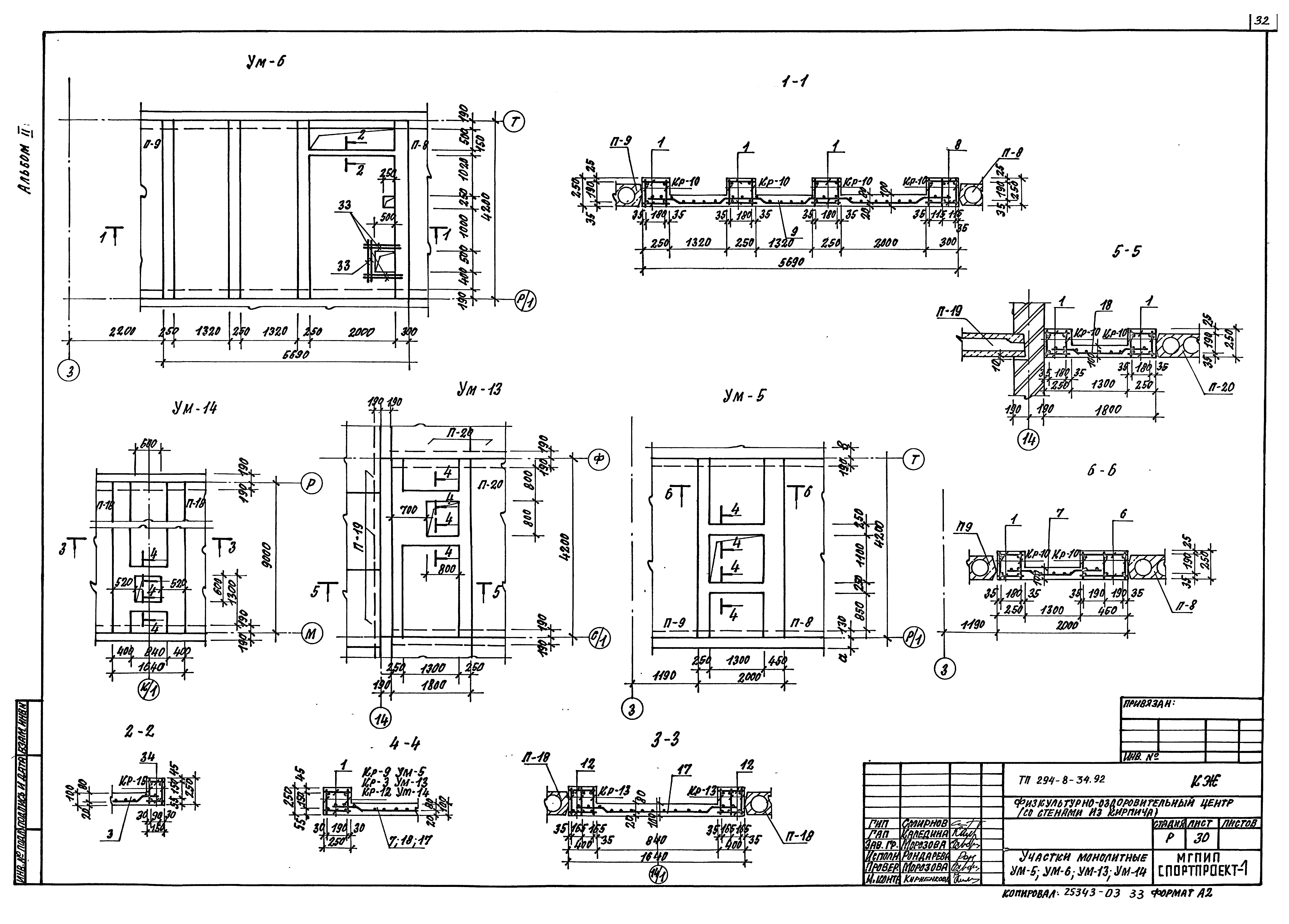
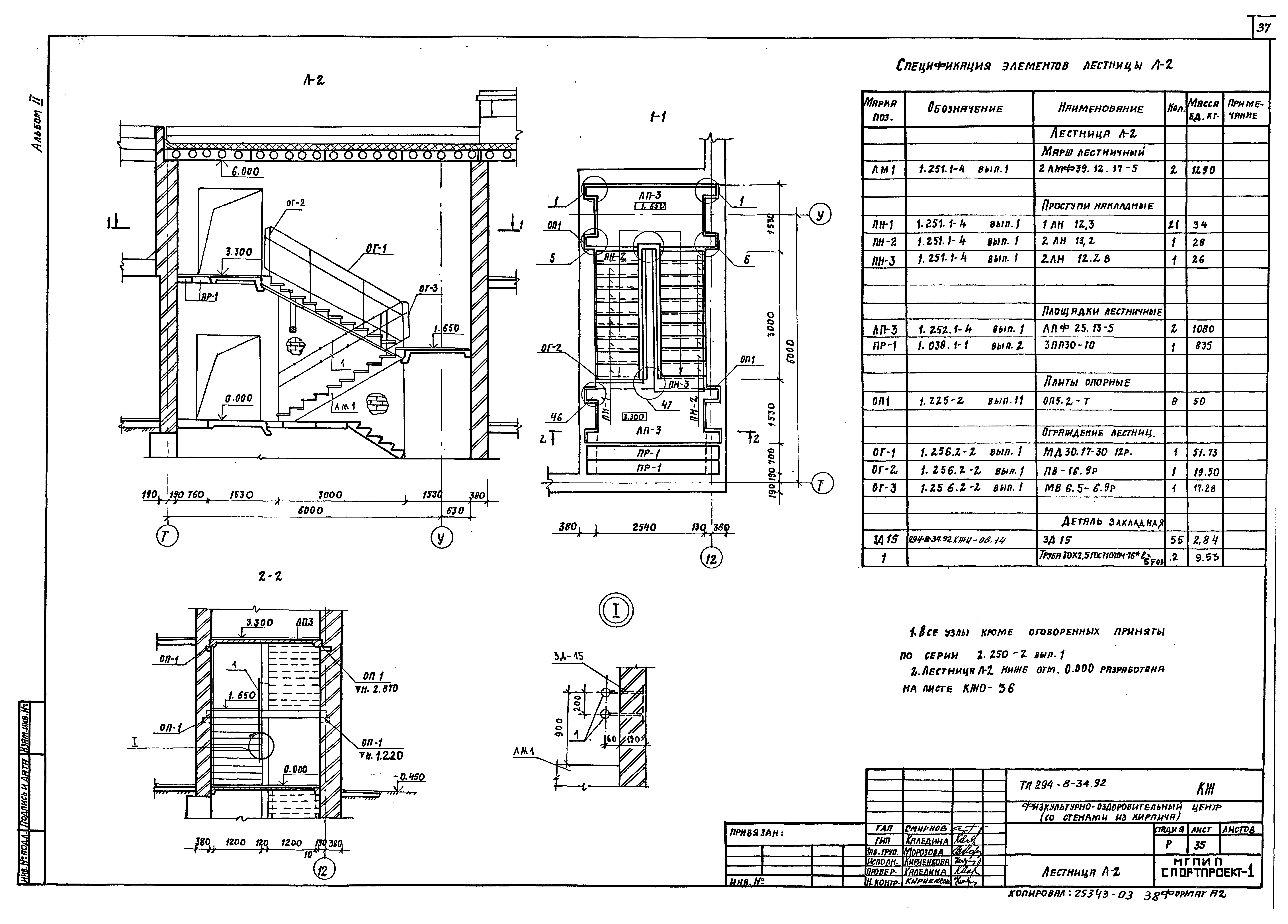
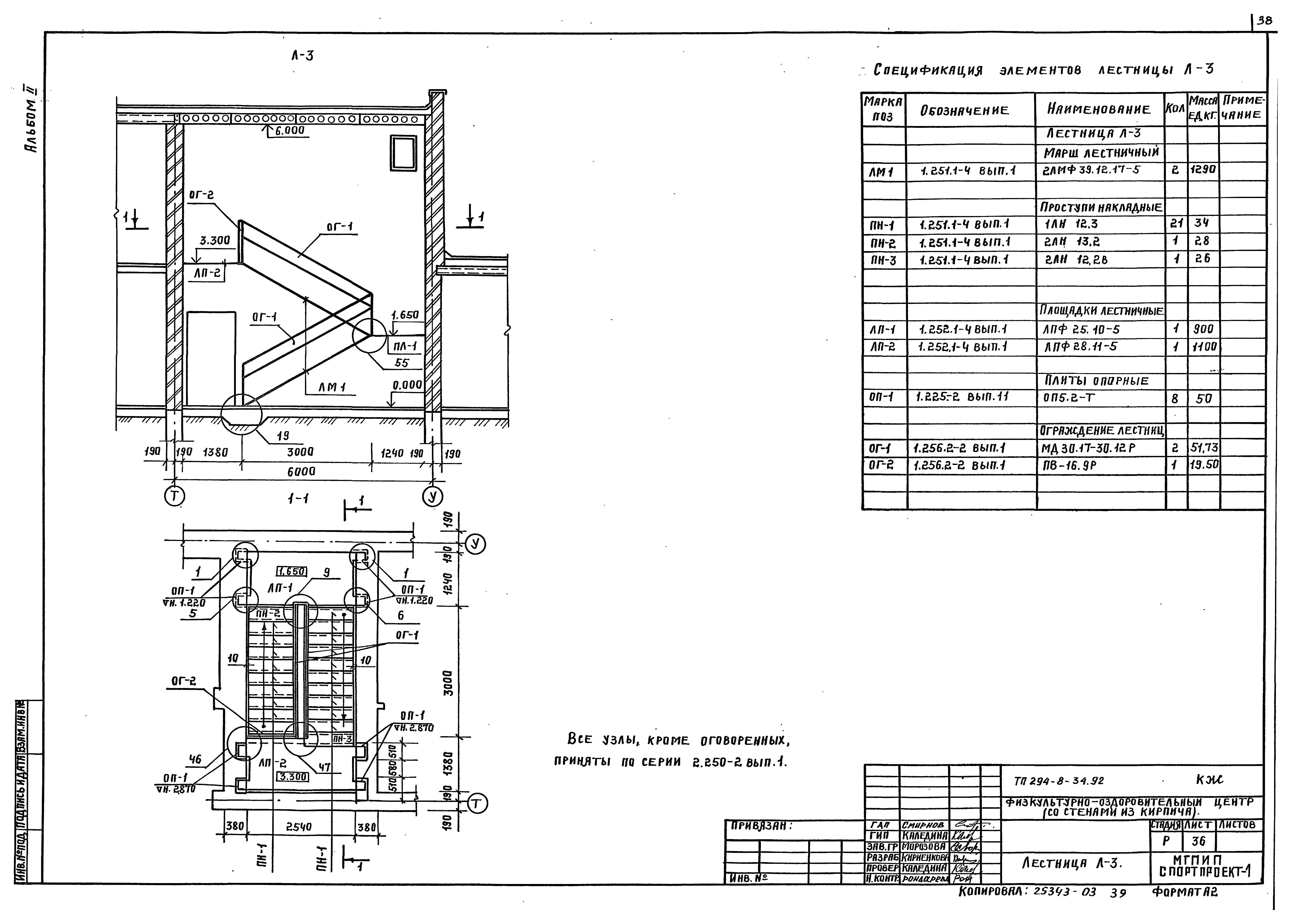
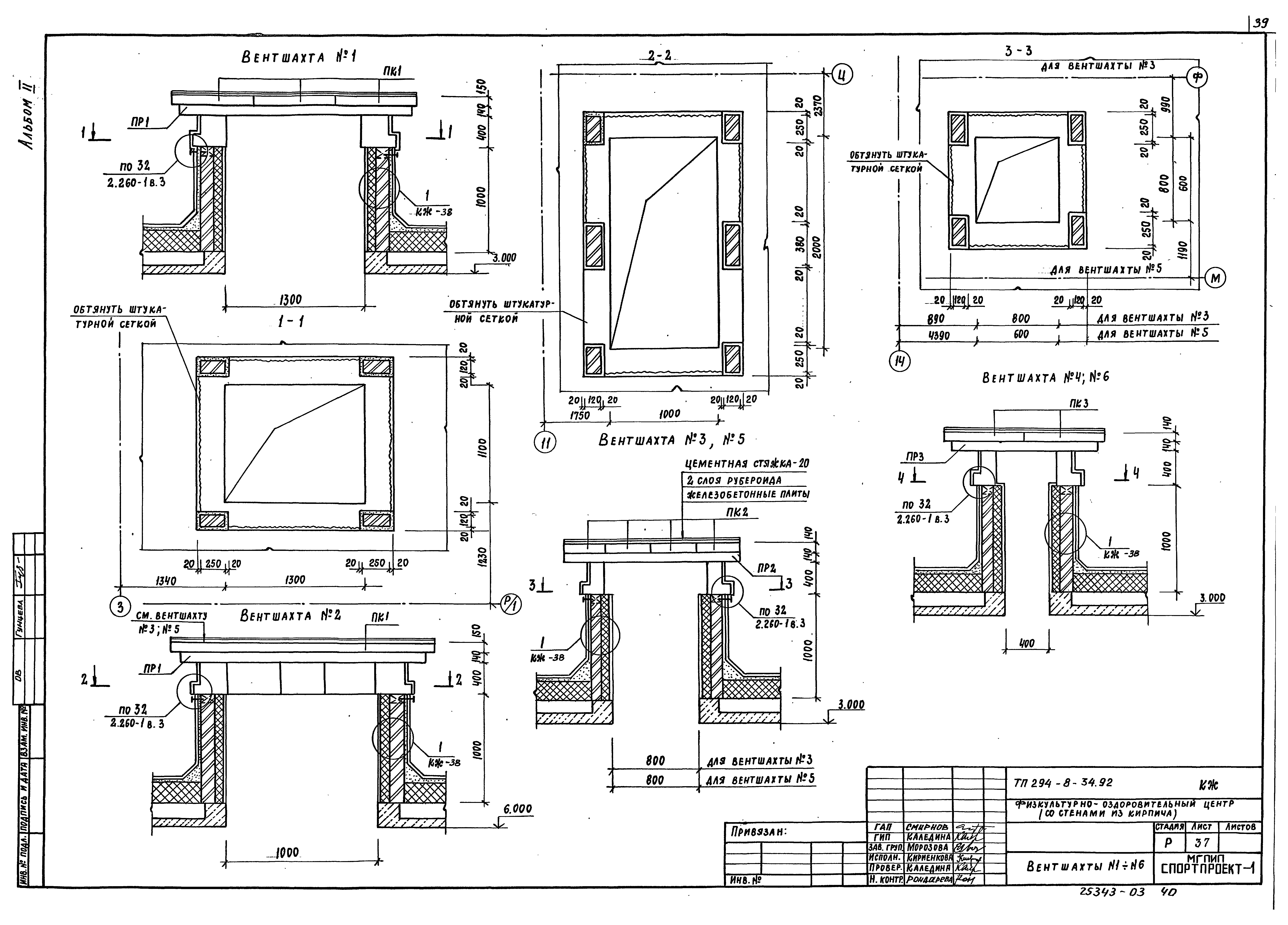
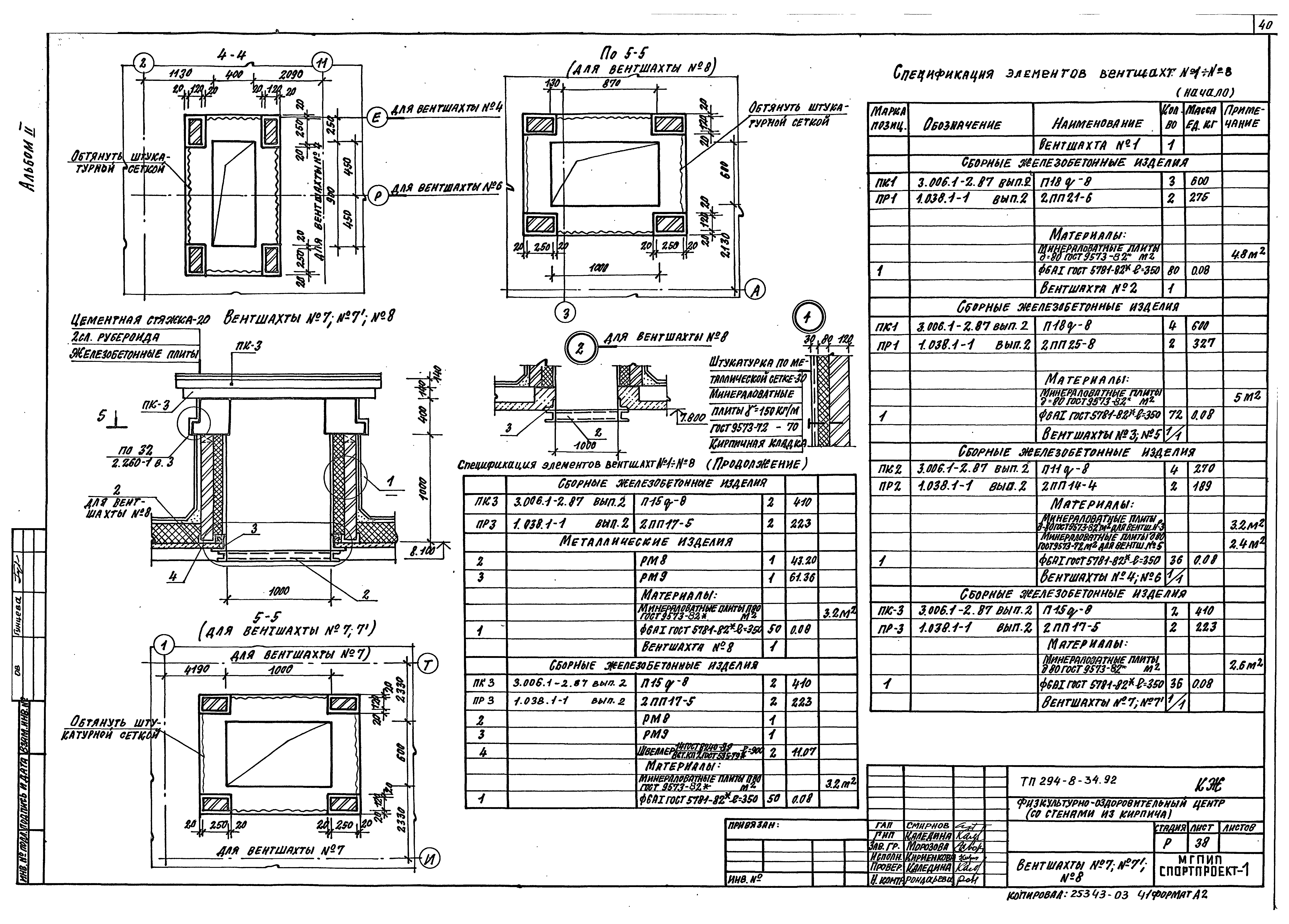
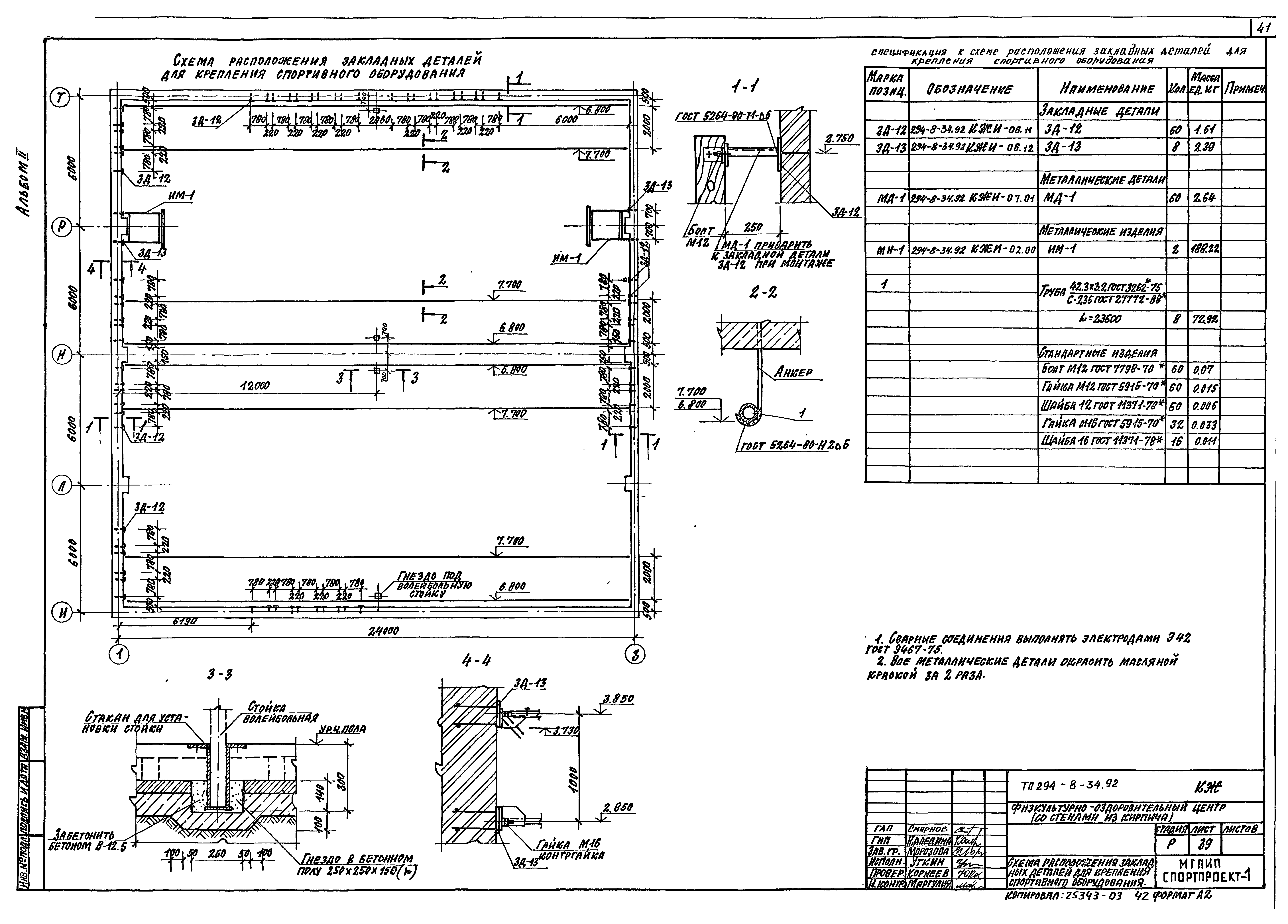
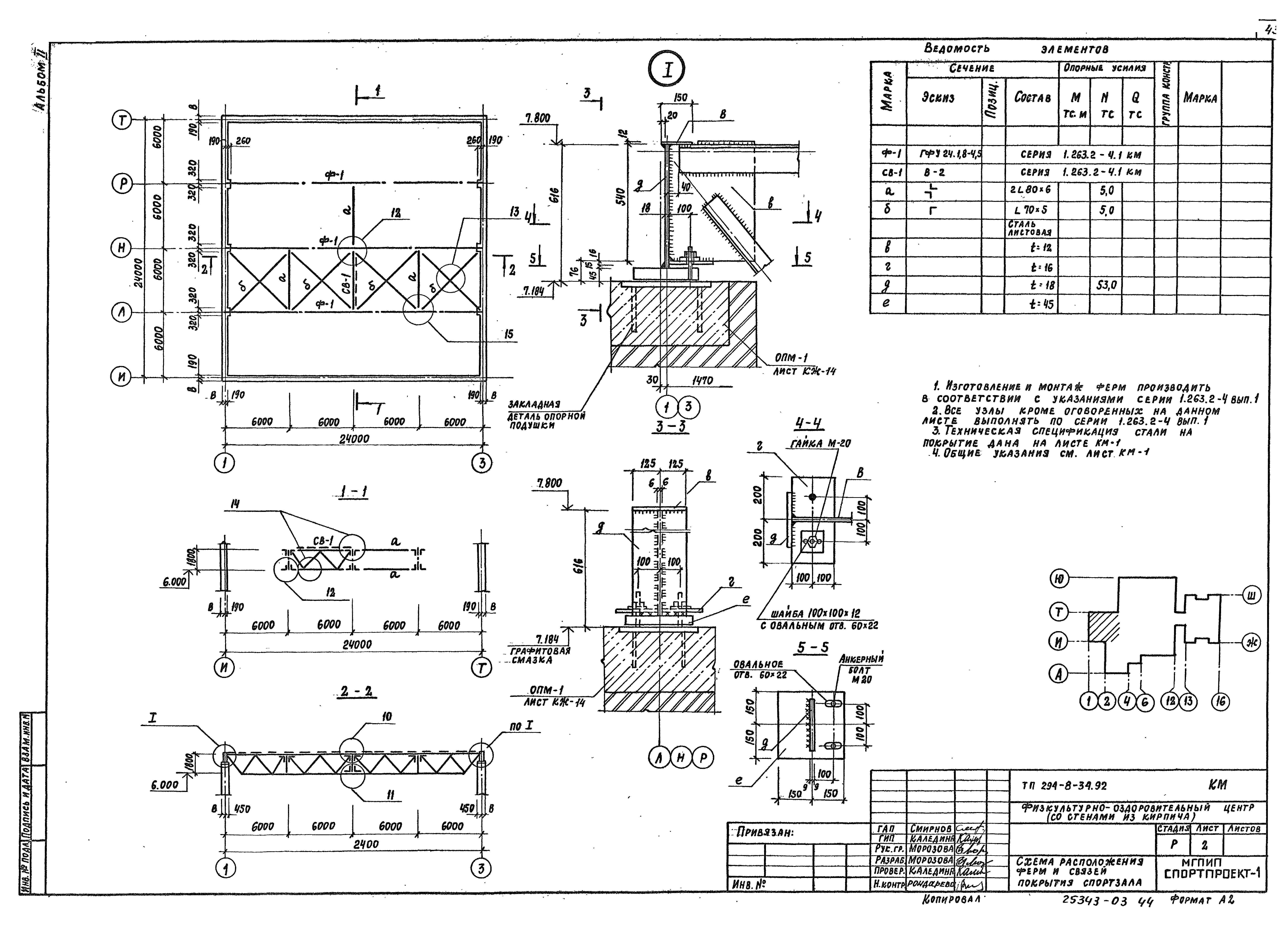
Скачать Типовой проект 294-8-34.92 Альбом II. Конструктивные чертежи надземной части здания и алюминиевые витражиДата актуализации: 01.01.2021
|
| Обозначение: | Типовой проект 294-8-34.92 |
| Обозначение англ: | 294-8-34.92 |
| Статус: | не определен законодательством |
| Название рус.: | Альбом II. Конструктивные чертежи надземной части здания и алюминиевые витражи |
| Дата добавления в базу: | 01.09.2013 |
| Дата актуализации: | 01.01.2021 |
| Дата введения: | 22.04.1992 |
| Дата окончания срока действия: | 30.06.2003 |
| Разработан: | Спортпроект-1 |
| Утверждён: | 26.12.1990 Госкомархитектура (262) |

















































