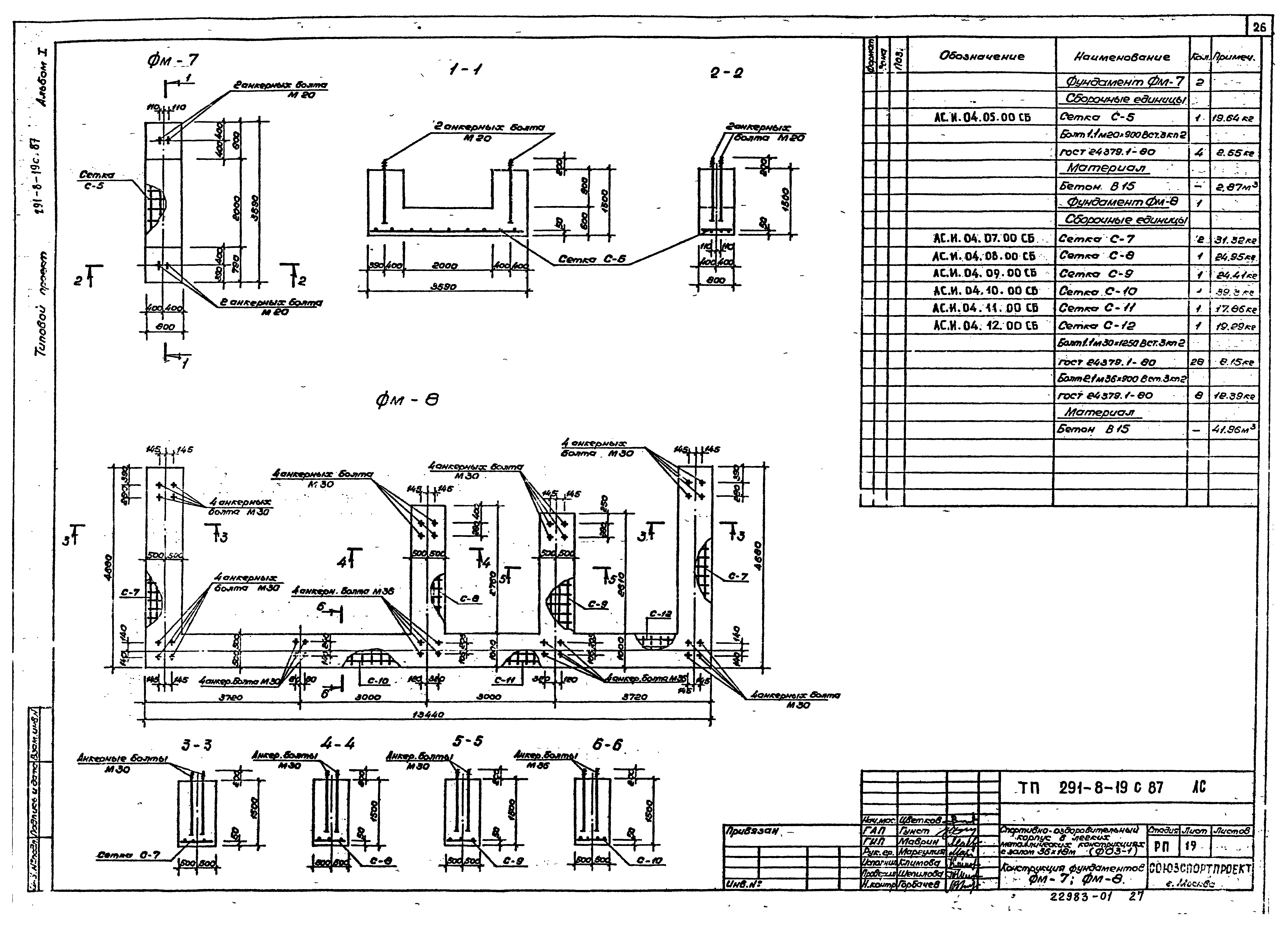
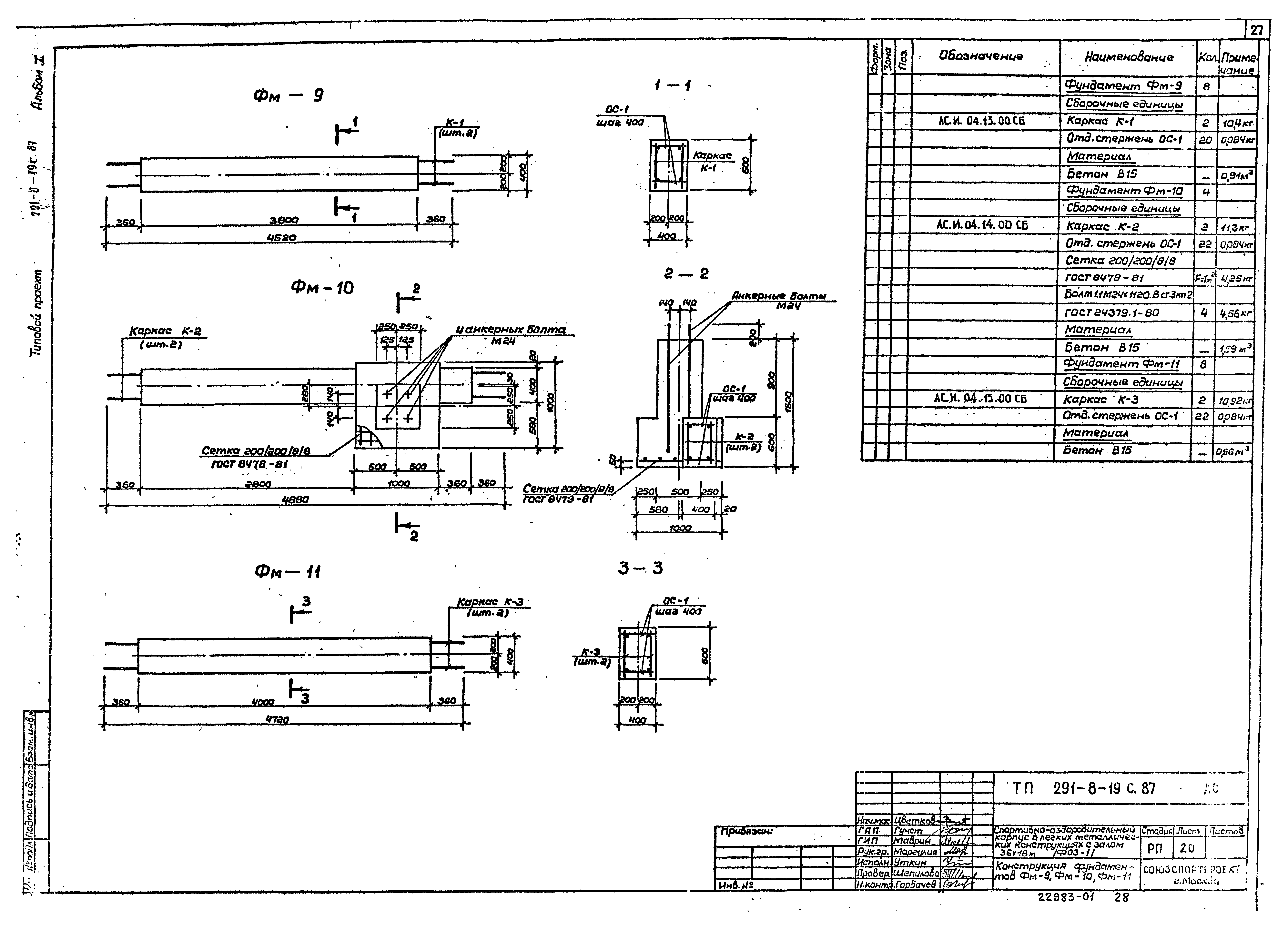
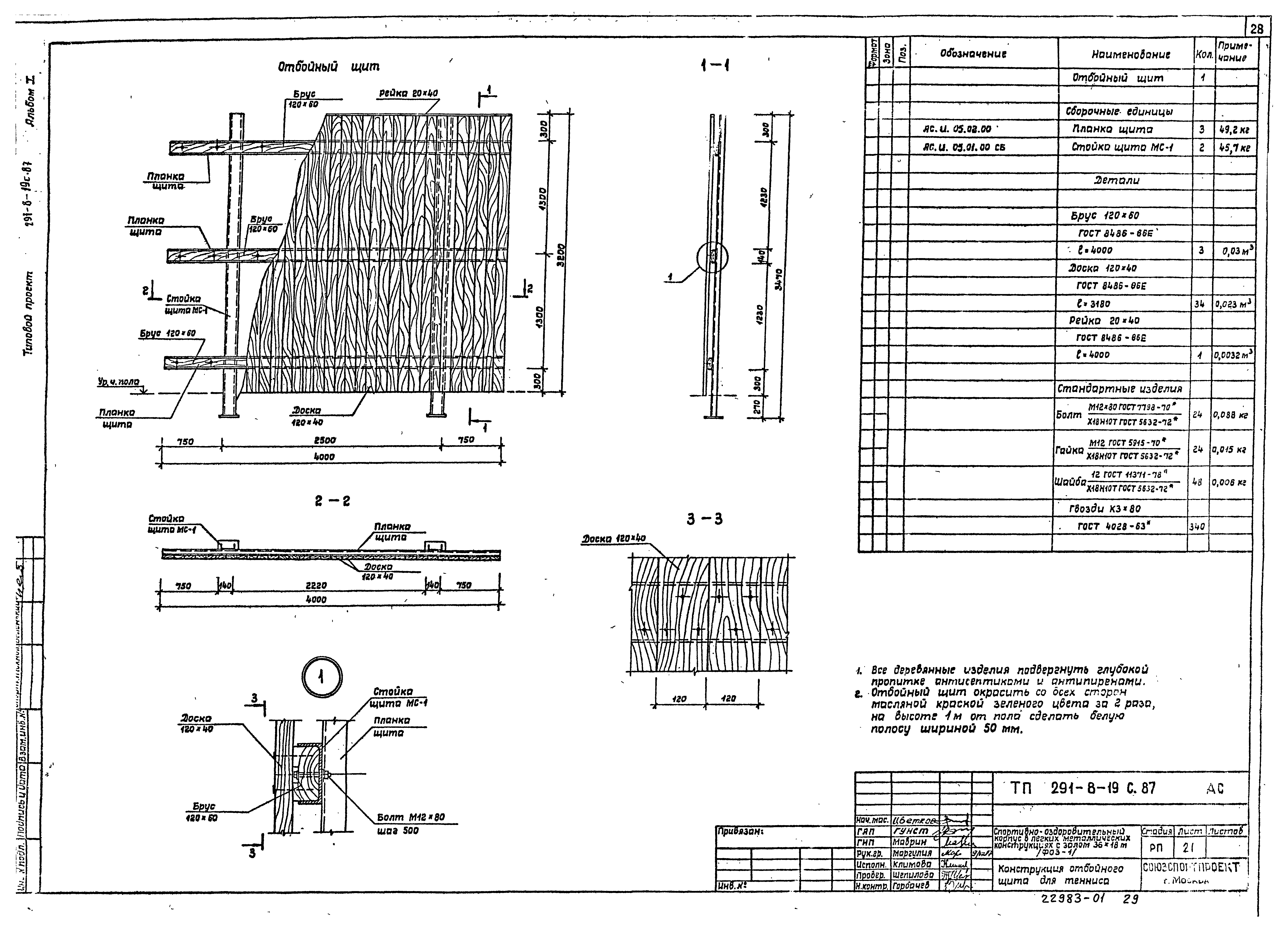
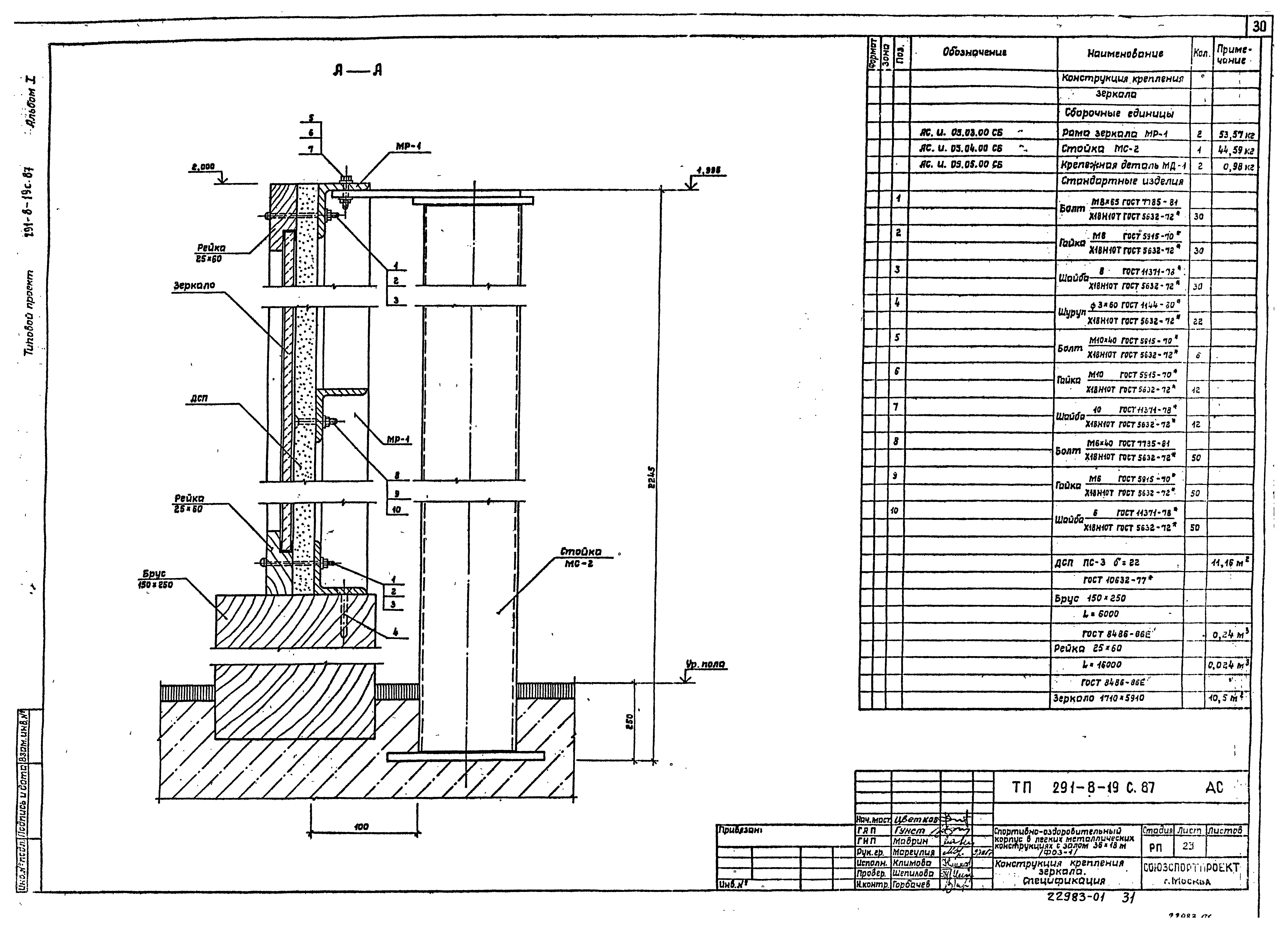
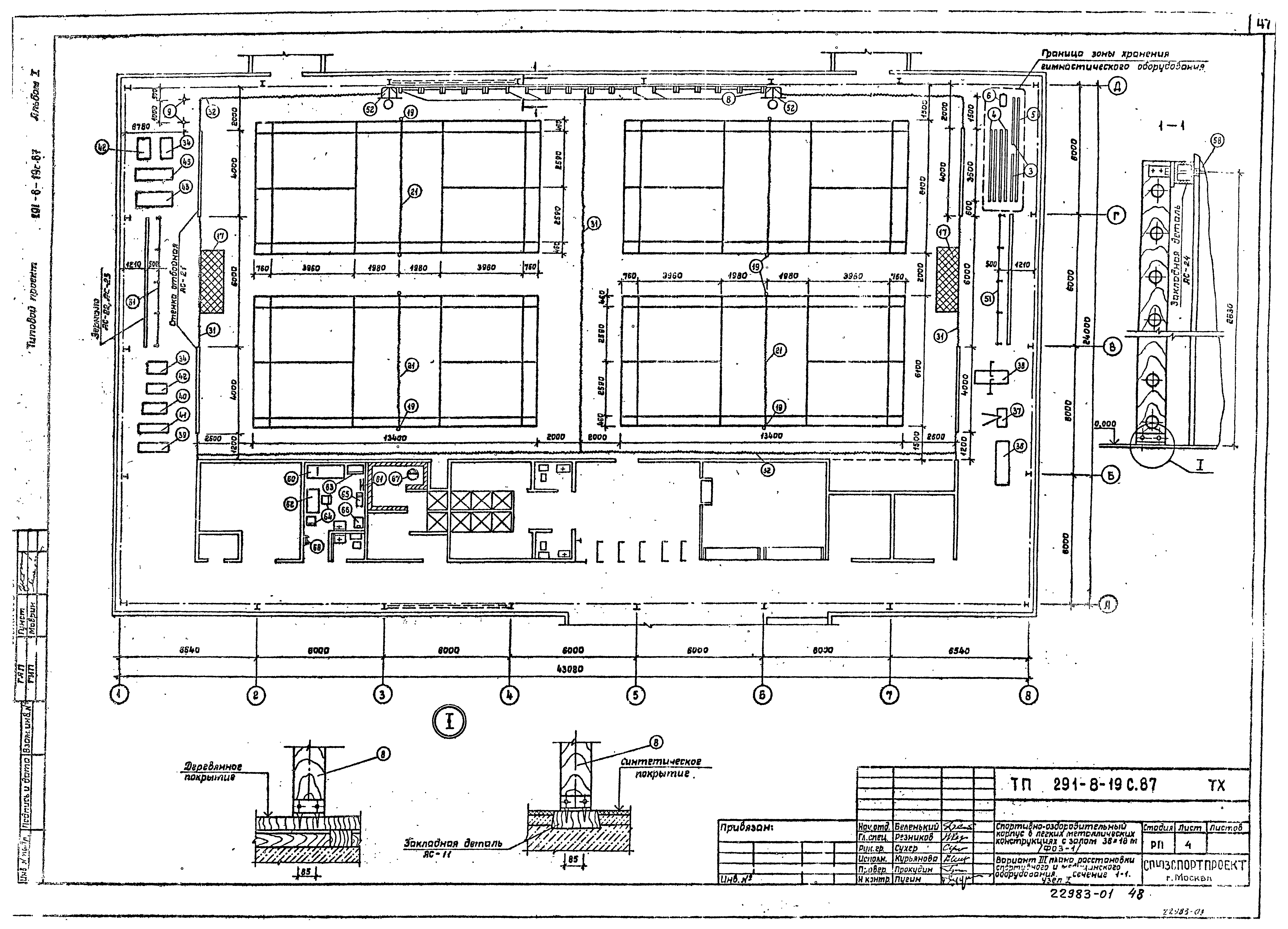
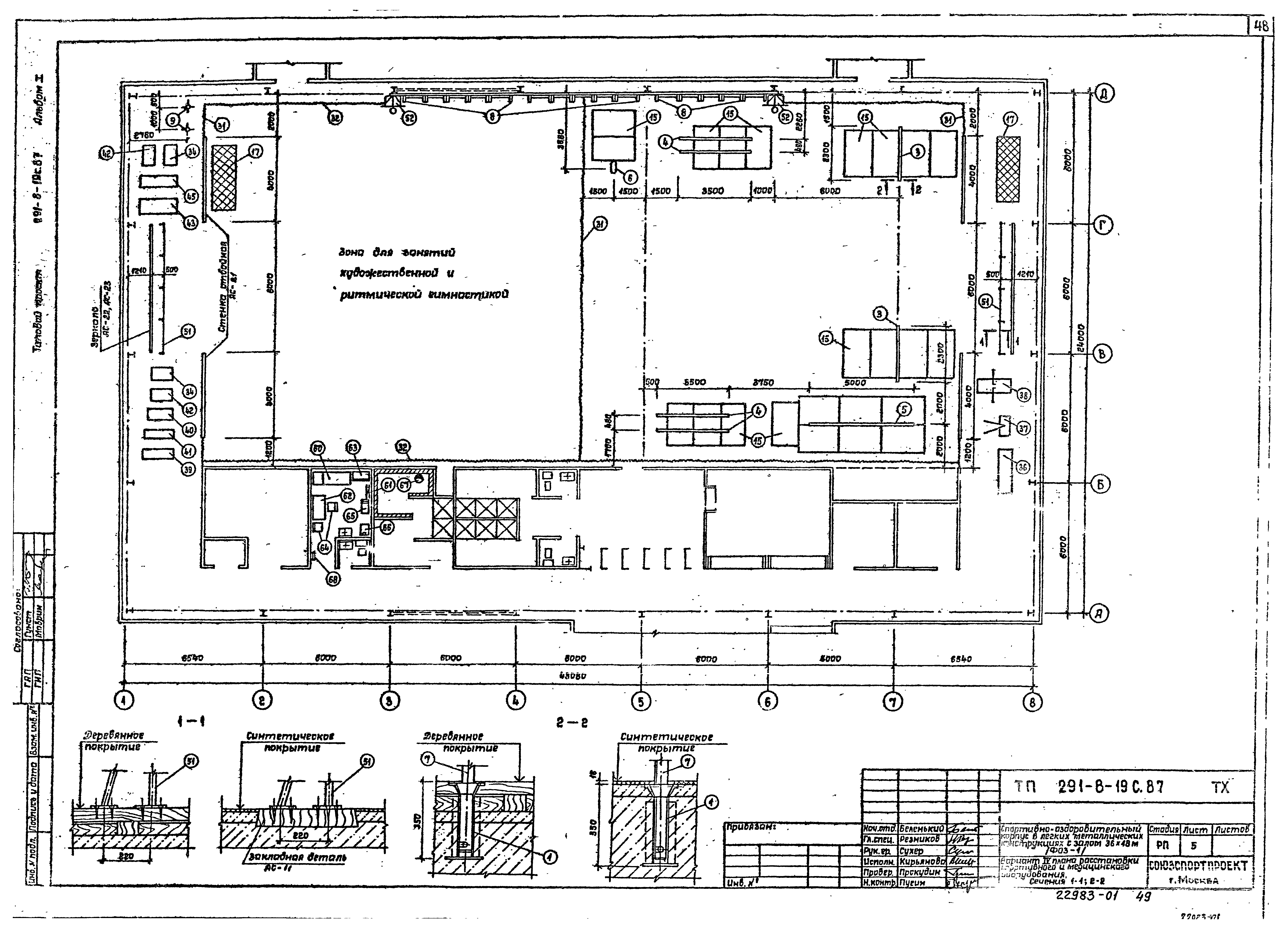
Скачать Типовой проект 291-8-19с.87 Альбом I. Архитектурно-строительные и технологические чертежиДата актуализации: 01.01.2021
|
| Обозначение: | Типовой проект 291-8-19с.87 |
| Обозначение англ: | 291-8-19с.87 |
| Статус: | не определен законодательством |
| Название рус.: | Альбом I. Архитектурно-строительные и технологические чертежи |
| Дата добавления в базу: | 01.09.2013 |
| Дата актуализации: | 01.01.2021 |
| Дата введения: | 11.02.1988 |
| Дата окончания срока действия: | 30.06.2003 |
| Разработан: | Союзспортпроект Спорткомитета СССР |
| Утверждён: | 24.06.1987 Госгражданстрой (Gosgrazhdanstroy 194) |


















































