Скачать Типовой проект 902-2-469.89 Альбом 2. Технологические решения. Отопление и вентиляция. Внутренний водопровод и канализацияДата актуализации: 01.01.2021
|
| Обозначение: | Типовой проект 902-2-469.89 |
| Обозначение англ: | 902-2-469.89 |
| Статус: | не определен законодательством |
| Название рус.: | Альбом 2. Технологические решения. Отопление и вентиляция. Внутренний водопровод и канализация |
| Дата добавления в базу: | 01.09.2013 |
| Дата актуализации: | 01.01.2021 |
| Дата введения: | 27.04.1989 |
| Дата окончания срока действия: | 30.06.2003 |
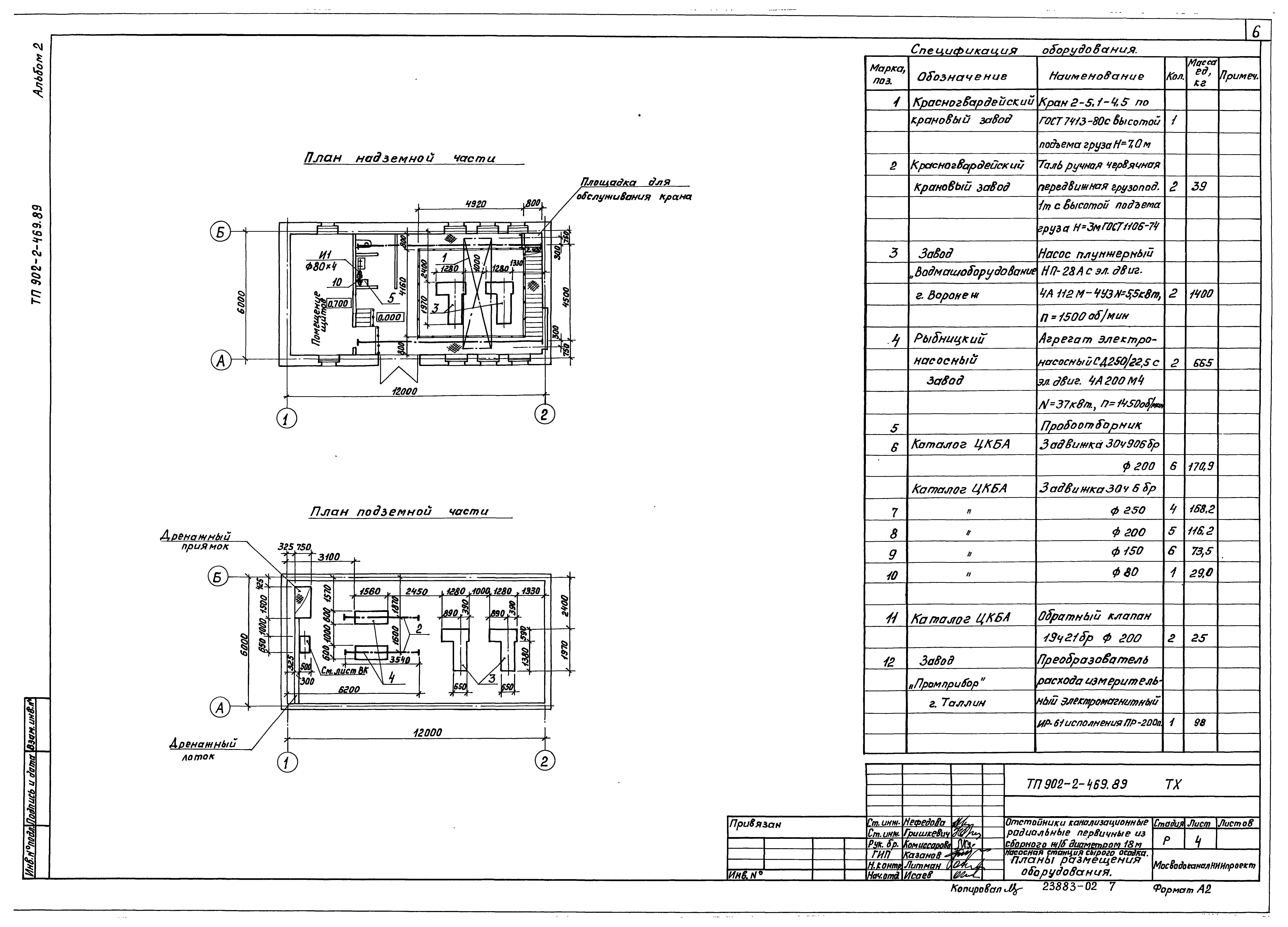
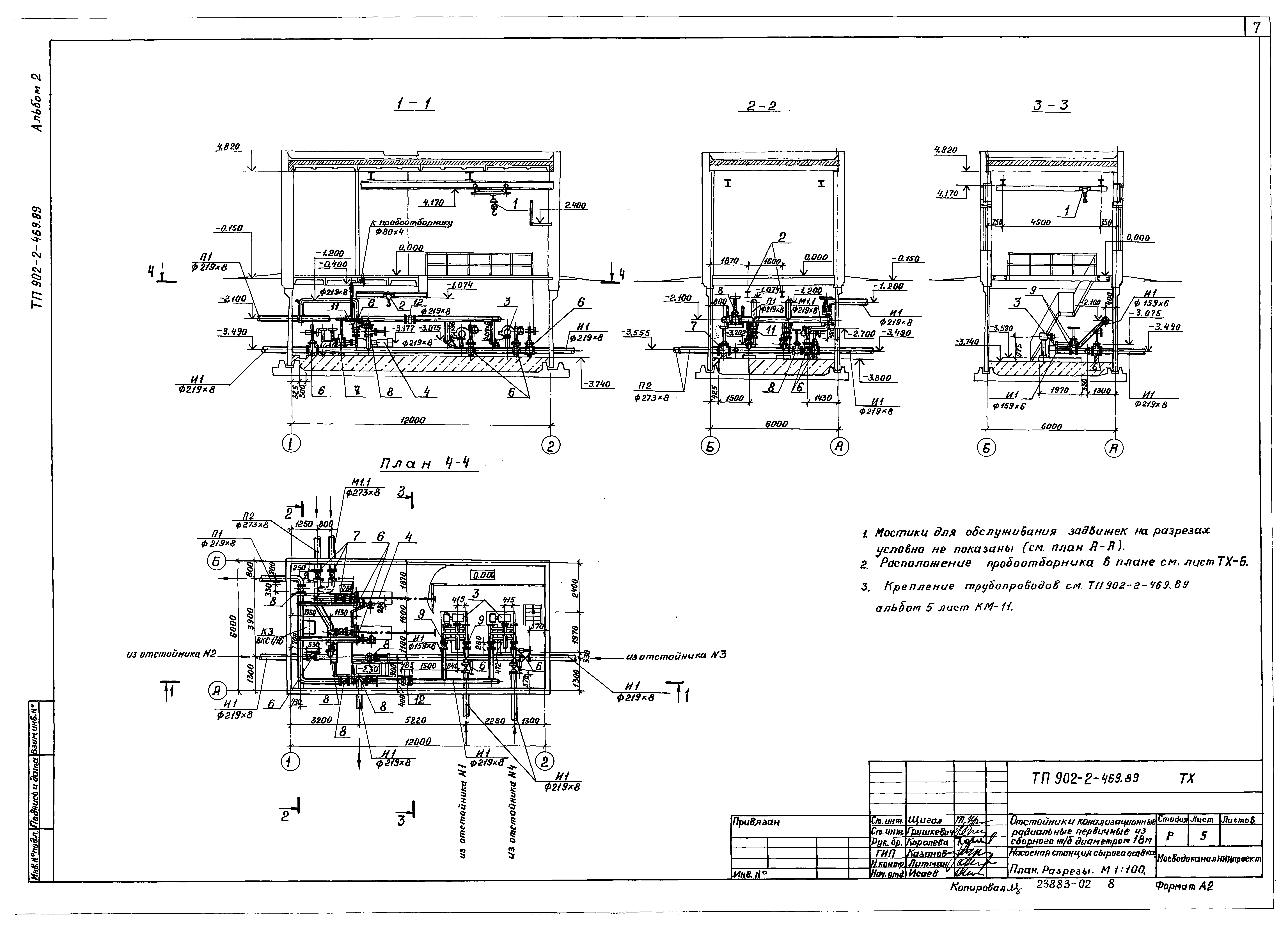
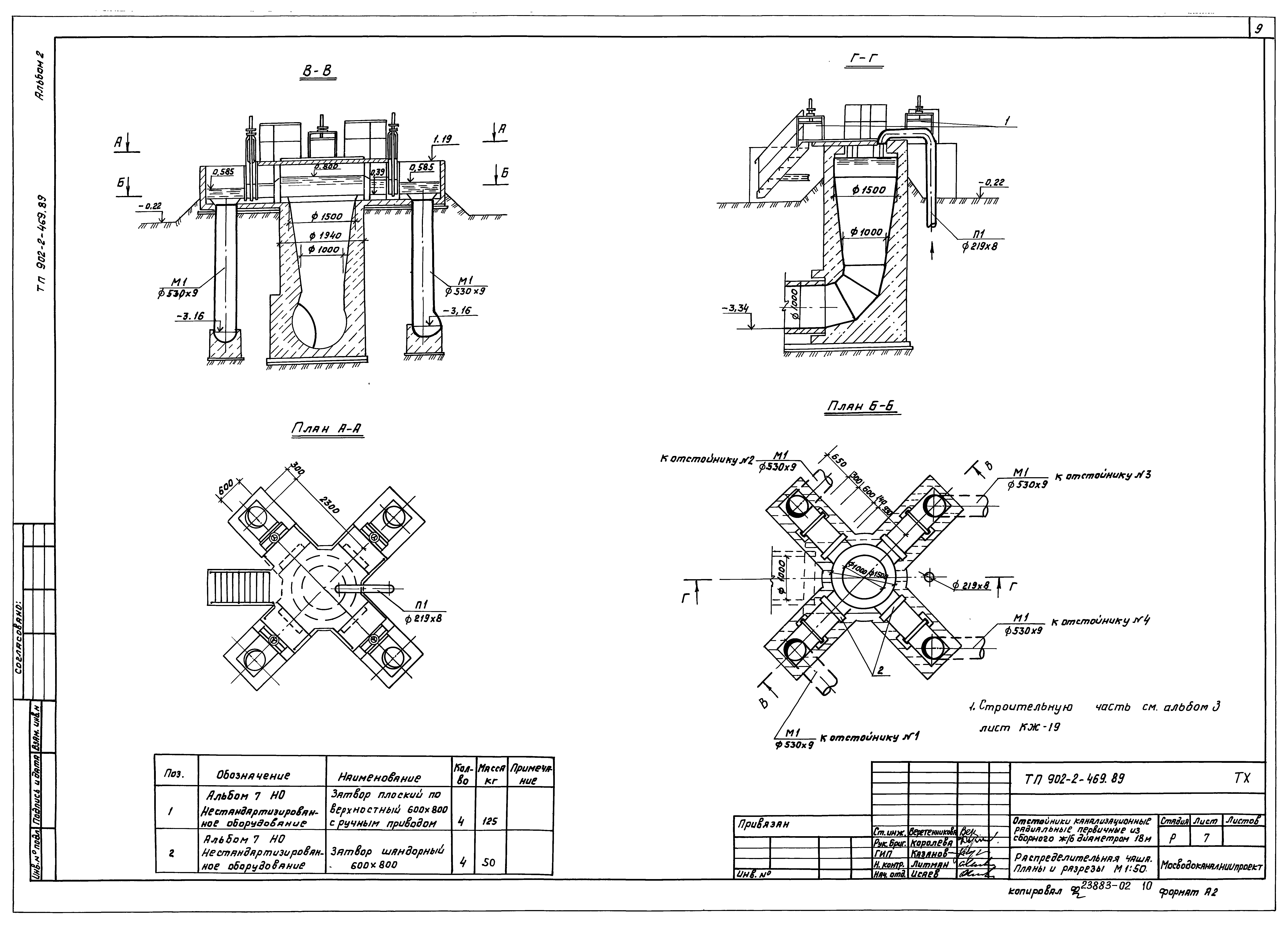
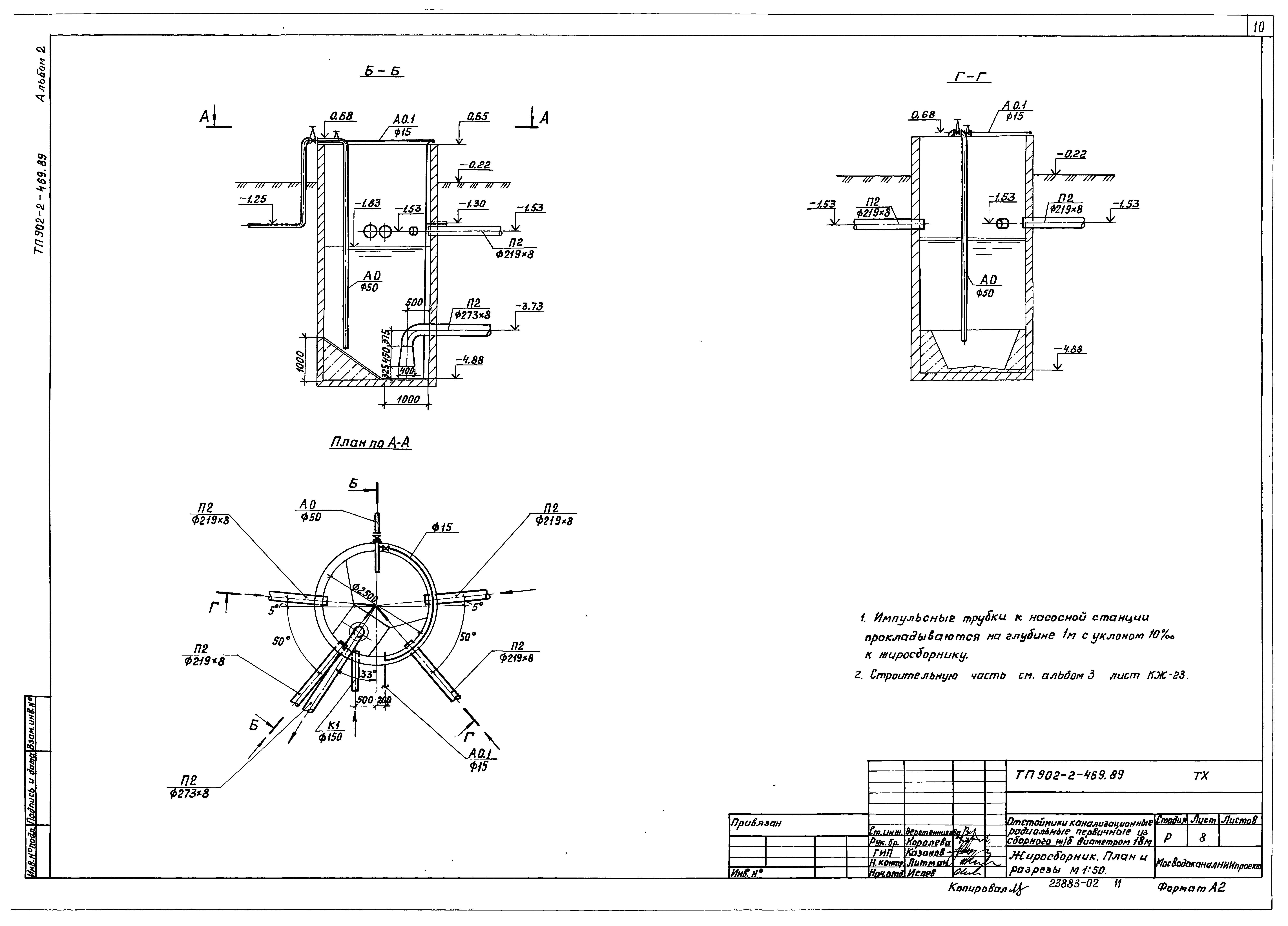
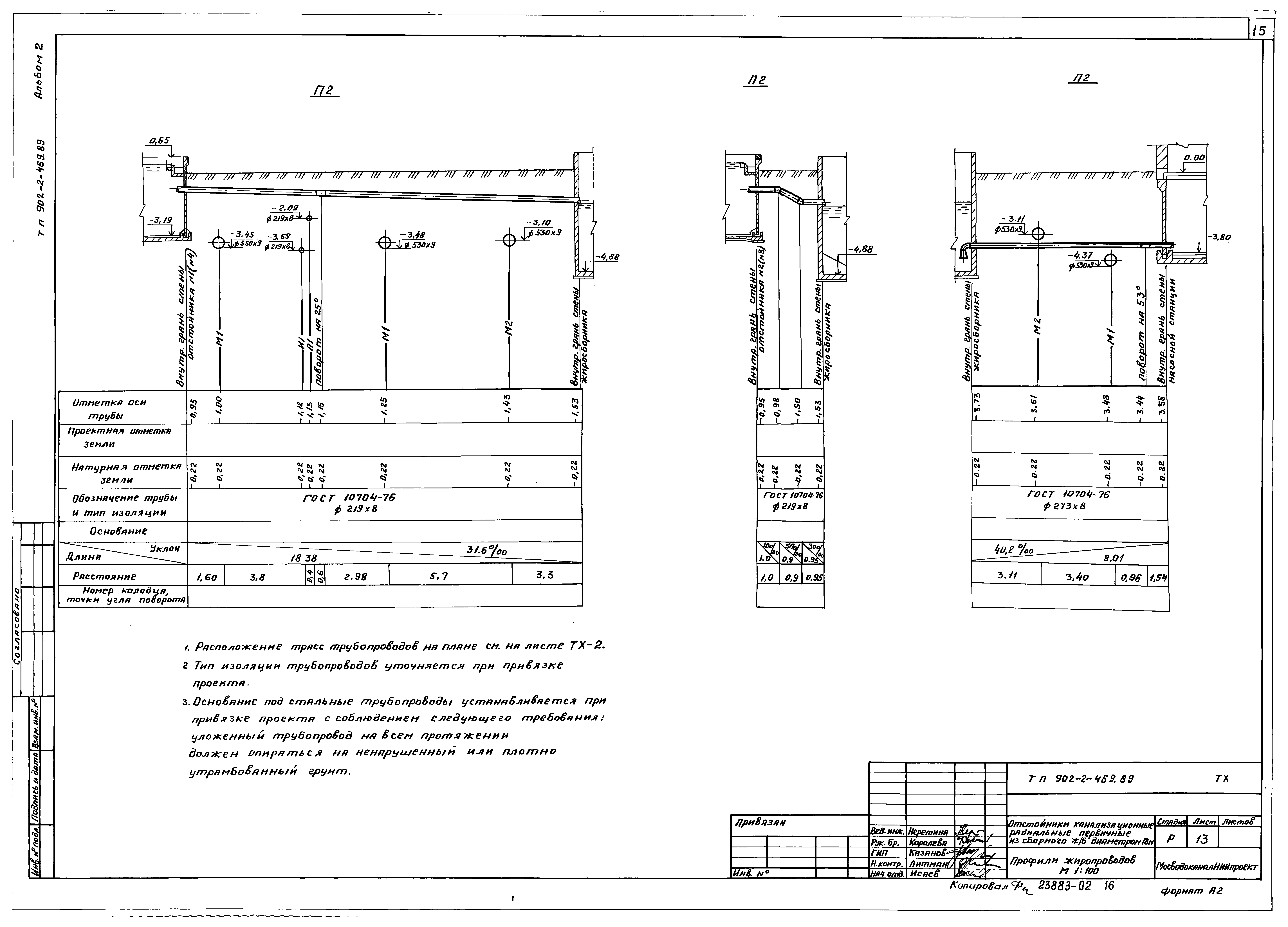
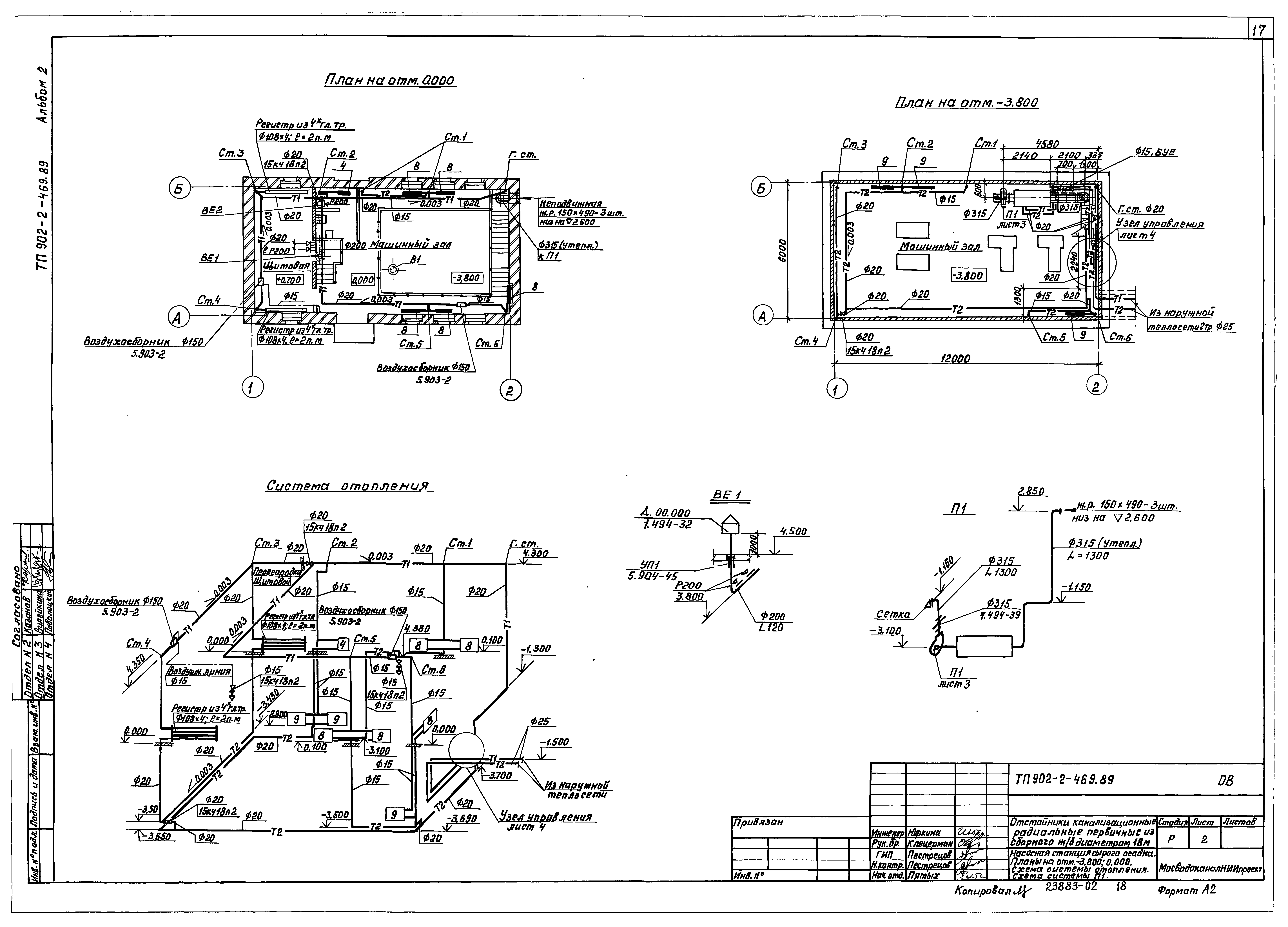
| Оглавление: | ТП 902-2-469.89 Содержание альбома ТП 902-2-469.89-ТХ Технологические решения ТП 902-2-469.89-ТХ-1 Общие данные ТП 902-2-469.89-ТХ-2 План группы отстойников М1:200 ТП 902-2-469.89-ТХ-3 Отстойник № 1. План, разрезы М1:100 ТП 902-2-469.89-ТХ-4 Насосная станция сырого осадка. Планы размещения оборудования ТП 902-2-469.89-ТХ-5 Насосная станция сырого осадка. План. Разрезы ТП 902-2-469.89-ТХ-6 Насосная станция сырого осадка. Технологическая схема ТП 902-2-469.89-ТХ-7 Распределительная чаша. Планы и разрезы М1:50 ТП 902-2-469.89-ТХ-8 Жиросборник. План и разрезы 1:50 ТП 902-2-469.89-ТХ-9 Профили подводящих трубопроводов М1:100 ТП 902-2-469.89-ТХ-10 Профили отводящих трубопроводов М1:100 ТП 902-2-469.89-ТХ-11 Профили всасывающих трубопроводов сырого осадка М1:100 ТП 902-2-469.89-ТХ-12 Профили трубопроводов промывных вод и опорожнения М1:100 ТП 902-2-469.89-ТХ-13 Профили жиропроводов М1:100 ТП 902-2-469.89-ОВ Отопление и вентиляция ТП 902-2-469.89-ОВ-1 Общие данные ТП 902-2-469.89-ОВ-2 Планы на отм. -3.800 и 0.00. Схема системы отопления. Схема системы П1 ТП 902-2-469.89-ОВ-3 Установка системы П1. План. Разрез. Спецификация ТП 902-2-469.89-ОВ-4 Узел управления. Спецификация. Схема систем теплоснабжения установки П1 ТП 902-2-469.89-ОВ-5 Переходы утепленные ТП 902-2-469.89-ОВ-6 Переходы неутепленные ТП 902-2-469.89-ВК Внутренний водопровод и канализация ТП 902-2-469.89-ВК-1 Общие данные ТП 902-2-469.89-ВК-2 Насосная станция сырого осадка. Планы и схемы систем |
| Разработан: | МосводоканалНИИпроект |
| Утверждён: | 24.04.1989 Мосгорисполком (Mosgorispolkom 842р) |






















