Скачать Типовой проект 902-2-469.89 Альбом 3. Отстойники. Конструкции железобетонные. Конструкции металлическиеДата актуализации: 01.01.2021
|
| Обозначение: | Типовой проект 902-2-469.89 |
| Обозначение англ: | 902-2-469.89 |
| Статус: | не определен законодательством |
| Название рус.: | Альбом 3. Отстойники. Конструкции железобетонные. Конструкции металлические |
| Дата добавления в базу: | 01.09.2013 |
| Дата актуализации: | 01.01.2021 |
| Дата введения: | 27.04.1989 |
| Дата окончания срока действия: | 30.06.2003 |
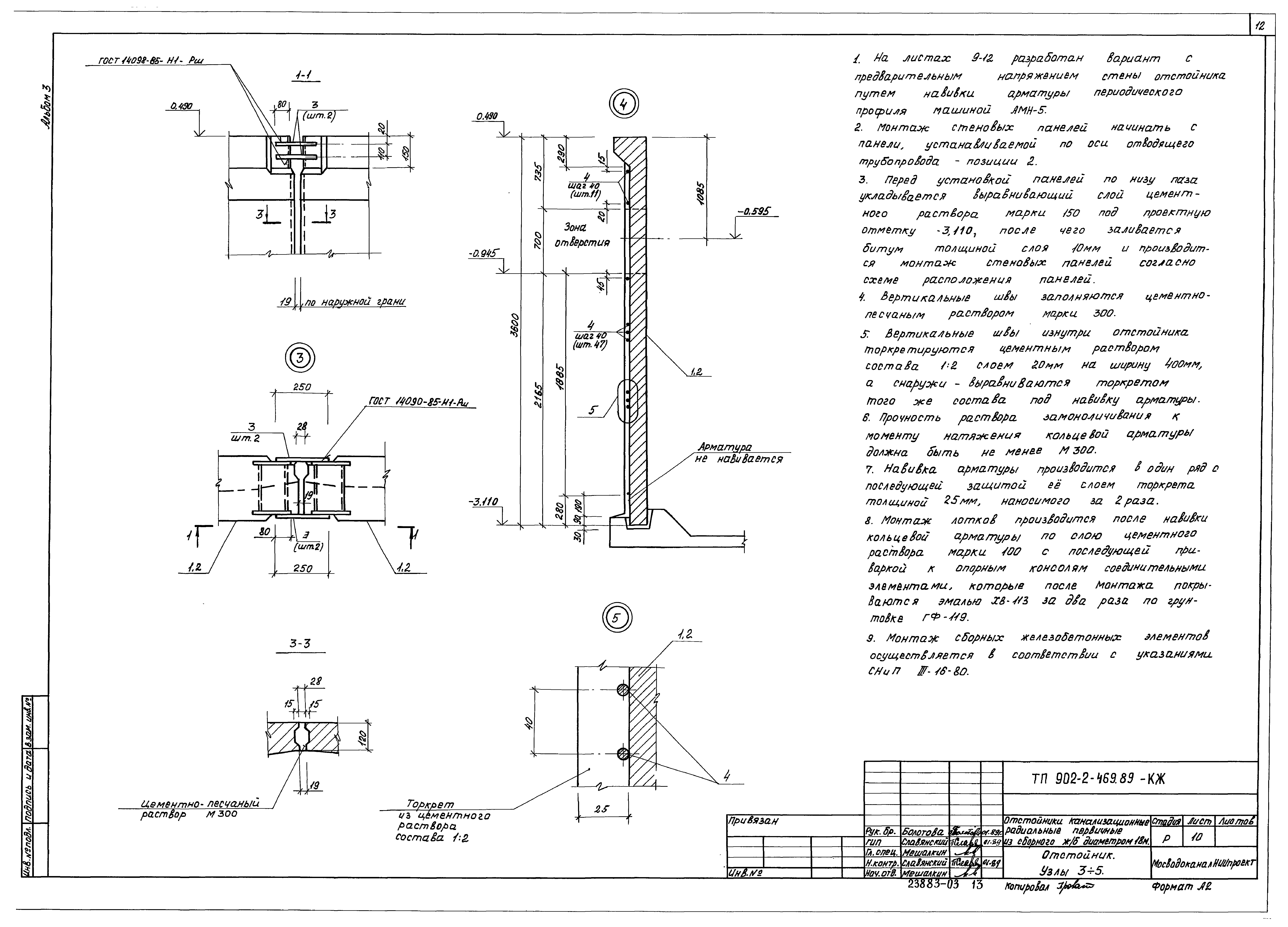
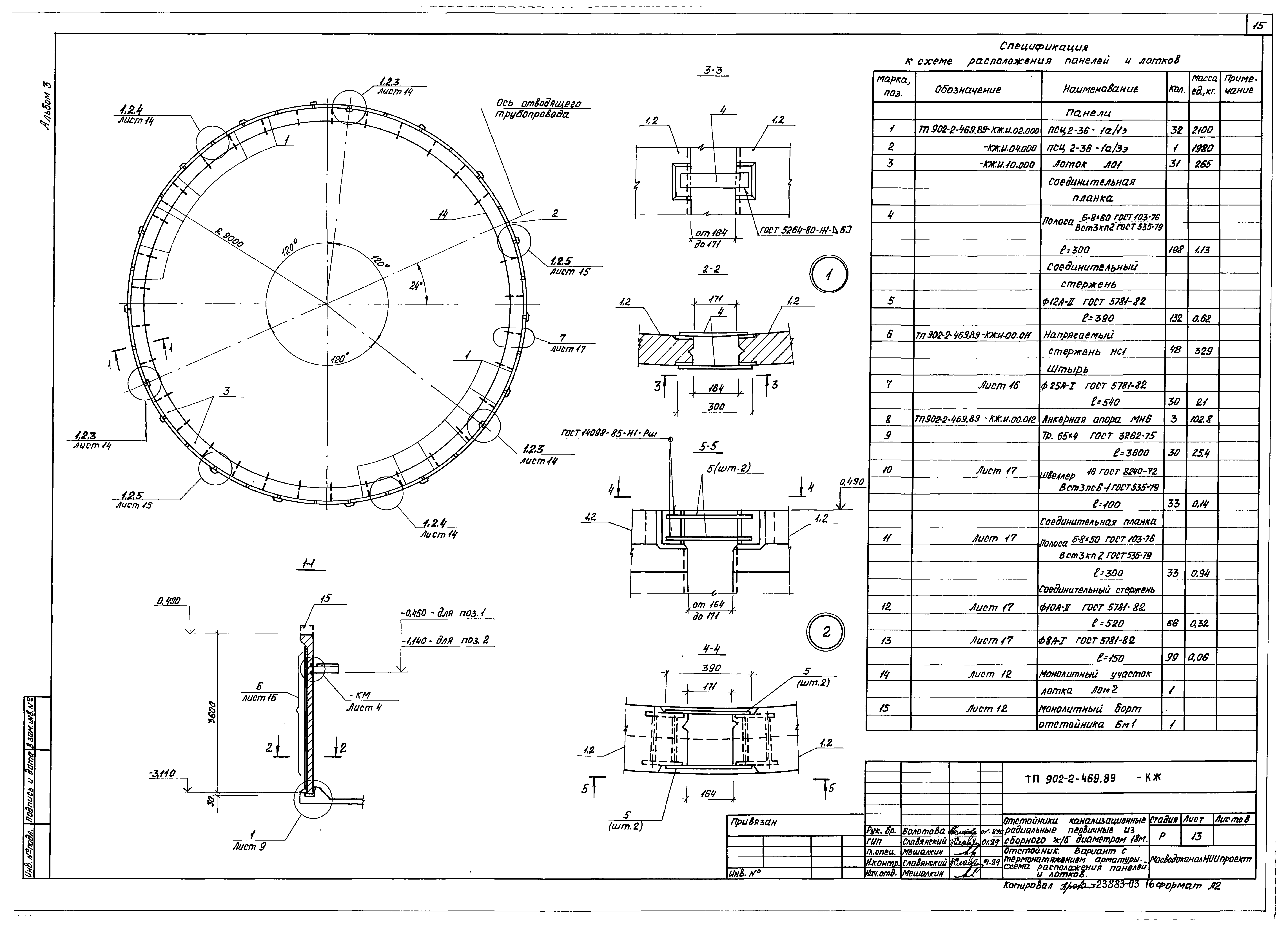
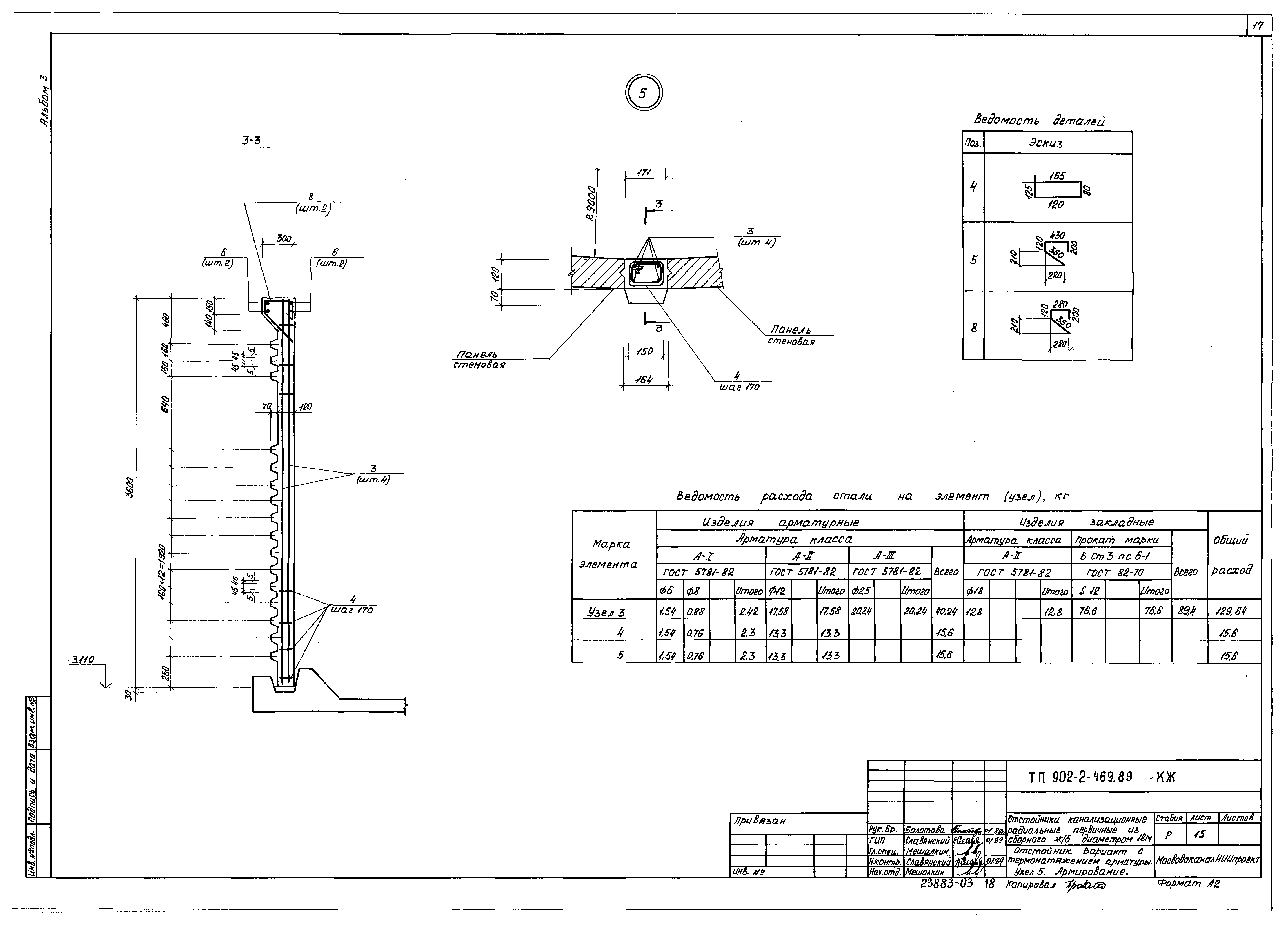
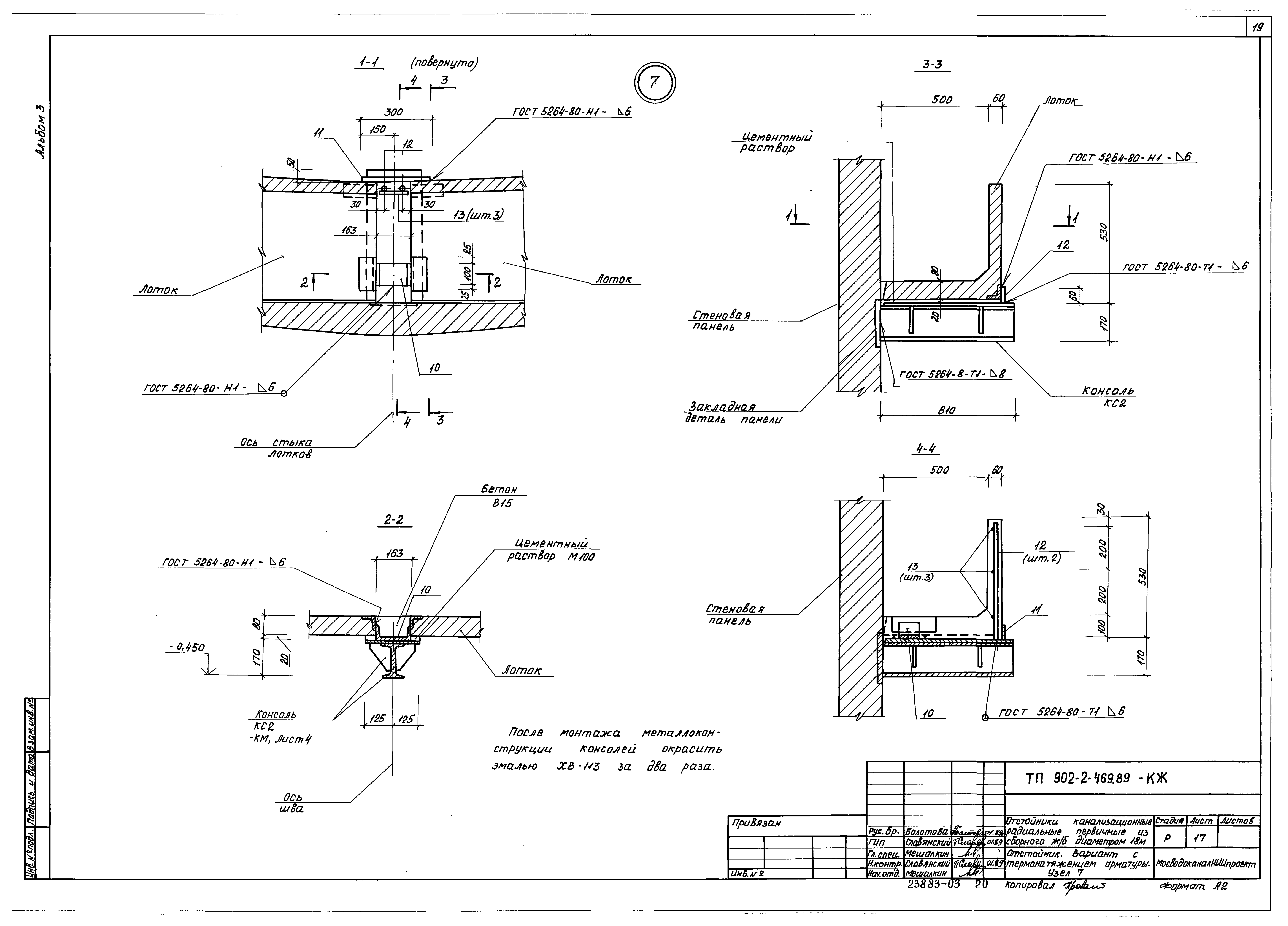
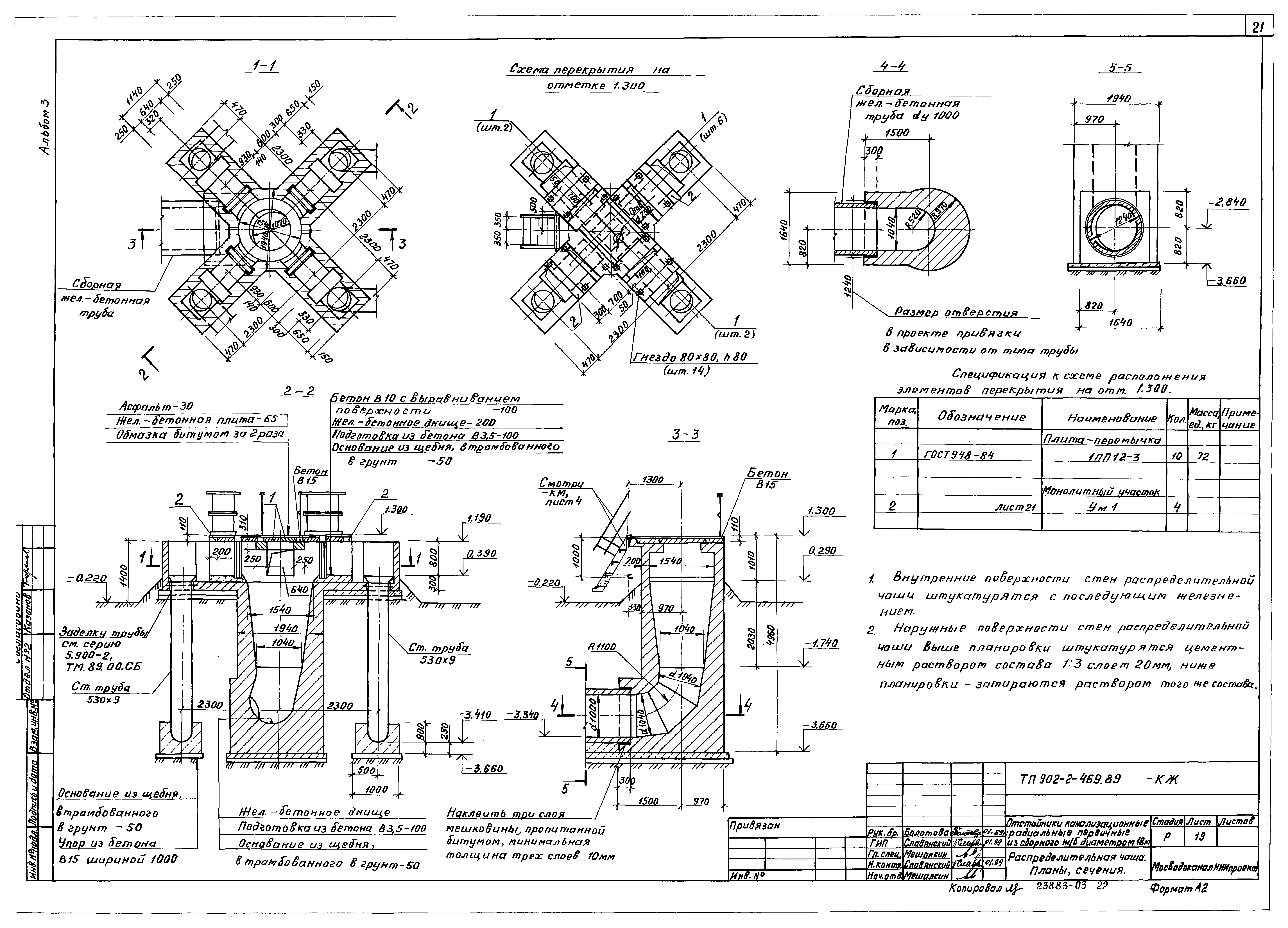
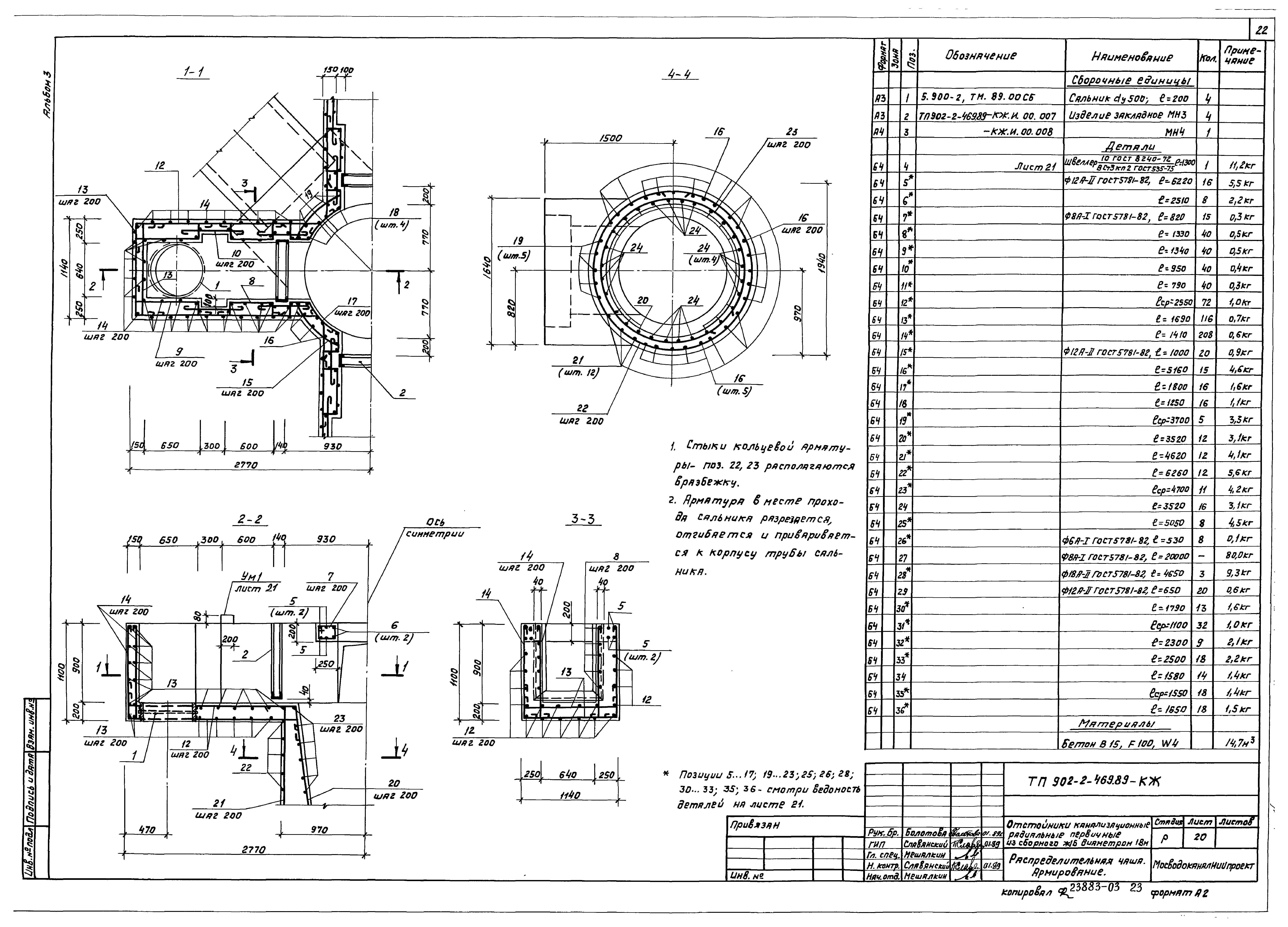
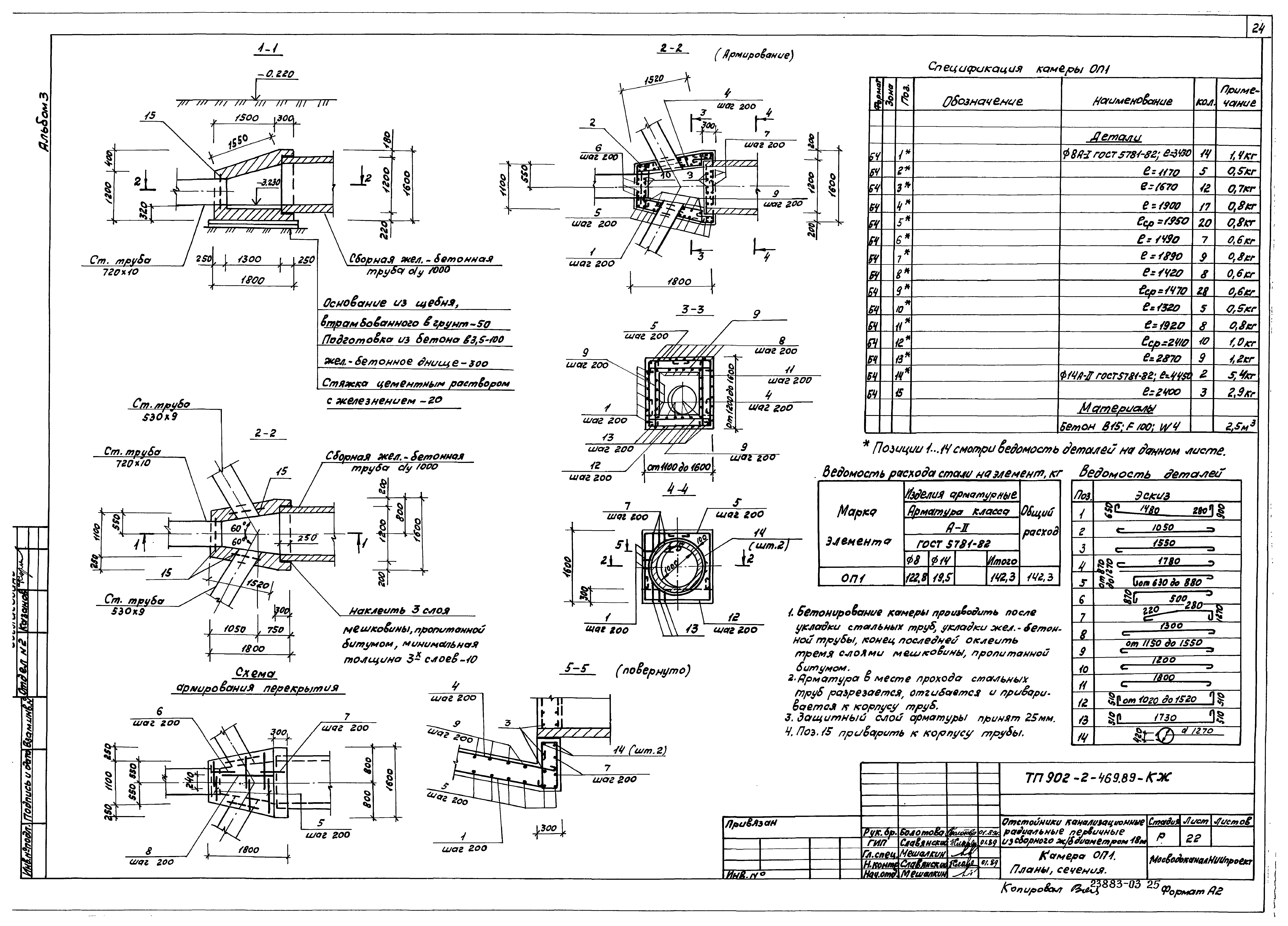
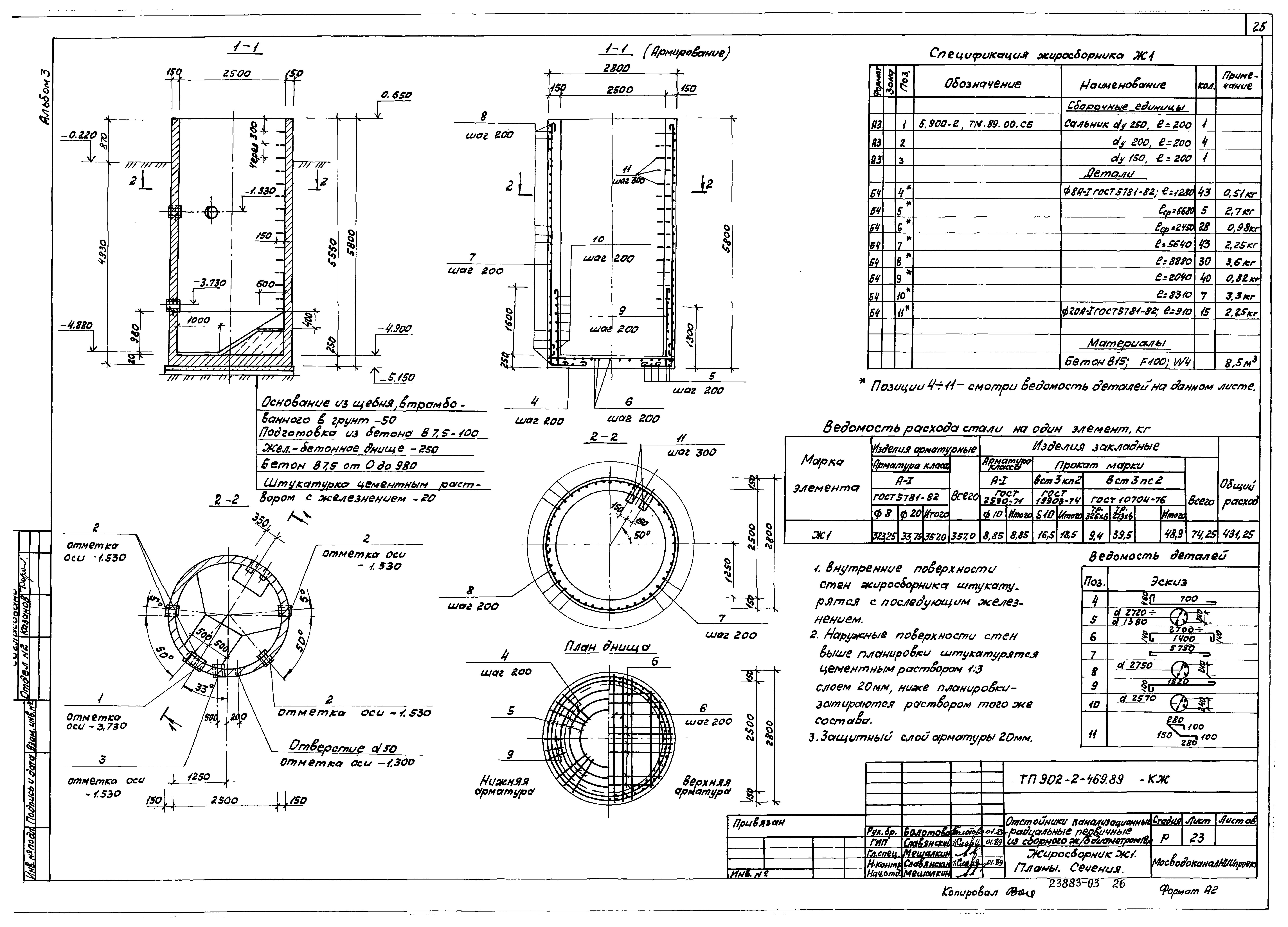
| Оглавление: | ТП 902-2-469.89 Титульный лист ТП 902-2-469.89 Содержание альбома ТП 902-2-469.89-КЖ Конструкции железобетонные ТП 902-2-469.89-КЖ-1 Общие данные ТП 902-2-469.89-КЖ-2 Схема группы отстойников ТП 902-2-469.89-КЖ-3 Отстойник. План. Сечения ТП 902-2-469.89-КЖ-4 Отстойник. Сечения 5-5÷10-10 ТП 902-2-469.89-КЖ-5 Отстойник. Сечения 11-11÷13-13. Узел 1 ТП 902-2-469.89-КЖ-6 Отстойник. Днище. Армирование ТП 902-2-469.89-КЖ-7 Отстойник. Днище. Армирование. Сечение 3-3÷7-7 ТП 902-2-469.89-КЖ-8 Отстойник. Армирование. Сечение 8-8÷11-11 ТП 902-2-469.89-КЖ-9 Отстойник. Схема расположения стеновых панелей ТП 902-2-469.89-КЖ-10 Отстойник. Узлы 3-5 ТП 902-2-469.89-КЖ-11 Отстойник. Схема расположения лотков ТП 902-2-469.89-КЖ-12 Отстойник. Лоток ЛОМ2, борт БМ1. Армирование ТП 902-2-469.89-КЖ-13 Отстойник. Вариант с термонатяжением арматуры. Схема расположения панелей и лотков ТП 902-2-469.89-КЖ-14 Отстойник. Вариант с термонатяжением арматуры. Узлы 3,4. Армирование ТП 902-2-469.89-КЖ-15 Отстойник. Вариант с термонатяжением арматуры. Узел 5. Армирование ТП 902-2-469.89-КЖ-16 Отстойник. Вариант с термонатяжением арматуры. Узел 6. Детали сечений арматуры ТП 902-2-469.89-КЖ-17 Отстойник. Вариант с термонатяжением арматуры. Узел 7 ТП 902-2-469.89-КЖ-18 Отстойник. Вариант с термонатяжением арматуры. Принципиальная схема питания. План оборудования при натяжения трех стержней ТП 902-2-469.89-КЖ-19 Распределительная чаша. Планы. Сечение ТП 902-2-469.89-КЖ-20 Распределительная чаша. Армирование ТП 902-2-469.89-КЖ-21 Распределительная чаша. Армирование. Монолитный участок УМ1 ТП 902-2-469.89-КЖ-22 Камера ОП1. Планы. Сечения ТП 902-2-469.89-КЖ-23 Жиросборник Ж1. Планы. Сечения ТП 902-2-469.89-КМ Конструкции металлические ТП 902-2-469.89-КМ-1 Общие данные (начало) ТП 902-2-469.89-КМ-2 Общие данные (продолжение) ТП 902-2-469.89-КМ-3 Общие данные (окончание) ТП 902-2-469.89-КМ-4 Отстойник. Распределительная чаша. Схема расположения лестниц, ограждений консолей |
| Разработан: | МосводоканалНИИпроект |
| Утверждён: | 24.04.1989 Мосгорисполком (Mosgorispolkom 842р) |





























