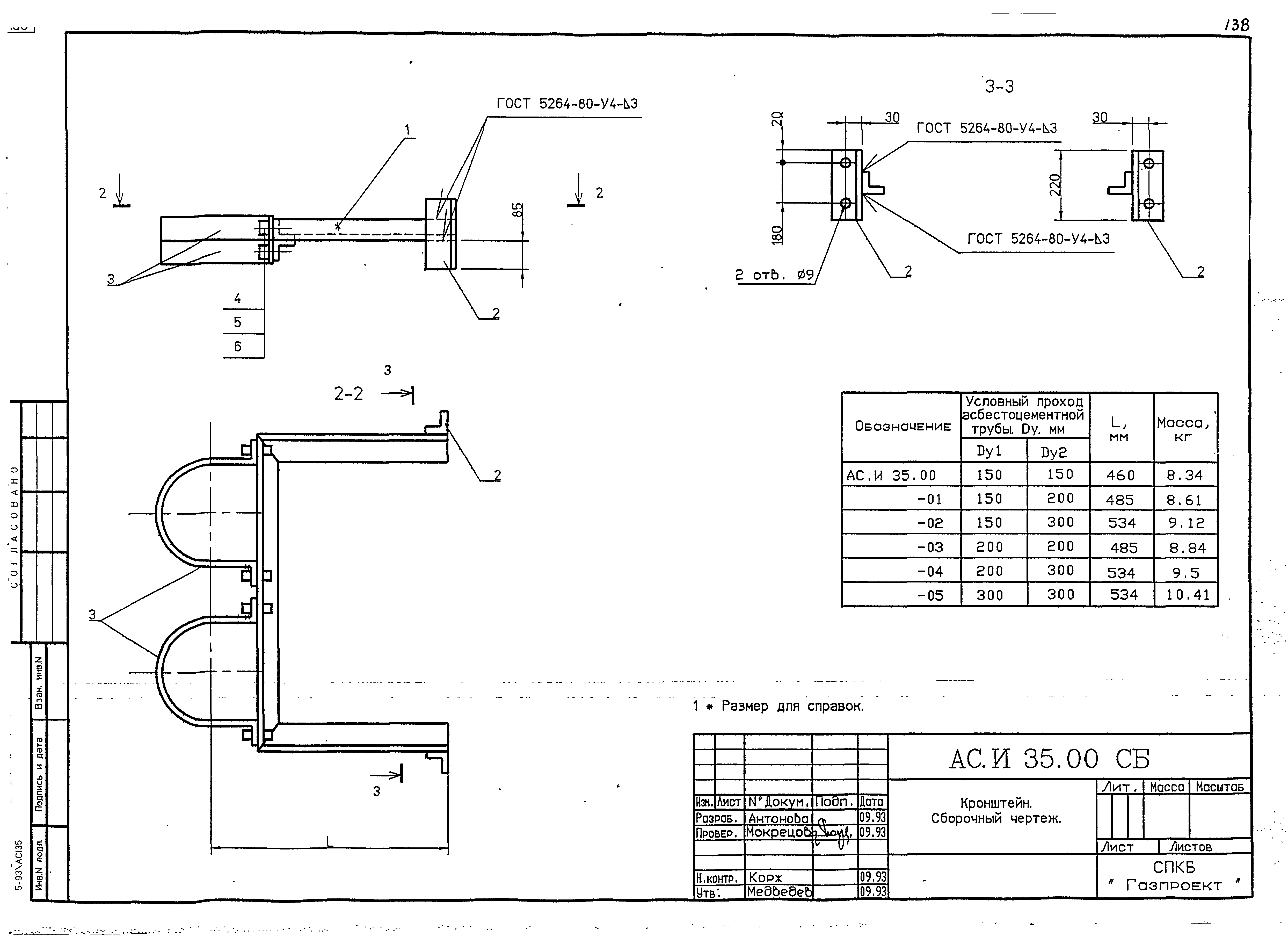
Скачать Серия 5-93 Дымовые и вентиляционные каналы из асбестоцементных труб газифицируемых помещений. Рабочие чертежиДата актуализации: 01.01.2021 Серия 5-93
Дымовые и вентиляционные каналы из асбестоцементных труб газифицируемых помещений. Рабочие чертежи| Обозначение: | Серия 5-93 | | Обозначение англ: | Series 5-93 | | Статус: | не действует | | Название рус.: | Дымовые и вентиляционные каналы из асбестоцементных труб газифицируемых помещений. Рабочие чертежи | | Дата добавления в базу: | 01.09.2013 | | Дата актуализации: | 01.01.2021 | | Разработан: | АО Росгазификация
| | Утверждён: | 14.04.1997 АО Росгазификация (Rosgazifikatsiya AO 16-П)
|
                                                                                                                                                  
|