Скачать Типовой проект 901-3-276.89 Альбом 2. Технология производства. Эскизные чертежи общих видов. Внутренний водопровод и канализация. Отопление и вентиляция

Дата актуализации: 01.01.2021

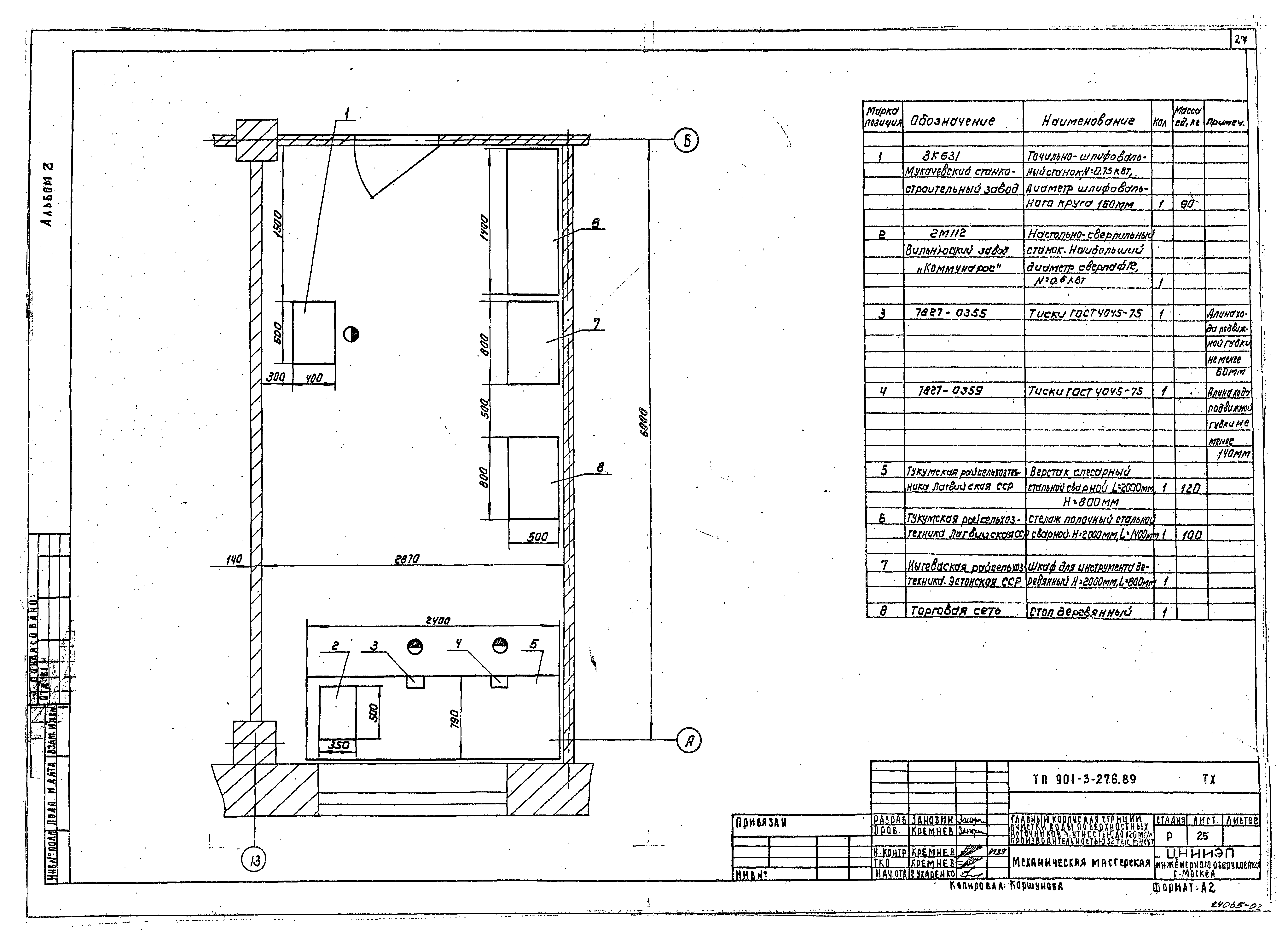
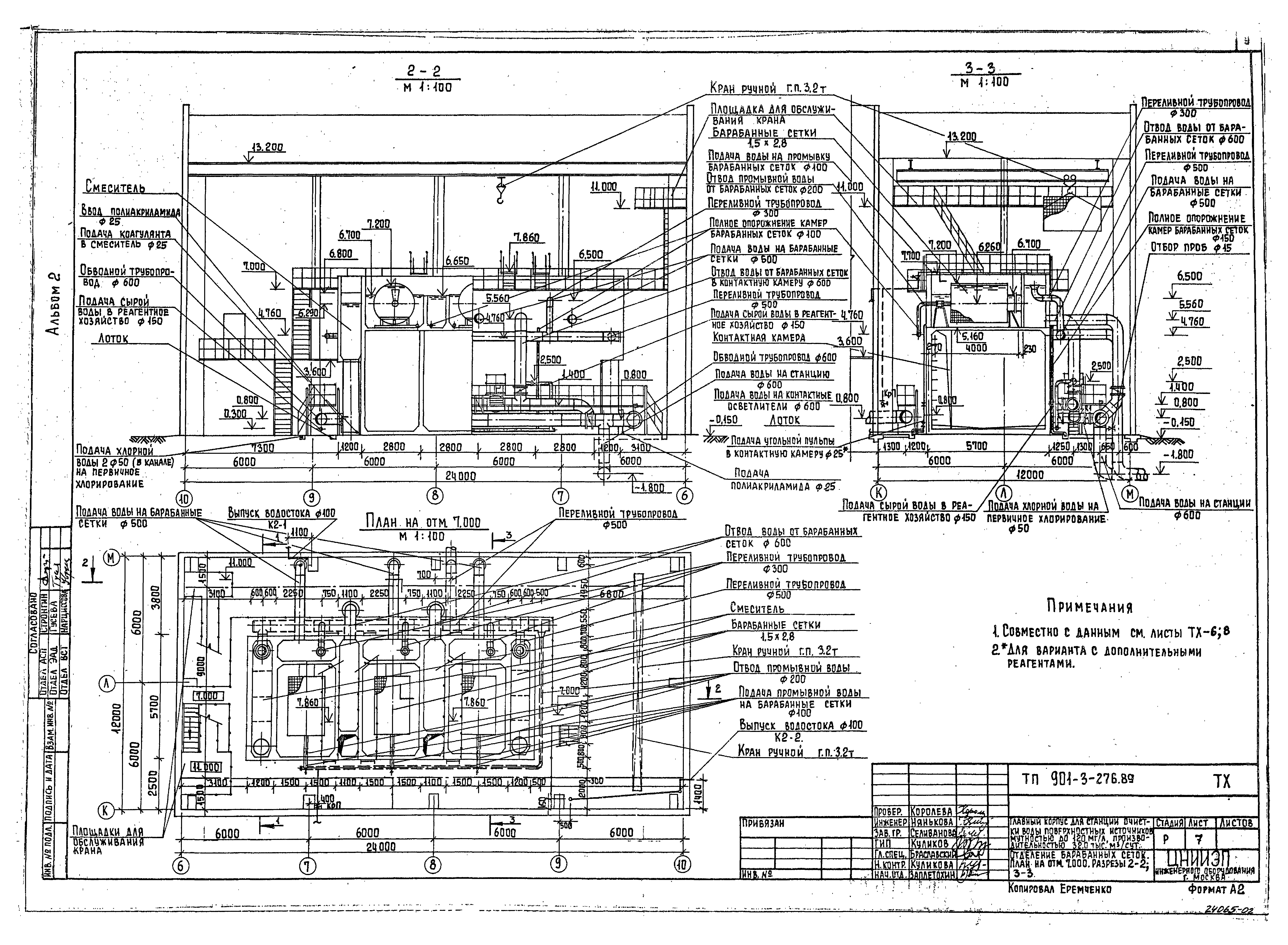
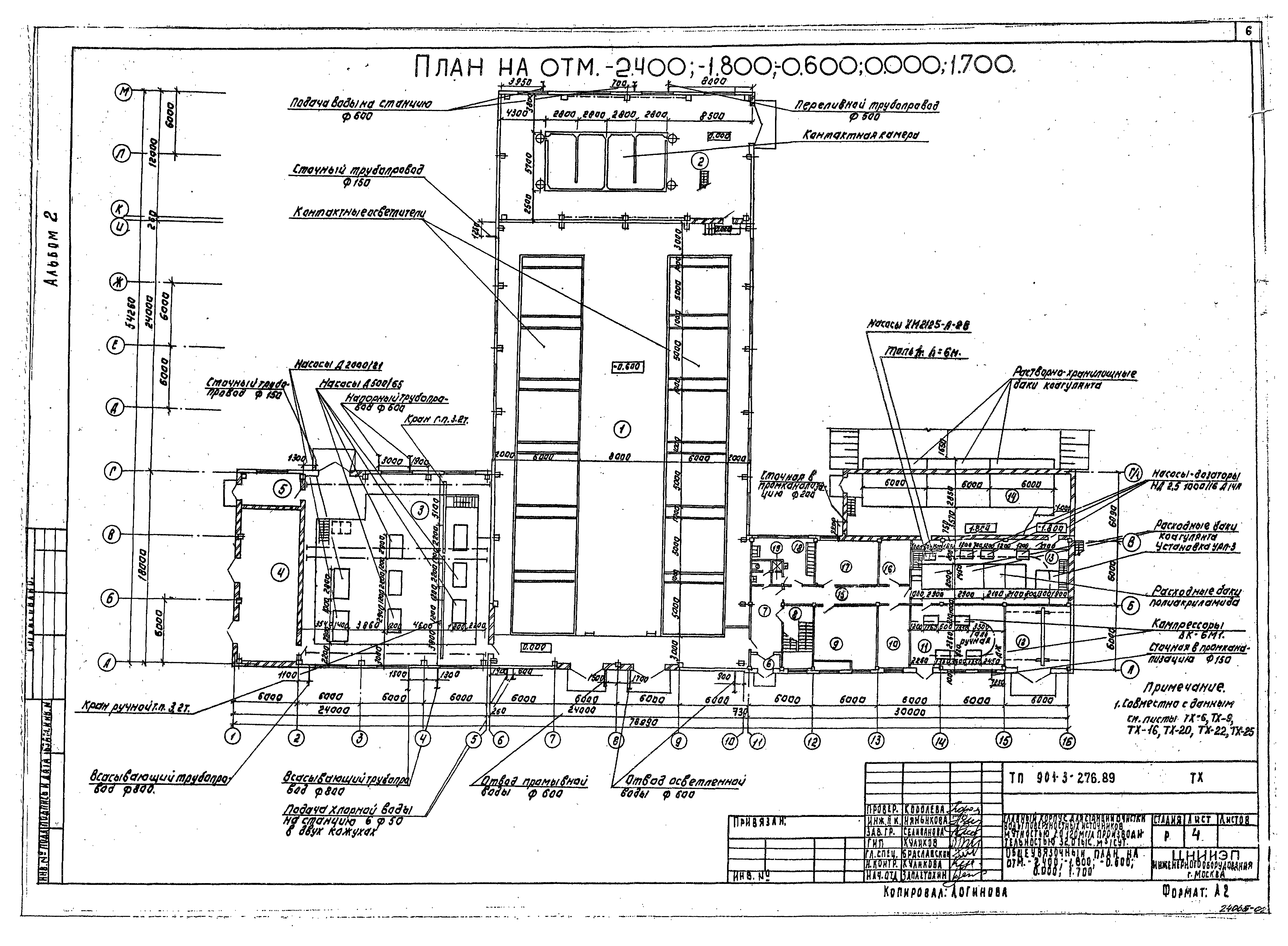
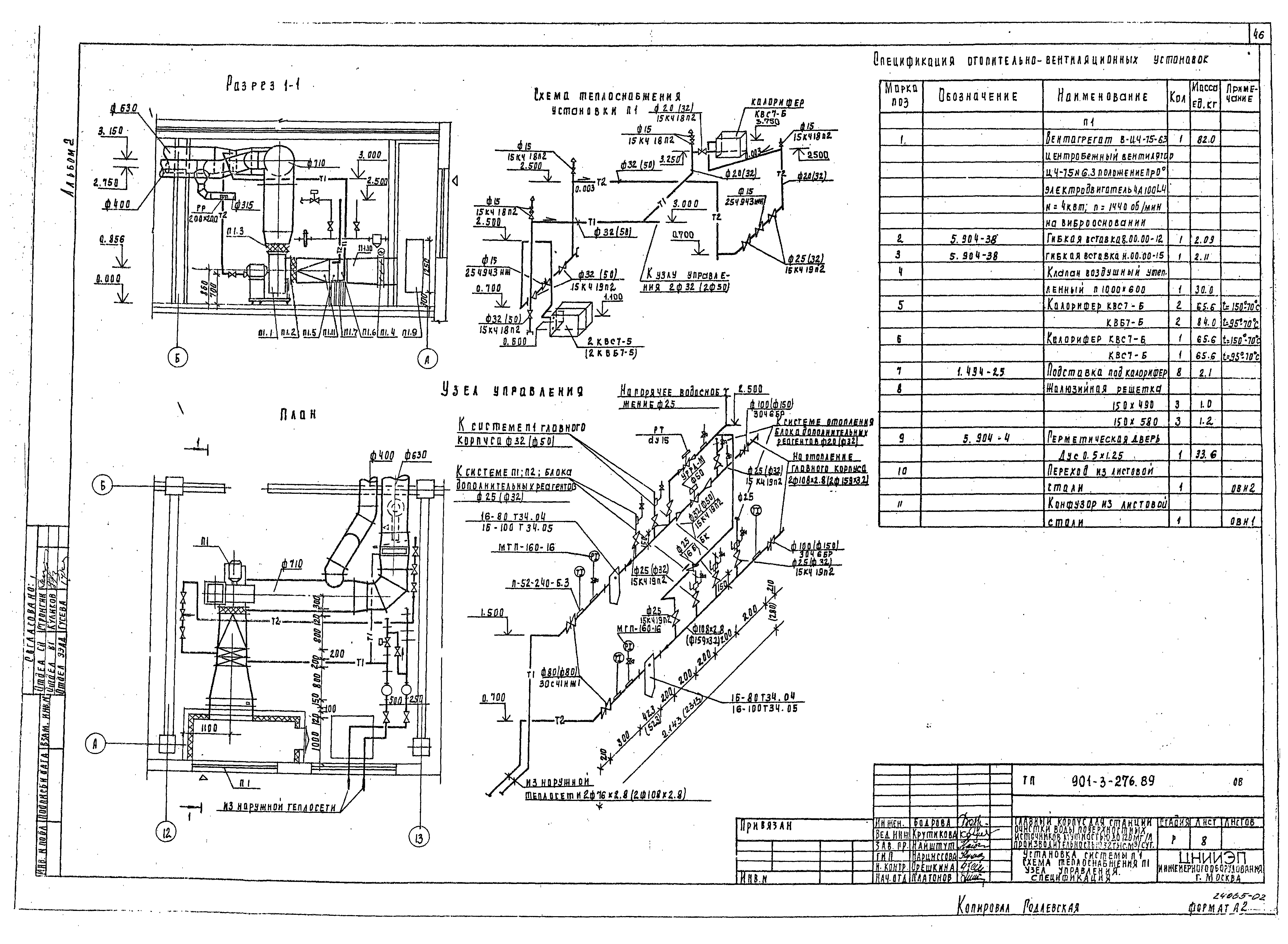
Типовой проект 901-3-276.89

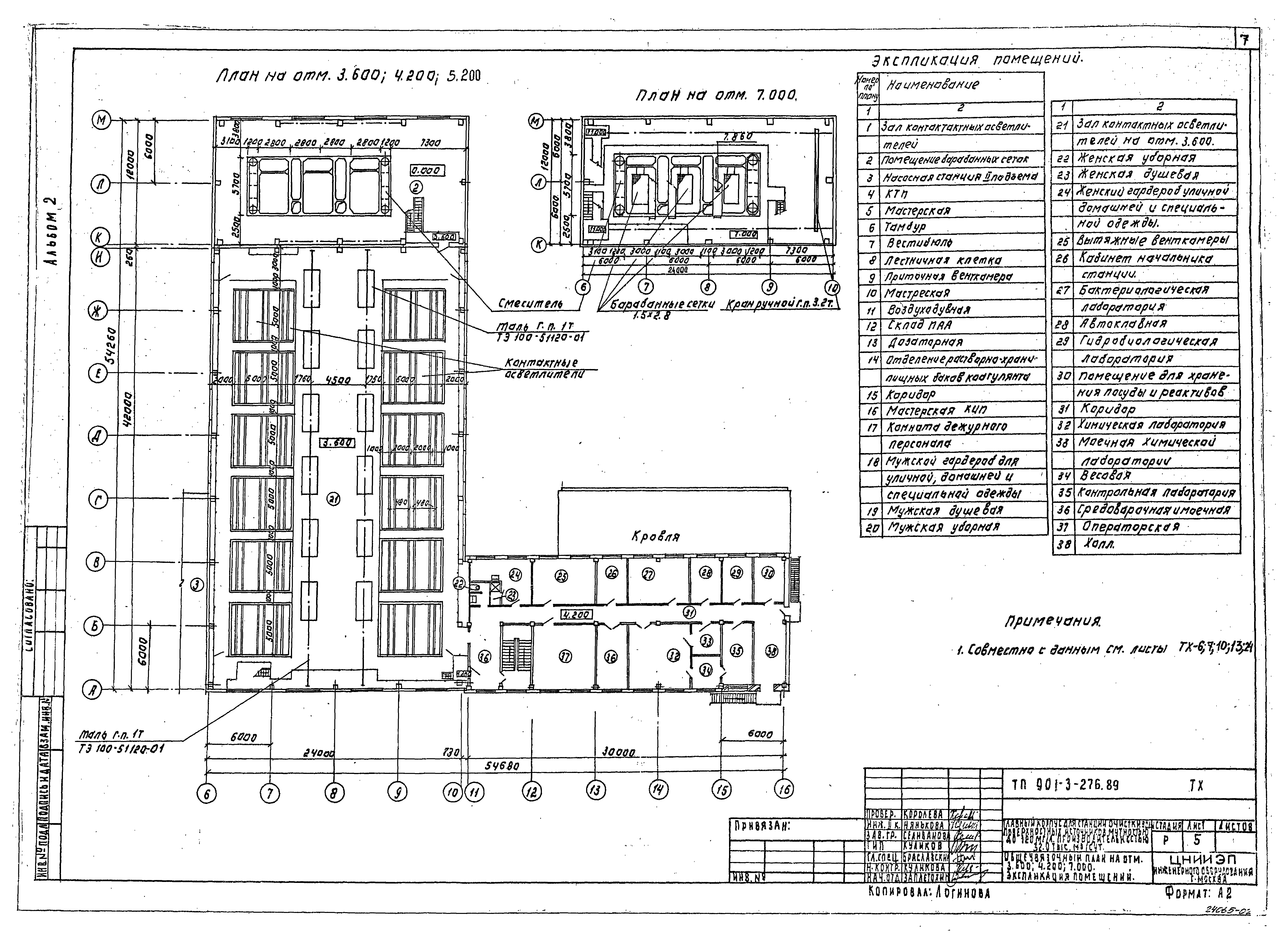
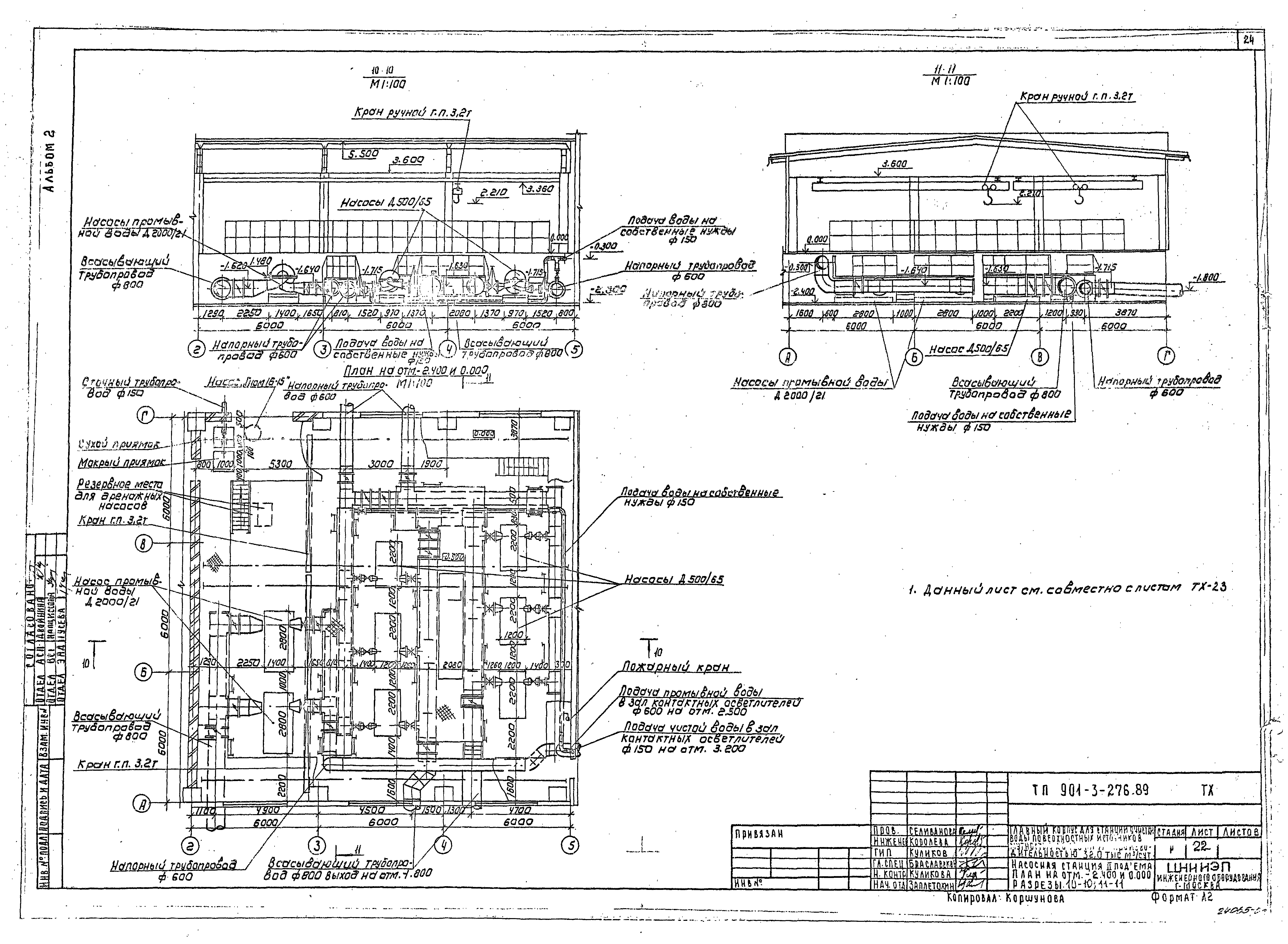
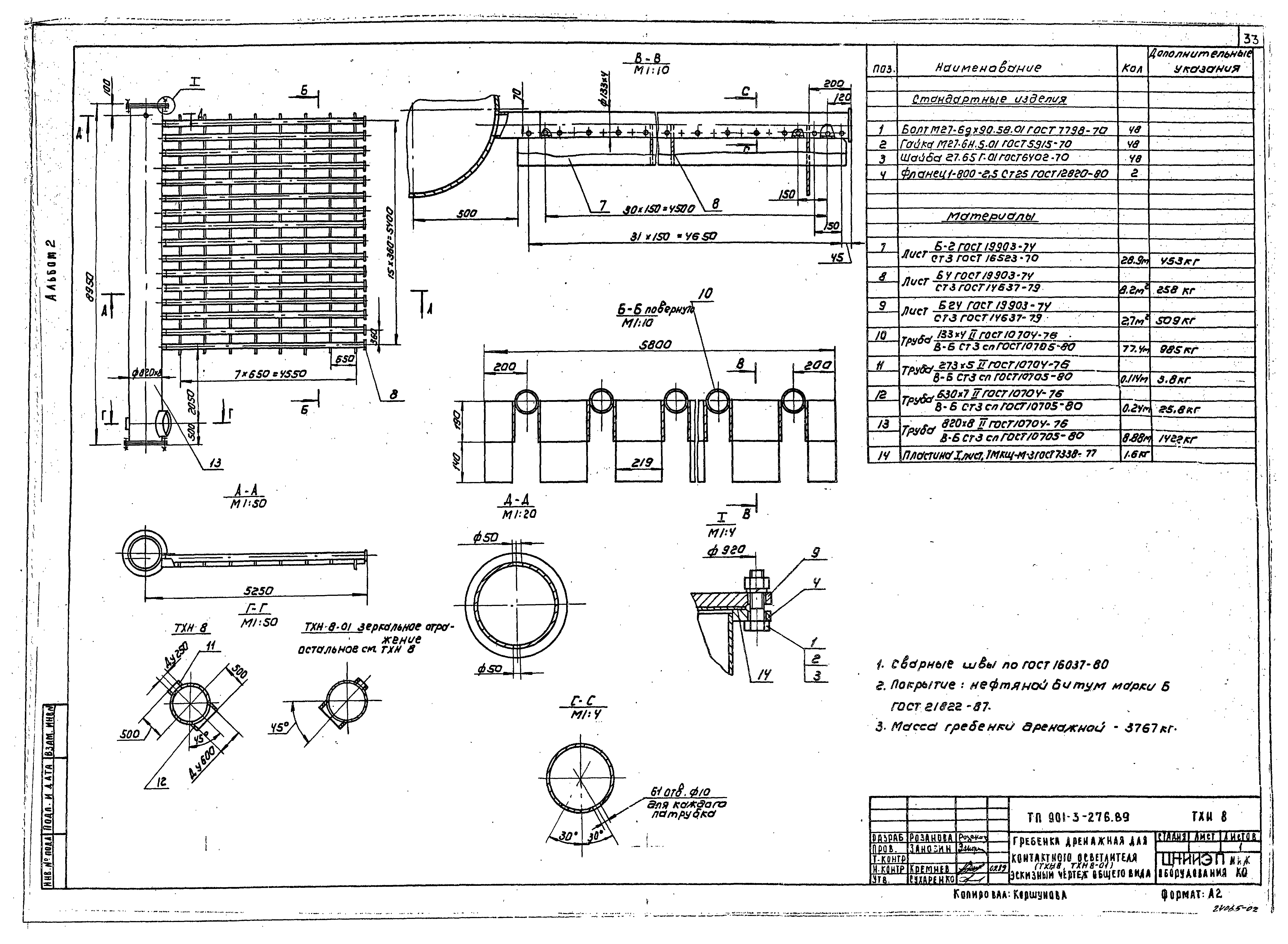
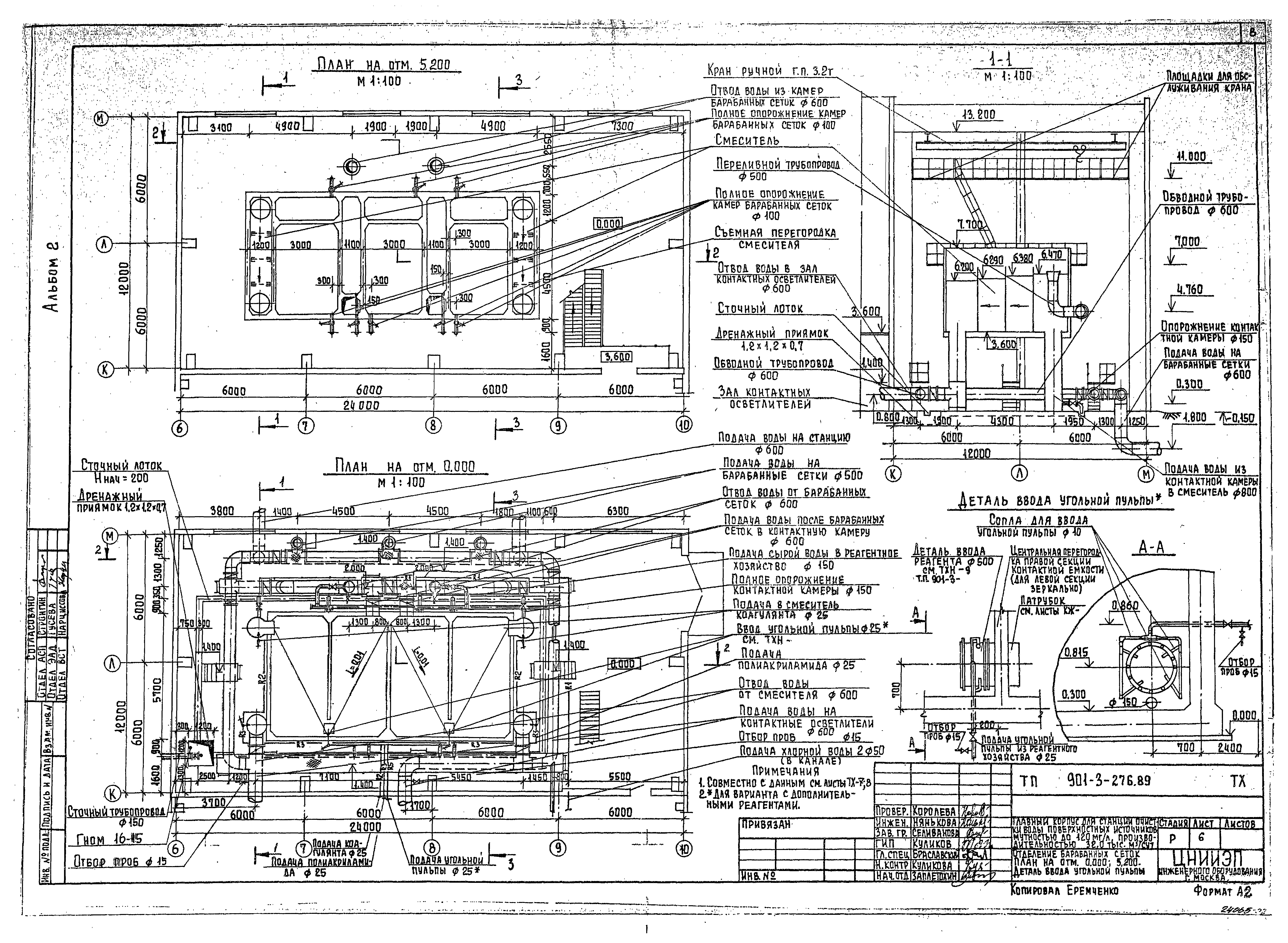
Альбом 2. Технология производства. Эскизные чертежи общих видов. Внутренний водопровод и канализация. Отопление и вентиляция

Обозначение: Типовой проект 901-3-276.89
Обозначение англ: 901-3-276.89
Статус:не определен законодательством
Название рус.:Альбом 2. Технология производства. Эскизные чертежи общих видов. Внутренний водопровод и канализация. Отопление и вентиляция
Дата добавления в базу:01.09.2013
Дата актуализации:01.01.2021
Дата введения:19.09.1989
Дата окончания срока действия:30.06.2003
Разработан: ЦНИИЭП инженерного оборудования Госгражданстроя
Утверждён:29.07.1986 Госгражданстрой (Gosgrazhdanstroy 242)
Издан: Госстрой СССР (1990 г. )
Типовой проект 901-3-276.89Типовой проект 901-3-276.89Типовой проект 901-3-276.89Типовой проект 901-3-276.89Типовой проект 901-3-276.89Типовой проект 901-3-276.89Типовой проект 901-3-276.89Типовой проект 901-3-276.89Типовой проект 901-3-276.89Типовой проект 901-3-276.89Типовой проект 901-3-276.89Типовой проект 901-3-276.89Типовой проект 901-3-276.89Типовой проект 901-3-276.89Типовой проект 901-3-276.89Типовой проект 901-3-276.89Типовой проект 901-3-276.89Типовой проект 901-3-276.89Типовой проект 901-3-276.89Типовой проект 901-3-276.89Типовой проект 901-3-276.89Типовой проект 901-3-276.89Типовой проект 901-3-276.89Типовой проект 901-3-276.89Типовой проект 901-3-276.89Типовой проект 901-3-276.89Типовой проект 901-3-276.89Типовой проект 901-3-276.89Типовой проект 901-3-276.89Типовой проект 901-3-276.89Типовой проект 901-3-276.89Типовой проект 901-3-276.89Типовой проект 901-3-276.89Типовой проект 901-3-276.89Типовой проект 901-3-276.89Типовой проект 901-3-276.89Типовой проект 901-3-276.89Типовой проект 901-3-276.89Типовой проект 901-3-276.89Типовой проект 901-3-276.89Типовой проект 901-3-276.89Типовой проект 901-3-276.89Типовой проект 901-3-276.89Типовой проект 901-3-276.89Типовой проект 901-3-276.89Типовой проект 901-3-276.89Типовой проект 901-3-276.89Типовой проект 901-3-276.89