Скачать Типовой проект 902-2-483.91 Альбом 3. Насосная станция сырого осадка. Технологические решения. Общие виды нетиповых технологических конструкций. Отопление и вентиляция. Внутренний водопровод и канализация. Архитектурные решения. Конструкции железобетонные. Конструкции металлические. Строительные изделия (из ТП 902-2-482.91)Дата актуализации: 01.01.2021
|
| Обозначение: | Типовой проект 902-2-483.91 |
| Обозначение англ: | 902-2-483.91 |
| Статус: | не определен законодательством |
| Название рус.: | Альбом 3. Насосная станция сырого осадка. Технологические решения. Общие виды нетиповых технологических конструкций. Отопление и вентиляция. Внутренний водопровод и канализация. Архитектурные решения. Конструкции железобетонные. Конструкции металлические. Строительные изделия (из ТП 902-2-482.91) |
| Дата добавления в базу: | 01.09.2013 |
| Дата актуализации: | 01.01.2021 |
| Дата введения: | 08.10.1991 |
| Дата окончания срока действия: | 30.06.2003 |
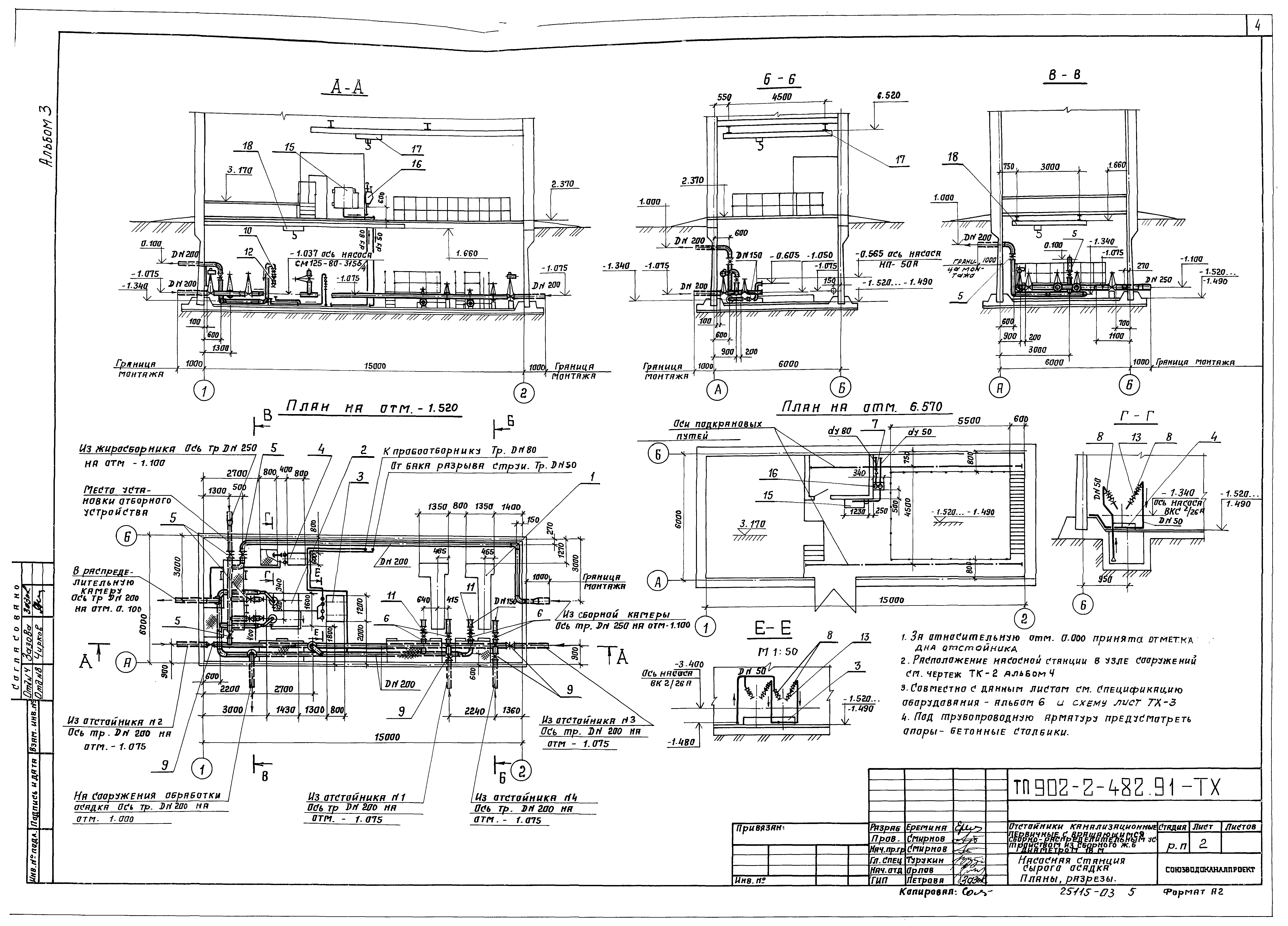
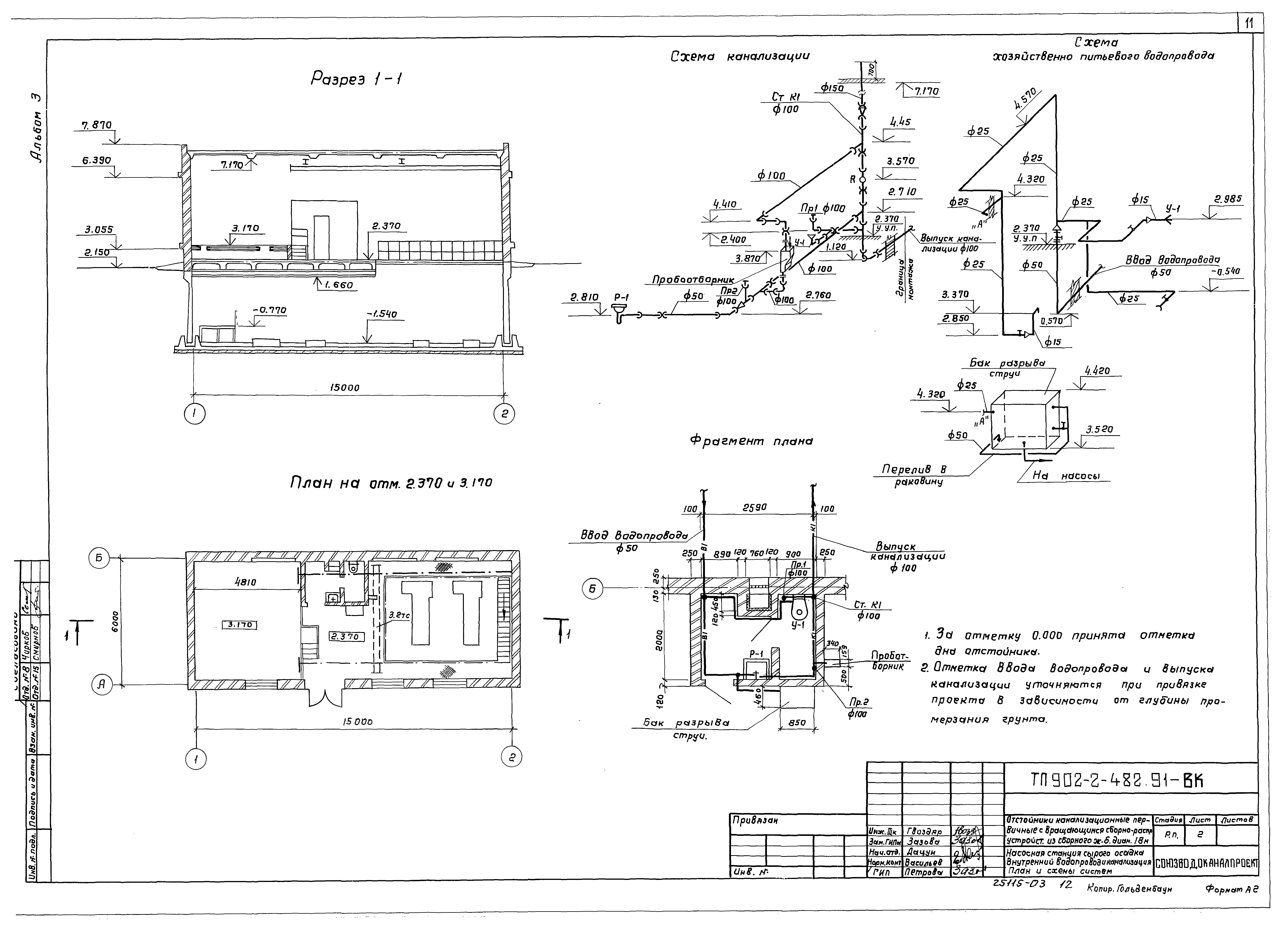
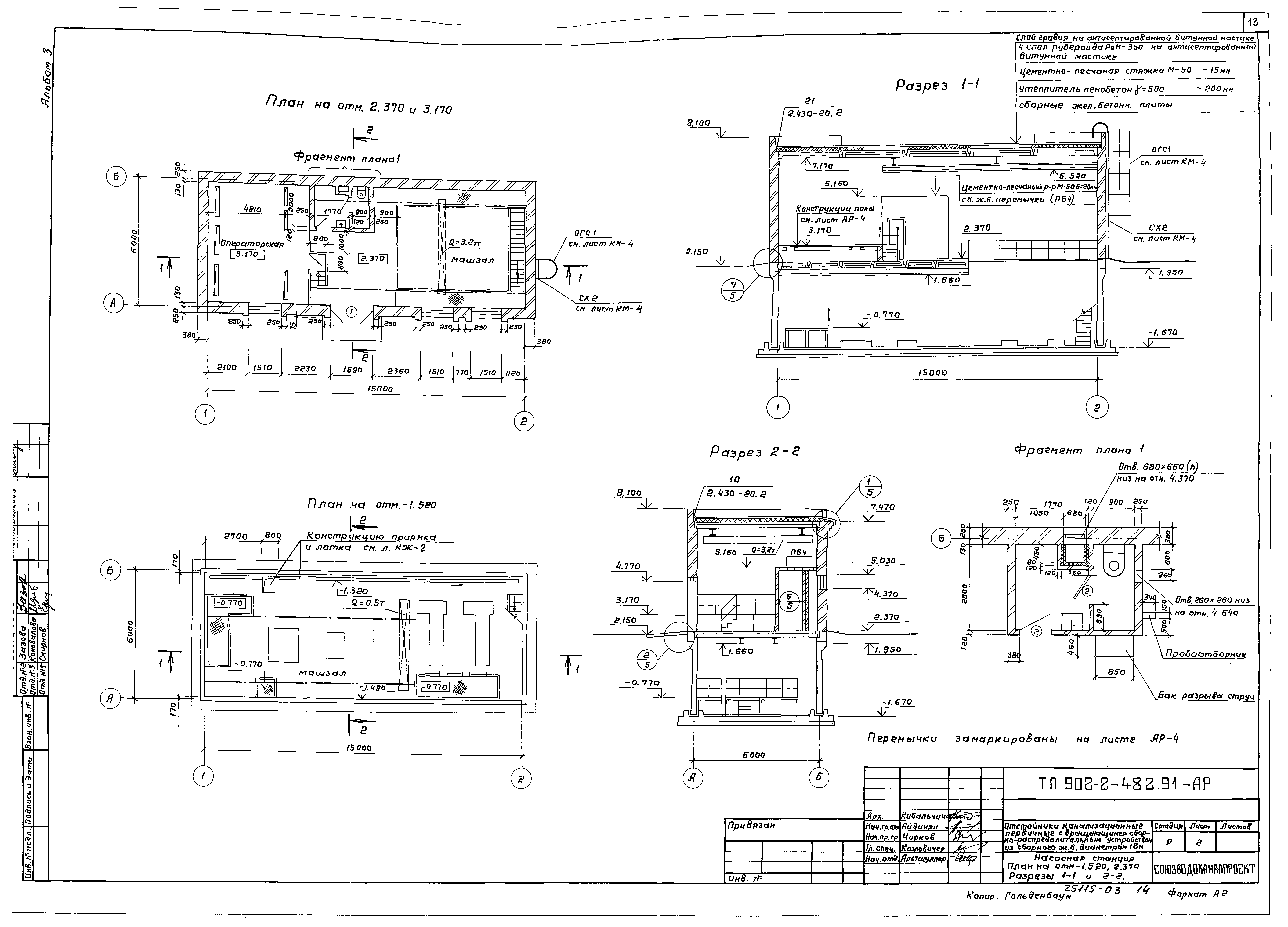
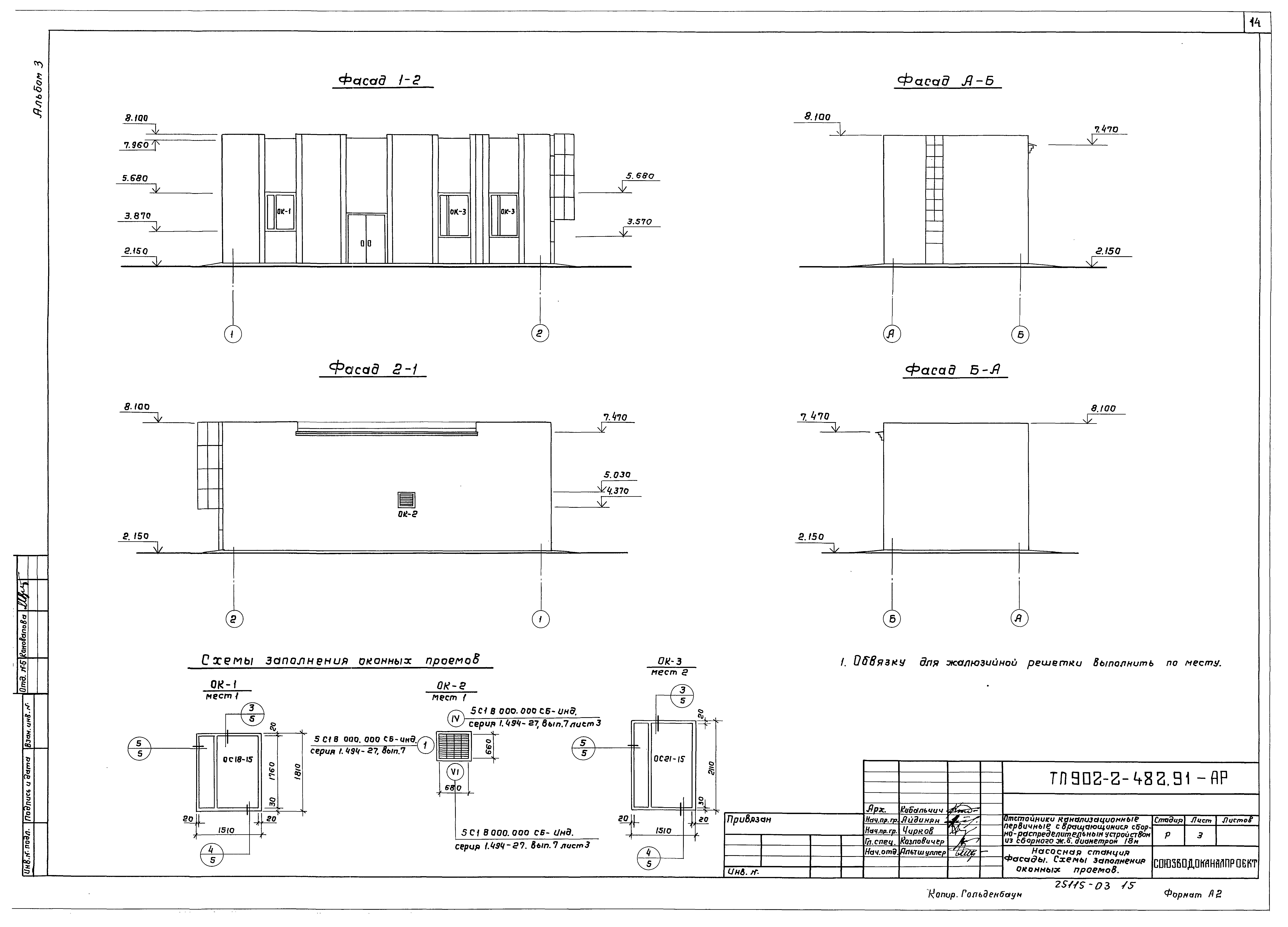
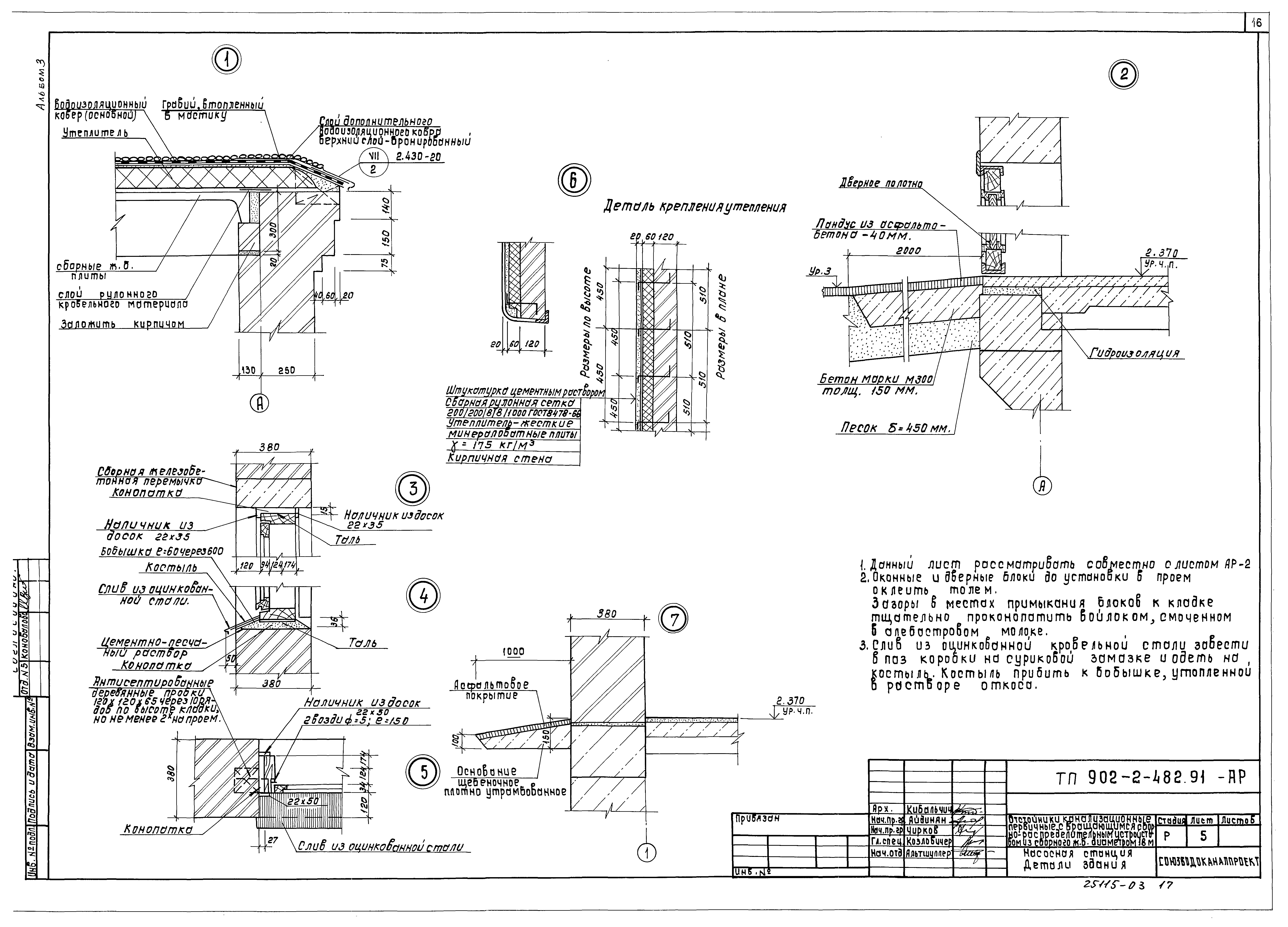
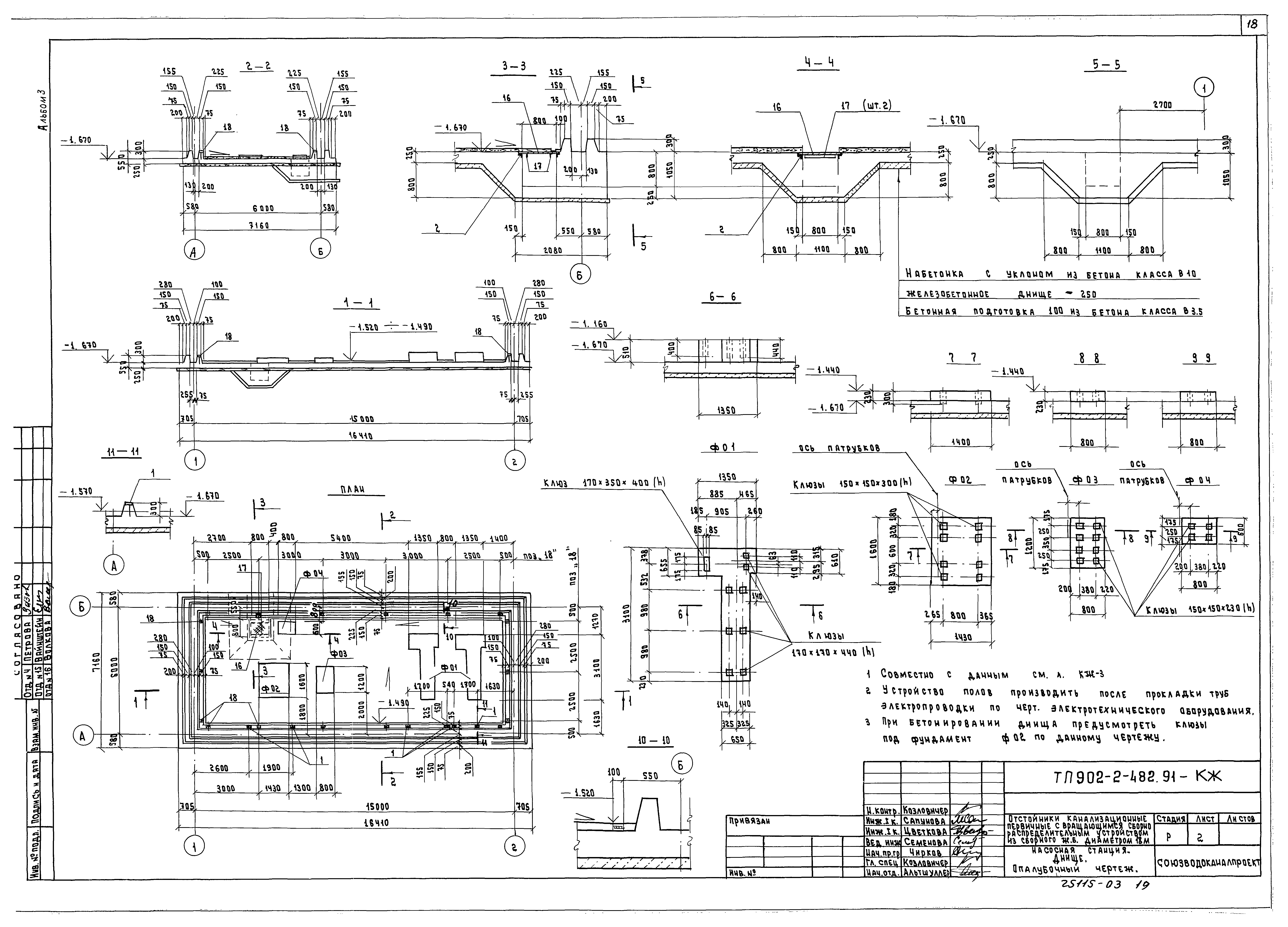
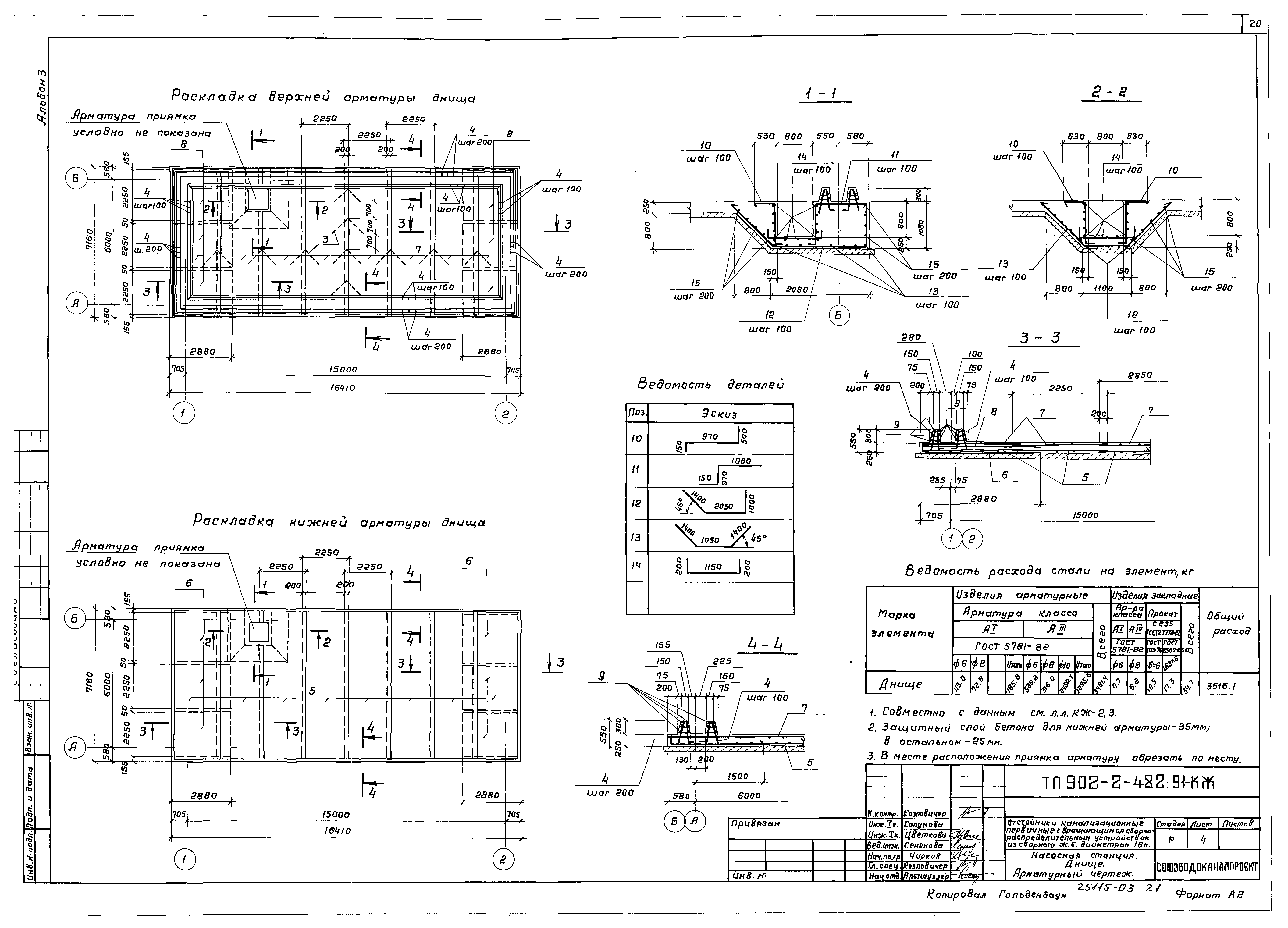
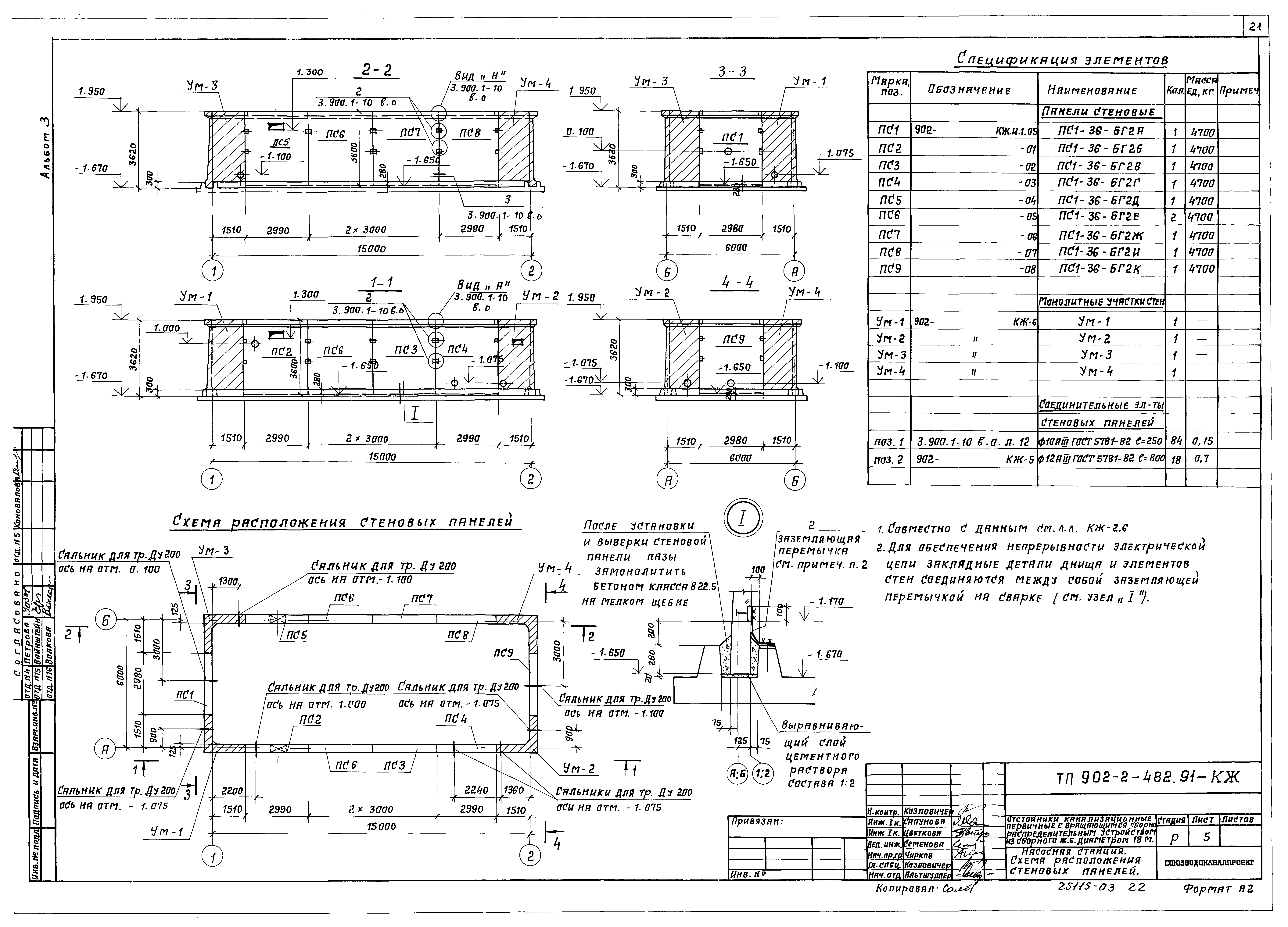
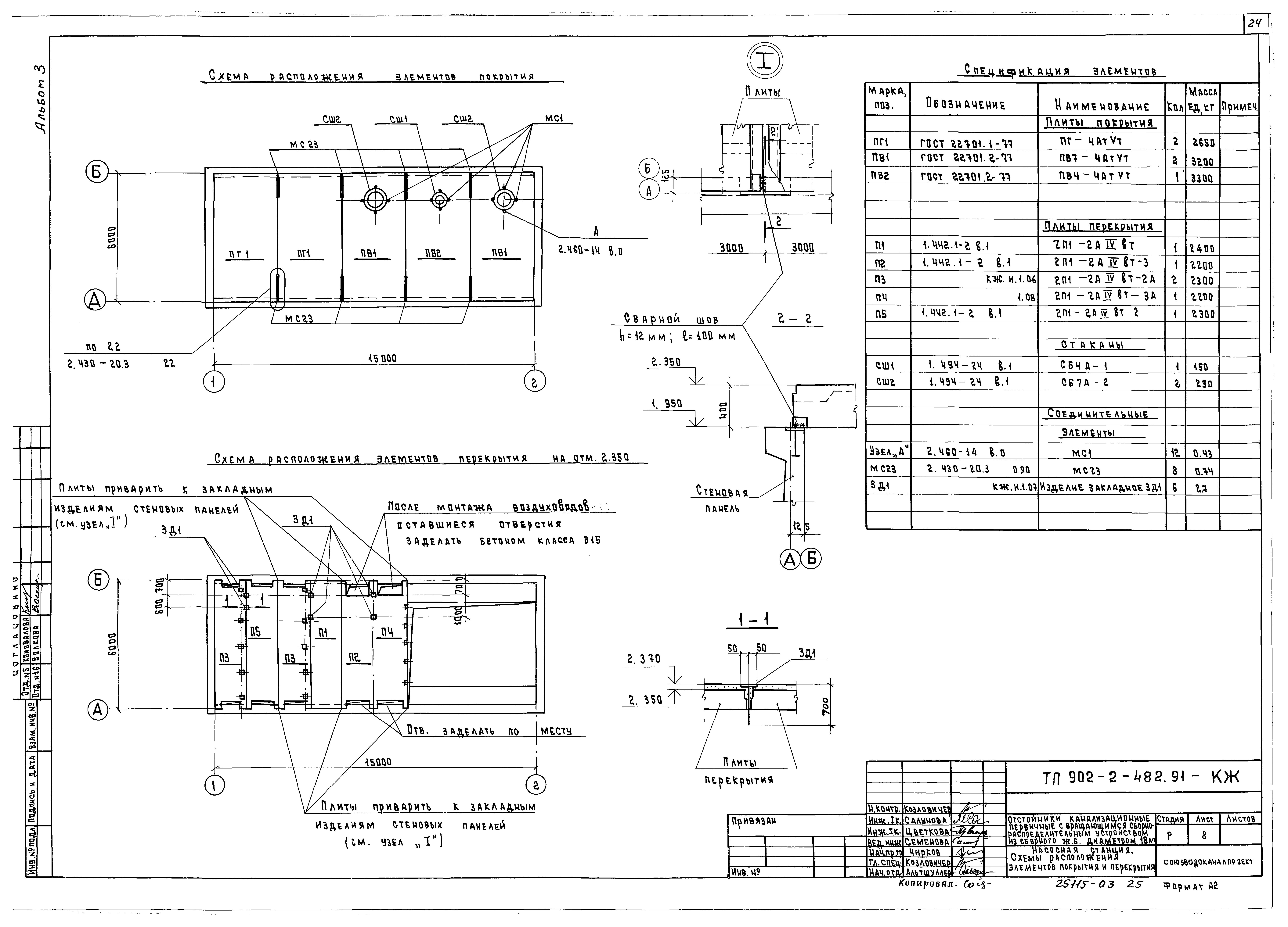
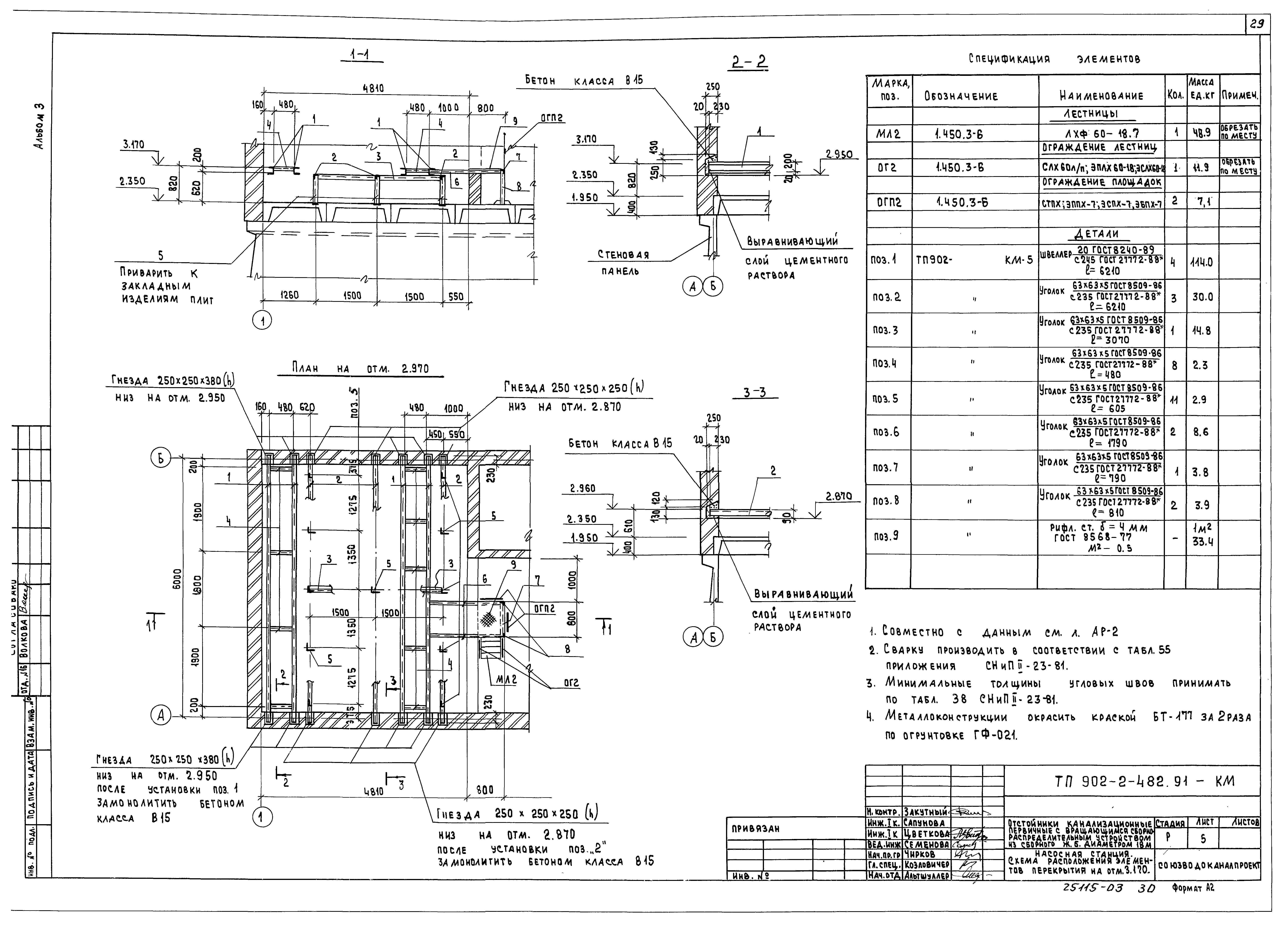
| Оглавление: | ТП 902-2-482.91 Содержание альбома ТП 902-2-482.91-ТХ Технологические решения ТП 902-2-482.91-ТХ-1 Общие данные ТП 902-2-482.91-ТХ-2 Насосная станция сырого осадка. Планы. Разрезы ТП 902-2-482.91-ТХ-3 Насосная станция сырого осадка. Аксонометрическая схема ТП 902-2-482.91-ТХН Общие виды нетиповых технологических конструкций ТП 902-2-482.91-ТХН-1 Пробоотборник. Эскизный чертеж общего вида ТП 902-2-482.91-ОВ Отопление и вентиляция ТП 902-2-482.91-ОВ-1 Общие данные ТП 902-2-482.91-ОВ-2 План на отм. -1.520;2.370;3.170;5.160. Разрез 1-1,2-2 ТП 902-2-482.91-ОВ-3 Схемы систем отопления, теплоснабжения, вентиляции. Узел управления ТП 902-2-482.91-ВК Внутренний водопровод и канализация ТП 902-2-482.91-ВК-1 Общие данные ТП 902-2-482.91-ВК-2 Насосная станция сырого осадка. Внутренний водопровод и канализация. План. Схемы систем ТП 902-2-482.91-АР Архитектурные решения ТП 902-2-482.91-АР-1 Общие данные ТП 902-2-482.91-АР-2 План на отм. -1.520;2.370. Фрагмент плана. Разрез 1-1 и 2-2 ТП 902-2-482.91-АР-3 Фасады. Схемы заполнения оконных проемов ТП 902-2-482.91-АР-4 Планы кровли, полов и перемычек. Экспликация полов. Ведомость перемычек ТП 902-2-482.91-АР-5 Детали здания ТП 902-2-482.91-КЖ Конструкции железобетонные ТП 902-2-482.91-КЖ-1 Общие данные ТП 902-2-482.91-КЖ-2 Днище. Опалубочный чертеж ТП 902-2-482.91-КЖ-3 Днище. Спецификация элементов ТП 902-2-482.91-КЖ-4 Днище. Арматурный чертеж ТП 902-2-482.91-КЖ-5 Схема расположения стеновых панелей ТП 902-2-482.91-КЖ-6 Монолитные участки стен. Опалубочный чертеж ТП 902-2-482.91-КЖ-7 Монолитные участки стен. Арматурный чертеж ТП 902-2-482.91-КЖ-8 Схемы расположения элементов покрытия и перекрытия ТП 902-2-482.91-КМ Конструкции металлические ТП 902-2-482.91-КМ-1 Общие данные (начало) ТП 902-2-482.91-КМ-2 Общие данные (окончание) ТП 902-2-482.91-КМ-3 Пути подвесного транспорта и обслуживающие площадки. Лист 1 ТП 902-2-482.91-КМ-4 Пути подвесного транспорта и обслуживающие площадки. Лист 2 ТП 902-2-482.91-КМ-5 Схема расположения элементов перекрытия на отм. 3.170 ТП 902-2-482.91-КЖ.И Строительные изделия ТП 902-2-482.91-КЖ.И.ТТ Технические требования ТП 902-2-482.91-КЖ.И.1.01 Сетка арматурная (С1) ТП 902-2-482.91-КЖ.И.1.02 Сетка арматурная (С2) ТП 902-2-482.91-КЖ.И.1.08 Плита перекрытия (2П1-2АIVВт-3А) ТП 902-2-482.91-КЖ.И.1.03 Каркас плоский (КР1) ТП 902-2-482.91-КЖ.И.1.04 Каркас плоский (КР2) ТП 902-2-482.91-КЖ.И.1.06 Плита перекрытия (2П1-2АIVВт-2А) ТП 902-2-482.91-КЖ.И.1.07 Изделие закладное (3Д1) ТП 902-2-482.91-КЖ.И.1.05 Панель стеновая (ПС1-36-БТ2А;Б;В;Г;Д;Е;Ж;И;К) |
| Разработан: | Союзводоканалниипроект |
| Утверждён: | 25.07.1991 СоюзводоканалНИИпроект (SoyuzvodokanalNIIproject 13) |
































