Скачать Типовой проект 902-2-483.91 Альбом 4. Наружные технологические трубопроводы. Распределительная и сборная камеры. Жиросборник. Технологические трубопроводы. Технологические решения. Общие виды нетиповых технологических конструкций. Конструкции железобетонные. Строительные изделияДата актуализации: 01.01.2021
|
| Обозначение: | Типовой проект 902-2-483.91 |
| Обозначение англ: | 902-2-483.91 |
| Статус: | не определен законодательством |
| Название рус.: | Альбом 4. Наружные технологические трубопроводы. Распределительная и сборная камеры. Жиросборник. Технологические трубопроводы. Технологические решения. Общие виды нетиповых технологических конструкций. Конструкции железобетонные. Строительные изделия |
| Дата добавления в базу: | 01.09.2013 |
| Дата актуализации: | 01.01.2021 |
| Дата введения: | 08.10.1991 |
| Дата окончания срока действия: | 30.06.2003 |
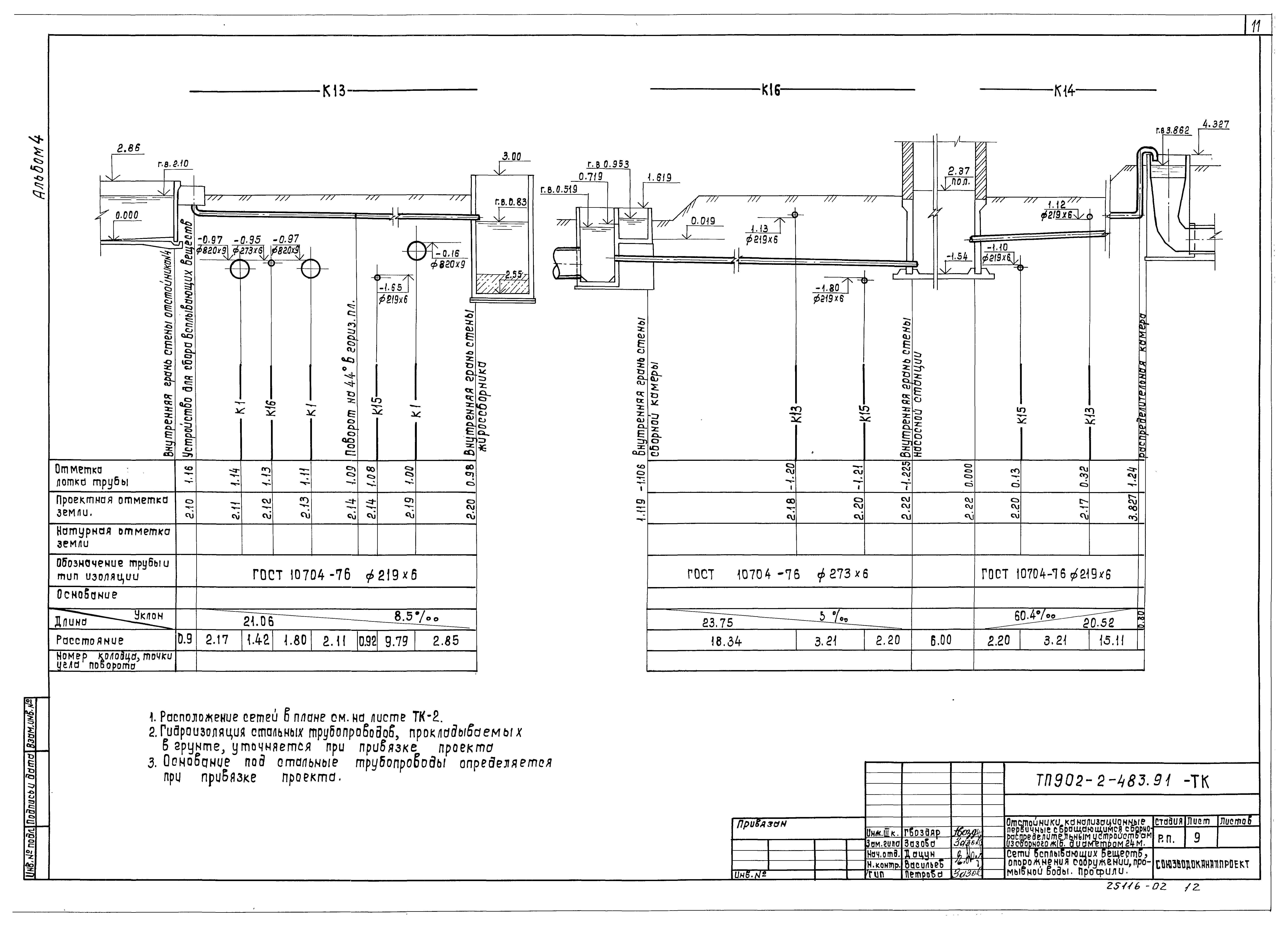
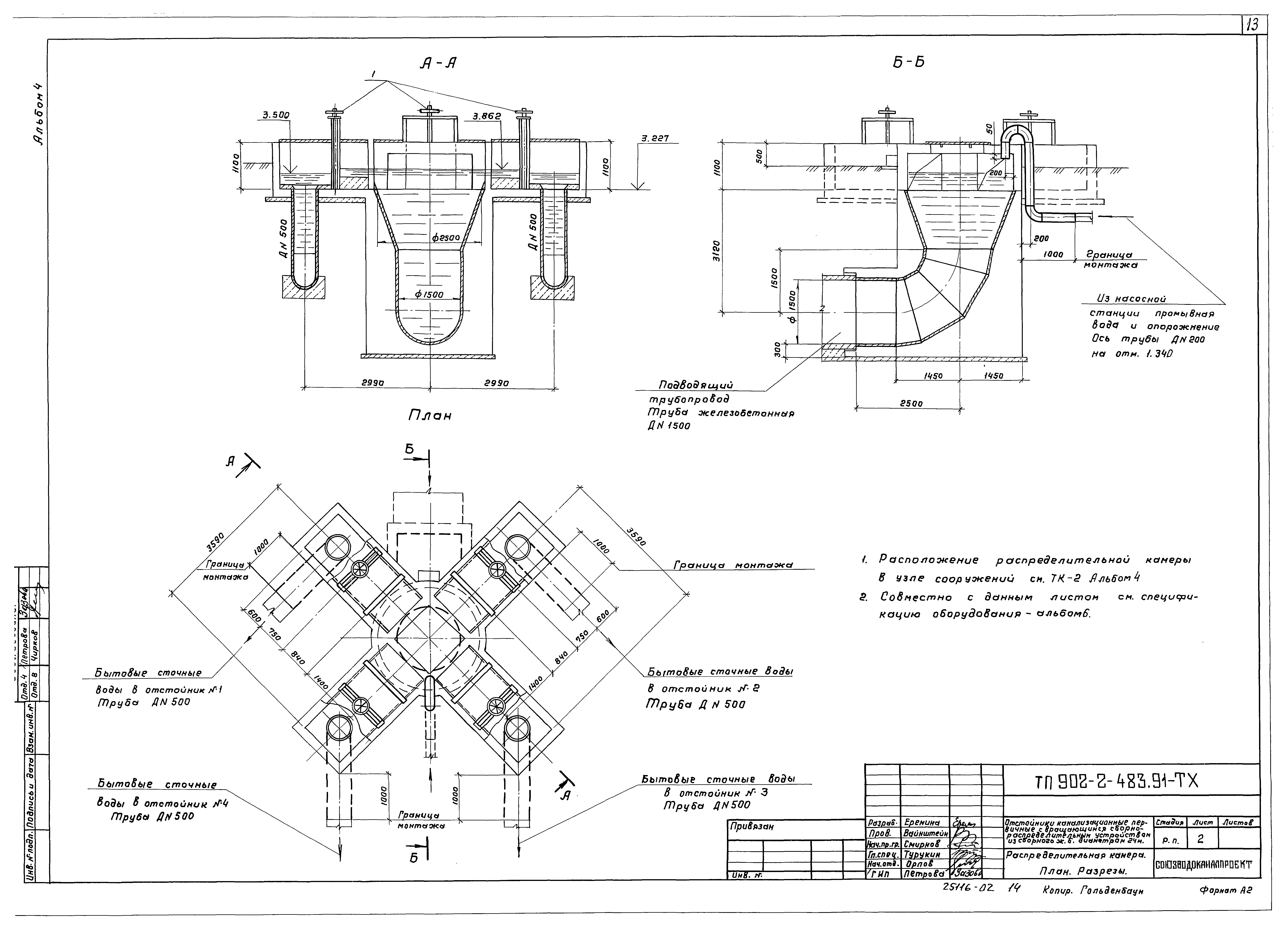
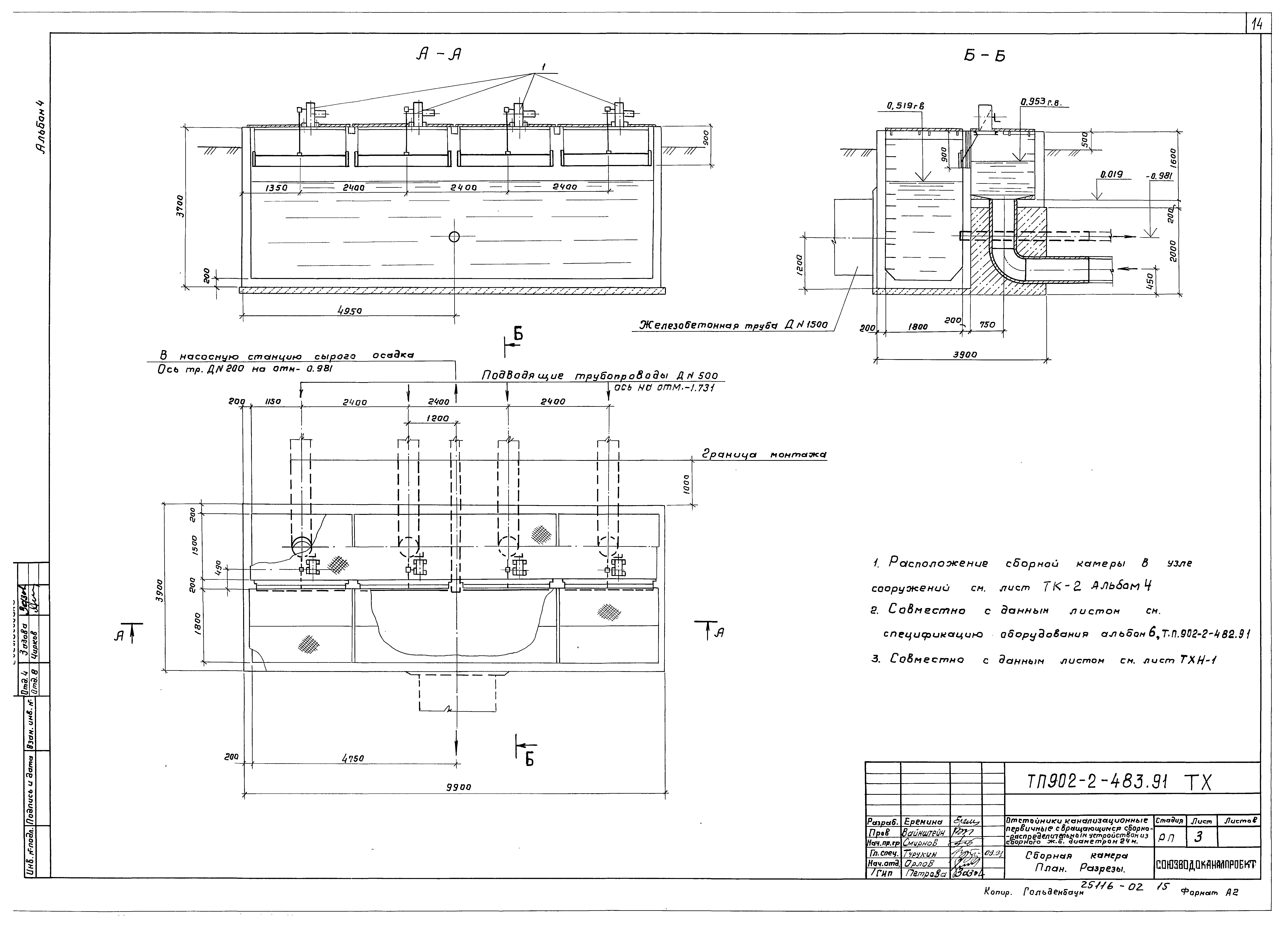
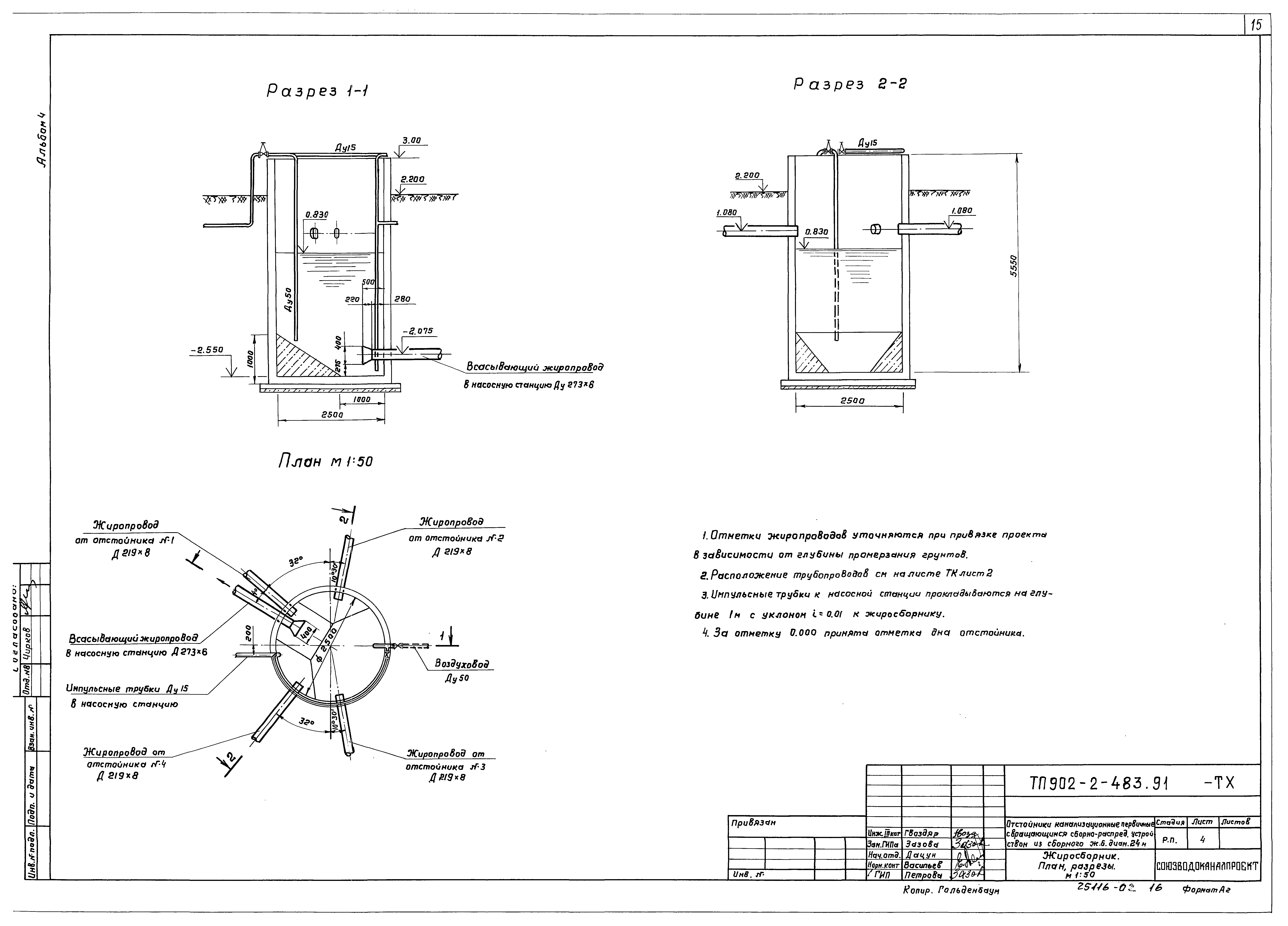
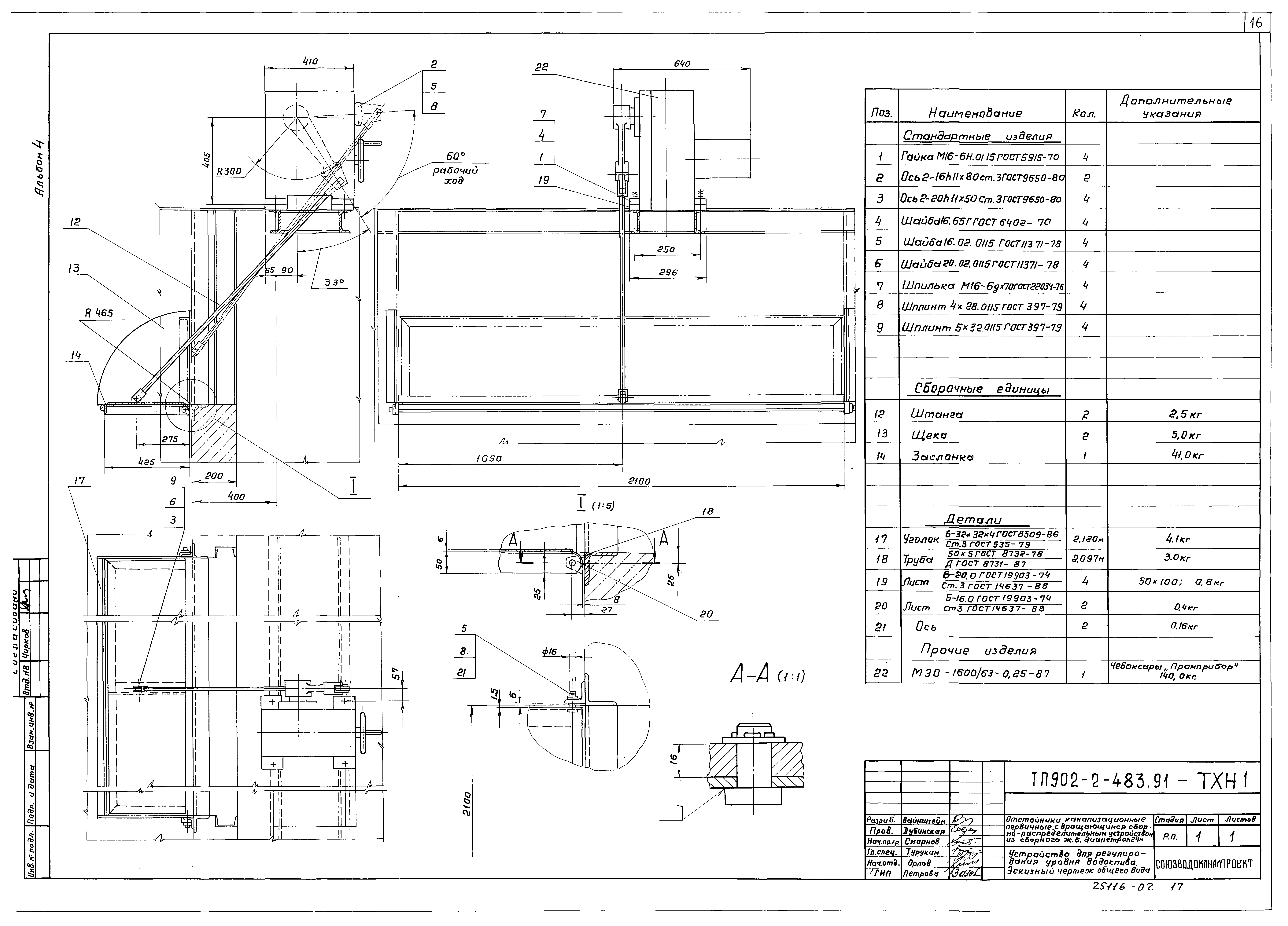
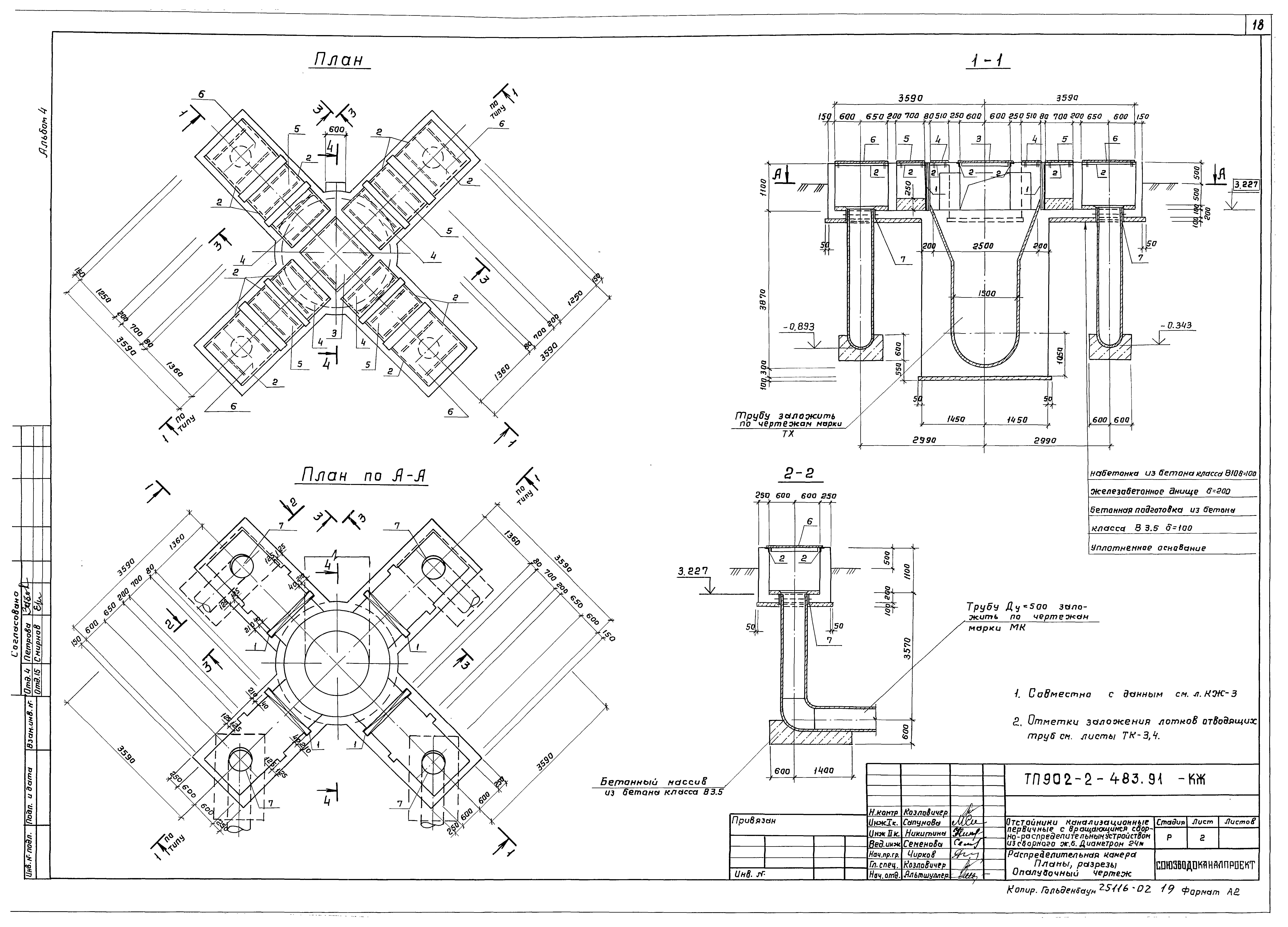
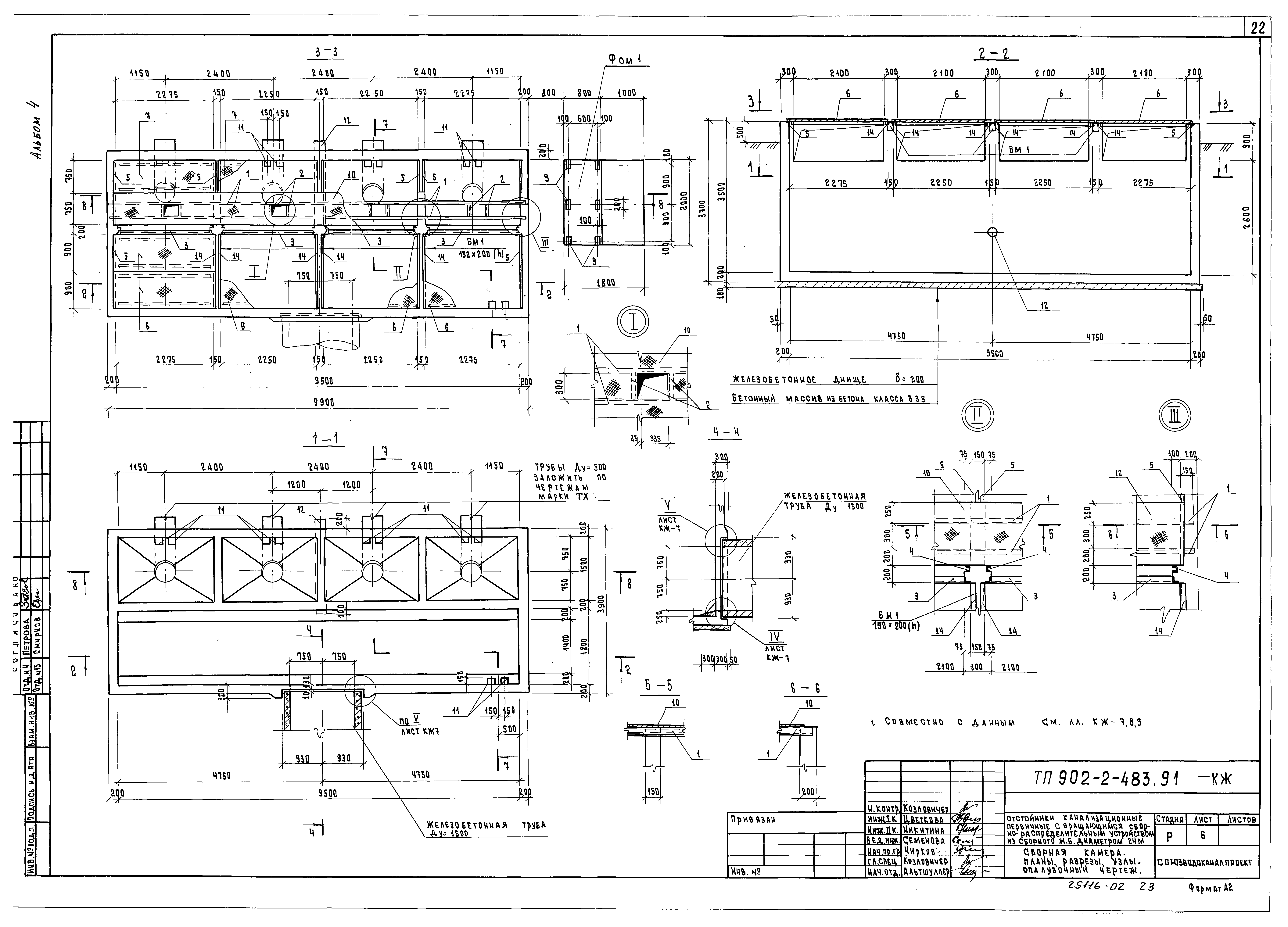
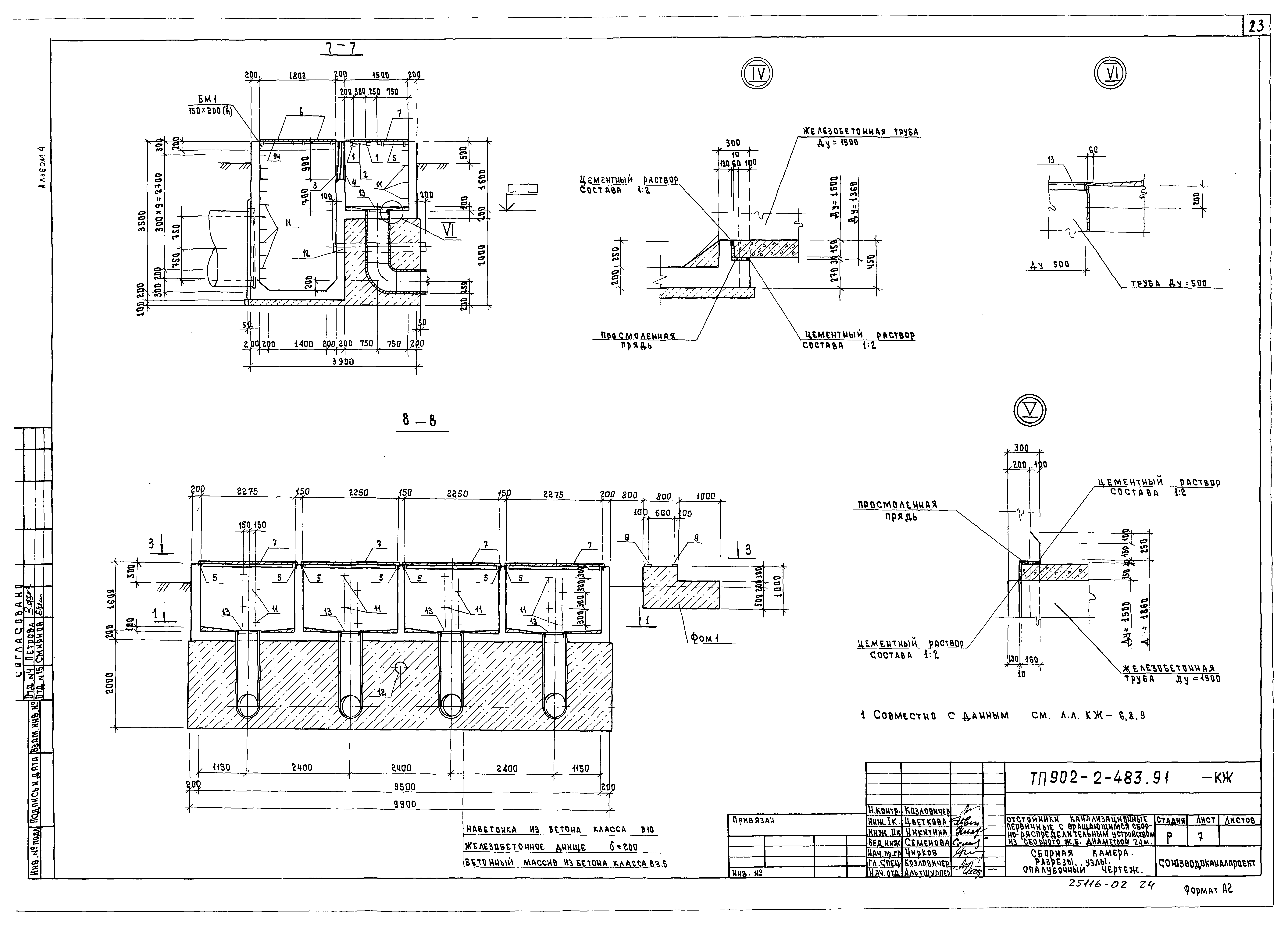
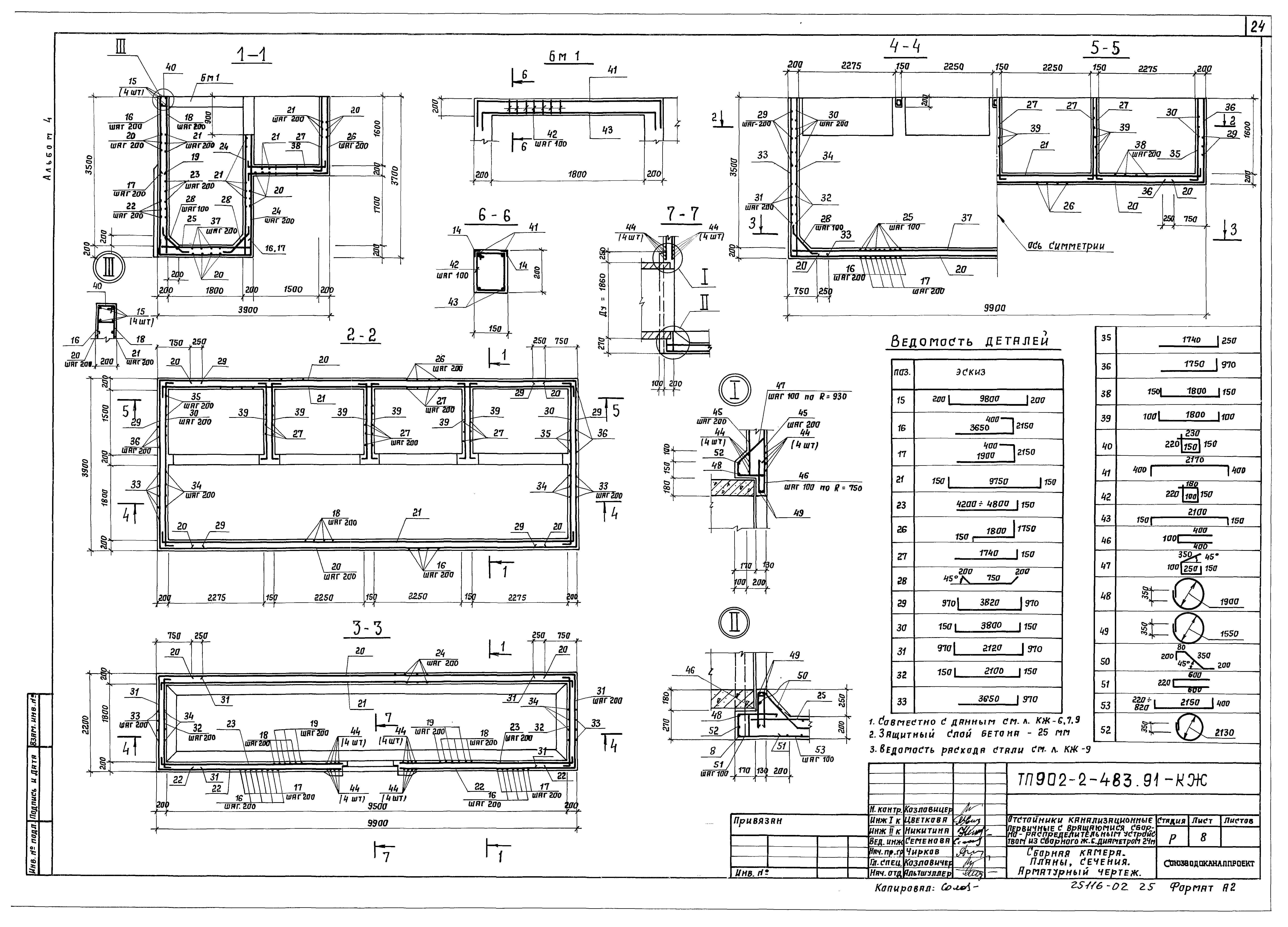
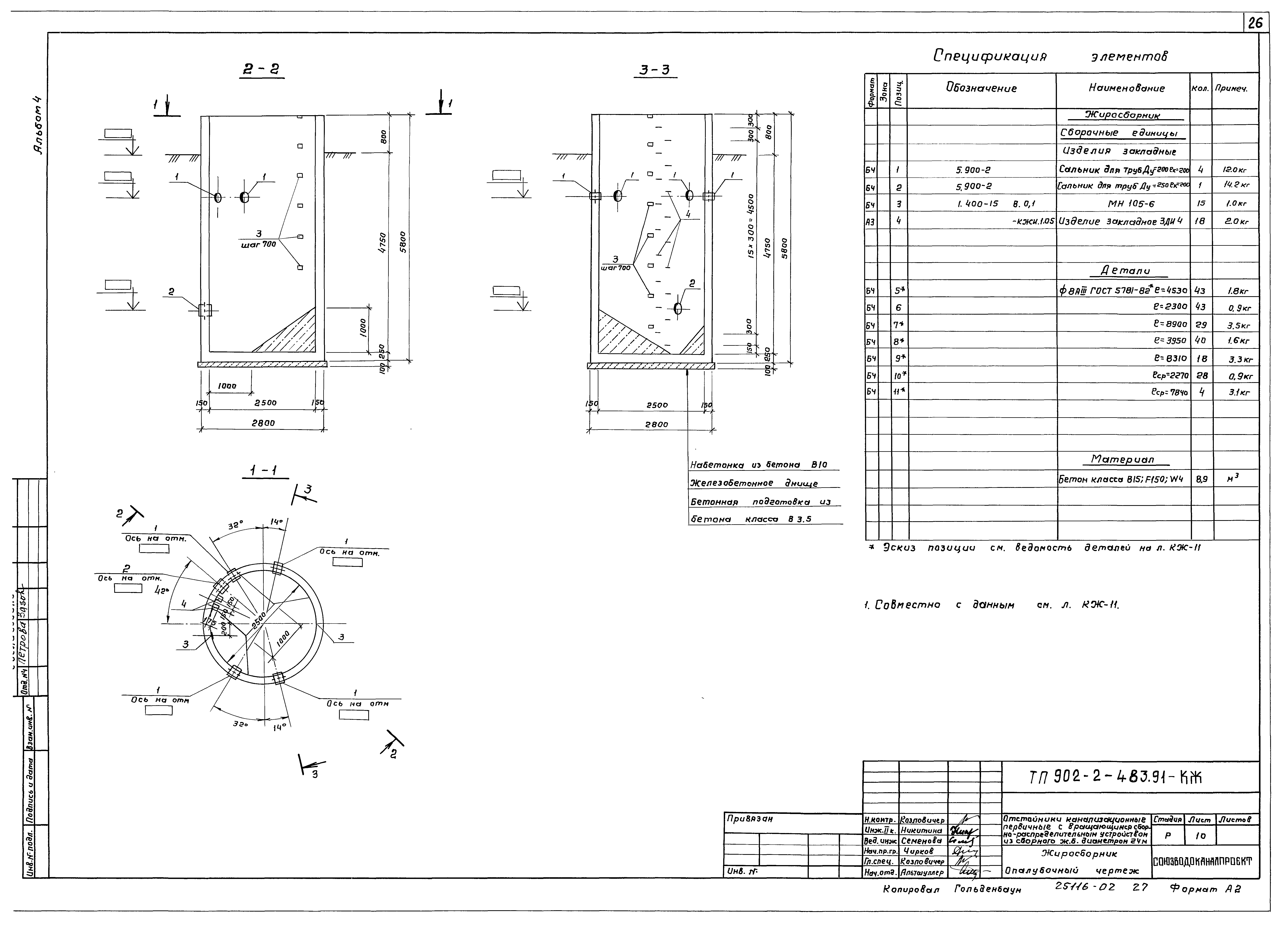
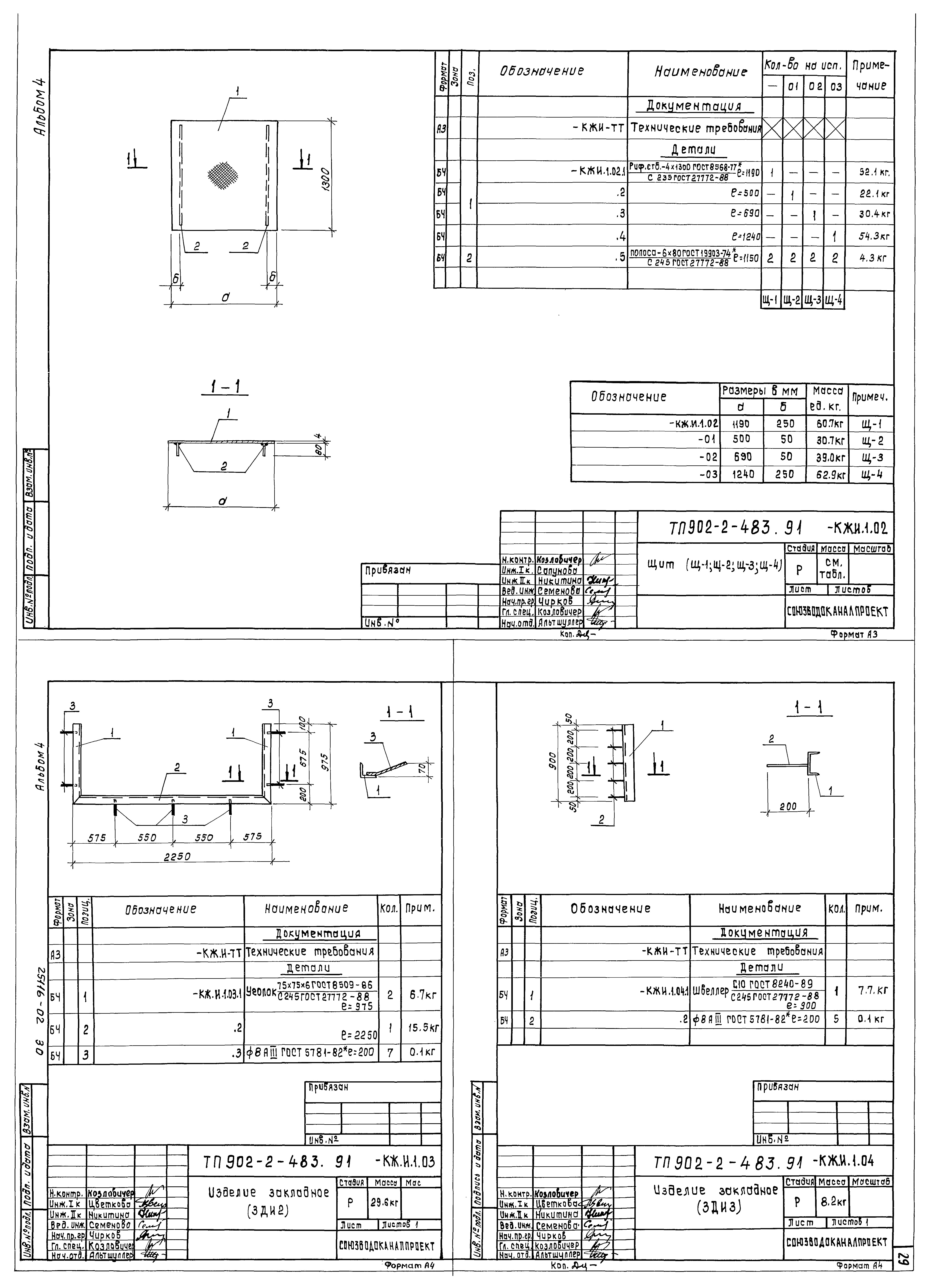
| Оглавление: | ТП 902-2-483.91 Содержание альбома ТП 902-2-483.91-ТК Технологические трубопроводы ТП 902-2-483.91-ТК-1 Общие данные ТП 902-2-483.91-ТК-2 План группы отстойников ТП 902-2-483.91-ТК-3 Сеть бытовых сточных вод (подающий трубопровод). Профили ТП 902-2-483.91-ТК-4 Сеть бытовых сточных вод (подающий трубопровод). Профиль ТП 902-2-483.91-ТК-5 Сеть бытовых сточных вод (отводящий трубопровод). Профиль ТП 902-2-483.91-ТК-6 Сеть бытовых сточных вод (отводящий трубопровод). Профили ТП 902-2-483.91-ТК-7 Сеть сырого осадка. Профили ТП 902-2-483.91-ТК-8 Сеть всплывающих веществ. Профили ТП 902-2-483.91-ТК-9 Сеть всплывающих веществ опорожнения сооружений, промывной воды. Профили ТП 902-2-483.91-ТХ Технологические решения ТП 902-2-483.91-ТХ-1 Общие данные ТП 902-2-483.91-ТХ-2 Распределительная камера. План. Разрезы ТП 902-2-483.91-ТХ-3 Сборная камера. План. Разрезы ТП 902-2-483.91-ТХ-4 Жиросборник. План, разрезы ТП 902-2-483.91-ТХН Общие виды нетиповых технологических конструкций ТП 902-2-483.91-ТХН-1 Сборная камера. Устройство для регулирования уровня водослива. Эскизный чертеж общего вида ТП 902-2-483.91-КЖ Конструкции железобетонные ТП 902-2-483.91-КЖ-1 Общие данные ТП 902-2-483.91-КЖ-2 Распределительная камера. Планы, разрезы. Опалубочный чертеж ТП 902-2-483.91-КЖ-3 Распределительная камера. Разрезы. Опалубочный чертеж ТП 902-2-483.91-КЖ-4 Распределительная камера. Планы, сечения. Арматурный чертеж ТП 902-2-483.91-КЖ-5 Распределительная камера. Сечения. Арматурный чертеж ТП 902-2-483.91-КЖ-6 Сборная камера. Планы, разрезы, узлы. Опалубочный чертеж ТП 902-2-483.91-КЖ-7 Сборная камера. Разрезы, узлы. Опалубочный чертеж ТП 902-2-483.91-КЖ-8 Сборная камера. Планы, сечения. Арматурный чертеж ТП 902-2-483.91-КЖ-9 Сборная камера. Спецификация элементов ТП 902-2-483.91-КЖ-10 Жиросборник. Опалубочный чертеж ТП 902-2-483.91-КЖ-11 Жиросборник. Арматурный чертеж ТП 902-2-483.91-КЖИ Строительные изделия ТП 902-2-483.91-КЖИ.ТТ Технические требования ТП 902-2-483.91-КЖИ.1.01 Изделия закладное (ЗДИ1) ТП 902-2-483.91-КЖИ.1.02 Щит (Щ-1;Щ-2;Щ-3;Щ-4) ТП 902-2-483.91-КЖИ.1.03 Изделие закладное (ЗДИ2) ТП 902-2-483.91-КЖИ.1.04 Изделие закладное (ЗДИ3) ТП 902-2-483.91-КЖИ.1.05 Изделие закладное (ЗДИ4) ТП 902-2-483.91-КЖИ.1.06 Решетка (Р1) ТП 902-2-483.91-КЖИ.1.07 Щит (Щ-5;Щ-6) |
| Разработан: | Союзводоканалниипроект |
| Утверждён: | 25.07.1991 СоюзводоканалНИИпроект (SoyuzvodokanalNIIproject 13) |






























