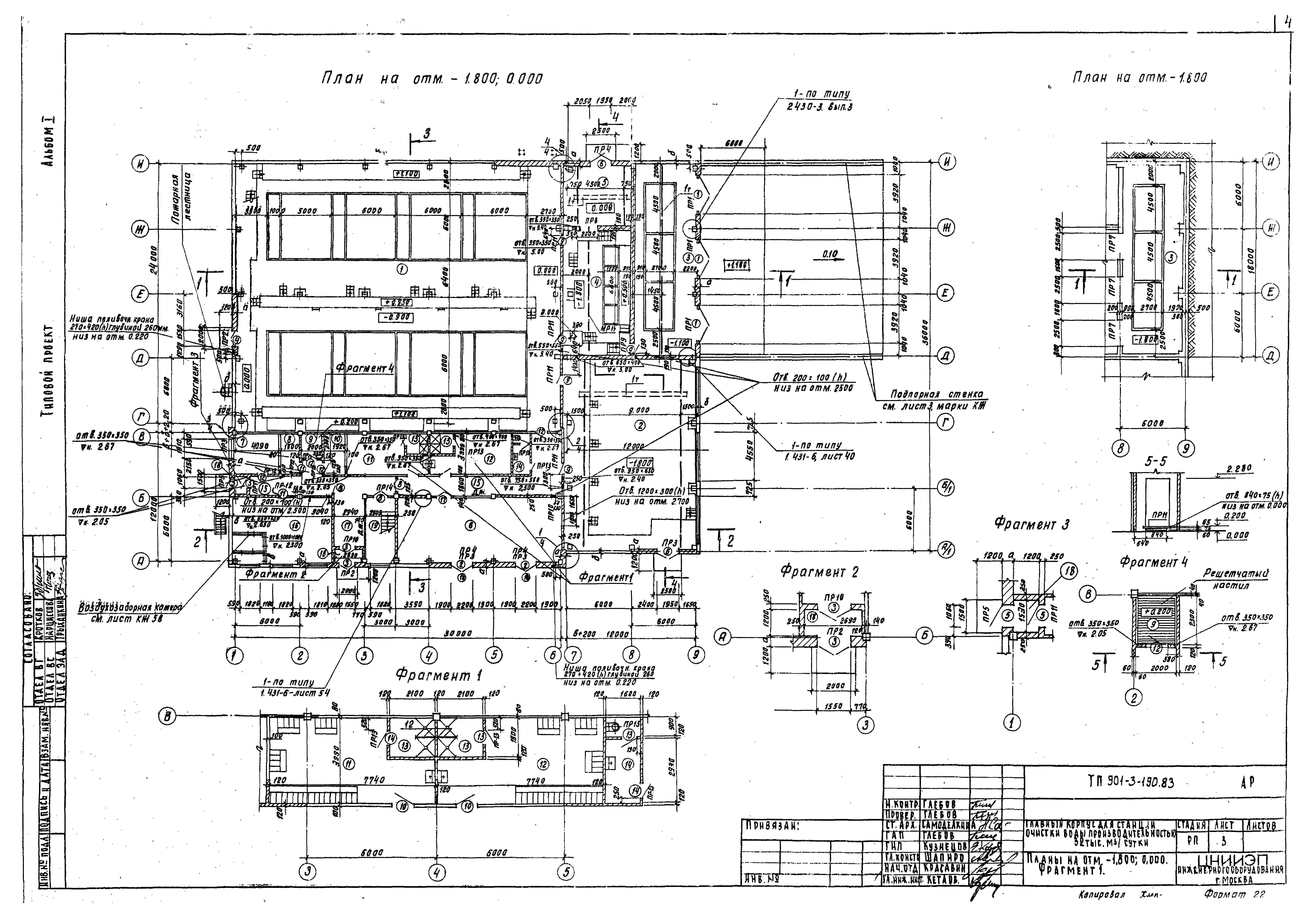
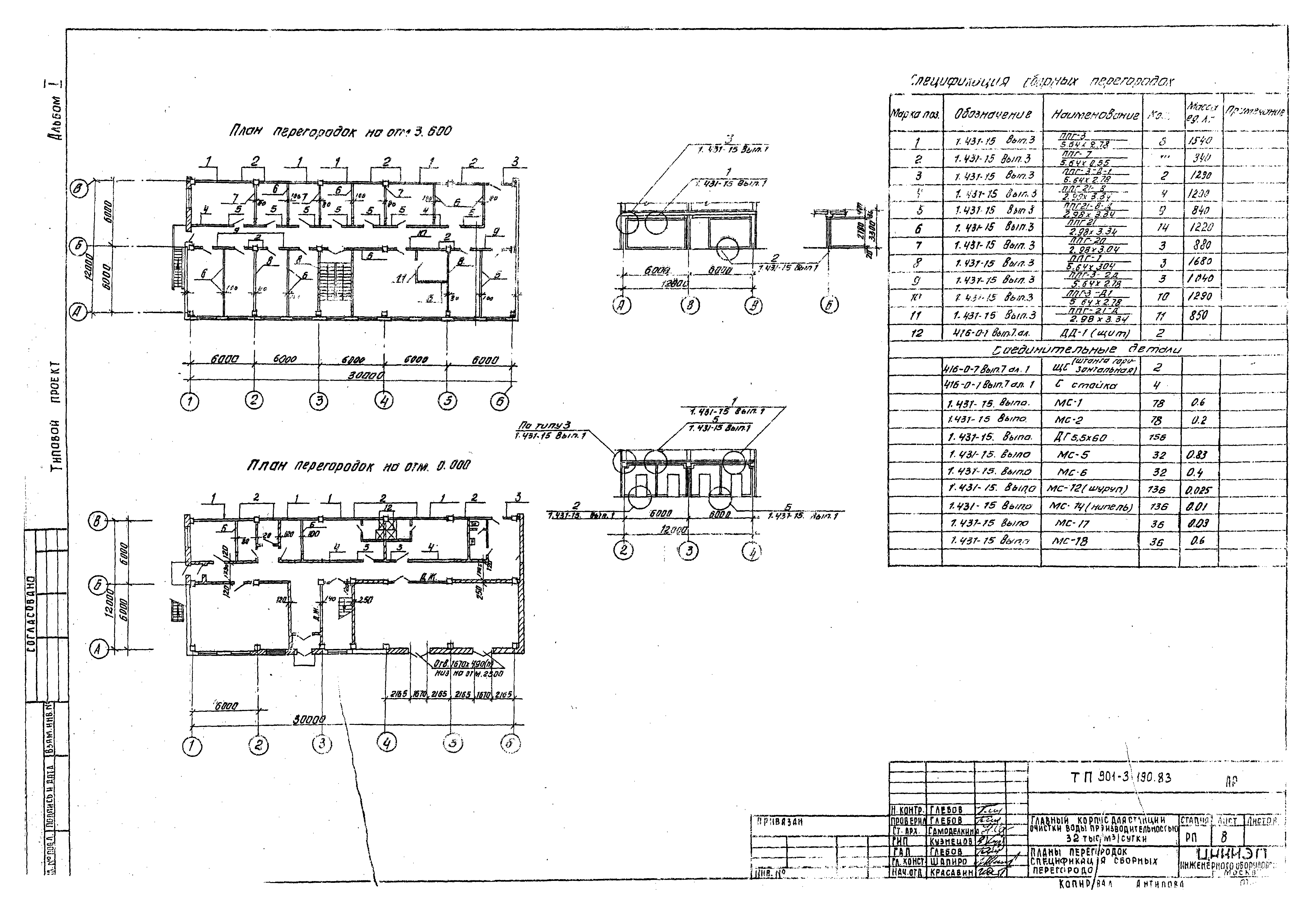
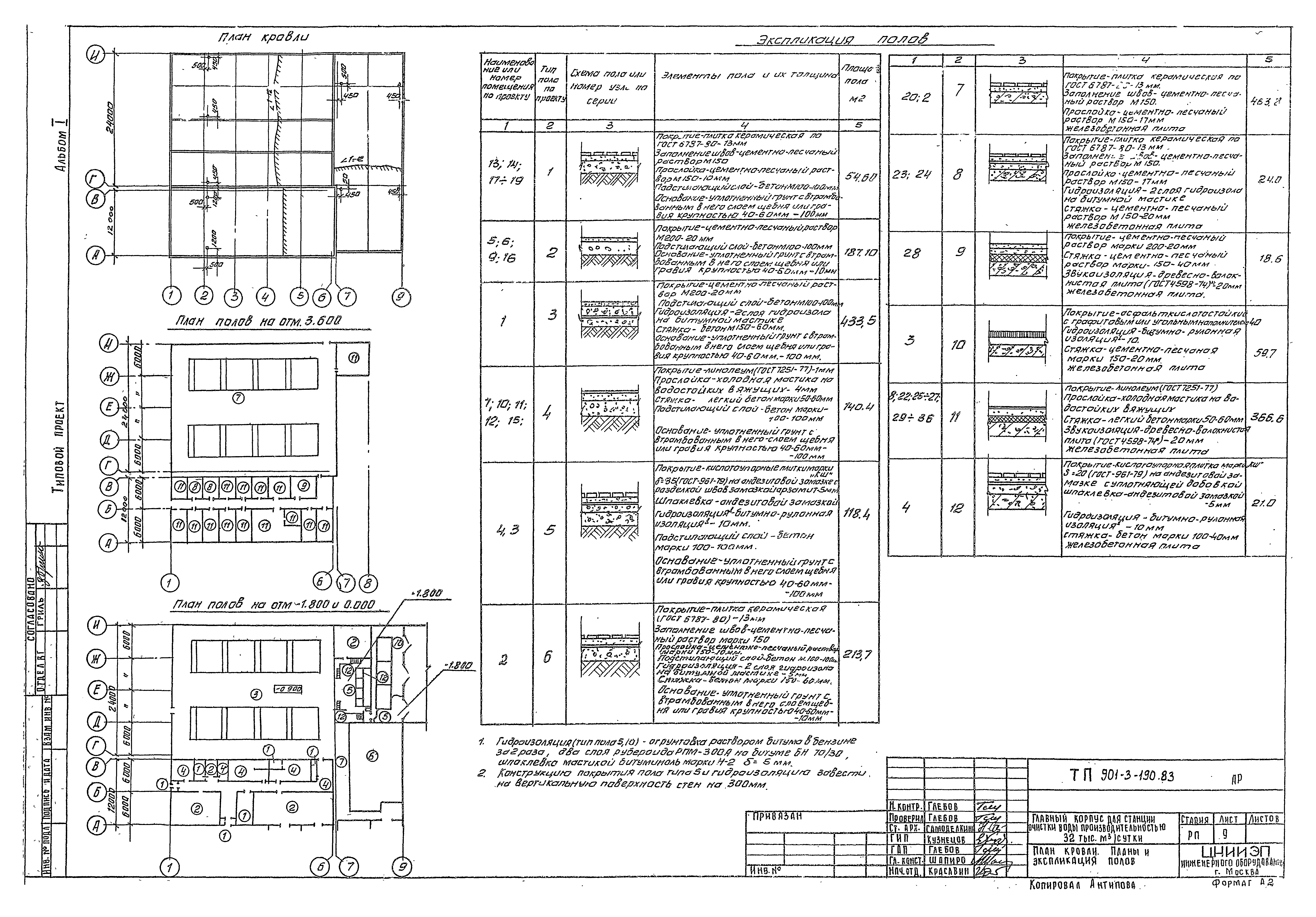
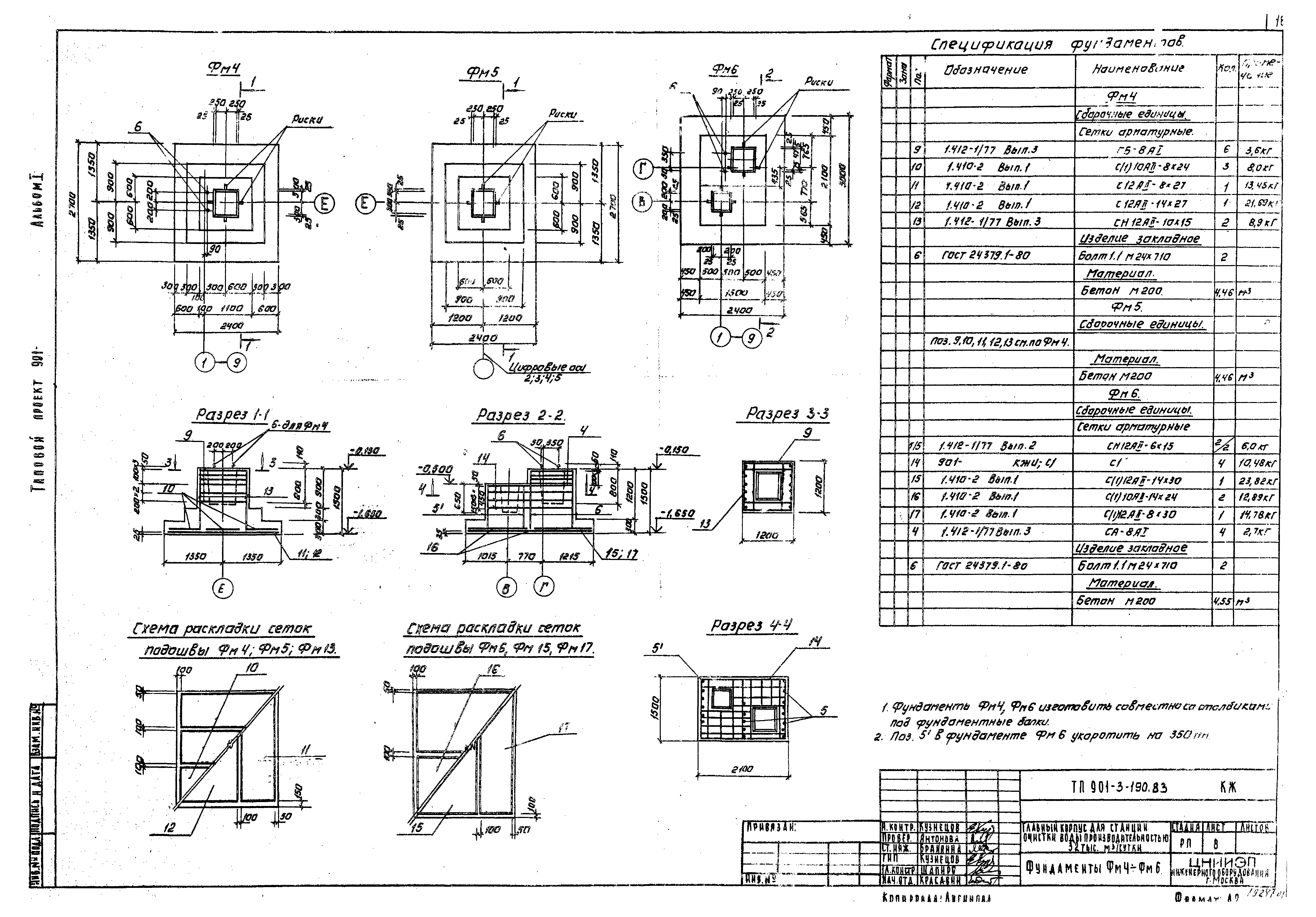
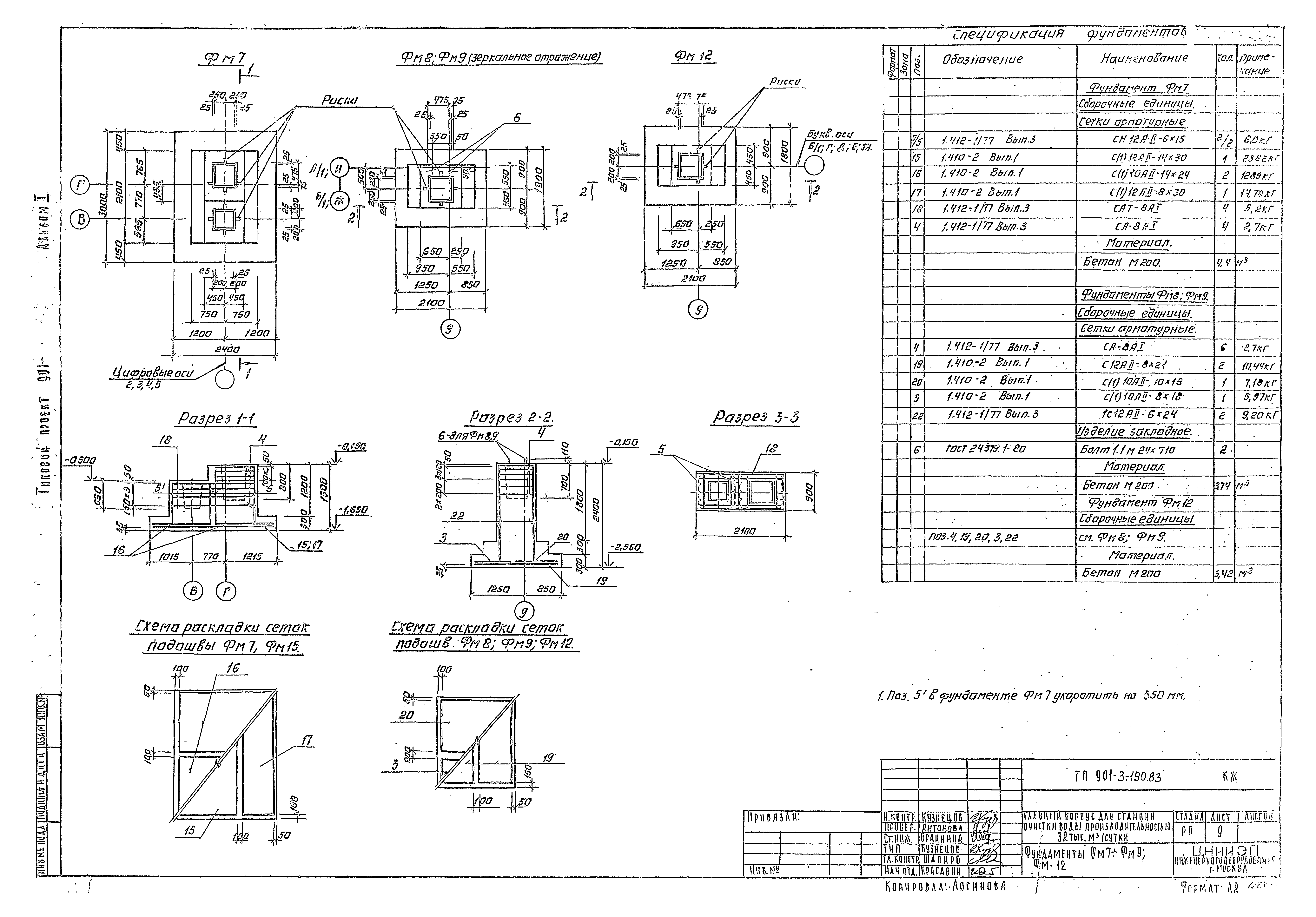
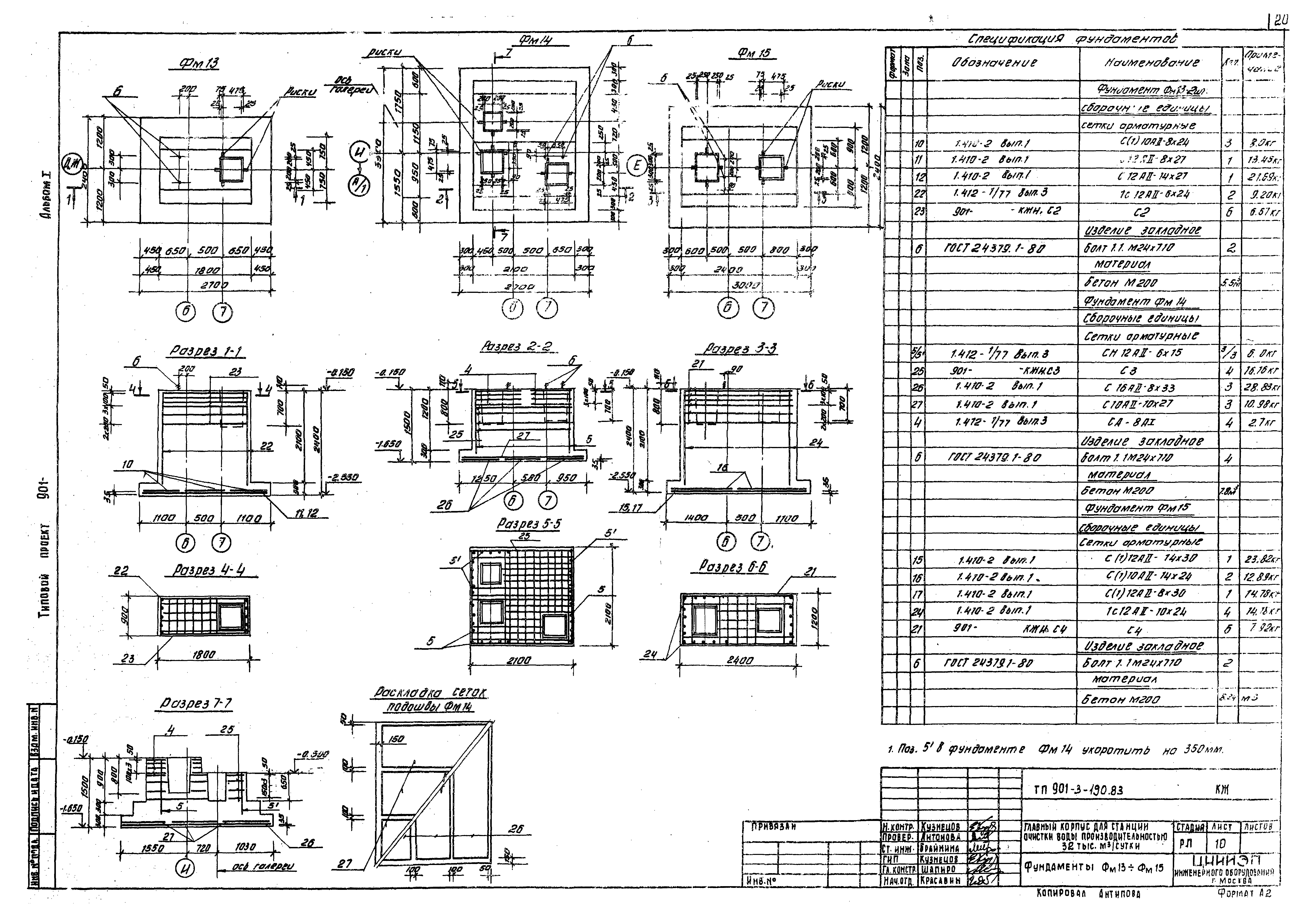
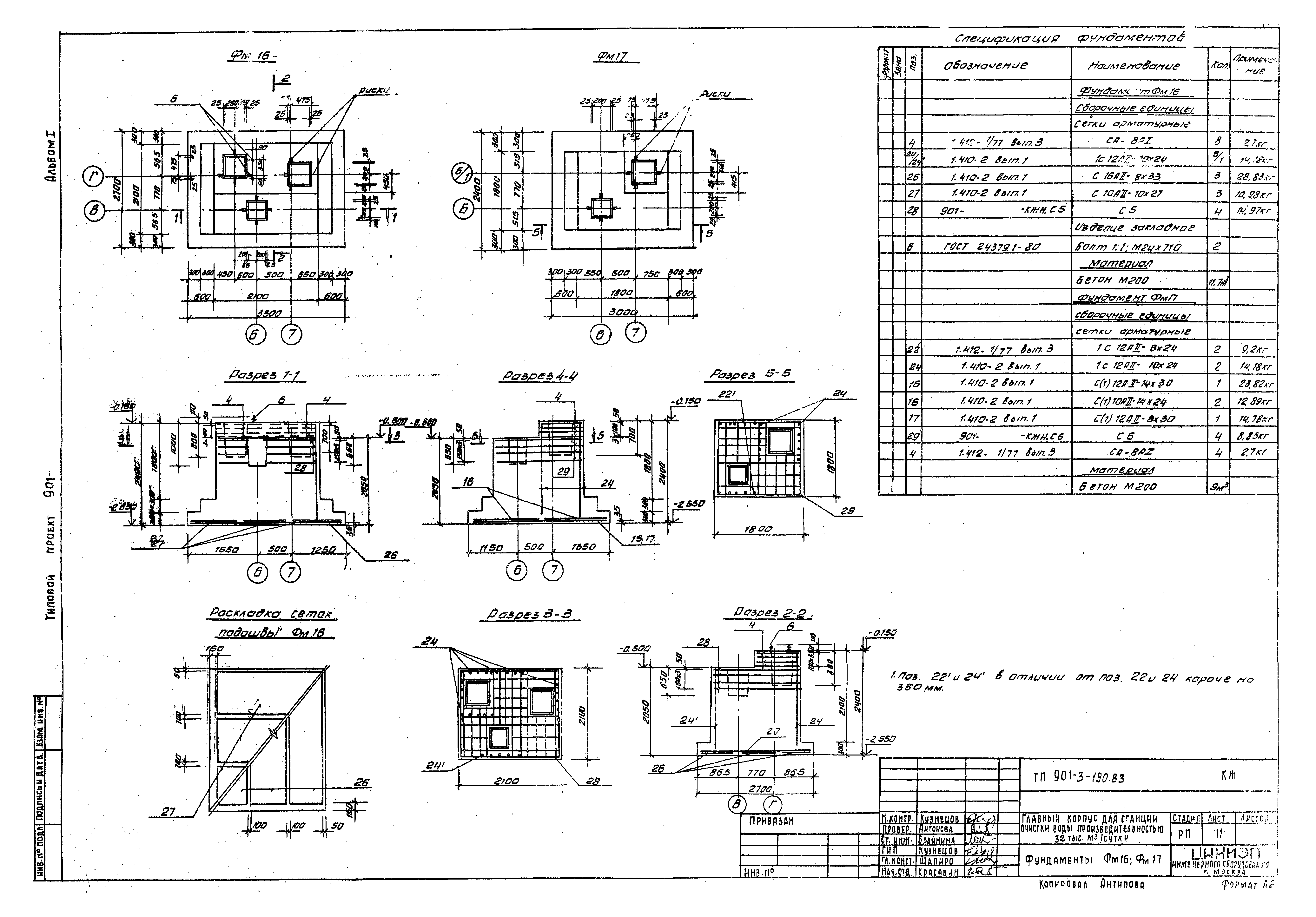
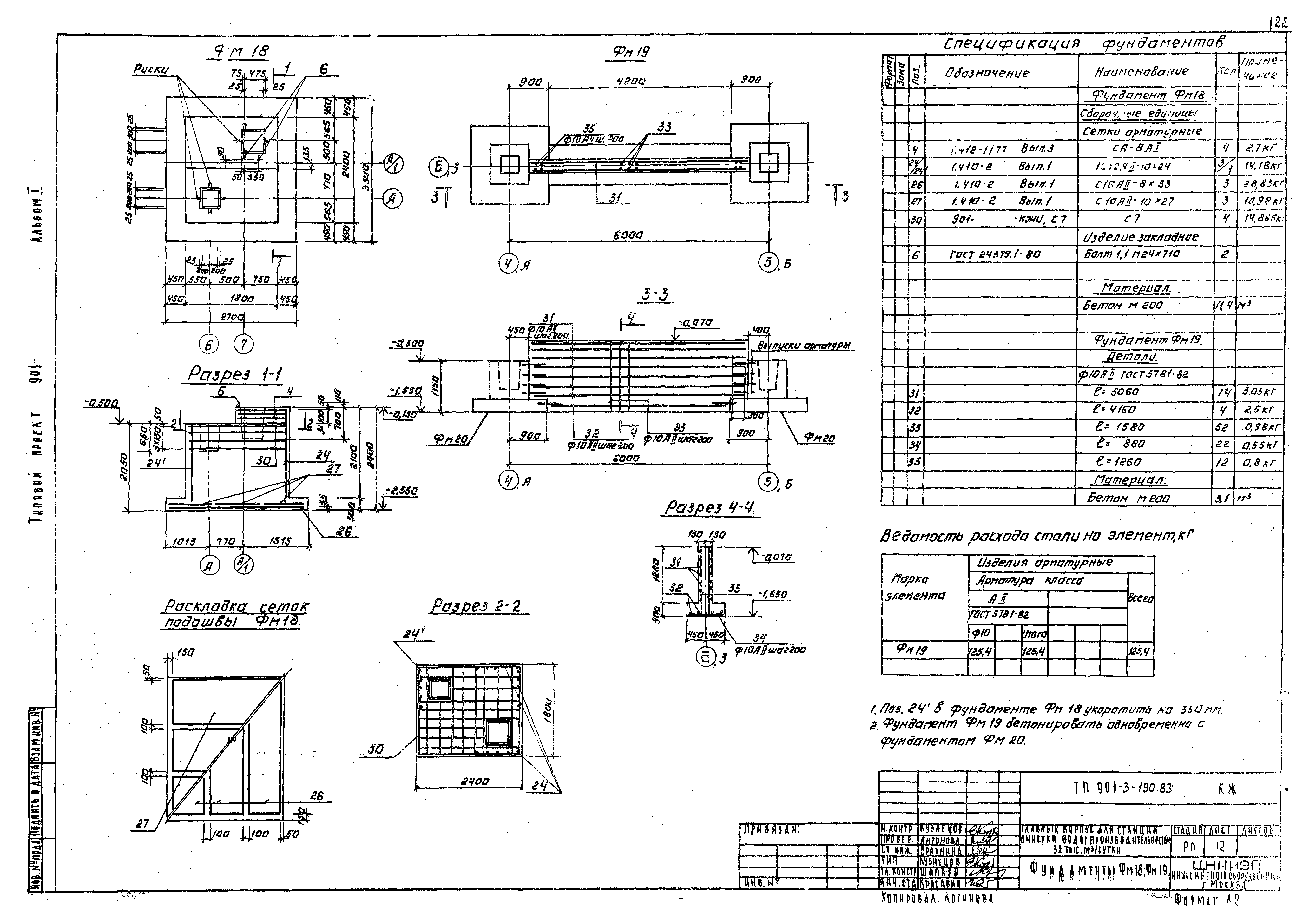
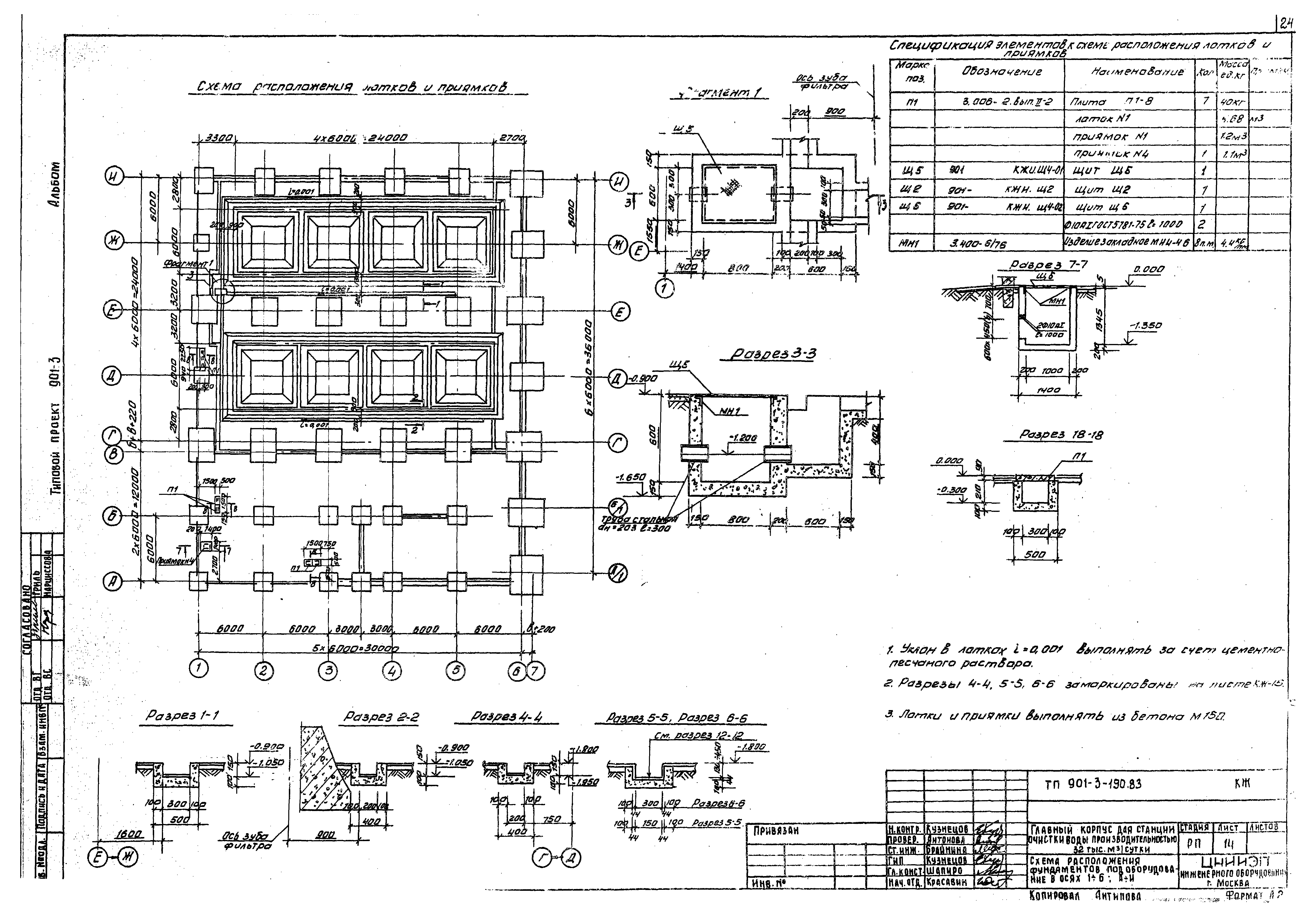
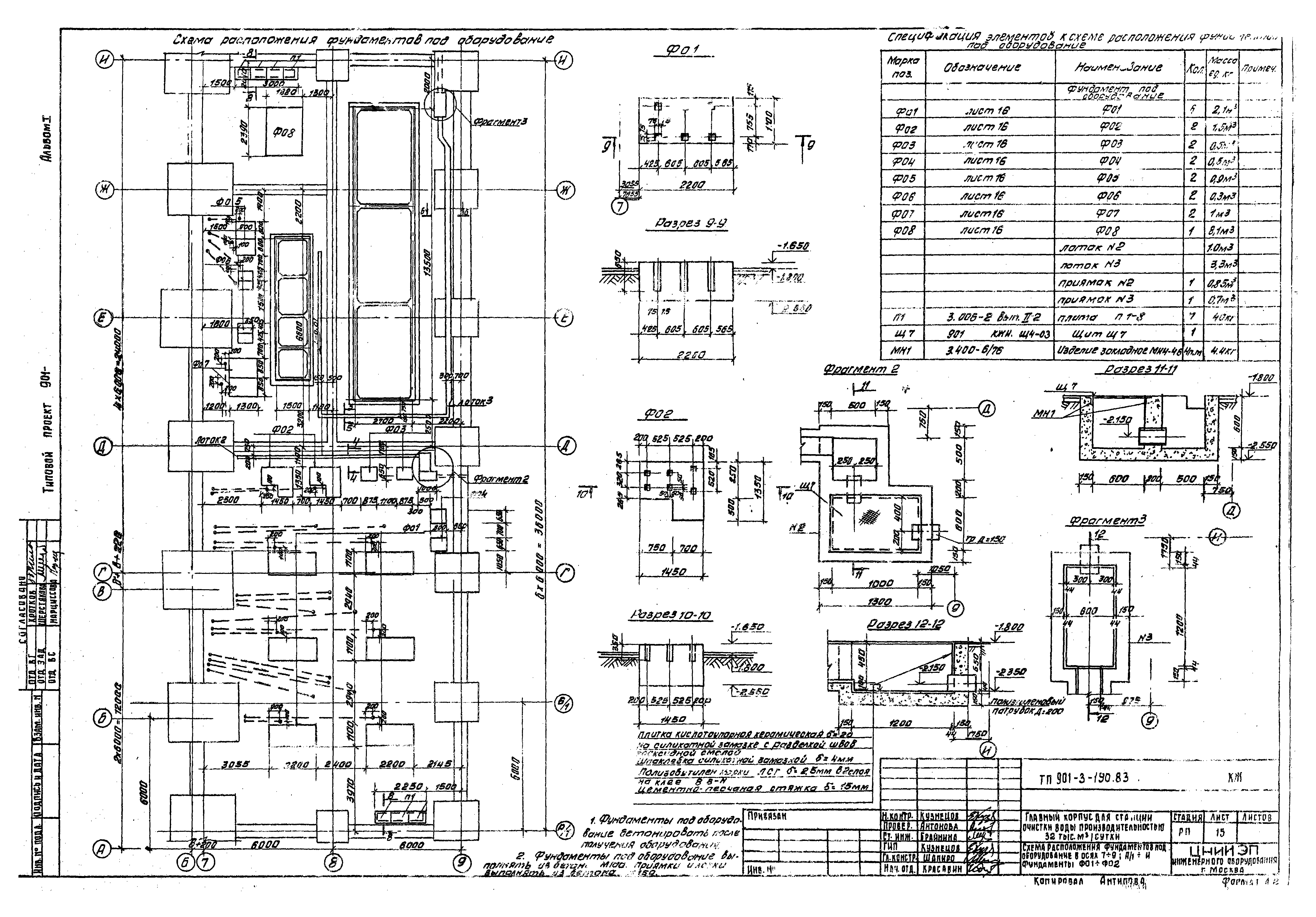
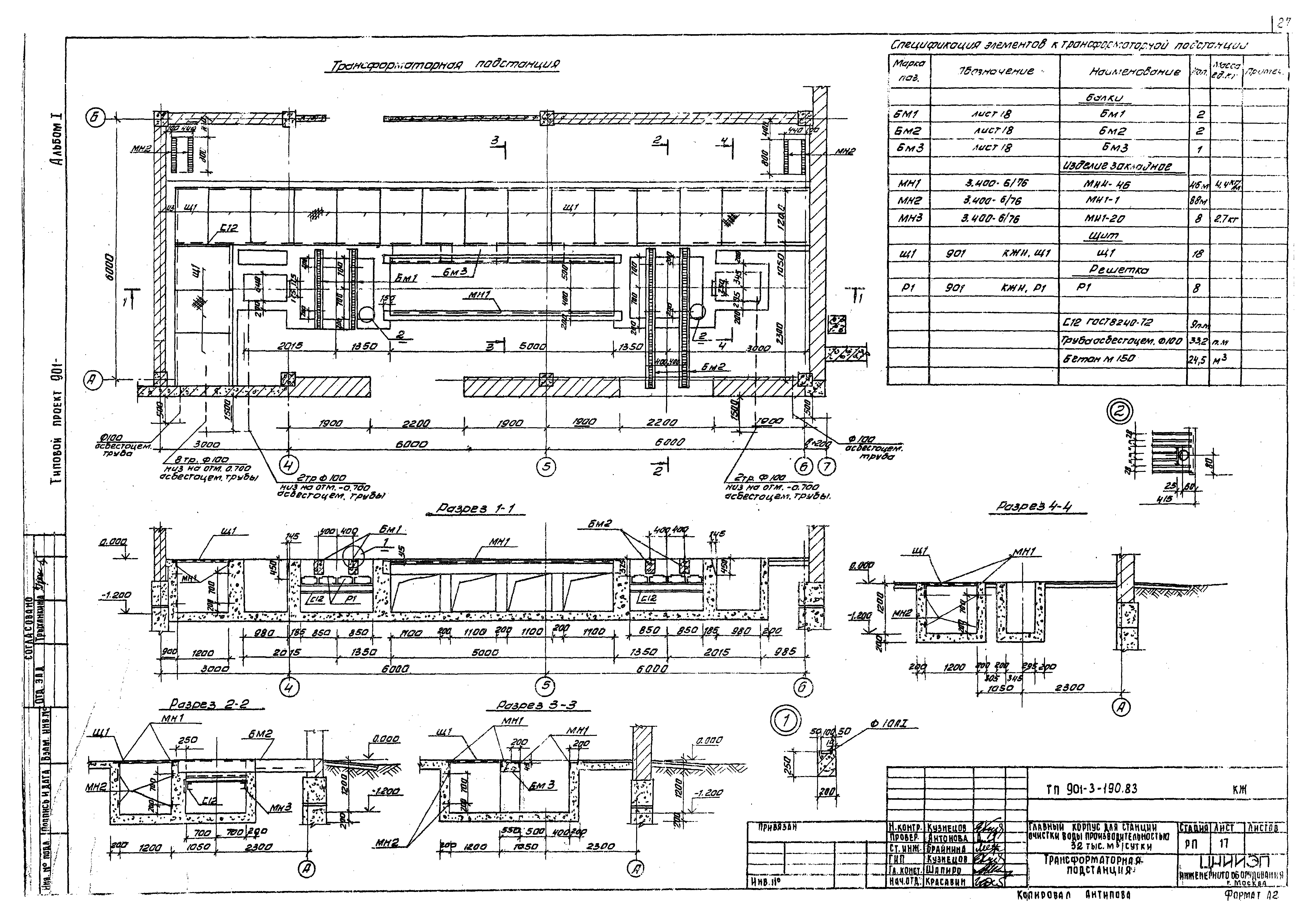
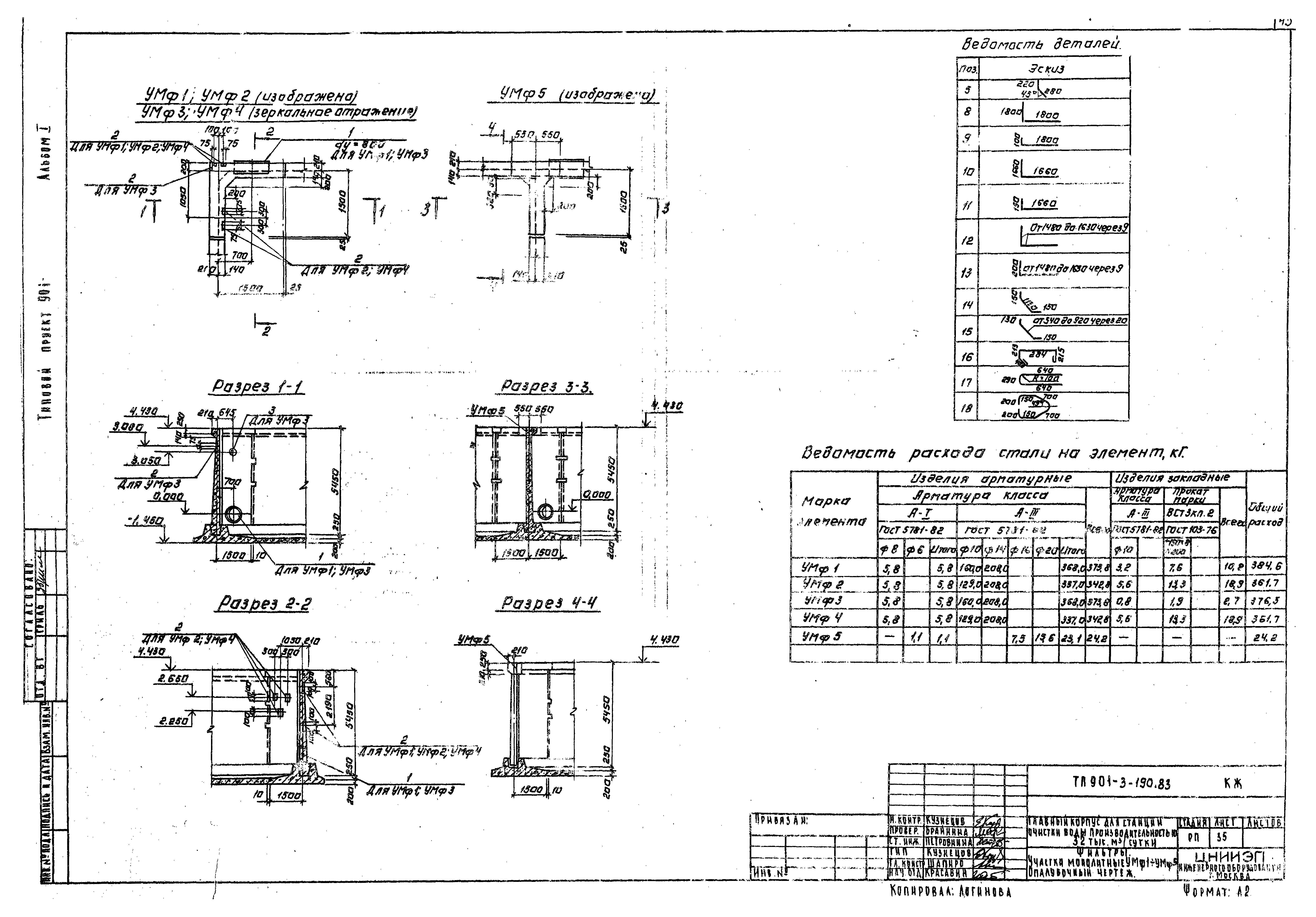
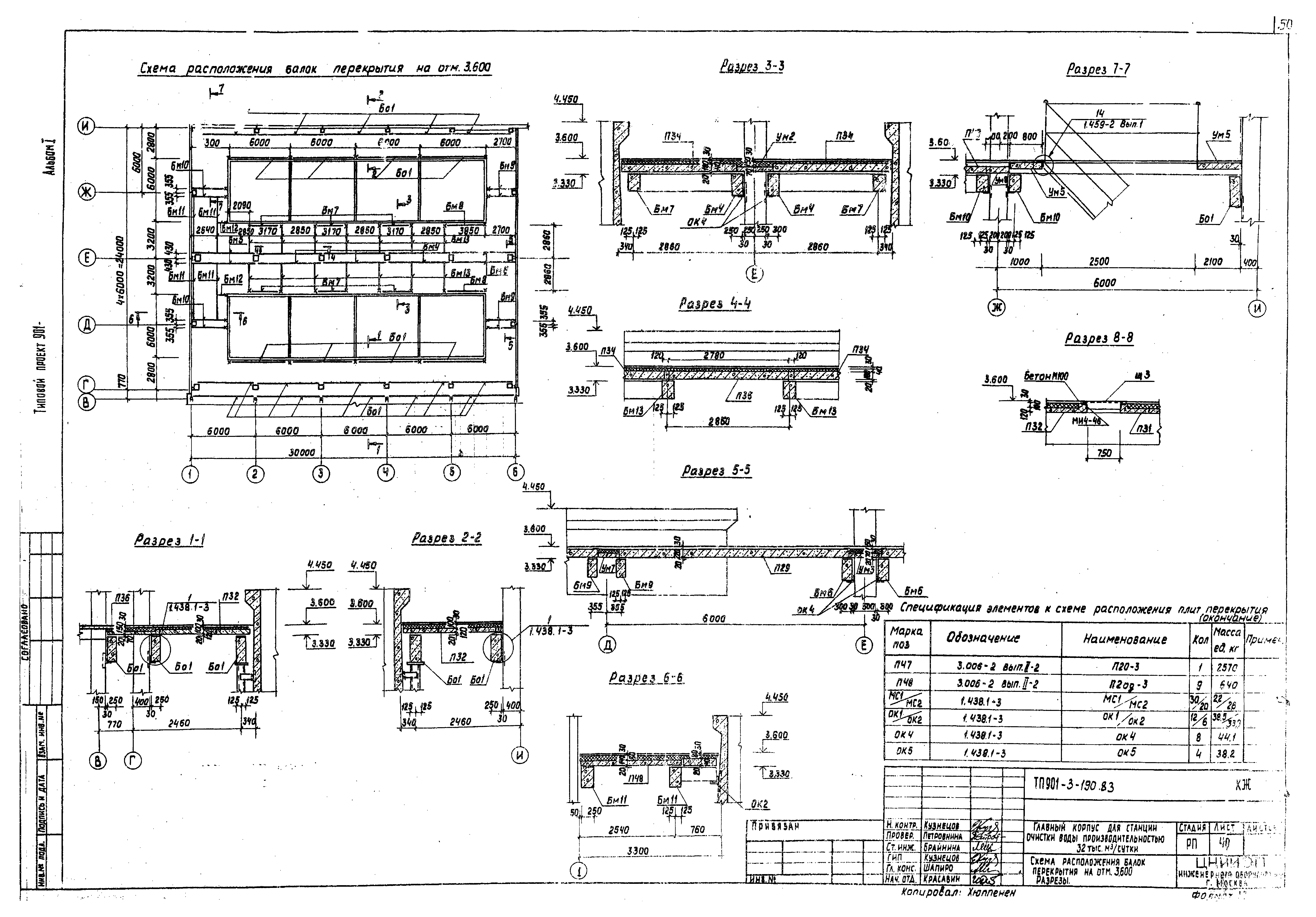
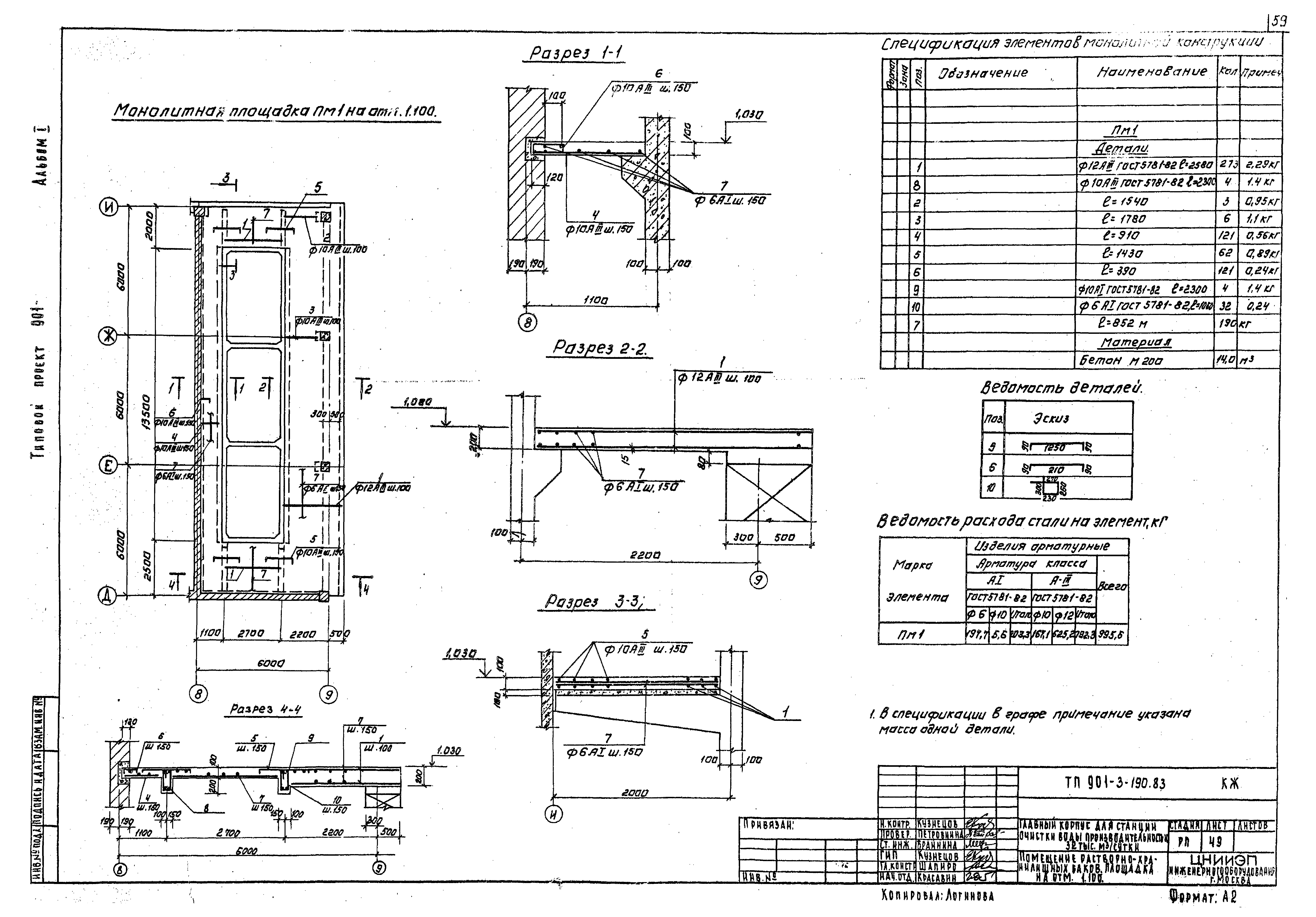
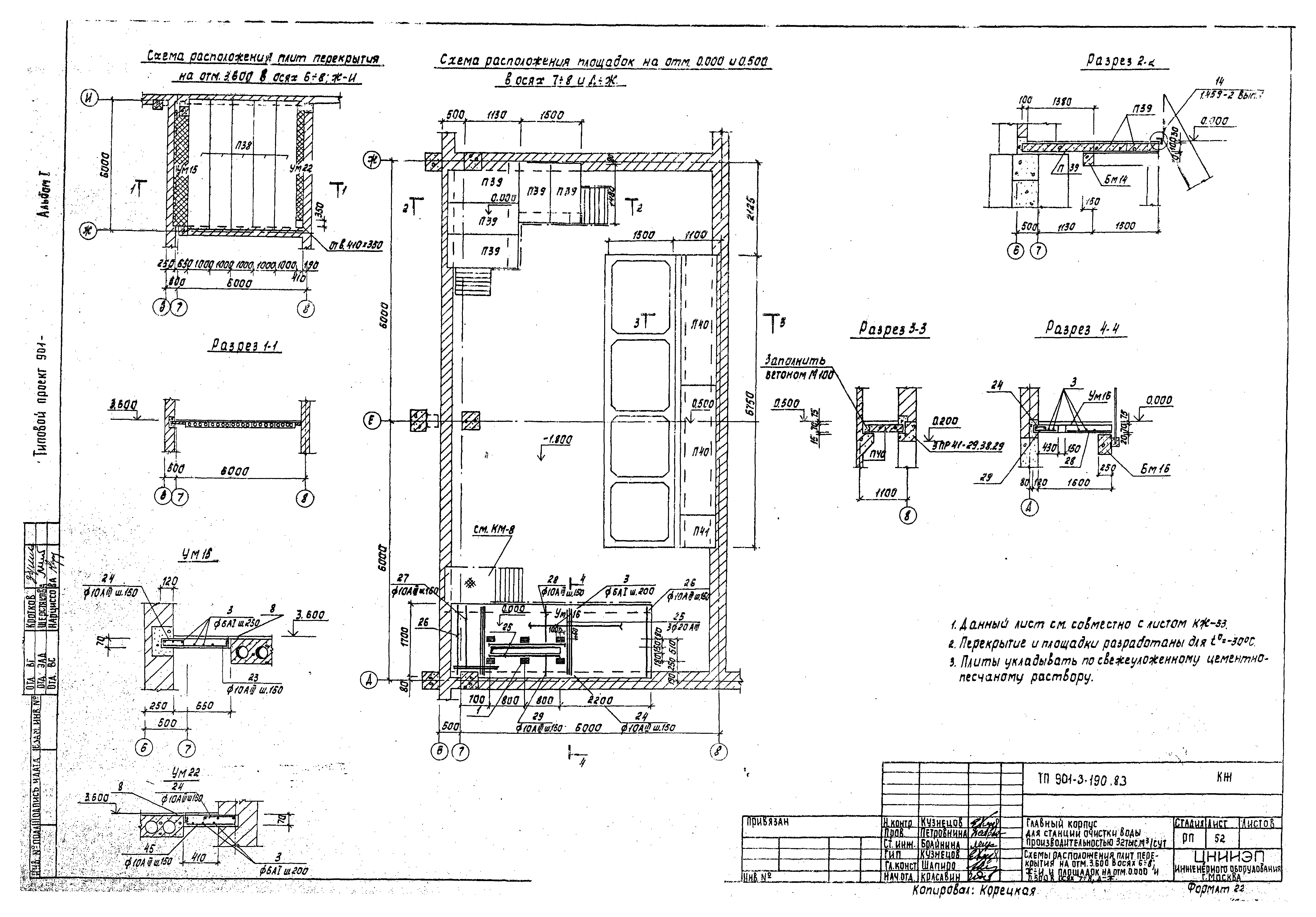
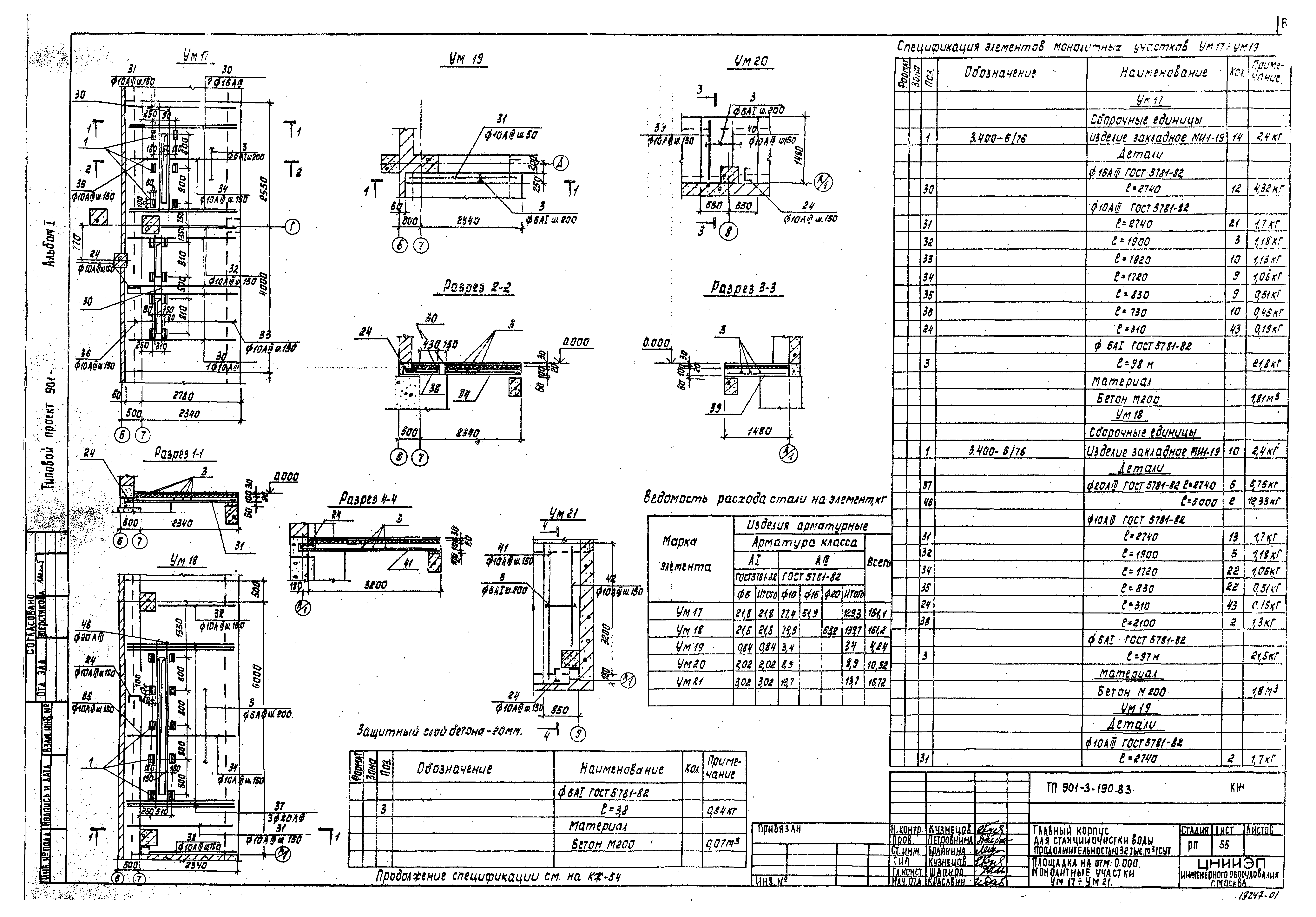
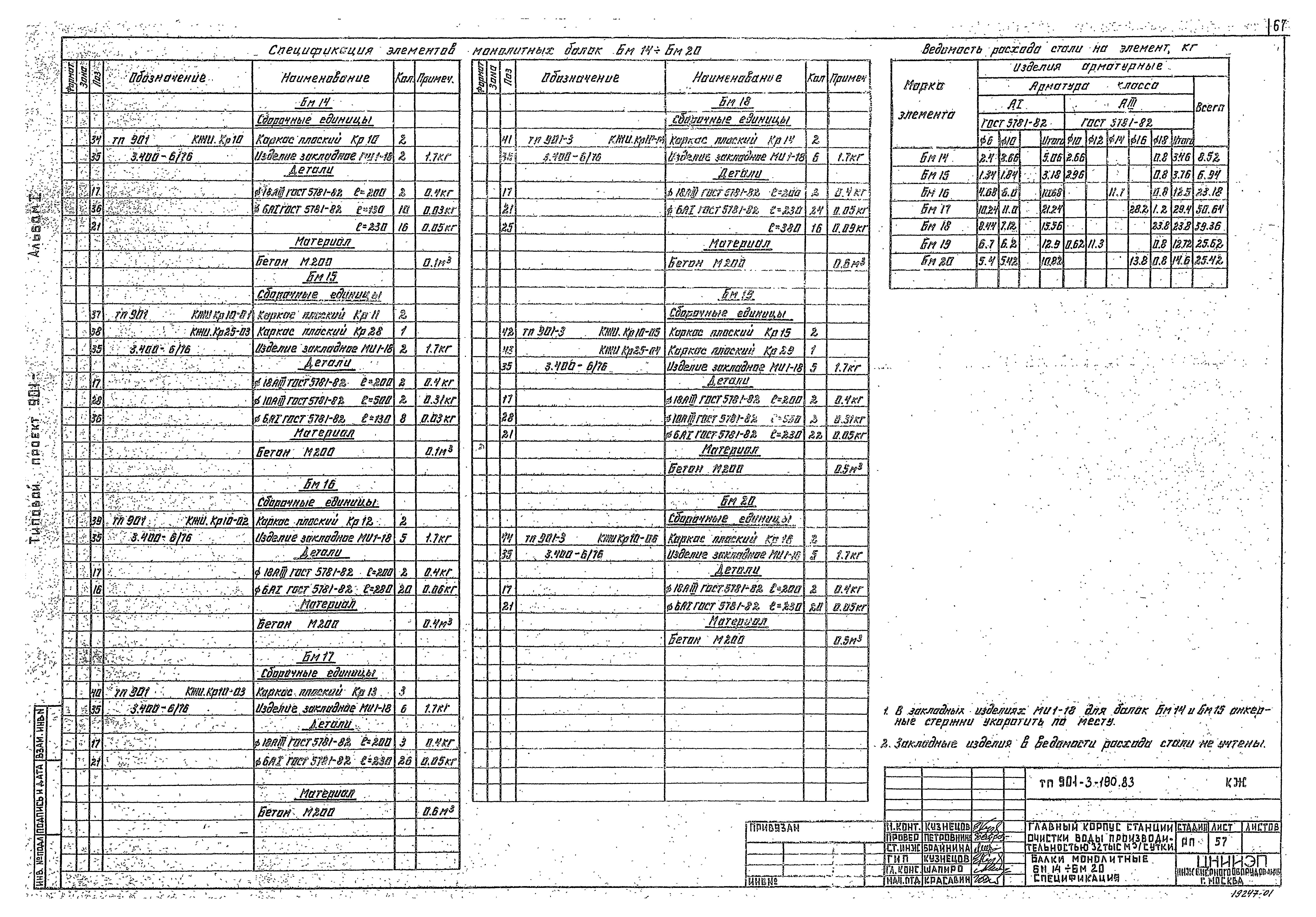
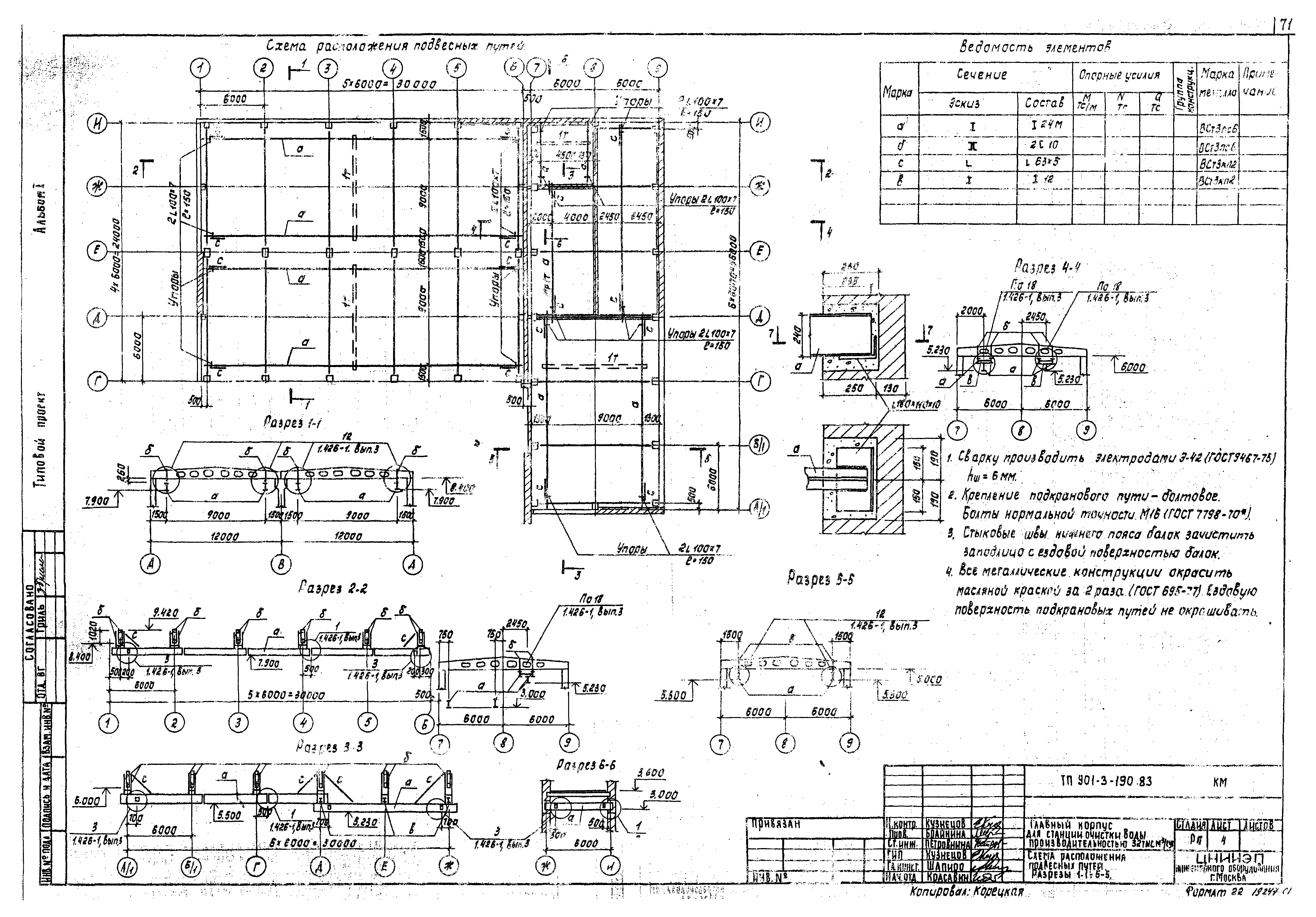
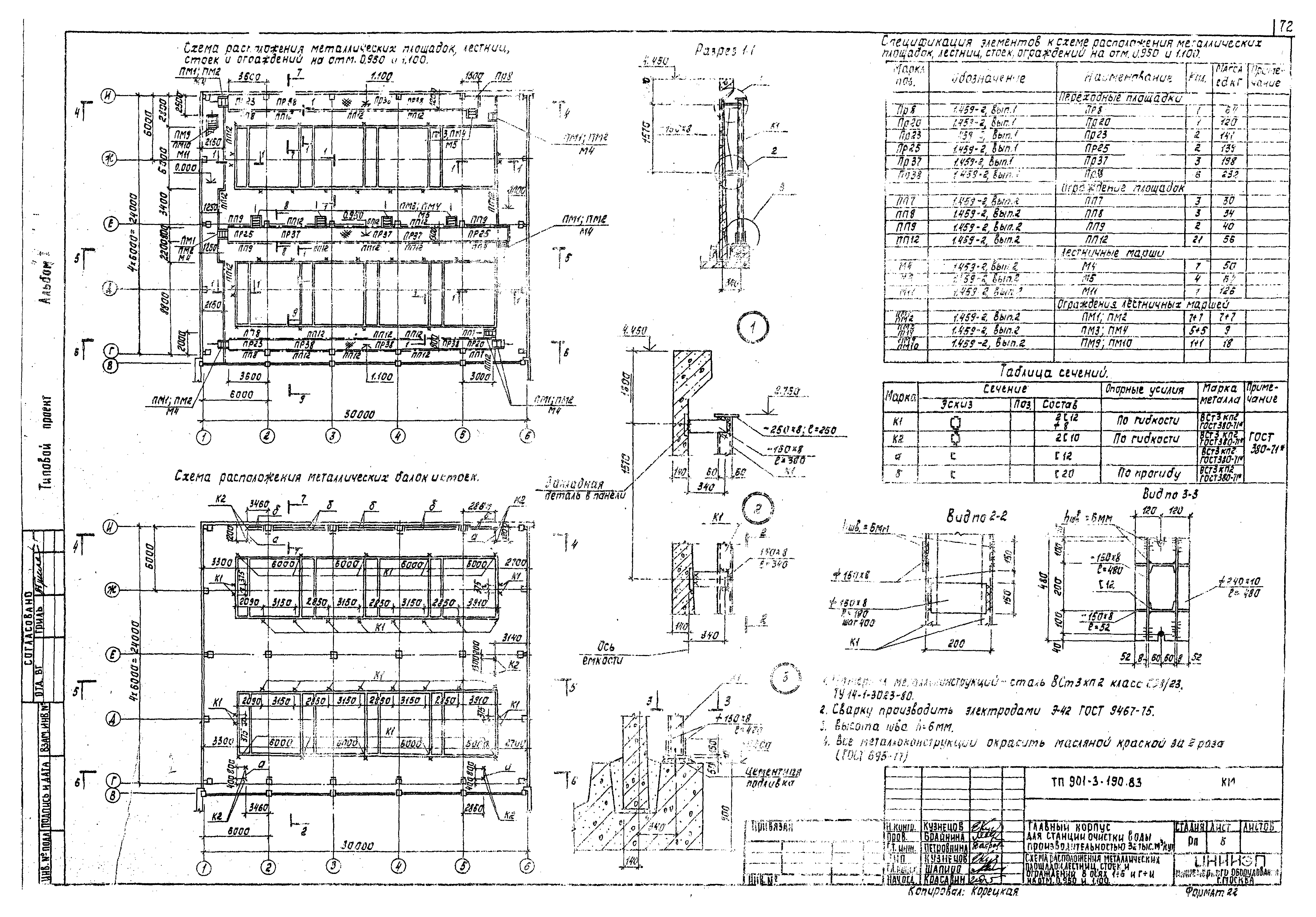
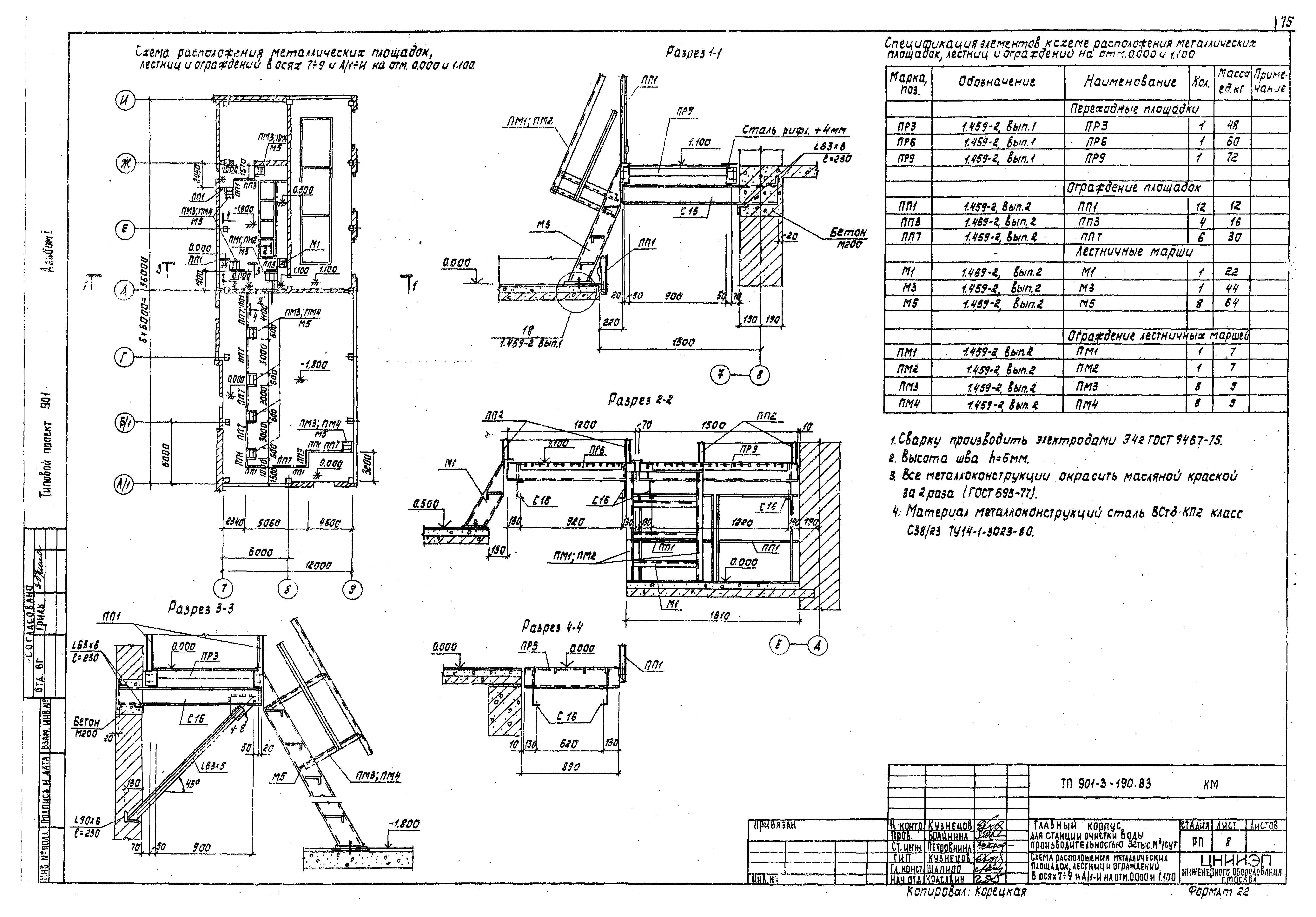
Скачать Типовой проект 901-3-190.83 Альбом I. Архитектурно-строительная частьДата актуализации: 01.01.2021
|
| Обозначение: | Типовой проект 901-3-190.83 |
| Обозначение англ: | 901-3-190.83 |
| Статус: | не определен законодательством |
| Название рус.: | Альбом I. Архитектурно-строительная часть |
| Дата добавления в базу: | 01.09.2013 |
| Дата актуализации: | 01.01.2021 |
| Дата введения: | 23.06.1983 |
| Дата окончания срока действия: | 30.06.2003 |
| Разработан: | ЦНИИЭП инженерного оборудования Госгражданстроя |
| Утверждён: | 23.11.1982 Госгражданстрой (Gosgrazhdanstroy 313) |













































































