Скачать Типовой проект 901-3-190.83 Альбом II. Технологическая, санитарно-техническая части и нестандартизированное оборудованиеДата актуализации: 01.01.2021
|
| Обозначение: | Типовой проект 901-3-190.83 |
| Обозначение англ: | 901-3-190.83 |
| Статус: | не определен законодательством |
| Название рус.: | Альбом II. Технологическая, санитарно-техническая части и нестандартизированное оборудование |
| Дата добавления в базу: | 01.09.2013 |
| Дата актуализации: | 01.01.2021 |
| Дата введения: | 23.06.1983 |
| Дата окончания срока действия: | 30.06.2003 |
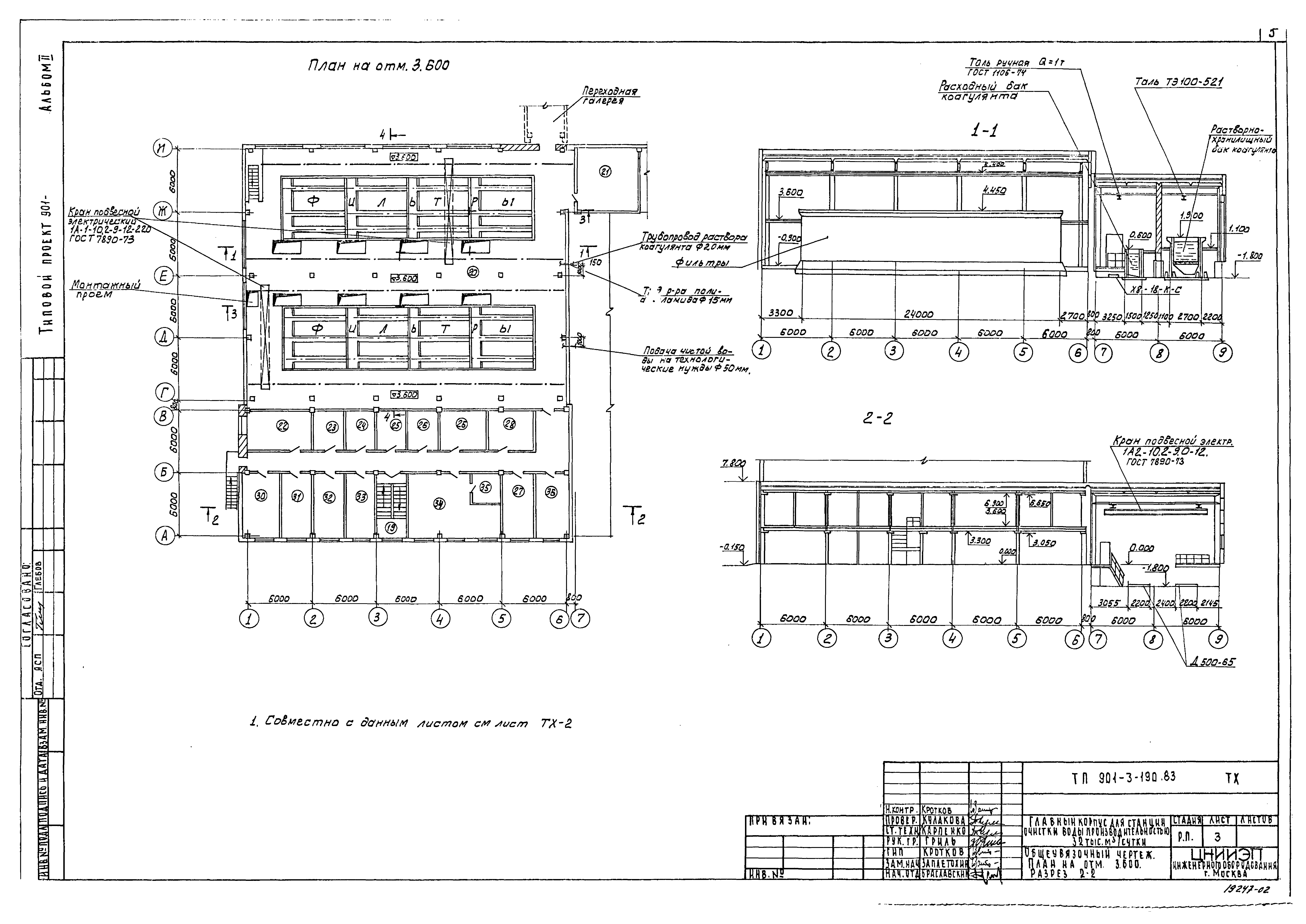
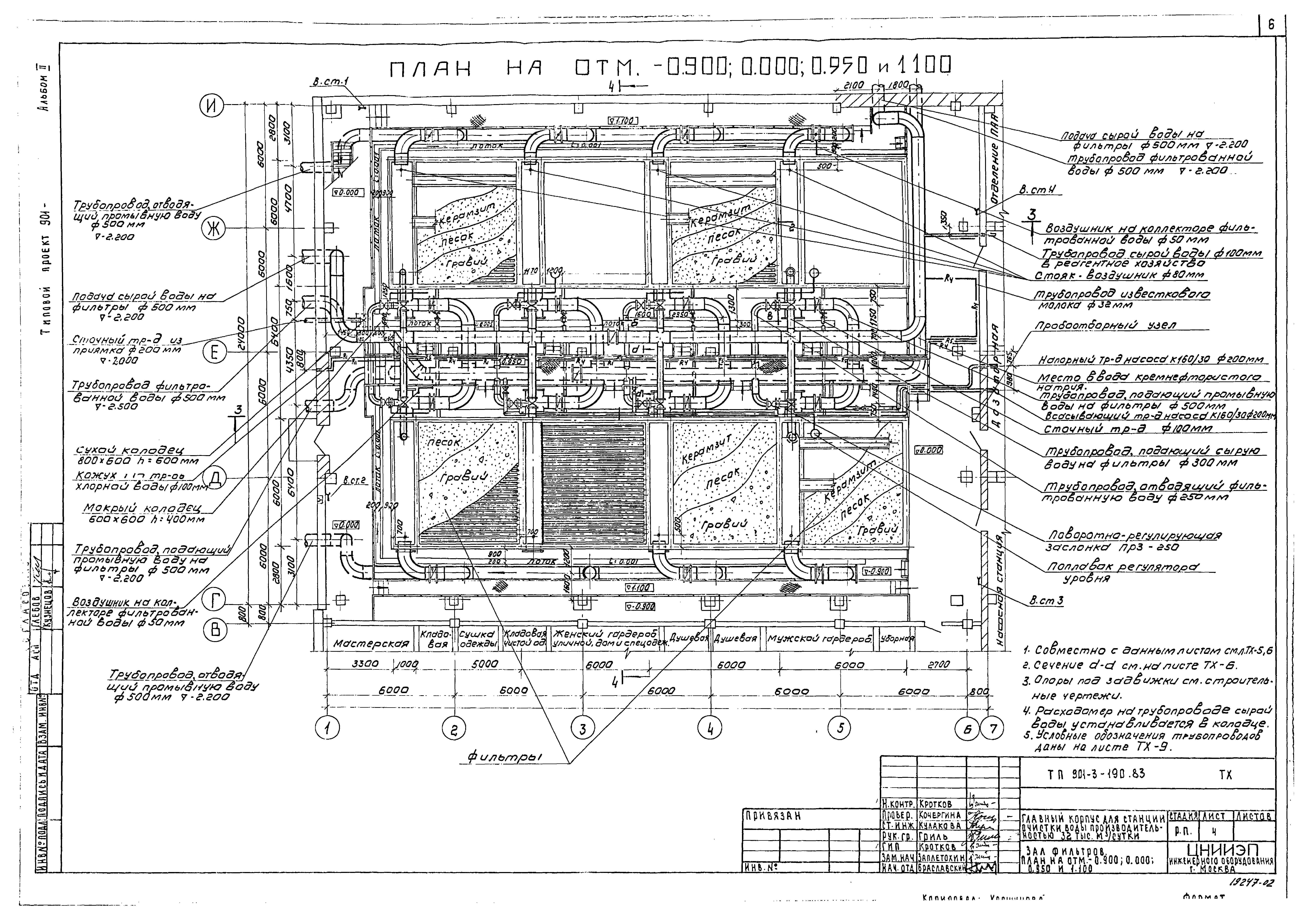
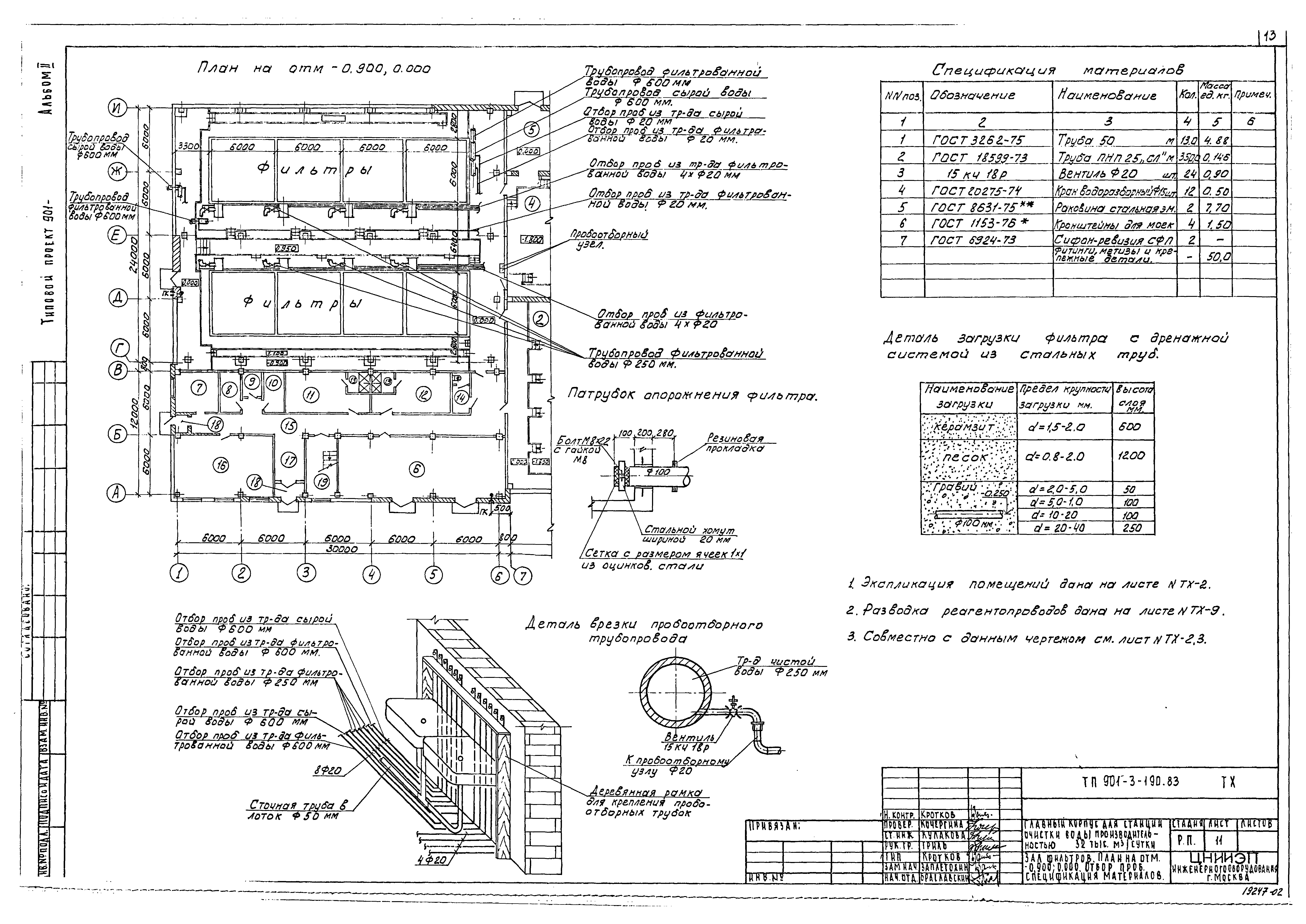
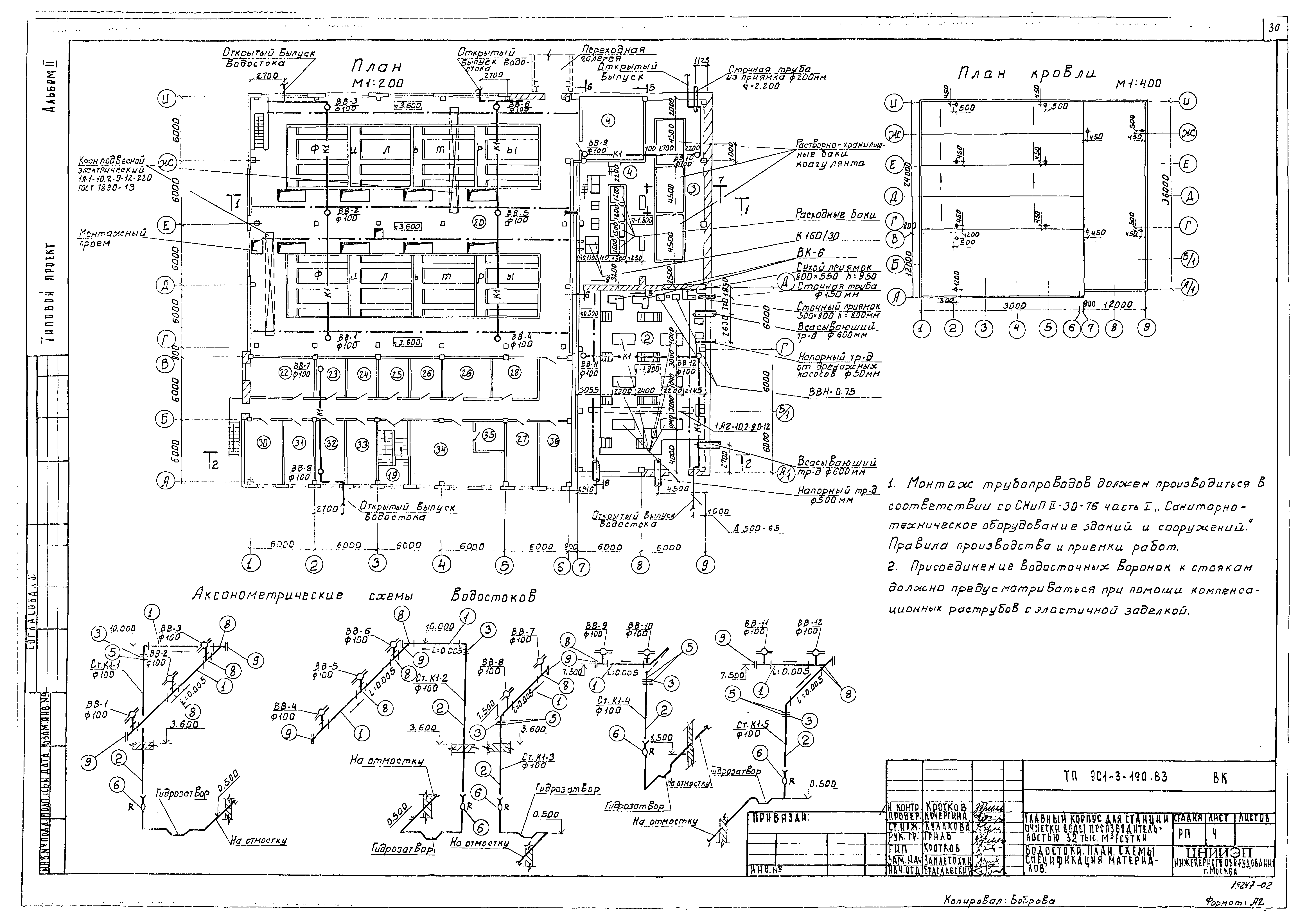
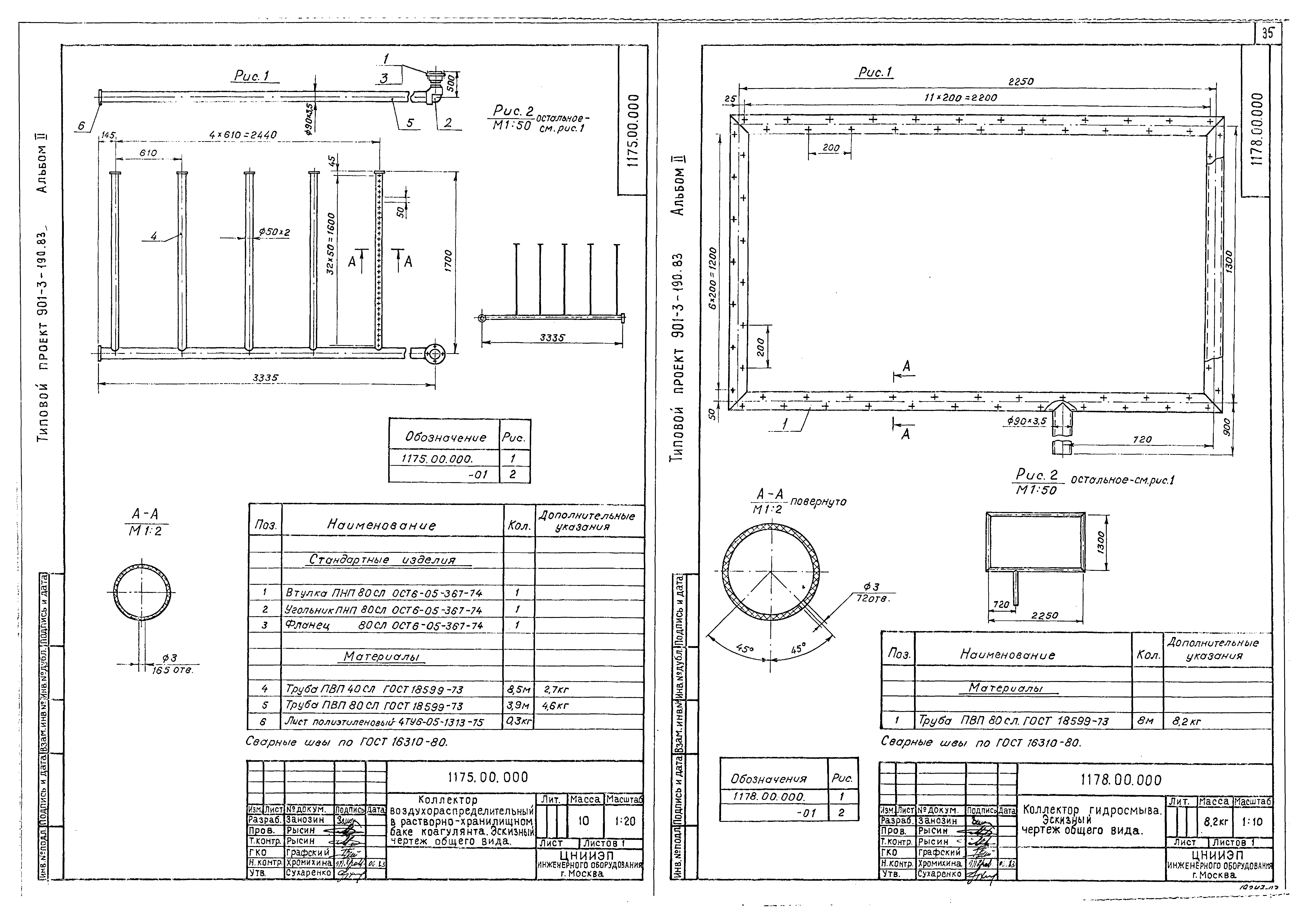
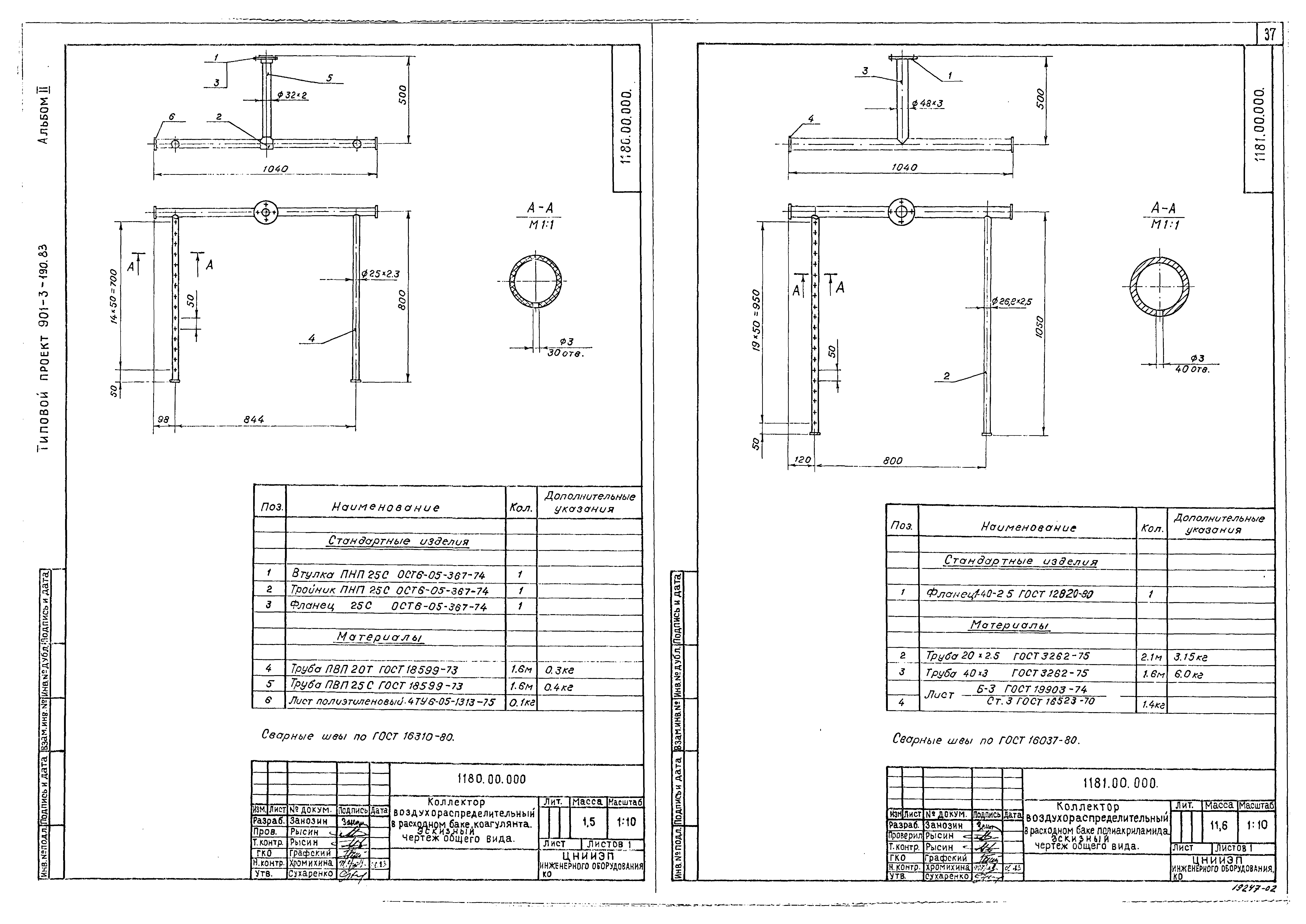
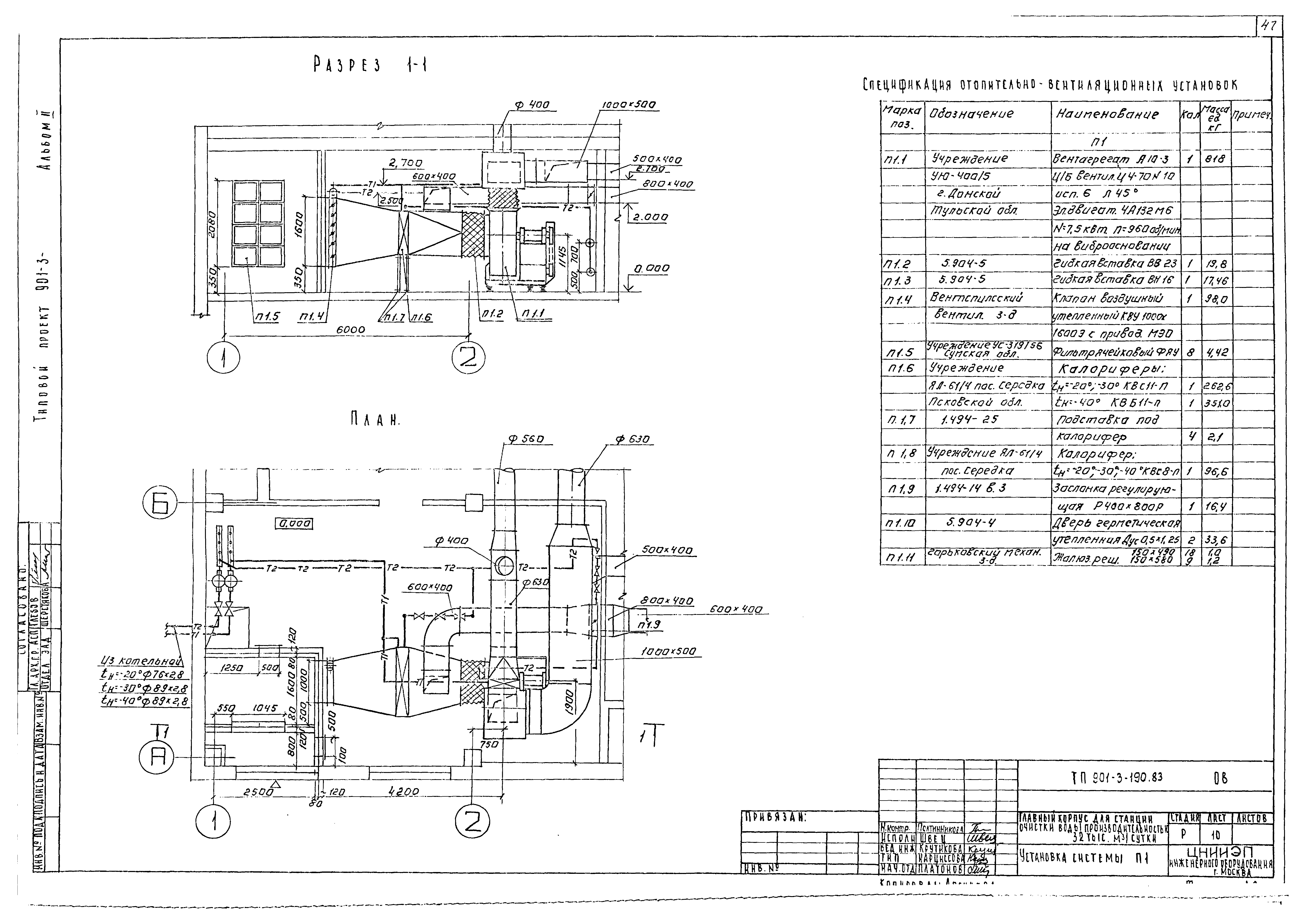
| Оглавление: | Технологическая часть ТХ-1 Общие данные ТХ-2 Общеувязочный чертеж. План на отм. -1.800;0.000. Разрез 1-1. Экспликация помещений ТХ-3 Общеувязочный чертеж. План на отм. 3.600. Разрез 2-2 ТХ-4 Зал фильтров. План на отм. -0.900;0.000;0.950 и 1.100 ТХ-5 Зал фильтров. План на отм. 3.600 ТХ-6 Зал фильтров. Разрезы 3-3;4-4 ТХ-7 Зал фильтров. Аксонометрическая схема трубопроводов сырой воды. Фильтрованной воды и подачи промывной воды на фильтры ТХ-8 Зал фильтров. Аксонометрическая схема трубопроводов опорожнения фильтров и отвода промывной воды ТХ-9 Зал фильтров. Аксонометрическая схема трубопроводов насосов к 160,30 воды на технологические нужды и реагентопроводов ТХ-10 Зал фильтров. Спецификация материалов и оборудования. Загрузка фильтров ТХ-11 Зал фильтров. План на отм. -0.900;0.000. Отбор проб. Спецификация материалов ТХ-12 Реагентное хозяйство. План на отм. -1.800 ТХ-13 Реагентное хозяйство. План на отм. 1.100 ТХ-14 Реагентное хозяйство. Разрез 5-5 ТХ-15 Реагентное хозяйство. Разрез 6-6 ТХ-16 Реагентное хозяйство. Разрез 7-7 ТХ-17 Реагентное хозяйство. Аксонометрическая схема трубопроводов раствора коагулянта, полиакриламида и промканализации ТХ-18 Реагентное хозяйство. Аксонометрическая схема трубопроводов сырой, чистой воды и сжатого воздуха ТХ-19 Реагентное хозяйство. Спецификация материалов. Спецификация оборудования ТХ-20 Насосная станция. План на отм. -1.800;0.000 ТХ-21 Насосная станция. Разрезы 8-8;9-9 ТХ-22 Насосная станция. Аксонометрические схемы технологических трубопроводов. Спецификация оборудования ТХ-23 Насосная станция. Аксонометрические схемы трубопроводов воздуходувок ВК-6 и промканализации ТХ-24 Лаборатории. План на отм. 3.600. Спецификация мебели и основного оборудования Санитарно-техническая часть ВК-1 Общие данные ВК-2 Бытовые помещения. План на отм. -1.800;0.000 и 3.600. Внутренний водопровод и канализация ВК-3 Внутренний водопровод и канализация. Схемы. Спецификация материалов ВК-4 Водостоки. План. Схемы. Спецификация материалов Нестандартизированное оборудование ТХН-1 Регулятор уровня. Общий вид ТХН-2 Регулятор уровня. Виды и разрезы ТХН-3 Поплавок 668.00.000ВО. Воздухозаборное устройство Ду 150 1025.00.000 ТХН-4 Заслонка поворотная регулирующая Ду 250 778.00.000 ТХН-5 Коллектор воздухораспределительный в растворно-хранилищном баке коагулянта 1175.00.000;1175.00.000-01. Коллектор гидросмыва 1178.00.000;1178.00.000-01 ТХН-6 Коллектор дренажный 1179.00.000 ТХН-7 Коллектор воздухораспределительный в расходном баке коагулянта 1180.00.000. Коллектор воздухораспределительный в расходном баке полиакриламида 1181.00.000 Отопление и вентиляция ОВ-1 Общие данные (начало) ОВ-2 Общие данные (продолжение) ОВ-3 Общие данные (продолжение) ОВ-4 Общие данные (продолжение) ОВ-5 Общие данные (окончание) ОВ-6 Планы на отм. -1.800;0.000;1.100;3.600. Вентиляция ОВ-7 Планы на отм. -1.800;0.000;1.100;3.600. Отопление ОВ-8 Схемы систем отопления. План. Разрез 1-1. Схема регистра помещения сушки одежды ОВ-9 Схемы систем вентиляции П1;В1-В10;ВЕ1;ВЕ2 ОВ-10 Установка системы П1 ОВ-11 Установки систем В5;В6;В7;В8;В9;В10 ОВ-12 Схема системы теплоснабжения установки П1 ОВН-1 Рама для крепления фильтра ОВН-2 Переходы ОВН-3 Воздуховод из асбестоцементных листов ОВН-4 Узлы соединений |
| Разработан: | ЦНИИЭП инженерного оборудования Госгражданстроя |
| Утверждён: | 23.11.1982 Госгражданстрой (Gosgrazhdanstroy 313) |



















































