Скачать Типовой проект 902-1-70.83 Альбом IV. Строительные решения. Подземная часть. Монолитный вариант (открытый способ в сухих грунтах)Дата актуализации: 01.01.2021
|
| Обозначение: | Типовой проект 902-1-70.83 |
| Обозначение англ: | 902-1-70.83 |
| Статус: | действует |
| Название рус.: | Альбом IV. Строительные решения. Подземная часть. Монолитный вариант (открытый способ в сухих грунтах) |
| Дата добавления в базу: | 01.09.2013 |
| Дата актуализации: | 01.01.2021 |
| Дата введения: | 28.10.1983 |
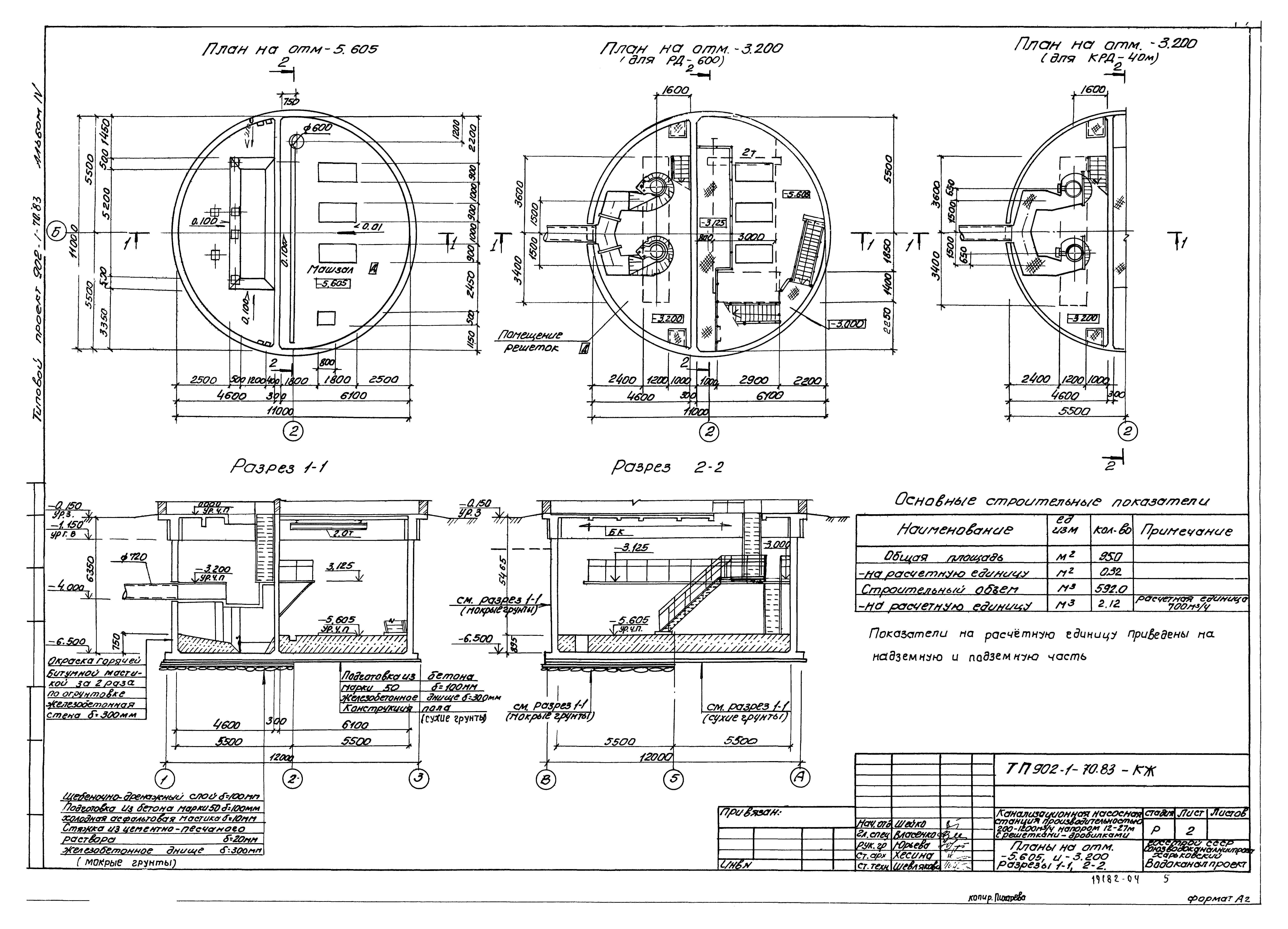
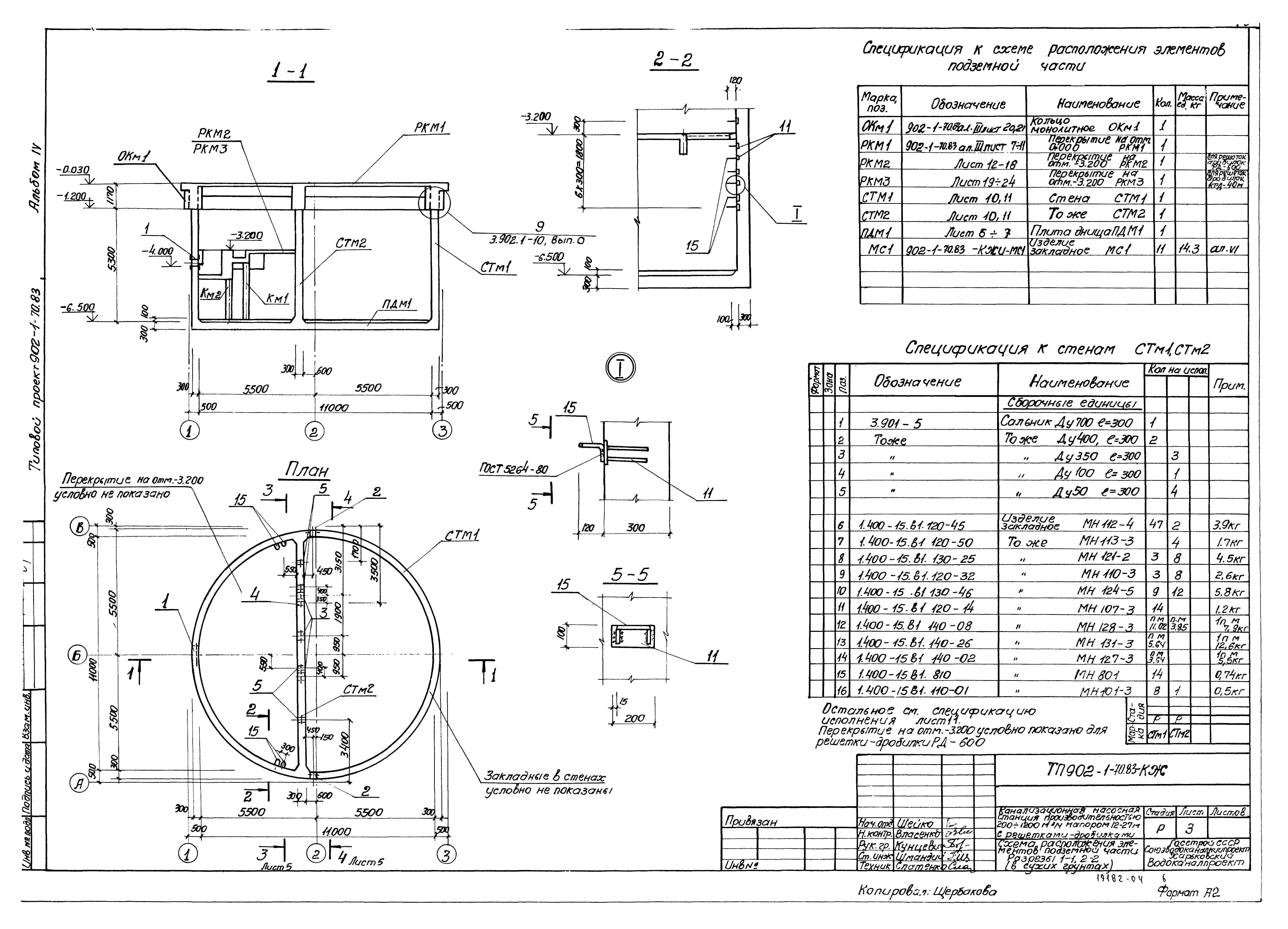
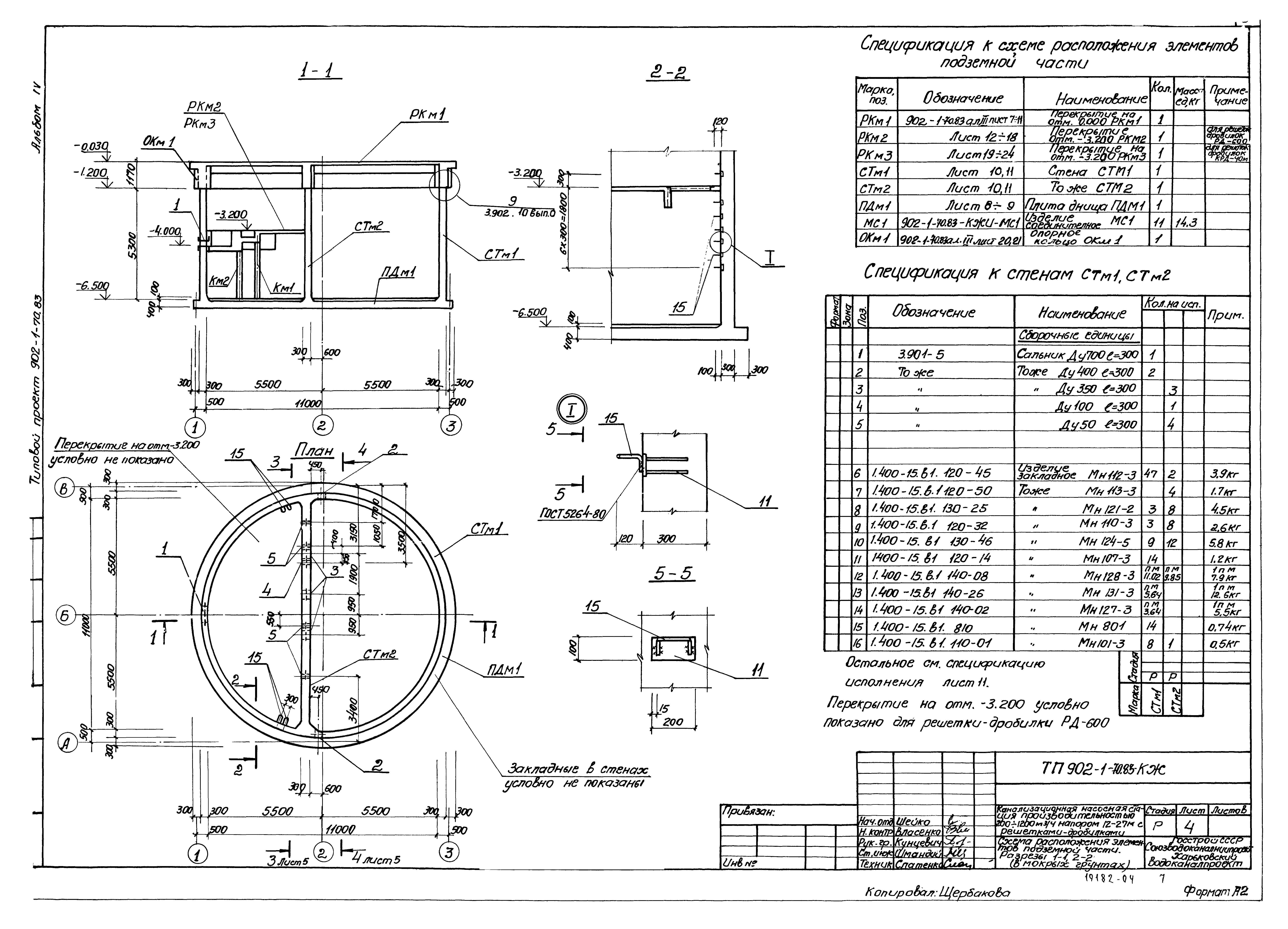
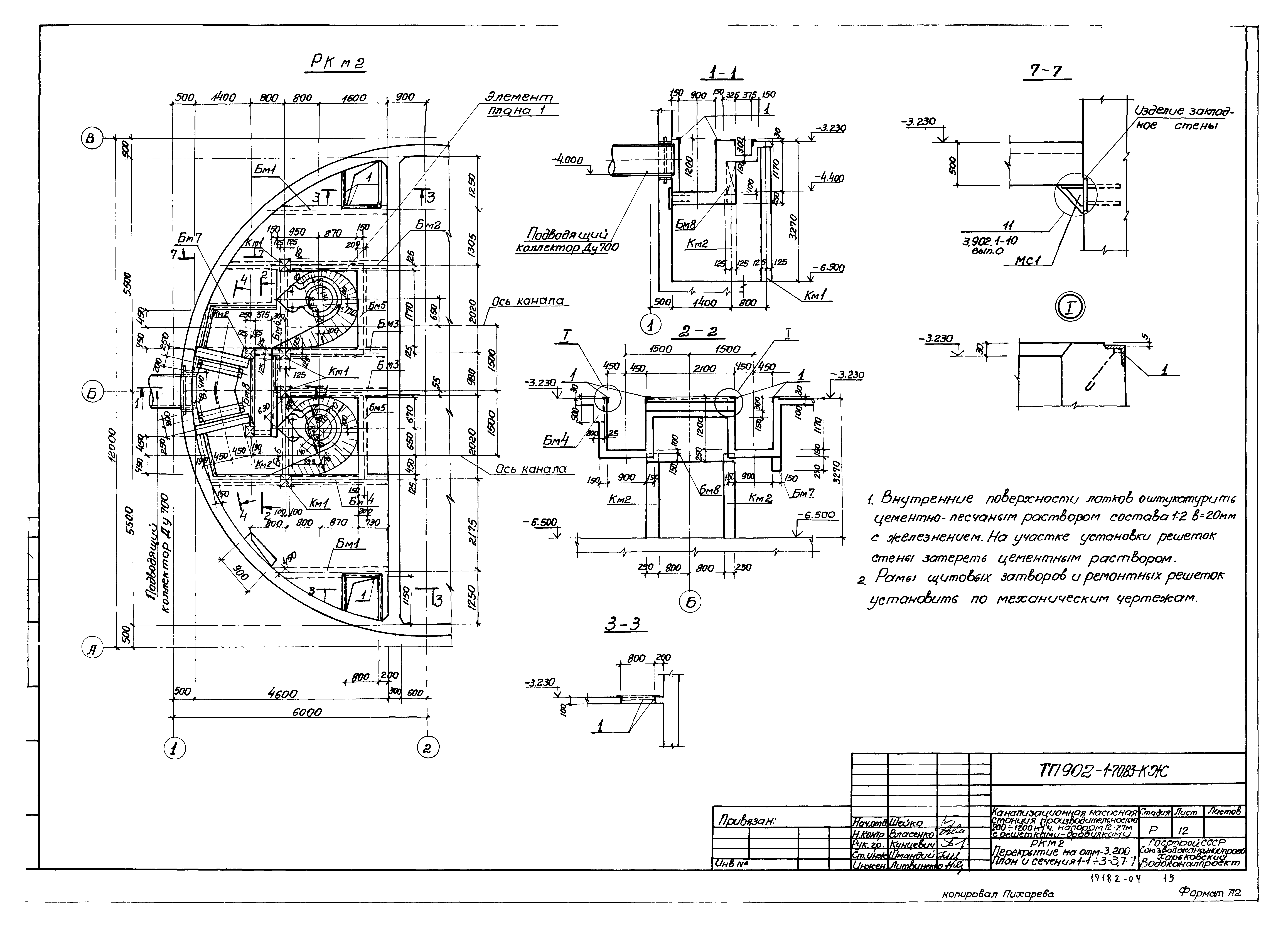
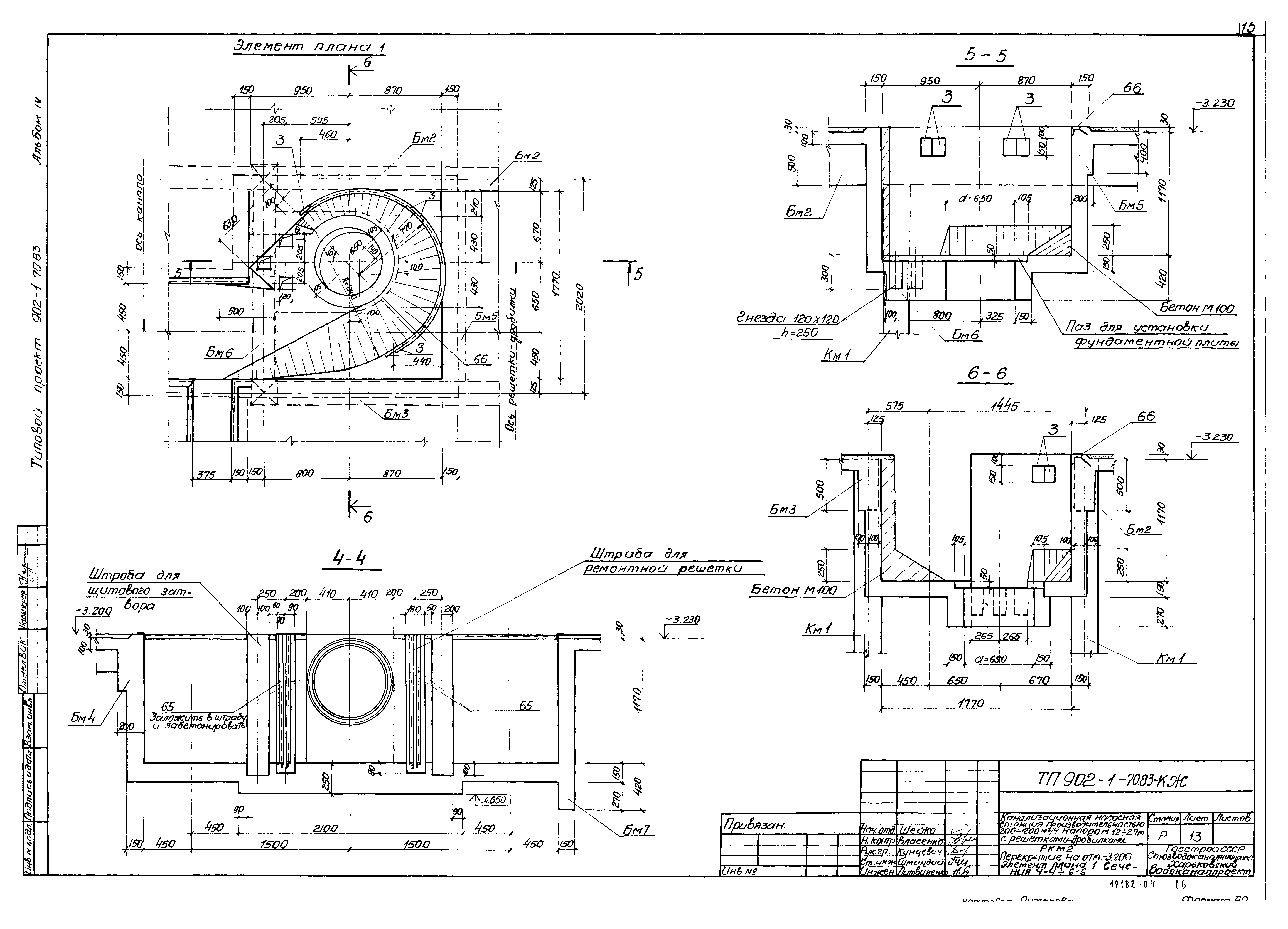
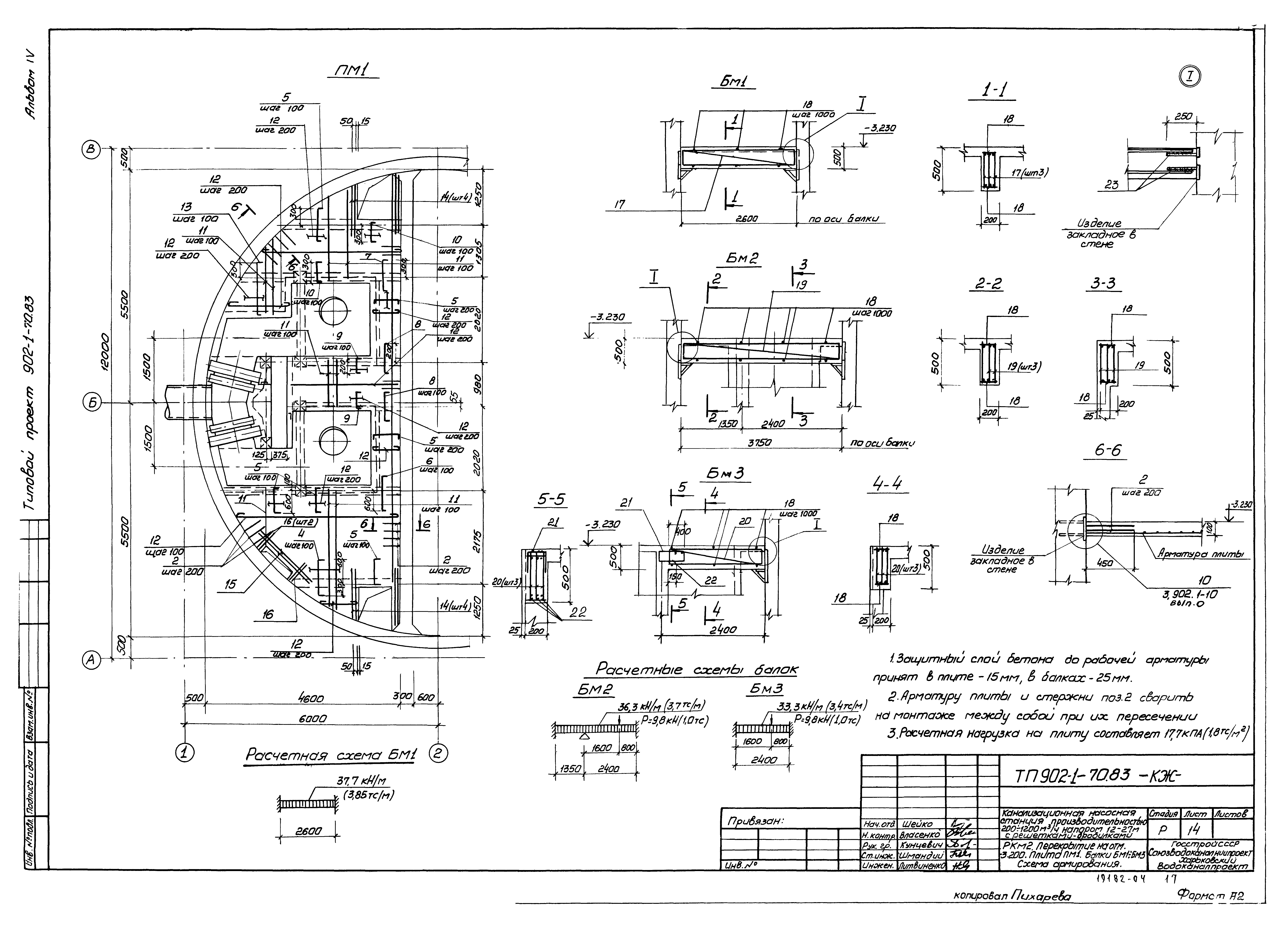
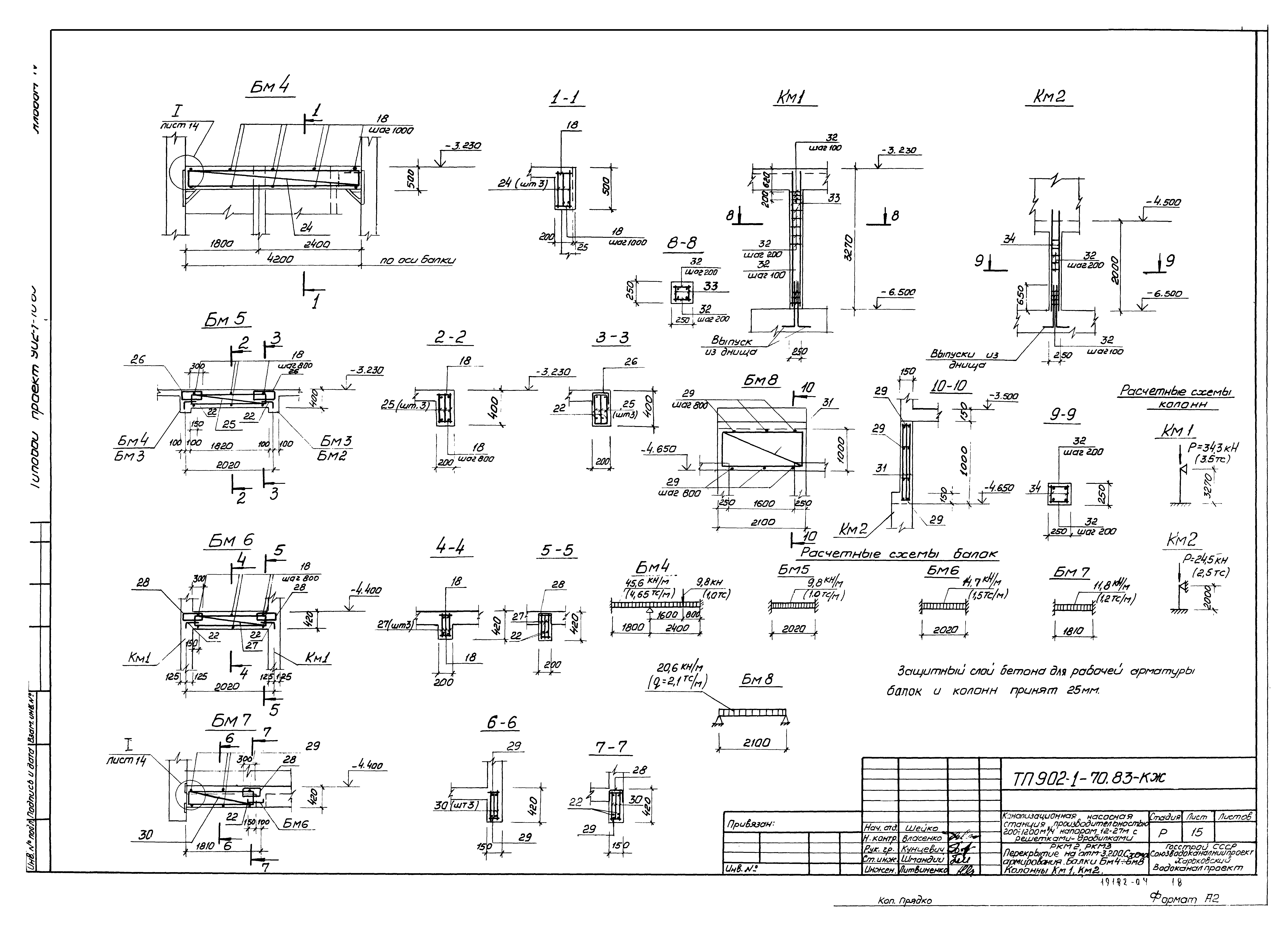
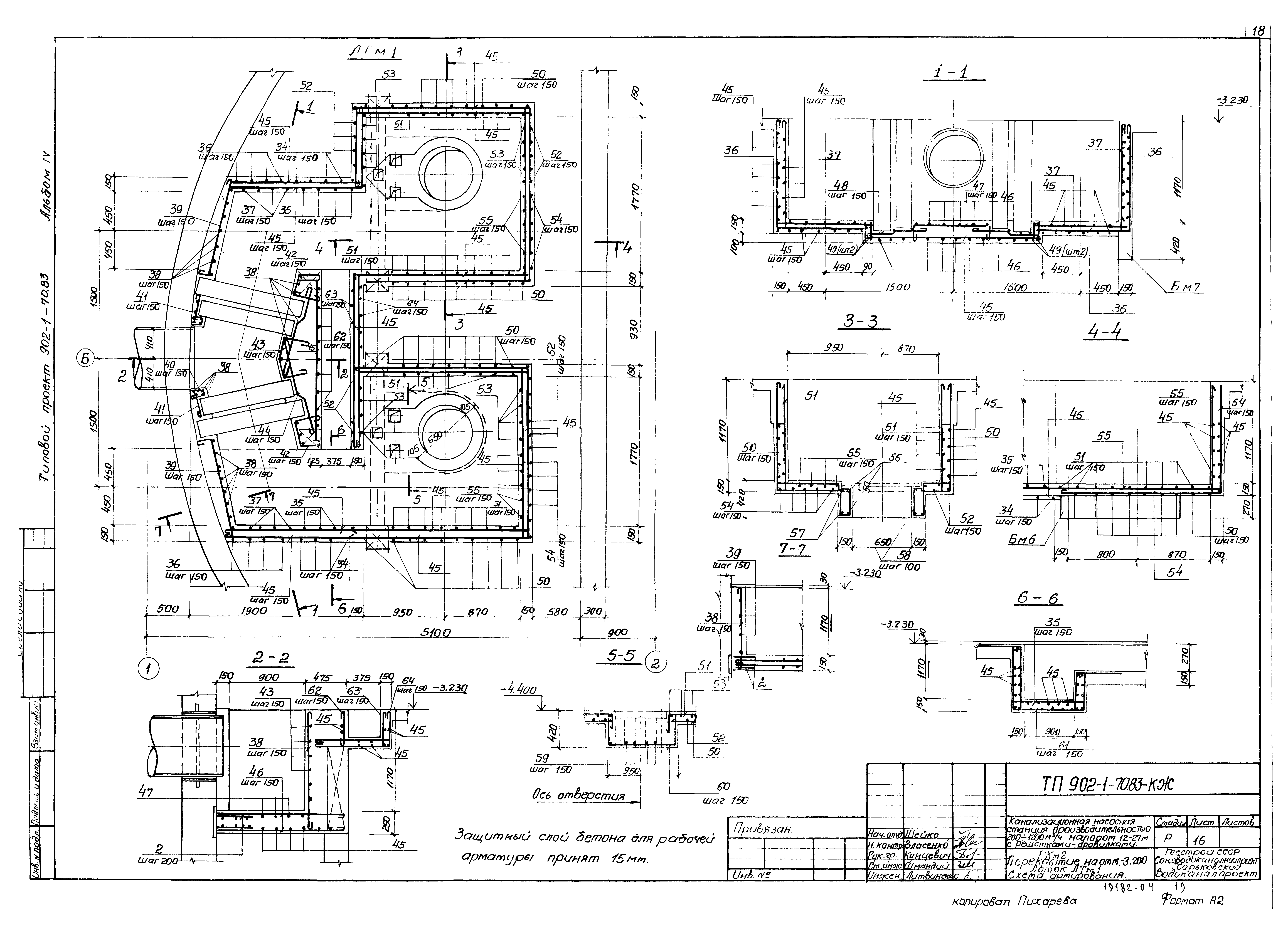
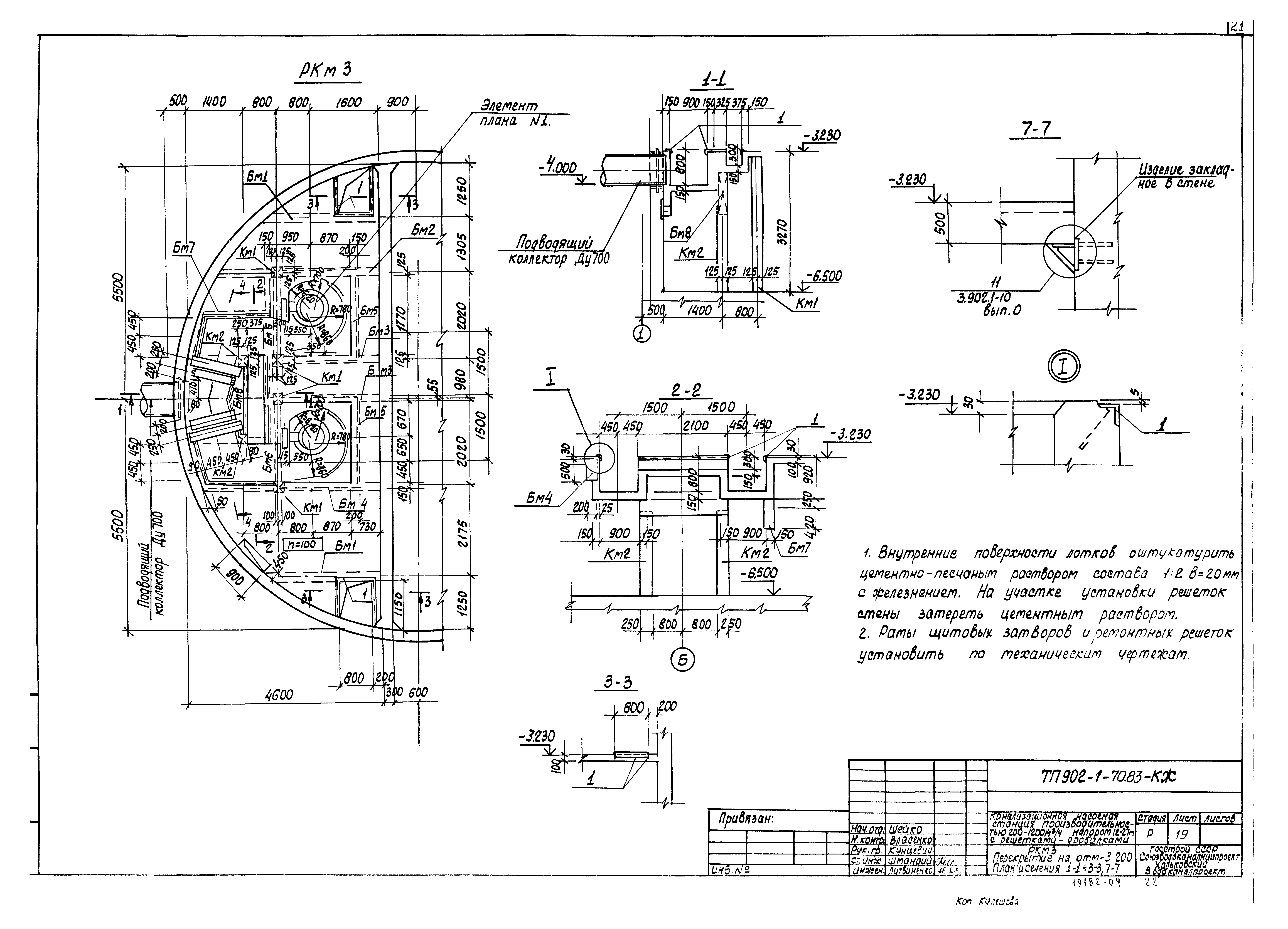
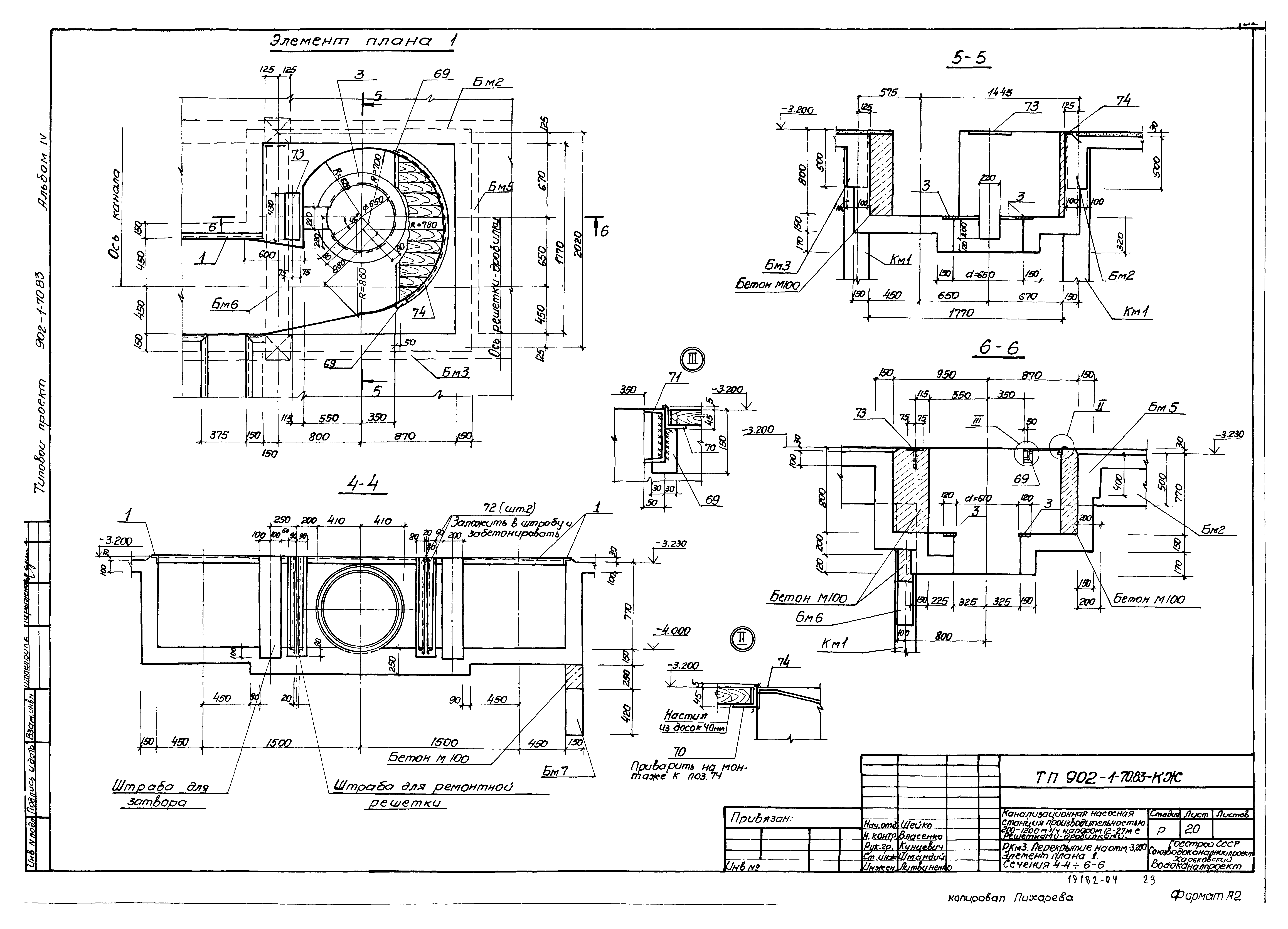
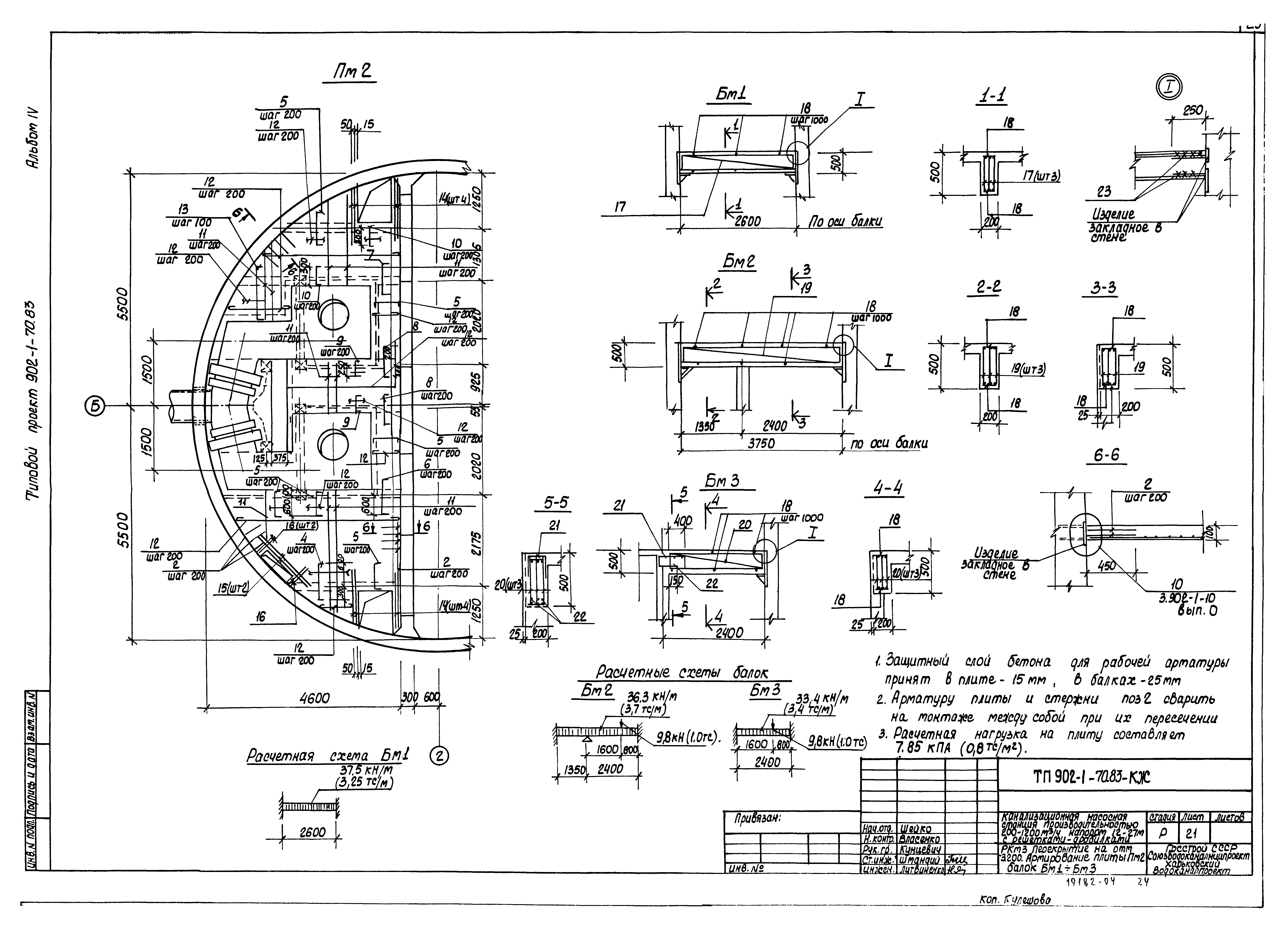
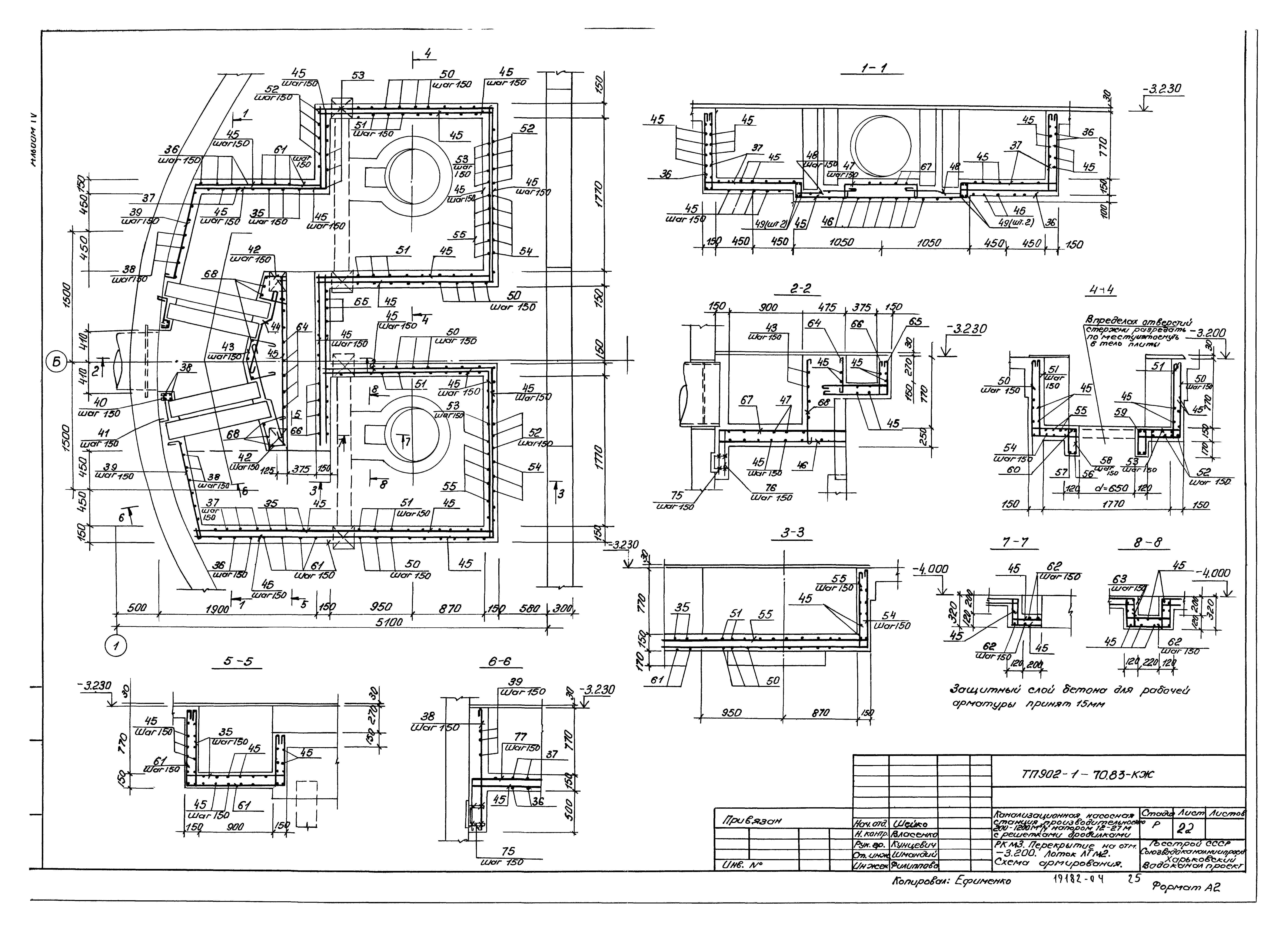
| Оглавление: | Содержание Основной комплект КЖ Общие данные Планы на отм. -5.605 и -3.200. Разрезы 1-1,2-2 Схема расположения элементов подземной части. Разрезы 1-1,2-2 (в сухих грунтах) Схема расположения элементов подземной части. Разрезы 1-1,2-2 (в мокрых грунтах) СТМ1. Развертка. Разрезы 3-3,4-4. Узел 1 Плита днища ПДМ1. Схема армирования (в сухих грунтах) Плита днища ПДМ1. Схема армирования. Раскрой сеток (в сухих грунтах) Плита днища ПДМ1. Схема армирования (в мокрых грунтах) Плита днища ПДМ1. Схема армирования. Раскрой сеток (в мокрых грунтах) СТМ1,СТМ2. Схема армирования СТМ1,СТМ2. Схема армирования. Спецификация РКМ2. Перекрытие на отм. -3.200. План и сечения 1-1÷3-3,7-7 РКМ2. Перекрытие на отм. -3.200. Элемент плана 1. Сечения 4-4÷6-6 РКМ2. Перекрытие на отм. -3.200. Плита ПМ1. Балки БМ1-БМ3. Схема армирования РКМ2,РКМ3. Перекрытие на отм. -3.200. Схема армирования. Балки БМ4-БМ8. Колонны КМ1,КМ2 РКМ2. Перекрытие на отм. -3.200. Лоток ЛТМ1. Схема армирования РКМ2. Спецификация перекрытия (начало) РКМ2. Спецификация перекрытия (окончание) РКМ3. Перекрытие на отм. -3.200. План и сечения 1-1÷3-3,7-7 РКМ3. Перекрытие на отм. -3.200. Элемент плана. Сечения 4-4÷6-6 РКМ3. Перекрытие на отм. -3.200. Армирование плиты ПМ2, балок БМ1-БМ3 РКМ3. Перекрытие на отм. -3.200. Лоток ЛТМ2. Схема армирования РКМ3. Спецификация перекрытия (начало) РКМ3. Спецификация перекрытия (окончание) Основной комплект КМ Общие данные (начало) Общие данные (окончание) Схема расположения лестниц и лестничных площадок. Разрезы 1-1,2-2 Схемы узлов лестниц. Узел 1 Узлы 2-5 |
| Разработан: | Харьковский Водоканалпроект |
| Утверждён: | 27.06.1983 СоюзводоканалНИИпроект (SoyuzvodokanalNIIproject 32) |































