Скачать Типовой проект 902-2-165 Альбом I. Пояснительная записка и чертежиДата актуализации: 01.01.2021
|
| Обозначение: | Типовой проект 902-2-165 |
| Обозначение англ: | 902-2-165 |
| Статус: | заменен |
| Название рус.: | Альбом I. Пояснительная записка и чертежи |
| Дата добавления в базу: | 01.09.2013 |
| Дата актуализации: | 01.01.2021 |
| Дата введения: | 30.04.1973 |
| Дата окончания срока действия: | 01.04.1983 |
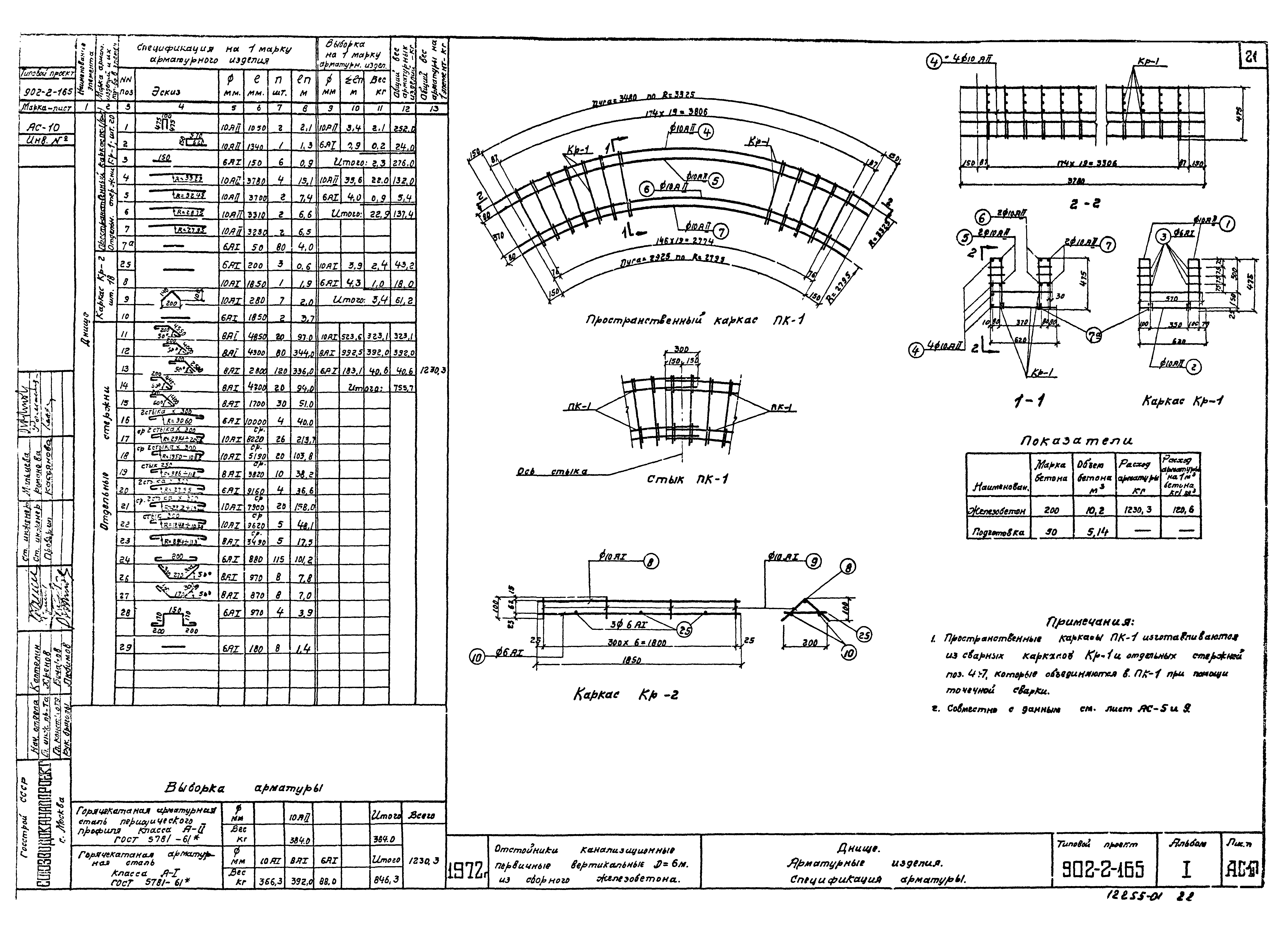
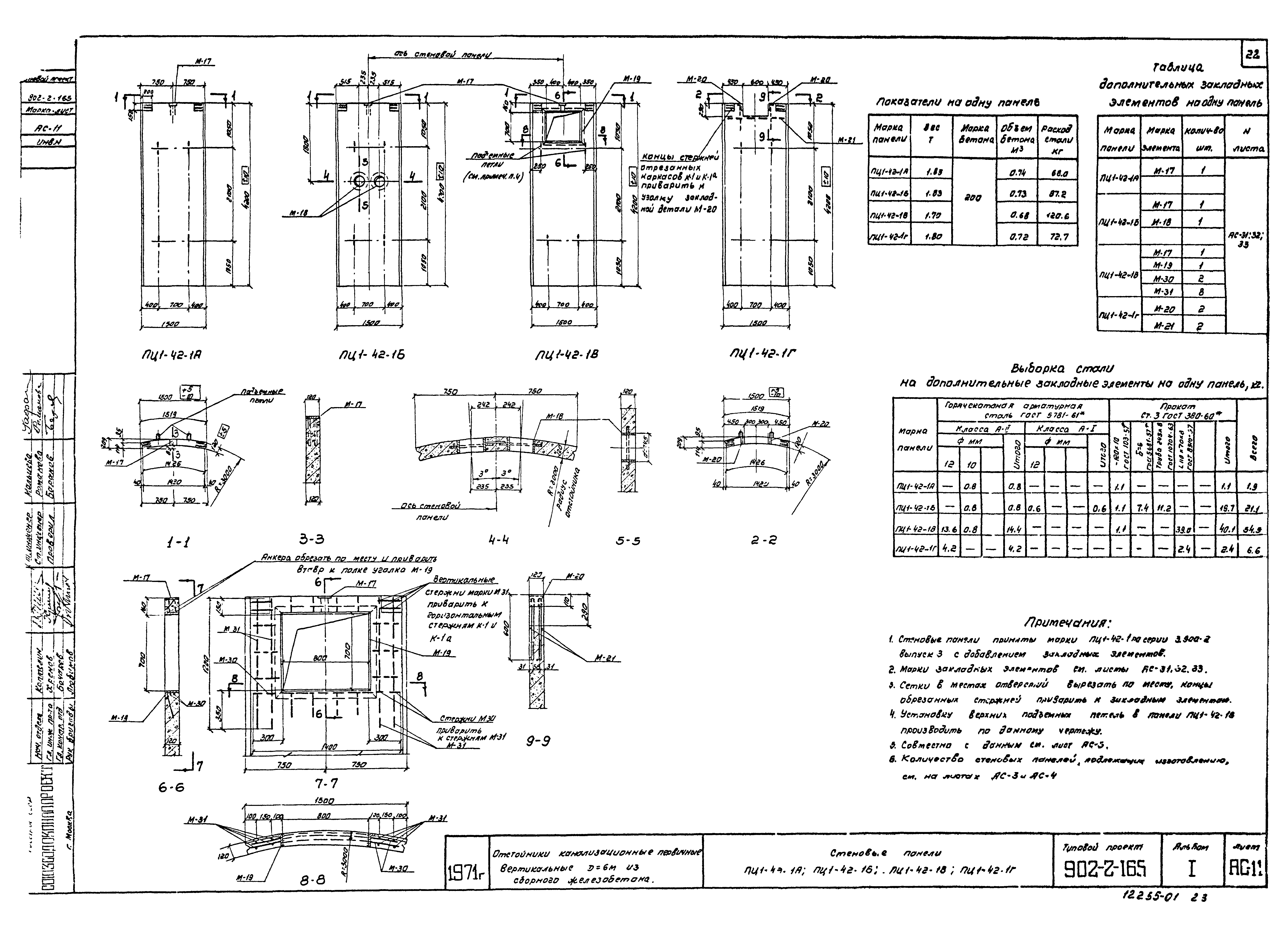
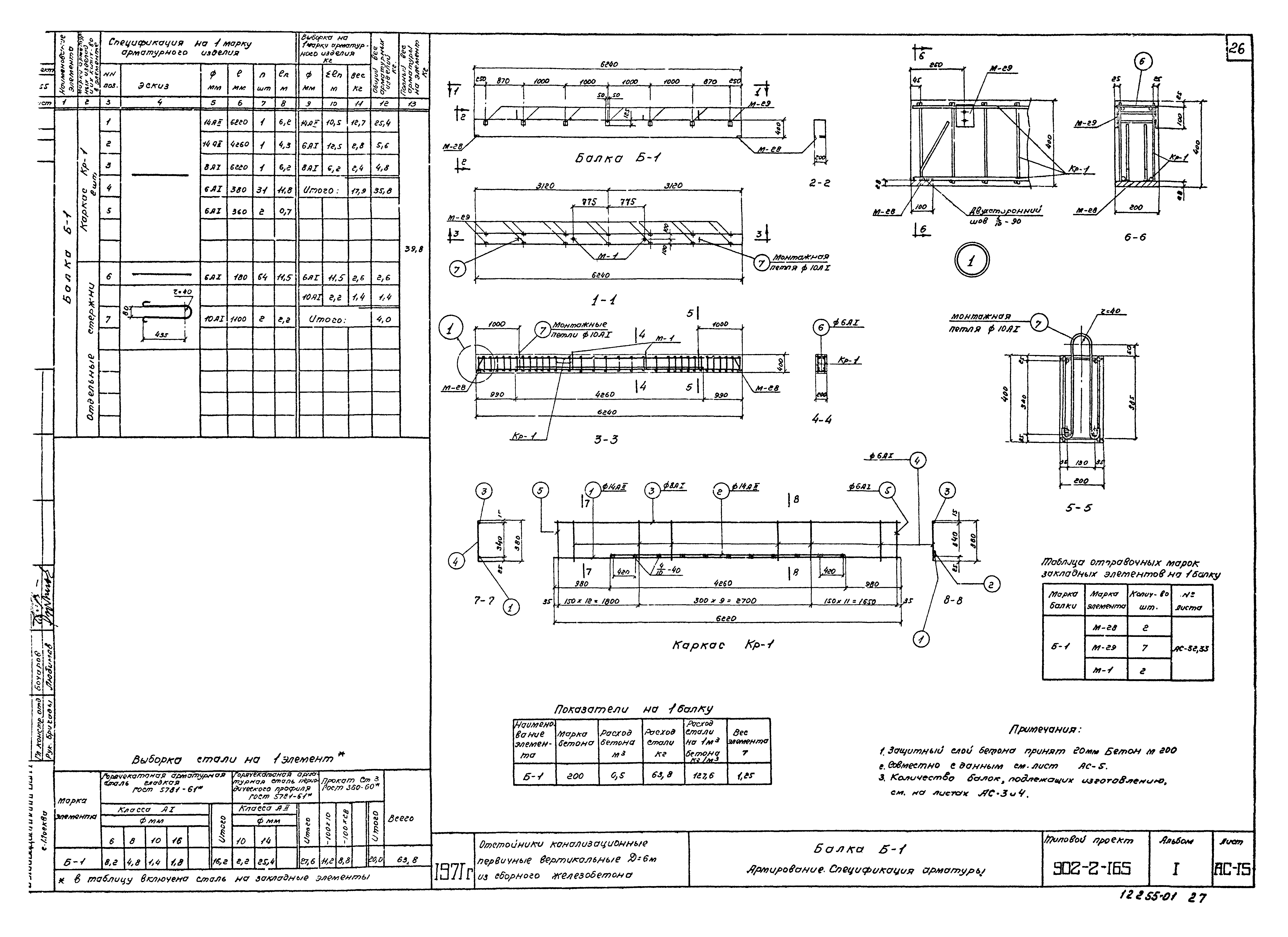
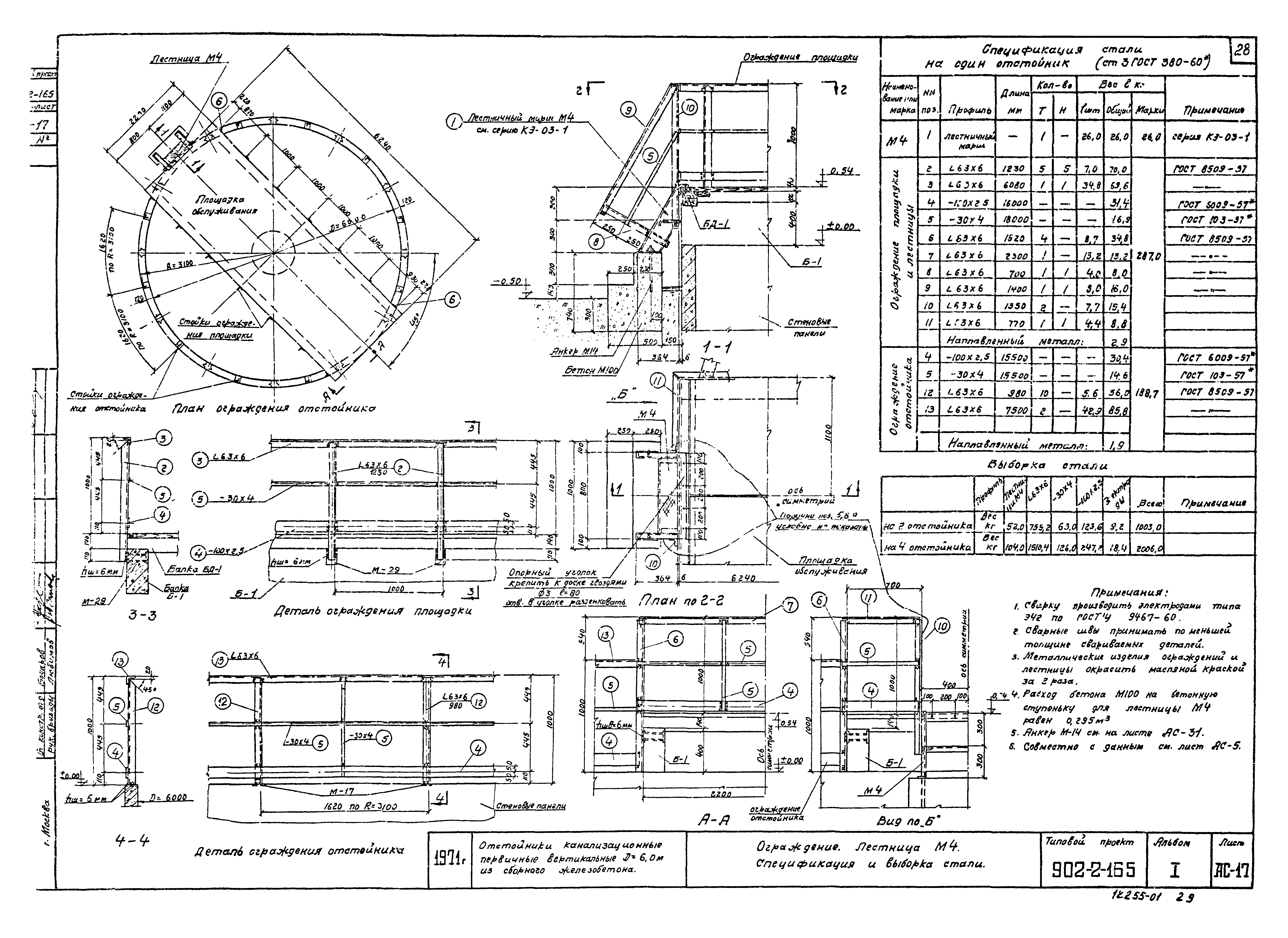
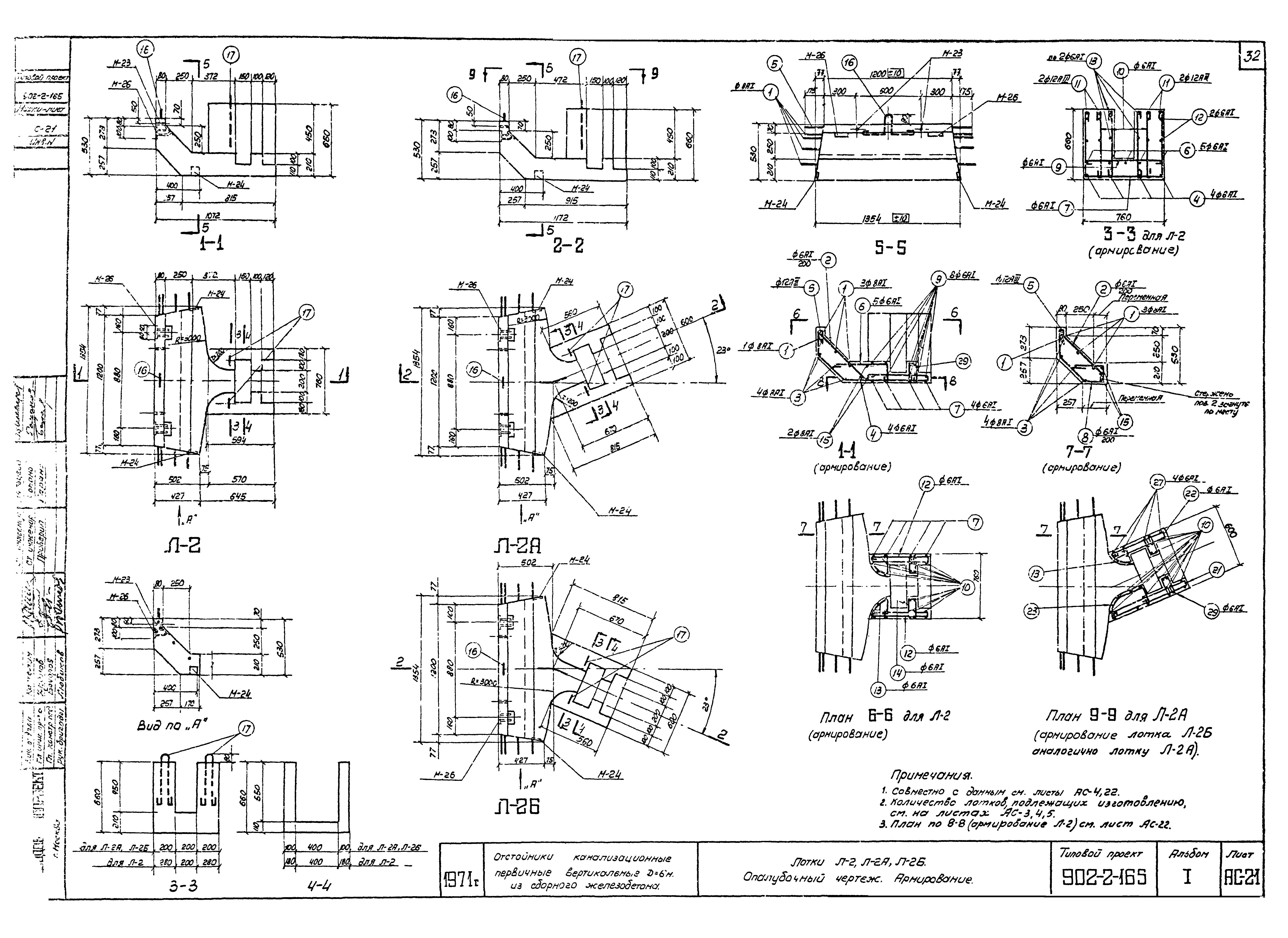
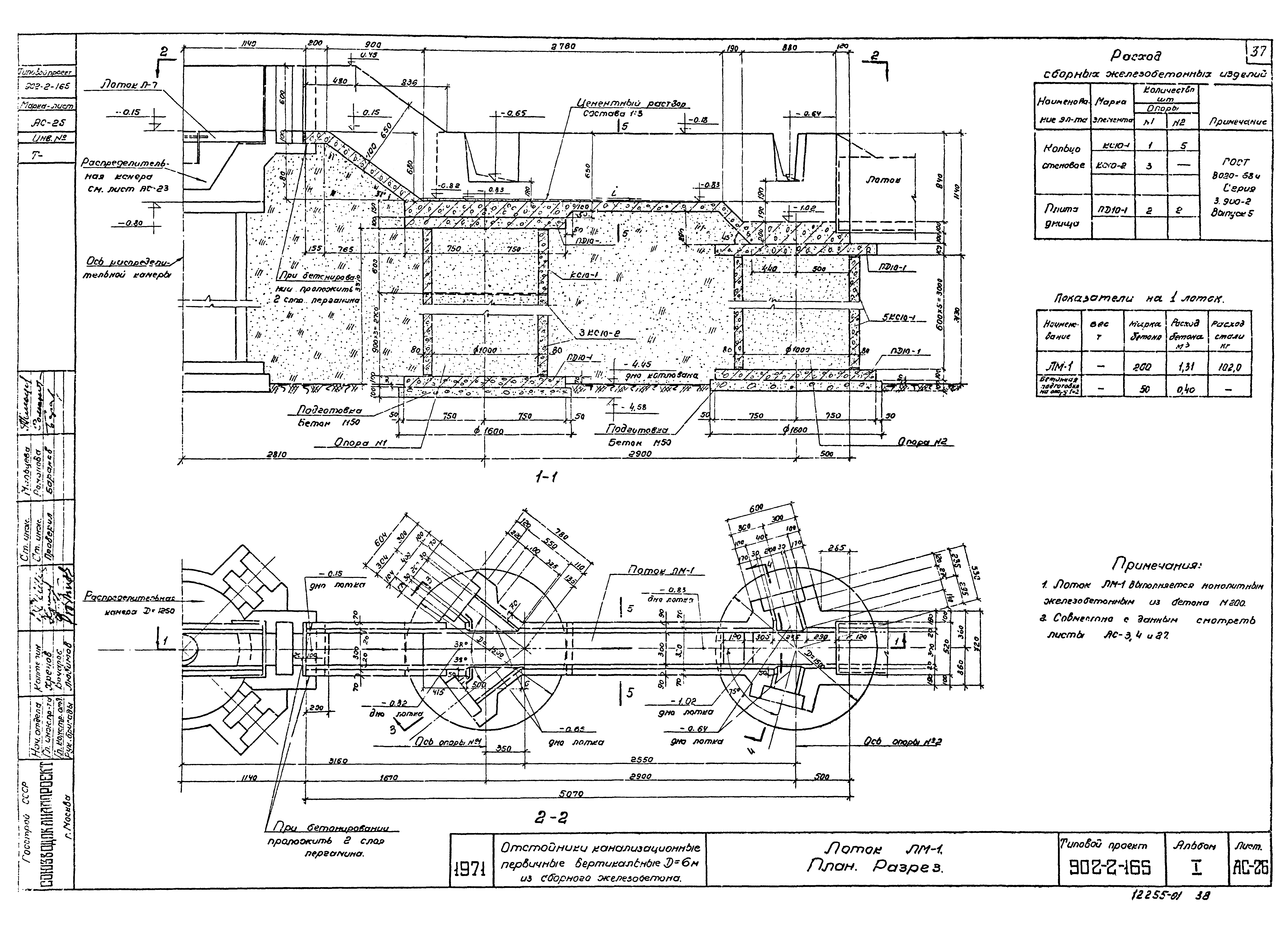
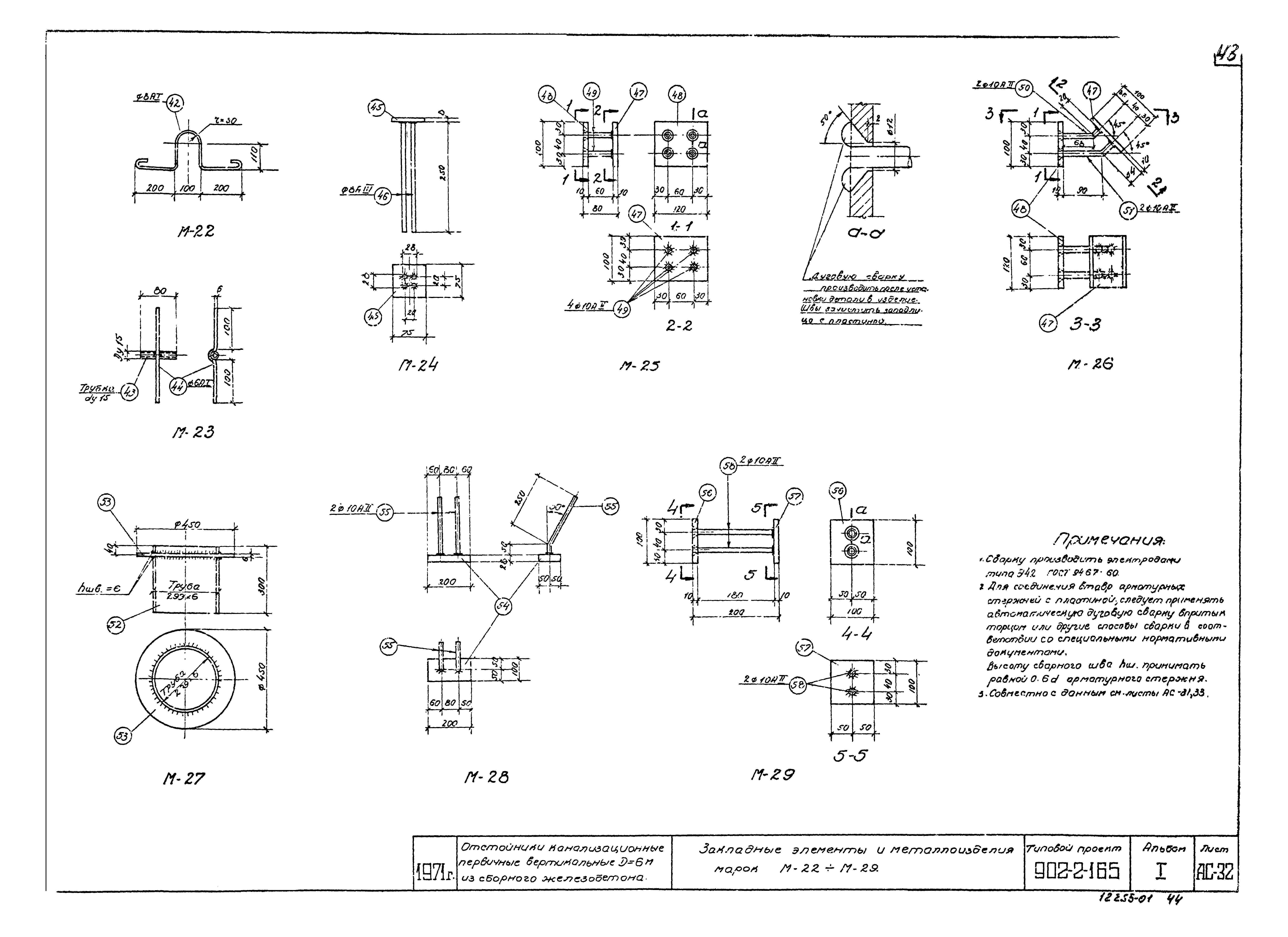
| Оглавление: | ПЗ-1 Содержание альбома ПЗ-2 Заглавный лист ПЗ-3÷ПЗ-10 Пояснительная записка А. Архитектурно-строительные чертежи АС-1 Компоновка из 2х отстойников. Сводная выборка материалов АС-2 Компоновка из 4х отстойников. Сводная выборка материалов АС-3 Компоновка из 2х отстойников. Таблица железобетонных и стальных элементов АС-4 Компоновка из 4х отстойников. Таблица железобетонных и стальных элементов АС-5 Общий вид. План. Разрез АС-6 Узлы 1,2,3,4 АС-7 Узлы 5,6,7,8 АС-8 Узлы 9,10,11,12 АС-9 Днище. План раскладки арматуры. Разрезы. Узлы и сечения АС-10 Днище. Арматурные изделия. Спецификация арматуры АС-11 Стеновые панели ПЦ1-42-1А,ПЦ1-42-1Б,ПЦ1-42-1В,ПЦ1-42-1Г АС-12 Стена. Распределение кольцевой напрягаемой арматуры по поясам АС-13 Электротермический способ натяжения кольцевой стержневой арматуры. Детали арматурного кольца АС-14 Консоль КН-1 и консоль КН-2. Армирование. Спецификация арматуры АС-15 Балка Б-1. Армирование. Спецификация арматуры АС-16 Площадка для обслуживания. Спецификация пиломатериалов АС-17 Ограждение. Лестница М4. Спецификация и выборка стали АС-18 Лотки Л-1,Л-2,Л-3,Л-4,Л-5,Л-6,Л-7 и муфта МЛ-2. Опалубочный чертеж. Армирование АС-19 Лотки Л-1,Л-3,Л-4,Л-5,Л-6,Л-7. Сетки АС-20 Лотки Л-1,Л-3,Л-4,Л-5,Л-6,Л-7. Спецификация арматуры АС-21 Лотки Л-2,Л-2А,Л-2Б. Опалубочный чертеж. Армирование АС-22 Лотки Л-2,Л-2А,Л-2Б. Армирование. Спецификация арматуры АС-23 Распределительная камера. Общий вид АС-24 Распределительная камера. Армирование АС-25 Распределительная камера. Сетки. Спецификация арматуры АС-26 Лоток ЛМ-1. План. Разрез АС-27 Лоток ЛМ-1. Сечения АС-28 Лоток ЛМ-1. Армирование АС-29 Лоток ЛМ-1. Спецификация арматуры АС-30 Иловые колодцы № 1 и № 2 АС-31 Закладные элементы и металлоизделия марок М-1÷М-20 АС-32 Закладные элементы и металлоизделия марок М-22÷М-29 АС-33 Закладные элементы и металлоизделия марок М-1÷М-31. Спецификация АС-34 Варианты устройства основания под днище отстойника Б. Технологические чертежи ТК-1 Общий вид. План. Разрез ТК-2 Иловые колодцы № 1 и № 2. Планы. Разрезы В. Чертежи нестандартного оборудования ТМ-1 Труба центральная. Сборочный чертеж |
| Разработан: | Союзводоканалниипроект |
| Утверждён: | 02.04.1973 СоюзводоканалНИИпроект (SoyuzvodokanalNIIproject 80) |
| Чем заменён: |















































