Скачать Серия 1.117-9 Выпуск 1-2. Панели групп ЦТ1 и ЦТ2 толщиной 250 ммДата актуализации: 01.01.2021
|
| Обозначение: | Серия 1.117-9 |
| Обозначение англ: | Series 1.117-9 |
| Статус: | не действует |
| Название рус.: | Выпуск 1-2. Панели групп ЦТ1 и ЦТ2 толщиной 250 мм |
| Дата добавления в базу: | 01.09.2013 |
| Дата актуализации: | 01.01.2021 |
| Дата введения: | 30.12.1975 |
| Дата окончания срока действия: | 01.06.1982 |
| Область применения: | В альбоме серии 1.117-9, выпуск 1-2 представлены рабочие чертежи наружных трехслойных стеновых панелей групп ЦТ1 и ЦТ2. Альбомом следует пользоваться совместно с выпусками 0-1; 2-1 и 2-2 настоящей серии |
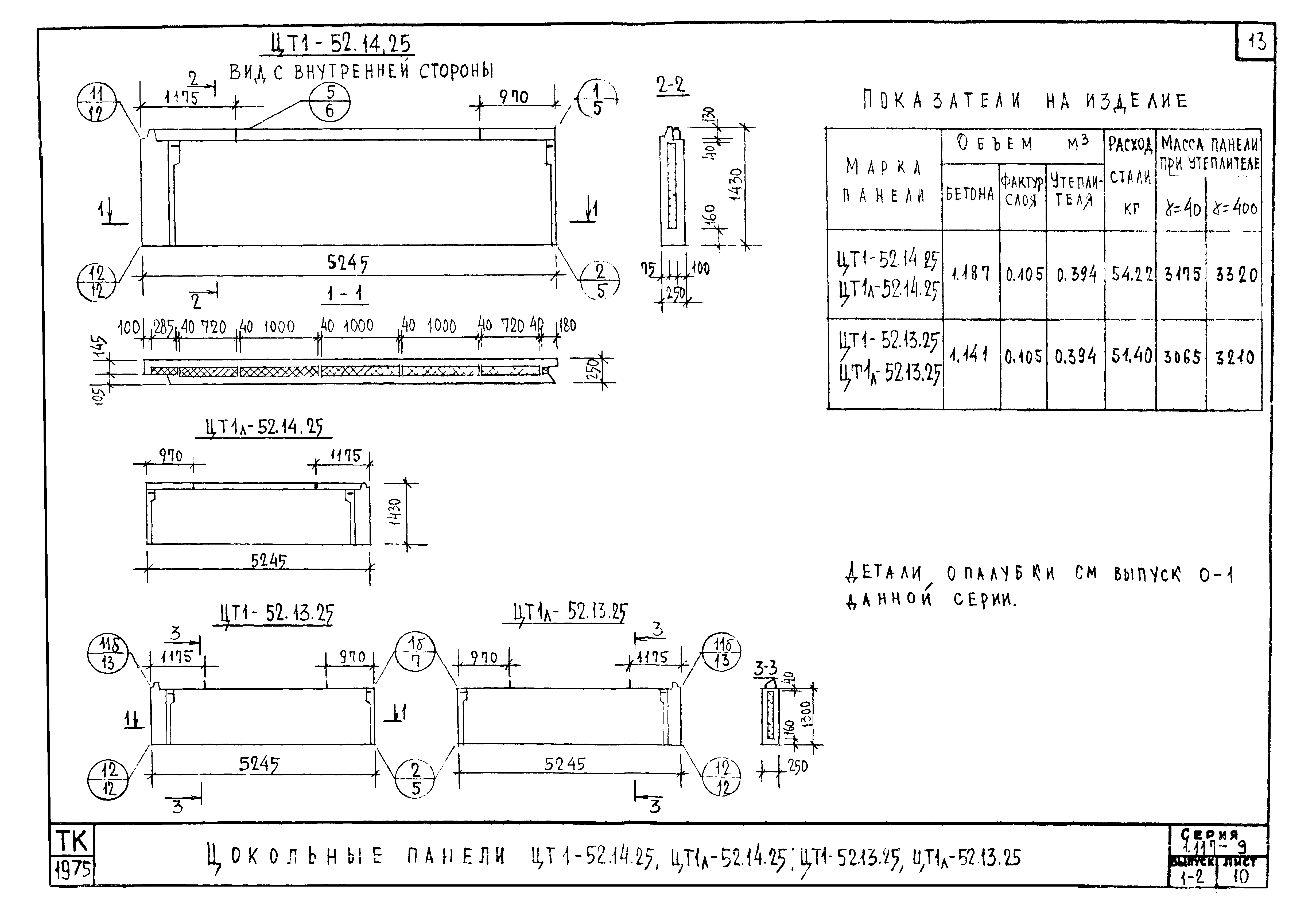
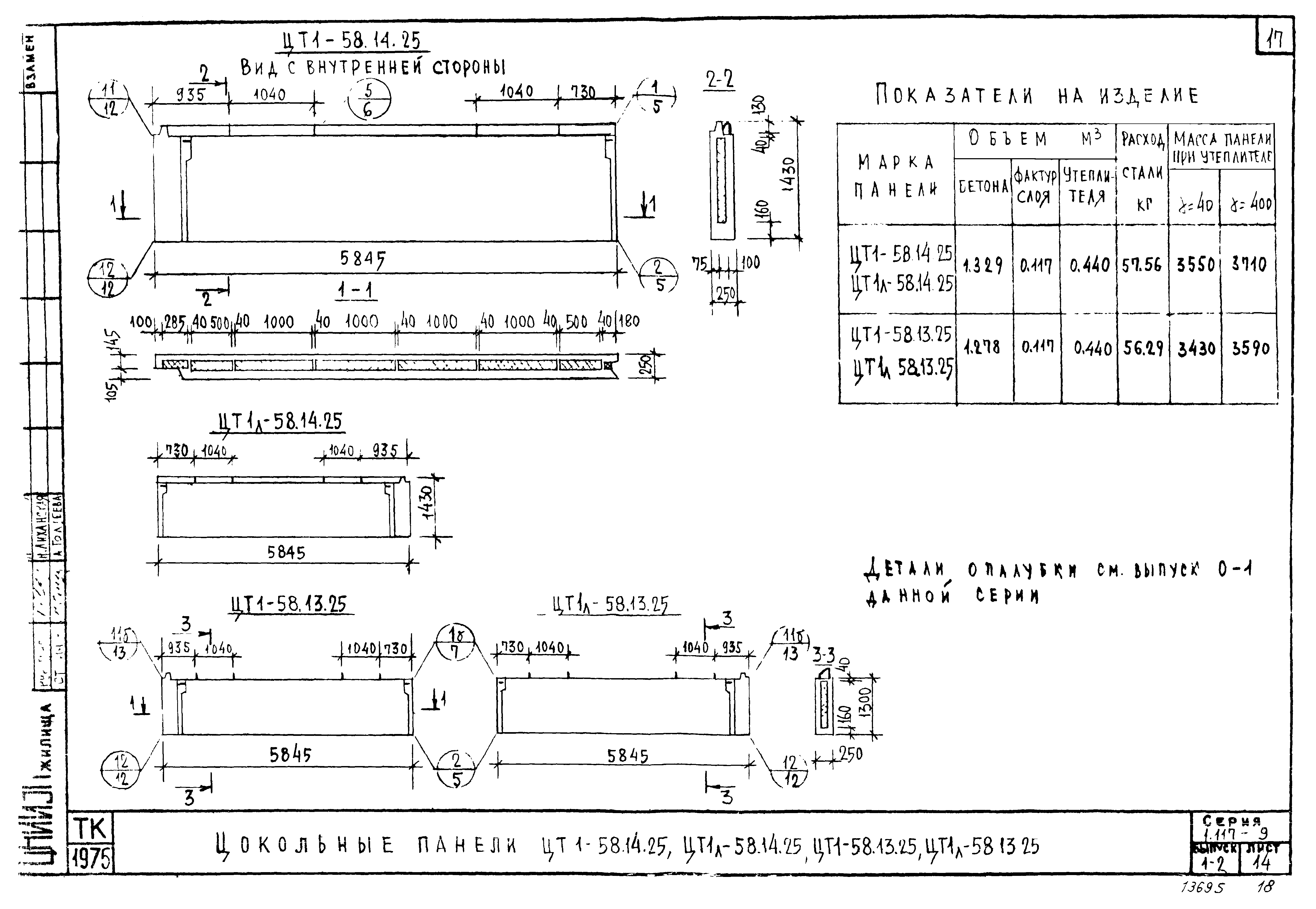
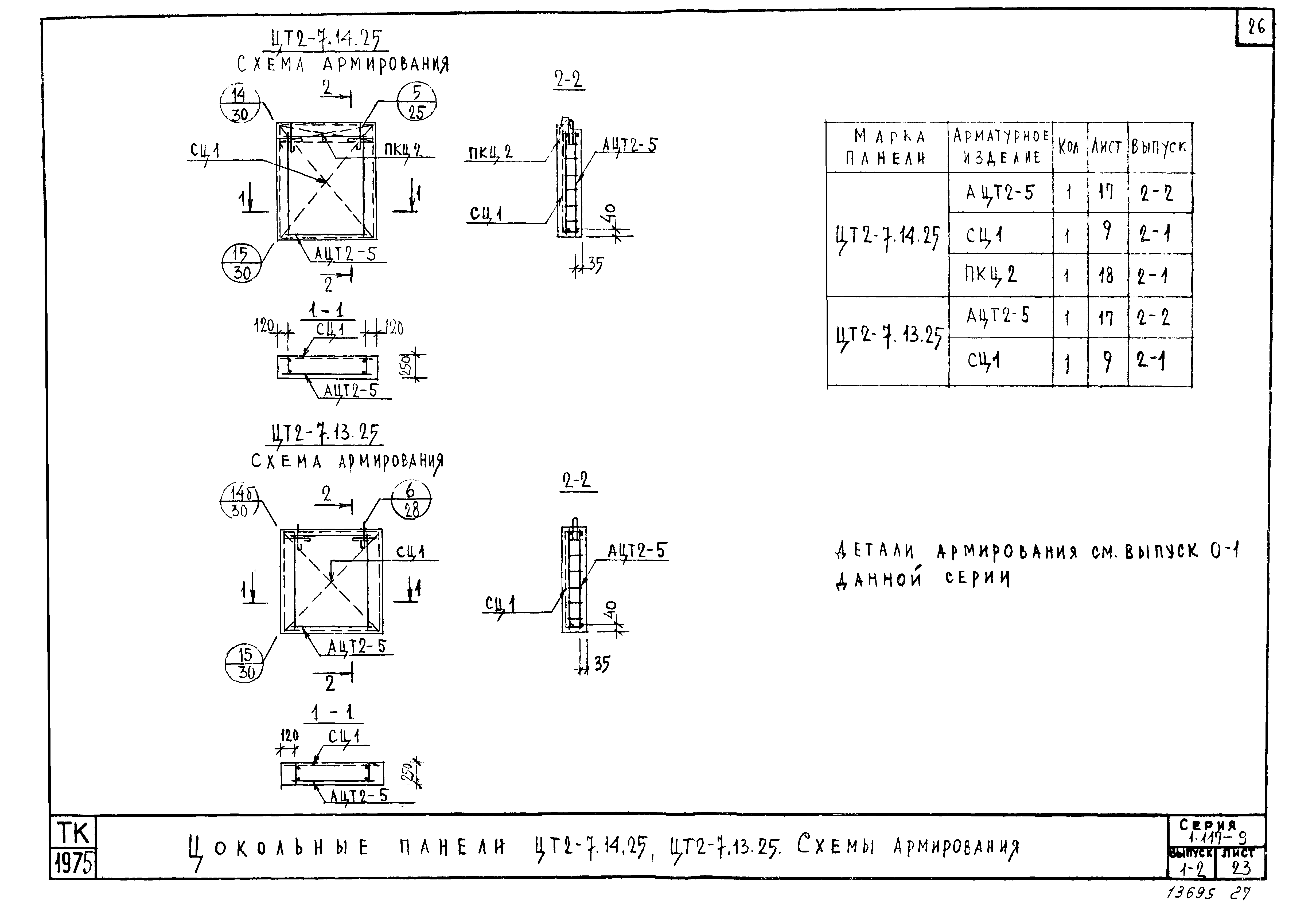
| Оглавление: | Содержание Пояснительная записка Номенклатура изделий Цокольные панели ЦТ1-43.14.25, ЦТ1л-43.14.25, ЦТ1-43.13.25, ЦТ1Л-43.13.25 Цокольные панели ЦТ1-43.14.25, ЦТ1л-43.14.25, ЦТ1-43.13.25, ЦТ1Л-43.13.25. Схемы армирования Цокольные панели ЦТ1-46.14.25, ЦТ1л-46.14.25, ЦТ1-46.13.25, ЦТ1Л-46.13.25 Цокольные панели ЦТ1-46.14.25, ЦТ1л-46.14.25, ЦТ1-46.13.25, ЦТ1Л-46.13.25. Схемы армирования Цокольные панели ЦТ1-49.14.25, ЦТ1л-49.14.25, ЦТ1-49.13.25, ЦТ1Л-49.13.25 Цокольные панели ЦТ1-49.14.25, ЦТ1л-49.14.25, ЦТ1-49.13.25, ЦТ1Л-49.13.25. Схемы армирования Цокольные панели ЦТ1-52.14.25, ЦТ1л-52.14.25, ЦТ1-52.13.25, ЦТ1Л-52.13.25 Цокольные панели ЦТ1-52.14.25, ЦТ1л-52.14.25, ЦТ1-52.13.25, ЦТ1Л-52.13.25. Схемы армирования Цокольные панели ЦТ1-55.14.25, ЦТ1л-55.14.25, ЦТ1-55.13.25, ЦТ1Л-55.13.25 Цокольные панели ЦТ1-55.14.25, ЦТ1л-55.14.25, ЦТ1-55.13.25, ЦТ1Л-55.13.25. Схемы армирования Цокольные панели ЦТ1-58.14.25, ЦТ1л-58.14.25, ЦТ1-58.13.25, ЦТ1Л-58.13.25 Цокольные панели ЦТ1-58.14.25, ЦТ1л-58.14.25, ЦТ1-58.13.25, ЦТ1Л-58.13.25. Схемы армирования Цокольные панели ЦТ1-61.14.25, ЦТ1л-61.14.25, ЦТ1-61.13.25, ЦТ1Л-61.13.25 Цокольные панели ЦТ1-61.14.25, ЦТ1л-61.14.25, ЦТ1-61.13.25, ЦТ1Л-61.13.25. Схемы армирования Цокольные панели ЦТ1-64.14.25, ЦТ1л-64.14.25, ЦТ1-64.13.25, ЦТ1Л-64.13.25 Цокольные панели ЦТ1-64.14.25, ЦТ1л-64.14.25, ЦТ1-64.13.25, ЦТ1Л-64.13.25. Схемы армирования Цокольные панели ЦТ1-67.14.25, ЦТ1л-67.14.25, ЦТ1-67.13.25, ЦТ1Л-67.13.25 Цокольные панели ЦТ1-67.14.25, ЦТ1л-67.14.25, ЦТ1-67.13.25, ЦТ1Л-67.13.25. Схемы армирования Цокольные панели ЦТ2-7.14.25, ЦТ2-7.13.25 Цокольные панели ЦТ2-7.14.25, ЦТ2-7.13.25. Схемы армирования Цокольные панели ЦТ2-10.14.25, ЦТ2-10.13.25 Цокольные панели ЦТ2-10.14.25, ЦТ2-10.13.25. Схемы армирования Цокольные панели ЦТ2-13.14.25, ЦТ2-13.13.25 Цокольные панели ЦТ2-13.14.25, ЦТ2-13.13.25. Схемы армирования Цокольные панели ЦТ2-16.14.25, ЦТ2-16.13.25 Цокольные панели ЦТ2-16.14.25, ЦТ2-16.13.25. Схемы армирования Ведомость расхода стали на панель |
| Разработан: | ЦНИИСК им. В.А. Кучеренко ЦНИИЭП жилища |
| Утверждён: | 16.12.1975 Государственный комитет по гражданскому строительству и архитектуре при Госстрое СССР (289) |
| Нормативные ссылки: |


































