Скачать Серия 1.412-1 Выпуск 1-4. Материалы для проектирования. Чертежи фундаментов, располагаемых в температурных швахДата актуализации: 01.01.2021
|
| Обозначение: | Серия 1.412-1 |
| Обозначение англ: | Series 1.412-1 |
| Статус: | заменен |
| Название рус.: | Выпуск 1-4. Материалы для проектирования. Чертежи фундаментов, располагаемых в температурных швах |
| Дата добавления в базу: | 01.09.2013 |
| Дата актуализации: | 01.01.2021 |
| Дата введения: | 01.10.1971 |
| Дата окончания срока действия: | 01.07.1978 |
| Область применения: | Настоящий выпуск 1-4 содержит чертежи фундаментов, располагаемых в температурных швах, которые дорабатываются проектировщиком на основании данных, полученных при подборе фундамента по таблицам и графикам в выпуске 1-3. Там же приведены указания по доработке чертежей |
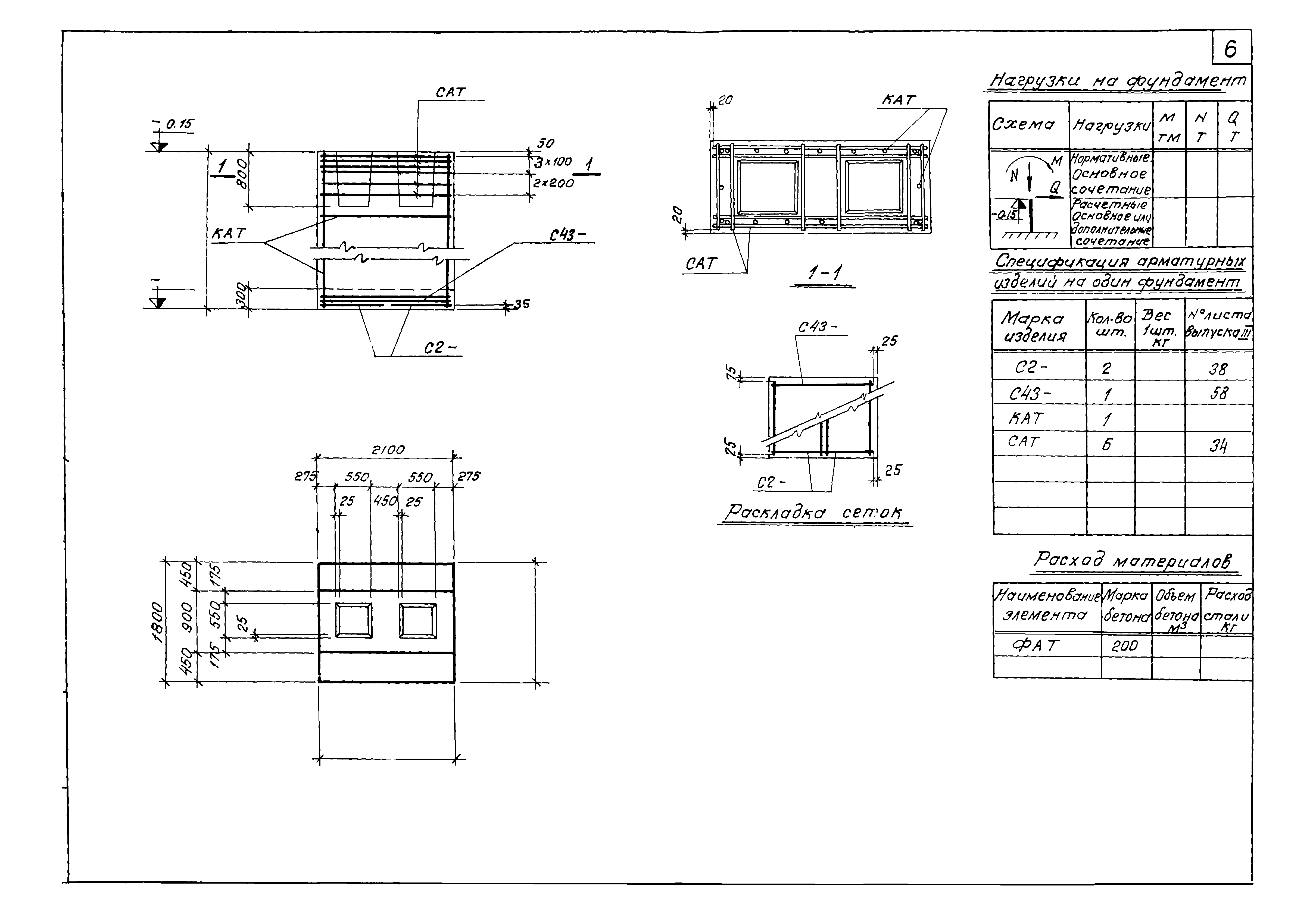
| Оглавление: | Пояснительная записка Пример доработки чертежа фундамента Фундаменты с подколонником AT ФАТ1, ФАТ2, ФАТ3, ФАТ4, ФАТ5, ФАТ6 ФАТ7, ФАТ8, ФАТ9, ФАТ10, ФАТ11, ФАТ12 ФАТ13, ФАТ14, ФАТ15, ФАТ16, ФАТ17, ФАТ18 ФАТ19, ФАТ20, ФАТ21, ФАТ22, ФАТ23, ФАТ24 ФАТ25, ФАТ26, ФАТ27, ФАТ28, ФАТ29, ФАТ30 ФАТ31, ФАТ32, ФАТ33, ФАТ34, ФАТ35, ФАТ36 ФАТ37, ФАТ38, ФАТ39, ФАТ40, ФАТ41, ФАТ42 ФАТ43, ФАТ44, ФАТ45, ФАТ46, ФАТ47, ФАТ48 ФАТ49, ФАТ50, ФАТ51, ФАТ52, ФАТ53, ФАТ54 ФАТ55, ФАТ56, ФАТ57, ФАТ58, ФАТ59, ФАТ60 ФАТ61, ФАТ62, ФАТ63, ФАТ64, ФАТ65, ФАТ66 ФАТ67, ФАТ68, ФАТ69, ФАТ70, ФАТ71, ФАТ72 ФАТ73, ФАТ74, ФАТ75, ФАТ76, ФАТ77, ФАТ78 ФАТ79, ФАТ80, ФАТ81, ФАТ82, ФАТ83, ФАТ84 Фундаменты с подколонником БТ ФБТ1, ФБТ2, ФБТ3, ФБТ4, ФБТ5, ФБТ6 ФБТ7, ФБТ8, ФБТ9, ФБТ10, ФБТ11, ФБТ12 ФБТ13, ФБТ14, ФБТ15, ФБТ16, ФБТ17, ФБТ18 ФБТ19, ФБТ20, ФБТ21, ФБТ22, ФБТ23, ФБТ24 ФБТ25, ФБТ26, ФБТ27, ФБТ28, ФБТ29, ФБТ30 ФБТ31, ФБТ32, ФБТ33, ФБТ34, ФБТ35, ФБТ36 ФБТ37, ФБТ38, ФБТ39, ФБТ40, ФБТ41, ФБТ42 ФБТ43, ФБТ44, ФБТ45, ФБТ46, ФБТ47, ФБТ48 ФБТ49, ФБТ50, ФБТ51, ФБТ52, ФБТ53, ФБТ54 ФБТ55, ФБТ56, ФБТ57, ФБТ58, ФБТ59, ФБТ60 ФБТ61, ФБТ62, ФБТ63, ФБТ64, ФБТ65, ФБТ66 ФБТ67, ФБТ68, ФБТ69, ФБТ70, ФБТ71, ФБТ72 ФБТ73, ФБТ74, ФБТ75, ФБТ76, ФБТ77, ФБТ78 ФБТ79, ФБТ80, ФБТ81, ФБТ82, ФБТ83, ФБТ84 Фундаменты с подколонником ВТ ФВТ1, ФВТ2, ФВТ3, ФВТ4, ФВТ5, ФВТ6 ФВТ7, ФВТ8, ФВТ9, ФВТ10, ФВТ11, ФВТ12 ФВТ13, ФВТ14, ФВТ15, ФВТ16, ФВТ17, ФВТ18 ФВТ19, ФВТ20, ФВТ21, ФВТ22, ФВТ23, ФВТ24 ФВТ25, ФВТ26, ФВТ27, ФВТ28, ФВТ29, ФВТ30 ФВТ31, ФВТ32, ФВТ33, ФВТ34, ФВТ35, ФВТ36 ФВТ37, ФВТ38, ФВТ39, ФВТ40, ФВТ41, ФВТ42 ФВТ43, ФВТ44, ФВТ45, ФВТ46, ФВТ47, ФВТ48 ФВТ49, ФВТ50, ФВТ51, ФВТ52, ФВТ53, ФВТ54 ФВТ55, ФВТ56, ФВТ57, ФВТ58, ФВТ59, ФВТ60 ФВТ61, ФВТ62, ФВТ63, ФВТ64, ФВТ65, ФВТ66 ФВТ67, ФВТ68, ФВТ69, ФВТ70, ФВТ71, ФВТ72 ФВТ73, ФВТ74, ФВТ75, ФВТ76, ФВТ77, ФВТ78 ФВТ79, ФВТ80, ФВТ81, ФВТ82, ФВТ83, ФВТ84 ФВТ85, ФВТ86, ФВТ87, ФВТ88, ФВТ89, ФВТ90 |
| Разработан: | НИИЖБ Проектный институт № 1 Госстроя СССР |
| Утверждён: | 10.08.1971 Госстрой СССР (Государственный комитет Совета Министров СССР по делам строительства) (USSR Gosstroy 134) |
| Чем заменён: | |
| Нормативные ссылки: |
















































