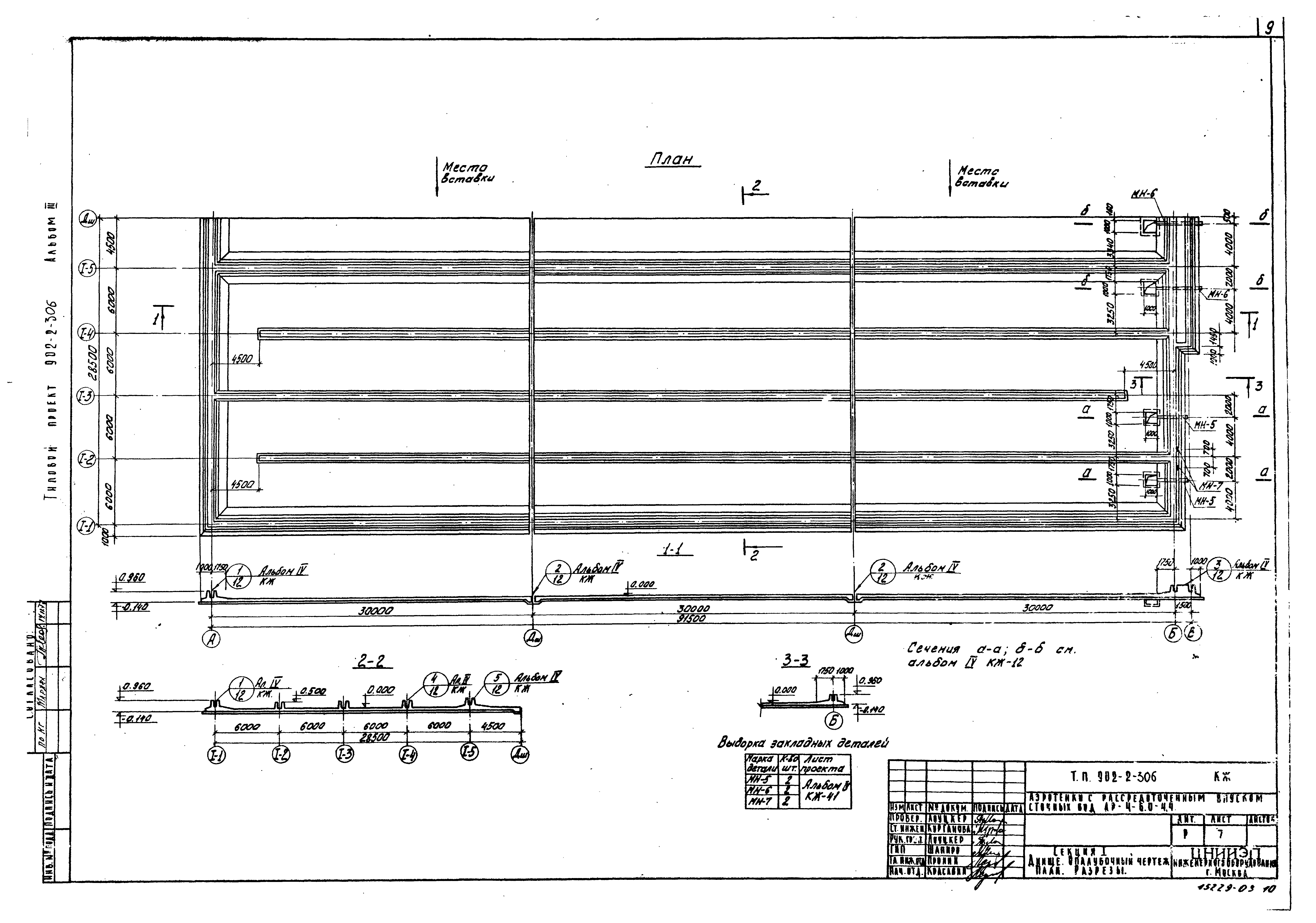
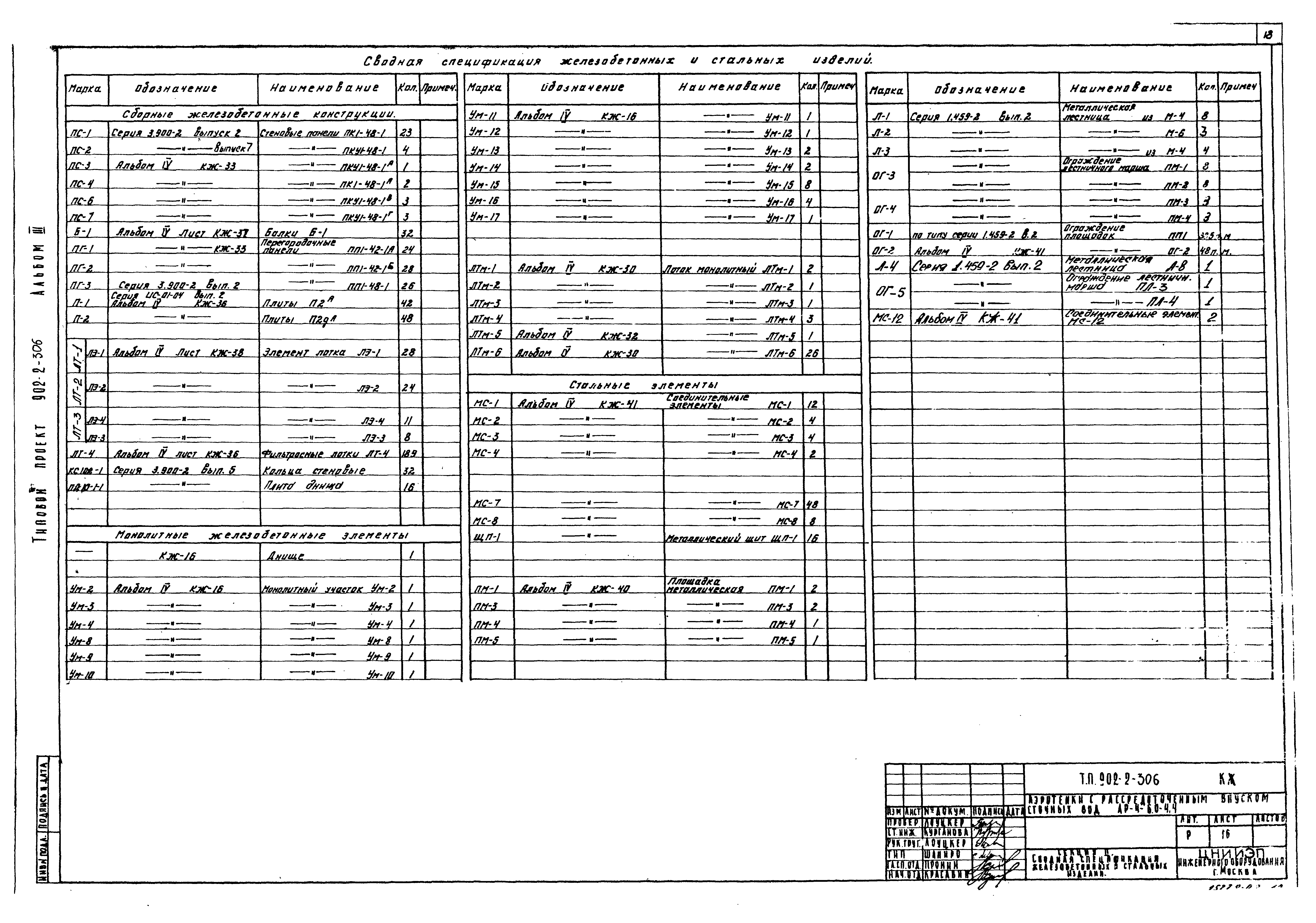
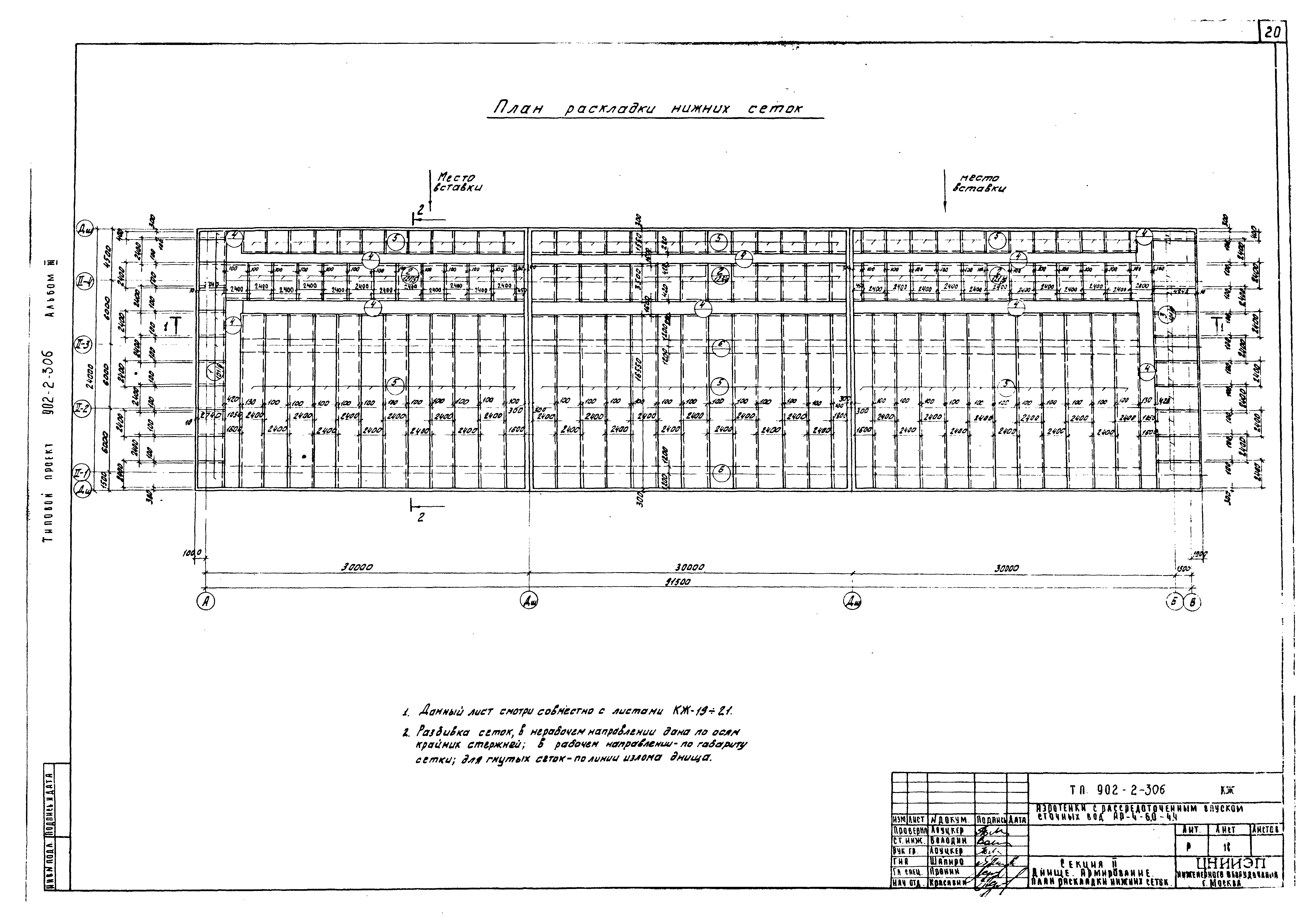
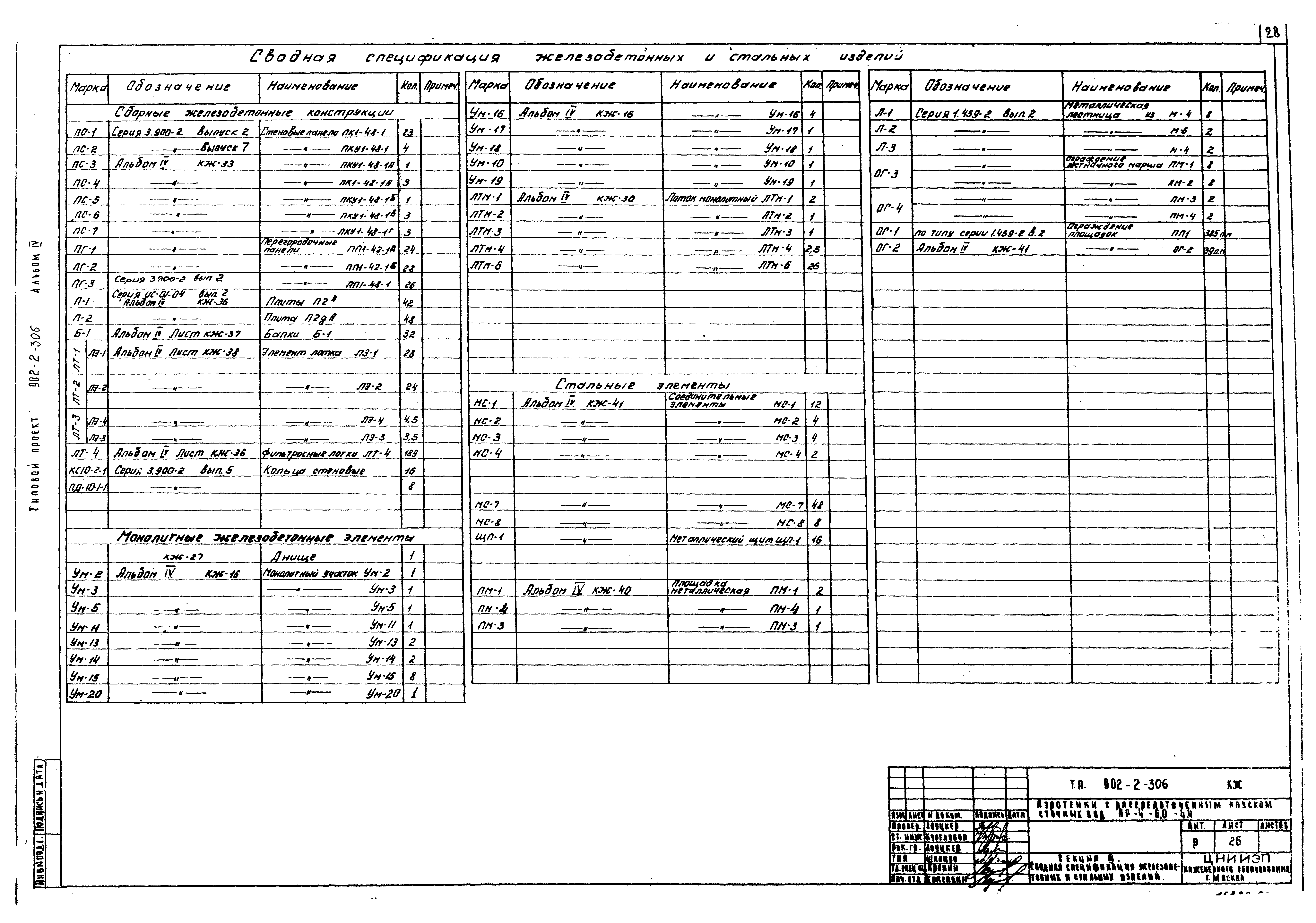
Скачать Типовой проект 902-2-306 Альбом III. Строительная часть. Секции I, II и IIIДата актуализации: 01.01.2021
|
| Обозначение: | Типовой проект 902-2-306 |
| Обозначение англ: | 902-2-306 |
| Статус: | действует |
| Название рус.: | Альбом III. Строительная часть. Секции I, II и III |
| Дата добавления в базу: | 01.09.2013 |
| Дата актуализации: | 01.01.2021 |
| Дата введения: | 13.12.1977 |
| Разработан: | ЦНИИЭП |
| Утверждён: | 22.07.1974 Госгражданстрой (Gosgrazhdanstroy 164) |



































