Скачать Серия 3.900-2 Выпуск 6. Изделия для лотков. Рабочие чертежиДата актуализации: 01.01.2021
|
| Обозначение: | Серия 3.900-2 |
| Обозначение англ: | Series 3.900-2 |
| Статус: | заменен |
| Название рус.: | Выпуск 6. Изделия для лотков. Рабочие чертежи |
| Дата добавления в базу: | 01.09.2013 |
| Дата актуализации: | 01.01.2021 |
| Дата введения: | 01.10.1968 |
| Дата окончания срока действия: | 01.10.1978 |
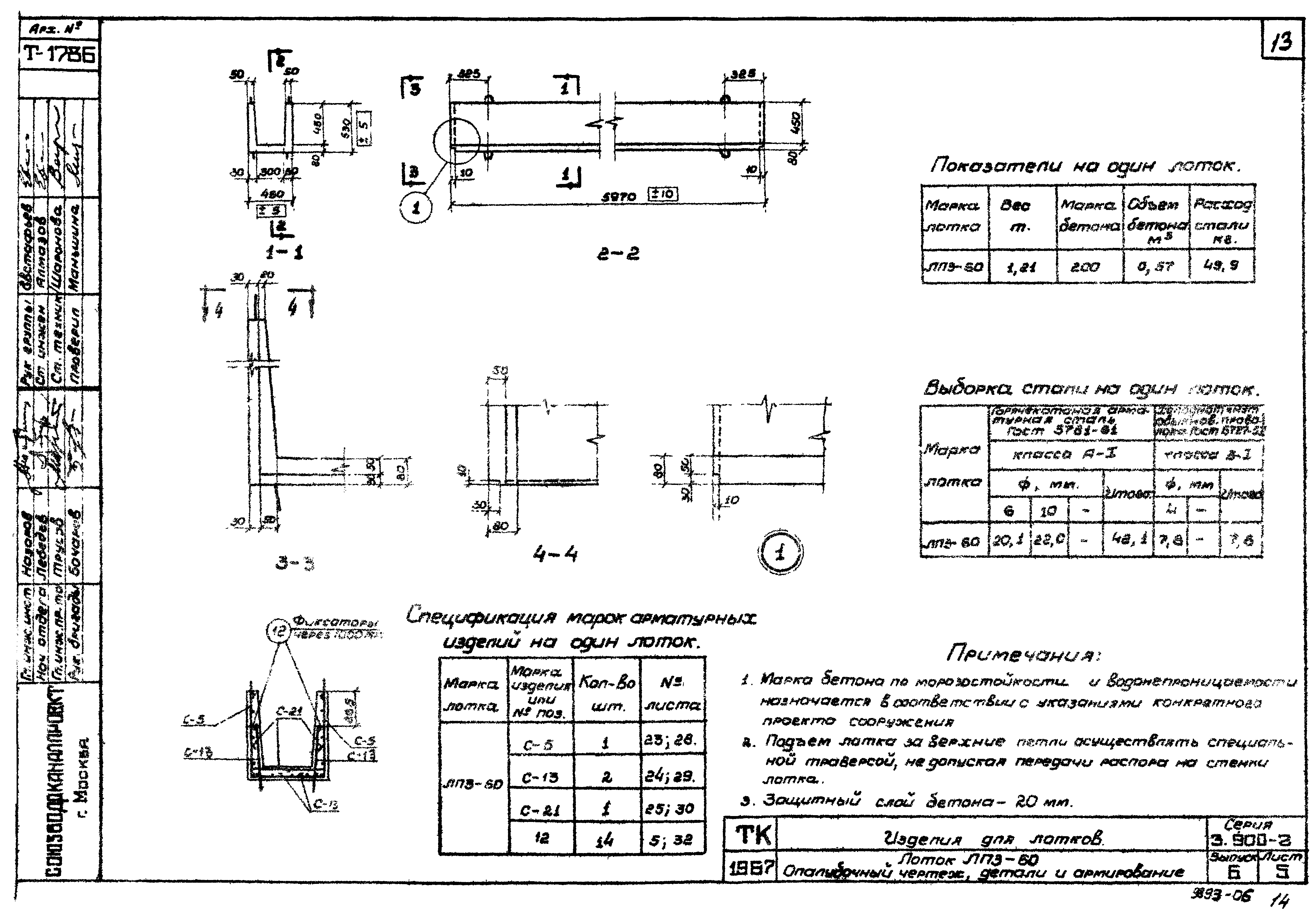
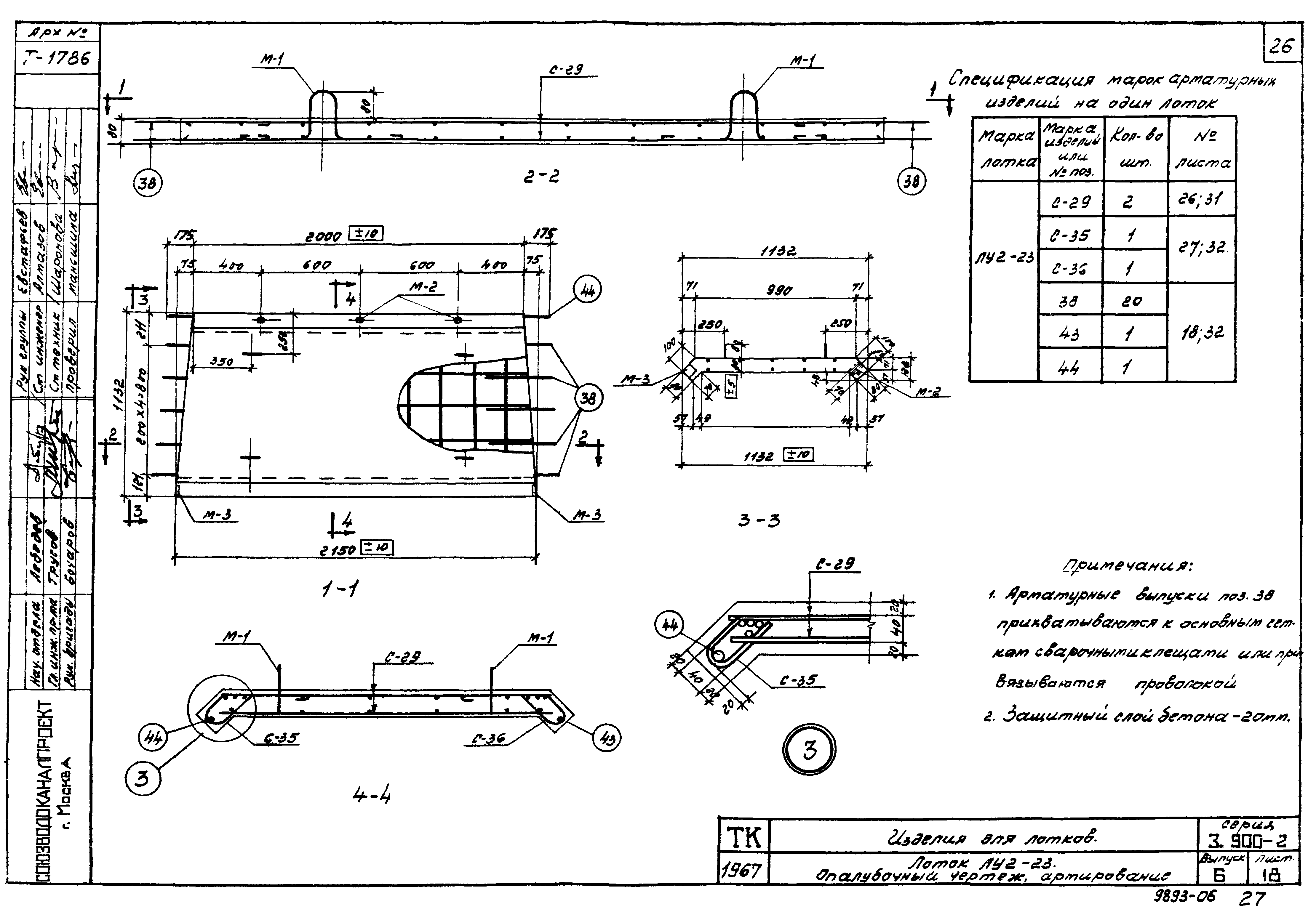
| Оглавление: | Содержание Пояснительная записка Номенклатура изделий Лоток ЛП1-60. Опалубочный чертеж, детали и армирование Лоток ЛП1-30. Опалубочный чертеж, детали и армирование Лоток ЛП2-60. Опалубочный чертеж, детали и армирование Лоток ЛП2-30. Опалубочный чертеж, детали и армирование Лоток ЛП3-60. Опалубочный чертеж, детали и армирование Лоток ЛП3-30. Опалубочный чертеж, детали и армирование Лоток ЛП4-60. Опалубочный чертеж, детали и армирование Лоток ЛП4-30. Опалубочный чертеж, детали и армирование Лоток ЛП5-60. Опалубочный чертеж, детали и армирование Лоток ЛП5-30. Опалубочный чертеж, детали и армирование Лоток ЛП6-60. Опалубочный чертеж, детали и армирование Лоток ЛП6-30. Опалубочный чертеж, детали и армирование Лоток ЛУ1-15 Общий вид Опалубочный чертеж, армирование Лоток ЛУ2-15 Общий вид Опалубочный чертеж, армирование Лоток ЛУ2-23 Общий вид Опалубочный чертеж, армирование Лоток ЛУ3-23 Общий вид Опалубочный чертеж, армирование Лоток ЛУ4-23 Общий вид Опалубочный чертеж, армирование Сетки сварные с С-1 по С-8 Сетки сварные с С-9 по С-14 Сетки сварные с С-15 по С-22 Сетки сварные с С-23 по С-31 Сетки сварные с С-32 по С-38. Закладные детали М-1,М-2,М-3 Спецификация и выборка стали на одно арматурное изделие. Сетки сварные с С-1 по С-8 Спецификация и выборка стали на одно арматурное изделие. Сетки сварные с С-9 по С-16 Спецификация и выборка стали на одно арматурное изделие. Сетки сварные с С-17 по С-25 Спецификация и выборка стали на одно арматурное изделие. Сетки сварные с С-26 по С-34 Спецификация и выборка стали на одно арматурное изделие. Сетки сварные с С-35 по С-38. Отдельные стержни. Закладные детали |
| Разработан: | ЦНИИпромзданий НИИЖБ Союзводоканалниипроект |
| Утверждён: | 09.07.1968 Госстрой СССР (Государственный комитет Совета Министров СССР по делам строительства) (USSR Gosstroy 61) |
| Чем заменён: |









































