Скачать Серия 1.412-2 Выпуск I-4. Материалы для проектирования. Чертежи фундаментов, располагаемых в температурных швахДата актуализации: 01.01.2021
|
| Обозначение: | Серия 1.412-2 |
| Обозначение англ: | Series 1.412-2 |
| Статус: | заменен |
| Название рус.: | Выпуск I-4. Материалы для проектирования. Чертежи фундаментов, располагаемых в температурных швах |
| Дата добавления в базу: | 01.09.2013 |
| Дата актуализации: | 01.01.2021 |
| Дата введения: | 01.10.1971 |
| Дата окончания срока действия: | 01.07.1978 |
| Область применения: | Настоящий выпуска 1-4 содержит чертежи фундаментов, располагаемых в температурных швах, которые дорабатываются проектировщиком на основании данных, полученных при подборе фундамента по таблицам и графикам в выпуске 1-3. Там же приведены указания по доработке чертежей |
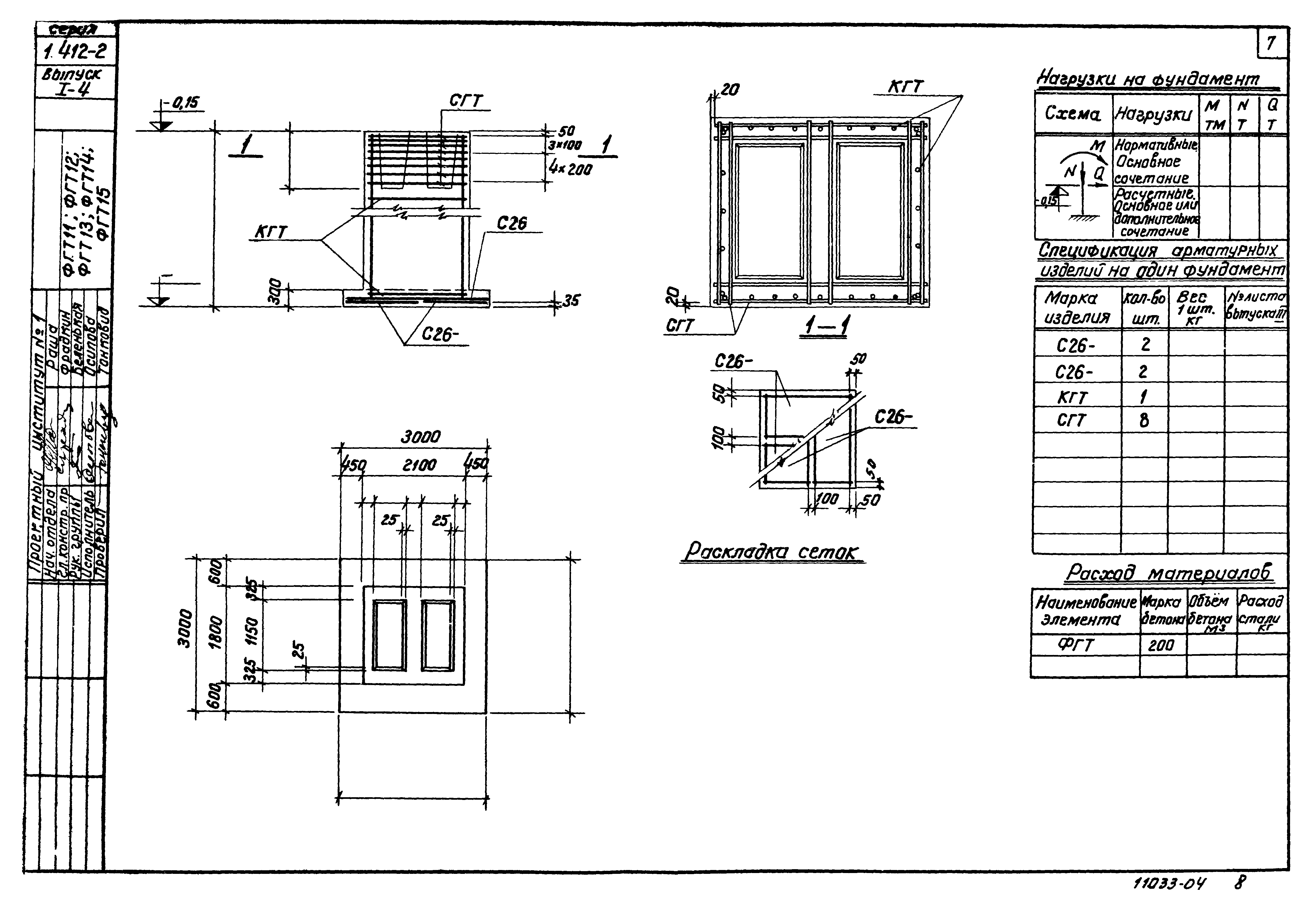
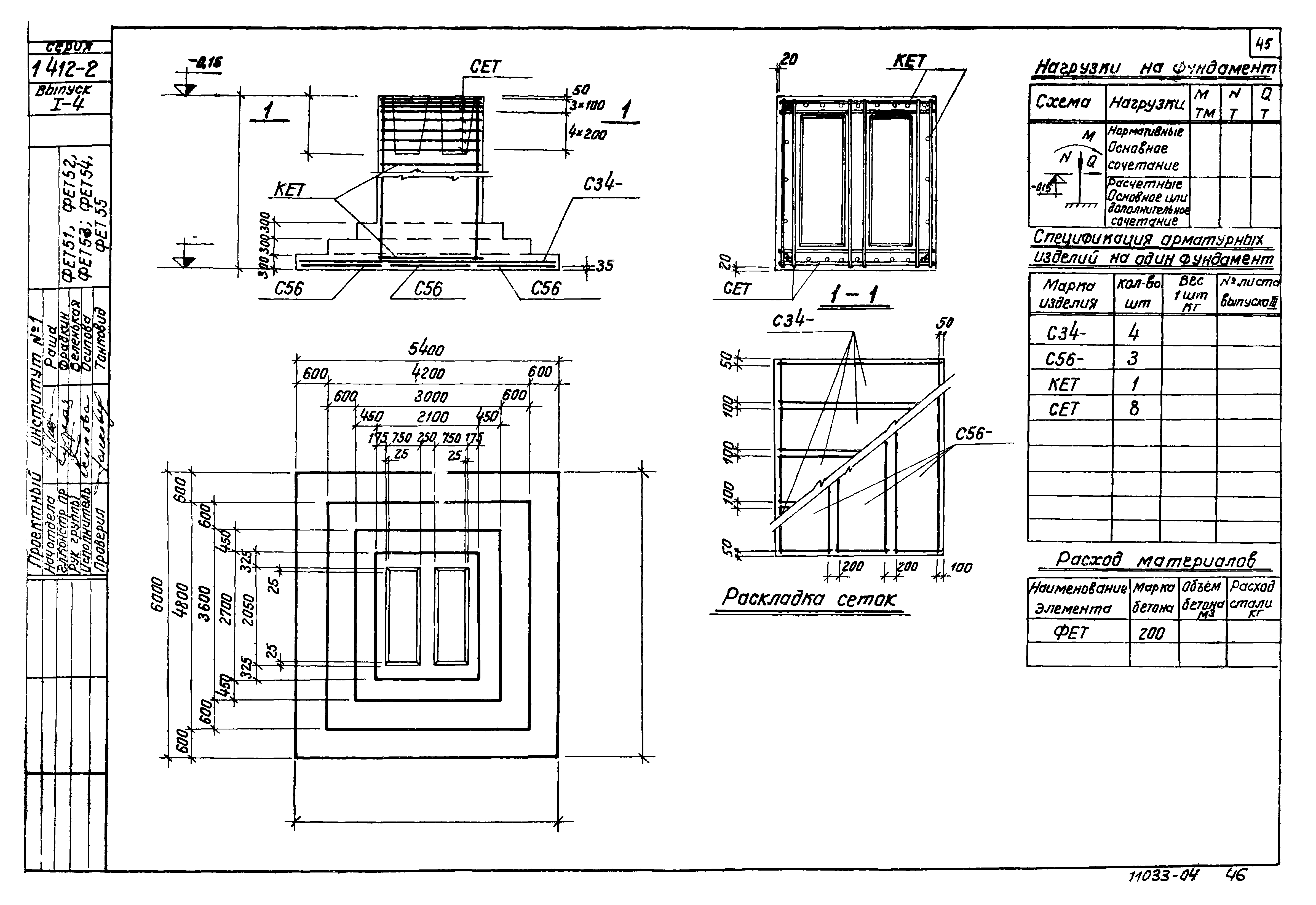
| Оглавление: | Пояснительная записка Пример доработки чертежа фундамента Фундаменты с подколонником ГТ ФГТ1, ФГТ2, ФГТ3, ФГТ4, ФГТ5 ФГТ6, ФГТ7, ФГТ8, ФГТ9, ФГТ10 ФГТ11, ФГТ12, ФГТ13, ФГТ14, ФГТ15 ФГТ16, ФГТ17, ФГТ18, ФГТ19, ФГТ20 ФГТ21, ФГТ22, ФГТ23, ФГТ24, ФГТ25 ФГТ26, ФГТ27, ФГТ28, ФГТ29, ФГТ30 ФГТ31, ФГТ32, ФГТ33, ФГТ34, ФГТ35 ФГТ36, ФГТ37, ФГТ38, ФГТ39, ФГТ40 ФГТ41, ФГТ42, ФГТ43, ФГТ44, ФГТ45 ФГТ46, ФГТ47, ФГТ48, ФГТ49, ФГТ50 ФГТ51, ФГТ52, ФГТ53, ФГТ54, ФГТ55 Фундаменты с подколонником ДТ ФДТ1, ФДТ2, ФДТ3, ФДТ4, ФДТ5 ФДТ6, ФДТ7, ФДТ8, ФДТ9, ФДТ10 ФДТ11, ФДТ12, ФДТ13, ФДТ14, ФДТ15 ФДТ16, ФДТ17, ФДТ18, ФДТ19, ФДТ20 ФДТ21, ФДТ22, ФДТ23, ФДТ24, ФДТ25 ФДТ26, ФДТ27, ФДТ28, ФДТ29, ФДТ30 ФДТ31, ФДТ32, ФДТ33, ФДТ34, ФДТ35 ФДТ36, ФДТ37, ФДТ38, ФДТ39, ФДТ40 ФДТ41, ФДТ42, ФДТ43, ФДТ44, ФДТ45 ФДТ46, ФДТ47, ФДТ48, ФДТ49, ФДТ50 ФДТ51, ФДТ52, ФДТ53, ФДТ54, ФДТ55 ФДТ56, ФДТ57, ФДТ58, ФДТ59, ФДТ60 ФДТ61, ФДТ62, ФДТ63, ФДТ64, ФДТ65 ФДТ66, ФДТ67, ФДТ68, ФДТ69, ФДТ70 ФДТ71, ФДТ72, ФДТ73, ФДТ74, ФДТ75 ФДТ76, ФДТ77, ФДТ78, ФДТ79, ФДТ80 ФДТ81, ФДТ82, ФДТ83, ФДТ84, ФДТ85 ФДТ86, ФДТ87, ФДТ88, ФДТ89, ФДТ90 ФДТ91, ФДТ92, ФДТ93, ФДТ94, ФДТ95 Фундаменты с подколенником ЕТ ФЕТ1, ФЕТ2, ФЕТ3, ФЕТ4, ФЕТ5 ФЕТ6, ФЕТ7, ФЕТ8, ФЕТ9, ФЕТ10 ФЕТ11, ФЕТ12, ФЕТ13, ФЕТ14, ФЕТ15 ФЕТ16, ФЕТ17, ФЕТ18, ФЕТ19, ФЕТ20 ФЕТ21, ФЕТ22, ФЕТ23, ФЕТ24, ФЕТ25 ФЕТ26, ФЕТ27, ФЕТ28, ФЕТ29, ФЕТ30 ФЕТ31, ФЕТ32, ФЕТ33, ФЕТ34, ФЕТ35 ФЕТ36, ФЕТ37, ФЕТ38, ФЕТ39, ФЕТ40 ФЕТ41, ФЕТ42, ФЕТ43, ФЕТ44, ФЕТ45 ФЕТ46, ФЕТ47, ФЕТ48, ФЕТ49, ФЕТ50 ФЕТ51, ФЕТ52, ФЕТ53, ФЕТ54, ФЕТ55 ФЕТ56, ФЕТ57, ФЕТ58, ФЕТ59, ФЕТ60 ФЕТ61, ФЕТ62, ФЕТ63, ФЕТ64, ФЕТ65 ФЕТ66, ФЕТ67, ФЕТ68, ФЕТ69, ФЕТ70 ФЕТ71, ФЕТ72, ФЕТ73, ФЕТ74, ФЕТ75 ФЕТ76, ФЕТ77, ФЕТ78, ФЕТ79, ФЕТ80 |
| Разработан: | НИИЖБ Проектный институт № 1 Госстроя СССР |
| Утверждён: | 10.08.1971 Госстрой СССР (Государственный комитет Совета Министров СССР по делам строительства) (USSR Gosstroy 134) |
| Чем заменён: |
|
| Нормативные ссылки: |




















































