Скачать Серия 1.435-2 Выпуск 2. Полотна ворот. Рабочие чертежи КМДата актуализации: 01.01.2021
|
| Обозначение: | Серия 1.435-2 |
| Обозначение англ: | Series 1.435-2 |
| Статус: | не действует |
| Название рус.: | Выпуск 2. Полотна ворот. Рабочие чертежи КМ |
| Дата добавления в базу: | 01.09.2013 |
| Дата актуализации: | 01.01.2021 |
| Дата введения: | 01.09.1969 |
| Дата окончания срока действия: | 01.10.1977 |
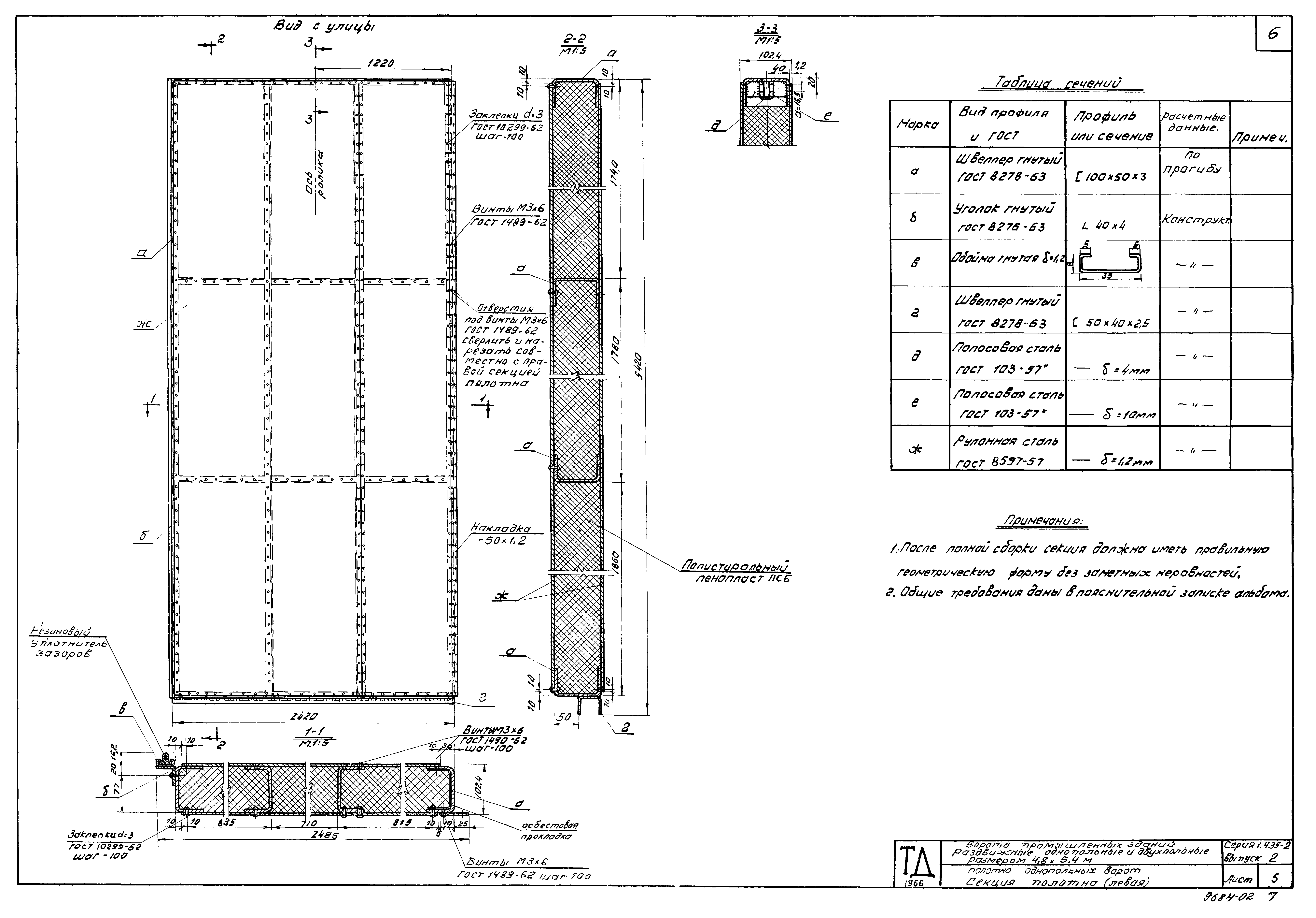
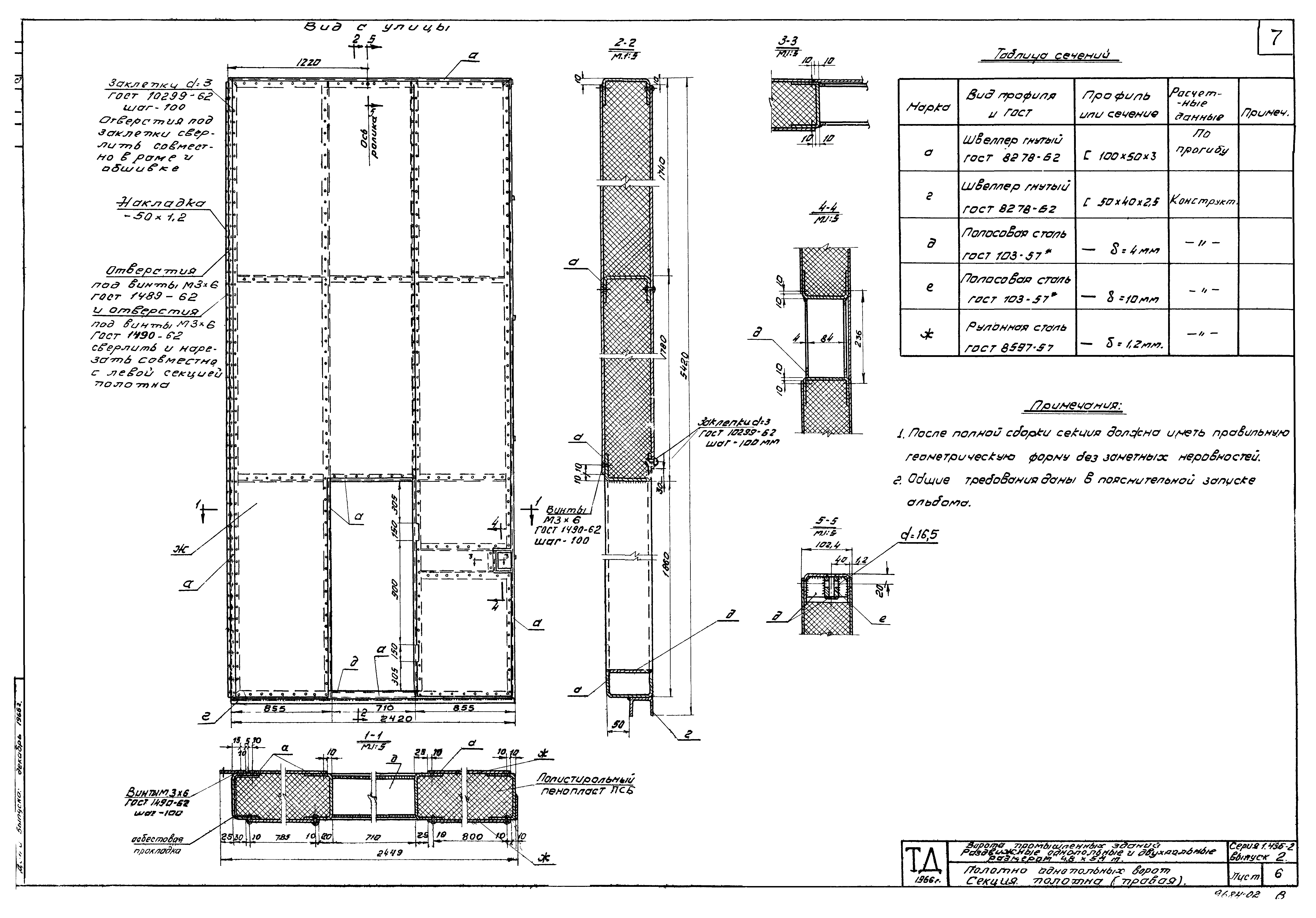
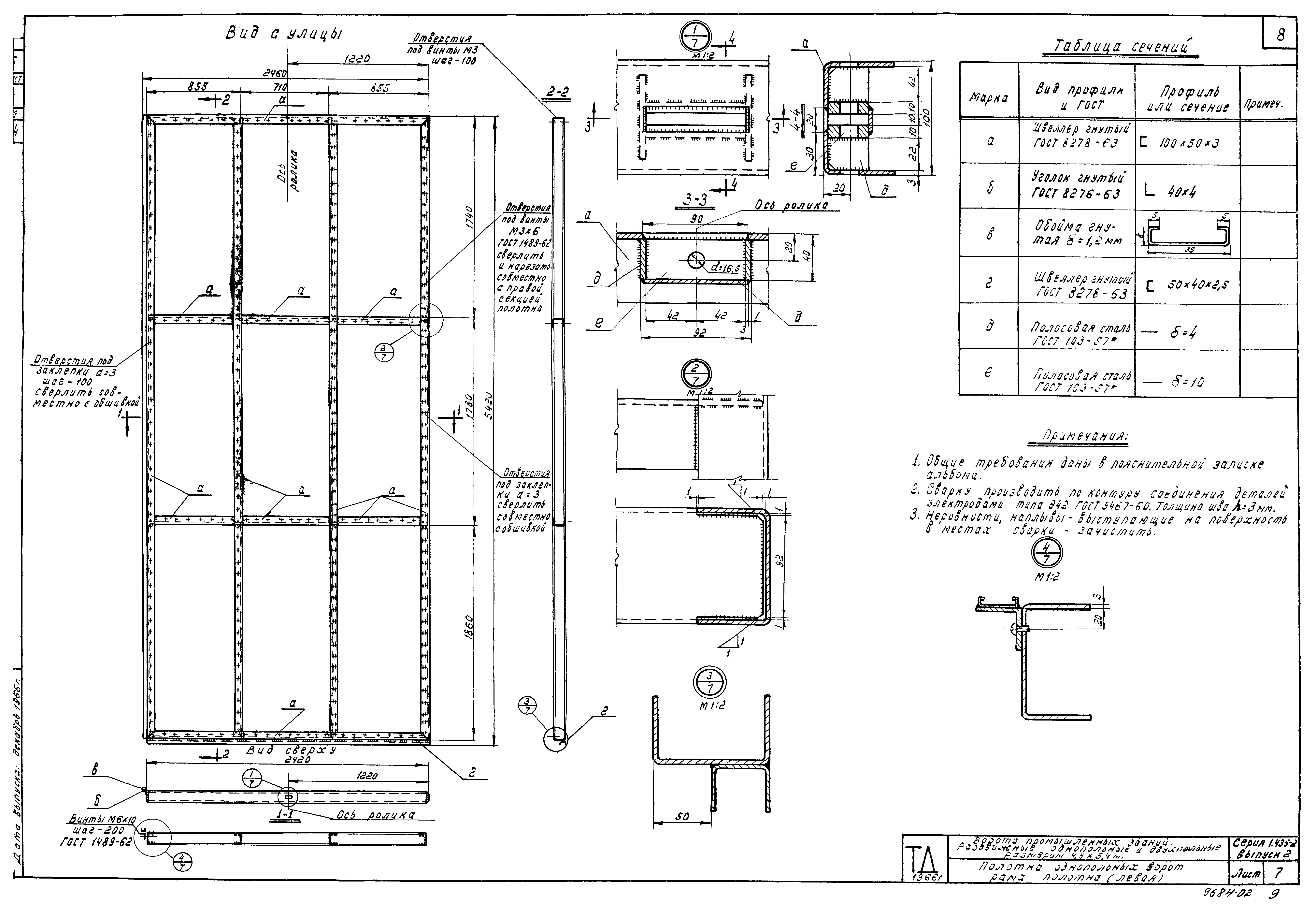
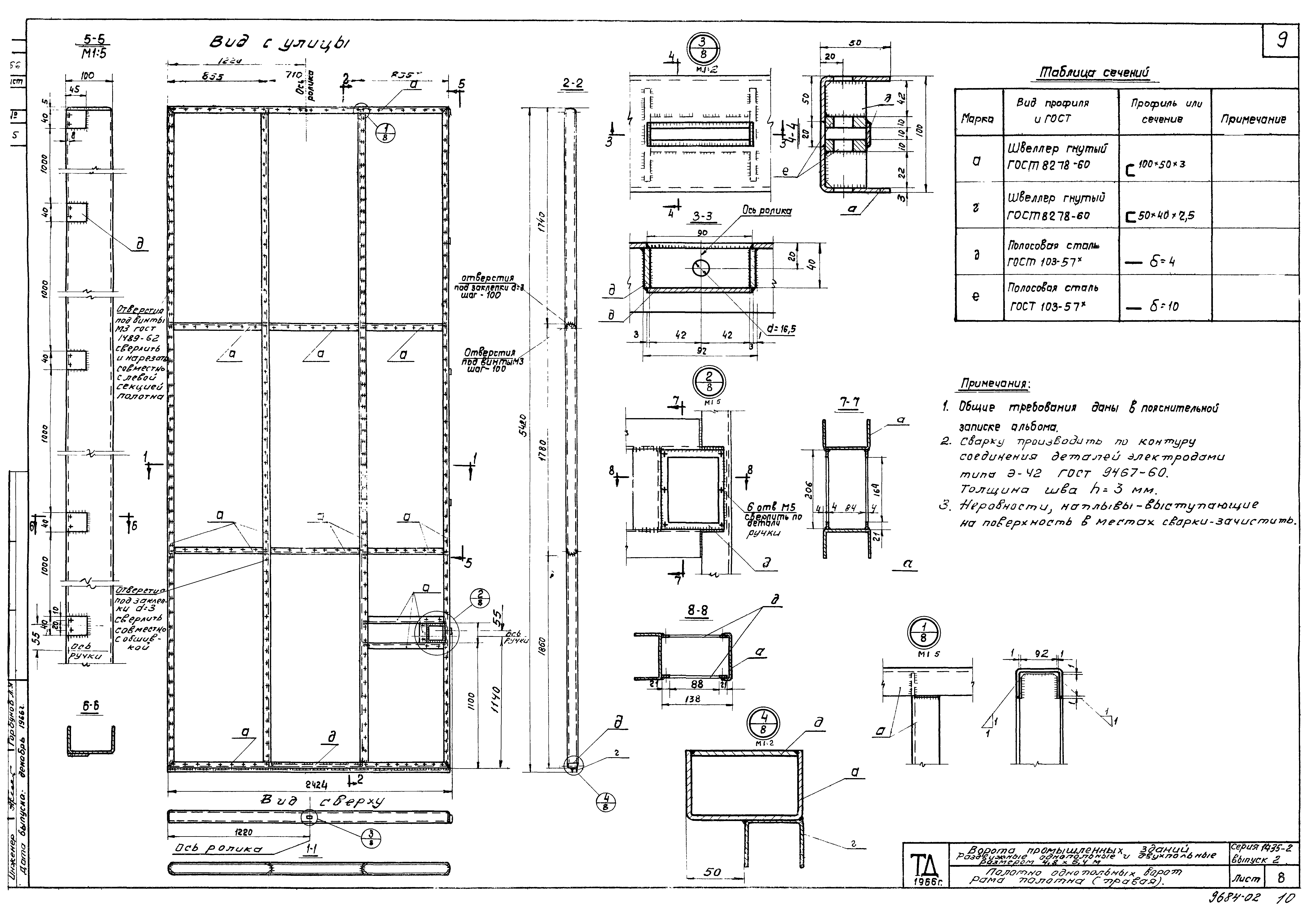
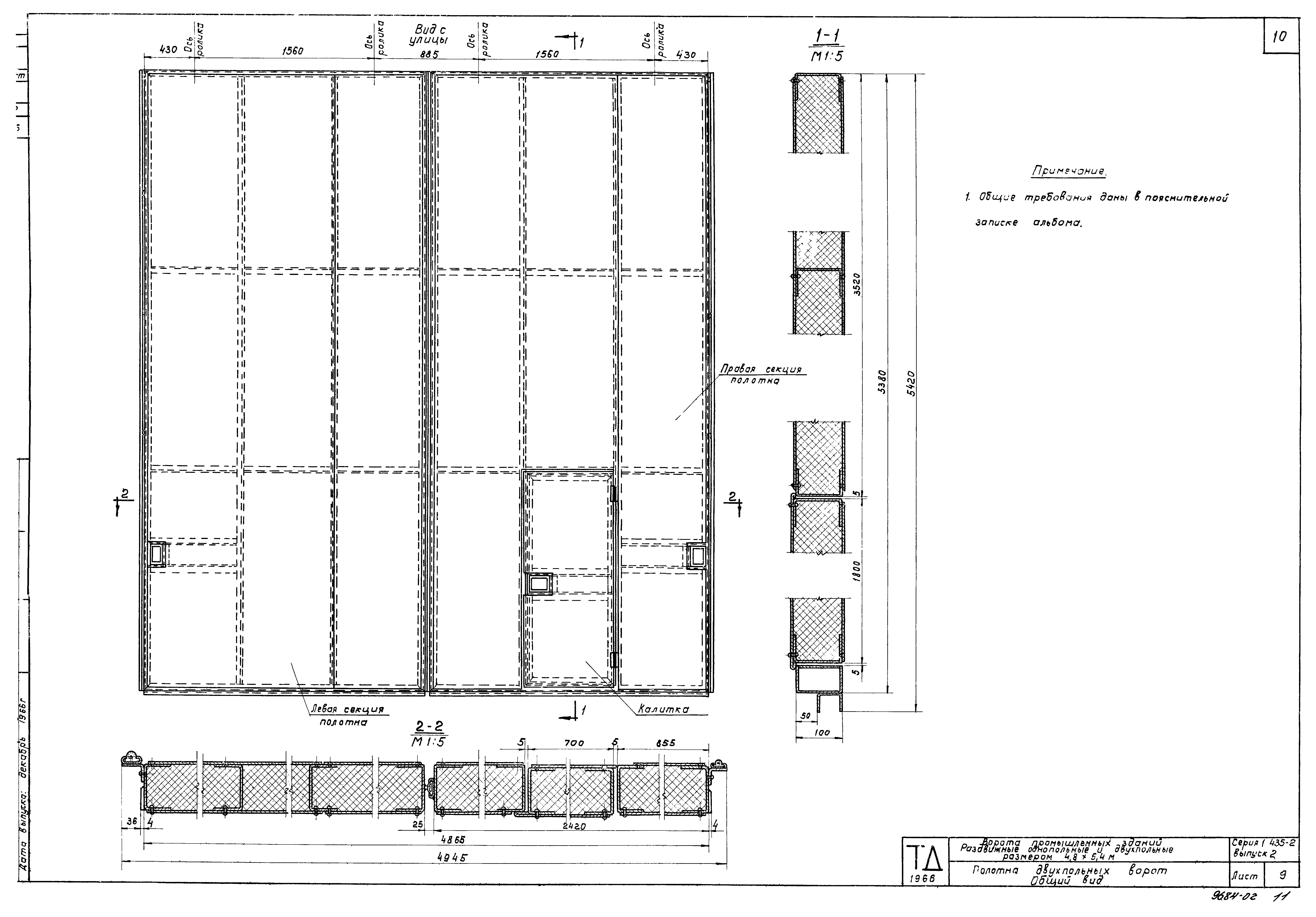
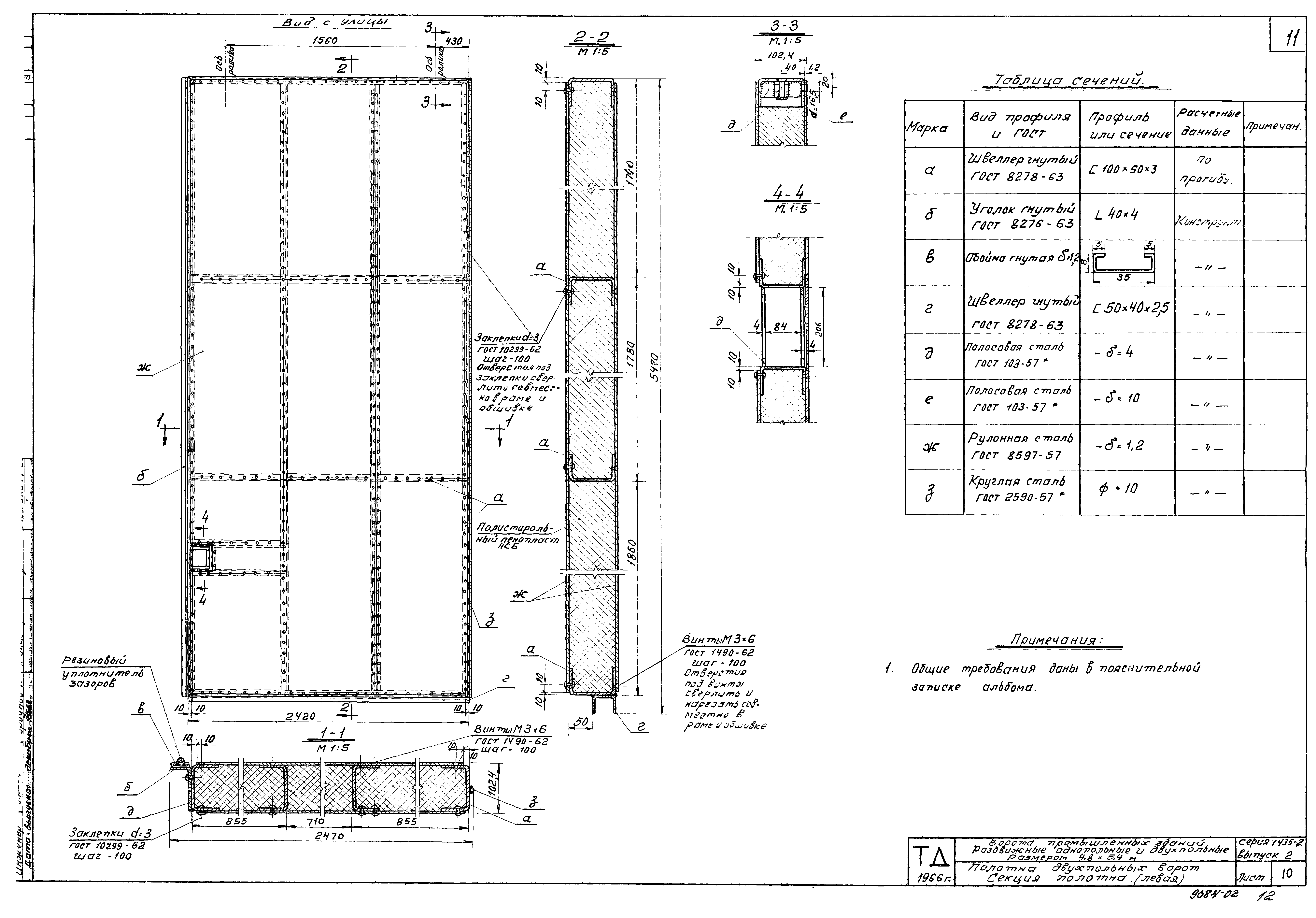
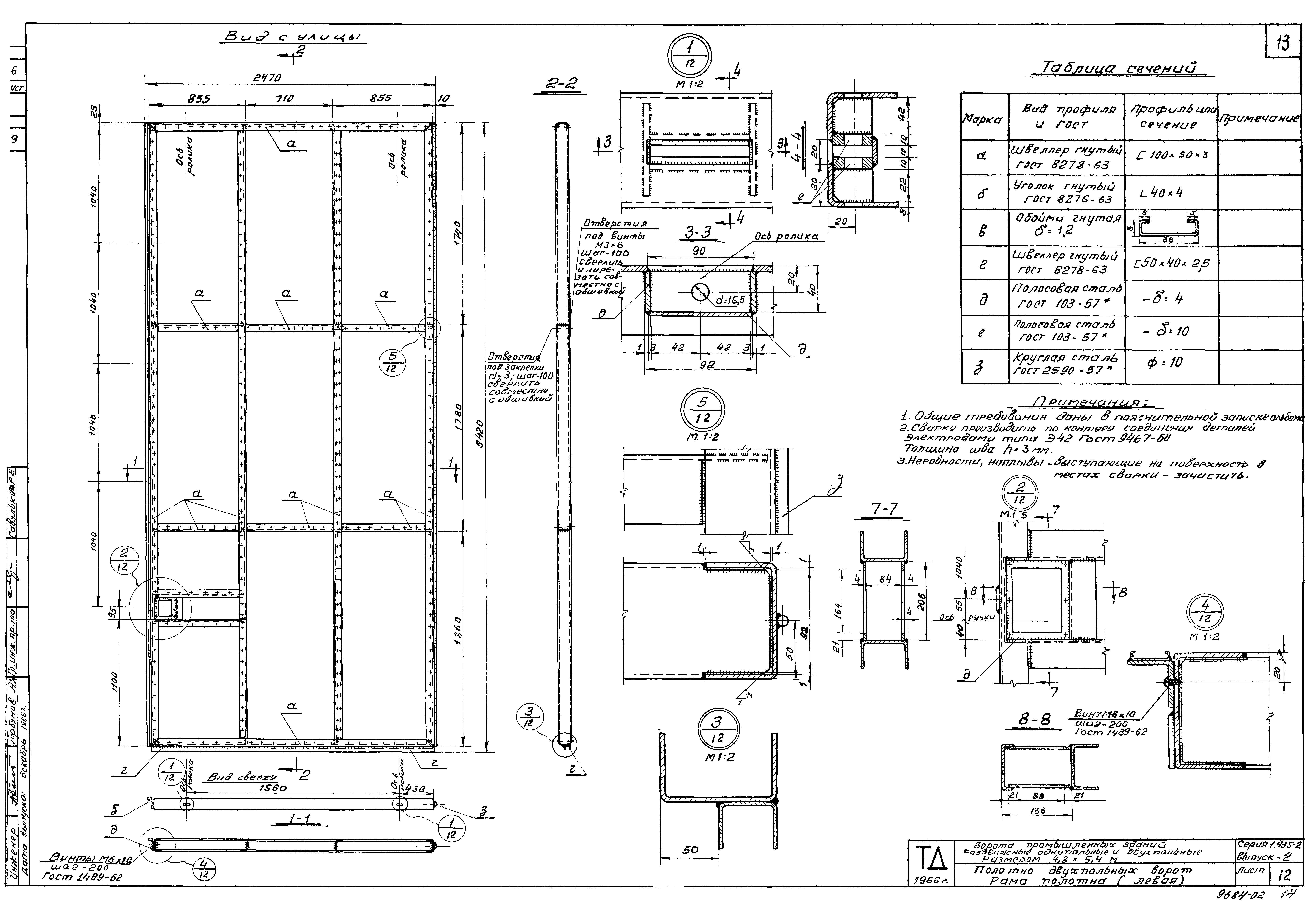
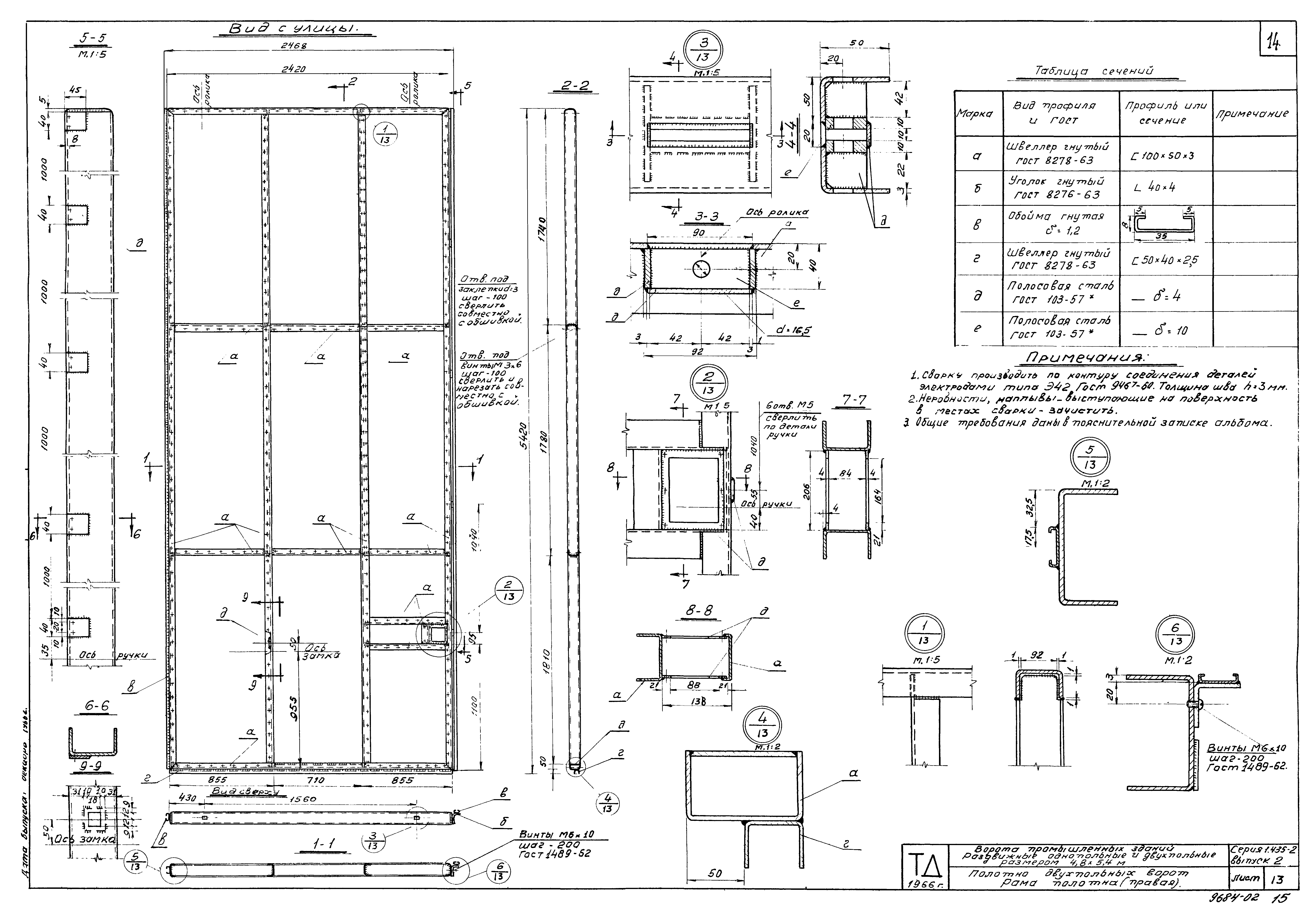
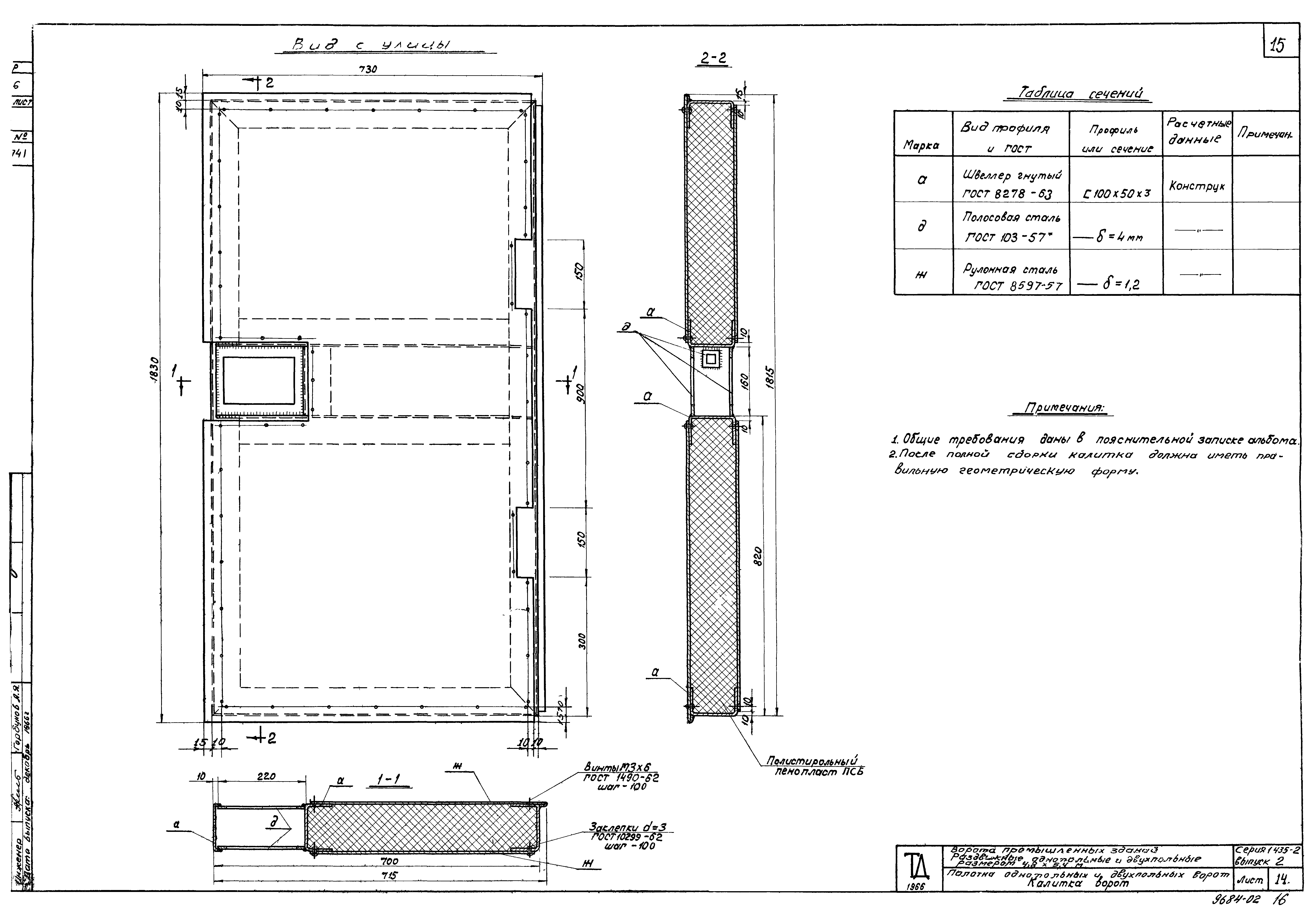
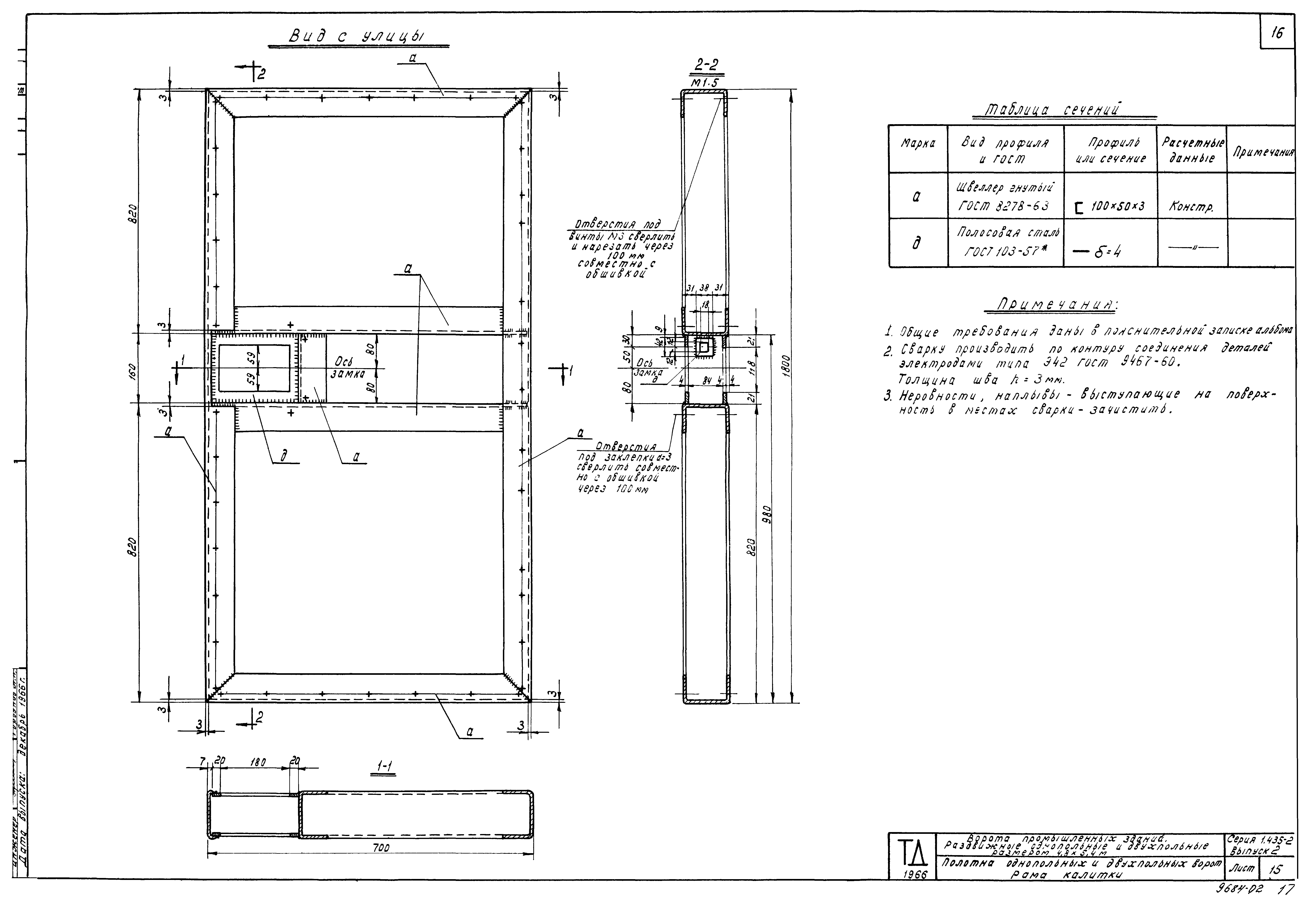
| Оглавление: | Содержание альбома и условные обозначения Пояснительная записка Полотна однопольных и двухпольных ворот. Спецификация материалов Полотна однопольных ворот. Общий вид Полотна однопольных ворот. Секция полотна (левая) Полотна однопольных ворот. Секция полотна (правая) Полотна однопольных ворот. Рама полотна (левая) Полотна однопольных ворот. Рама полотна (правая) Полотна двухпольных ворот. Общий вид Полотна двухпольных ворот. Секция полотна (левая) Полотна двухпольных ворот. Секция полотна (правая) Полотна двухпольных ворот. Рама полотна (левая) Полотна двухпольных ворот. Рама полотна (правая) Полотна однопольных и двухпольных ворот. Калитка Полотна однопольных и двухпольных ворот. Рама калитки Полотна однопольных и двухпольных ворот. Узлы уплотнения зазоров и ограждения над воротами |
| Разработан: | ЦНИИпромзданий |
| Утверждён: | 25.04.1969 Госстрой СССР (Государственный комитет Совета Министров СССР по делам строительства) (USSR Gosstroy 55) |


















