Скачать Шифр 897 Выпуск 1-2. Плиты безбалластного мостового полотна из обычного железобетона для умеренных и суровых климатических условий. Рабочие чертежиДата актуализации: 01.01.2021
|
| Обозначение: | Шифр 897 |
| Обозначение англ: | 897 |
| Статус: | не действует |
| Название рус.: | Выпуск 1-2. Плиты безбалластного мостового полотна из обычного железобетона для умеренных и суровых климатических условий. Рабочие чертежи |
| Дата добавления в базу: | 01.09.2013 |
| Дата актуализации: | 01.01.2021 |
| Дата окончания срока действия: | 01.06.2005 |
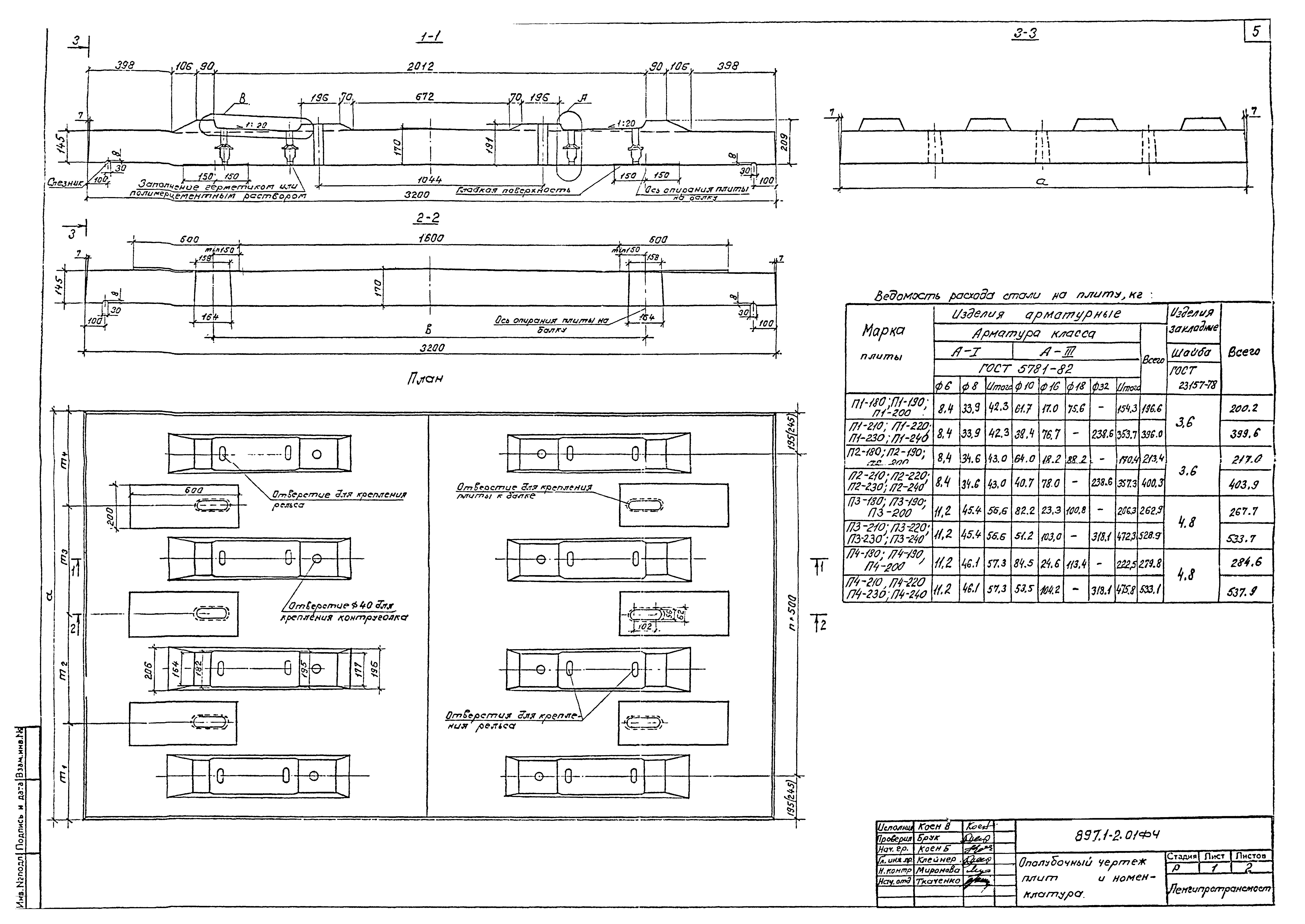
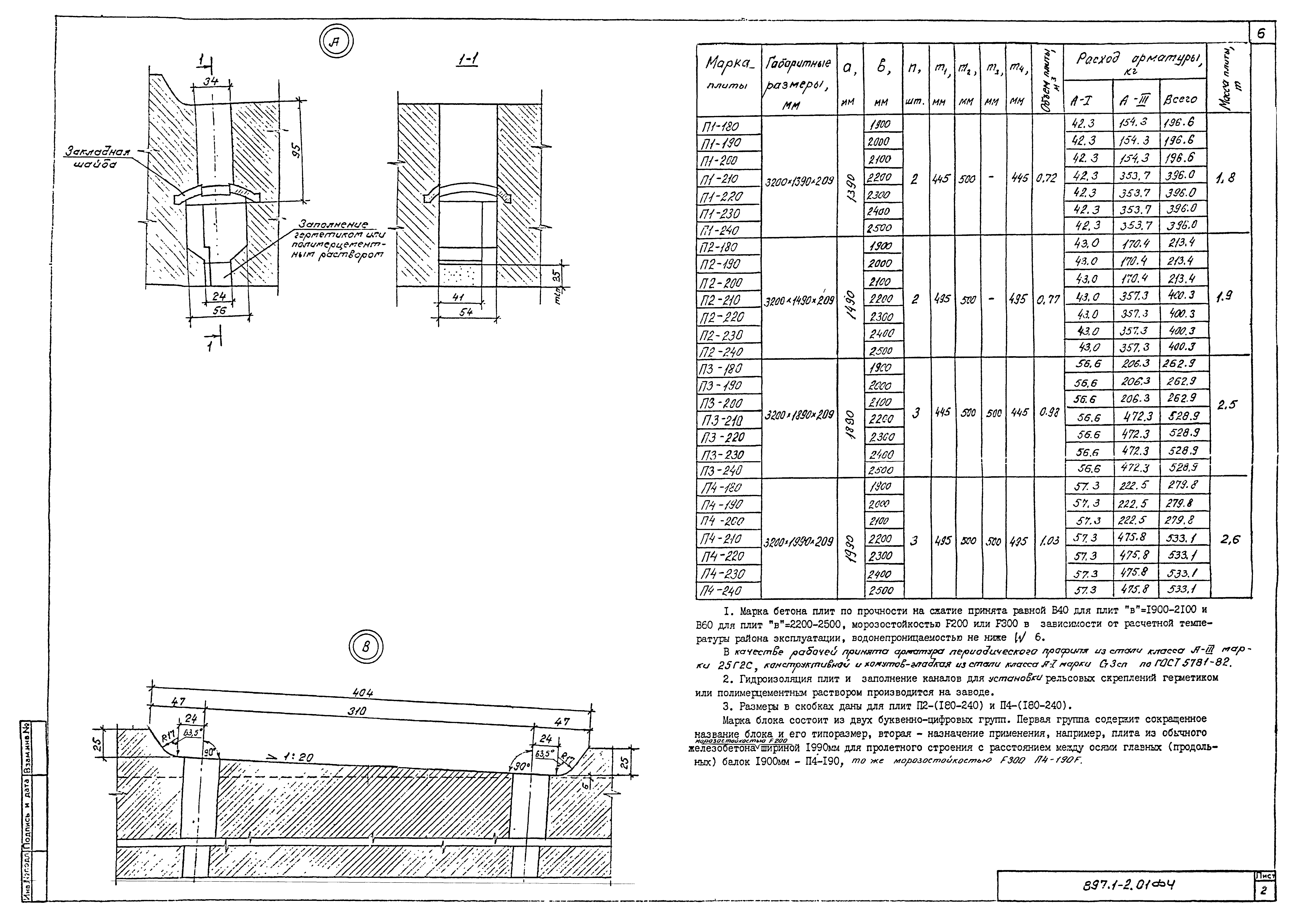
| Оглавление: | 897.1-2.00 ПЗ Пояснительная записка 897.1-2.01 ФЦ Опалубочный чертеж плит и номенклатура 897.1-2.02 Плиты П1-180;П1-190;П1-200 897.1-2.03 Плиты П2-180;П2-190;П2-200 897.1-2.04 Плиты П3-180;П3-190;П3-200 897.1-2.05 Плиты П4-180;П4-190;П4-200 897.1-2.06 Плиты П1-210;П1-220;П1-230;П1-240 897.1-2.07 Плиты П2-210;П2-220;П2-230;П2-240 897.1-2.08 Плиты П3-210;П3-220;П3-230;П3-240 897.1-2.09 Плиты П4-210;П4-220;П4-230;П4-240 897.1-2.10 Сетки С1,С2,С3,С4 897.1-2.11 Сетки С5,С6,С7,С8 897.1-2.12 Сетки С9,С10,С11,С12 897.1-2.13 Сетки С13,С14,С15,С16 897.1-2.14 Сетки С17,С18,С19,С20 897.1-2.15 Сетки С21,С22,С23,С24 897.1-2.16 Сетки С25,С26,С27,С28 897.1-2.17 Сетки С29,С30,С31,С32 897.1-2.18 Сетки С33,С34,С35,С36 897.1-2.19 Каркасы КП1;КП2 |
| Разработан: | Ленгипротрансмост |
| Утверждён: | 18.02.1991 МПС СССР (USSR Ministry of Railroads А-304У) |
| Чем заменён: |
|
















