Скачать Серия 3.015-2/77 Выпуск II-4. Сборные железобетонные колонны для эстакад типов VIж - VIIIж. Рабочие чертежиДата актуализации: 01.01.2021
|
| Обозначение: | Серия 3.015-2/77 |
| Обозначение англ: | Series 3.015-2/77 |
| Статус: | не действует |
| Название рус.: | Выпуск II-4. Сборные железобетонные колонны для эстакад типов VIж - VIIIж. Рабочие чертежи |
| Дата добавления в базу: | 01.09.2013 |
| Дата актуализации: | 01.01.2021 |
| Дата введения: | 01.07.1979 |
| Дата окончания срока действия: | 01.10.1985 |
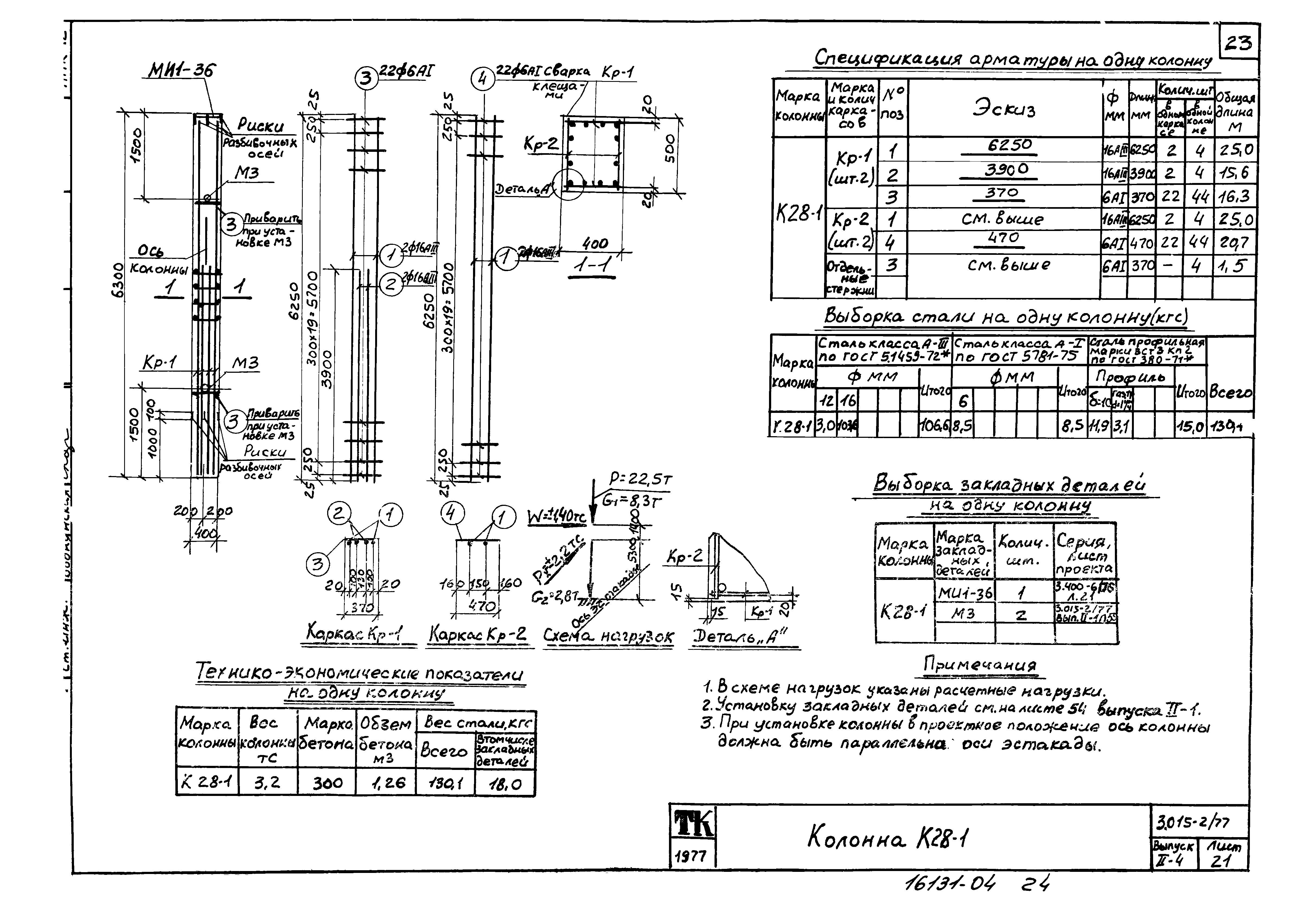
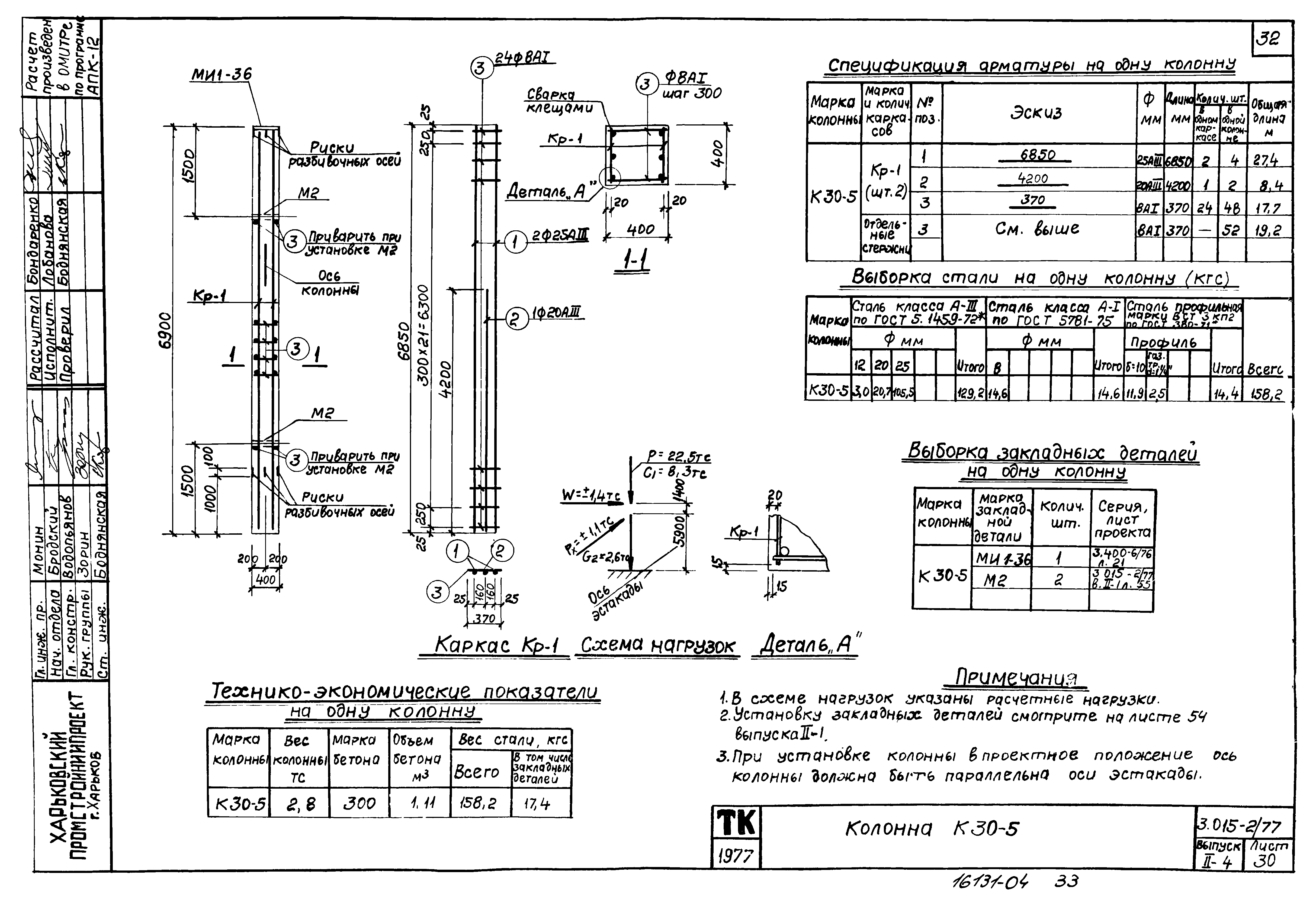
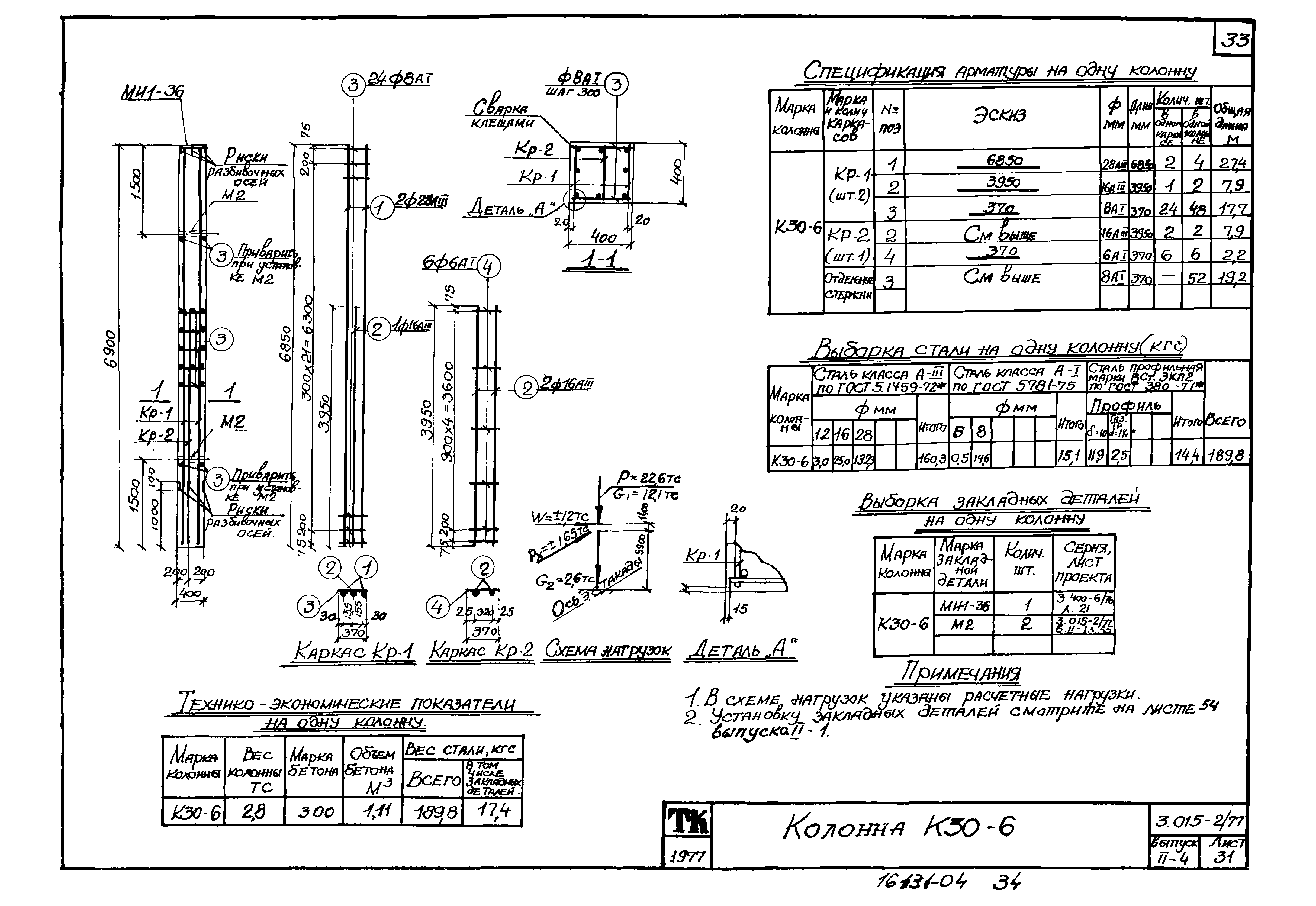
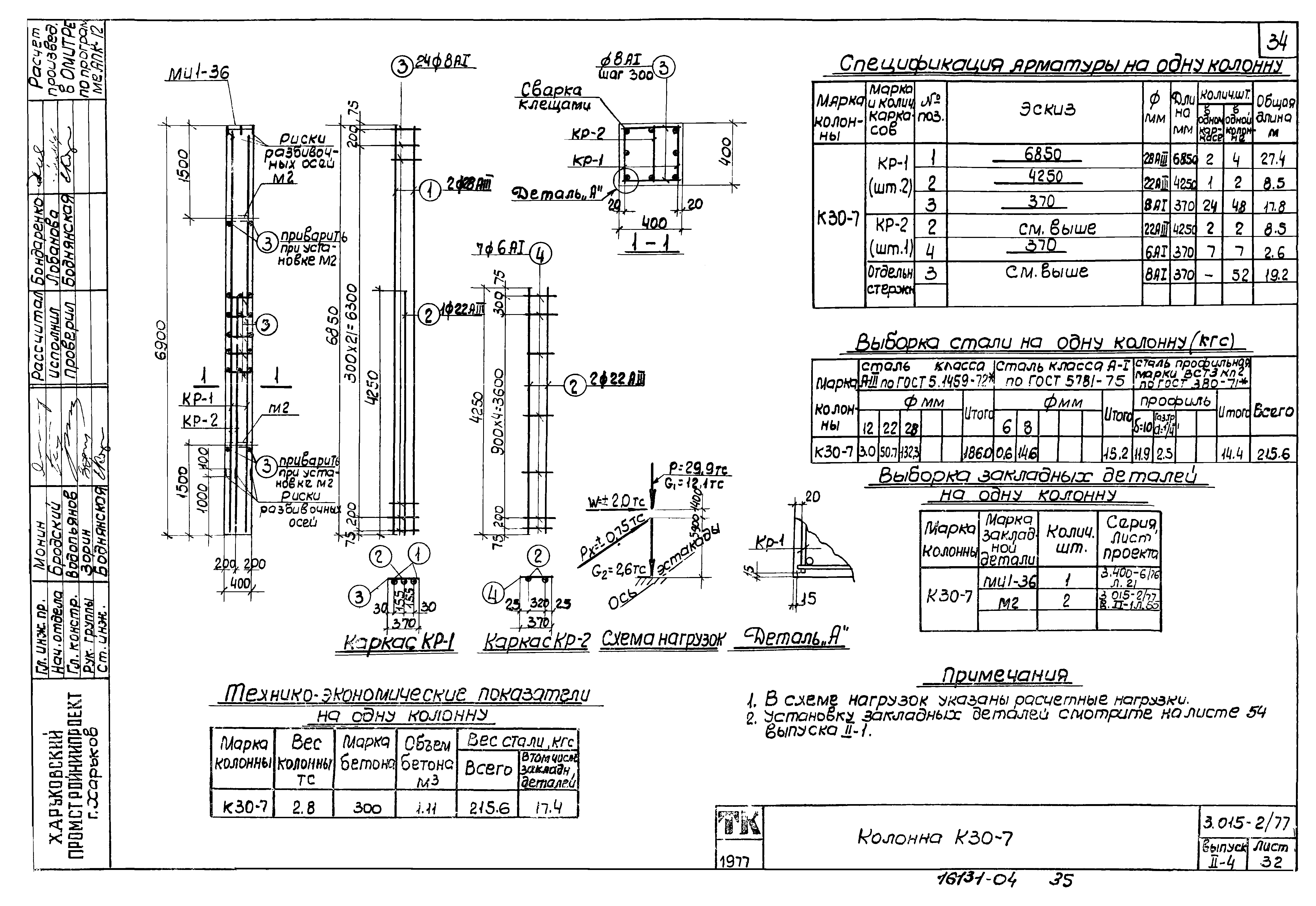
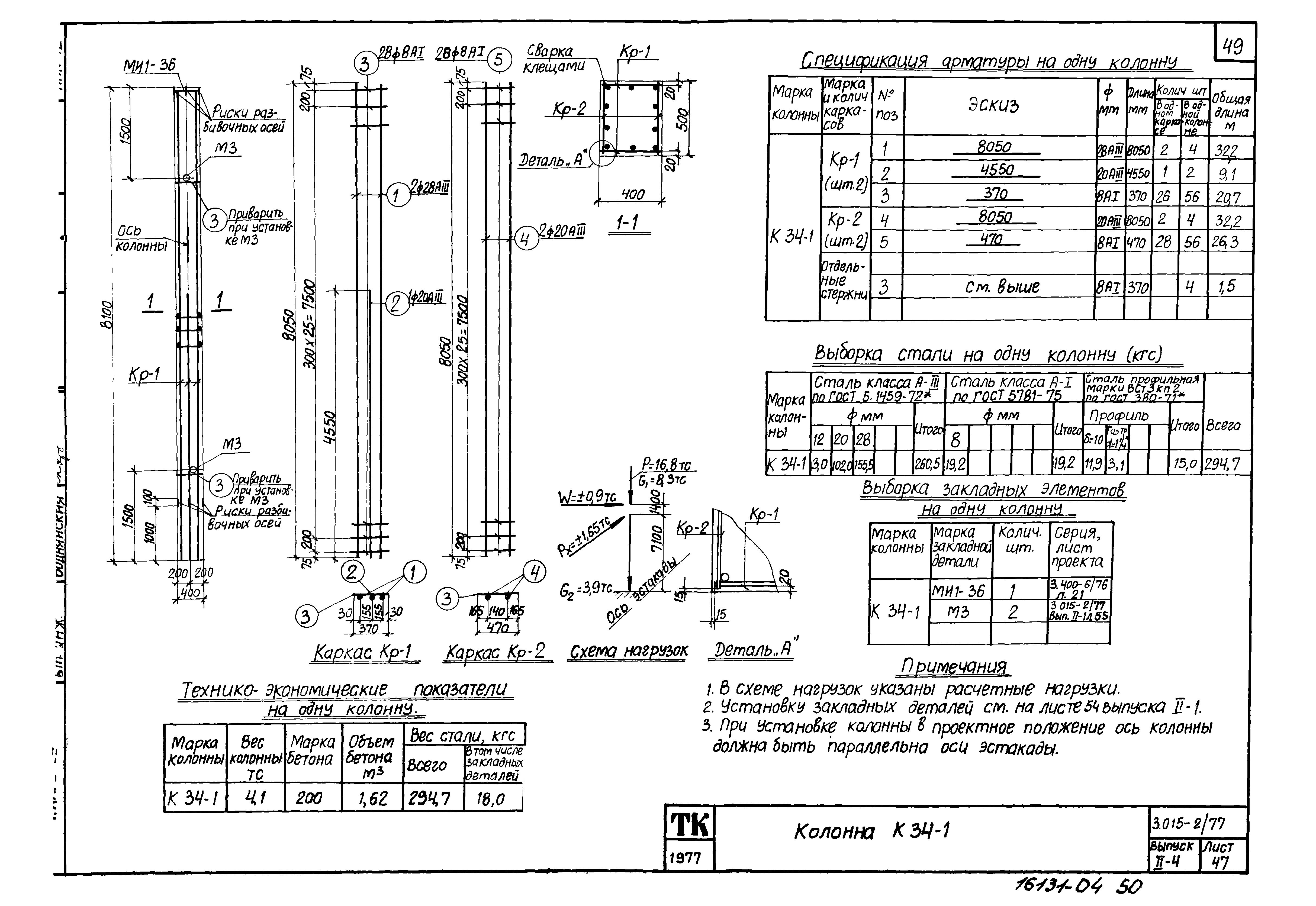
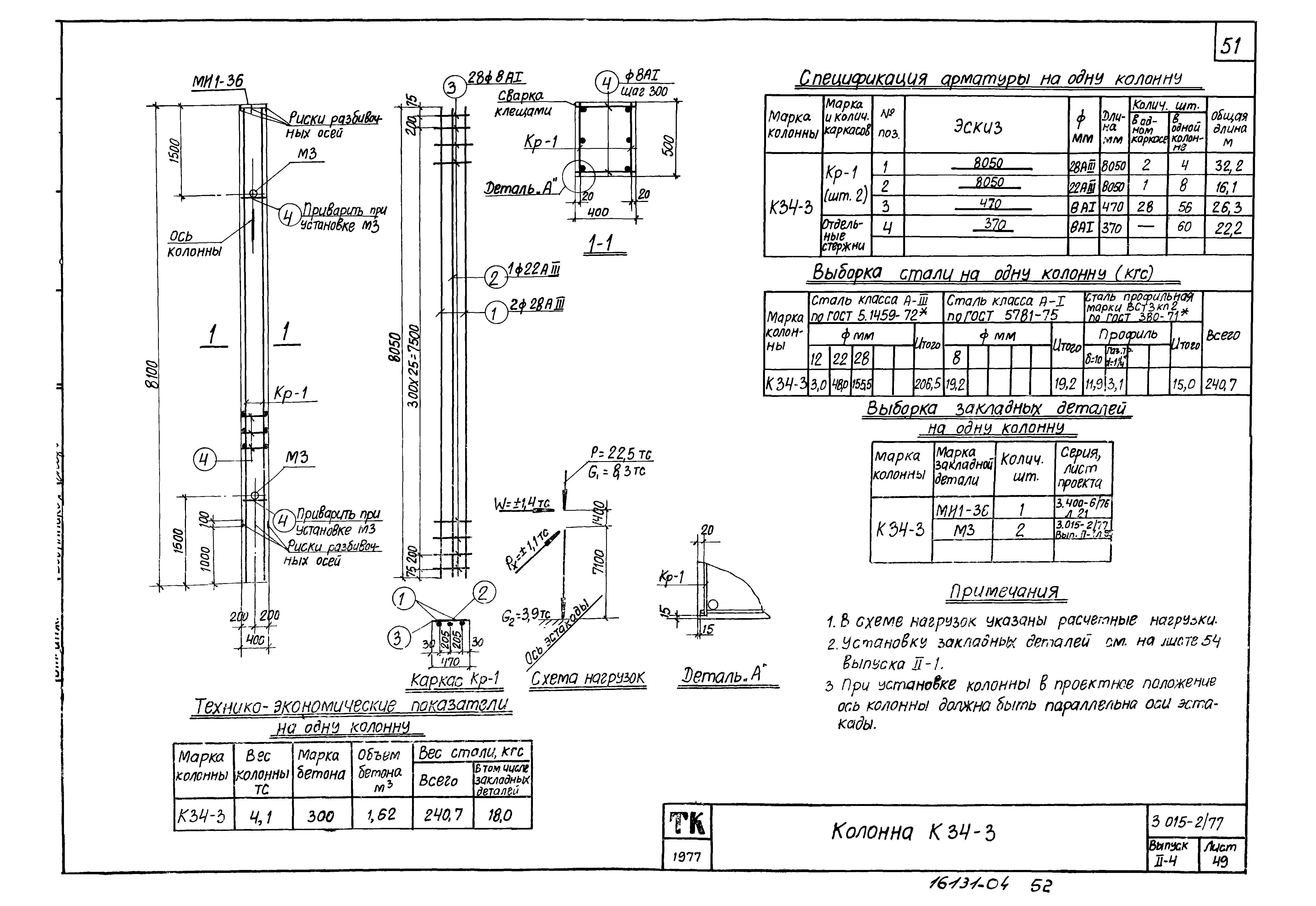
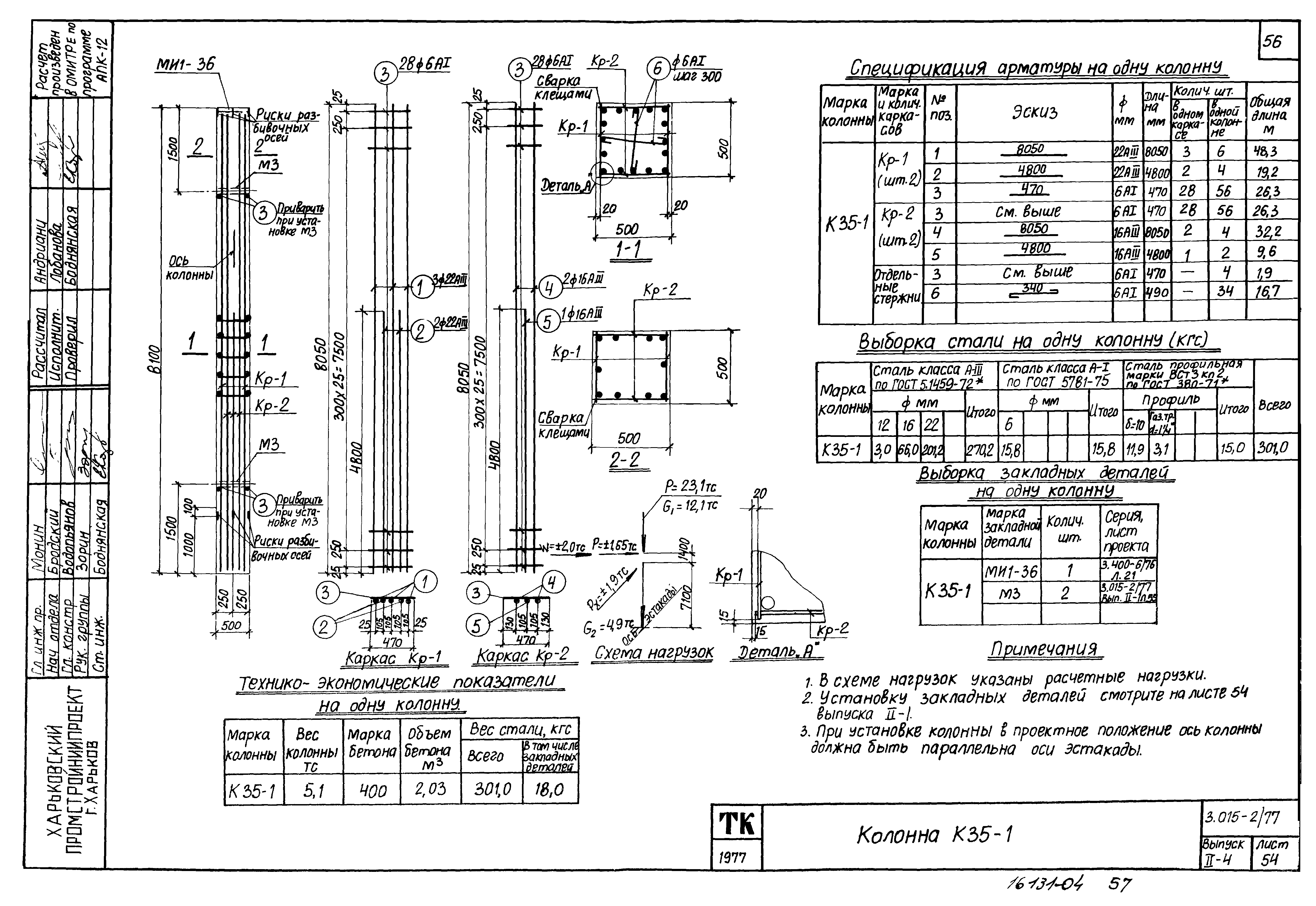
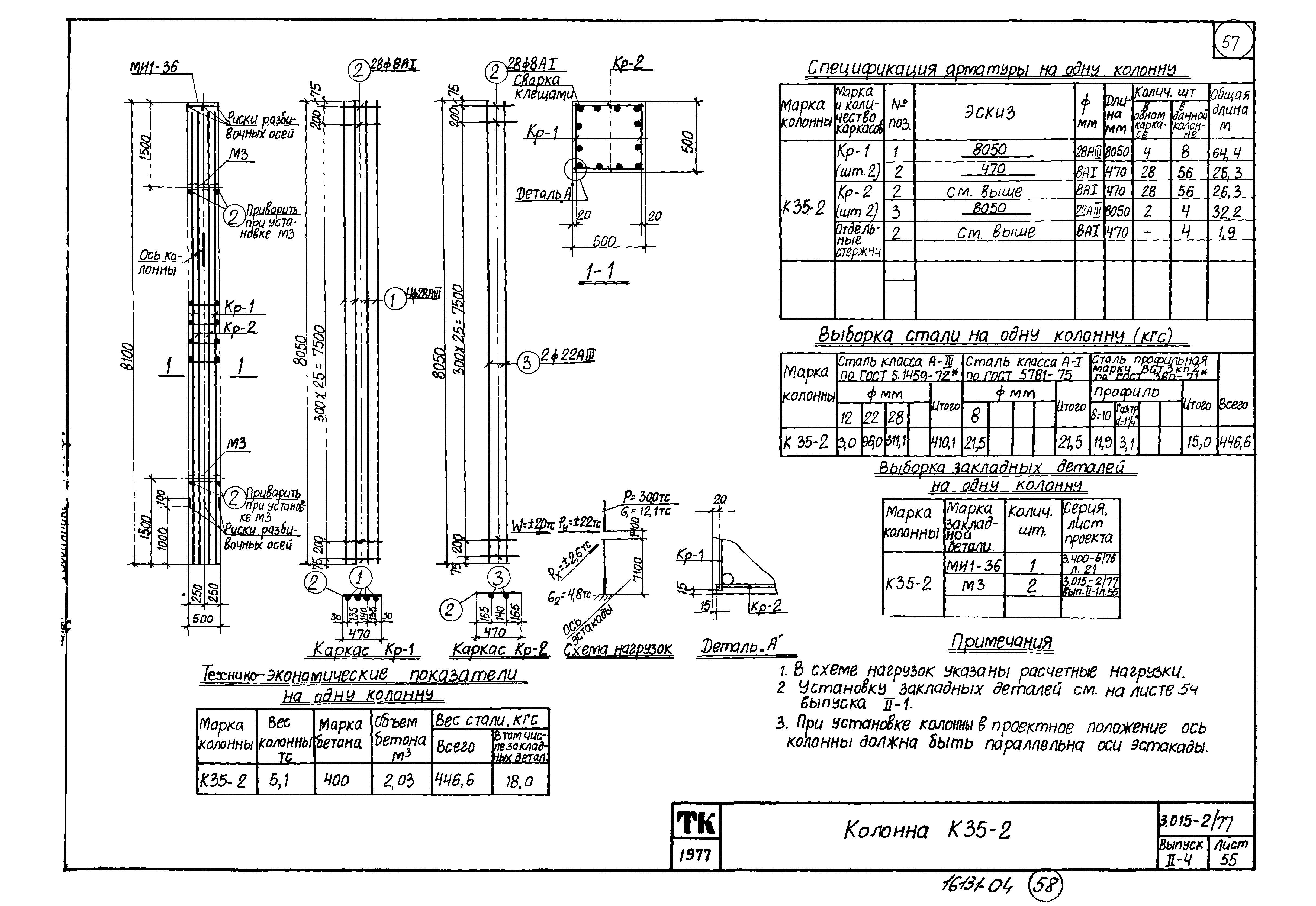
| Оглавление: | Содержание Колонна К25-1 Колонна К25-2 Колонна К25-3 Колонна К25-4 Колонна К25-5 Колонна К25-6 Колонна К25-7 Колонна К25-8 Колонна К25-9 Колонна К26-1 Колонна К27-1 Колонна К27-2 Колонна К27-3 Колонна К27-4 Колонна К27-5 Колонна К27-6 Колонна К27-7 Колонна К27-8 Колонна К27-9 Колонна К27-10 Колонна К28-1 Колонна К28-2 Колонна К28-3 Колонна К28-4 Колонна К29-1 Колонна К30-1 Колонна К30-2 Колонна К30-3 Колонна К30-4 Колонна К30-5 Колонна К30-6 Колонна К30-7 Колонна К30-8 Колонна К30-9 Колонна К30-10 Колонна К31-1 Колонна К31-2 Колонна К31-3 Колонна К31-4 Колонна К32-1 Колонна К33-1 Колонна К33-2 Колонна К33-3 Колонна К33-4 Колонна К33-5 Колонна К33-6 Колонна К34-1 Колонна К34-2 Колонна К34-3 Колонна К34-4 Колонна К34-5 Колонна К34-6 Колонна К34-7 Колонна К35-1 Колонна К35-2 |
| Разработан: | Харьковский Промстройниипроект ЦНИИпроектстальконструкция НИИЖБ Проектный институт № 1 Госстроя СССР |
| Утверждён: | 02.04.1979 Госстрой СССР (Государственный комитет Совета Министров СССР по делам строительства) (USSR Gosstroy 50) |
| Чем заменён: |


























































