Скачать Серия 3.904-11 Выпуск 2. Альбом 11. Приточная вентиляционная камера типа ПК150 производительностью от 100 до 150 тыс. куб. м/час с ограждающими конструкциями из легкометаллических панелей. Рабочие чертежиДата актуализации: 01.01.2021
|
| Обозначение: | Серия 3.904-11 |
| Обозначение англ: | Series 3.904-11 |
| Статус: | не действует |
| Название рус.: | Выпуск 2. Альбом 11. Приточная вентиляционная камера типа ПК150 производительностью от 100 до 150 тыс. куб. м/час с ограждающими конструкциями из легкометаллических панелей. Рабочие чертежи |
| Дата добавления в базу: | 01.09.2013 |
| Дата актуализации: | 01.01.2021 |
| Дата введения: | 12.12.1968 |
| Дата окончания срока действия: | 01.02.1975 |
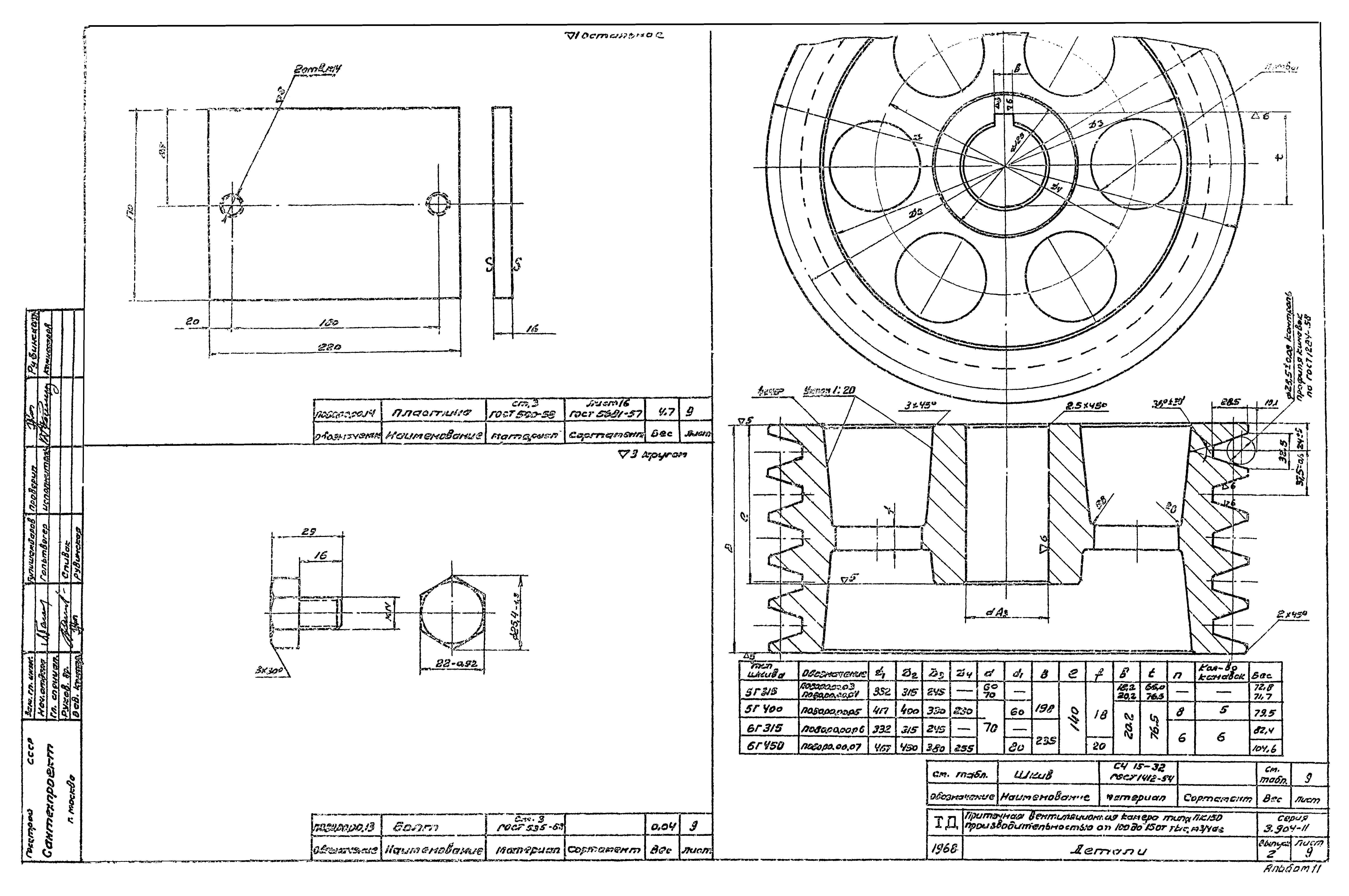
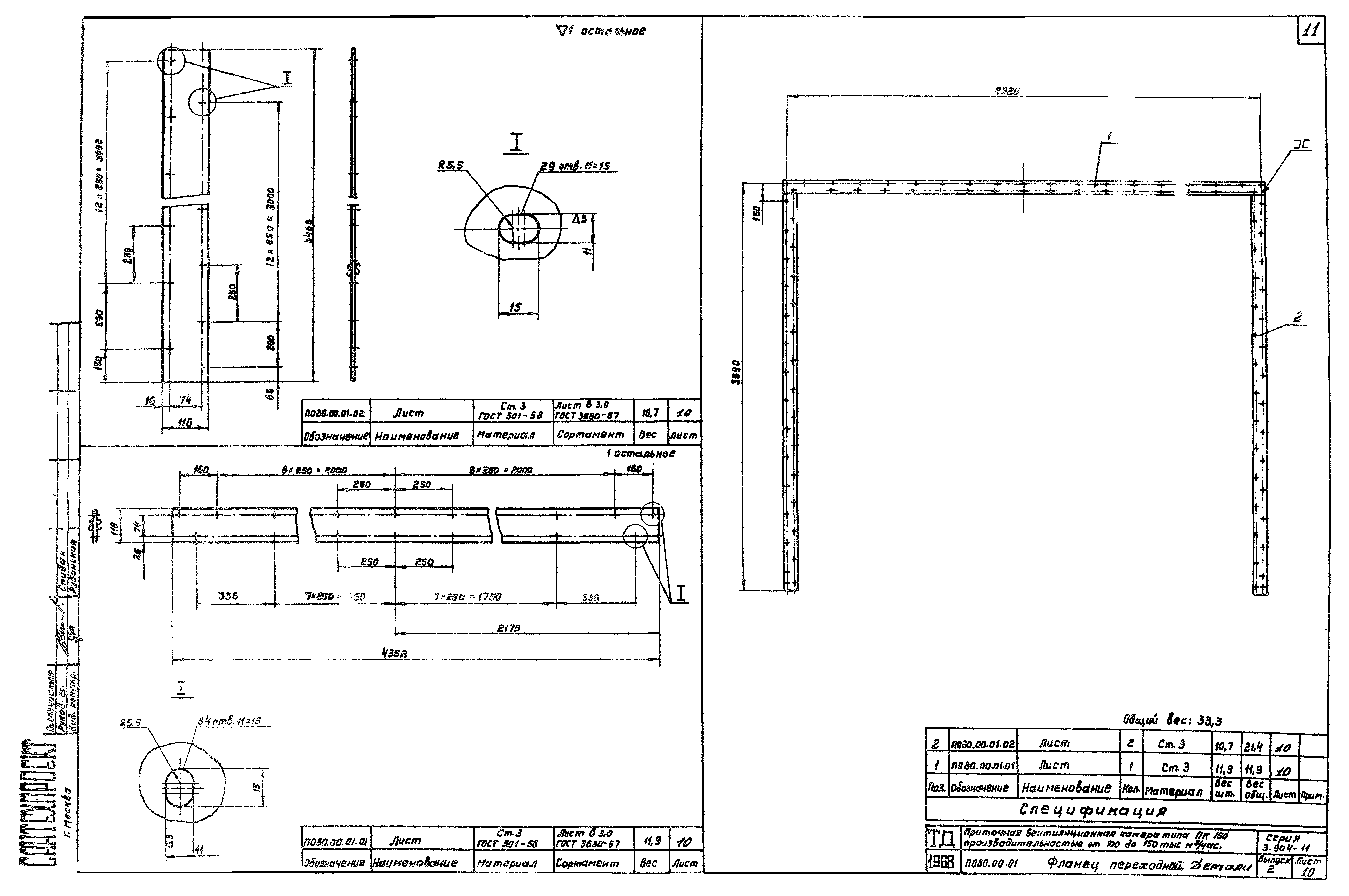
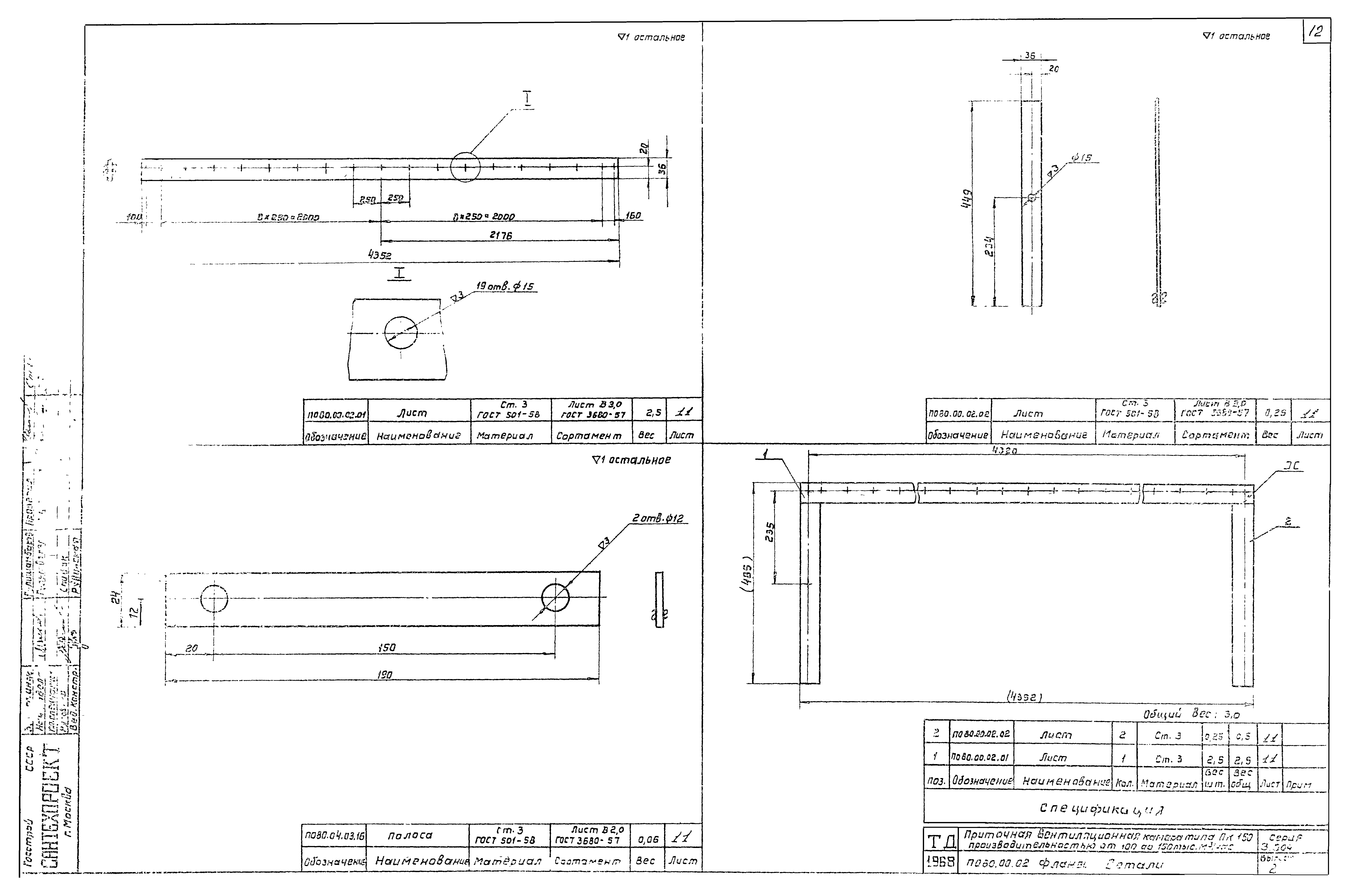
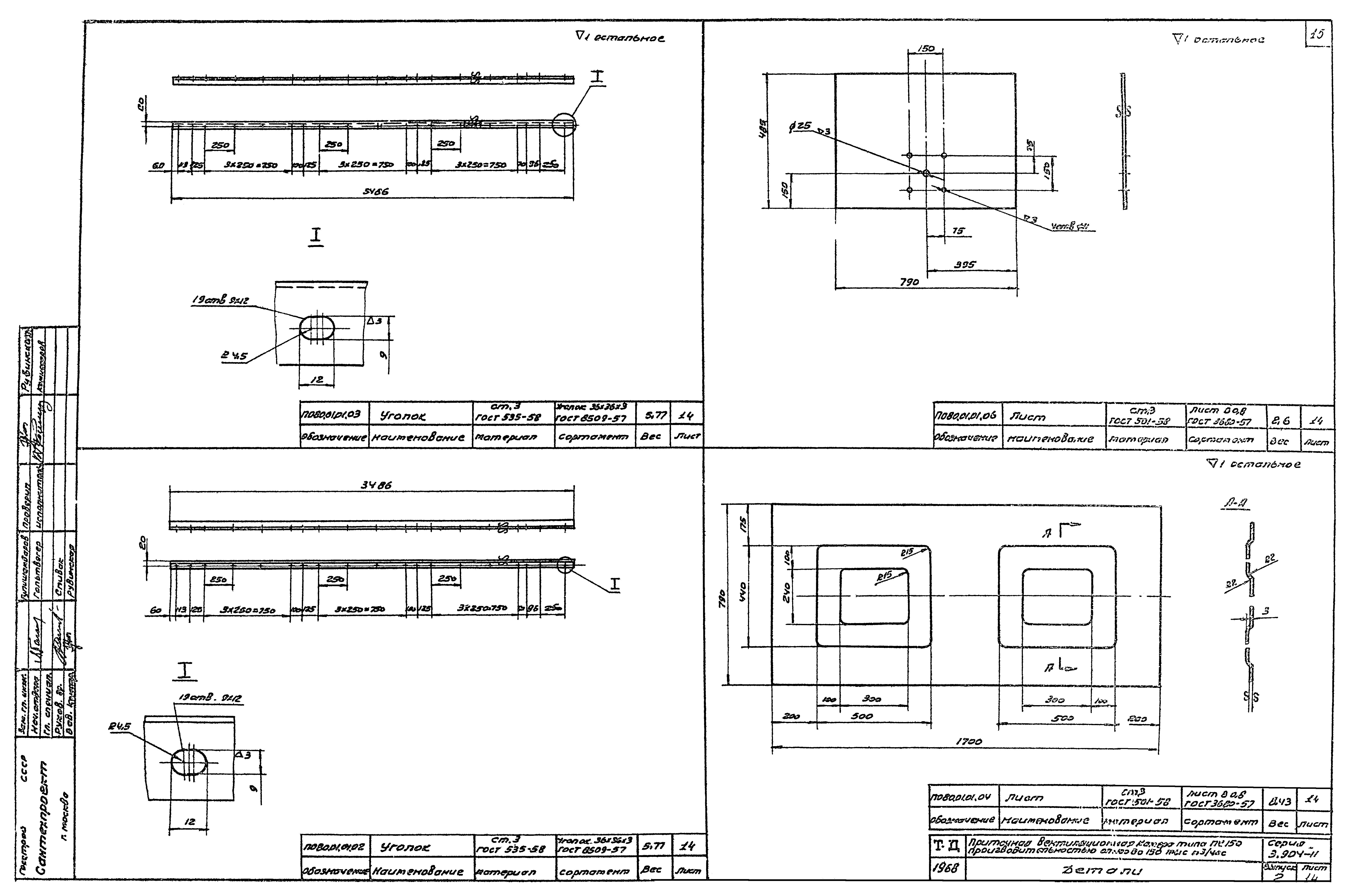
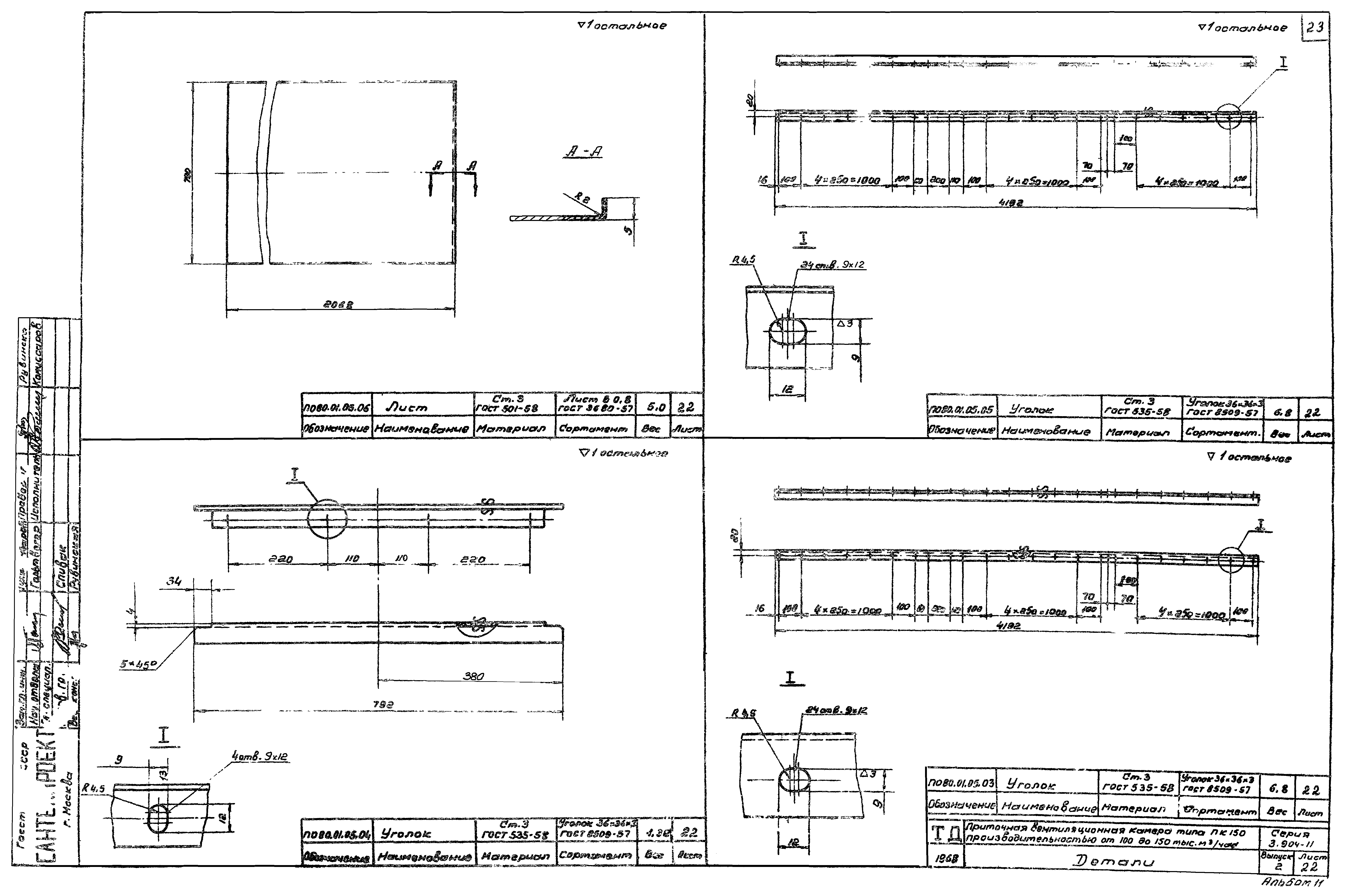
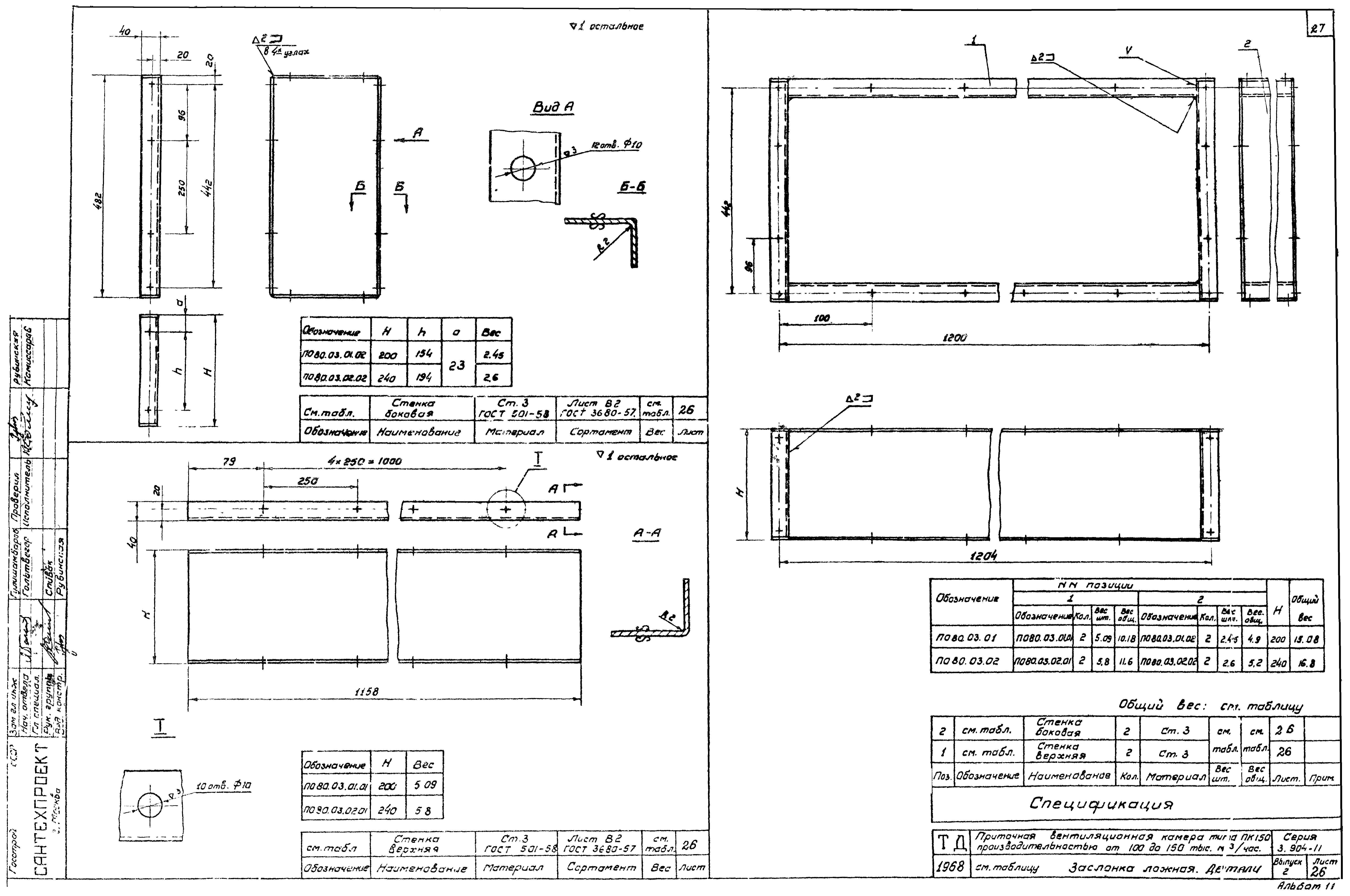
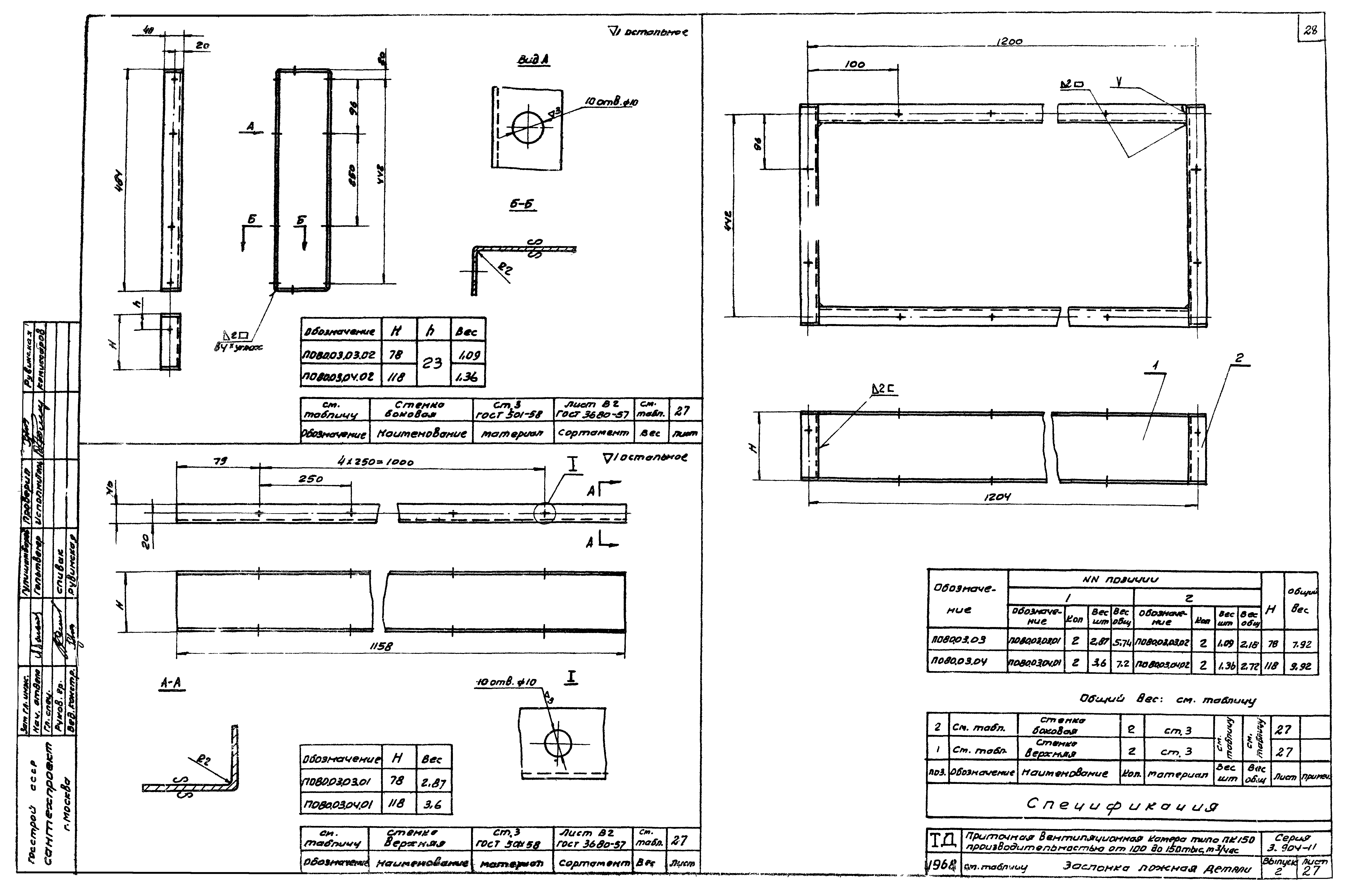
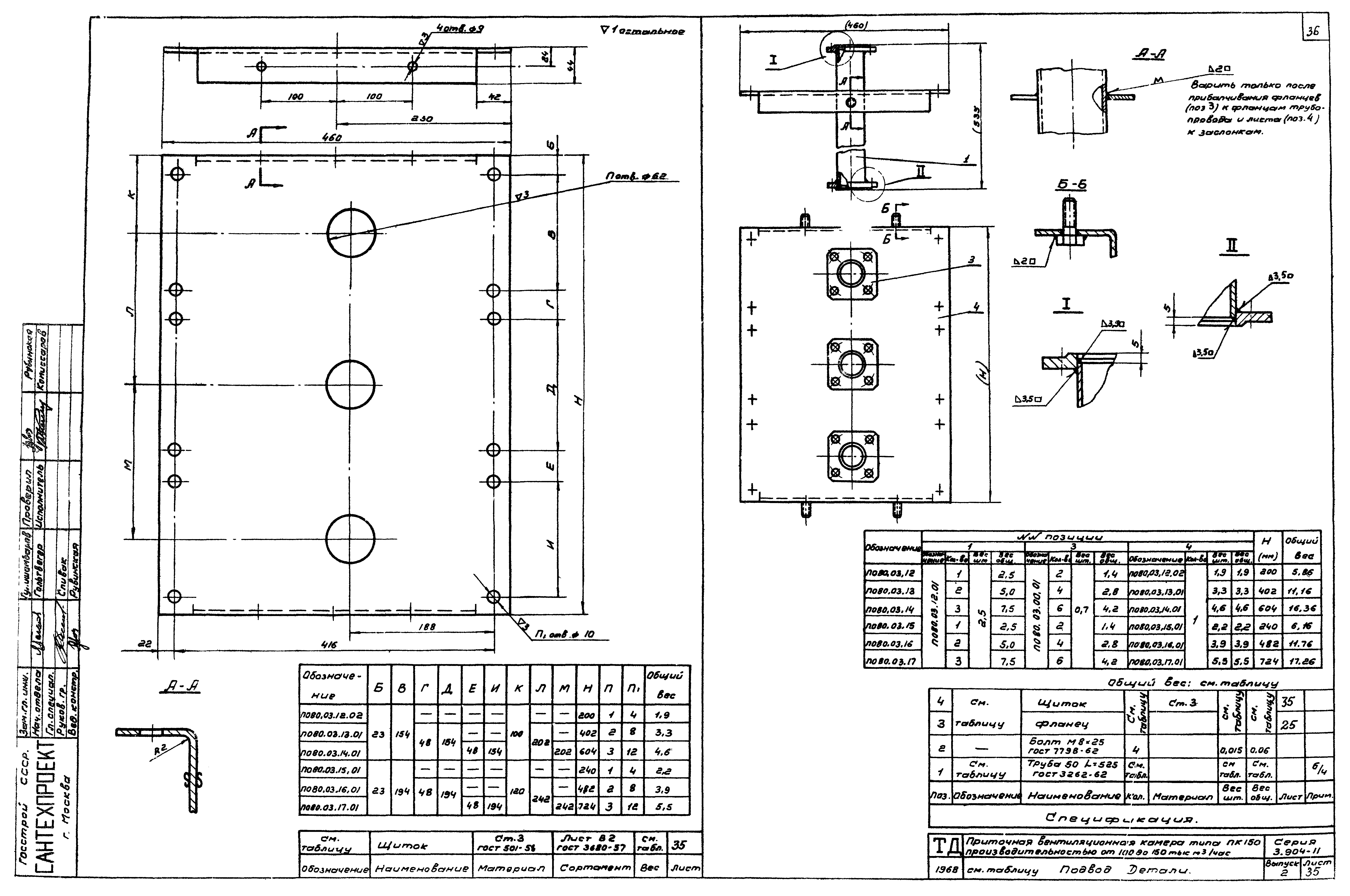
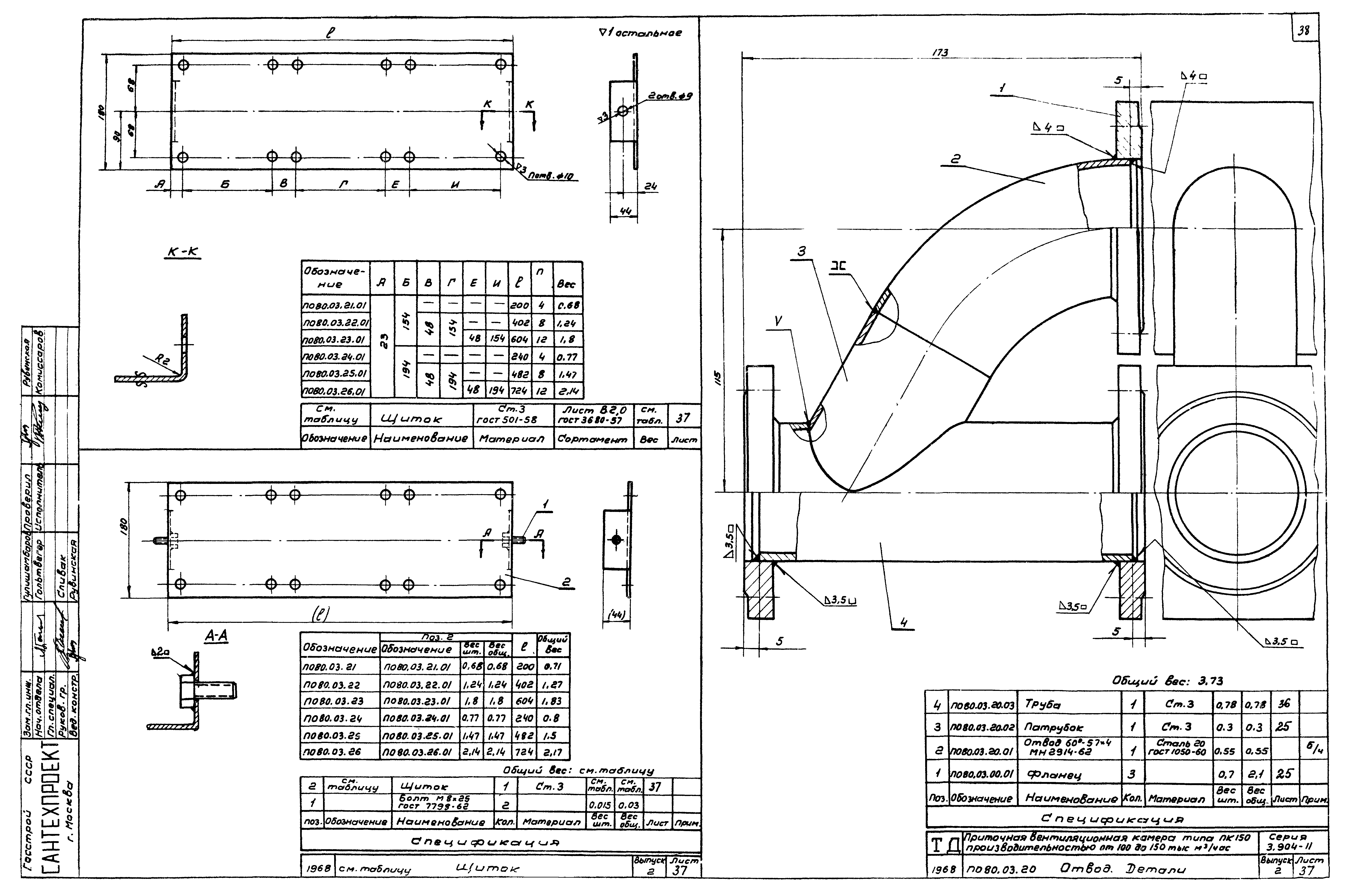
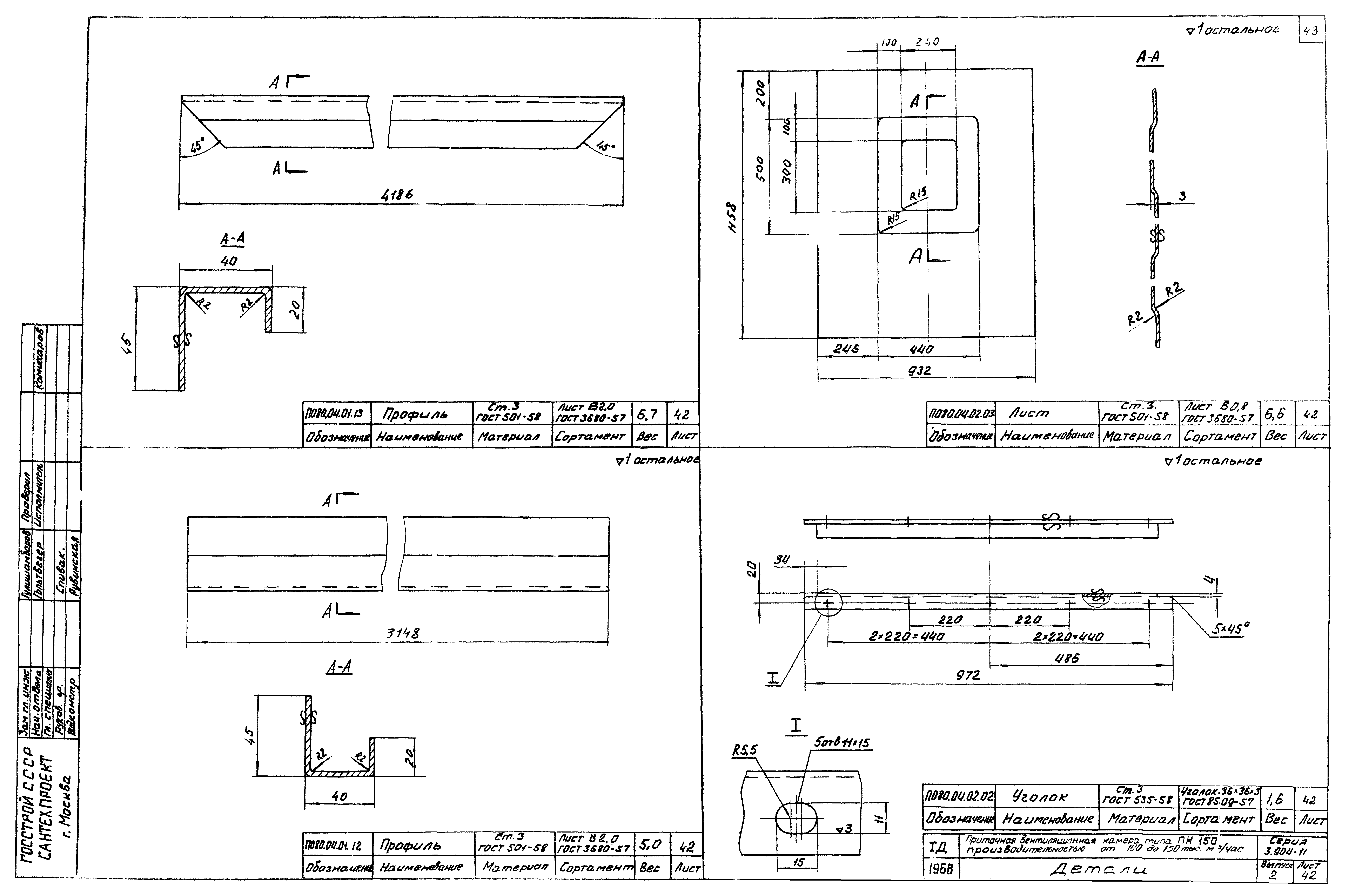
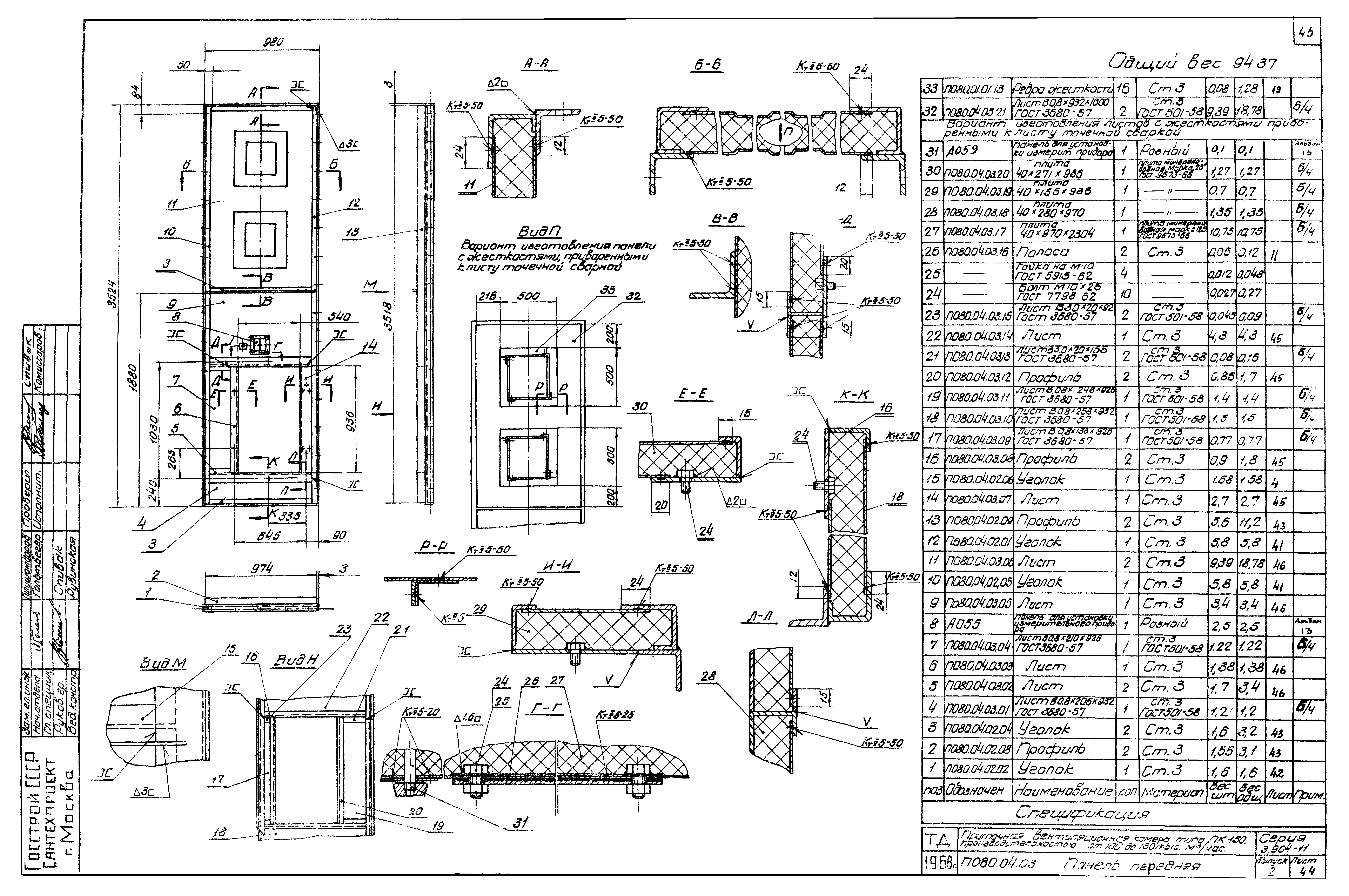
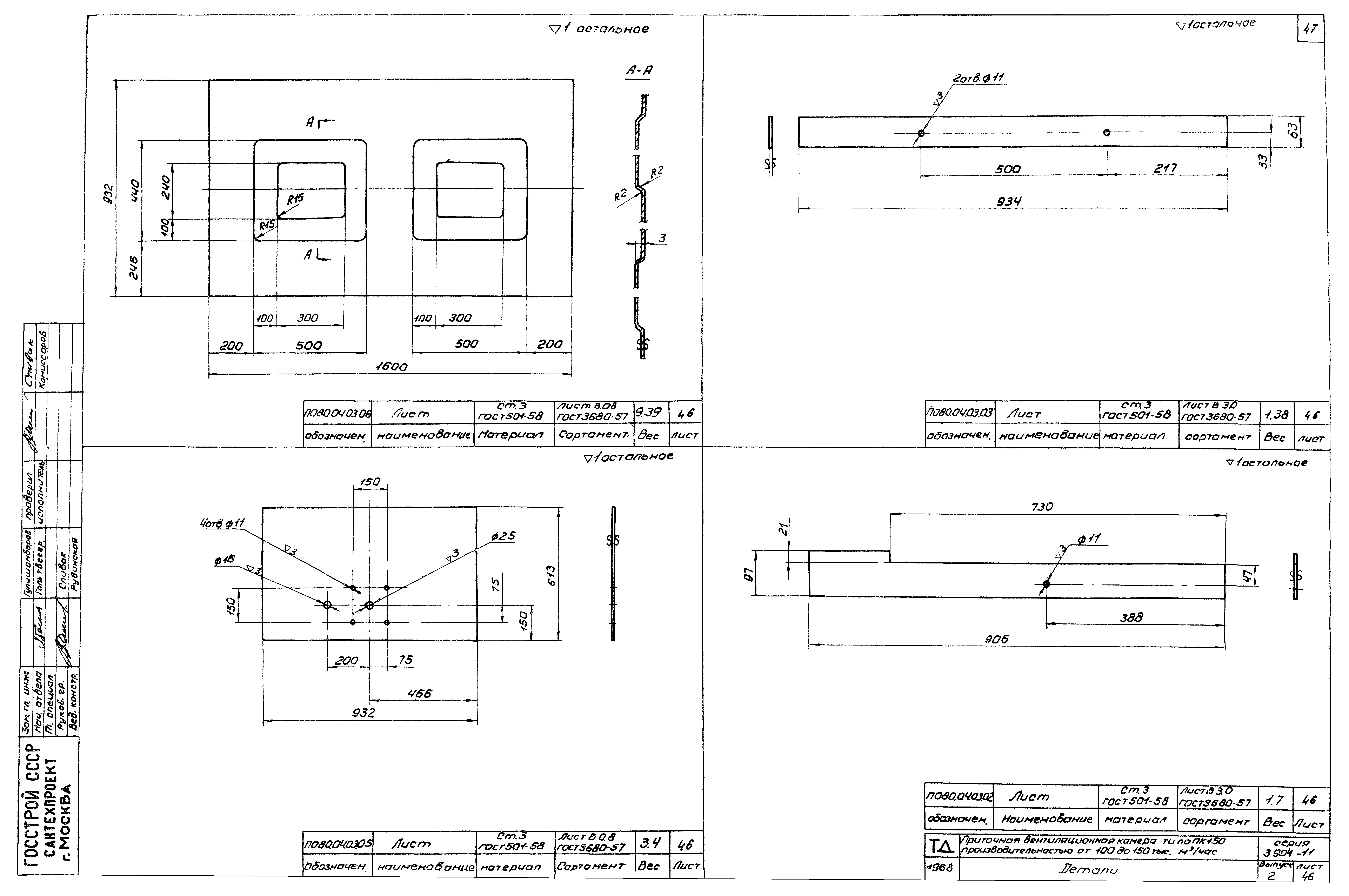
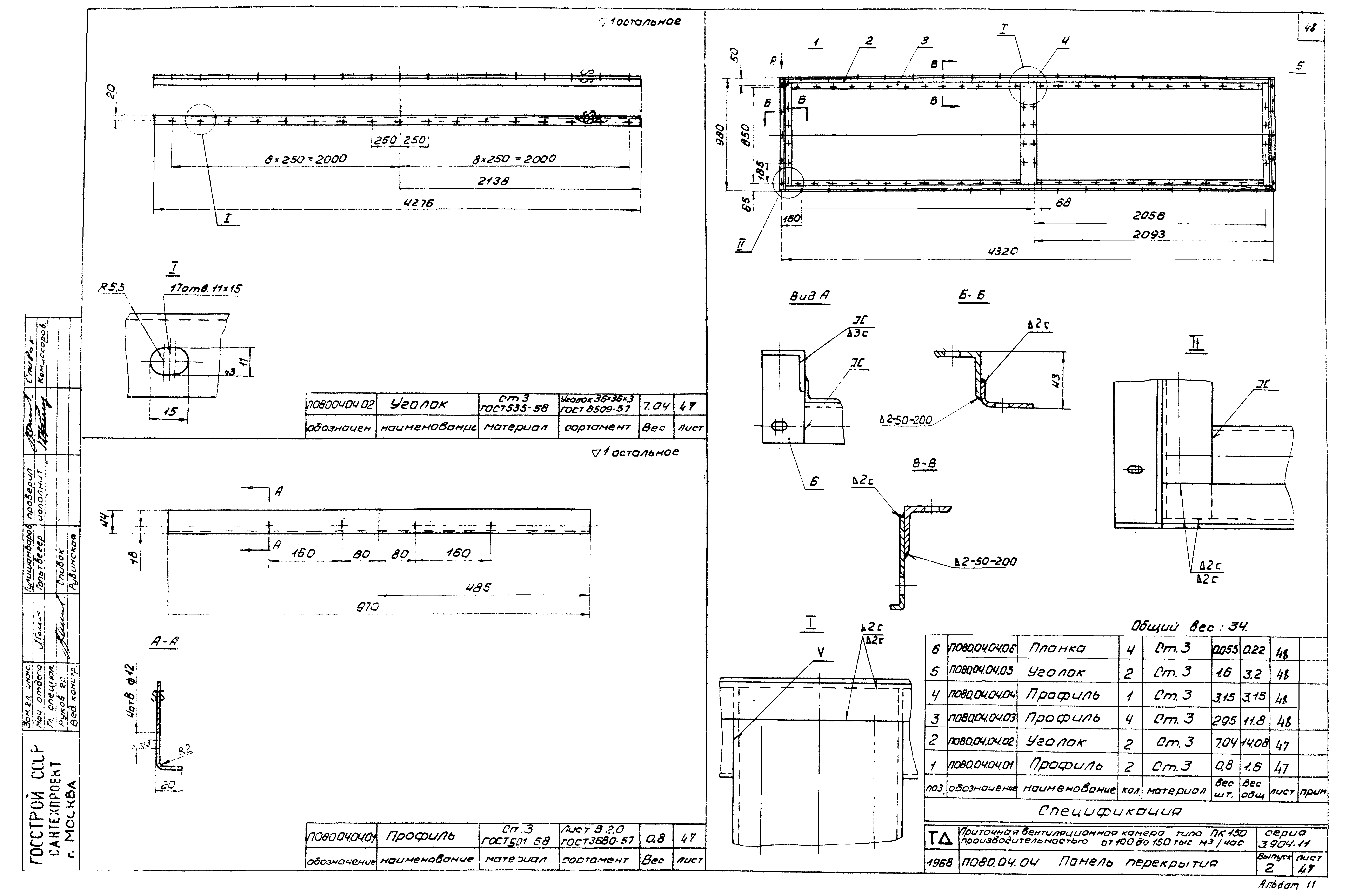
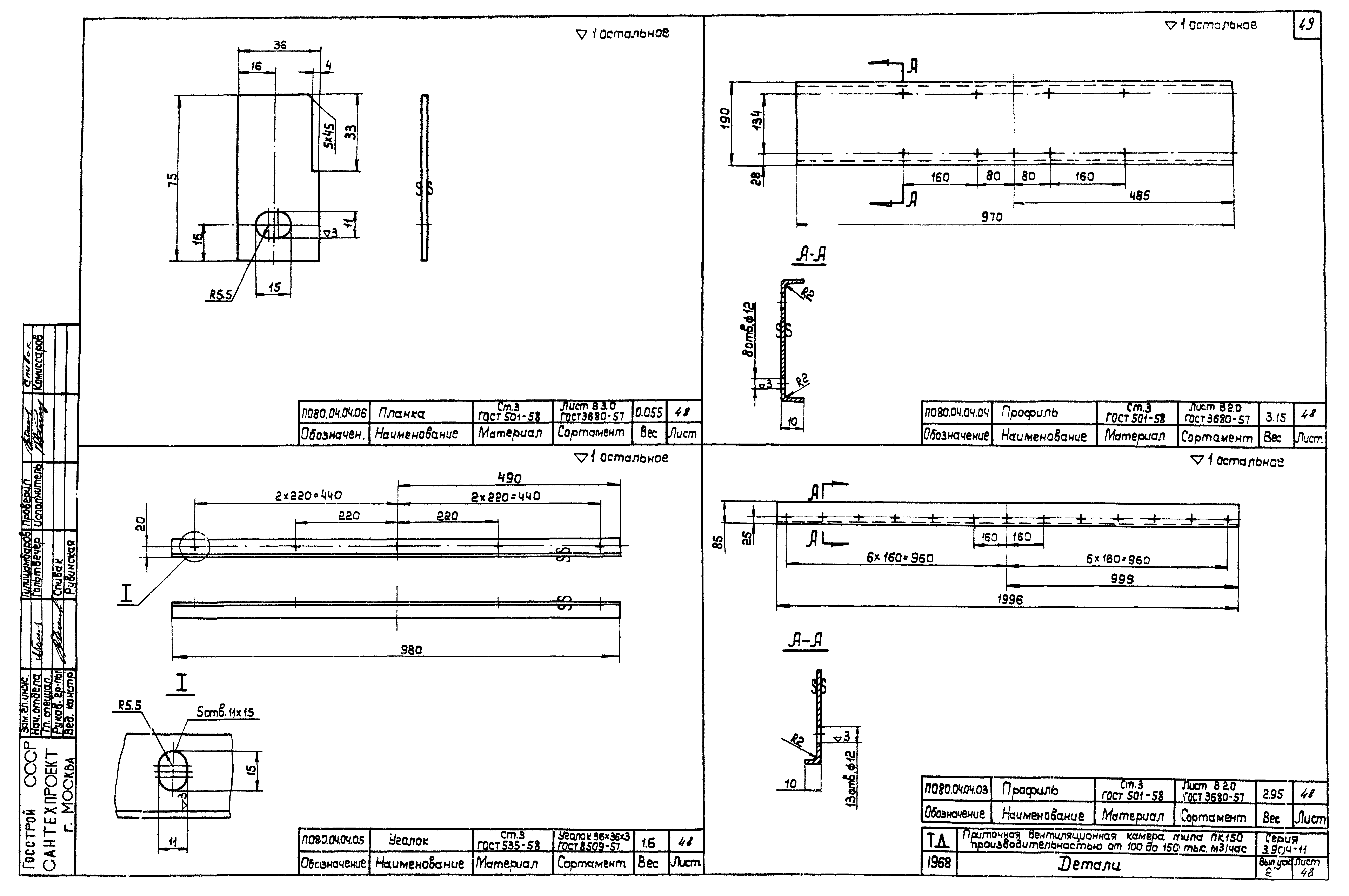
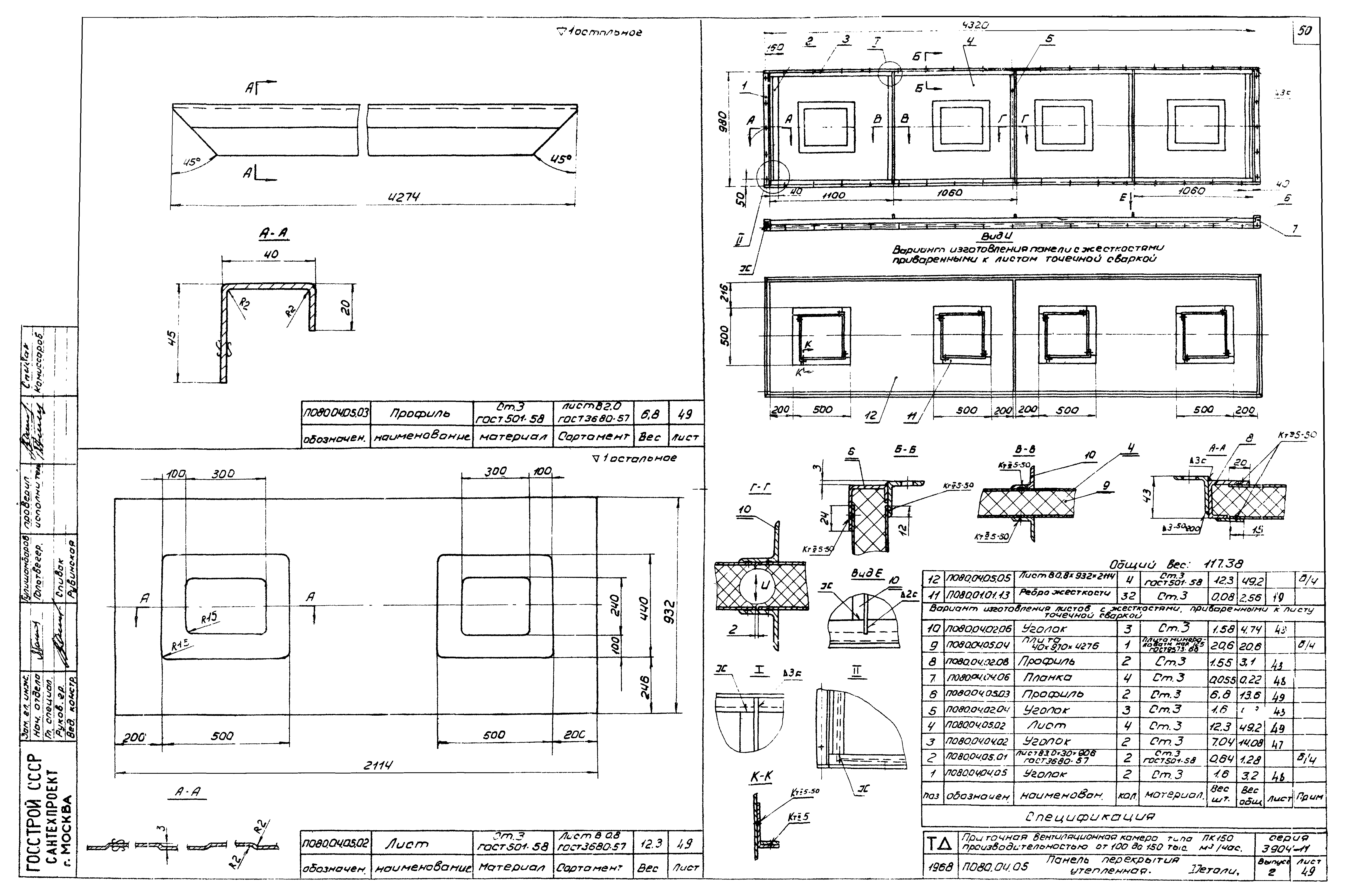
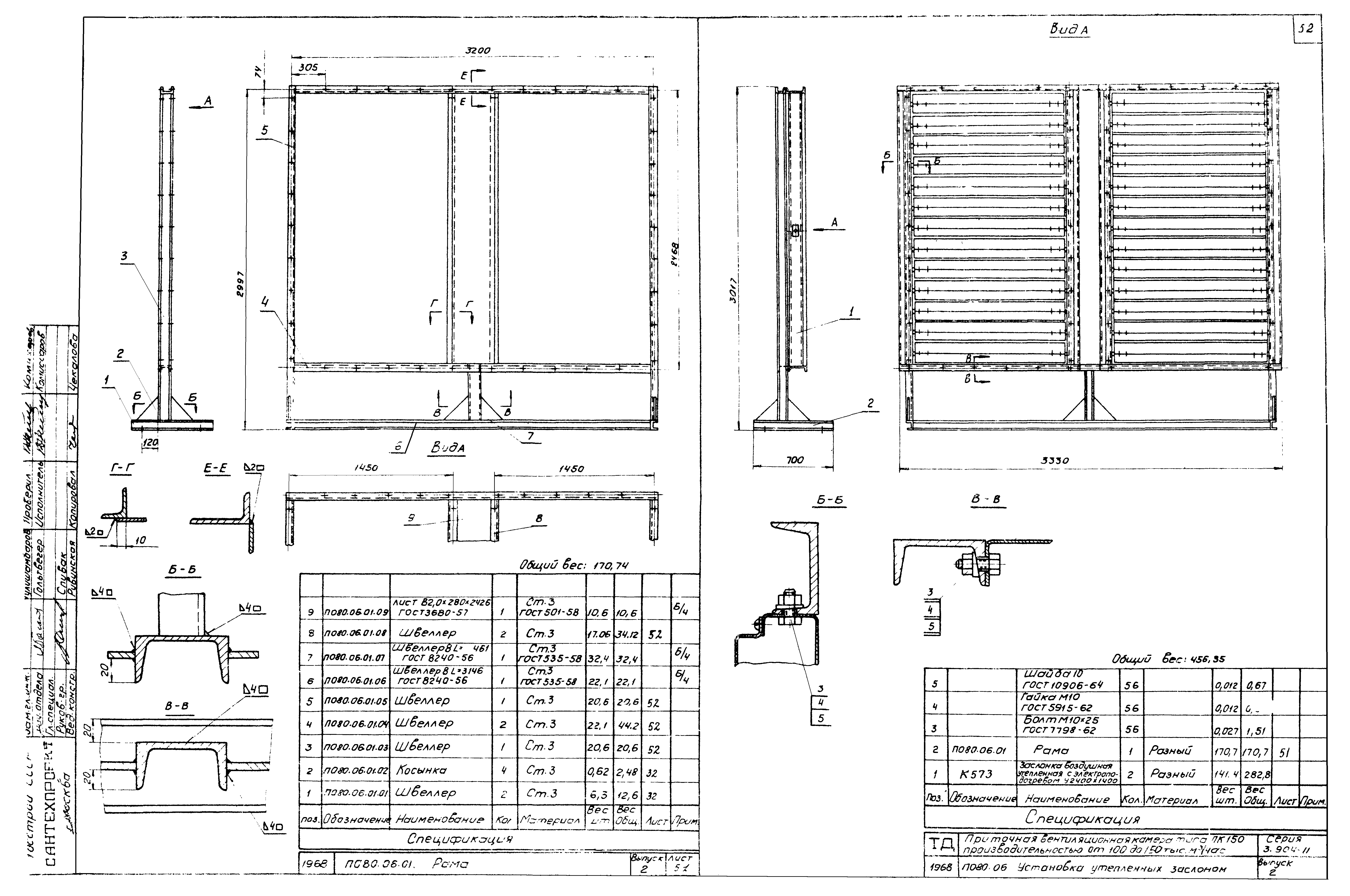
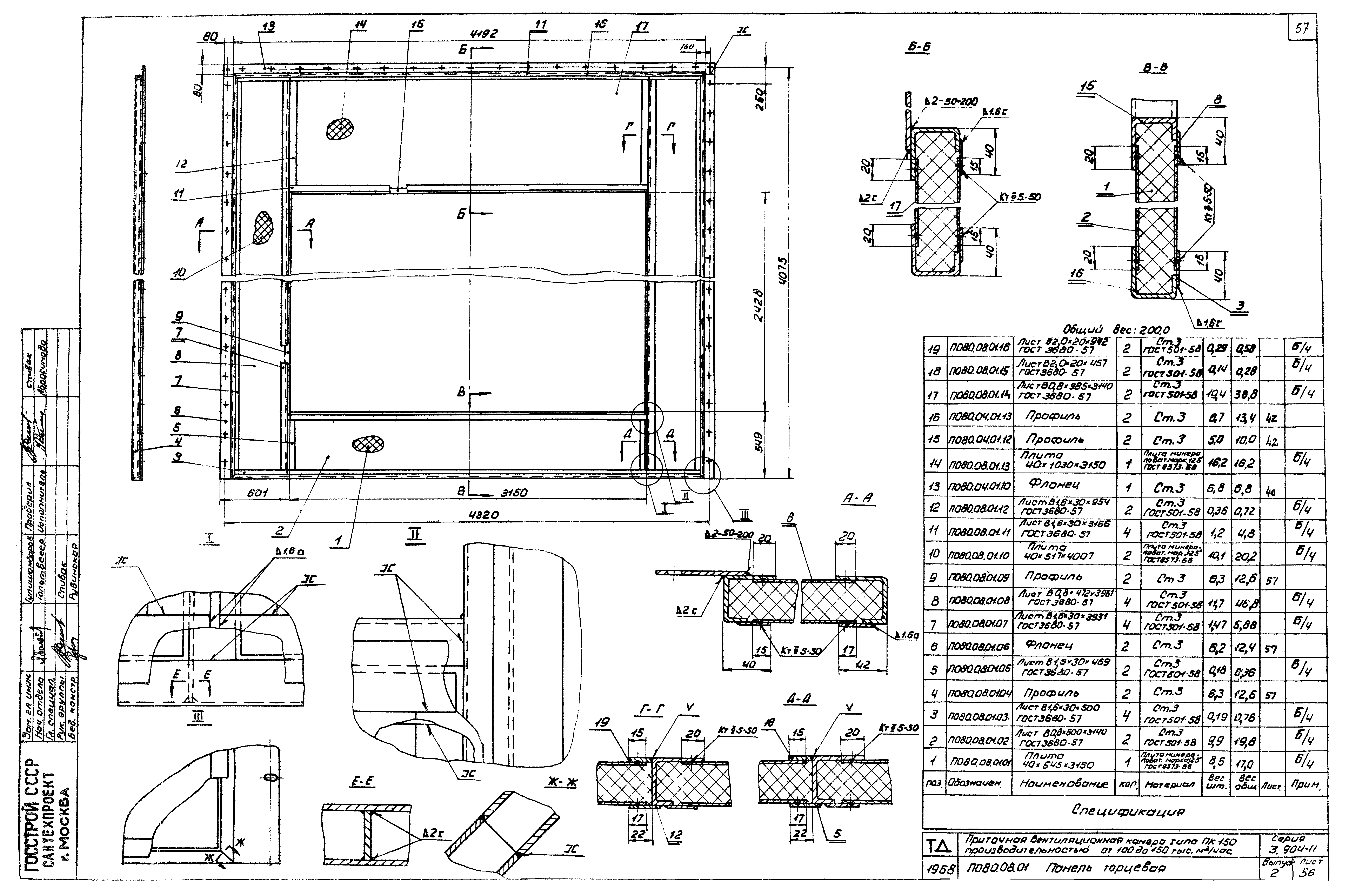
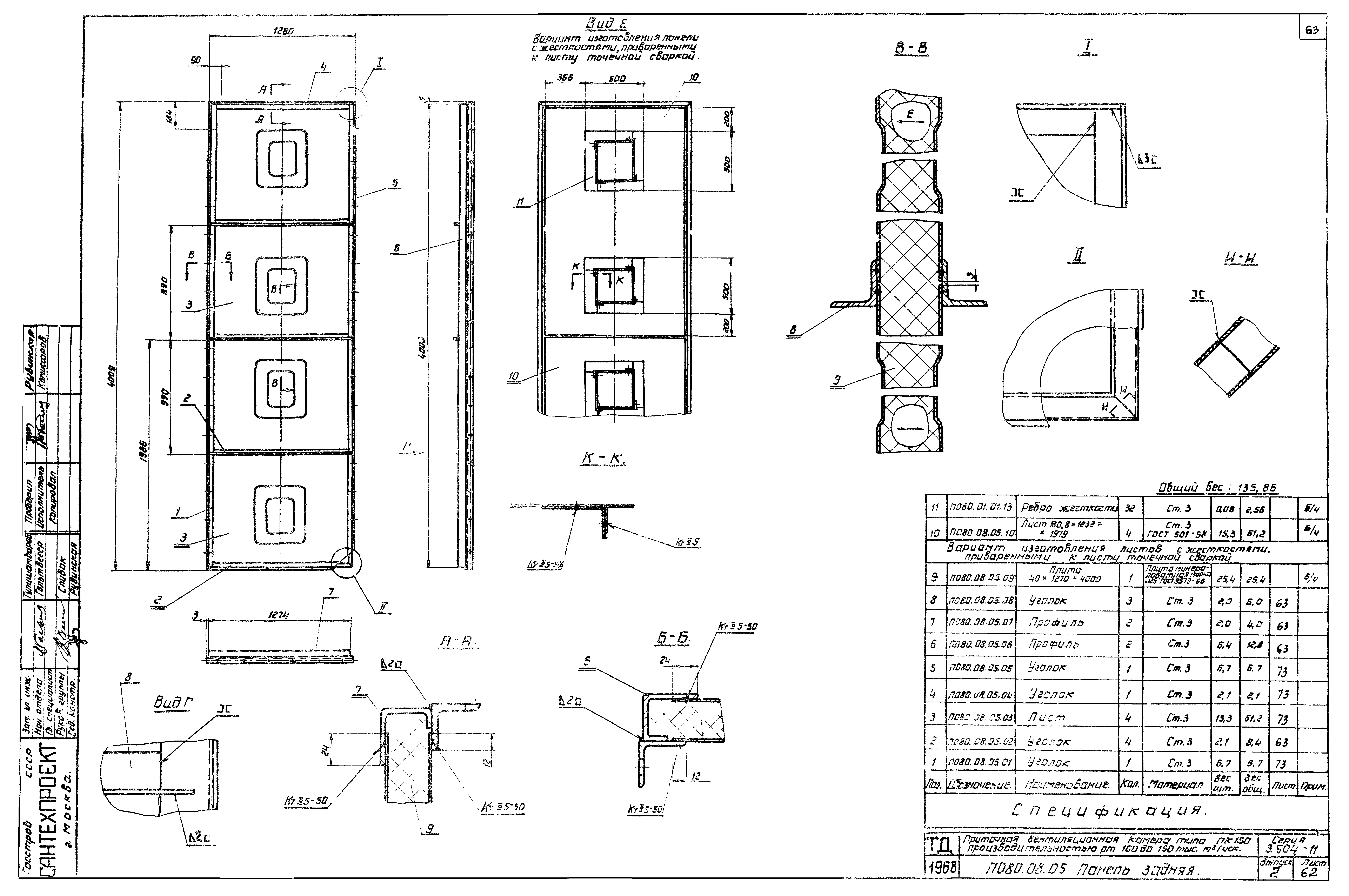
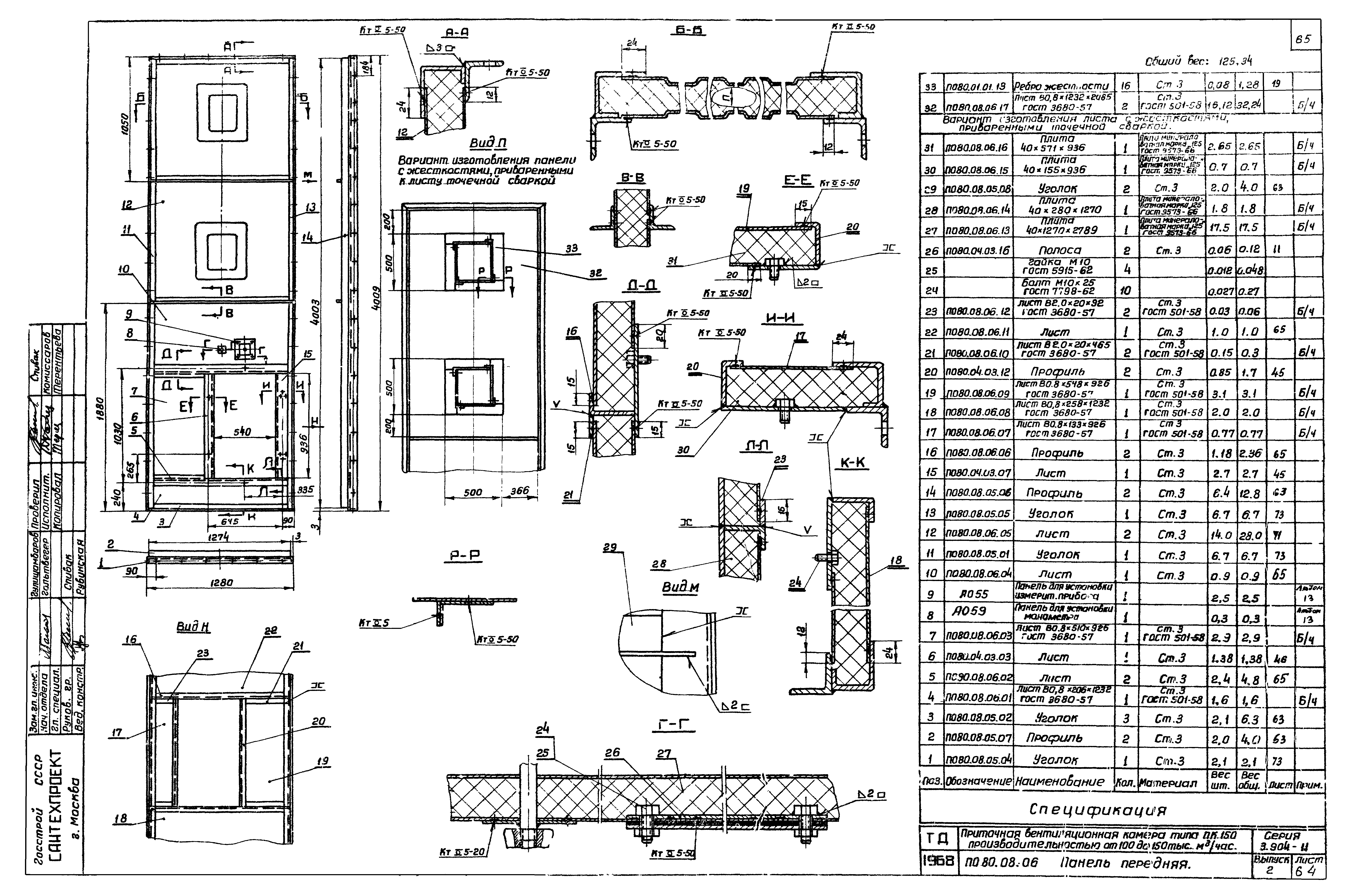
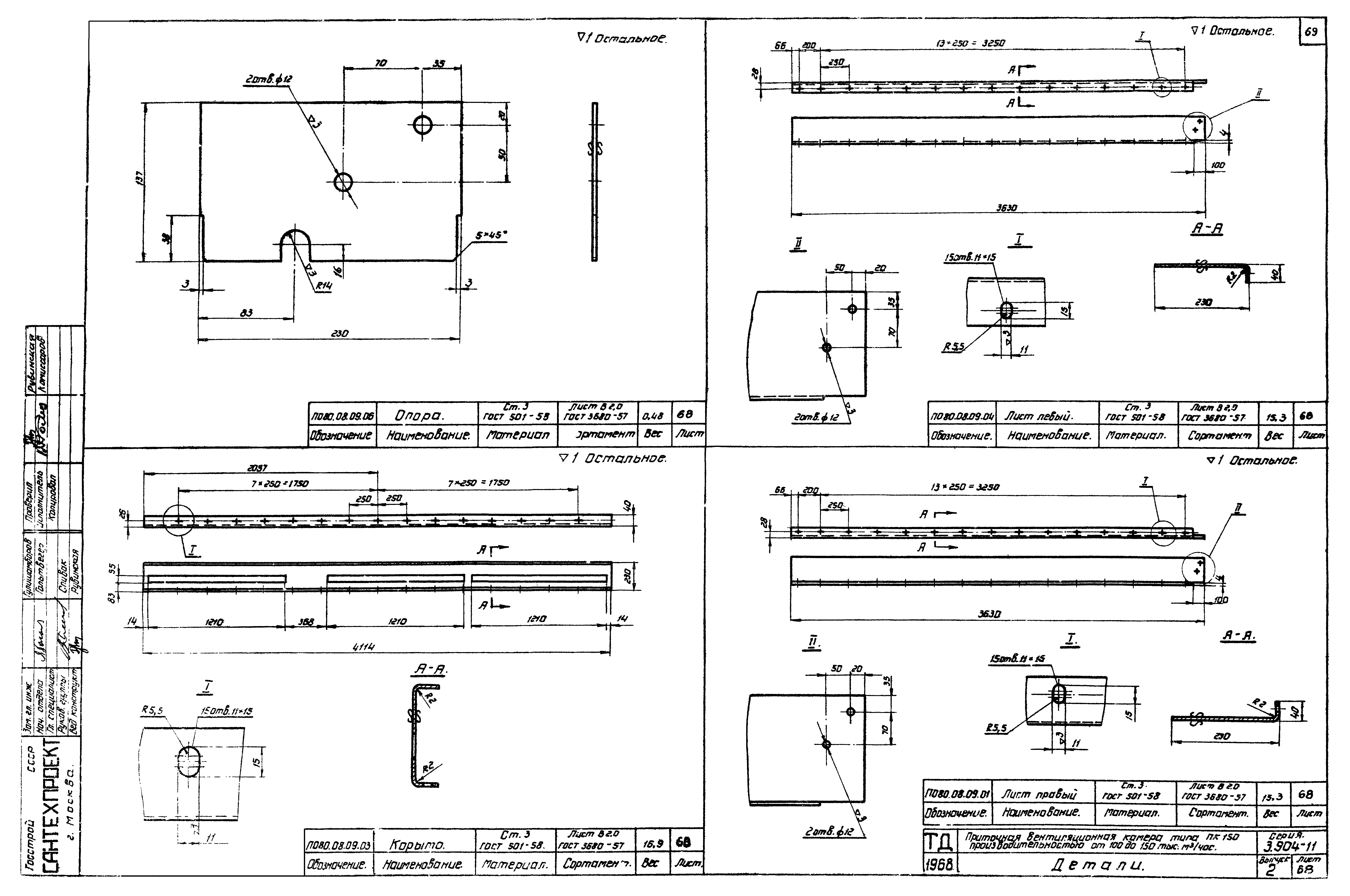
| Оглавление: | Содержание альбома Пояснительная записка ПО80. Общий вид ПО80Ф. Общий вид Детали ПО80.00.01 Фланец переходной. Детали ПО80.00.02 Фланец. Детали Секция соединительная ПО80.01.01 Панель передняя Детали Панель торцевая Детали ПО80.01.03 Панель задняя. Детали ПО80.01.04 Решетка ограждающая. Детали ПО80.01.05 Панель перекрытия. Детали Детали ПО80.03 Секция калориферная Детали Заслонка ложная. Детали Рама Детали ПО80.03.11 Коллектор Подвод. Детали ПО80.03.18 Отвод. Детали ПО80.03.20 Отвод. Детали ПО80.03.04 Секция приемная ПО80.04.01 Панель торцевая Детали ПО80.04.02 Панель задняя Детали ПО80.04.03 Панель передняя Детали ПО80.04.04 Панель перекрытия Детали ПО80.04.05 Панель перекрытия утепленная. Детали ПО80.05 Короб переходной. Детали ПО80.06 Установка утепленных заслонок Детали ПО80.07 Панель Детали ПО80.08 Секция приемная с фильтром ПО80.08.01 Панель торцевая Детали ПО80.08.02 Подшипник левый. Детали ПО80.08.03 Катушка. Детали ПО80.08.04 Панель перекрытия Детали ПО80.08.05 Панель задняя Детали ПО80.08.06 Панель передняя Детали ПО80.08.08 Решетка съемная. Детали ПО80.08.09 Корпус фильтра Детали ПО80.08.11 Фланец переходной ПО80.08.12 Панель перекрытия утепленная Детали |
| Разработан: | Сантехпроект Госстроя СССР |
| Утверждён: | 27.06.1968 Главпромстройпроект Госстроя СССР (29) |
| Чем заменён: |











































































