Скачать Серия 3.904-11 Выпуск 2. Альбом 15. Заслонки (клапаны) воздушные утепленные без электроподогреваДата актуализации: 01.01.2021
|
| Обозначение: | Серия 3.904-11 |
| Обозначение англ: | Series 3.904-11 |
| Статус: | не действует |
| Название рус.: | Выпуск 2. Альбом 15. Заслонки (клапаны) воздушные утепленные без электроподогрева |
| Дата добавления в базу: | 01.09.2013 |
| Дата актуализации: | 01.01.2021 |
| Дата введения: | 12.12.1968 |
| Дата окончания срока действия: | 01.02.1975 |
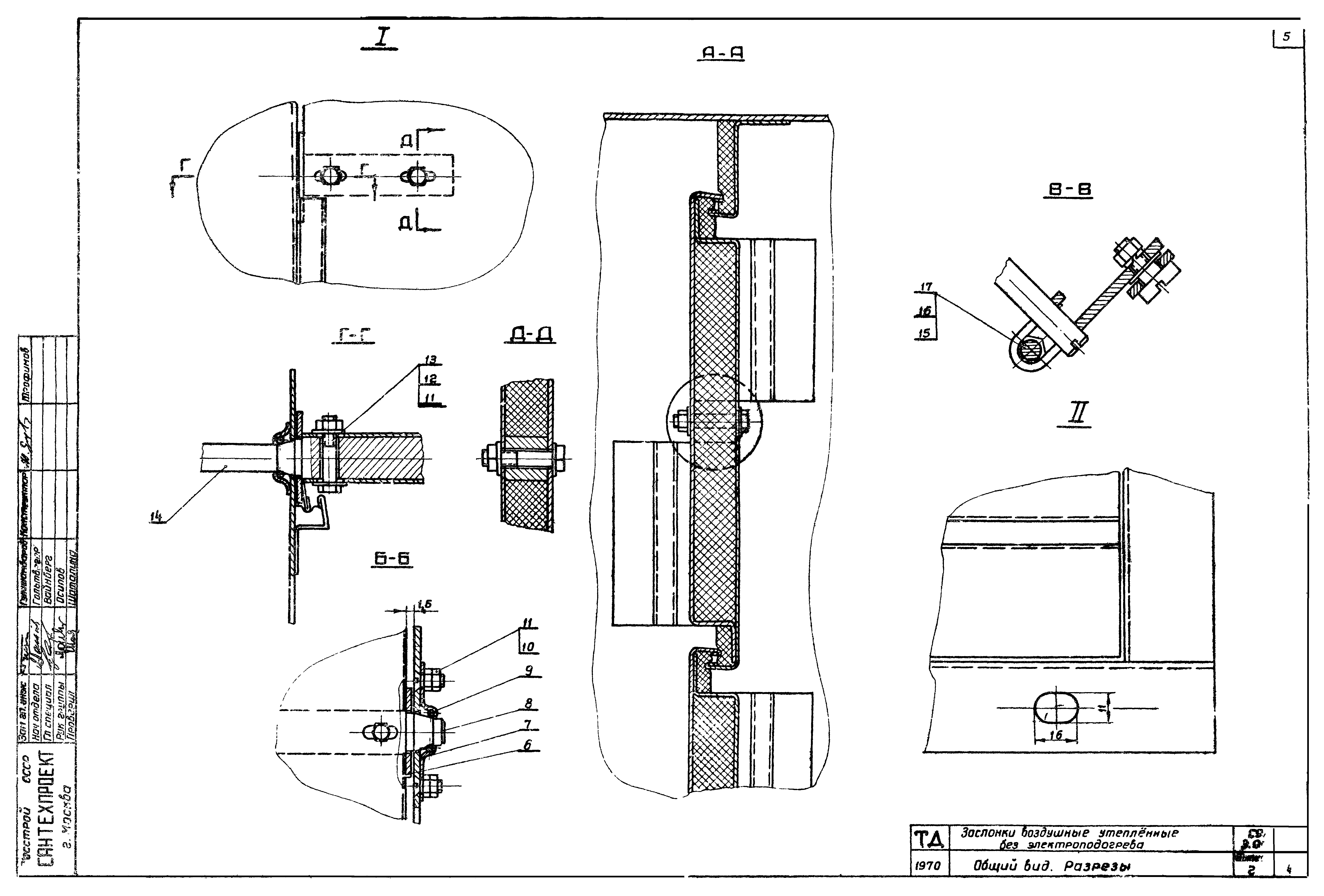
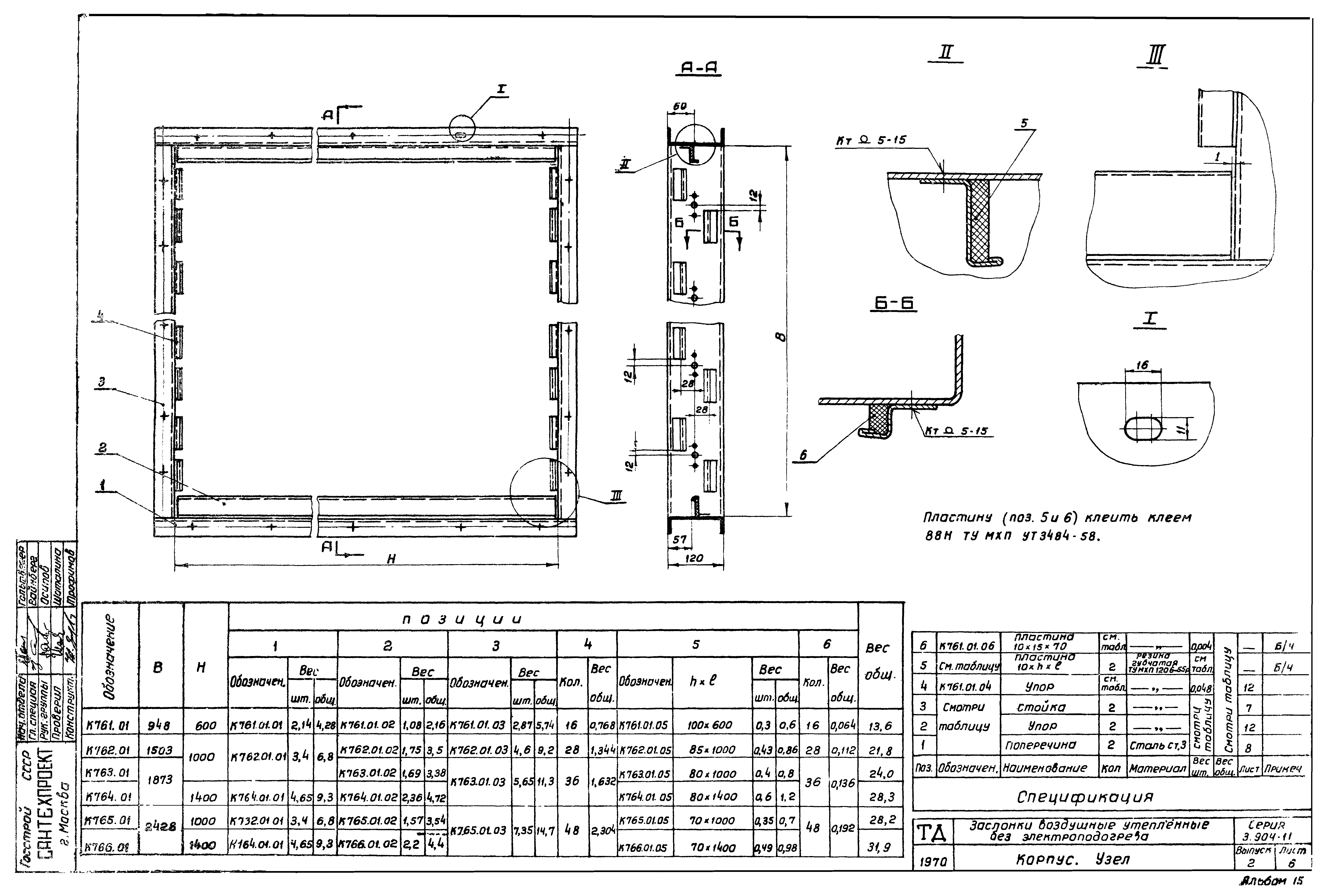
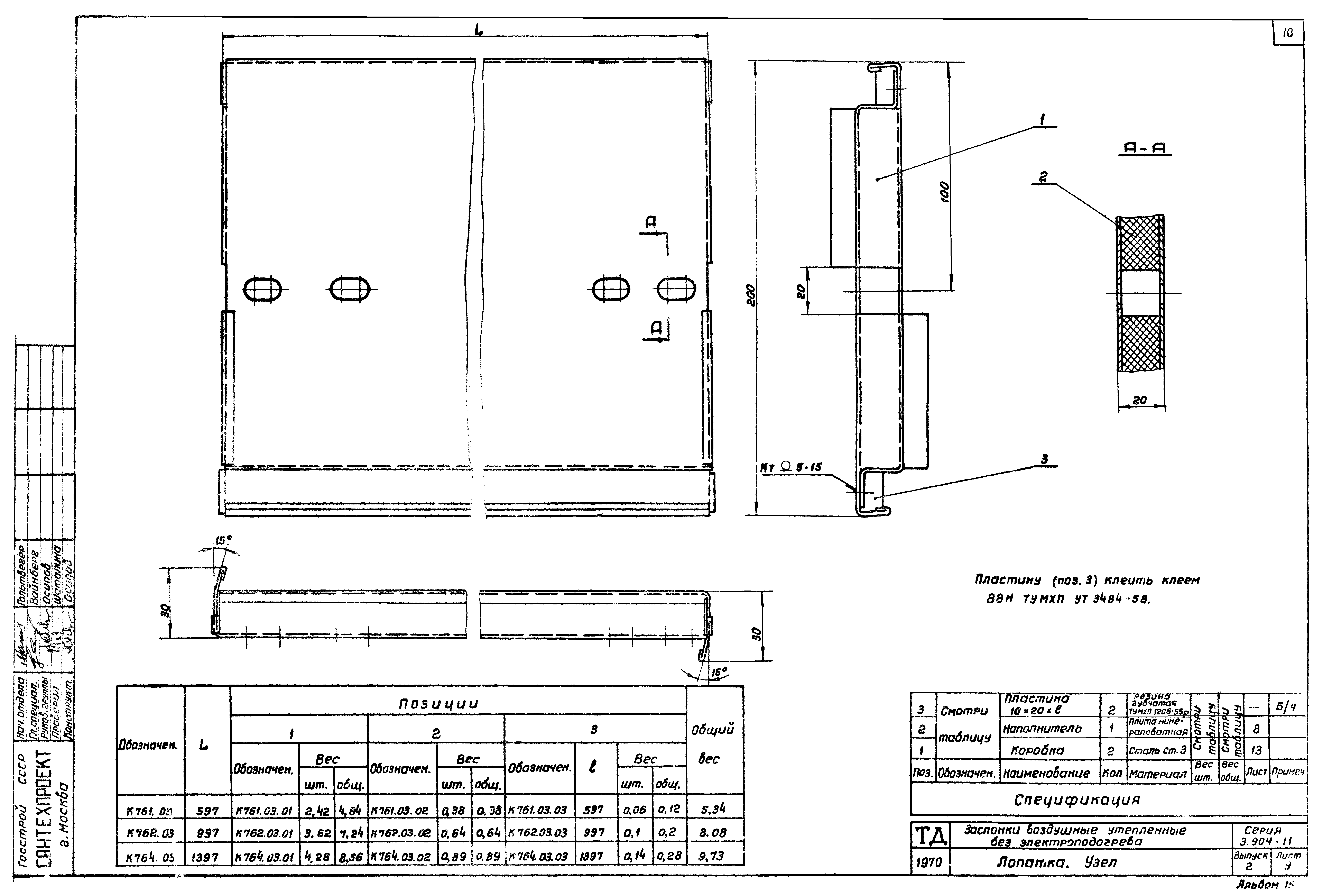
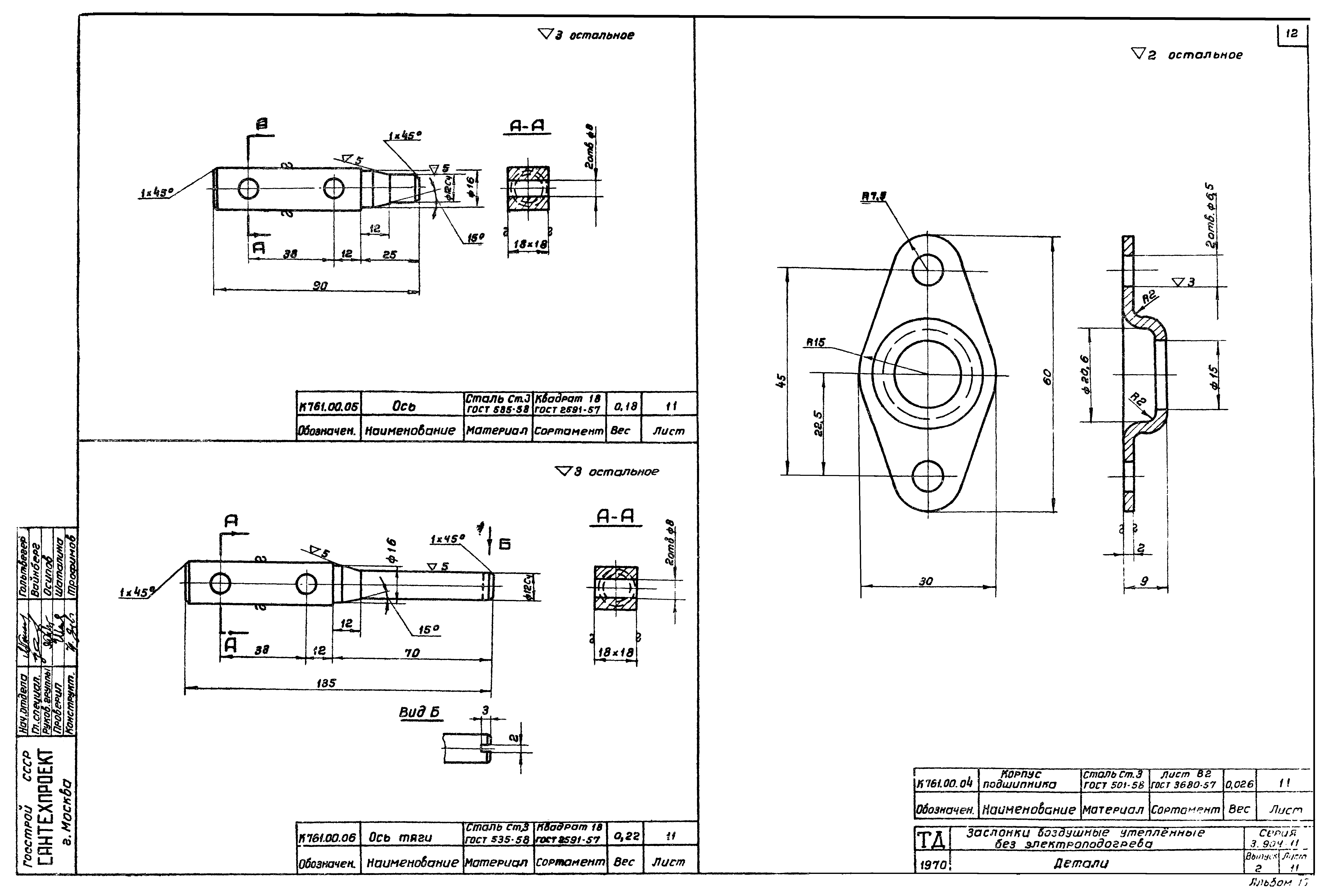
| Оглавление: | Содержание Пояснительная записка Общий вид Общий вид. Разрезы Общий вид. Таблицы Корпус. Узел Корпус. Деталь Корпус. Детали Лопатка. Узел Тяга с рычагами. Узел. Детали Детали |
| Разработан: | Сантехпроект Госстроя СССР |
| Утверждён: | 27.06.1968 Главпромстройпроект Госстроя СССР (29) |
| Чем заменён: |















