Скачать Серия 4.407-261 Установочные чертежи комплектных трансформаторных подстанций с трансформаторами с масляным заполнением на 1000 кВА и автоматами АВМ Чирчикского трансформаторного завода. Рабочие чертежиДата актуализации: 01.01.2021
|
| Обозначение: | Серия 4.407-261 |
| Обозначение англ: | Series 4.407-261 |
| Статус: | не действует |
| Название рус.: | Установочные чертежи комплектных трансформаторных подстанций с трансформаторами с масляным заполнением на 1000 кВА и автоматами "АВМ" Чирчикского трансформаторного завода. Рабочие чертежи |
| Дата добавления в базу: | 01.09.2013 |
| Дата актуализации: | 01.01.2021 |
| Дата введения: | 01.11.1979 |
| Дата окончания срока действия: | 01.04.1989 |
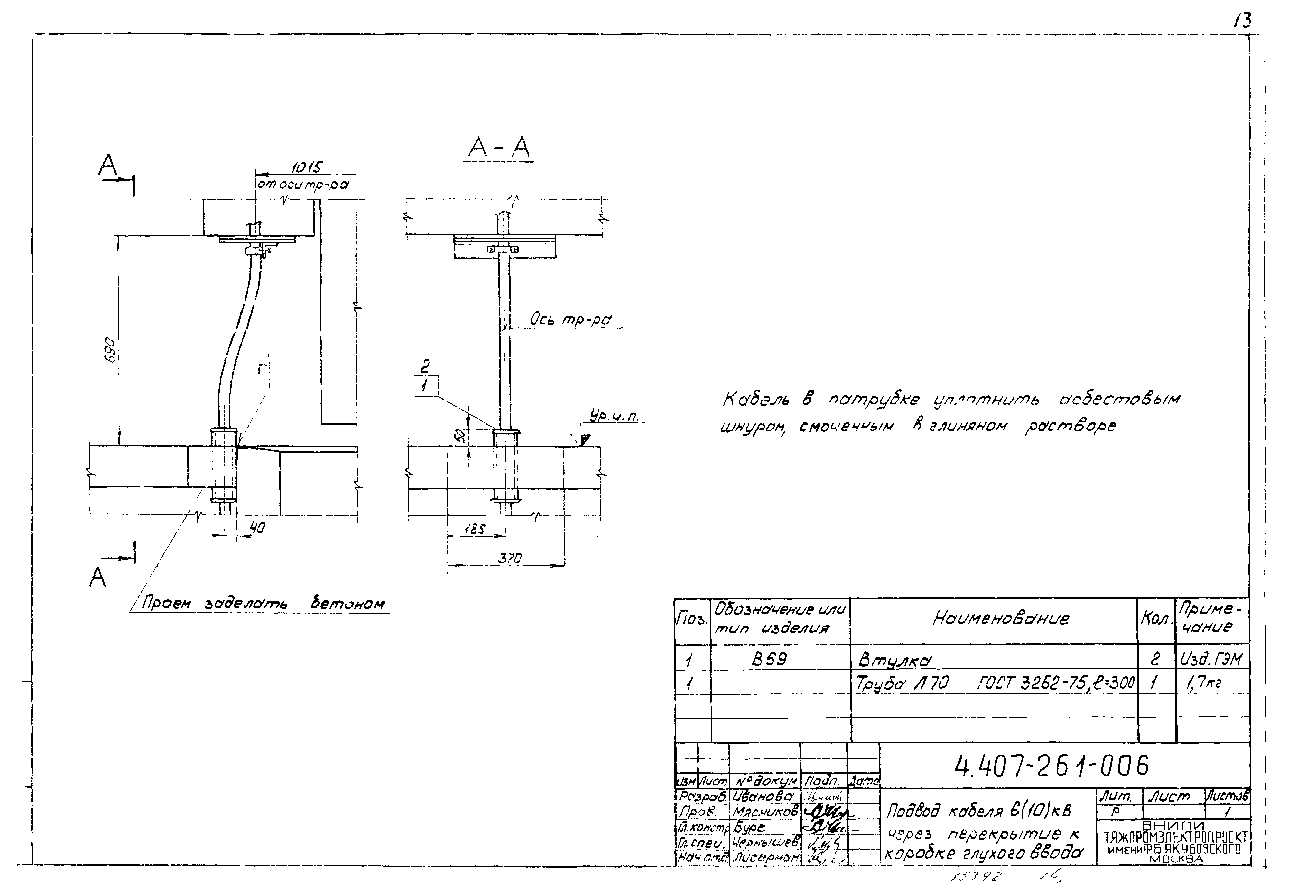
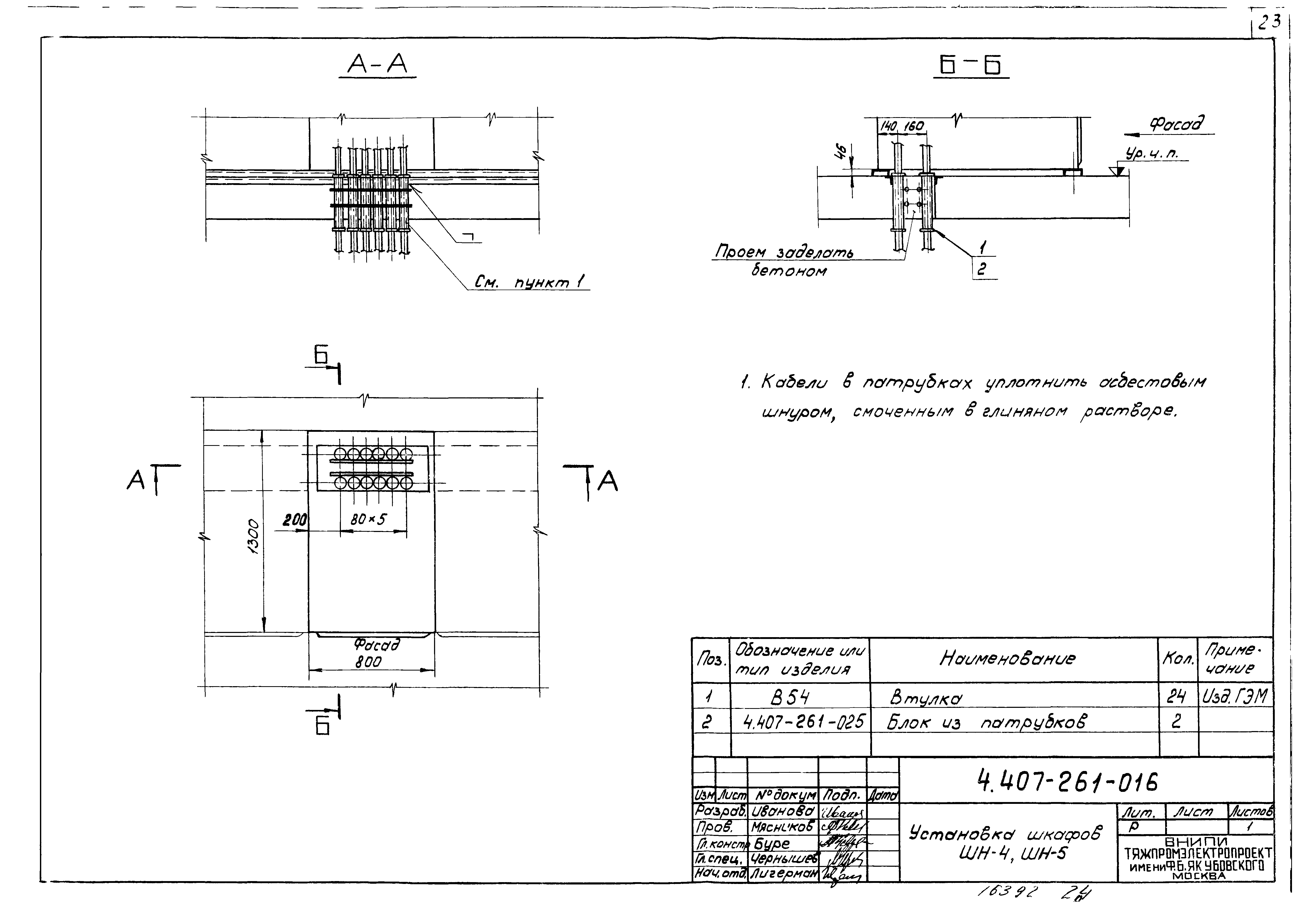
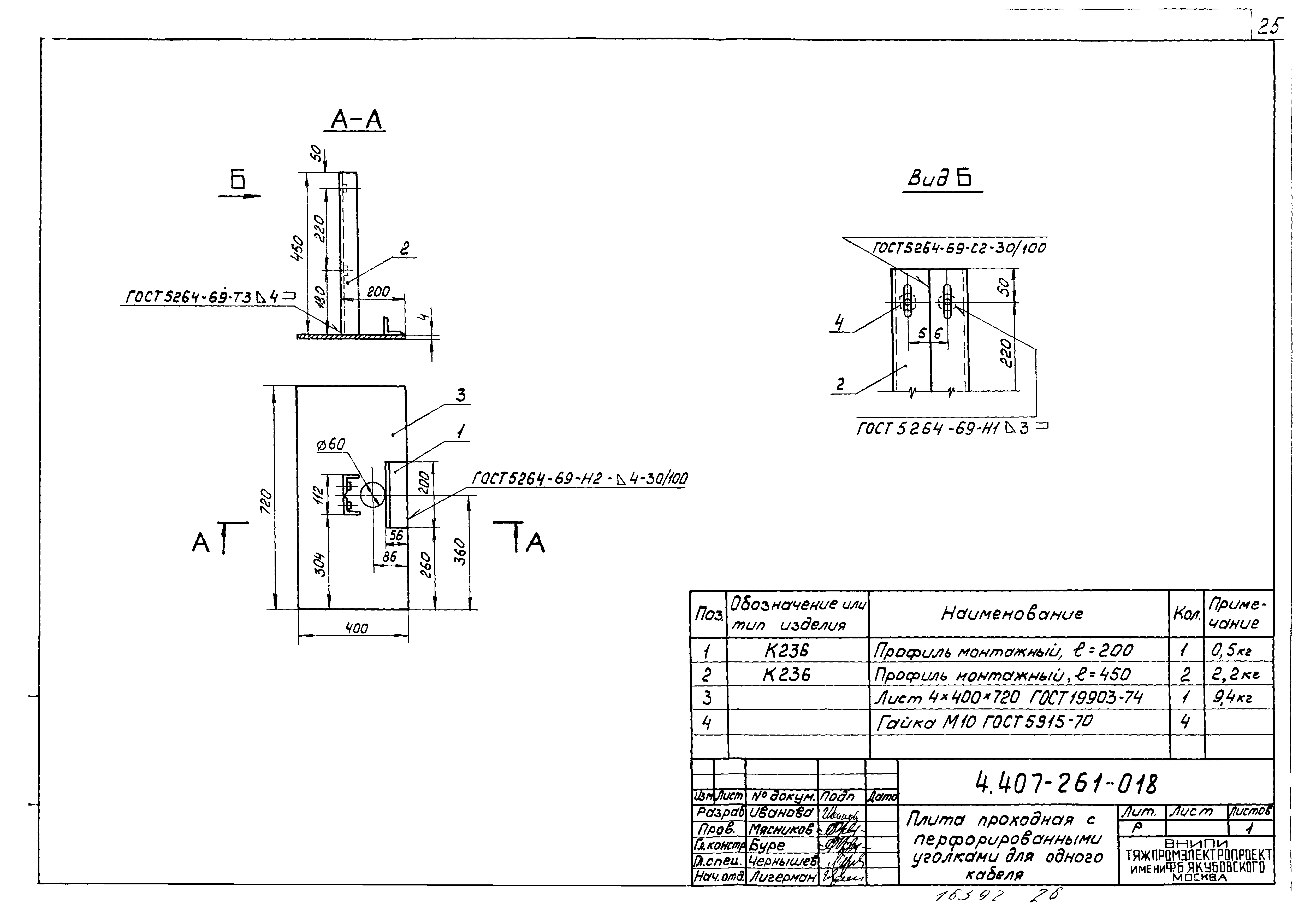
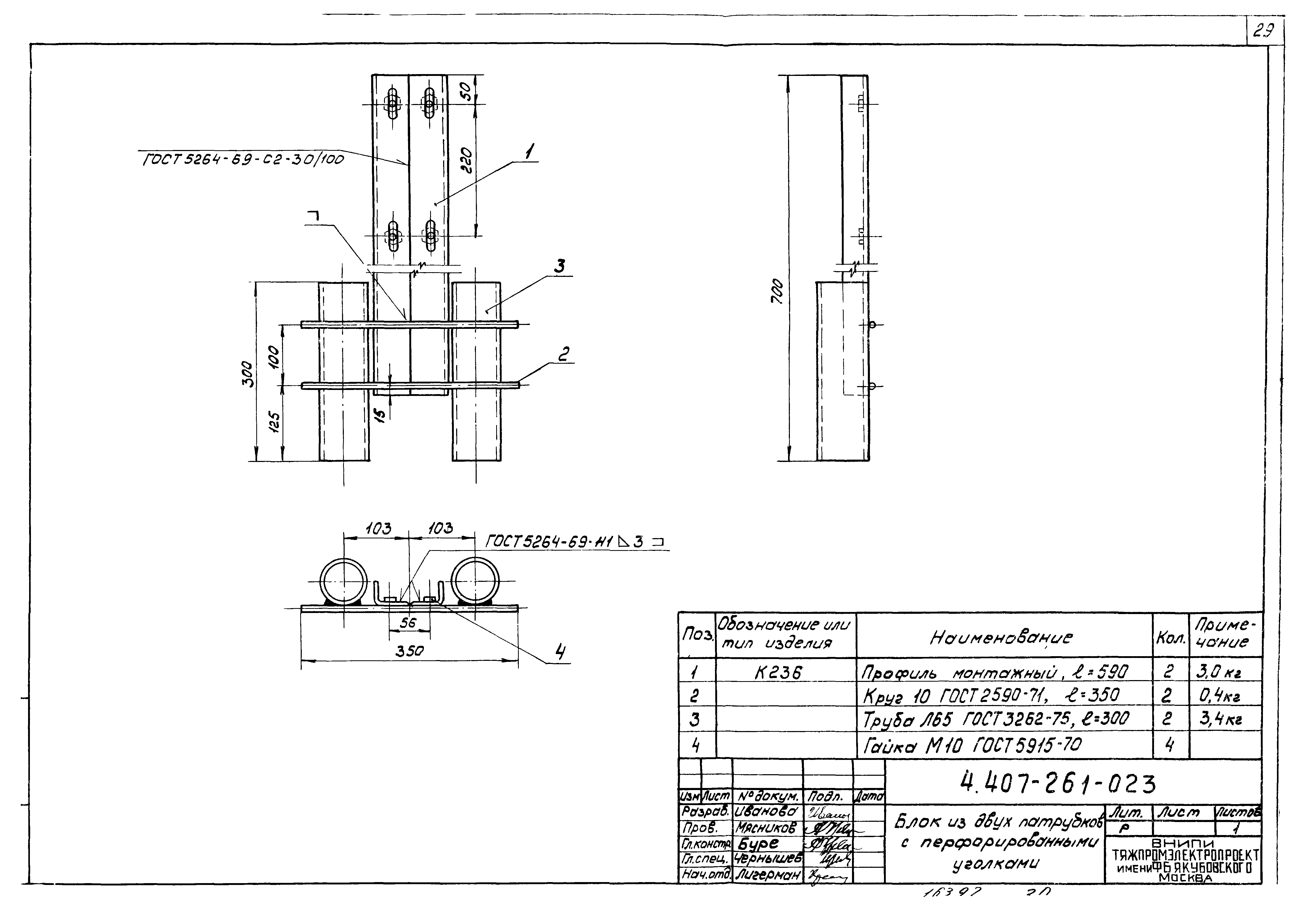
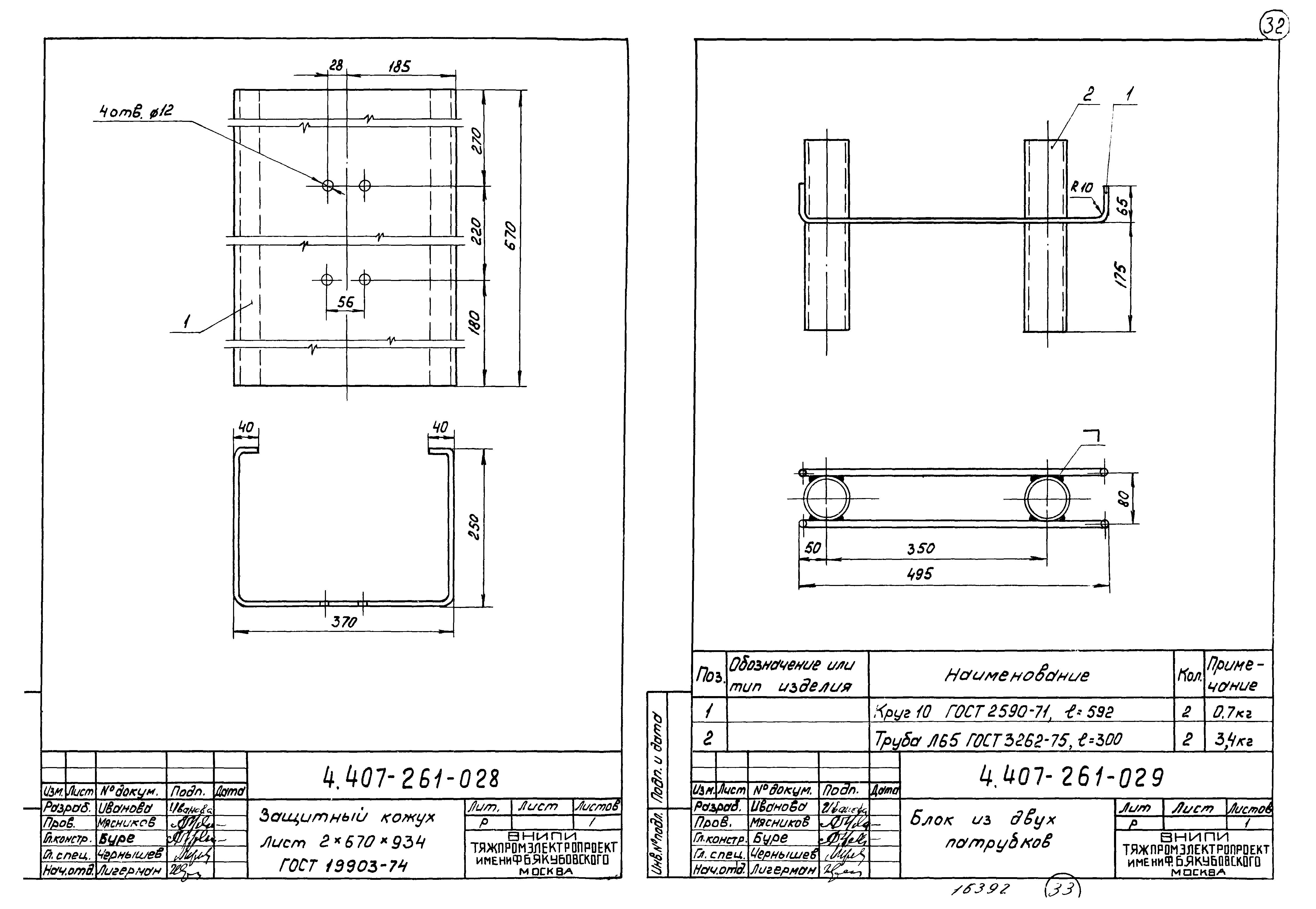
| Оглавление: | 4.407-261-Д Общие данные Примеры оформления рабочих чертежей 4.407-261-001 Установка КТП-У-2х1000 кВ.А (с шкафом ввода ШВВ-3) на перекрытии в помещении 4.407-261-002 Установка КТП-У-2х1000 кВ.А (с глухим вводом) на перекрытии в помещении 4.407-261-003 Установка КТП-У-2х1000 кВ.А (с глухим вводом) на полу цеха Установочные чертежи 4.407-261-004 Подвод кабеля 6(10) кВ из канала к коробке глухого ввода 4.407-261-005 Подвод двух кабелей 6(10) кВ из канала к коробке глухого ввода 4.407-261-006 Подвод кабеля 6(10) кВ через перекрытие к коробке глухого ввода 4.407-261-007 Подвод двух кабелей 6(10) кВ через перекрытие к коробке глухого ввода 4.407-261-008 Подвод кабеля 6(10) кВ из канала к коробке глухого ввода с защитой кабеля от механических повреждений 4.407-261-009 Подвод двух кабелей 6(10) кВ из канала к коробке глухого ввода с защитой кабелей от механических повреждений 4.407-261-010 Подвод кабеля 6(10) кВ через перекрытие к коробке глухого ввода с защитой кабеля от механических повреждений 4.407-261-011 Подвод двух кабелей 6(10) кВ через перекрытие к коробке глухого ввода с защитой кабелей от механических повреждений 4.407-261-012 Установка шкафа ШВВ-3Л 4.407-261-013 Установка шкафа ШВВ-3П 4.407-261-014 Установка шкафа ШН-1 4.407-261-015 Установка шкафа ШН-2 4.407-261-016 Установка шкафов ШН-4,ШН-5 4.407-261-017 Установка шкафов ШН-8,ШН-10 Сборочные чертежи и детали 4.407-261-018 Плита проходная с перфорированными уголками для одного кабеля 4.407-261-019 Плита проходная с перфорированными уголками для двух кабелей 4.407-261-020 Плита проходная для одного кабеля 4.407-261-021 Плита проходная для двух кабелей 4.407-261-022 Патрубок с перфорированными уголками 4.407-261-023 Блок из двух патрубков с перфорированными уголками 4.407-261-024 Блок из четырех патрубков 4.407-261-025 Блок из шести патрубков 4.407-261-026 Блок из двух патрубков 4.407-261-027 Блок из пяти патрубков 4.407-261-028 Защитный кожух 4.407-261-029 Блок из двух патрубков |
| Разработан: | Главэлектромонтаж Минмонтажспецстроя СССР ВНИПИ Тяжпромэлектропроект им. Ф.Б. Якубовского |
| Утверждён: | 31.08.1979 ВНИПИ Тяжпромэлектропроект им. Ф.Б. Якубовского (F.B.Yakubovskiy Tyazhpromelektroproject VNIPI 146) |

































