Скачать Серия ПР-05-50/73 Выпуск 1. Рабочие чертежиДата актуализации: 01.01.2021
|
| Обозначение: | Серия ПР-05-50/73 |
| Обозначение англ: | Series ПР-05-50/73 |
| Статус: | заменен |
| Название рус.: | Выпуск 1. Рабочие чертежи |
| Дата добавления в базу: | 01.09.2013 |
| Дата актуализации: | 01.01.2021 |
| Дата введения: | 01.09.1974 |
| Дата окончания срока действия: | 01.09.1981 |
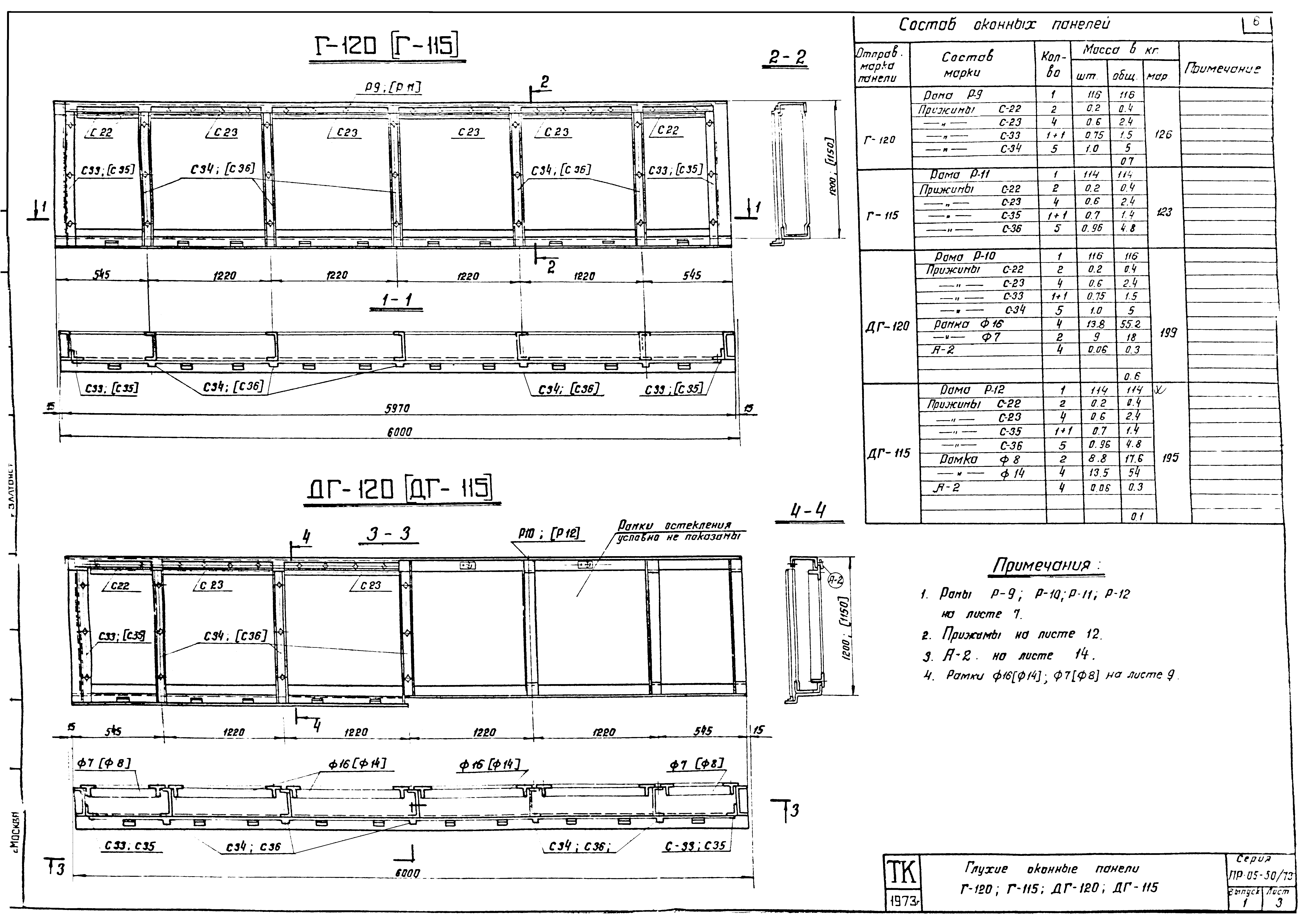
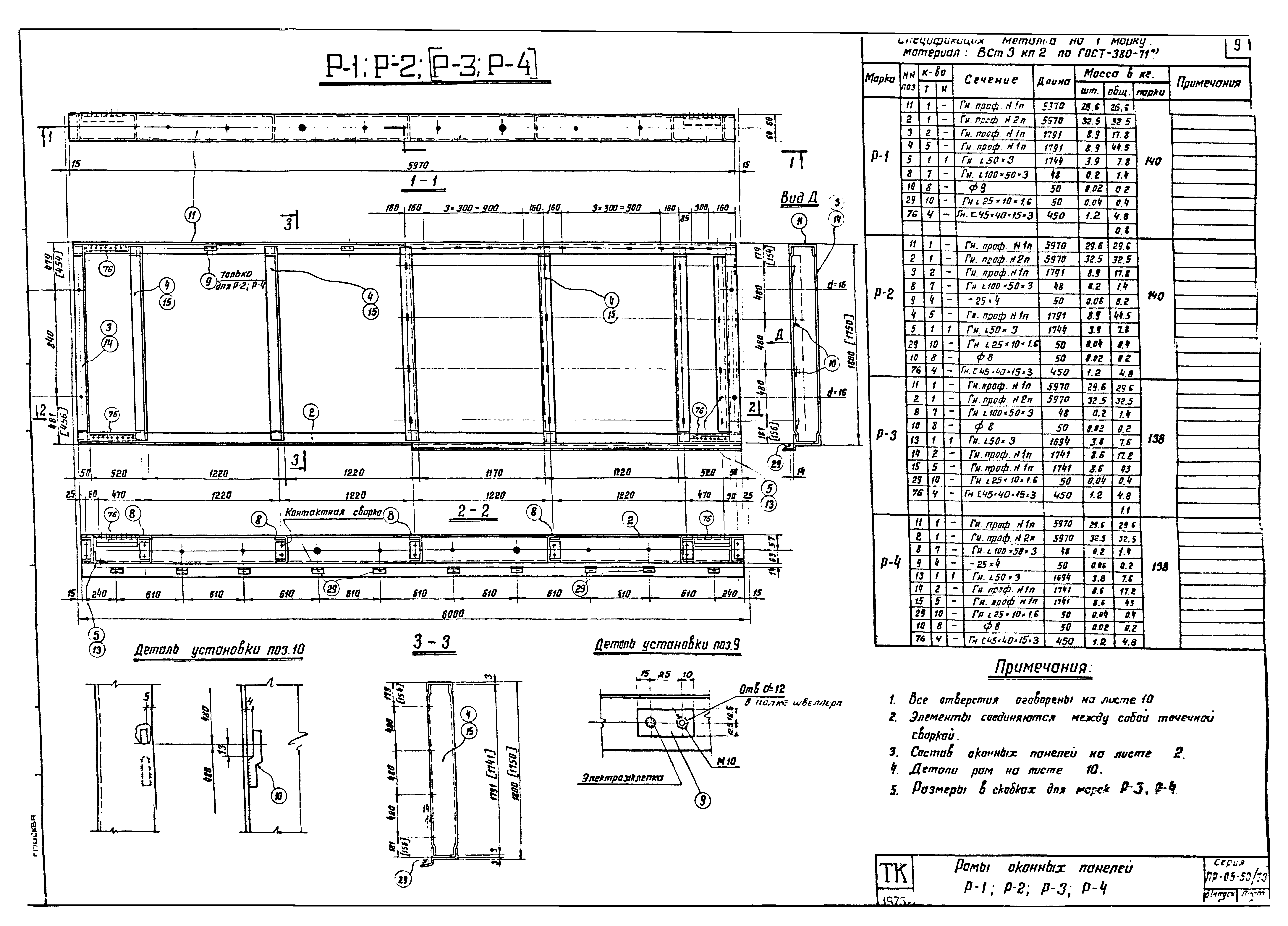
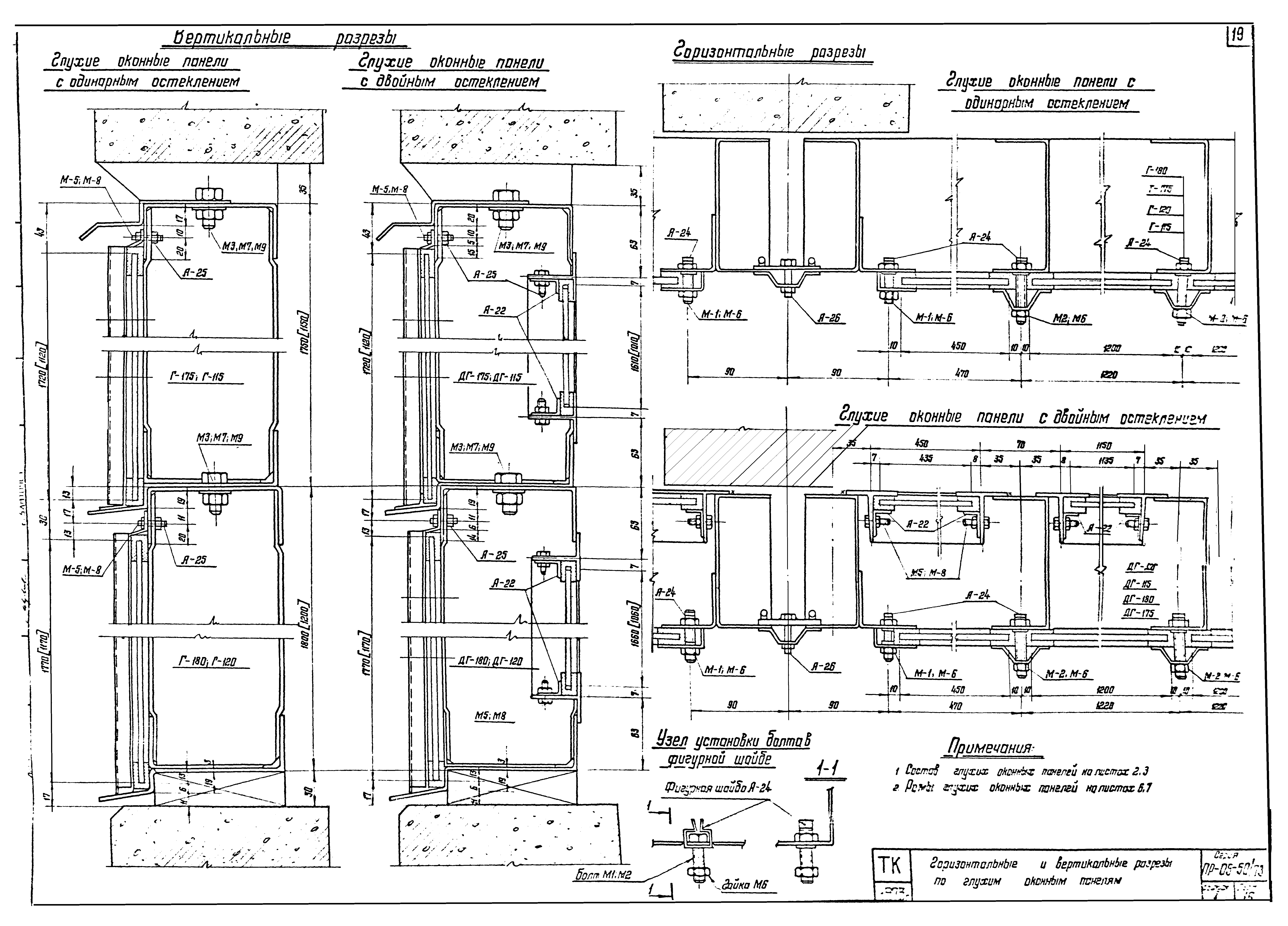
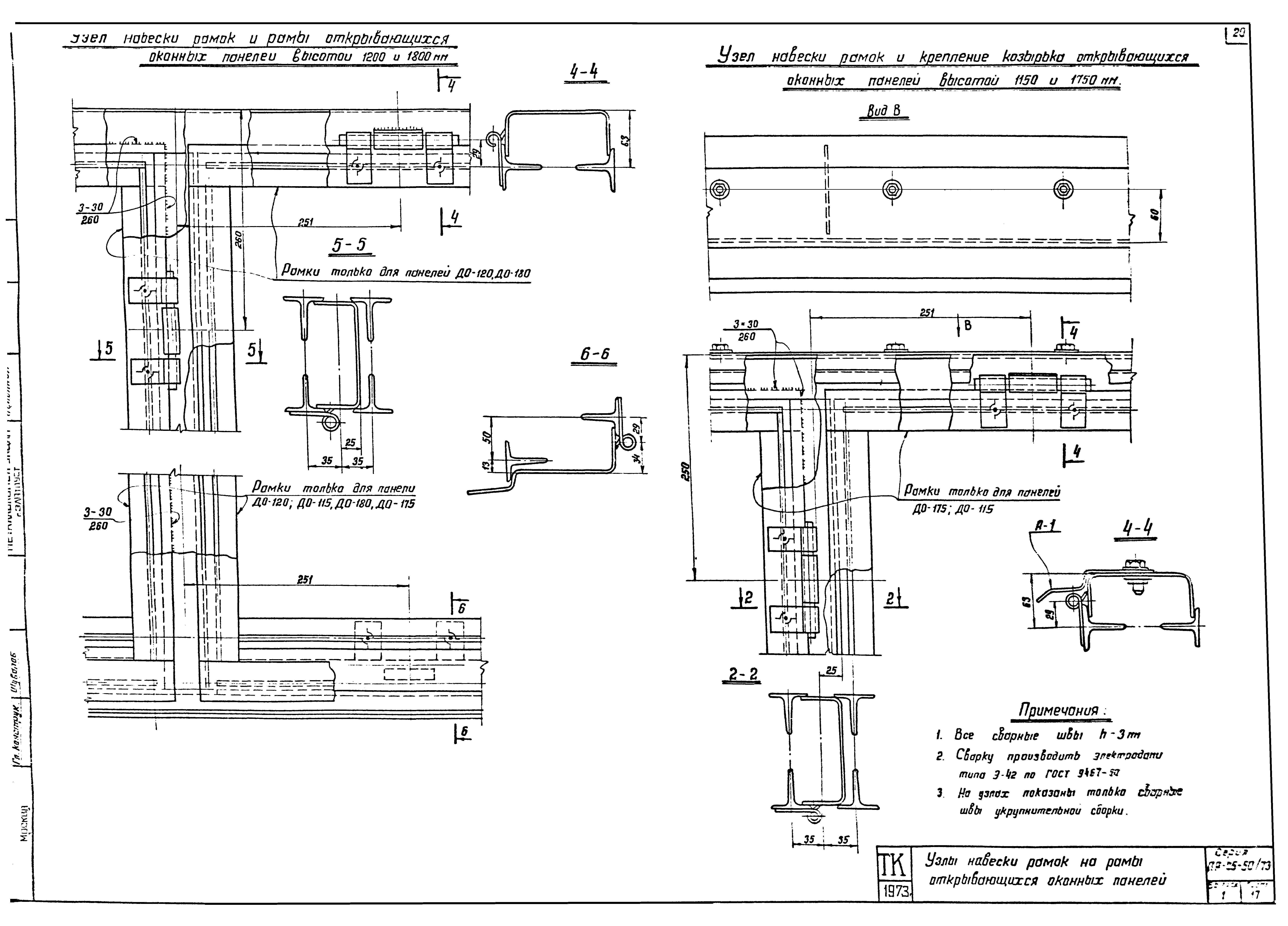
| Оглавление: | Пояснительная записка Схемы и маркировка глухих и открывающихся оконных панелей Глухие оконные панели Г-180,Г-175,ДГ-180,ДГ-175 Глухие оконные панели Г-120,Г-115,ДГ-120,ДГ-115 Открывающиеся оконные панели О-180,О-175,ДЛ-180,ДО-175 Открывающиеся оконные панели О-120,О-115,ДО-120,ДО-115 Рамы оконных панелей Р-1,Р-2,Р-3,Р-4 Рамы оконных панелей Р-9,Р-10,Р-11,Р-12 Рамы оконных панелей Р-5,Р-6,Р-7,Р-8,Р-13,Р-14,Р-15,Р-16 Рамки Ф-1-Ф-16 Детали рам оконных панелей Детали рамок. Узлы крепления стекол в открывающихся оконных панелях Прижимы для стекла. Нащельники Примеры заполнения оконных проемов оконными панелями. Схемы расположения нащельников и деталей крепления оконных панелей к колоннам Монтажные детали А-1 - А-3;А-22 - А-26. Петля П-1. Позиции № 6,№ 9,№ 10 Узлы рам и рамок Горизонтальные и вертикальные разрезы по глухим оконным панелям Узлы навески рамок на рамы открывающихся оконных панелей Количество деталей в одной раме или рамке остекления Расход метизов и деталей на оконные панели Техническая спецификация металла. Техническая спецификация стекол и резины |
| Разработан: | ЦНИИпроектстальконструкция Златоустовский завод металлоконструкций |
| Утверждён: | 21.06.1974 Госстрой СССР (Государственный комитет Совета Министров СССР по делам строительства) (USSR Gosstroy 126) |
| Заменяет собой: | |
| Чем заменён: |
|























