Скачать Типовой проект 901-7-4.84 Альбом III. Технологическая и санитарно-техническая части. Вариант обеззараживания сточных водДата актуализации: 01.01.2021
|
| Обозначение: | Типовой проект 901-7-4.84 |
| Обозначение англ: | 901-7-4.84 |
| Статус: | действует |
| Название рус.: | Альбом III. Технологическая и санитарно-техническая части. Вариант обеззараживания сточных вод |
| Дата добавления в базу: | 01.09.2013 |
| Дата актуализации: | 01.01.2021 |
| Дата введения: | 23.09.1983 |
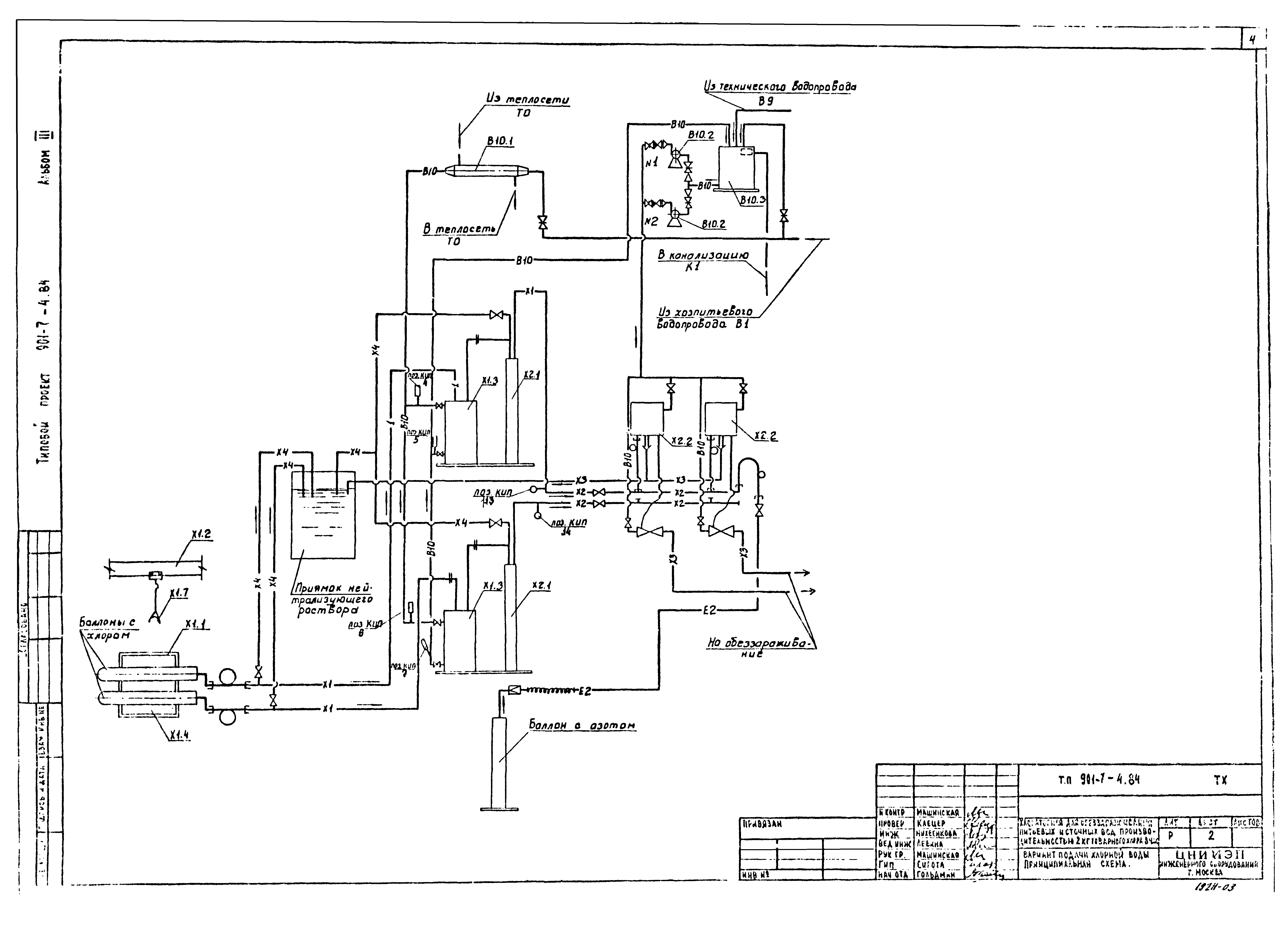
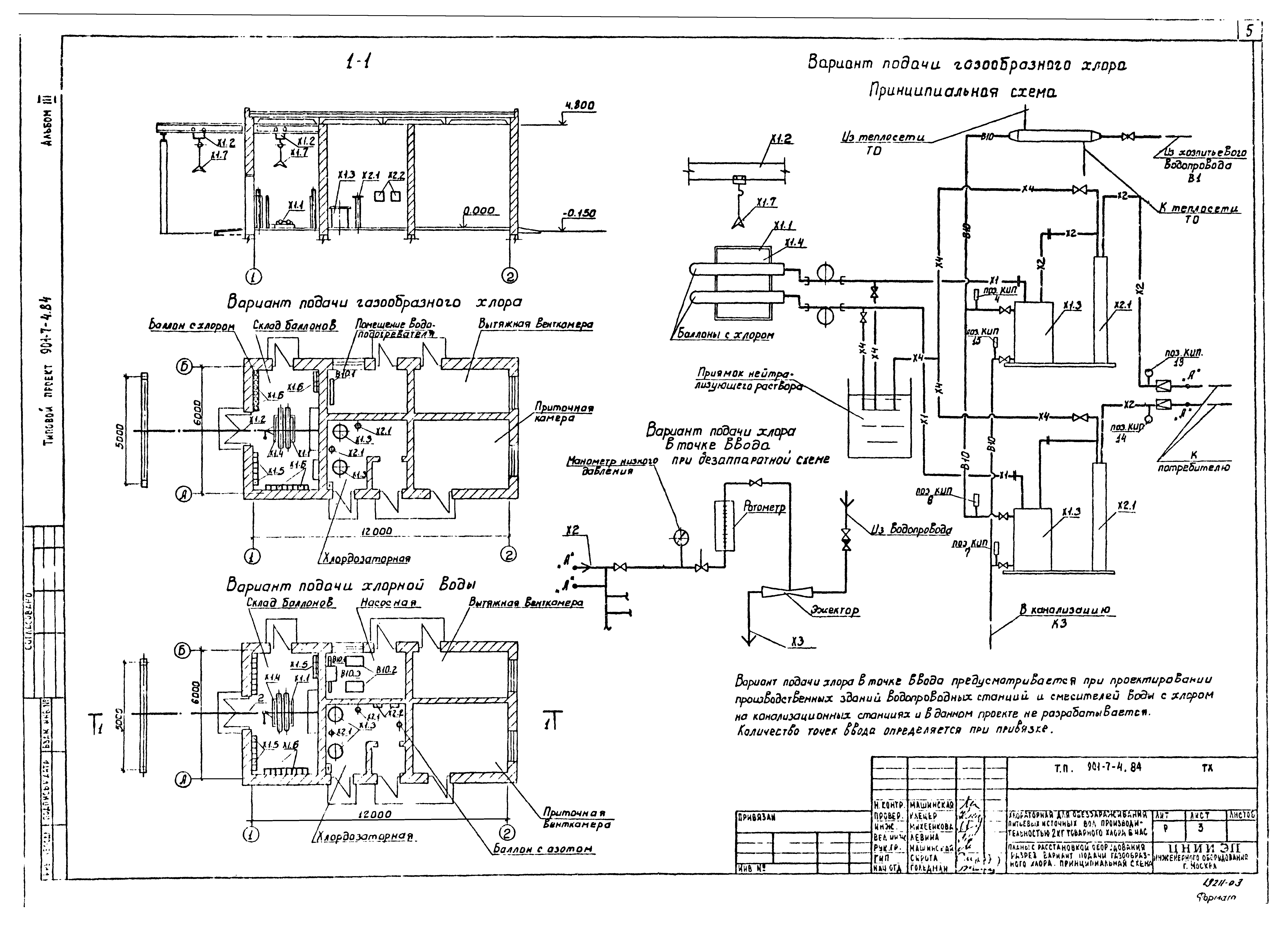
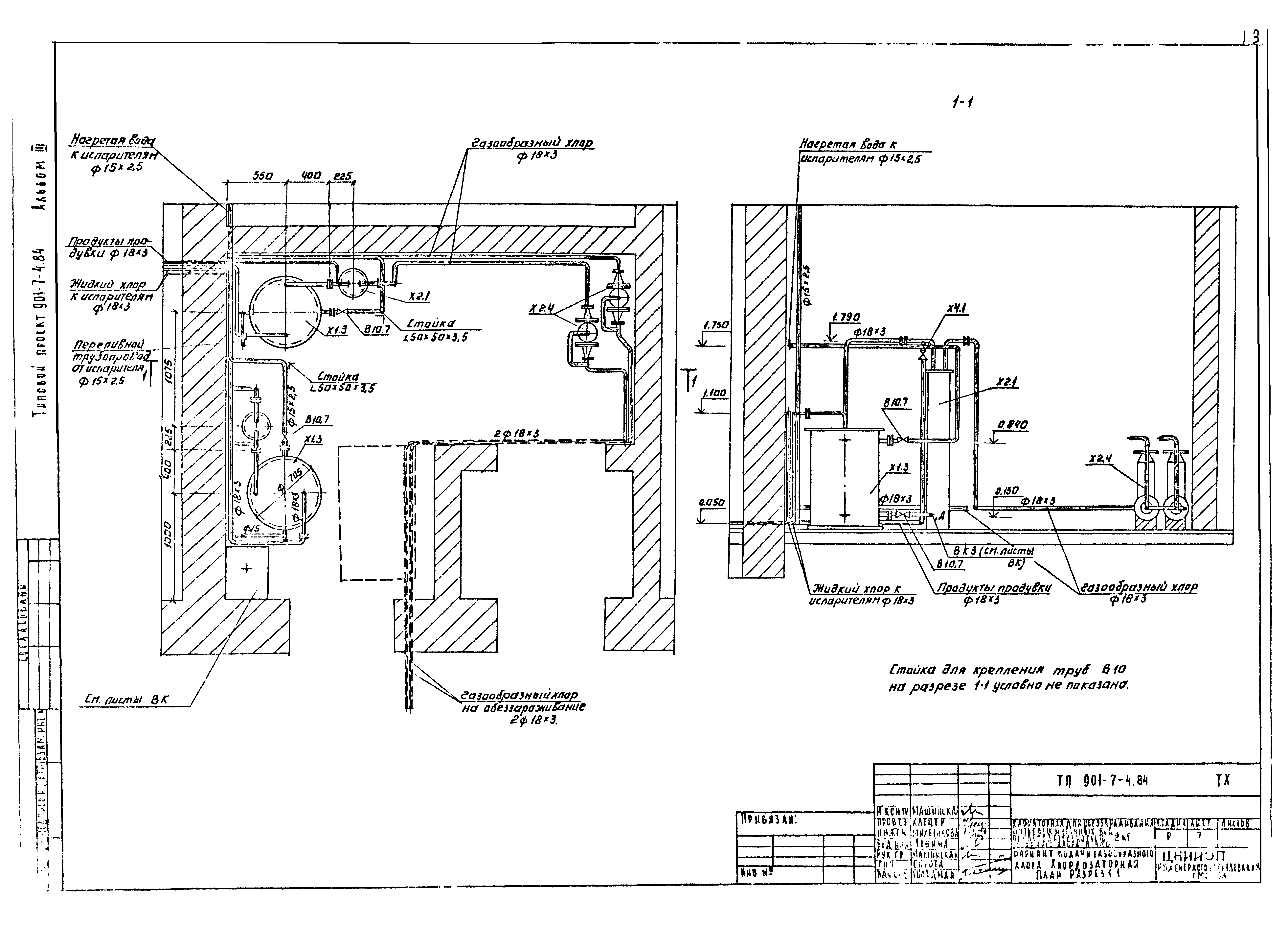
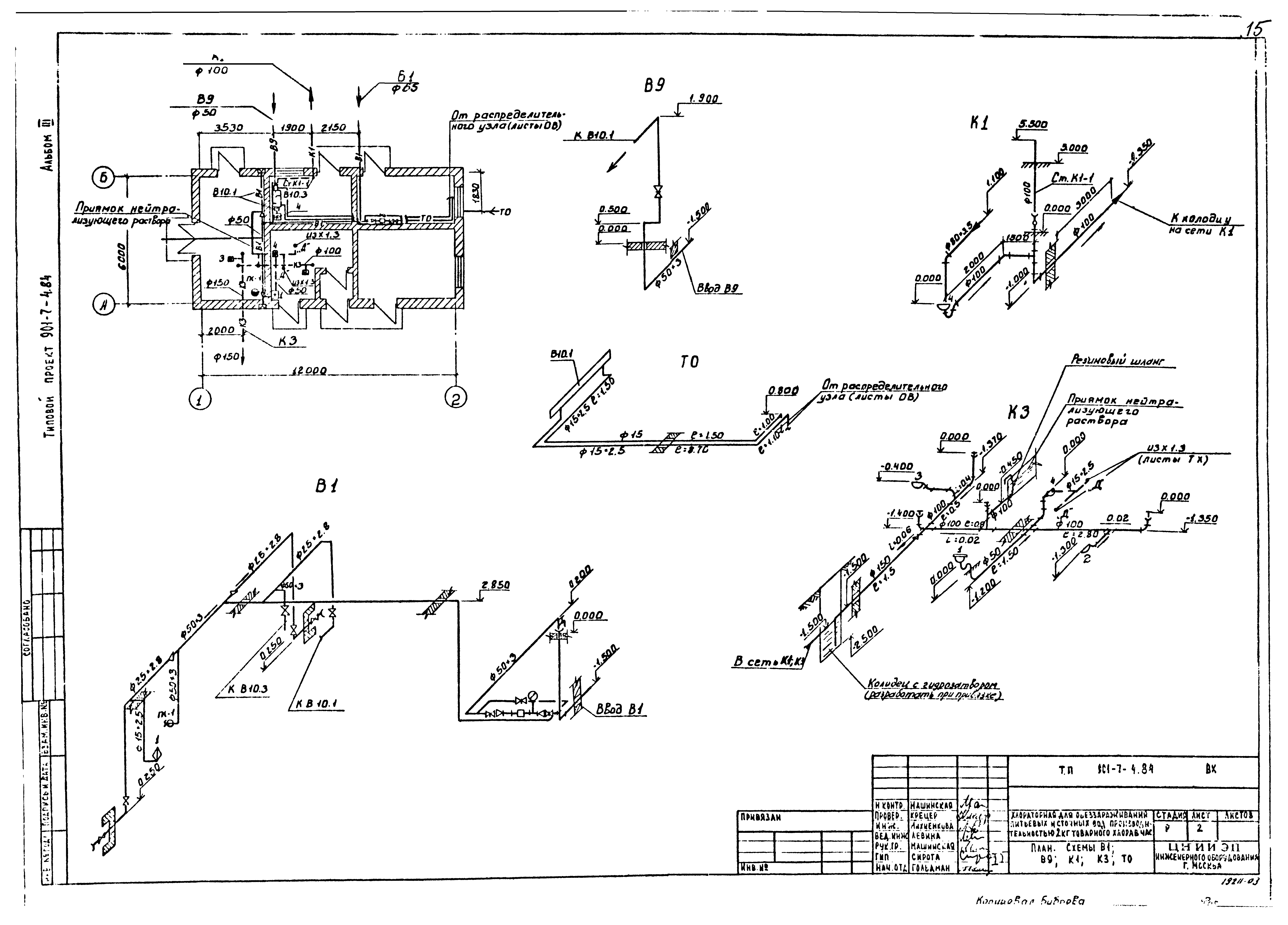
| Оглавление: | Содержание альбома Технологическая часть ТХ-1 Общие данные ТХ-2 Вариант подачи хлорной воды. Принципиальная схема ТХ-3 Планы с расстановкой оборудования. Разрез. Вариант подачи газообразного хлора. Принципиальная схема ТХ-4 Склад баллонов. Насосная. План. Разрезы 1-1,2-2 ТХ-5 Вариант подачи хлорной воды. Хлордозаторная. План. Разрез 1-1 ТХ-6 Вариант подачи хлорной воды. Хлордозаторная. Разрез 2-2 ТХ-7 Вариант подачи газообразного хлора. Хлордозаторная. План. Разрез 1-1 ТХ-8 Схемы Х1,Х2,Х3 ТХ-9 Схемы В10,Х4,Е2 Внутренний водопровод и канализация ВК-1 Общие данные ВК-2 План. Схемы В1,В9,К1,К3,ТО Отопление и вентиляция ОВ-1 Общие данные ОВ-2 План на отм. 0.000. Схемы систем вентиляции П1,П2,В1,В2,В3,В3,ВЕ1, отопления ОВ-3 Установка систем П1,П2,В1,В2,В3. Схема системы теплоснабжения ОВН-1 Переходы |
| Разработан: | ЦНИИЭП |
| Утверждён: | 27.12.1979 Госгражданстрой (Gosgrazhdanstroy 279) |
| Заменяет собой: |
















