Скачать Типовой проект 904-1-40 Альбом XIII. Вариант 4. Технологическая, электротехническая части, автоматизация и КИП. ЗаданияДата актуализации: 01.01.2021
|
| Обозначение: | Типовой проект 904-1-40 |
| Обозначение англ: | 904-1-40 |
| Статус: | не действует |
| Название рус.: | Альбом XIII. Вариант 4. Технологическая, электротехническая части, автоматизация и КИП. Задания |
| Дата добавления в базу: | 01.09.2013 |
| Дата актуализации: | 01.01.2021 |
| Дата введения: | 19.11.1980 |
| Дата окончания срока действия: | 01.04.1985 |
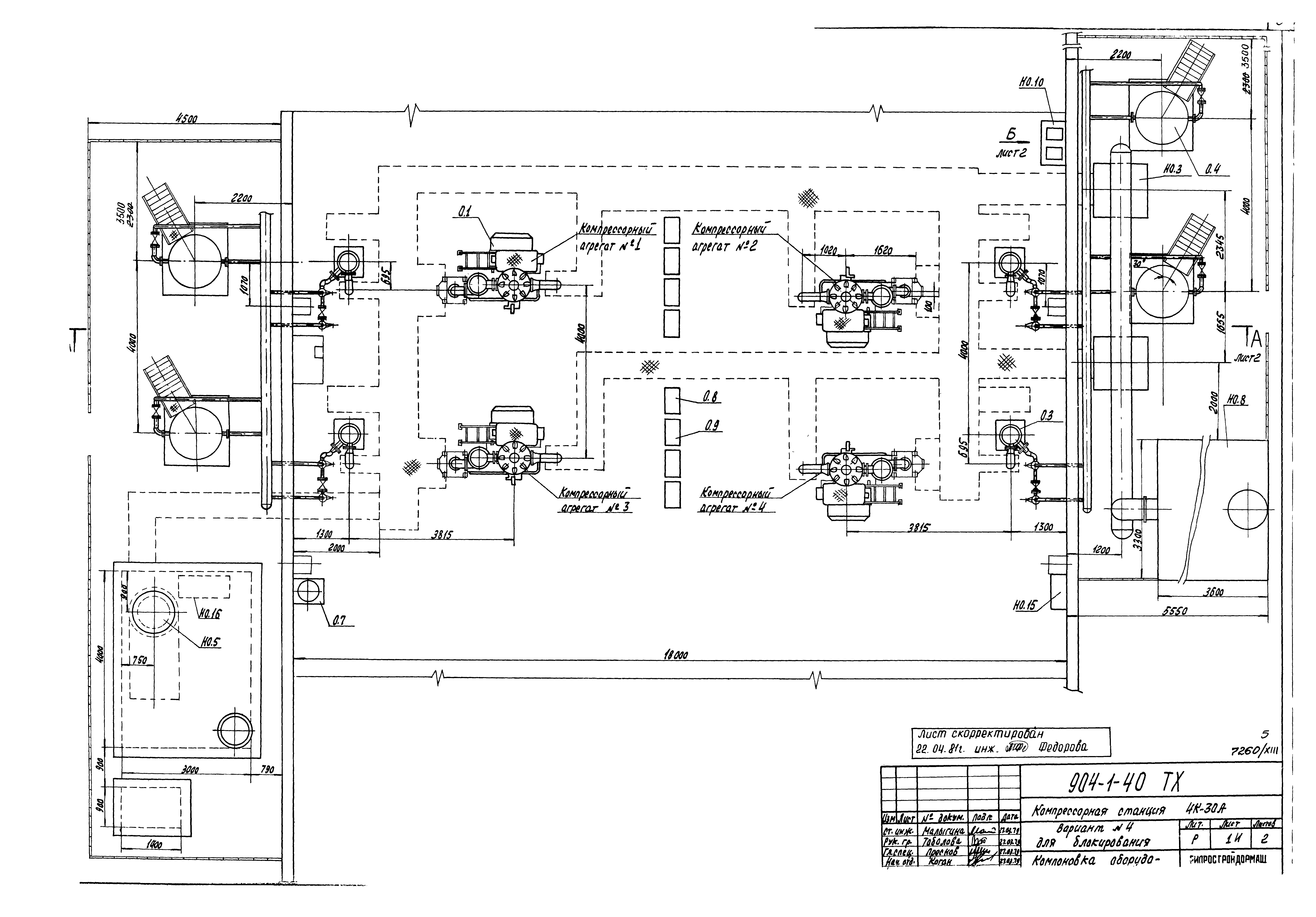
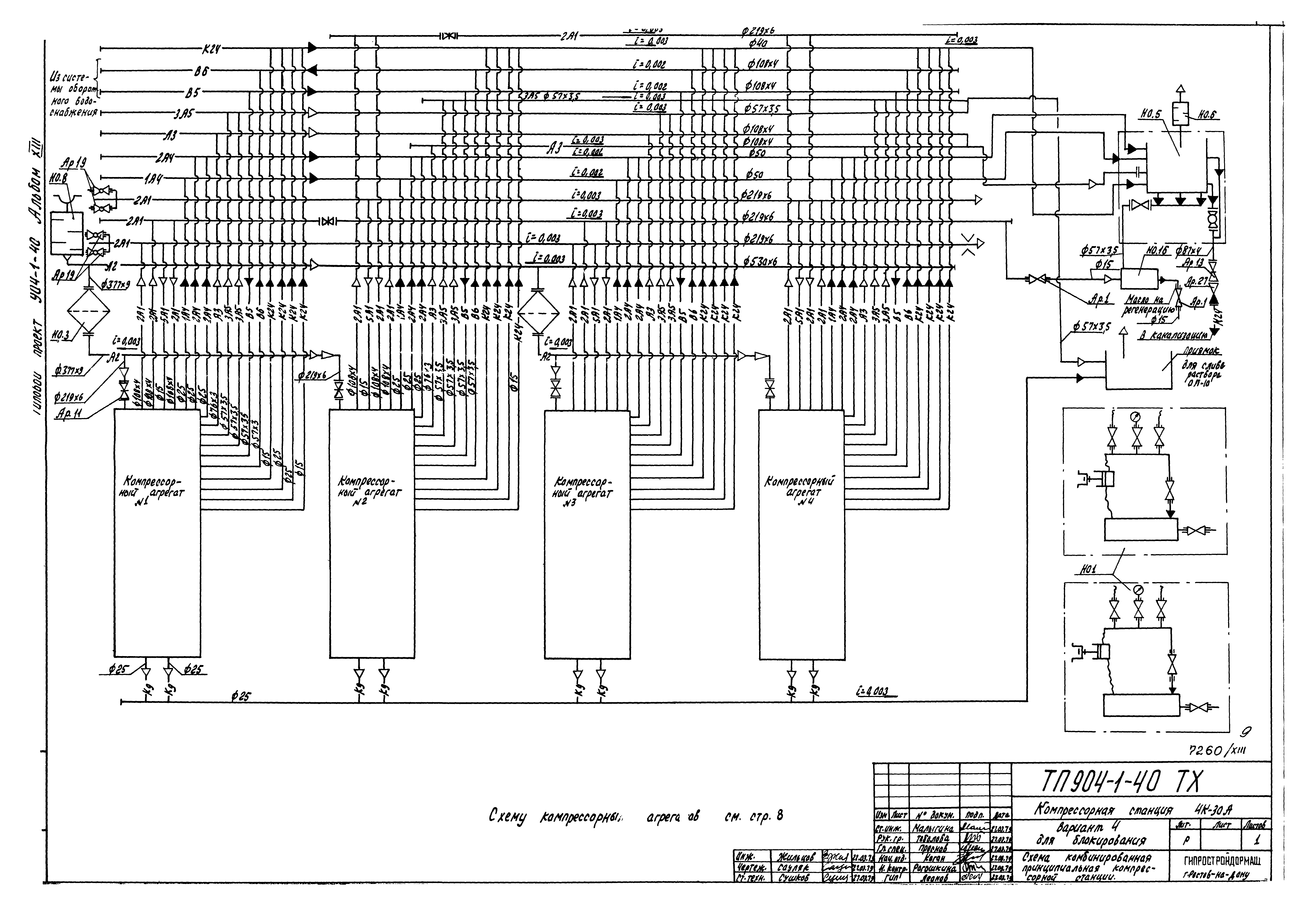
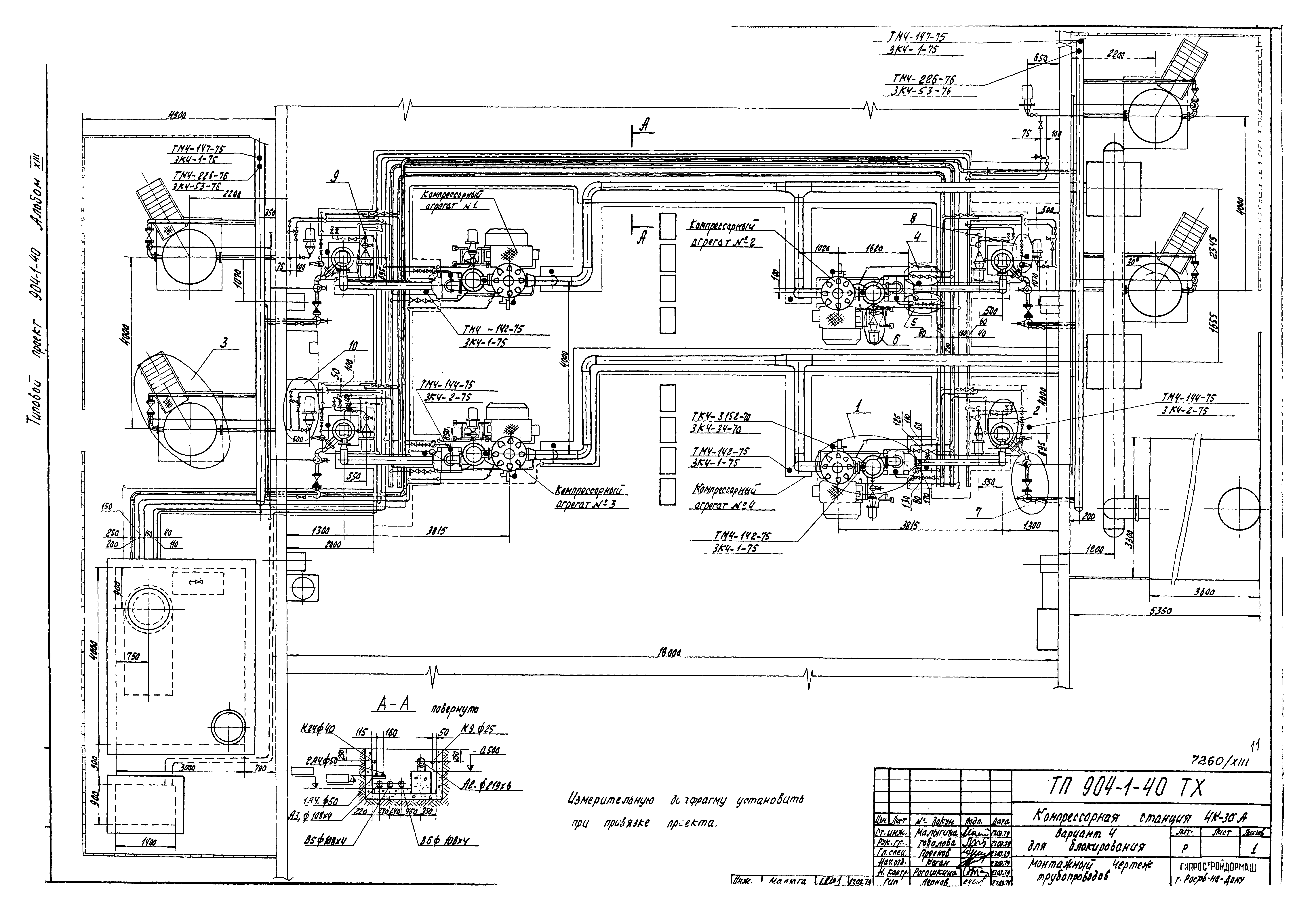
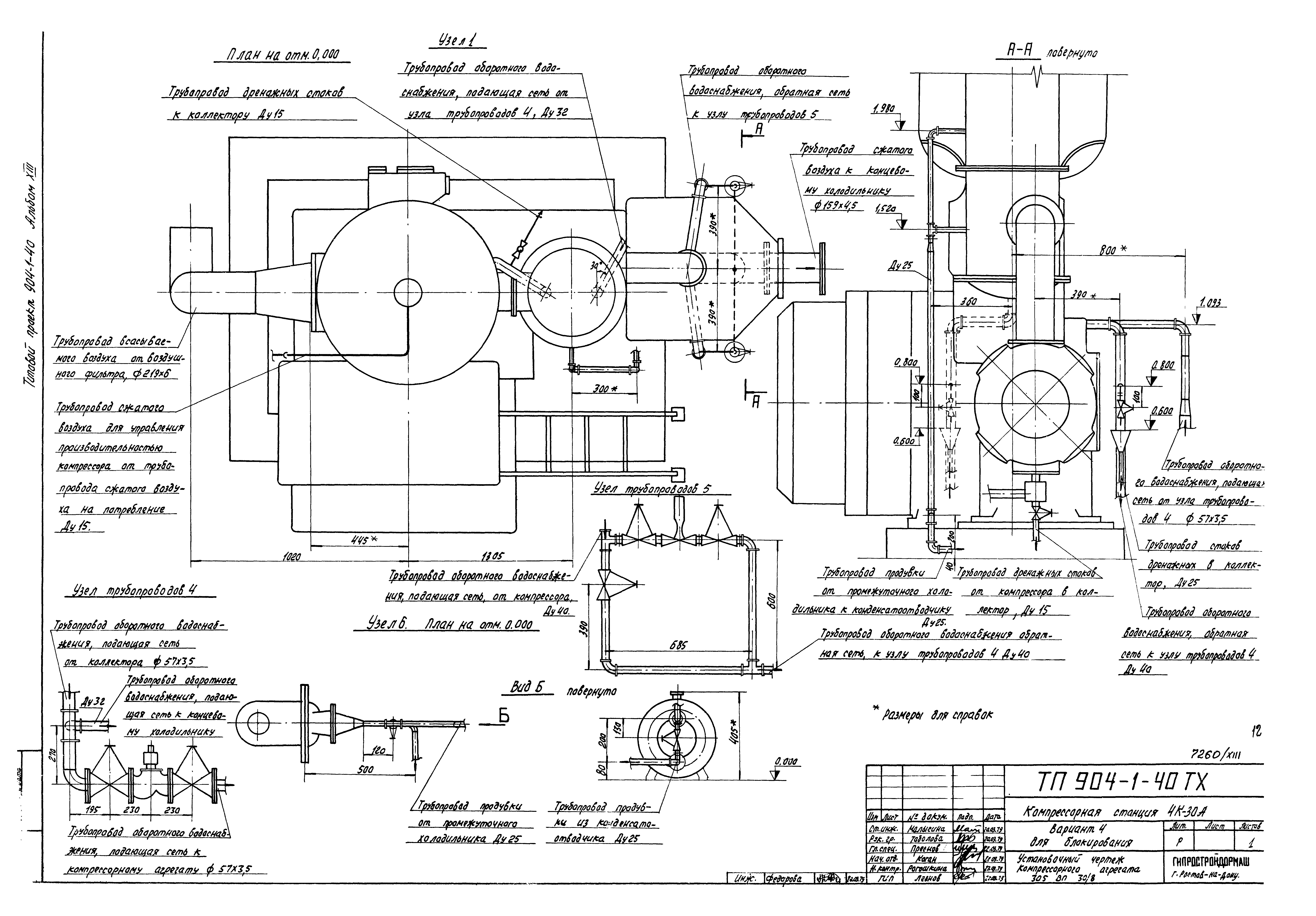
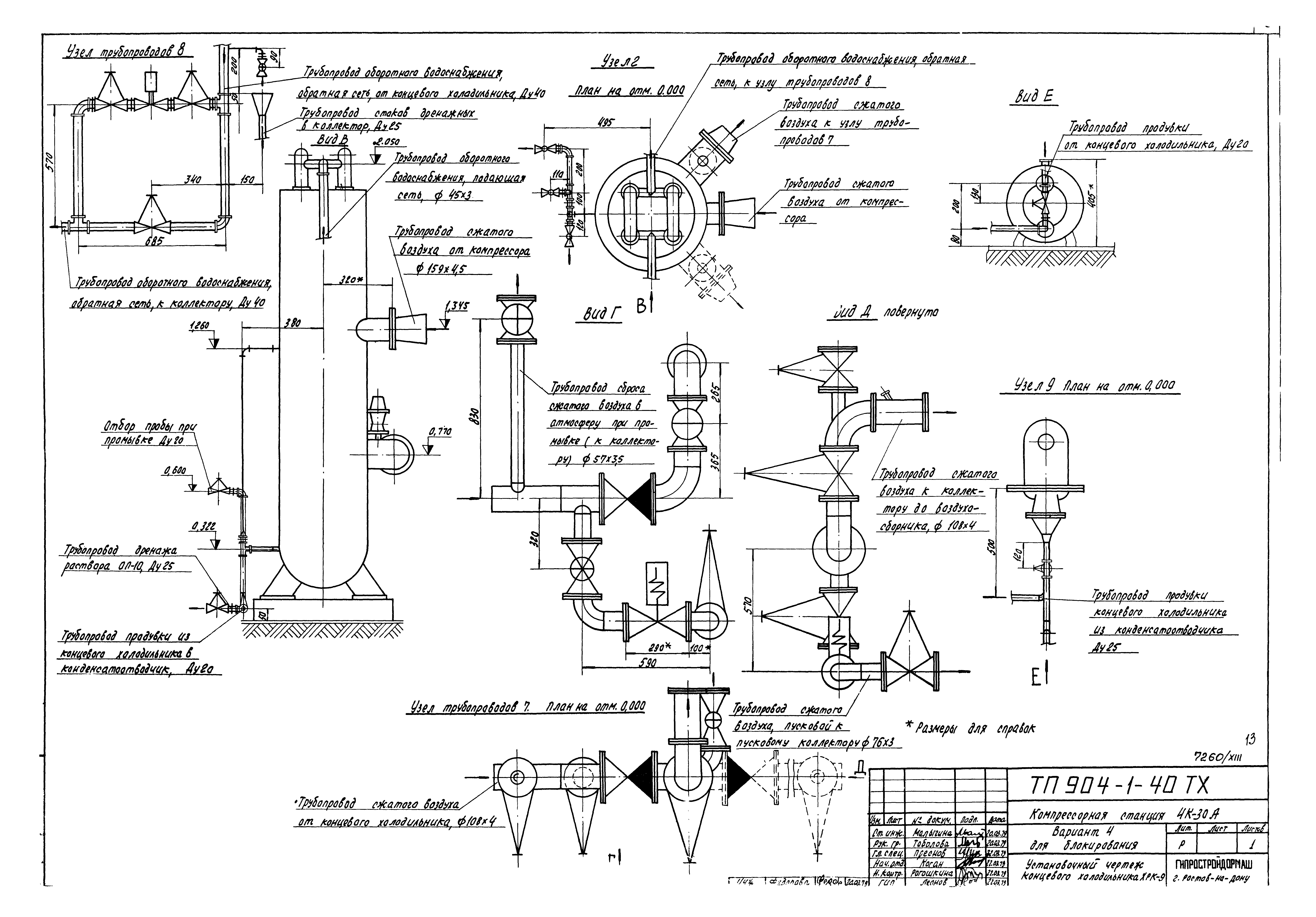
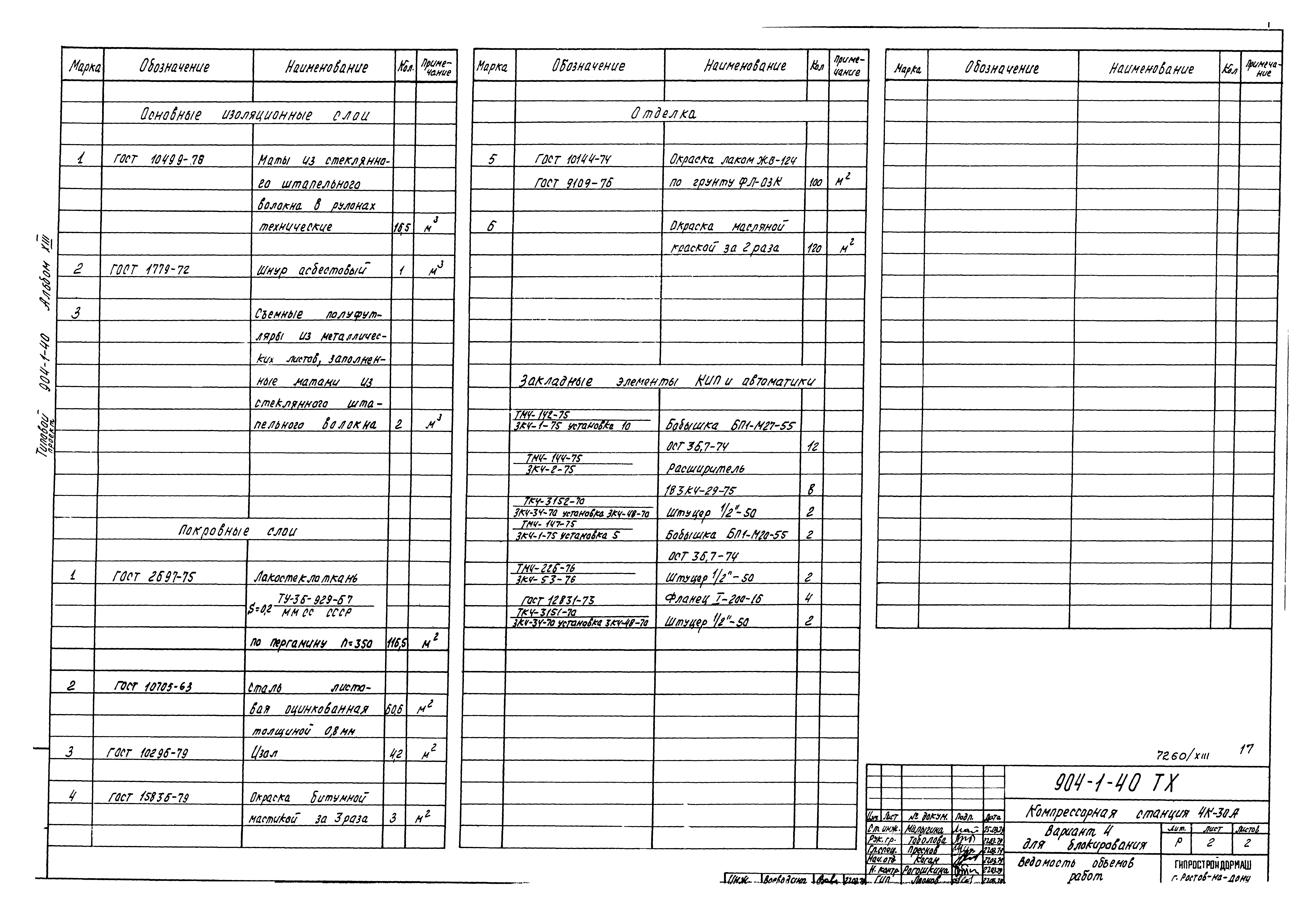
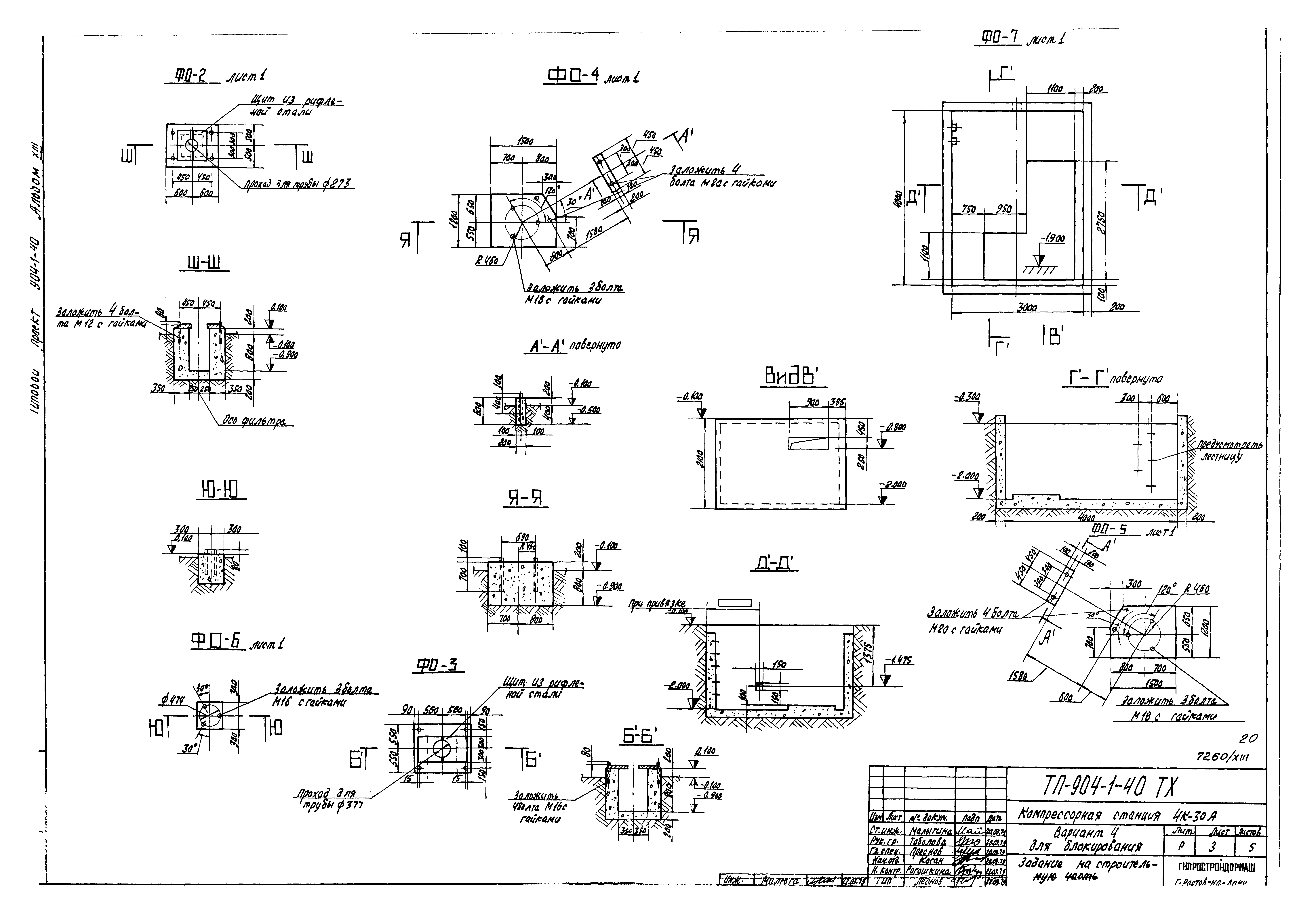
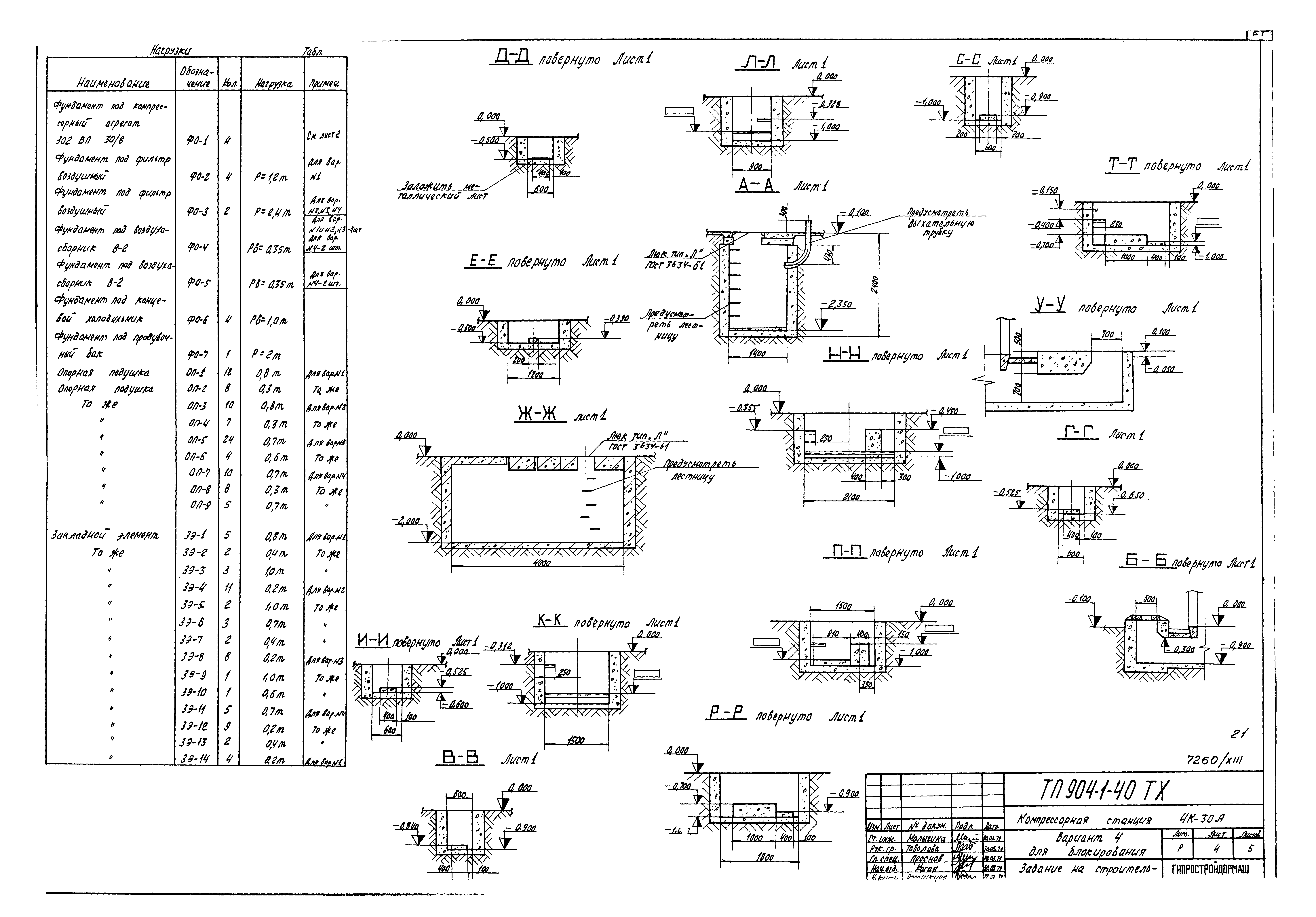
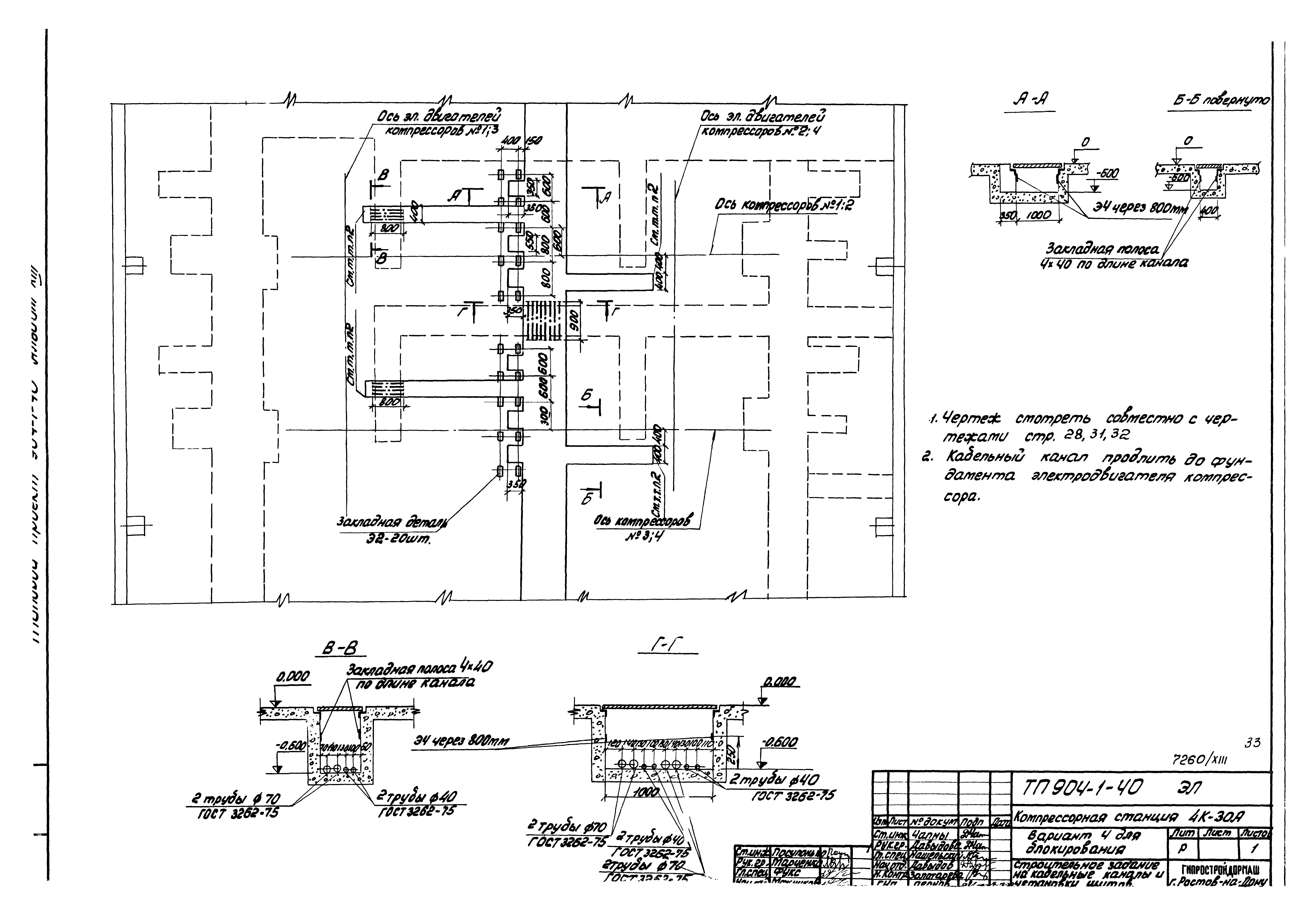
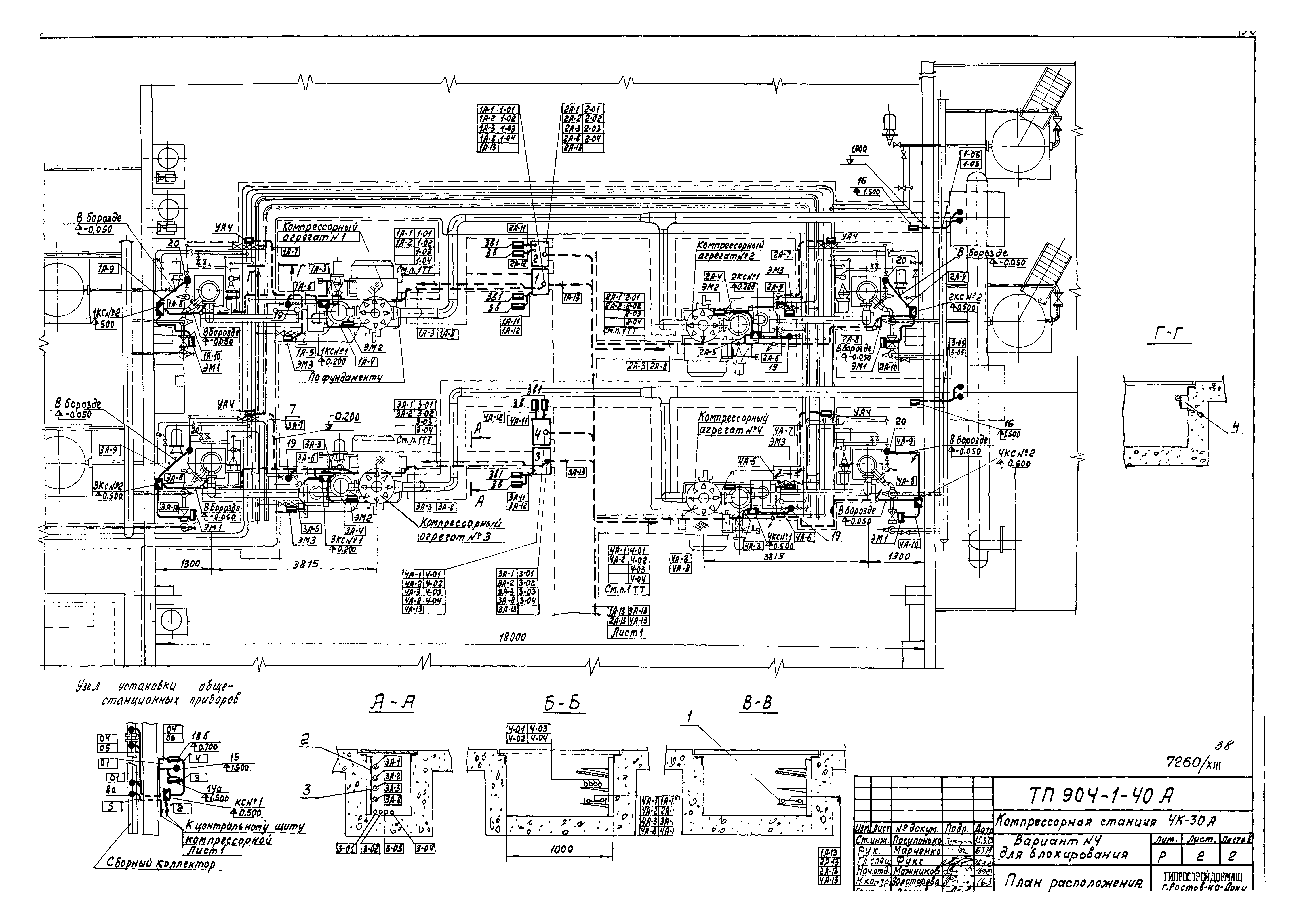
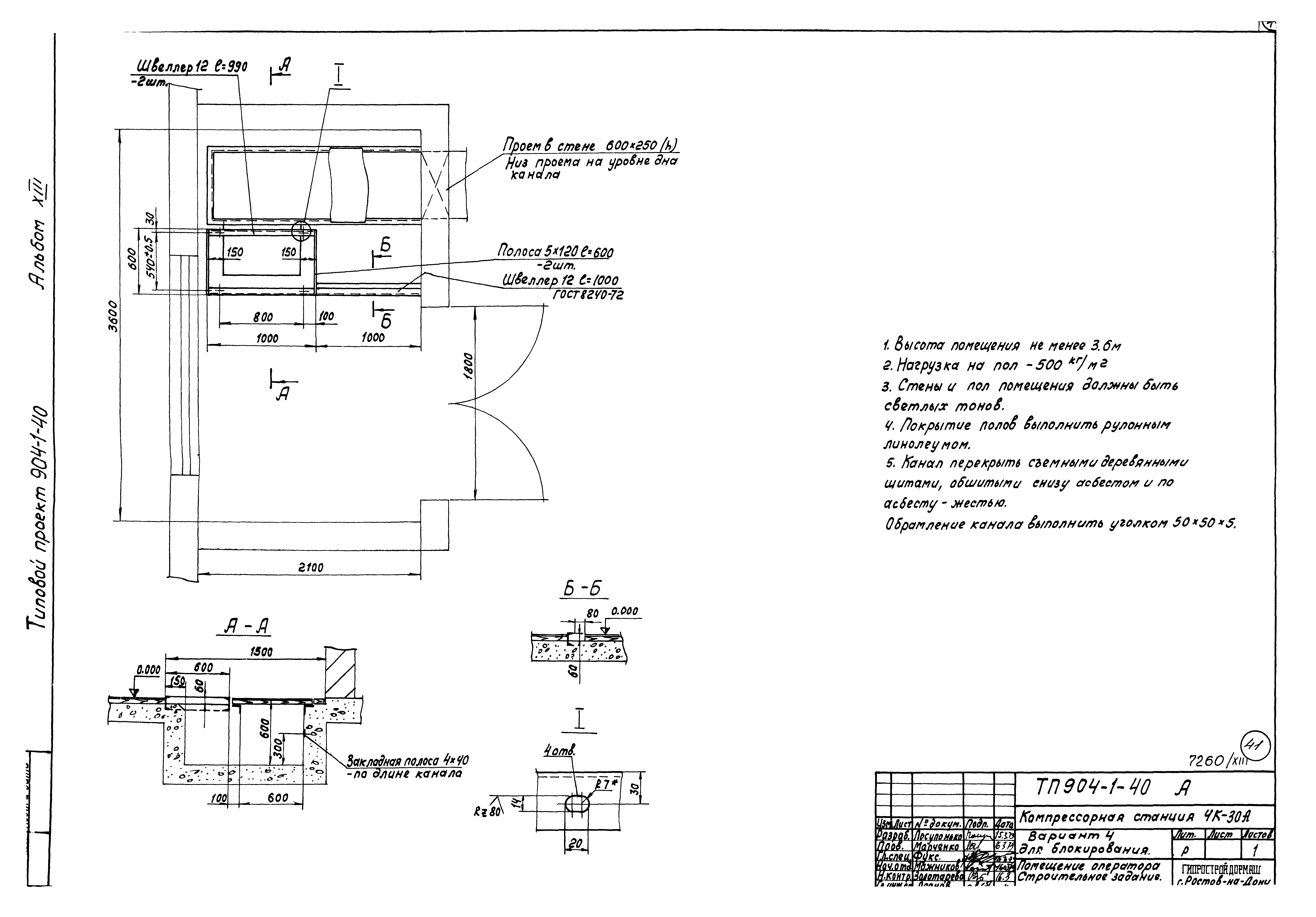
| Оглавление: | Обложка Титульный лист 904-1-40-ТХ Содержание 904-1-40-ТХ Пояснительная записка 904-1-40-ТХ Компоновка оборудования 904-1-40-ТХ Спецификация оборудования и арматуры 904-1-40-ТХ Схема комбинированная принципиальная агрегата 904-1-40-ТХ Схема комбинированная принципиальная компрессорной станции 904-1-40-ТХ Условные обозначения 904-1-40-ТХ Монтажный чертеж трубопроводов 904-1-40-ТХ Установочный чертеж компрессорного агрегата 305ВП 30/8 904-1-40-ТХ Установочный чертеж концевого холодильника ХРК-9 904-1-40-ТХ Установочный чертеж воздухосборника В2 904-1-40-ТХ Ведомость объемов работы 904-1-40-ТХ Задание на строительную часть 904-1-40-ТХ Задание на ОВ и ВК 904-1-40-ЭЛ Электротехническая часть 904-1-40-А Автоматизация и КИП |
| Разработан: | Гипростройдормаш |
| Утверждён: | 30.10.1980 Минстройдормаш (Minstroydormash 36/80) |
| Чем заменён: |









































