Скачать Типовой проект 503-9-26.89 Альбом I. Технологические решения. Архитектурно-строительные решения. Отопление и вентиляция. Электрическое освещение. Автоматизация сантехнических и технологических установок. Связь и сигнализация

Дата актуализации: 01.01.2021

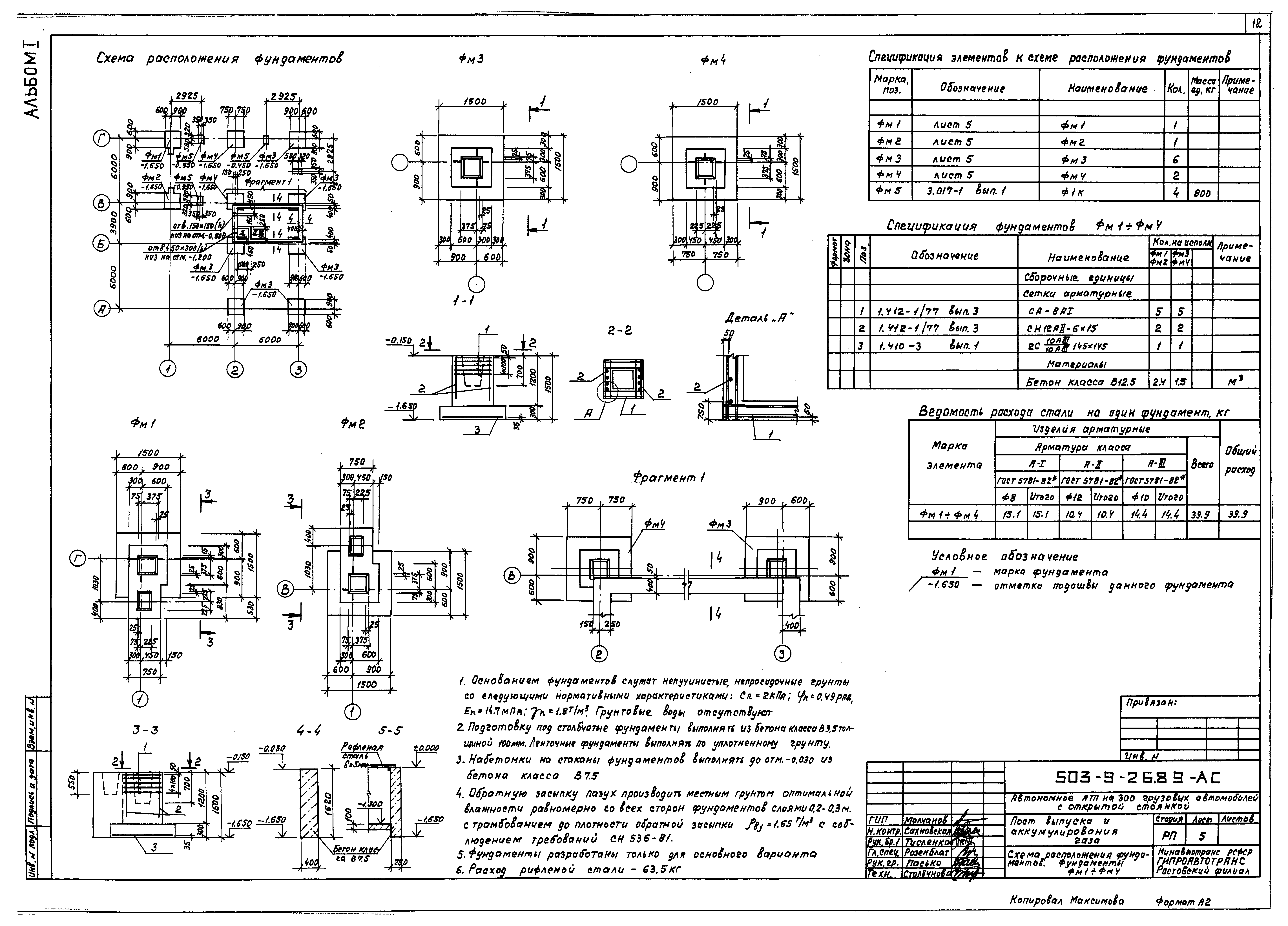
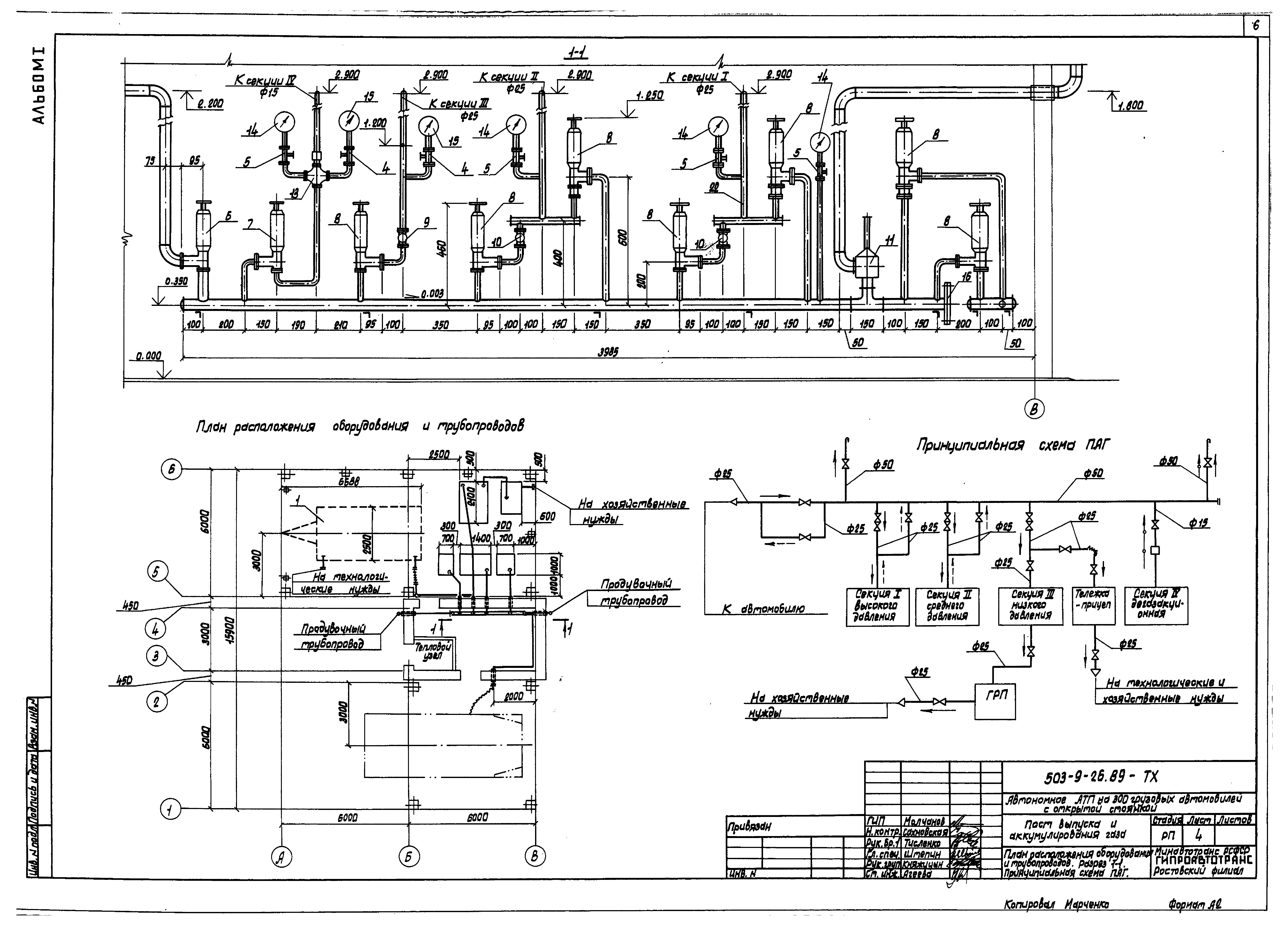
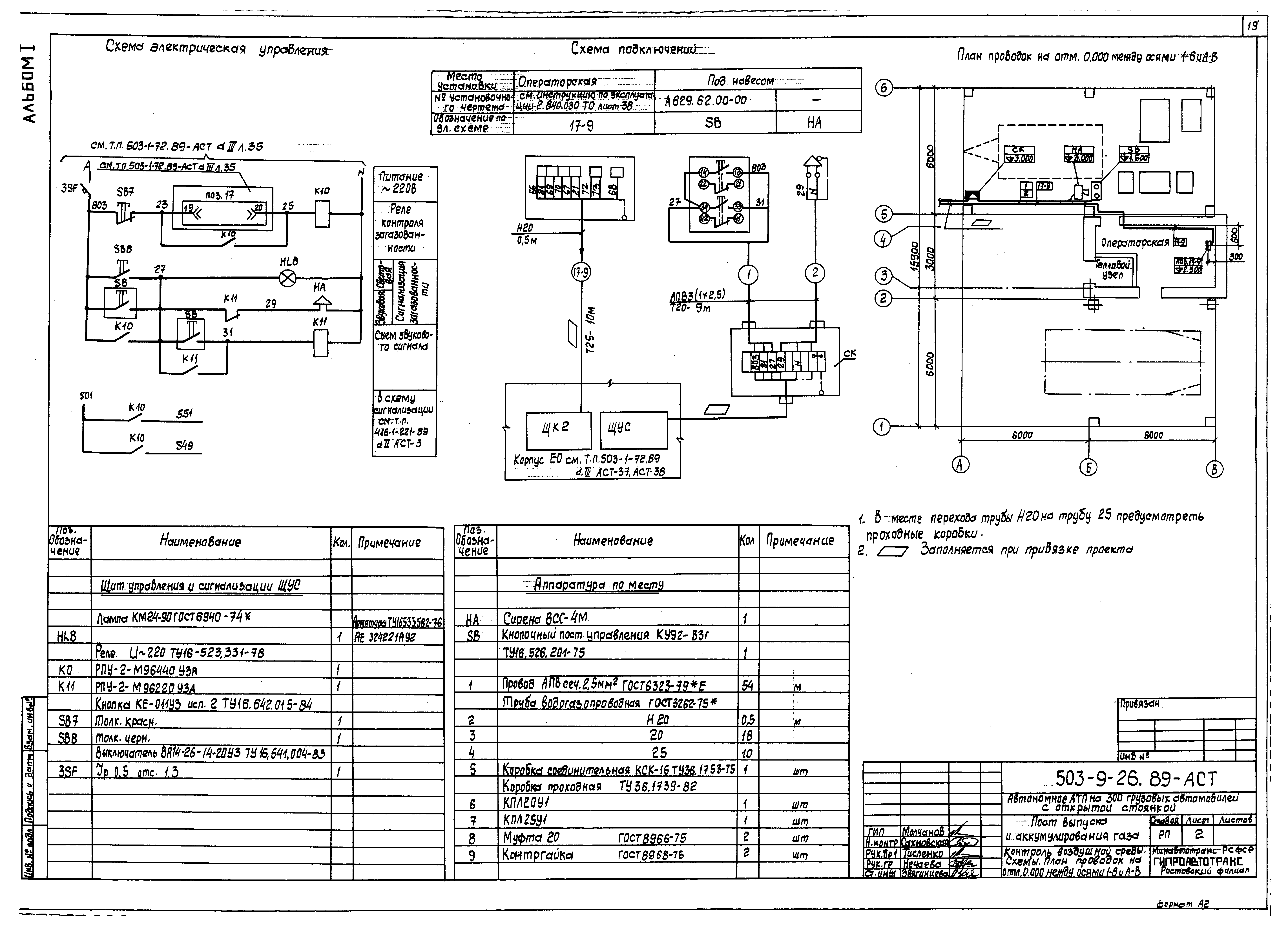
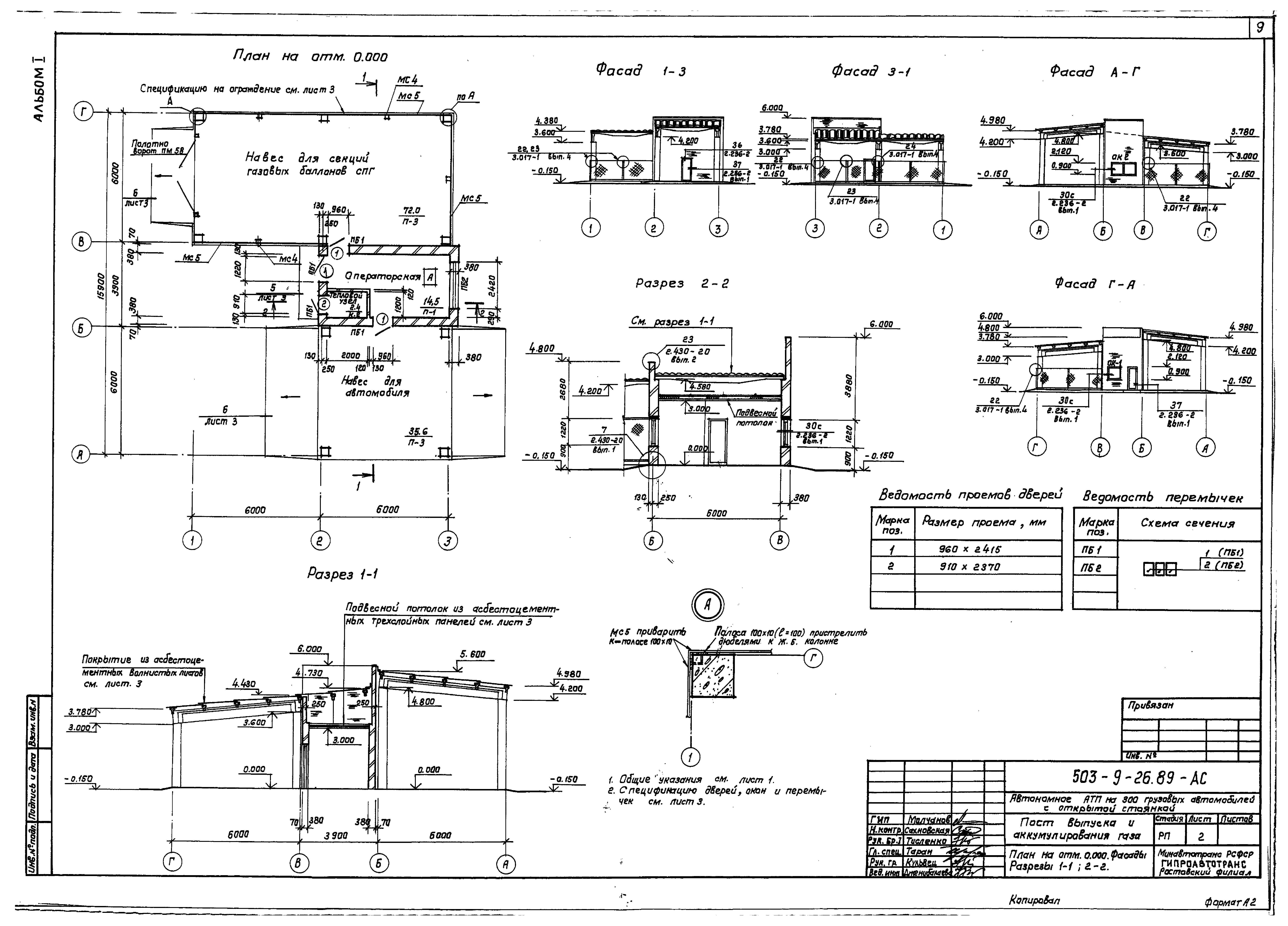
Типовой проект 503-9-26.89

Альбом I. Технологические решения. Архитектурно-строительные решения. Отопление и вентиляция. Электрическое освещение. Автоматизация сантехнических и технологических установок. Связь и сигнализация

Обозначение: Типовой проект 503-9-26.89
Обозначение англ: 503-9-26.89
Статус:не определен законодательством
Название рус.:Альбом I. Технологические решения. Архитектурно-строительные решения. Отопление и вентиляция. Электрическое освещение. Автоматизация сантехнических и технологических установок. Связь и сигнализация
Дата добавления в базу:01.09.2013
Дата актуализации:01.01.2021
Дата введения:23.05.1989
Дата окончания срока действия:30.06.2003
Разработан: Ростовский филиал Гипроавтотранса Минавтотранса РСФСР
Утверждён:23.05.1989 Минавтотранс РСФСР (Russian Federation Minavtotrans 4)
Типовой проект 503-9-26.89Типовой проект 503-9-26.89Типовой проект 503-9-26.89Типовой проект 503-9-26.89Типовой проект 503-9-26.89Типовой проект 503-9-26.89Типовой проект 503-9-26.89Типовой проект 503-9-26.89Типовой проект 503-9-26.89Типовой проект 503-9-26.89Типовой проект 503-9-26.89Типовой проект 503-9-26.89Типовой проект 503-9-26.89Типовой проект 503-9-26.89Типовой проект 503-9-26.89Типовой проект 503-9-26.89Типовой проект 503-9-26.89Типовой проект 503-9-26.89Типовой проект 503-9-26.89Типовой проект 503-9-26.89Типовой проект 503-9-26.89