Скачать Типовой проект 503-1-46.86 Альбом III. Индустриальные строительные конструкцииДата актуализации: 01.01.2021
|
| Обозначение: | Типовой проект 503-1-46.86 |
| Обозначение англ: | 503-1-46.86 |
| Статус: | не определен законодательством |
| Название рус.: | Альбом III. Индустриальные строительные конструкции |
| Дата добавления в базу: | 01.09.2013 |
| Дата актуализации: | 01.01.2021 |
| Дата введения: | 18.04.1986 |
| Дата окончания срока действия: | 30.06.2003 |
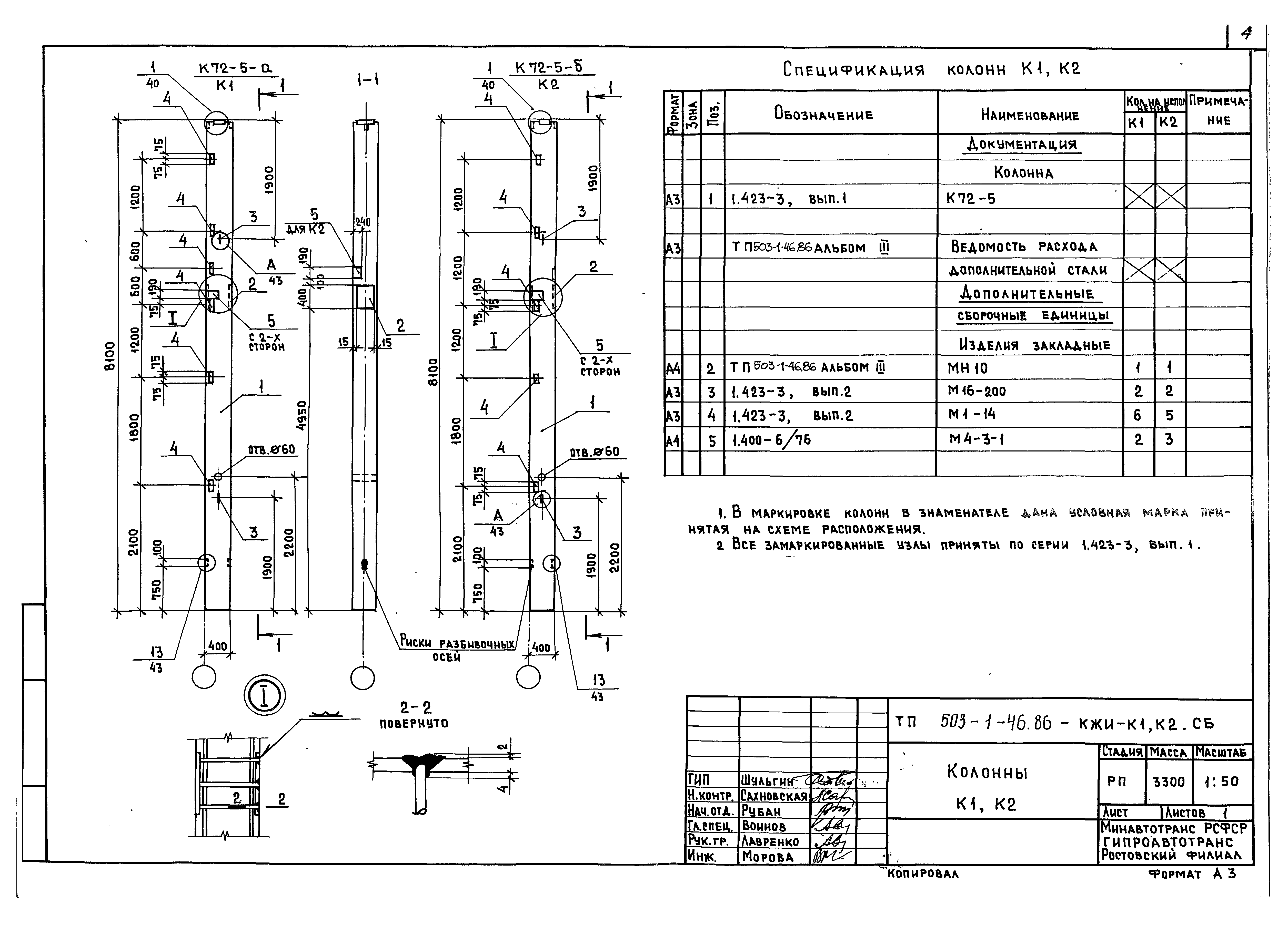
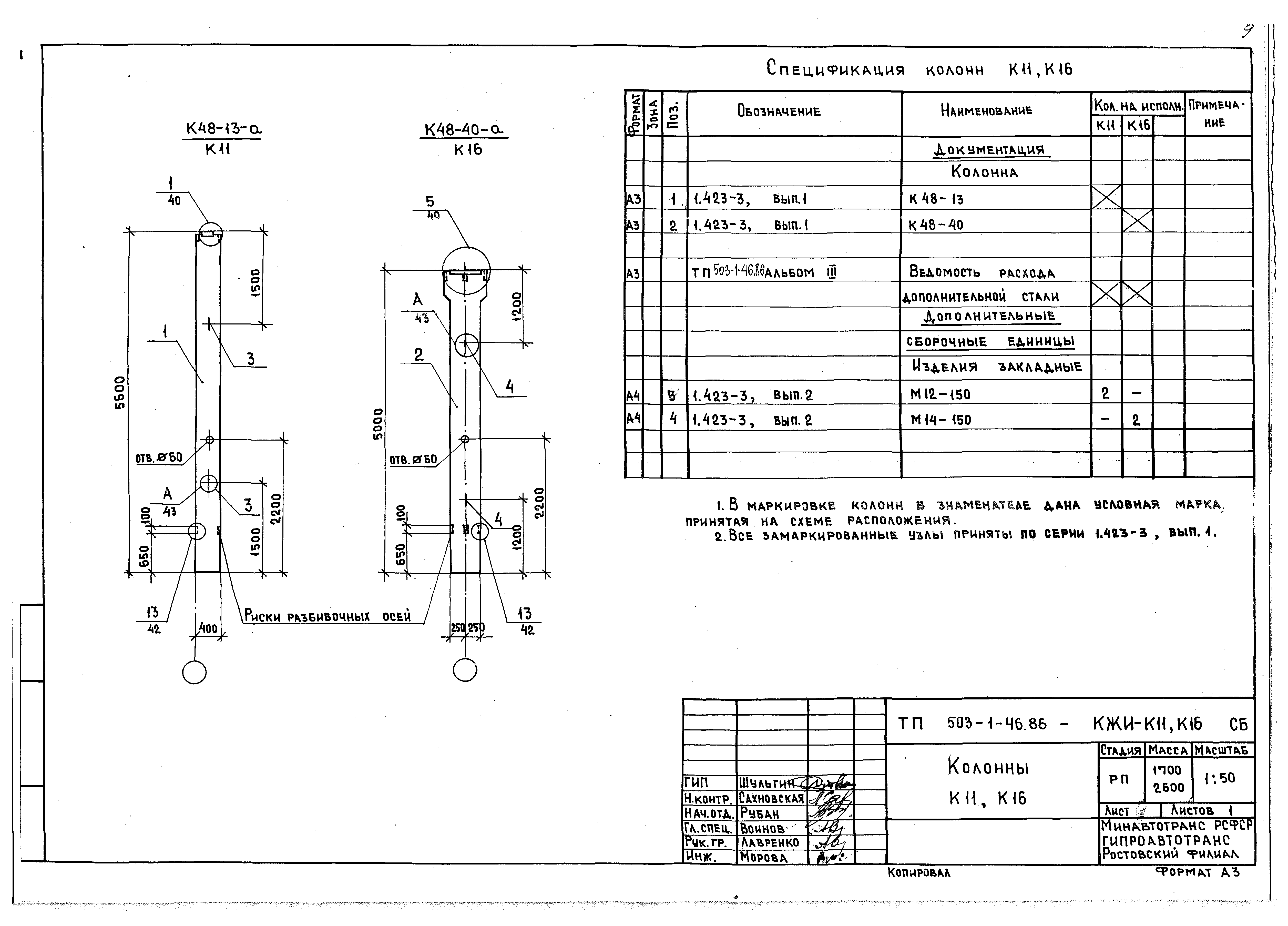
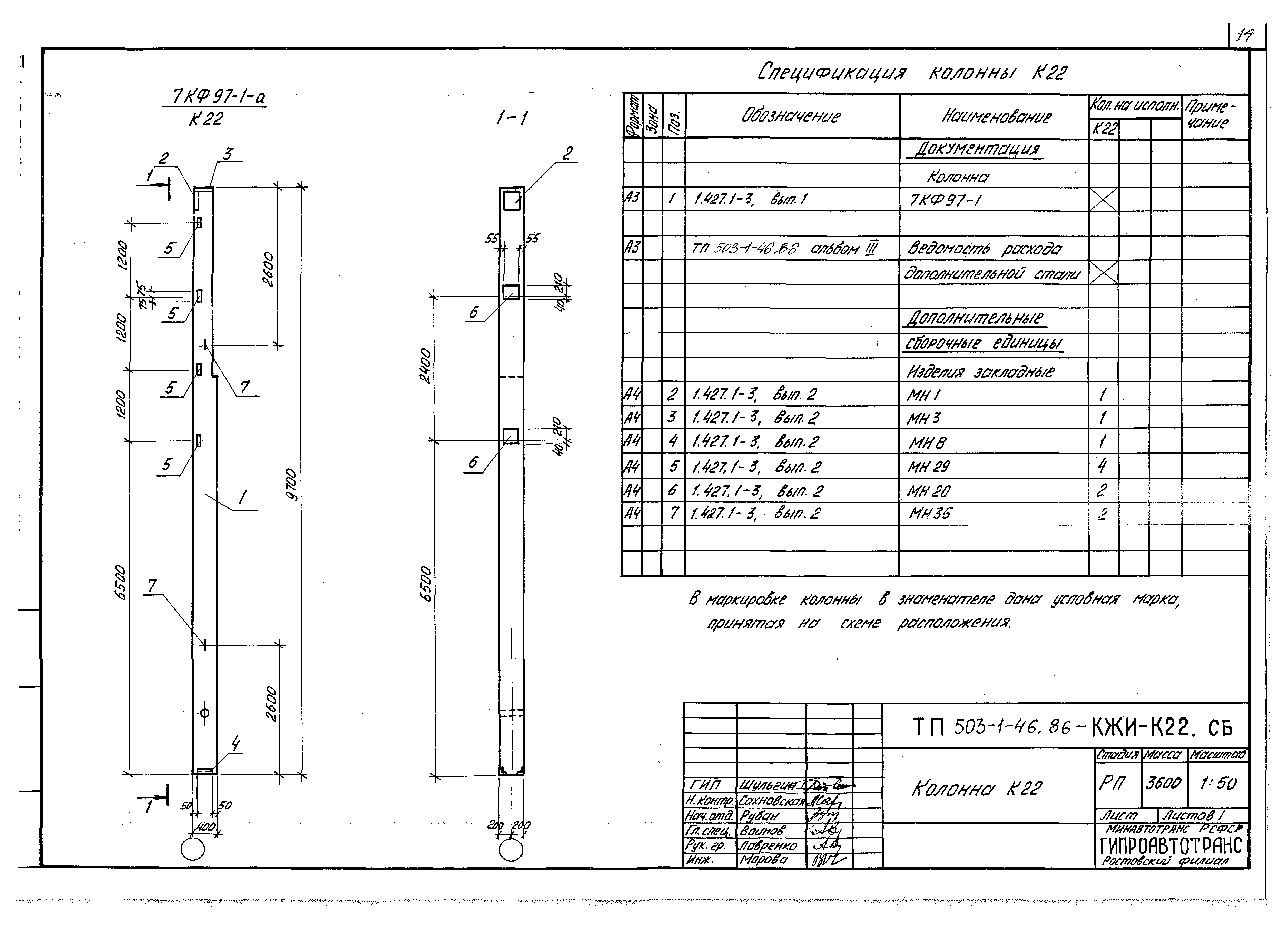
| Оглавление: | Содержание альбома ТП 503-1-46.86-КЖИ-К1,К2 СБ Колонны К1,К2 ТП 503-1-46.86-КЖИ-К3,К4 СБ Колонны К3,К4 ТП 503-1-46.86-КЖИ-К5,К6 СБ Колонны К5,К6 ТП 503-1-46.86-КЖИ-К7,К8 СБ Колонны К7,К8 ТП 503-1-46.86-КЖИ-К9,К10 СБ Колонны К9,К10 ТП 503-1-46.86-КЖИ-К11,К16 СБ Колонны К11,К16 ТП 503-1-46.86-КЖИ-К12,К13 СБ Колонны К12,К13 ТП 503-1-46.86-КЖИ-К14,К15,К17 СБ Колонны К14,К15,К17 ТП 503-1-46.86-КЖИ-К18,К19 СБ Колонны К18,К19 ТП 503-1-46.86-КЖИ-К20,К21 СБ Колонны К20,К21 ТП 503-1-46.86-КЖИ-К22 СБ Колонна К22 ТП 503-1-46.86-КЖИ-К23,К24 СБ Колонны К23,К24 ТП 503-1-46.86-КЖИ-К1-К24 Ведомость расхода дополнительной стали на колонны К1-К24 ТП 503-1-46.86-КЖИ-Ф1,Ф2 СБ Фермы Ф1,Ф2 ТП 503-1-46.86-КЖИ-Ф3,Ф4 СБ Фермы Ф3,Ф4 ТП 503-1-46.86-КЖИ-Ф1-Ф4 Спецификация ферм Ф1-Ф4. Ведомость дополнительного расхода стали на элемент ТП 503-1-46.86-КЖИ-П2,П4,П5,П7,П17,П18 Плиты П2,П4,П5,П7,П17,П18 ТП 503-1-46.86-КЖИ-П3,П48-П10 СБ Плиты П3,П48-П10 ТП 503-1-46.86-КЖИ-П12 СБ Плита П12. Ведомость расхода дополнительной стали на плиты П2-П5, П7-П10, П12, П17 ТП 503-1-46.86-КЖИ-П2-П5,П7-П10,П12,П17,П18 Спецификация плит П2-П5,П7-П10,П12,П17,П18 ТП 503-1-46.86-КЖИ-Р3СБ Ригель Р3 ТП 503-1-46.86-КЖИ-П5,П6 СБ Плиты П5,П6 ТП 503-1-46.86-КЖИ-П11,П12 СБ Плиты П11,П12 ТП 503-1-46.86-КЖИ-П22,П23 СБ Плиты П22,П23 ТП 503-1-46.86-КЖИ-ПВ13,ПВ21,ПВ22 СБ Панели ПВ13,ПВ21,ПВ22 ТП 503-1-46.86-КЖИ-ПС26,ПС27 СБ Панели стен ПС26,ПС27 ТП 503-1-46.86-КЖИ-ПС28-ПС31 СБ Панели стен ПС28-ПС31 ТП 503-1-46.86-КЖИ-ПС32,ПС33 СБ Панели стен ПС32,ПС33 ТП 503-1-46.86-КЖИ-ПС39 СБ Панель стены ПС39 ТП 503-1-46.86-КЖИ-ПС41-ПС44,ПС49-ПС52 СБ Панели стен ПС41-ПС44,ПС49-ПС52 ТП 503-1-46.86-КЖИ-ПС4,ПС6 СБ Стеновые панели ПС4,ПС6 ТП 503-1-46.86-КЖИ-ПС9,ПС10 СБ Стеновые панели ПС9,ПС10 ТП 503-1-46.86-КЖИ-Р;,К25 СБ Ригель Р4. Колонна К25 ТП 503-1-46.86-КЖИ-С1 Сетка арматурная С1 ТП 503-1-46.86-КЖИ-С2 Сетка арматурная С2 ТП 503-1-46.86-КЖИ-С3 Сетка арматурная С3 ТП 503-1-46.86-КЖИ-С4 Сетка арматурная С4 ТП 503-1-46.86-КЖИ-С5 Сетка арматурная С5 ТП 503-1-46.86-КЖИ-С6 Сетка арматурная С6 ТП 503-1-46.86-КЖИ-КР1 Каркас плоский КР1 ТП 503-1-46.86-КЖИ-КР2 Каркас плоский КР2 ТП 503-1-46.86-КЖИ-КР3 Каркас плоский КР3 ТП 503-1-46.86-КЖИ-КР4,КР5 Каркас плоский КР4,КР5 ТП 503-1-46.86-КЖИ-СТ1 Стойка СТ1 ТП 503-1-46.86-КЖИ-СТ2 Стойка СТ2 ТП 503-1-46.86-КЖИ-СТ3 Стойка СТ3 ТП 503-1-46.86-КЖИ-НУ1а,НУ2а Насадка фахверка НУ1а,НУ2а ТП 503-1-46.86-КЖИ-НС1а Насадка фахверка НС1а ТП 503-1-46.86-КЖИ-МН1 Изделие закладное МН1 ТП 503-1-46.86-КЖИ-МН2 Изделие закладное МН2 ТП 503-1-46.86-КЖИ-МН3 Изделие закладное МН3 ТП 503-1-46.86-КЖИ-МН4 Изделие закладное МН4 ТП 503-1-46.86-КЖИ-МН5 Изделие закладное МН5 ТП 503-1-46.86-КЖИ-МН6 Изделие закладное МН6 ТП 503-1-46.86-КЖИ-МН7 Изделие закладное МН7 ТП 503-1-46.86-КЖИ-МН8 Изделие закладное МН8 ТП 503-1-46.86-КЖИ-МН9 Изделие закладное МН9 ТП 503-1-46.86-КЖИ-МН10 Изделие закладное МН10 ТП 503-1-46.86-КЖИ-МС1 Изделие соединительное МС1 ТП 503-1-46.86-КЖИ-МС2 Изделие соединительное МС2 ТП 503-1-46.86-КЖИ-МС3 Изделие соединительное МС3 ТП 503-1-46.86-КЖИ-МС4 Изделие соединительное МС4 ТП 503-1-46.86-КЖИ-МС5 Изделие соединительное МС5 ТП 503-1-46.86-КЖИ-МС6 Изделие соединительное МС6 ТП 503-1-46.86-КЖИ-МС7 Изделие соединительное МС7 ТП 503-1-46.86-КЖИ-МС8 Изделие соединительное МС8 ТП 503-1-46.86-КЖИ-МС9 Изделие соединительное МС9 ТП 503-1-46.86-КЖИ-Щ1 Щит Щ1 ТП 503-1-46.86-КЖИ-РМ1 Рамка РМ1 ТП 503-1-46.86-КЖИ-РМ2 Рамка РМ2 ТП 503-1-46.86-КЖИ-А1,А2 Анкер А1,А2 ТП 503-1-46.86-КЖИ-Р1 Решетка Р1 ТП 503-1-46.86-КЖИ-РМ3 Рамка РМ3 ТП 503-1-46.86-КЖИ-МС10 Изделие соединительное МС10 ТП 503-1-46.86-КЖИ-А3 Анкер А3 ТП 503-1-46.86-КЖИ-А4 Анкер А4 ТП 503-1-46.86-КЖИ-ОГ1 Ограждение ОГ1 |
| Разработан: | Ростовский филиал Гипроавтотранса Минавтотранса РСФСР |
| Утверждён: | 18.04.1986 Минавтотранс РСФСР (Russian Federation Minavtotrans 11) |




























































