Скачать Типовой проект 704-2-55.90 Альбом 2. Строительные и технологические изделияДата актуализации: 01.01.2021
|
| Обозначение: | Типовой проект 704-2-55.90 |
| Обозначение англ: | 704-2-55.90 |
| Статус: | не определен законодательством |
| Название рус.: | Альбом 2. Строительные и технологические изделия |
| Дата добавления в базу: | 01.09.2013 |
| Дата актуализации: | 01.01.2021 |
| Дата введения: | 05.09.1990 |
| Дата окончания срока действия: | 30.06.2003 |
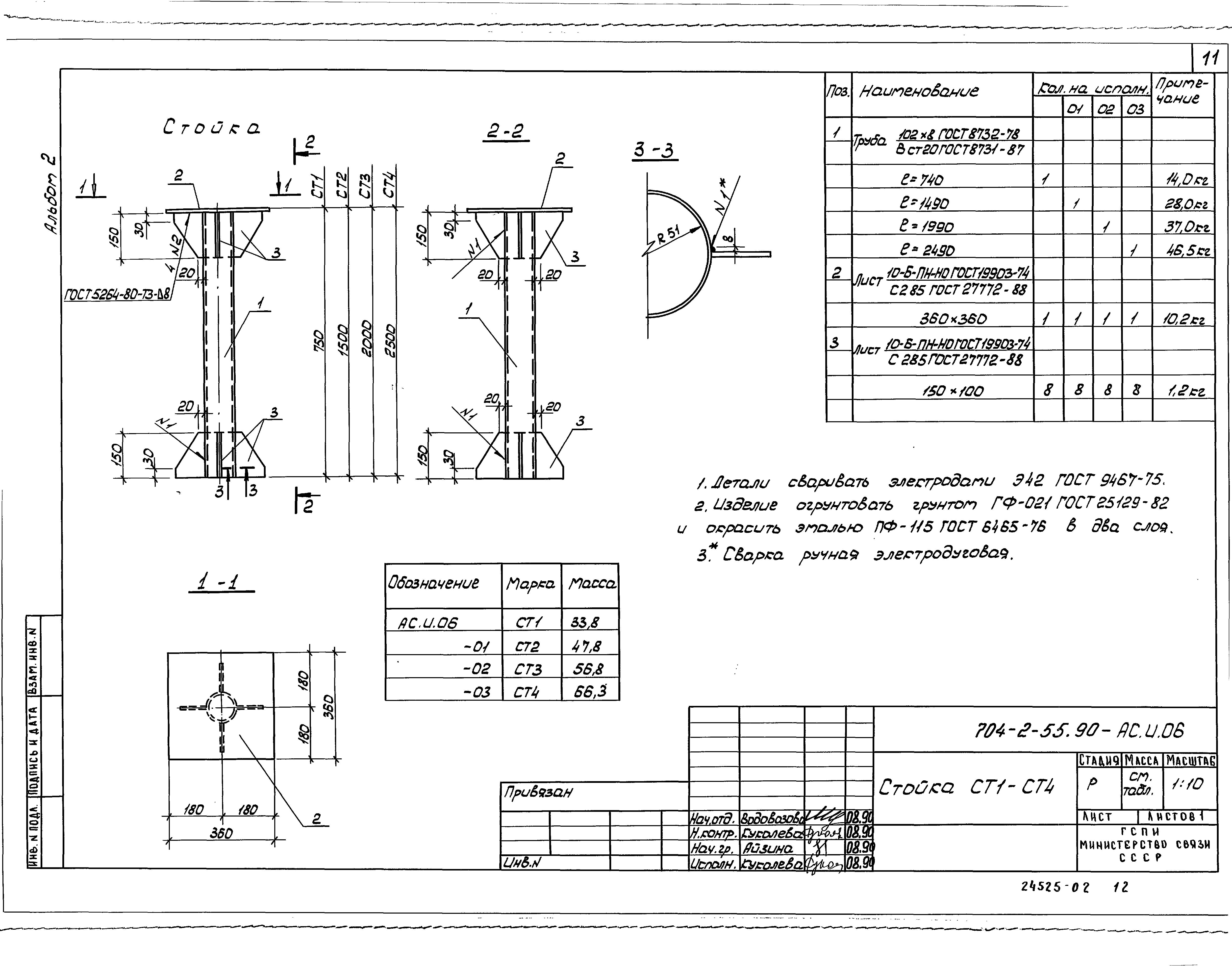
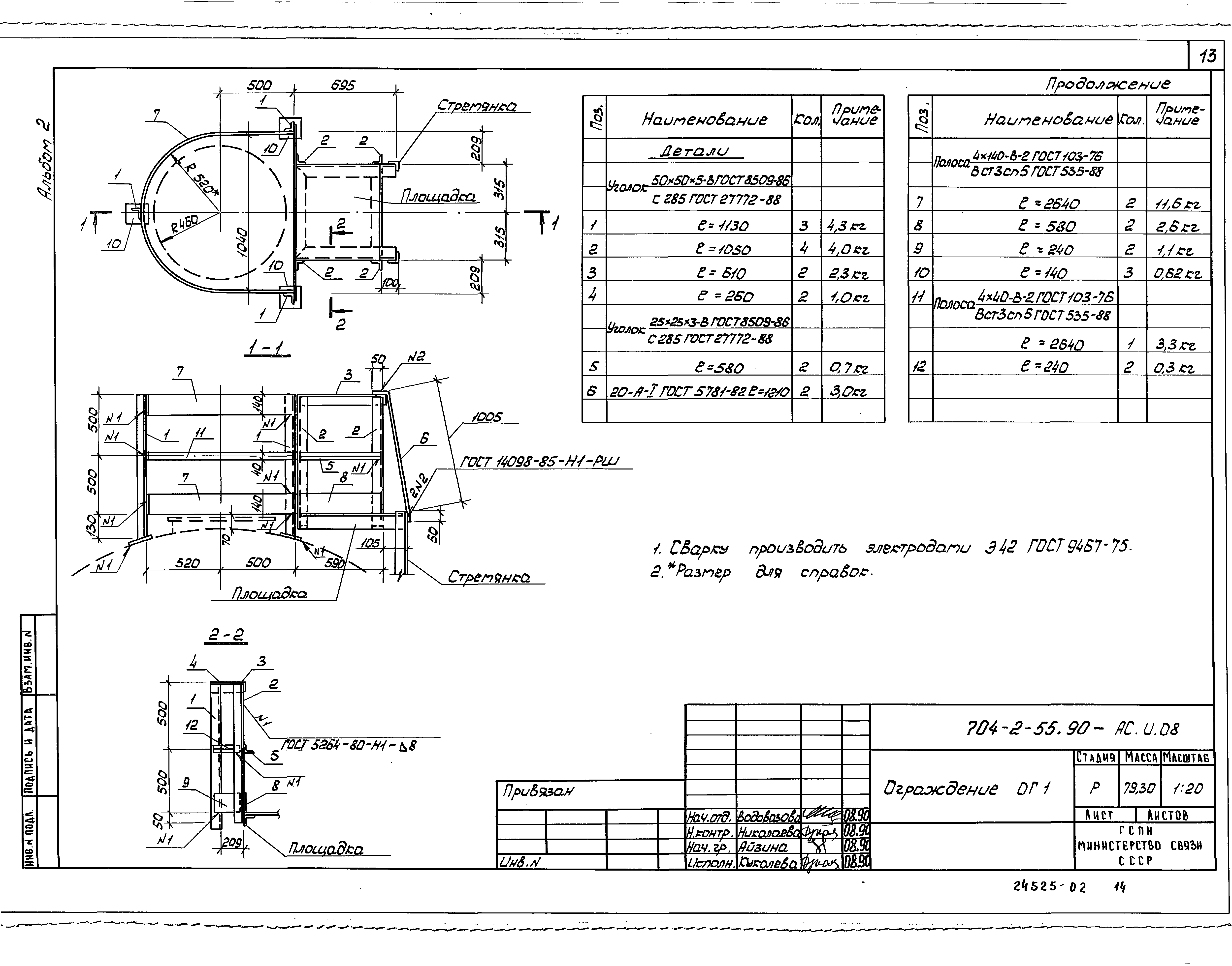
| Оглавление: | Содержание ТХ.И.01 Патрубок замерного люка ТХ.И.02 Патрубок раздаточный ТХ.И.03 Труба вентиляционная ТХ.И.04 Наконечник вентиляционный ТХ.И.01 Плита П-2,5Р ТХ.И.02 Сетка арматурная С1 ТХ.И.03 Изделие закладное МН1 ТХ.И.04 Балка Б1 ТХ.И.05 Тяга Т1 ТХ.И.06 Стойка СТ1-СТ4 ТХ.И.07 Площадка ПЛ1 ТХ.И.08 Ограждение ОГ-1 ТХ.И.09 Стремянка С4-С5 |
| Разработан: | ГСПИ Минсвязи СССР |
| Утверждён: | 02.08.1990 Министерство связи СССР |














