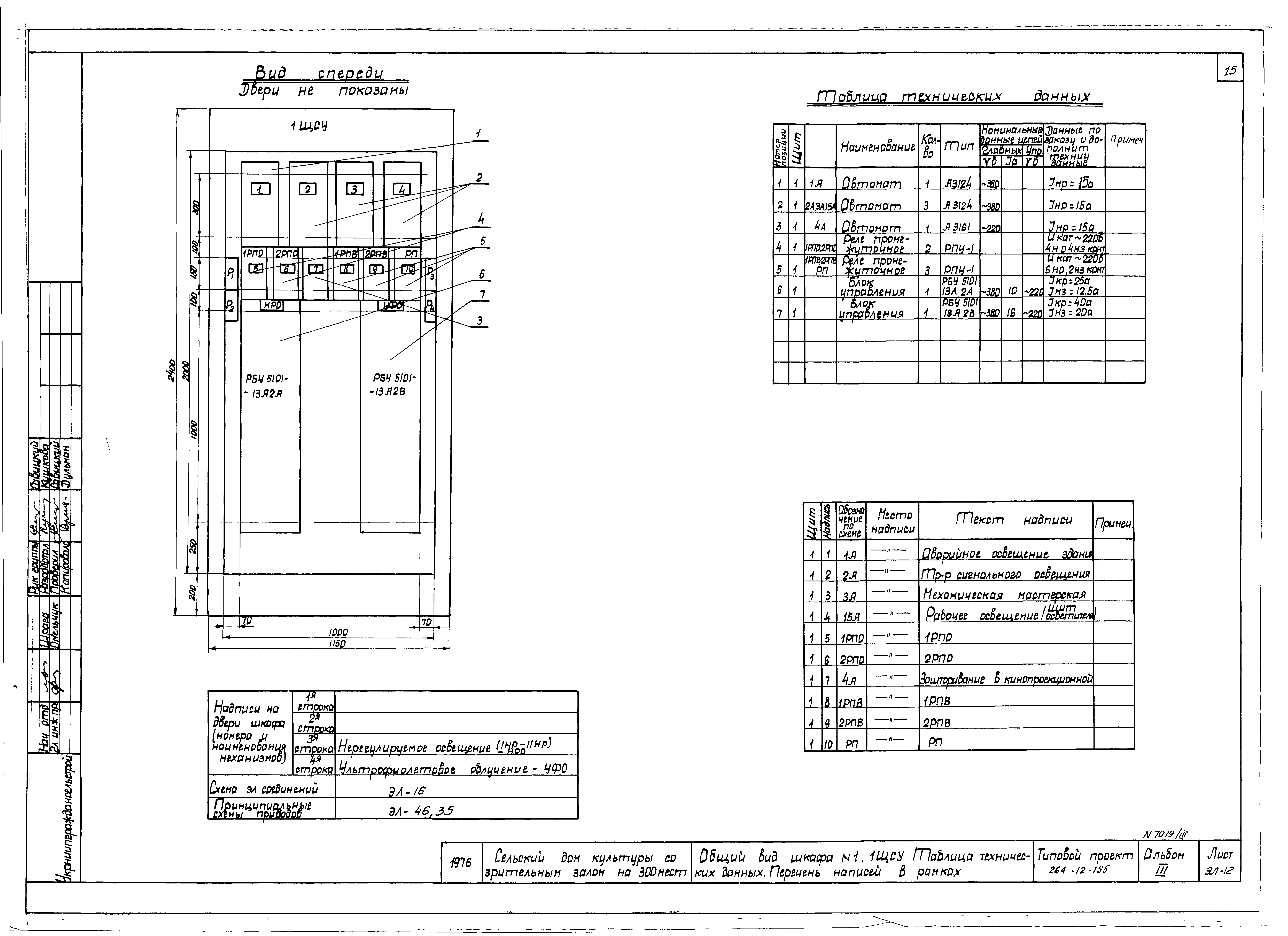
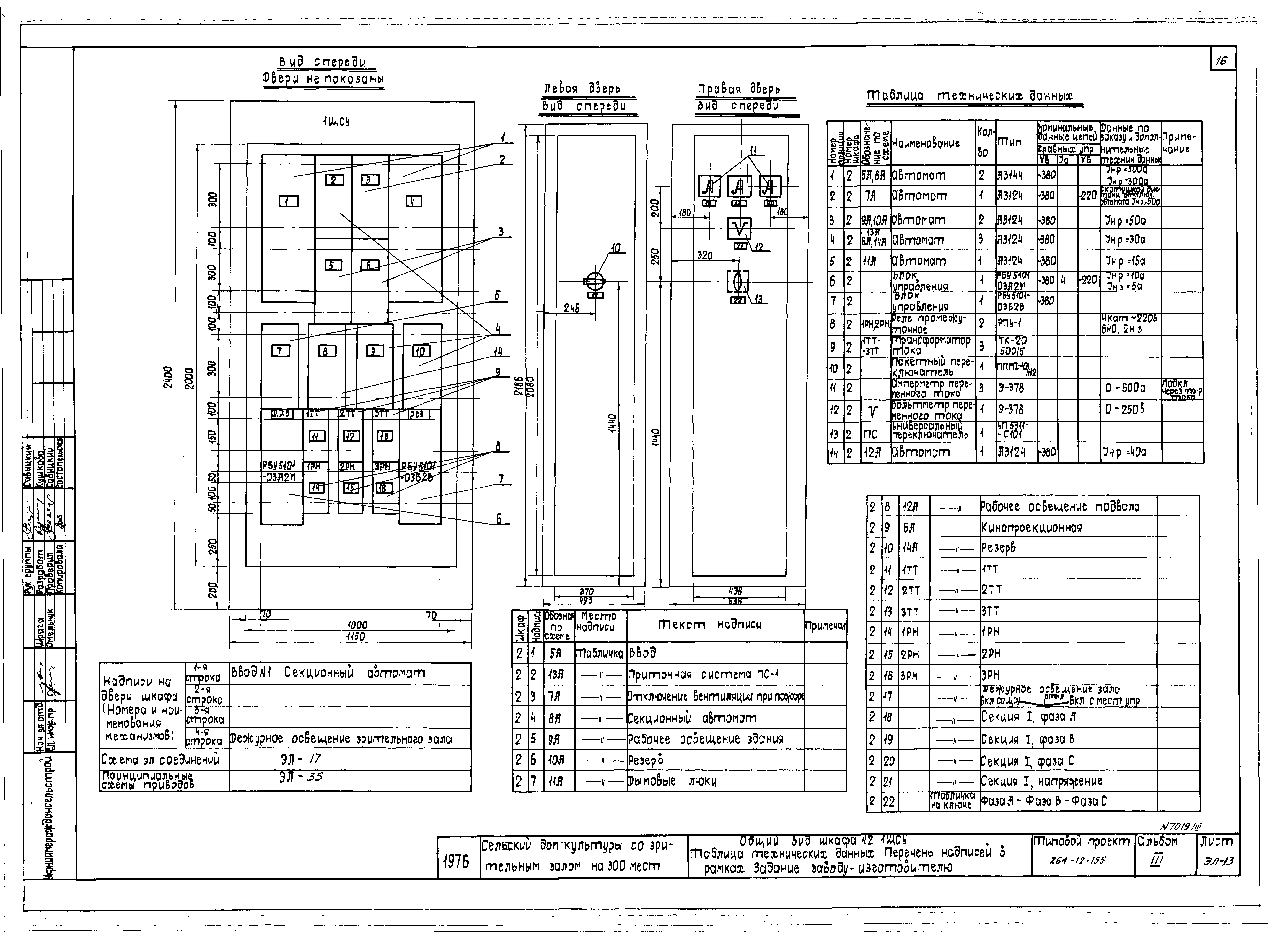
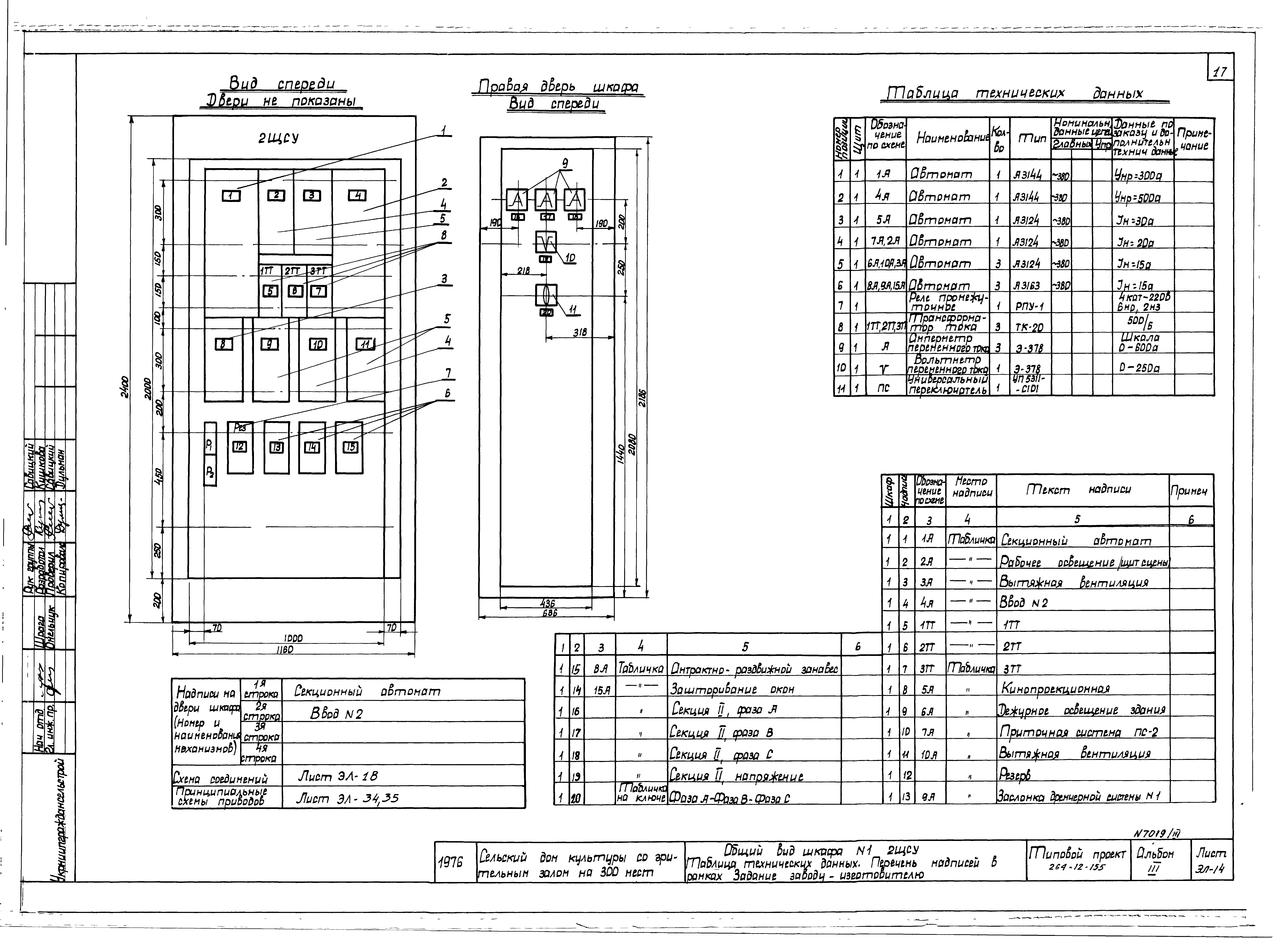
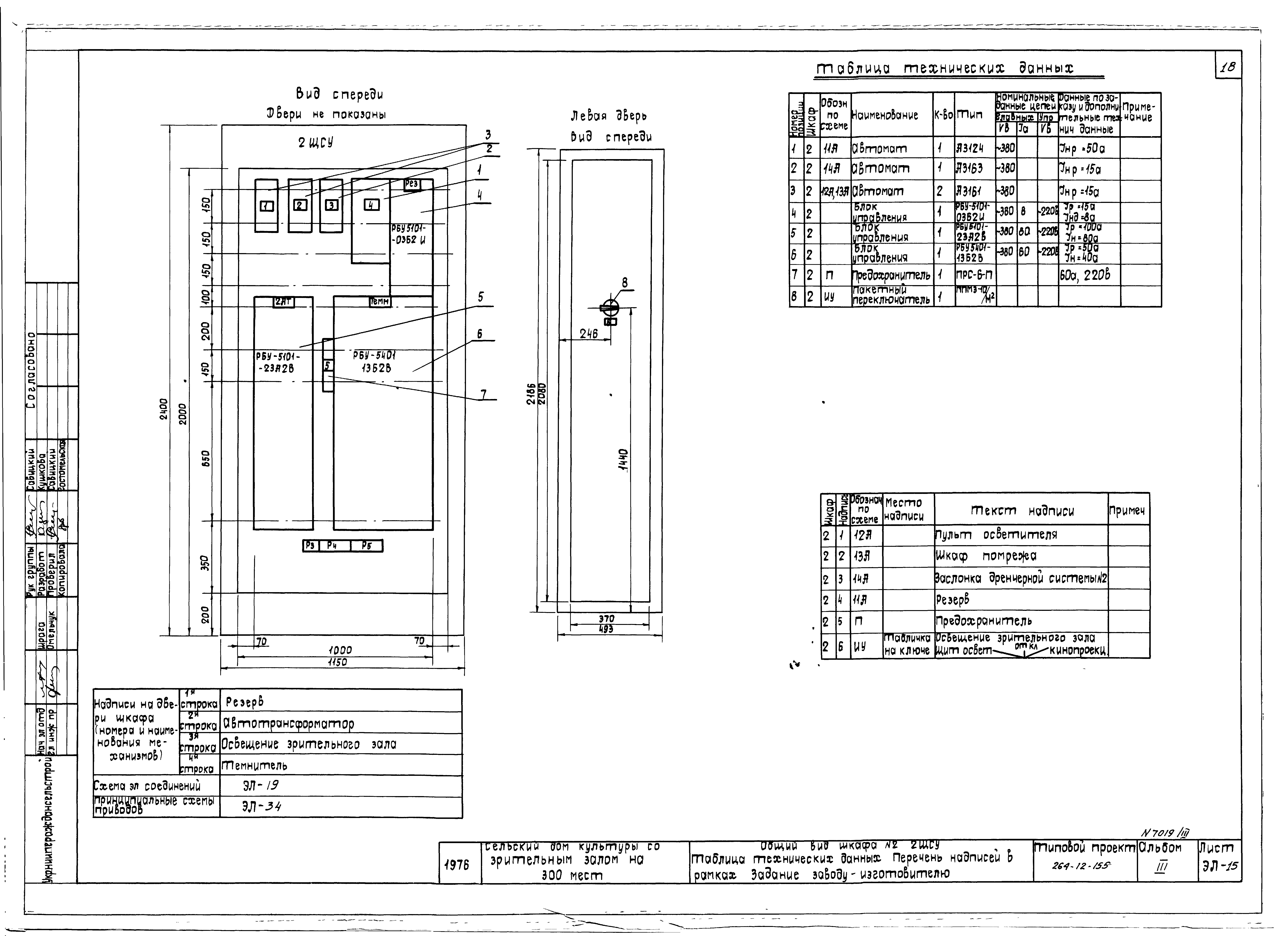
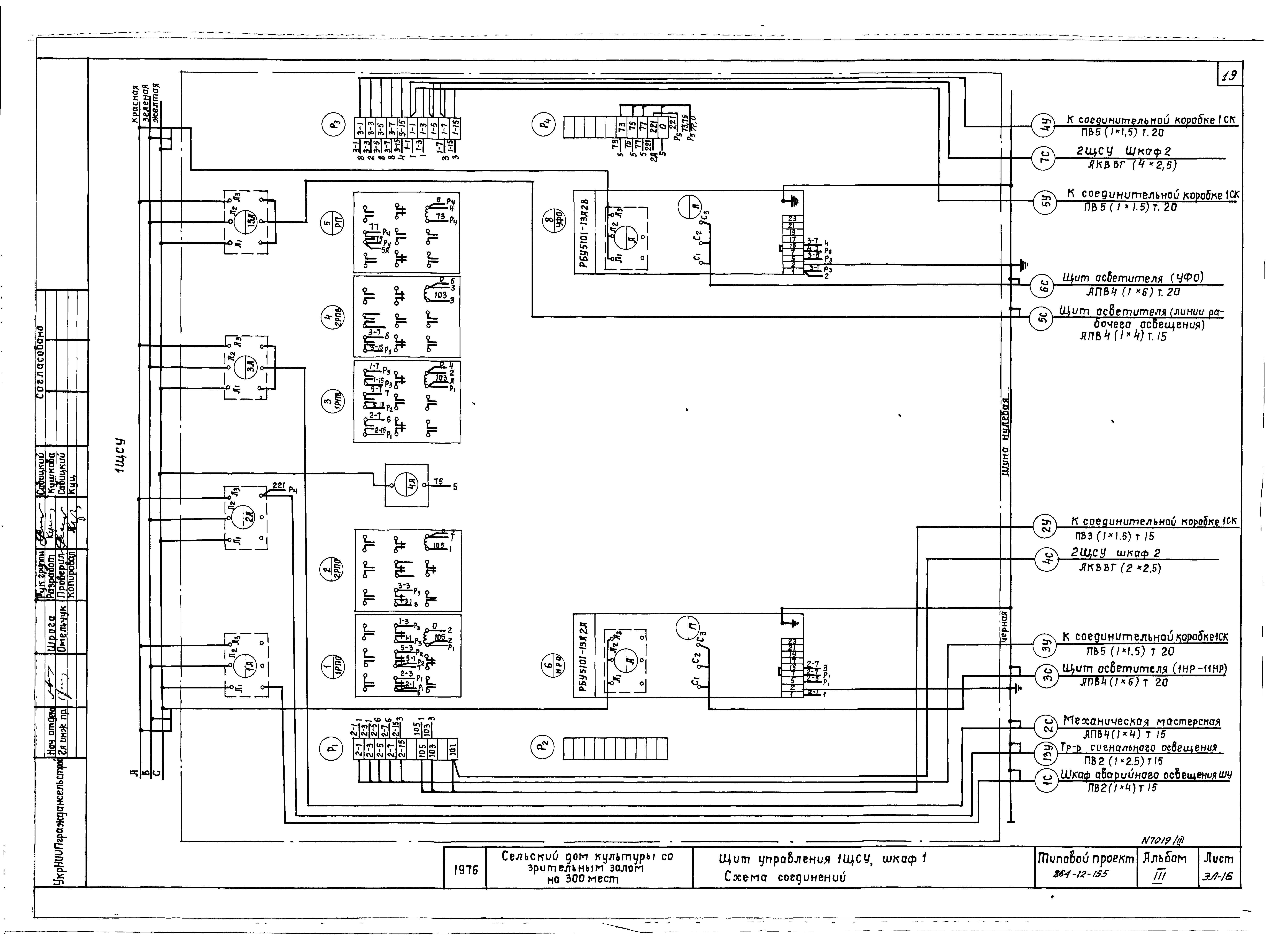
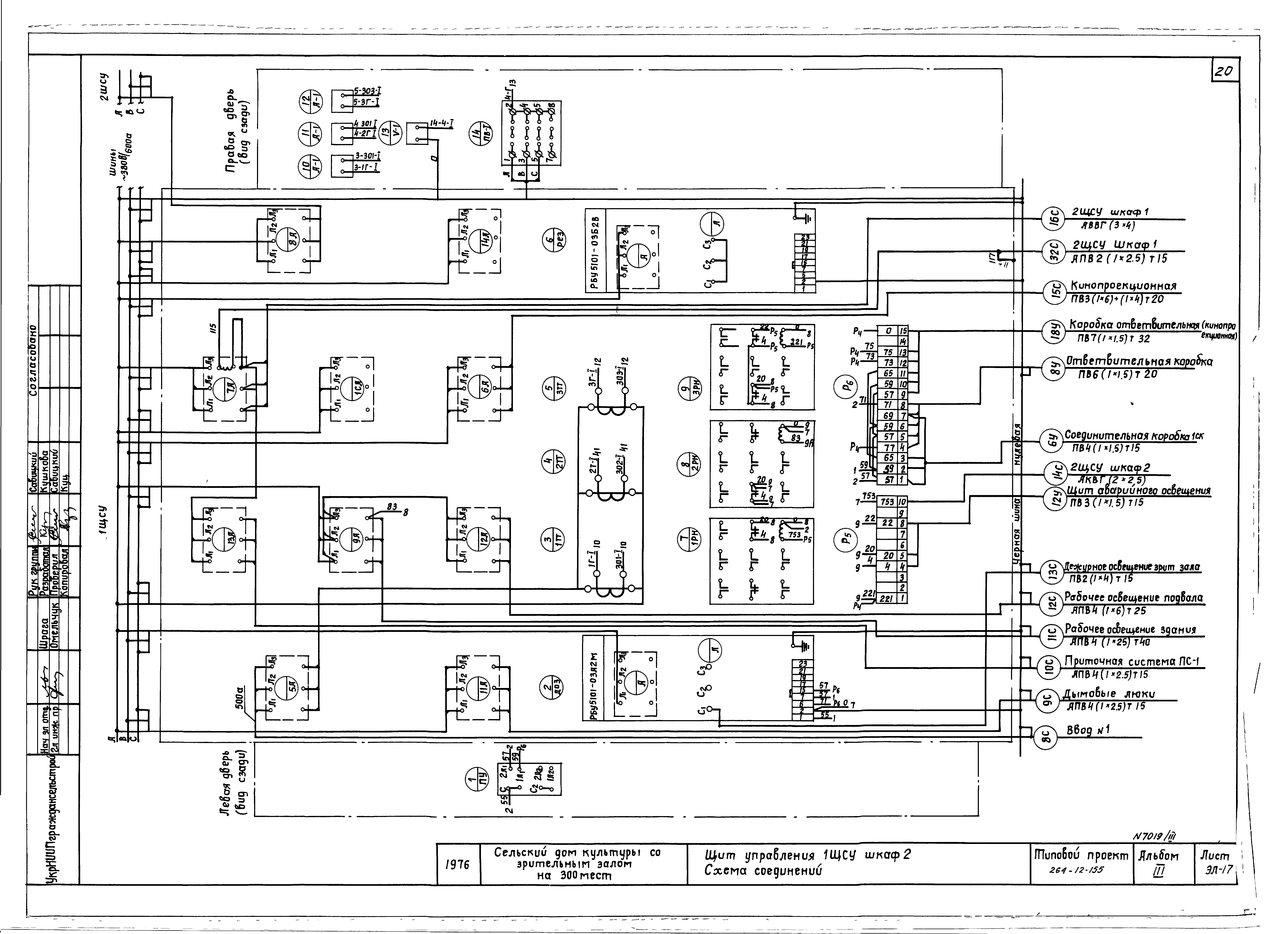
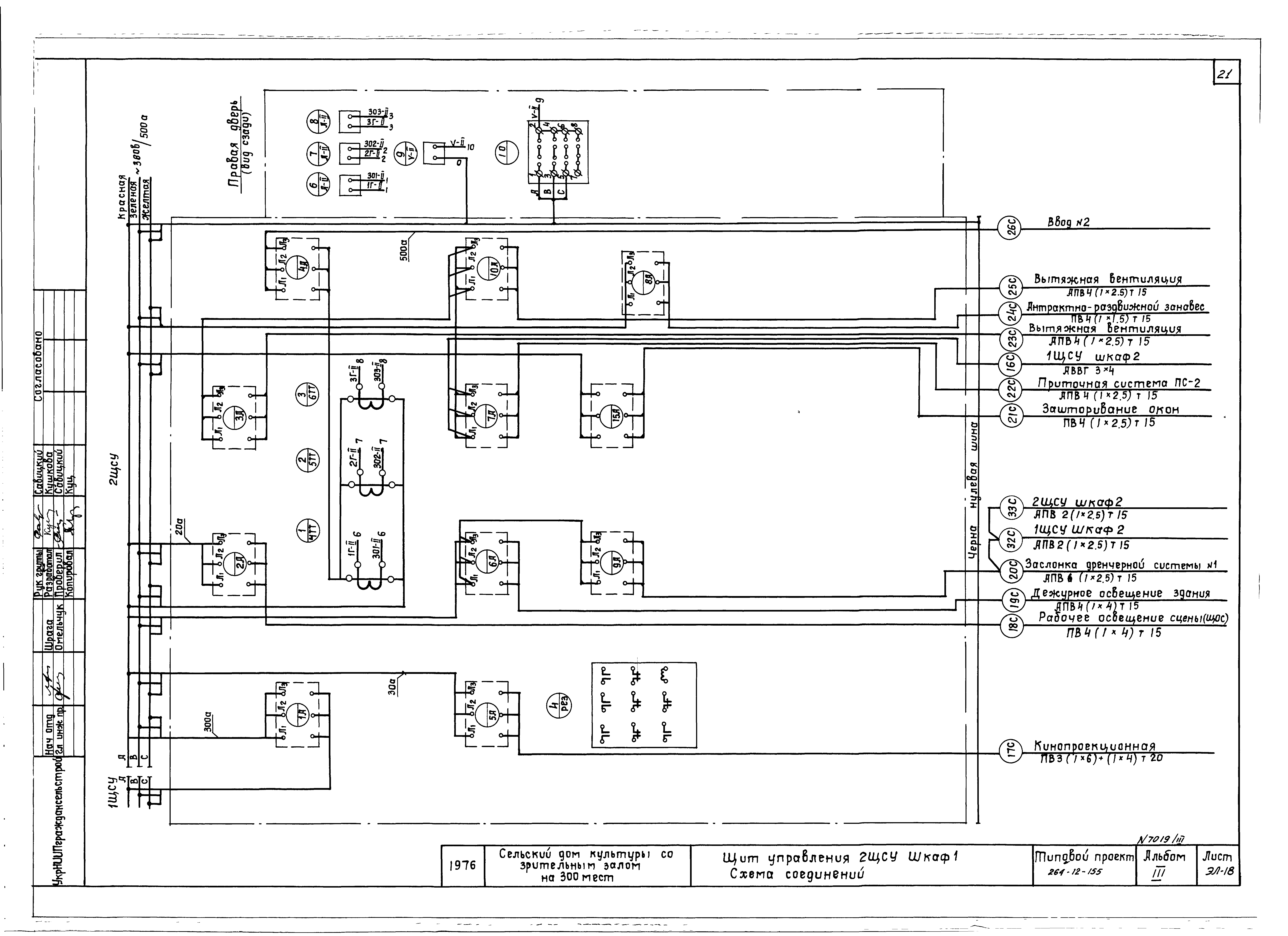
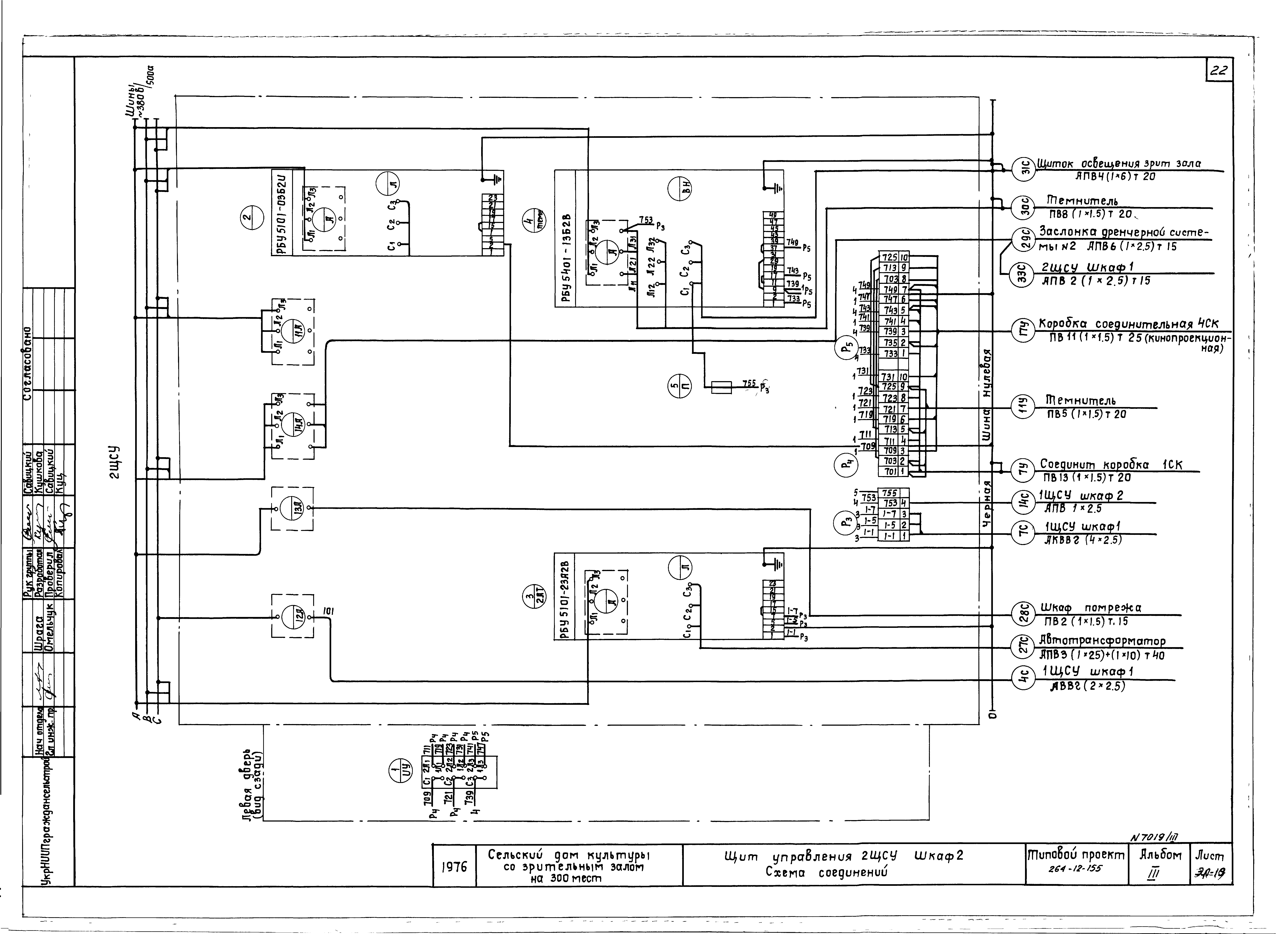
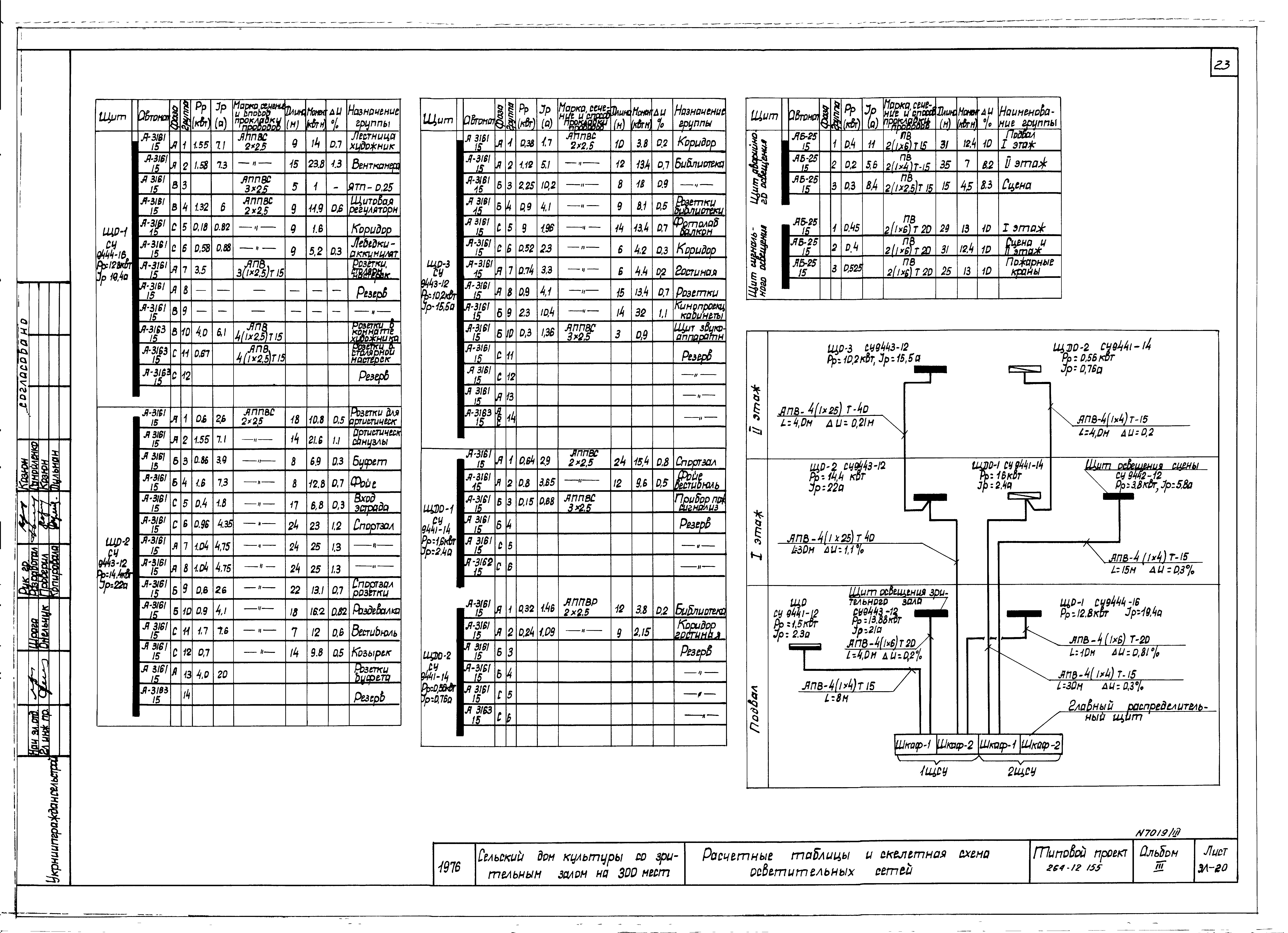
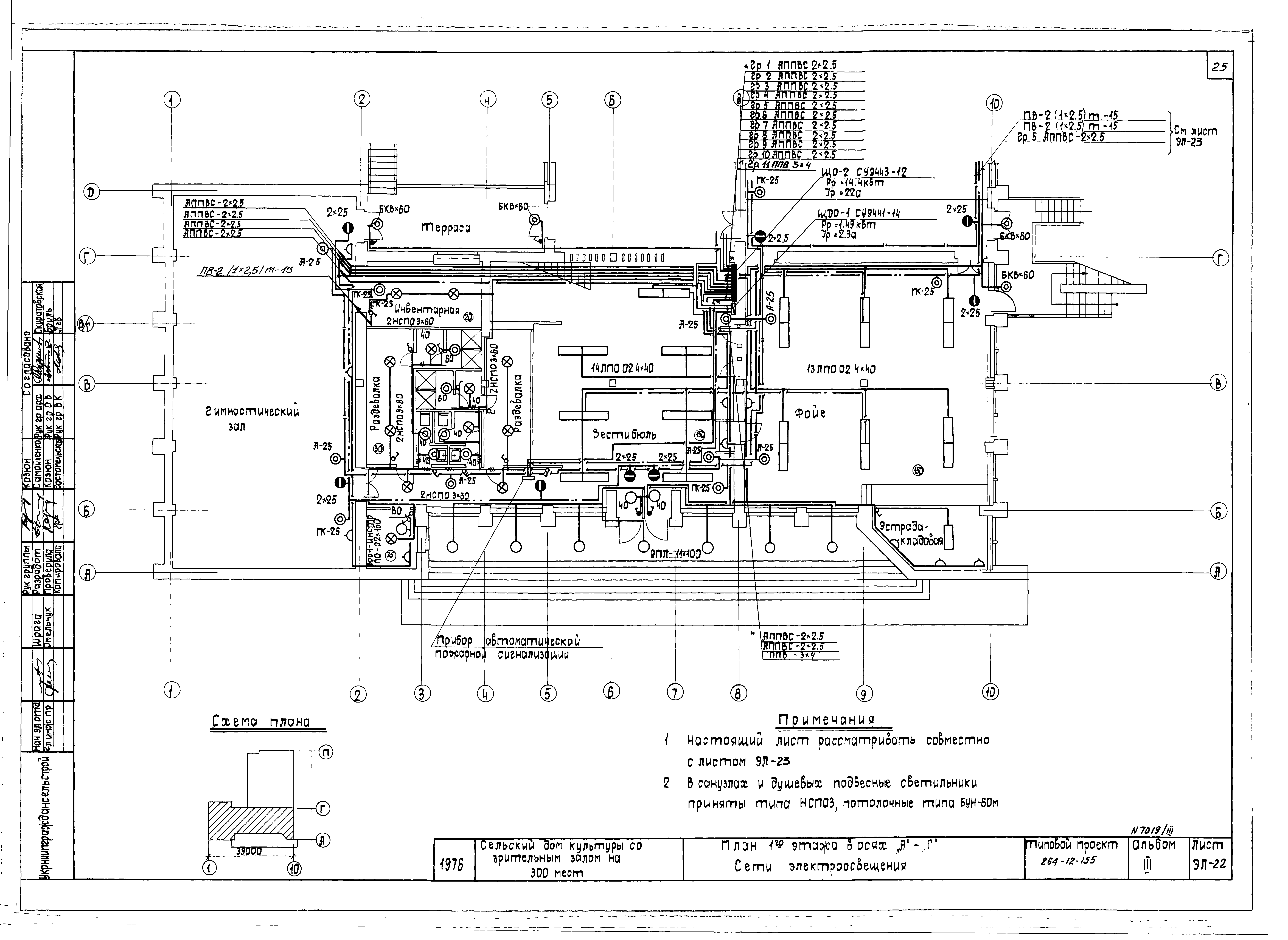
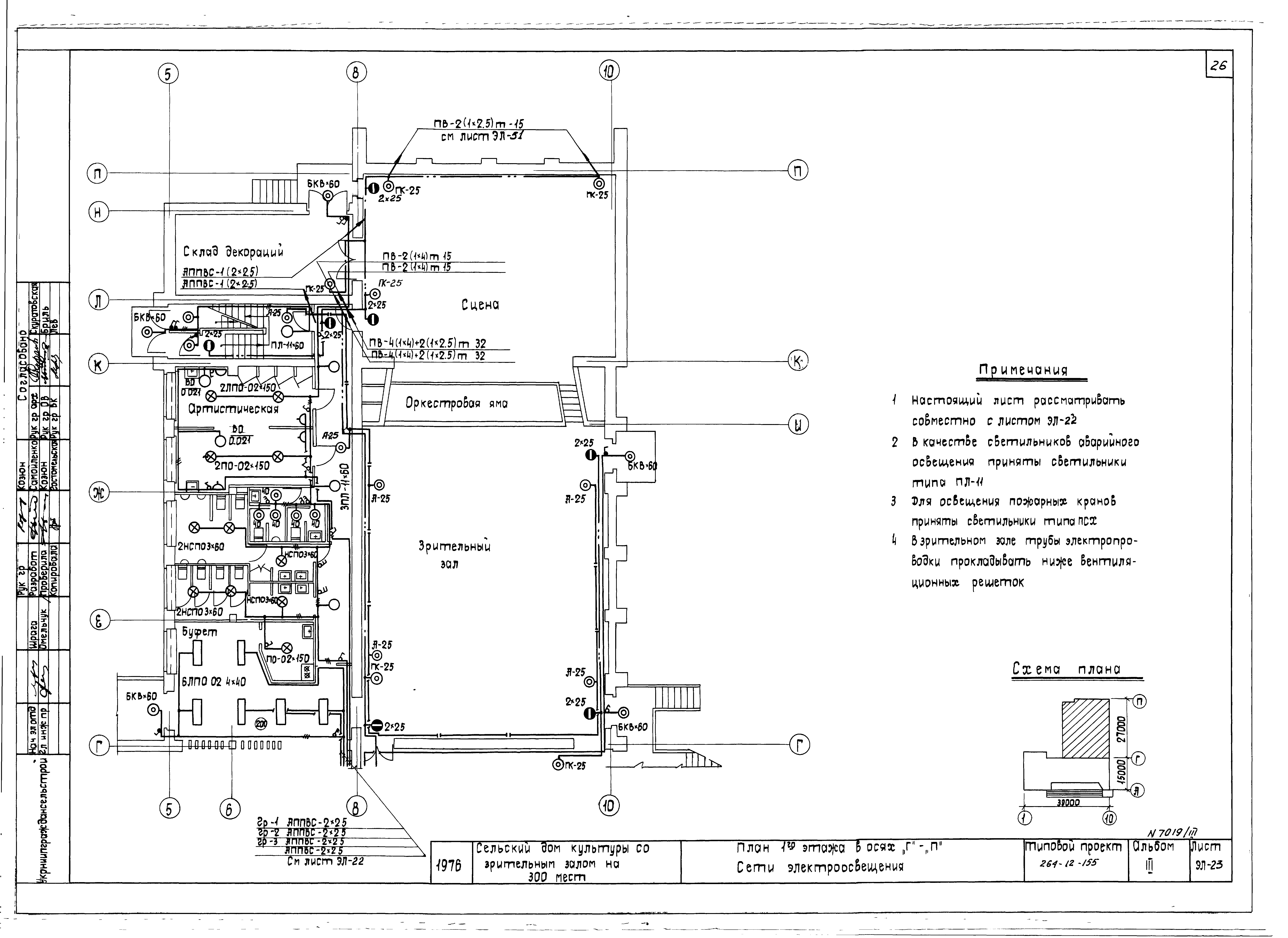
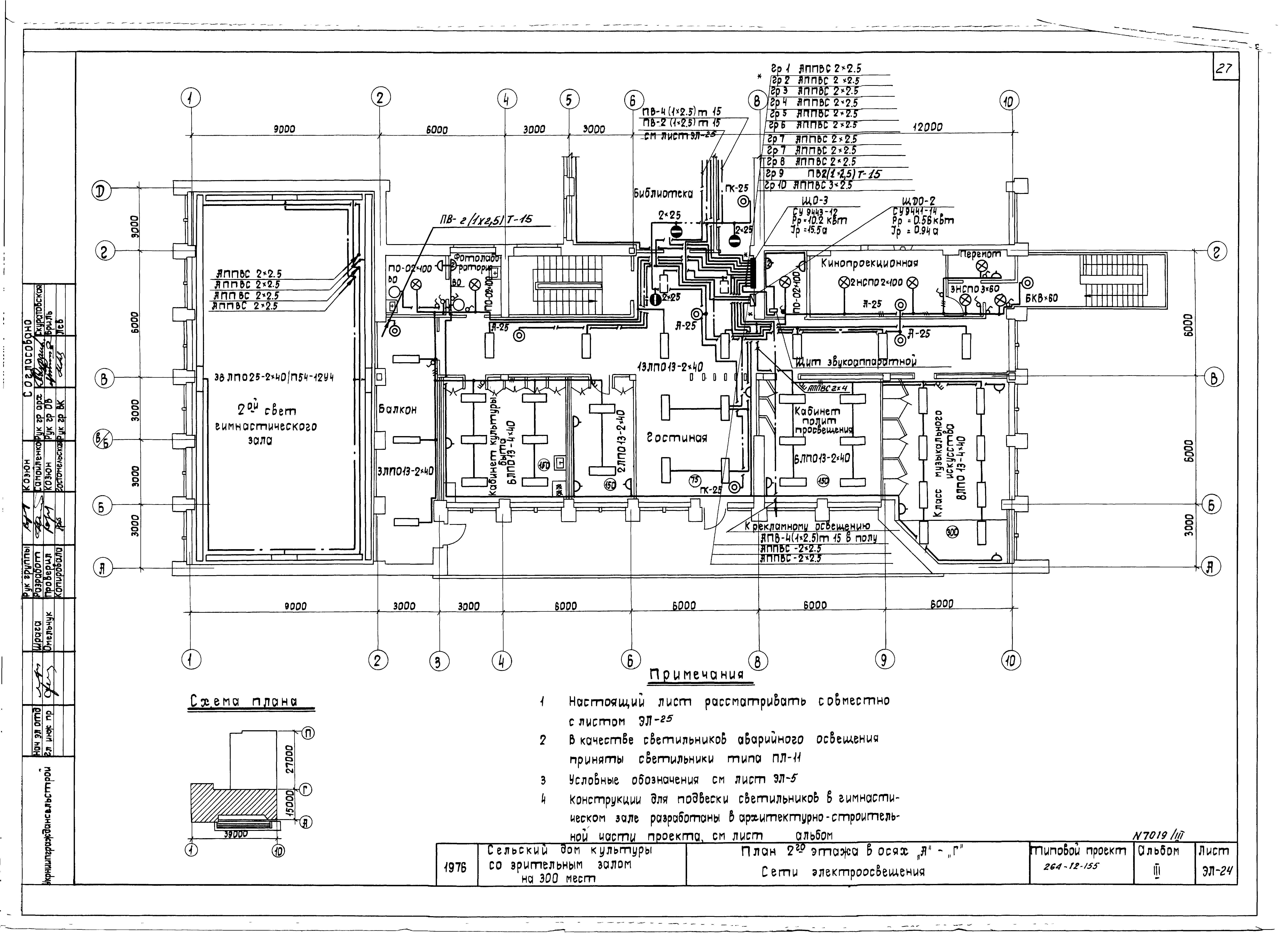
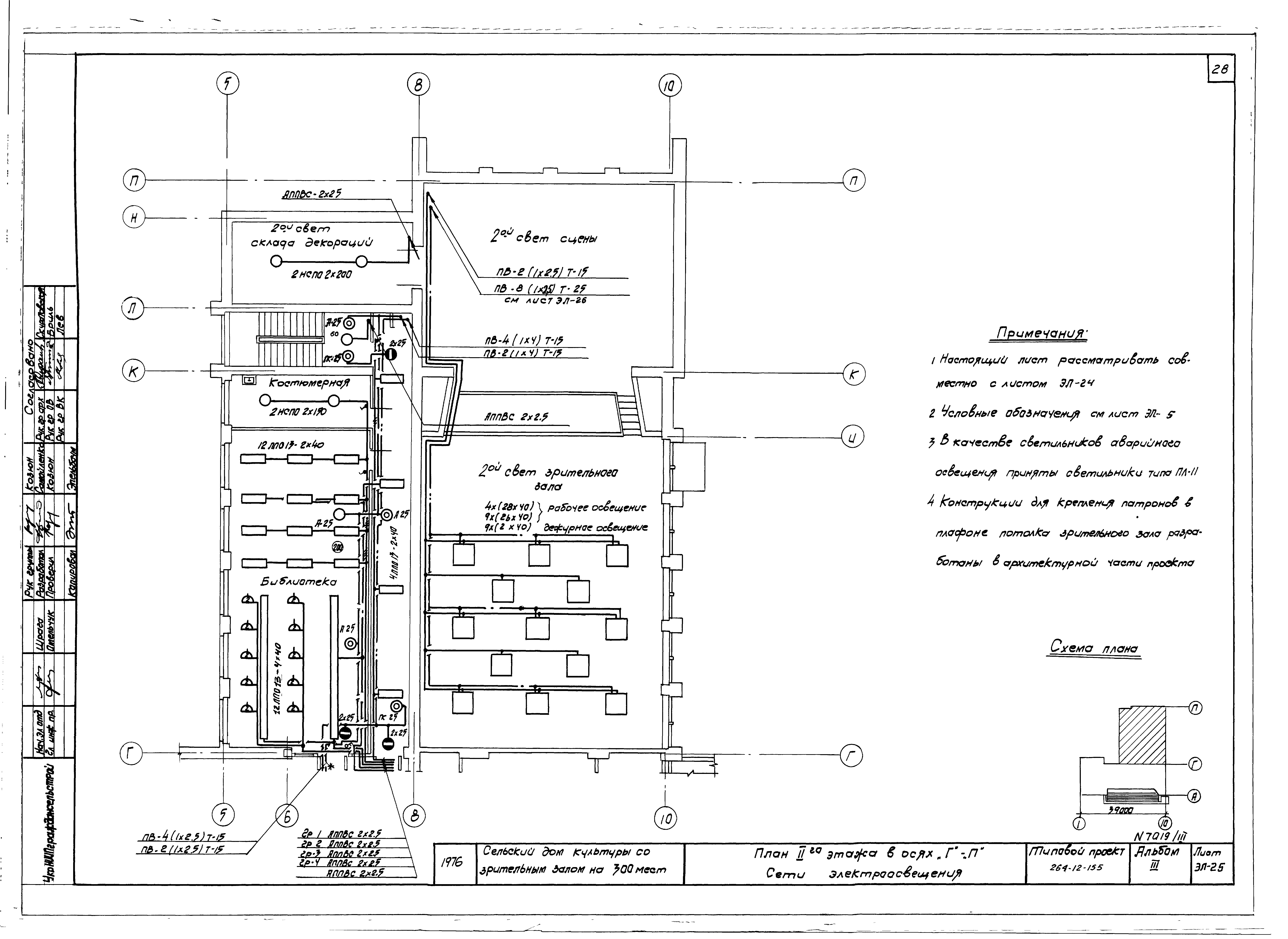
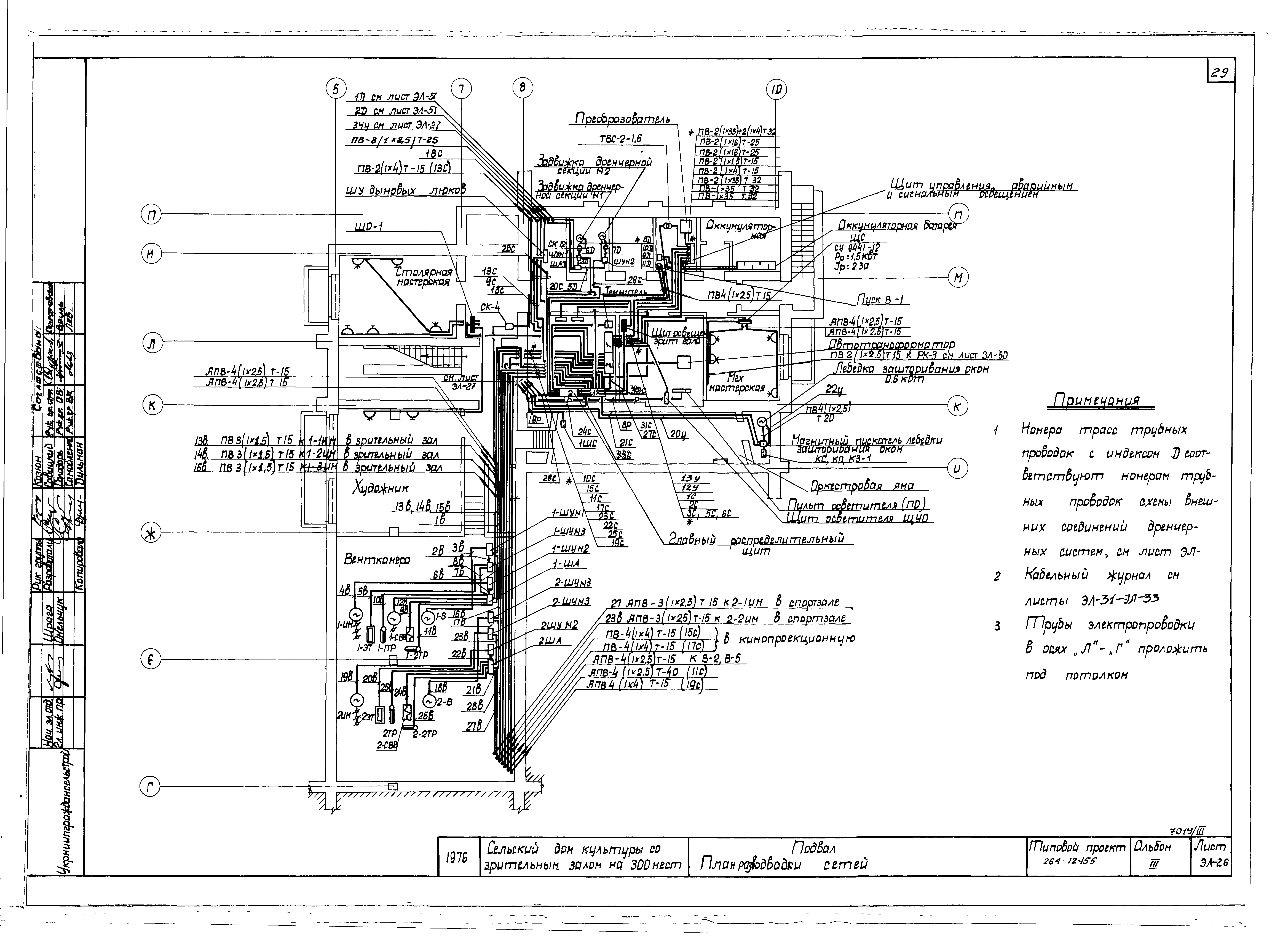
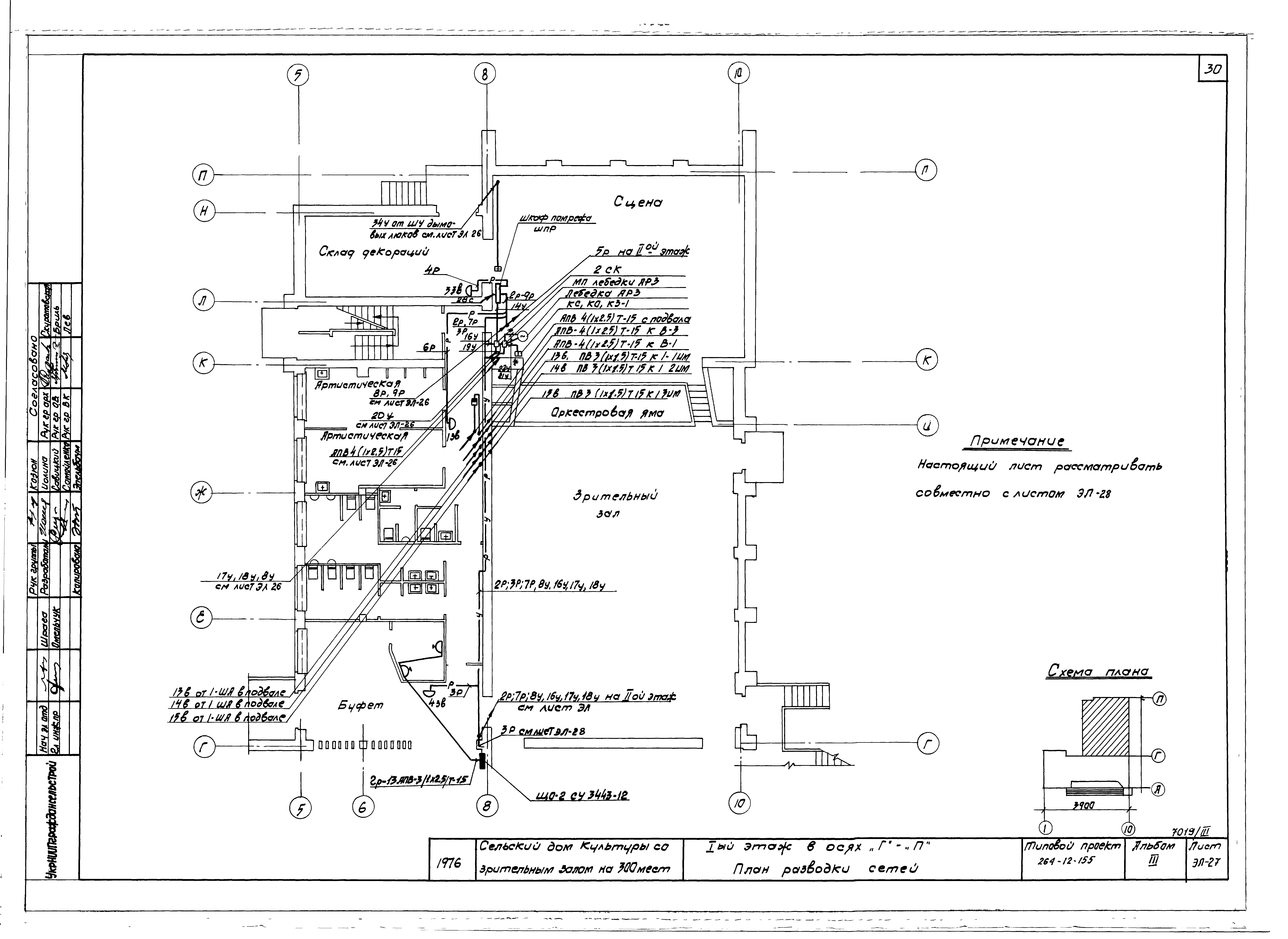
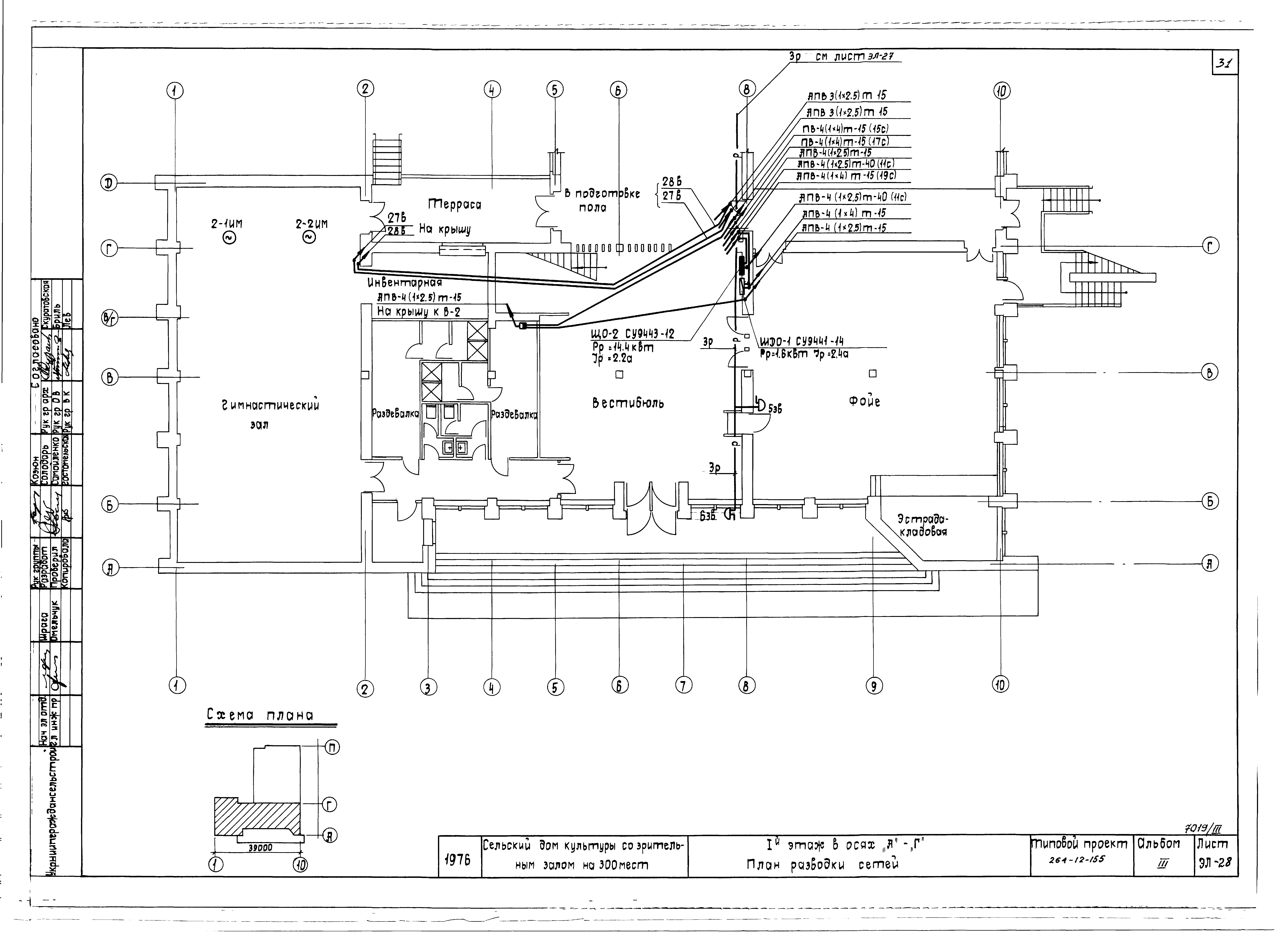
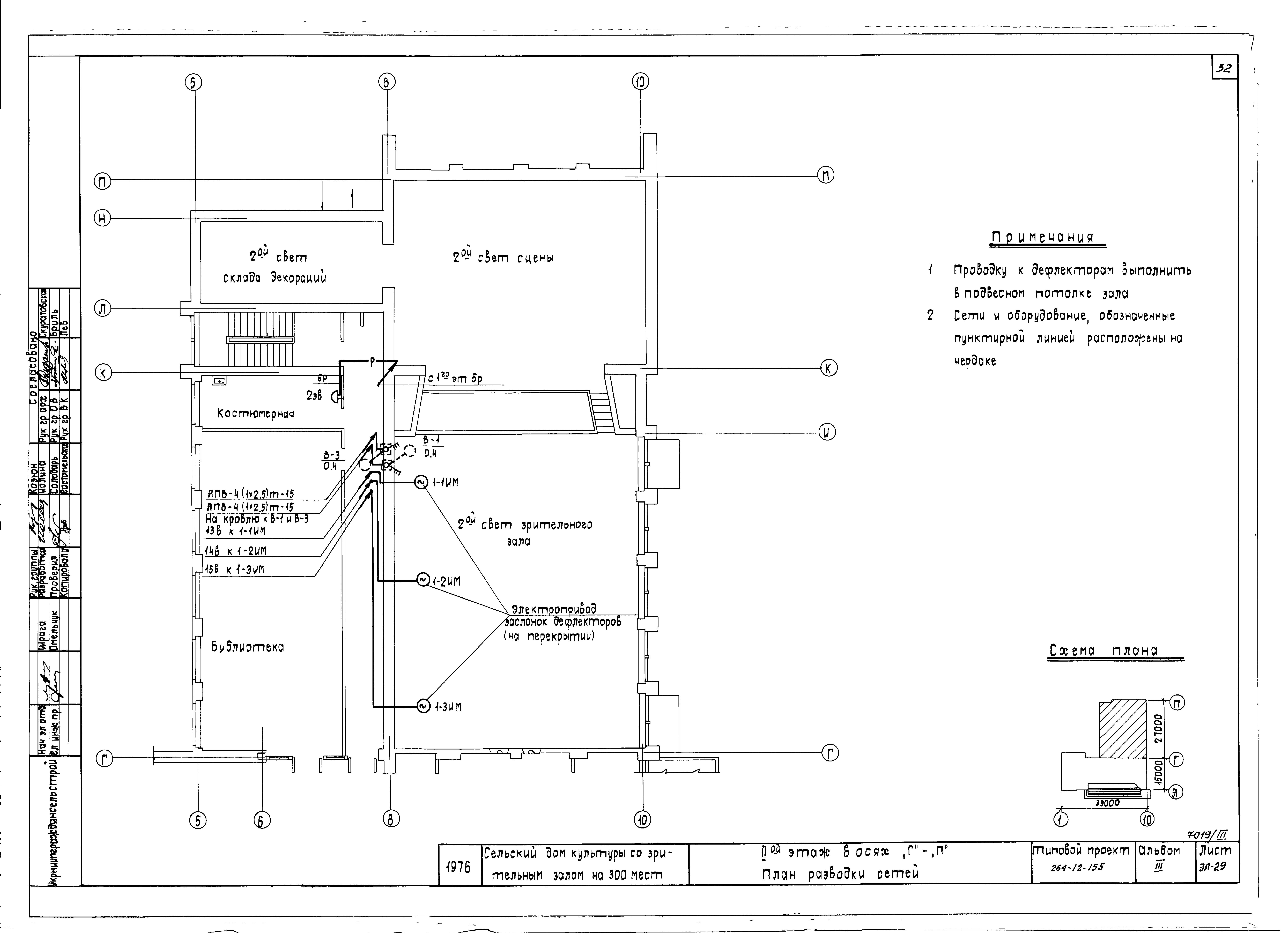
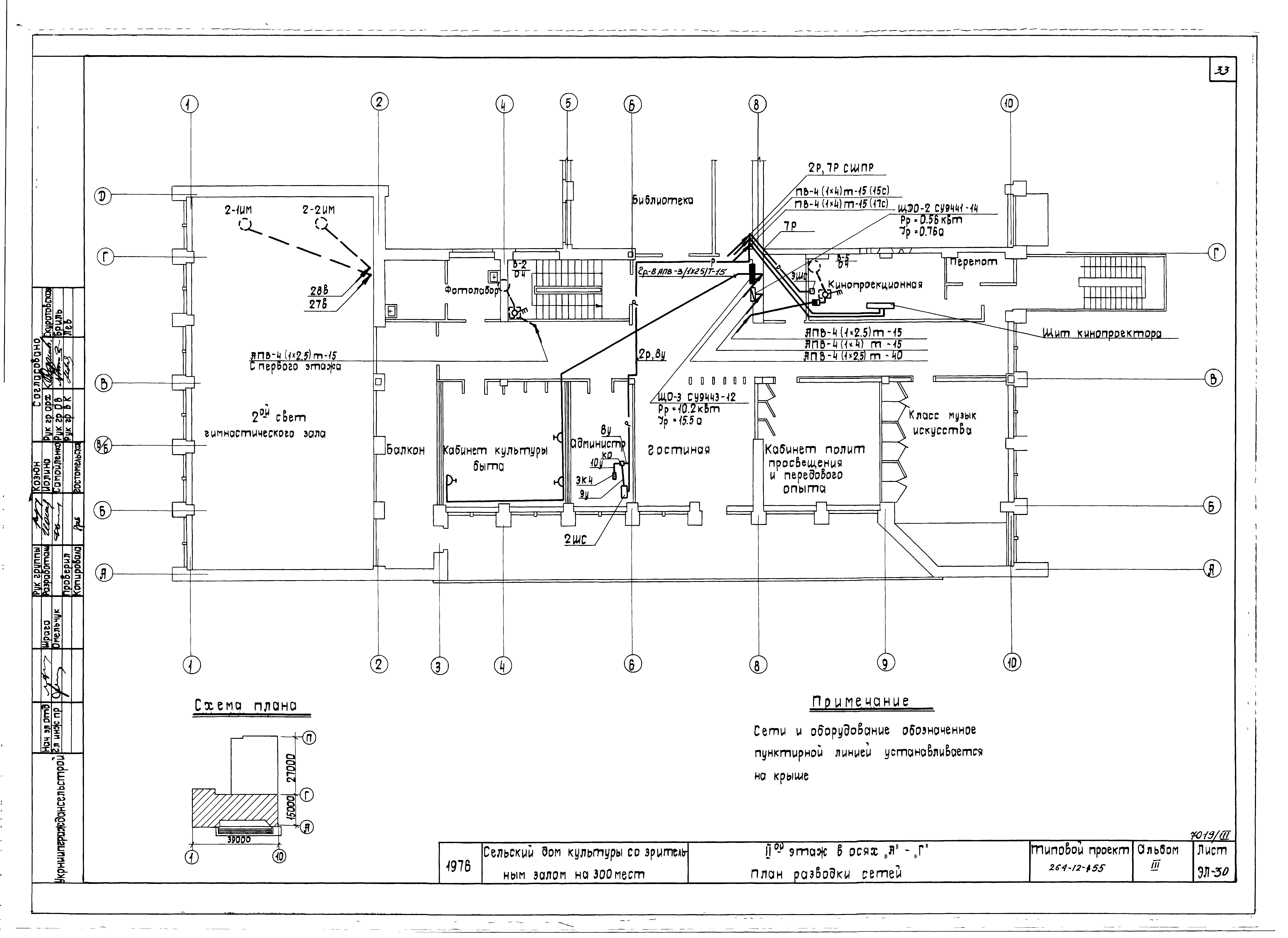
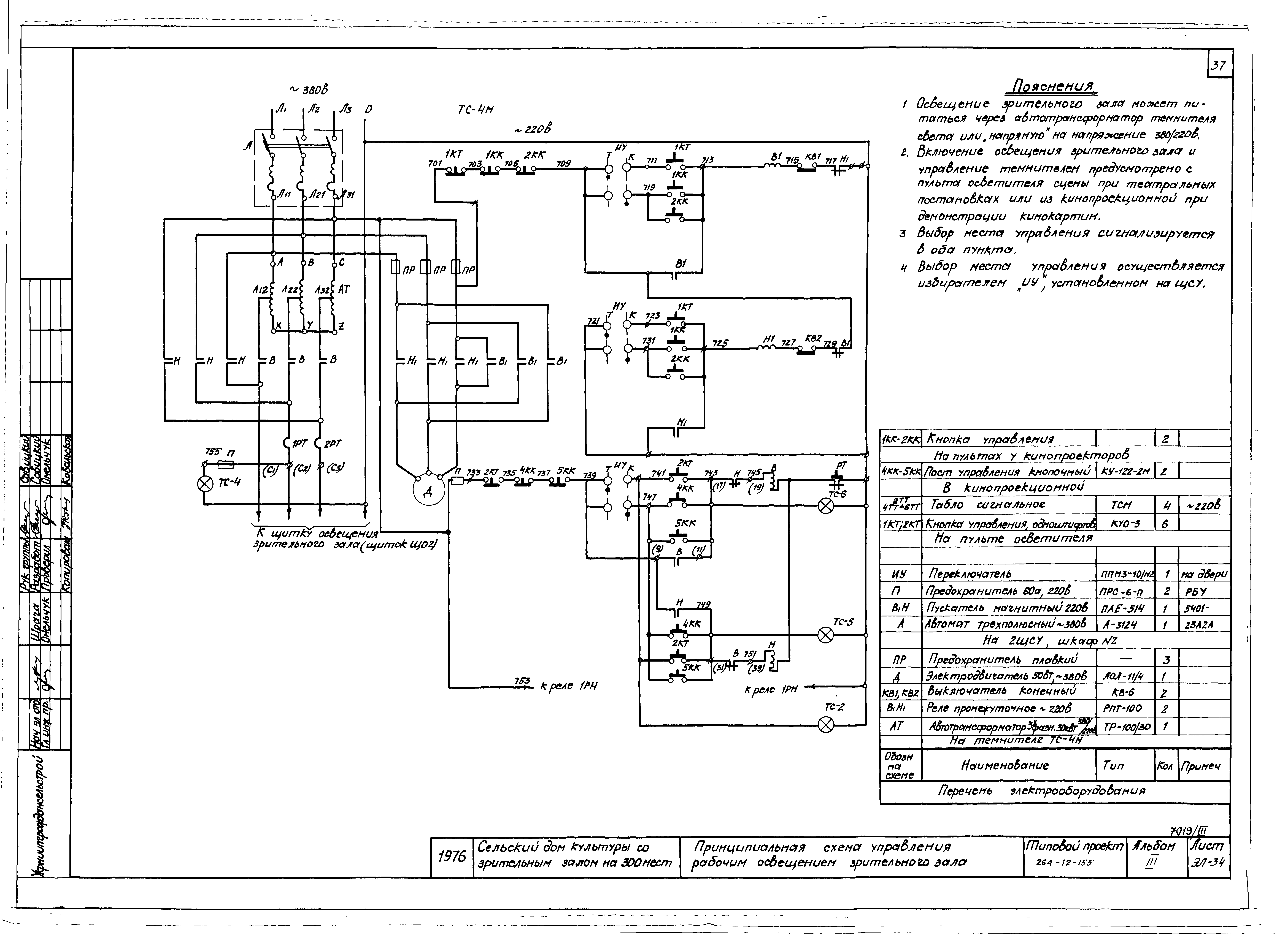
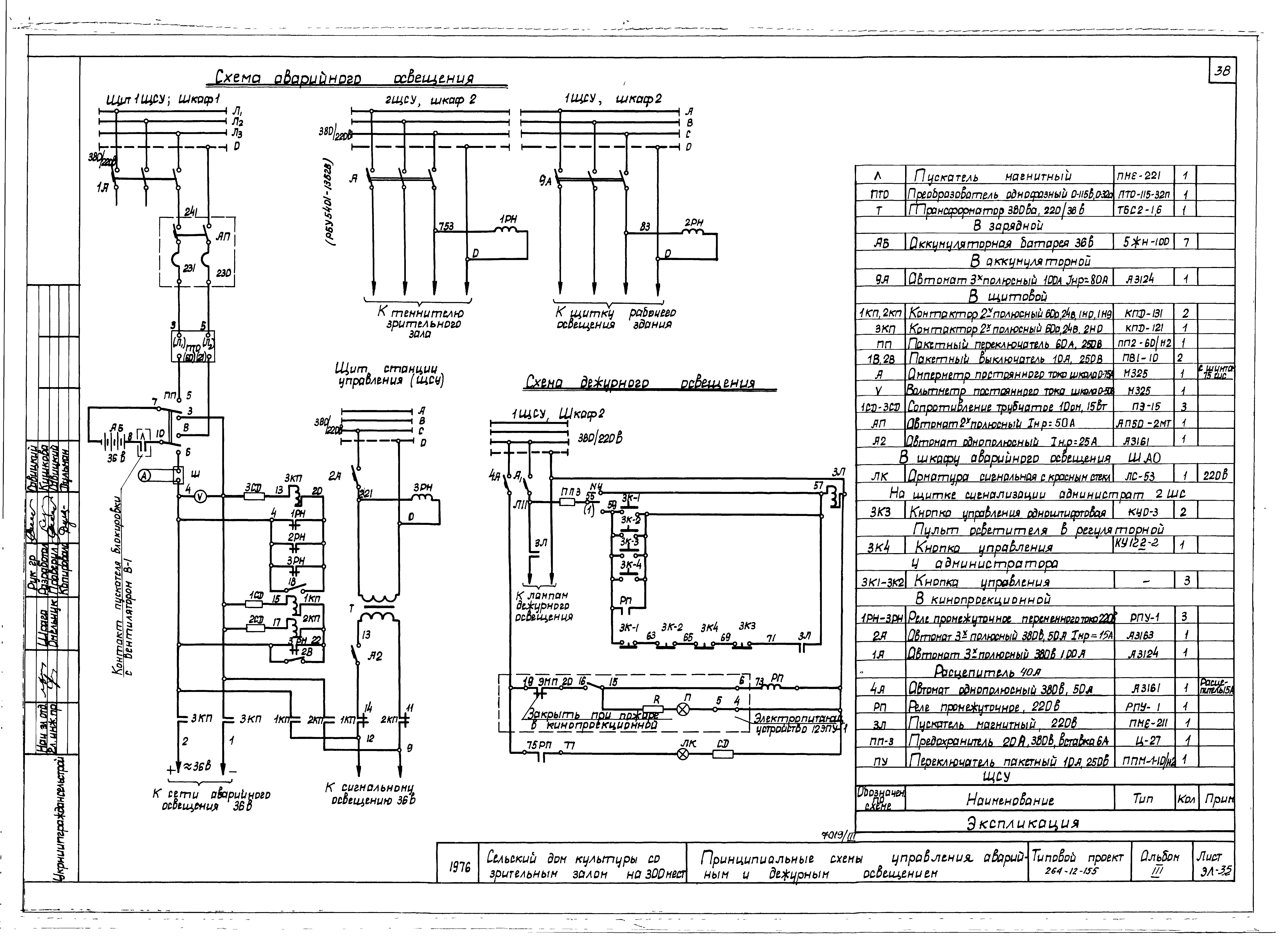
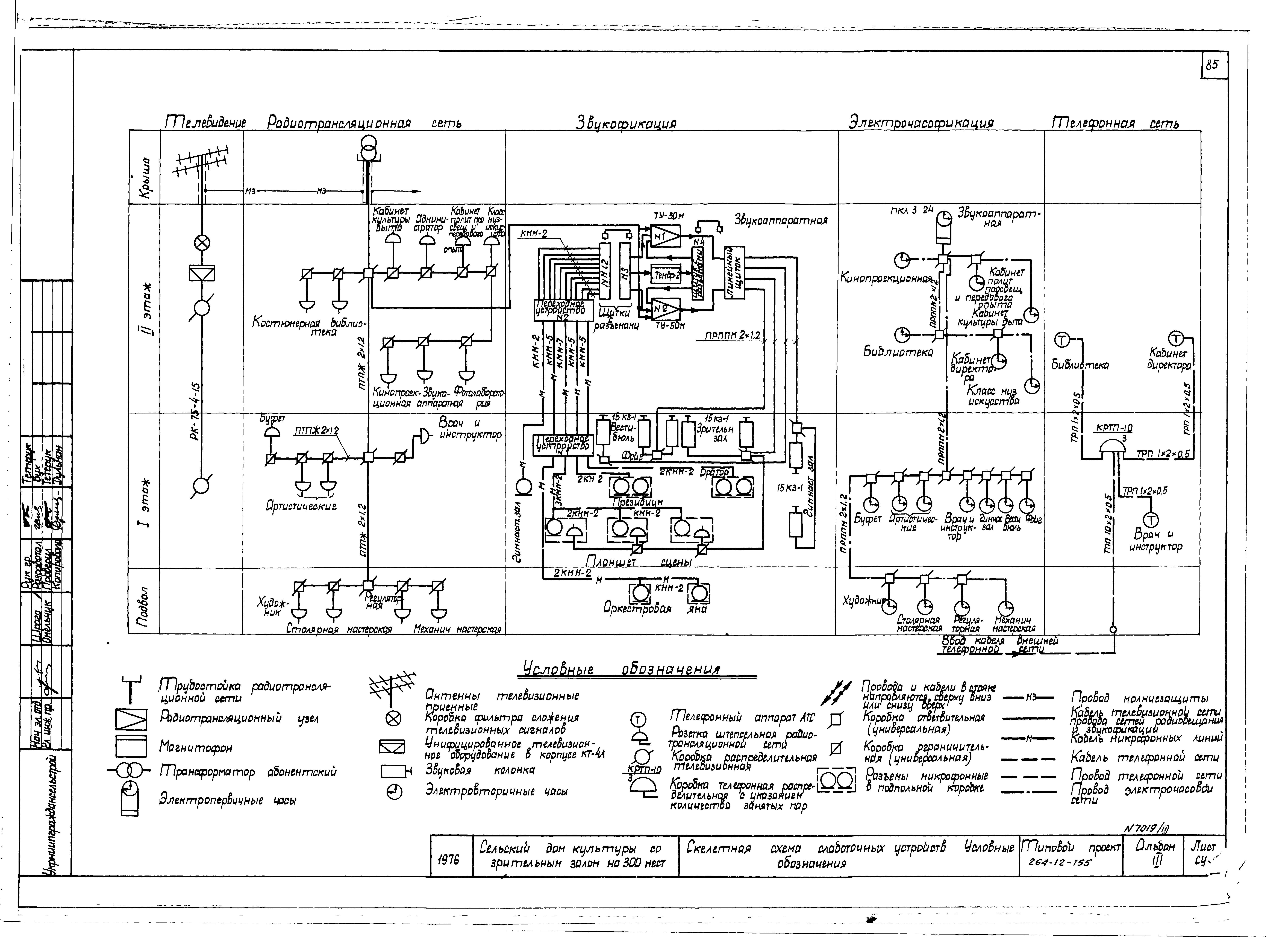
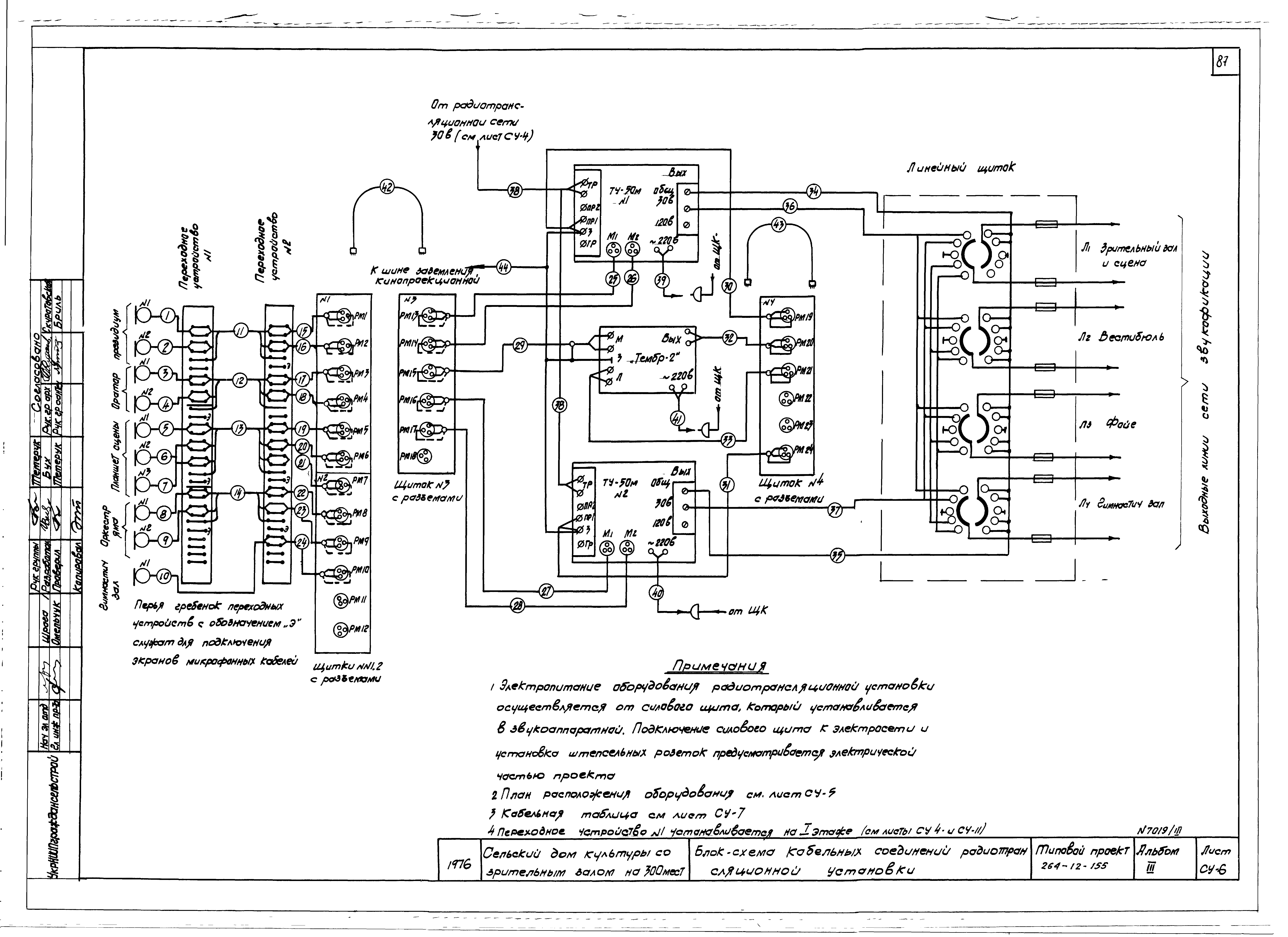
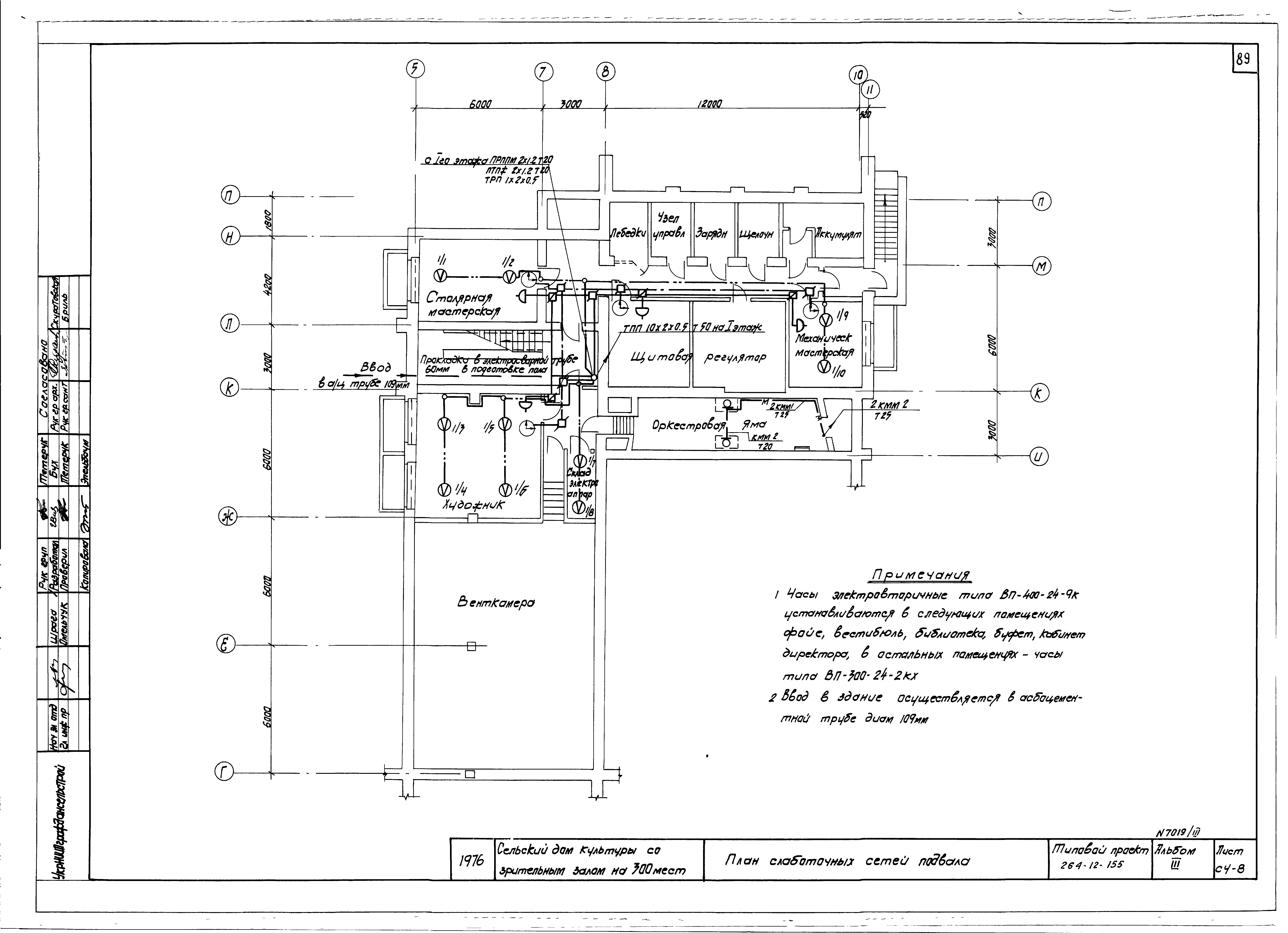
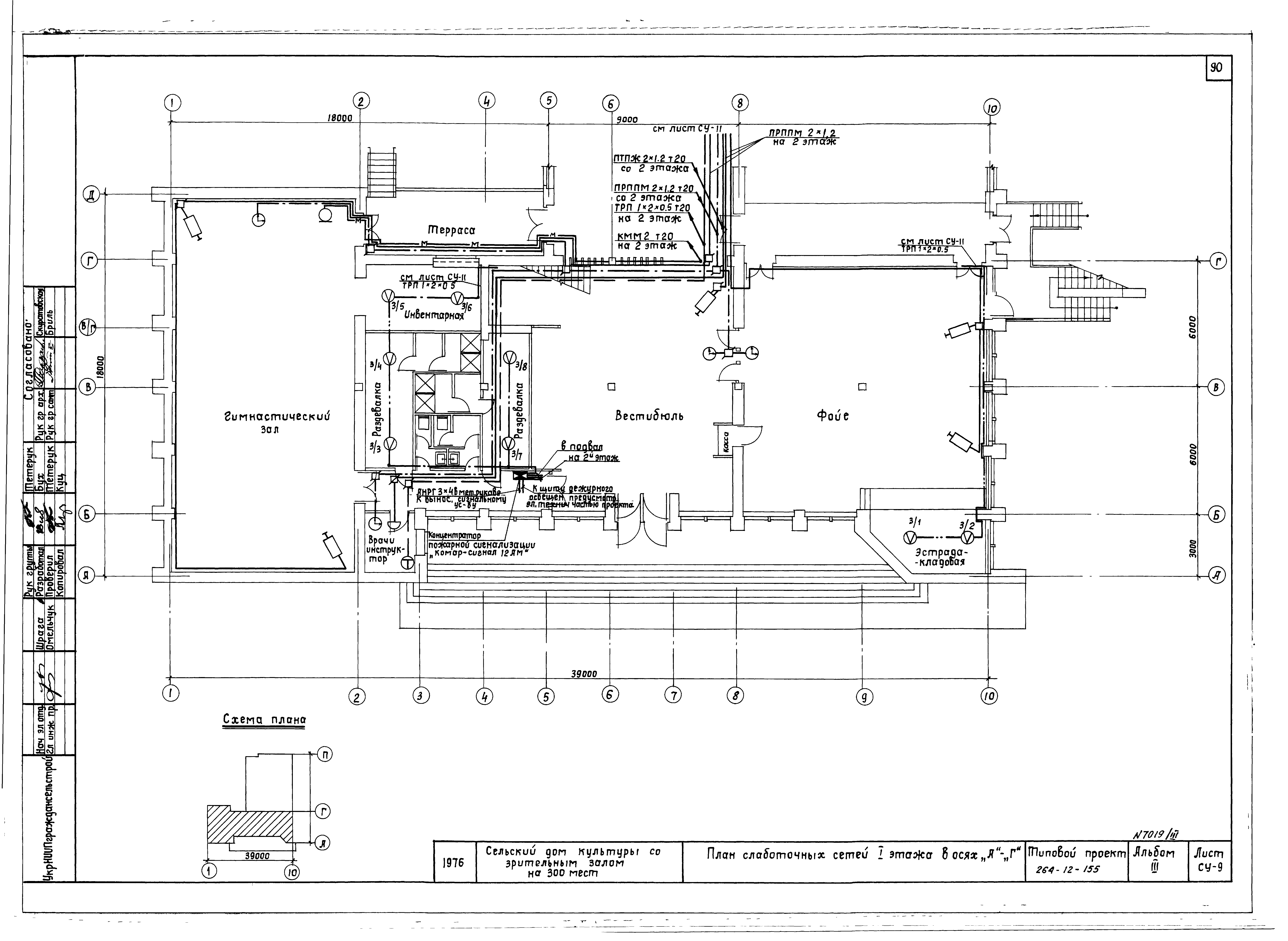
Скачать Типовой проект 264-12-155 Альбом III. Электротехнические чертежиДата актуализации: 01.01.2021 Типовой проект 264-12-155
Альбом III. Электротехнические чертежи| Обозначение: | Типовой проект 264-12-155 | | Обозначение англ: | 264-12-155 | | Статус: | не действует | | Название рус.: | Альбом III. Электротехнические чертежи | | Дата добавления в базу: | 01.09.2013 | | Дата актуализации: | 01.01.2021 | | Разработан: | УкрНИИПграждансельстроя
| | Утверждён: | 16.05.1977 Укрниипграждансельстрой (110)
| | Издан: | ЦИТП Госстроя СССР (CITP, Gosstroy (USSR) 1989 г. )
|
                                                                                                       
|