Скачать Типовой проект 904-1-70.86 Альбом 1. Технология производстваДата актуализации: 01.01.2021
|
| Обозначение: | Типовой проект 904-1-70.86 |
| Обозначение англ: | 904-1-70.86 |
| Статус: | действует |
| Название рус.: | Альбом 1. Технология производства |
| Дата добавления в базу: | 01.09.2013 |
| Дата актуализации: | 01.01.2021 |
| Дата введения: | 14.11.1986 |
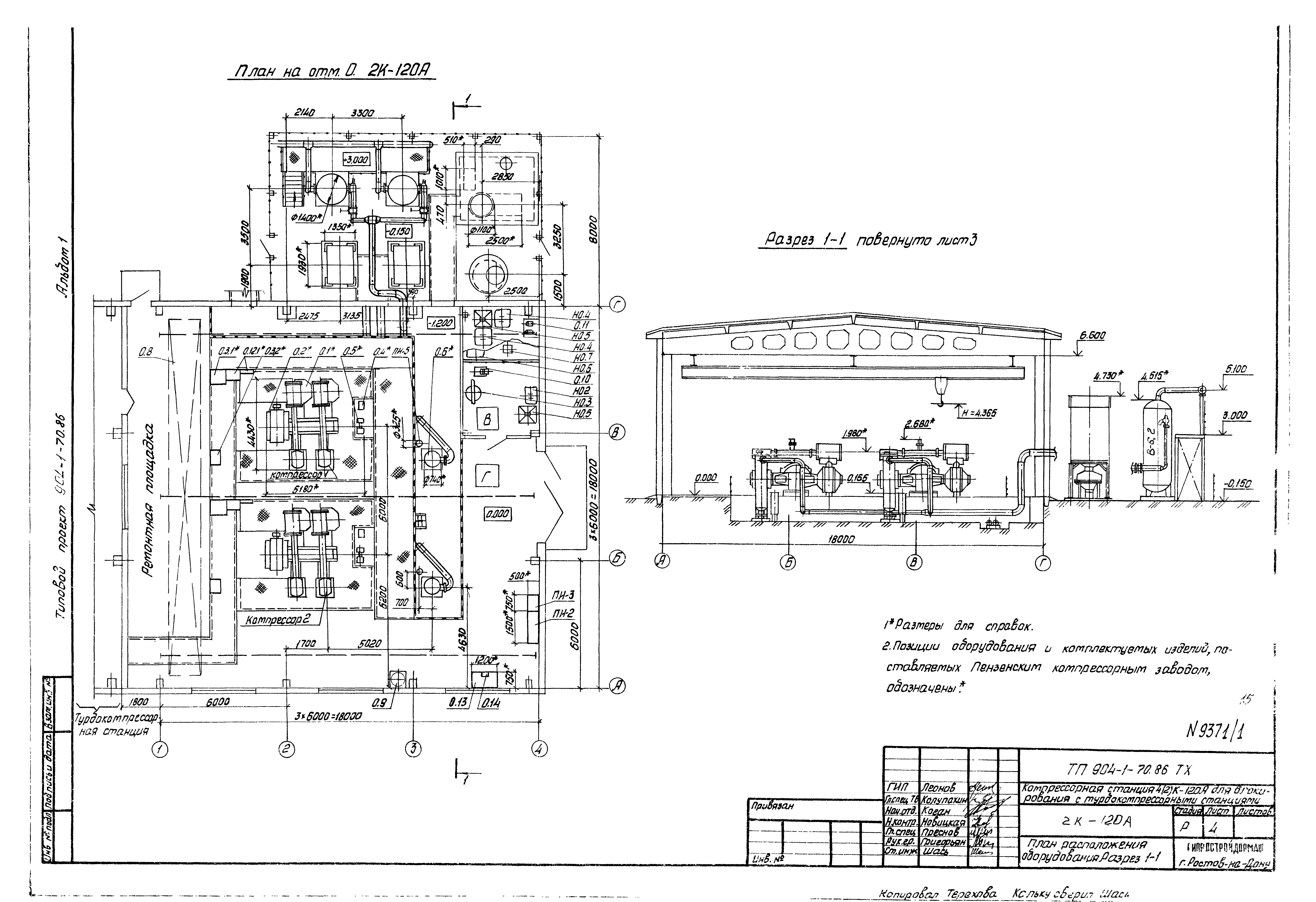
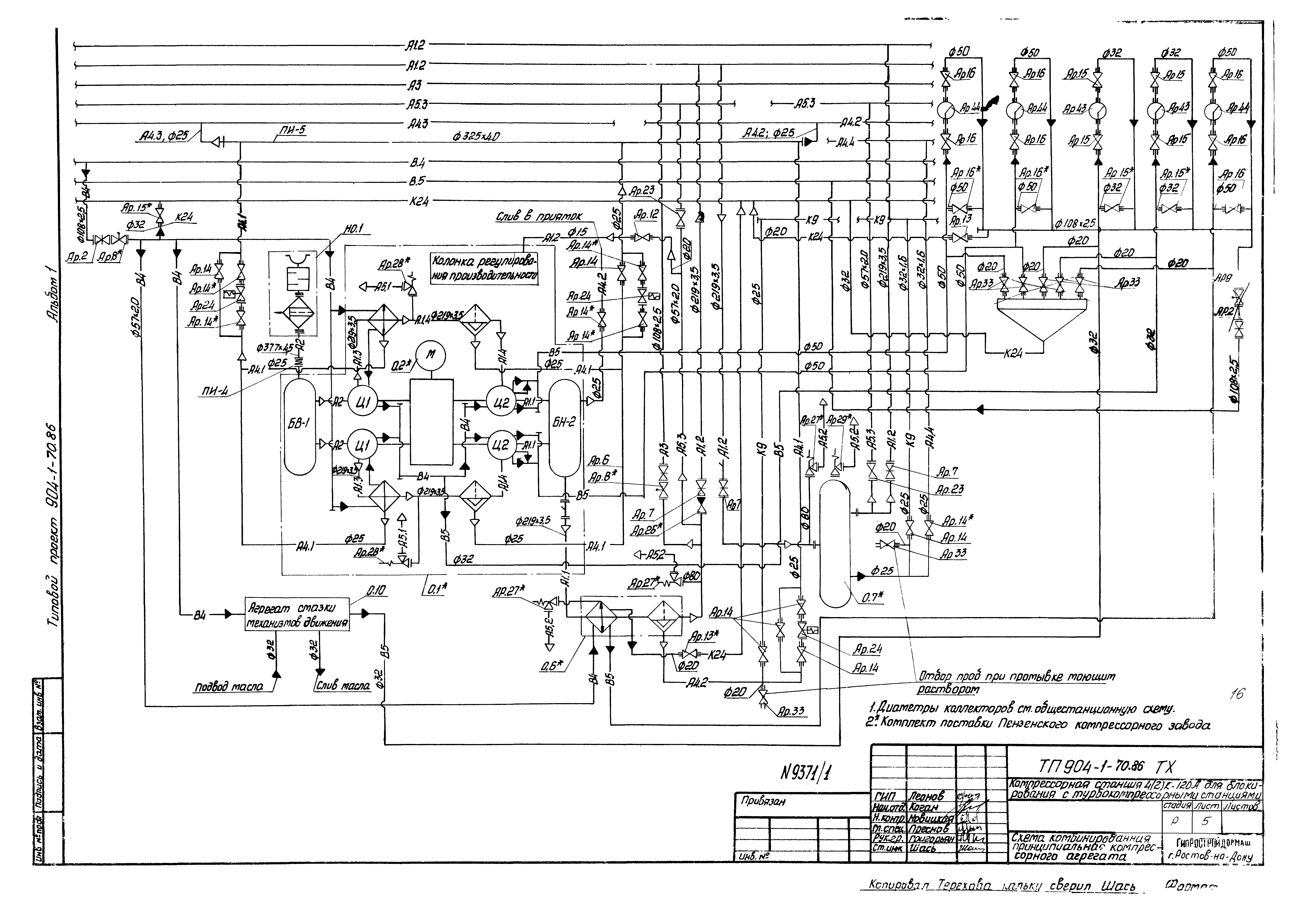
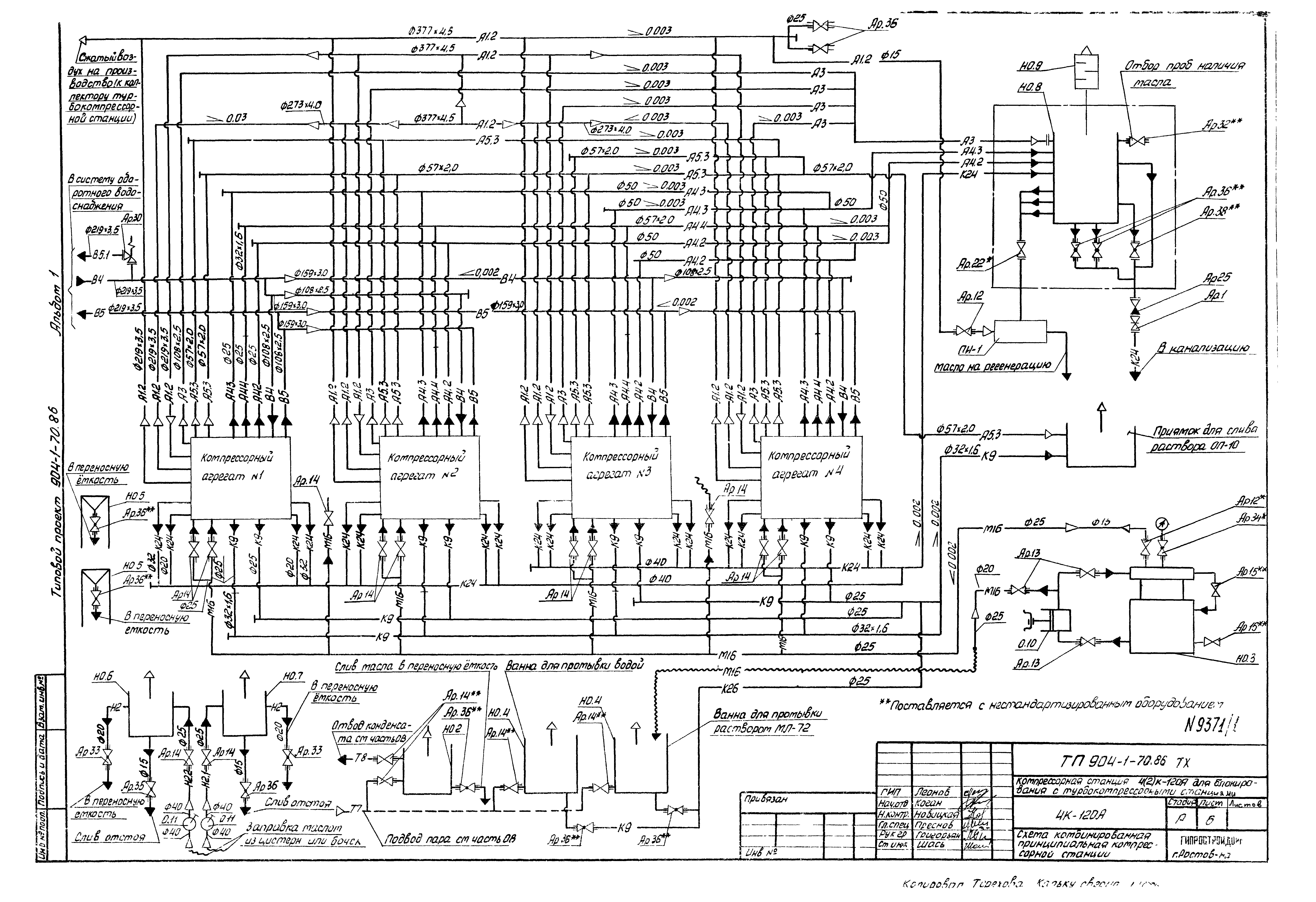
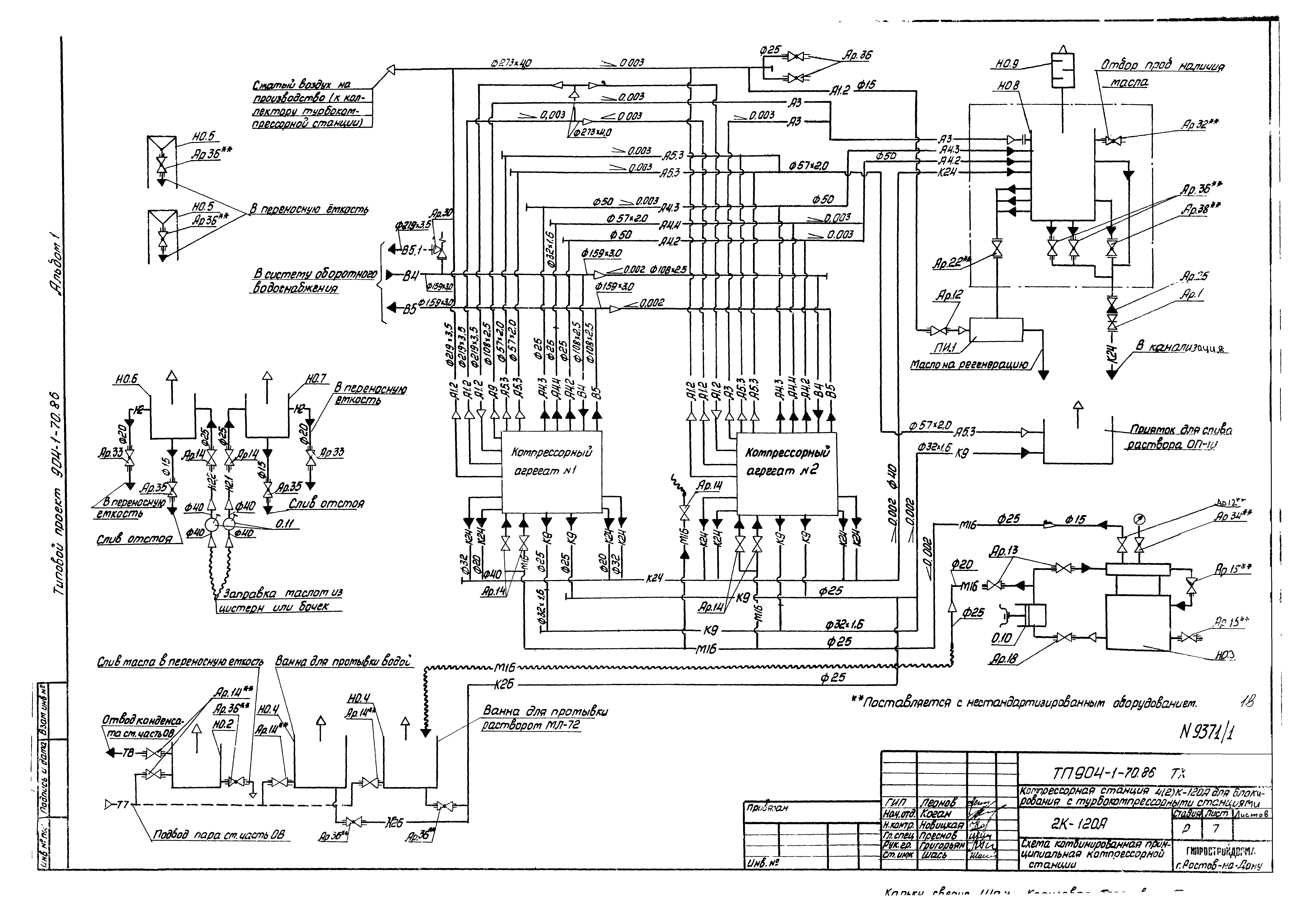
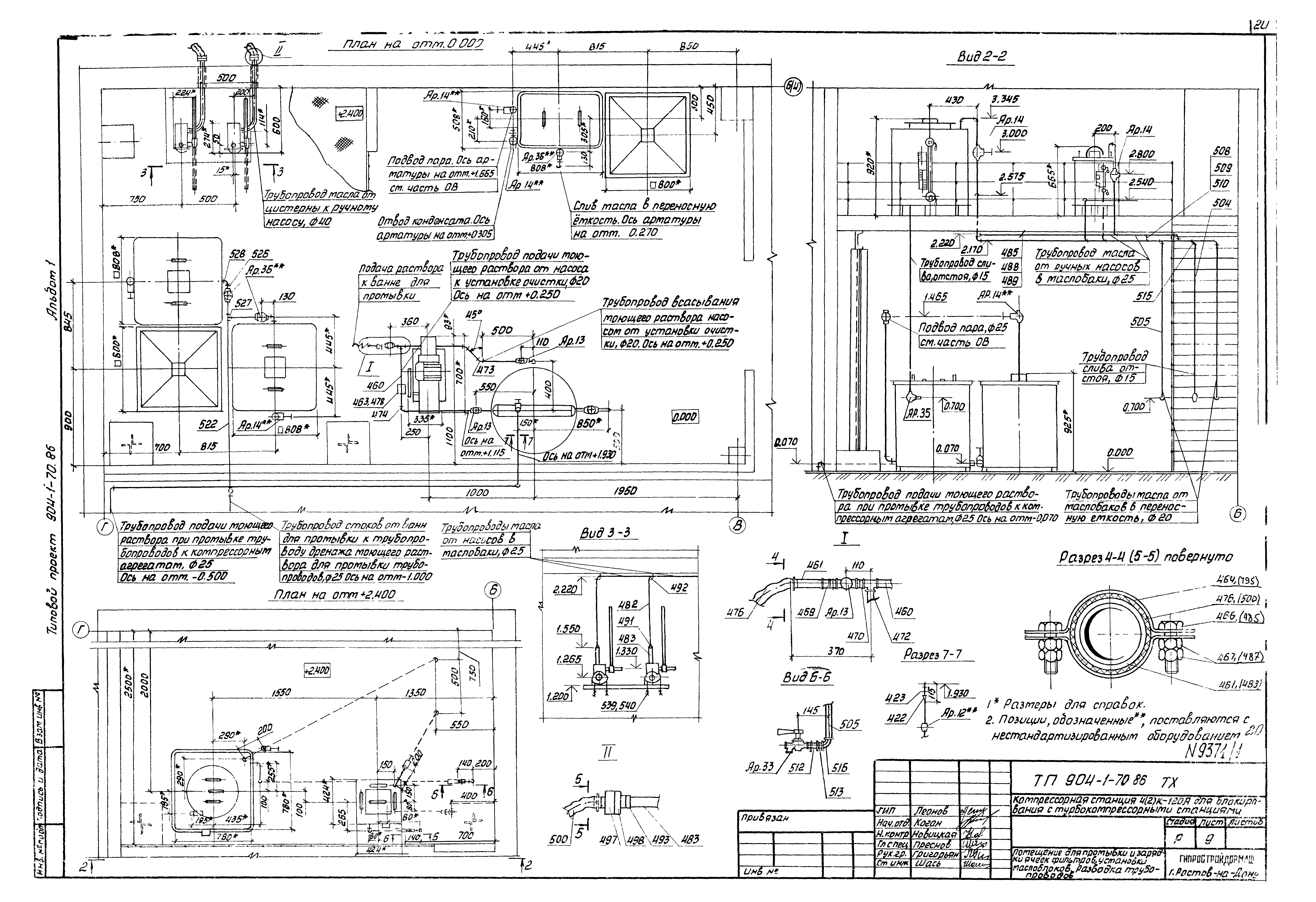
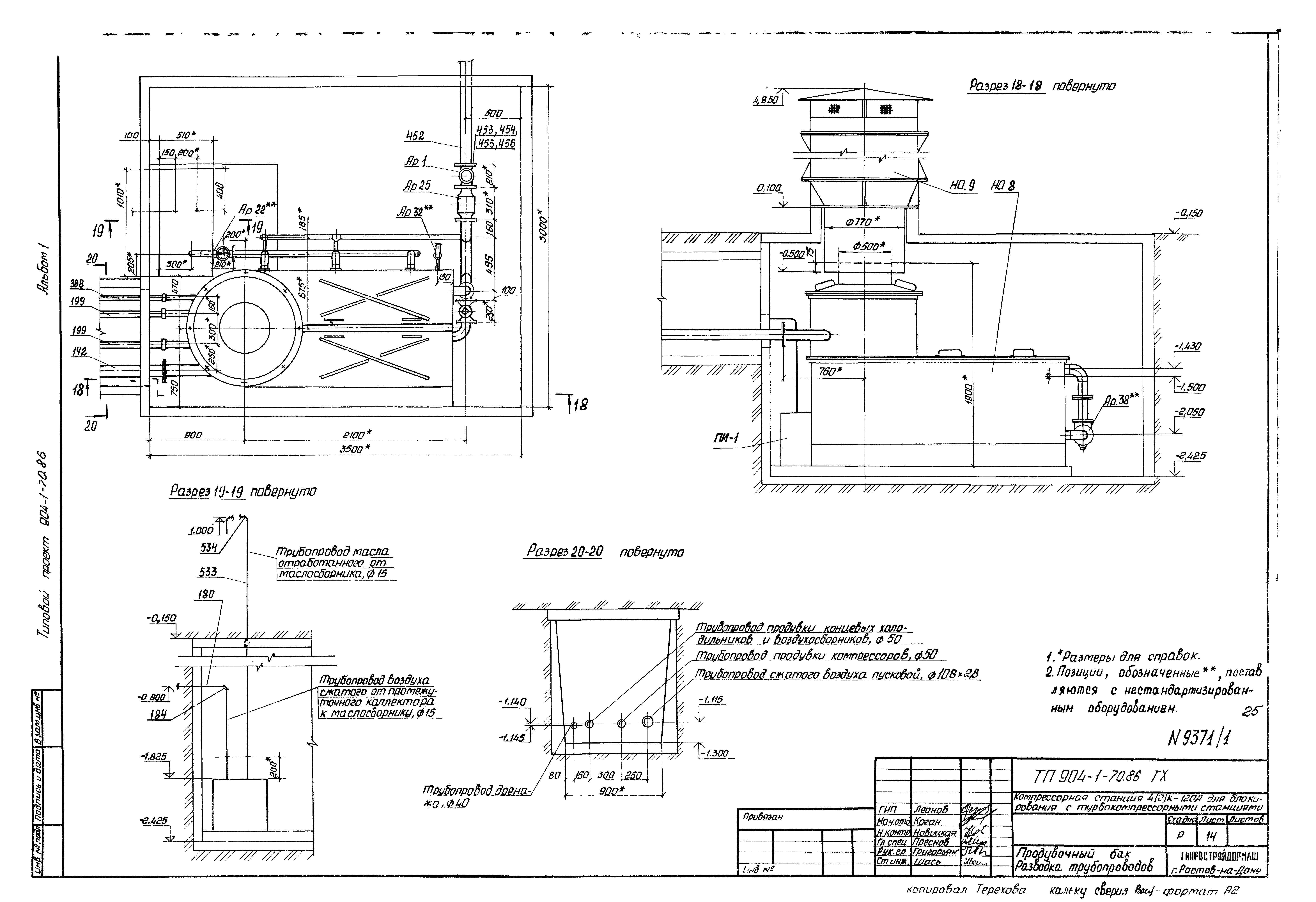
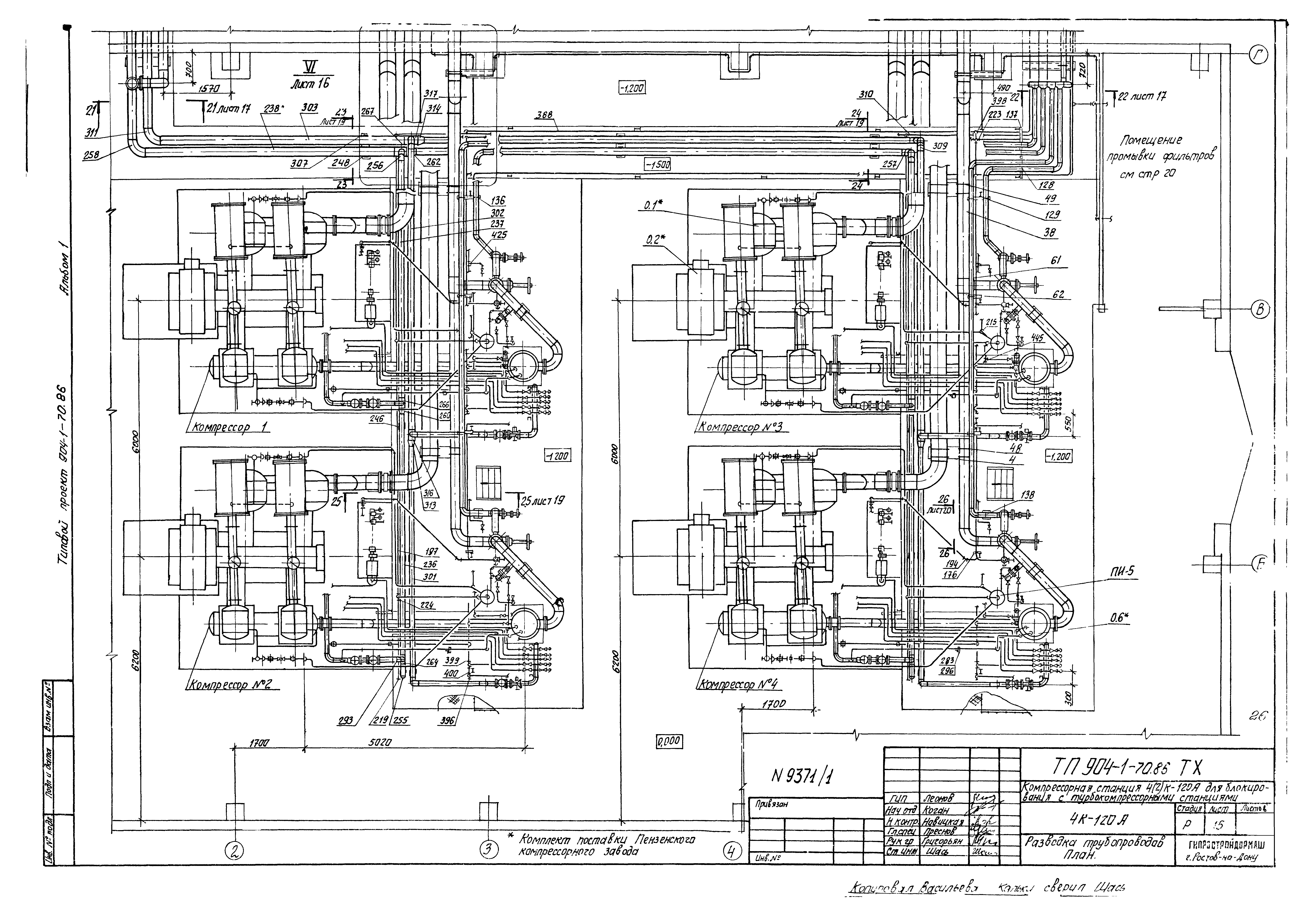
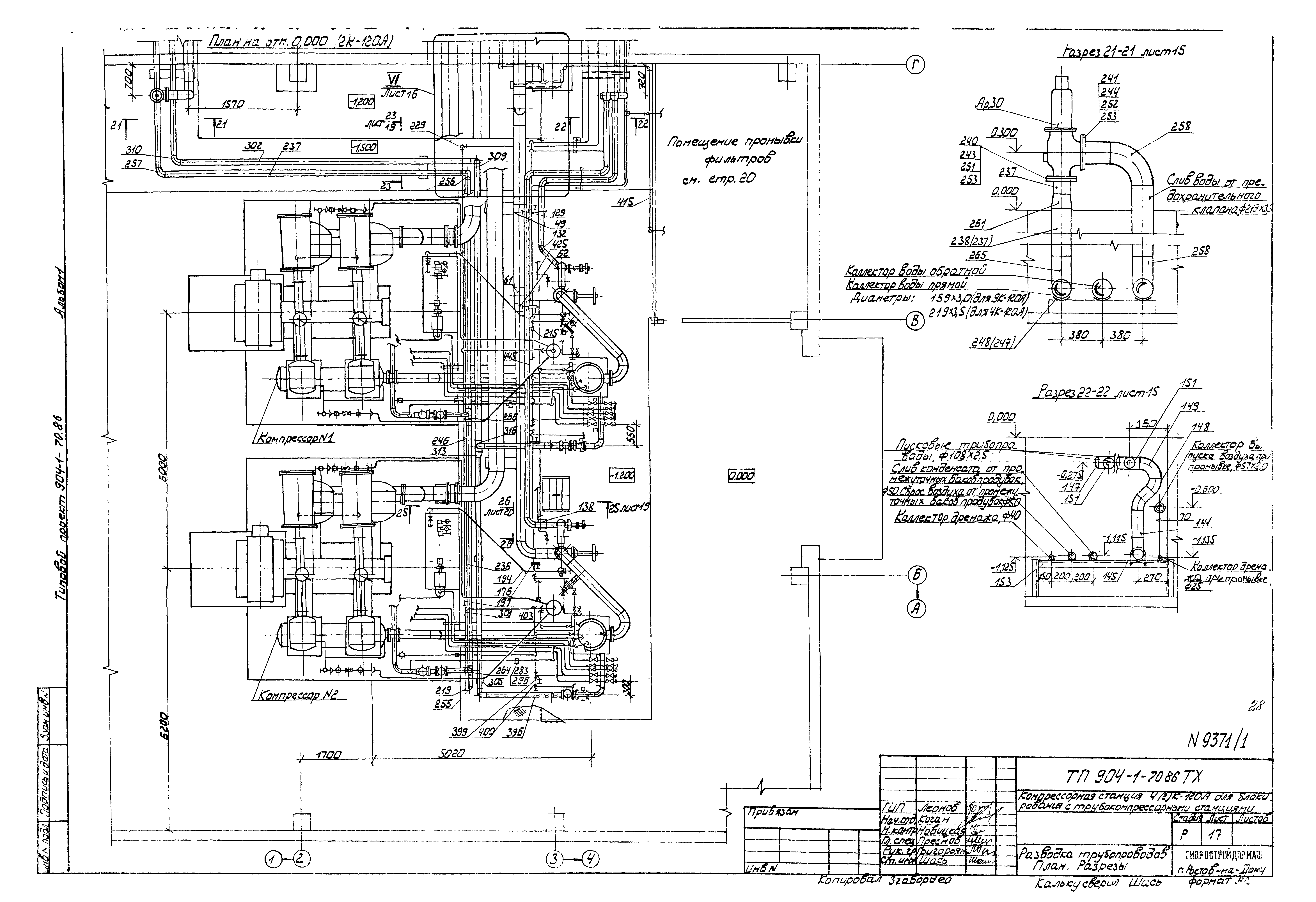
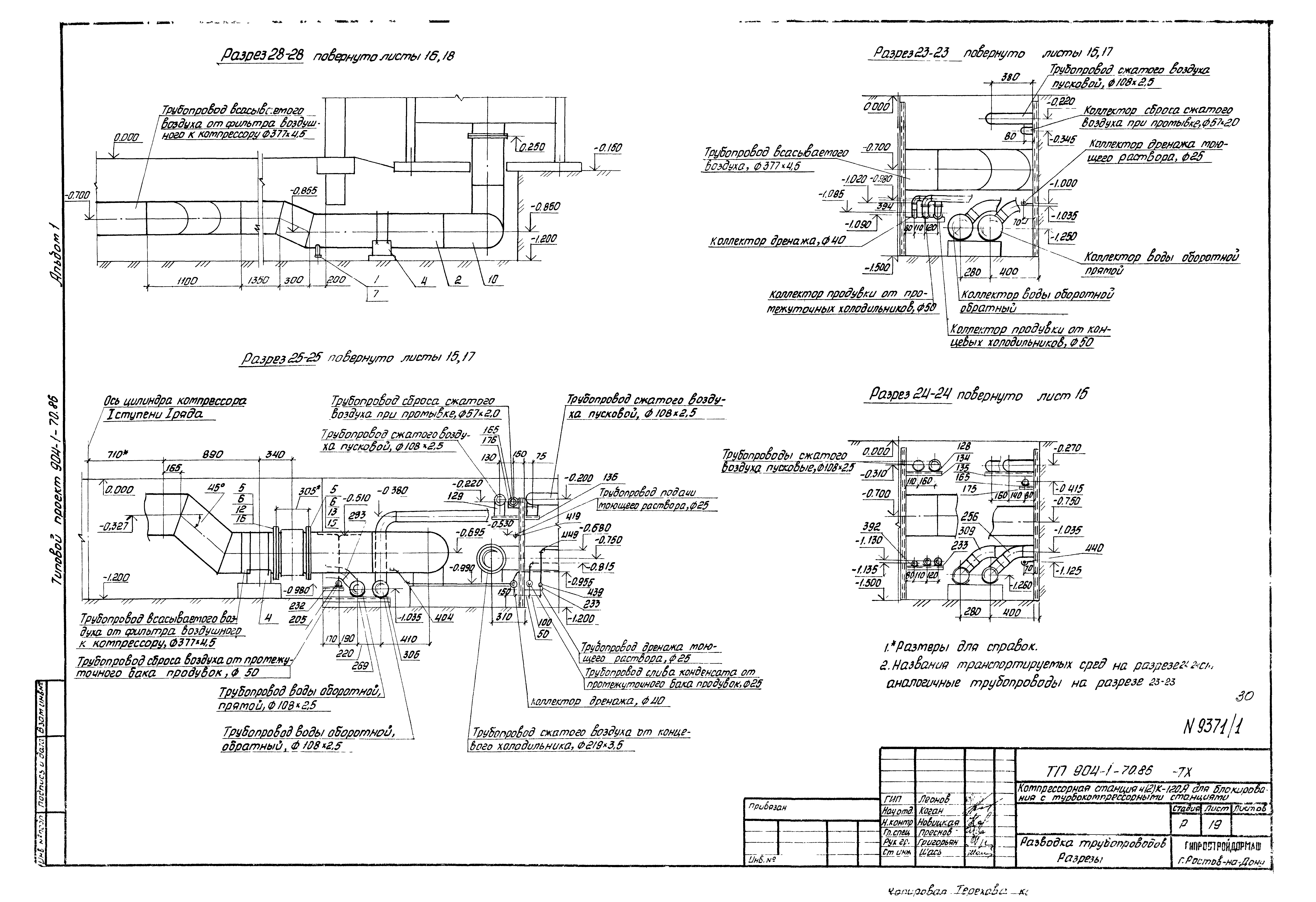
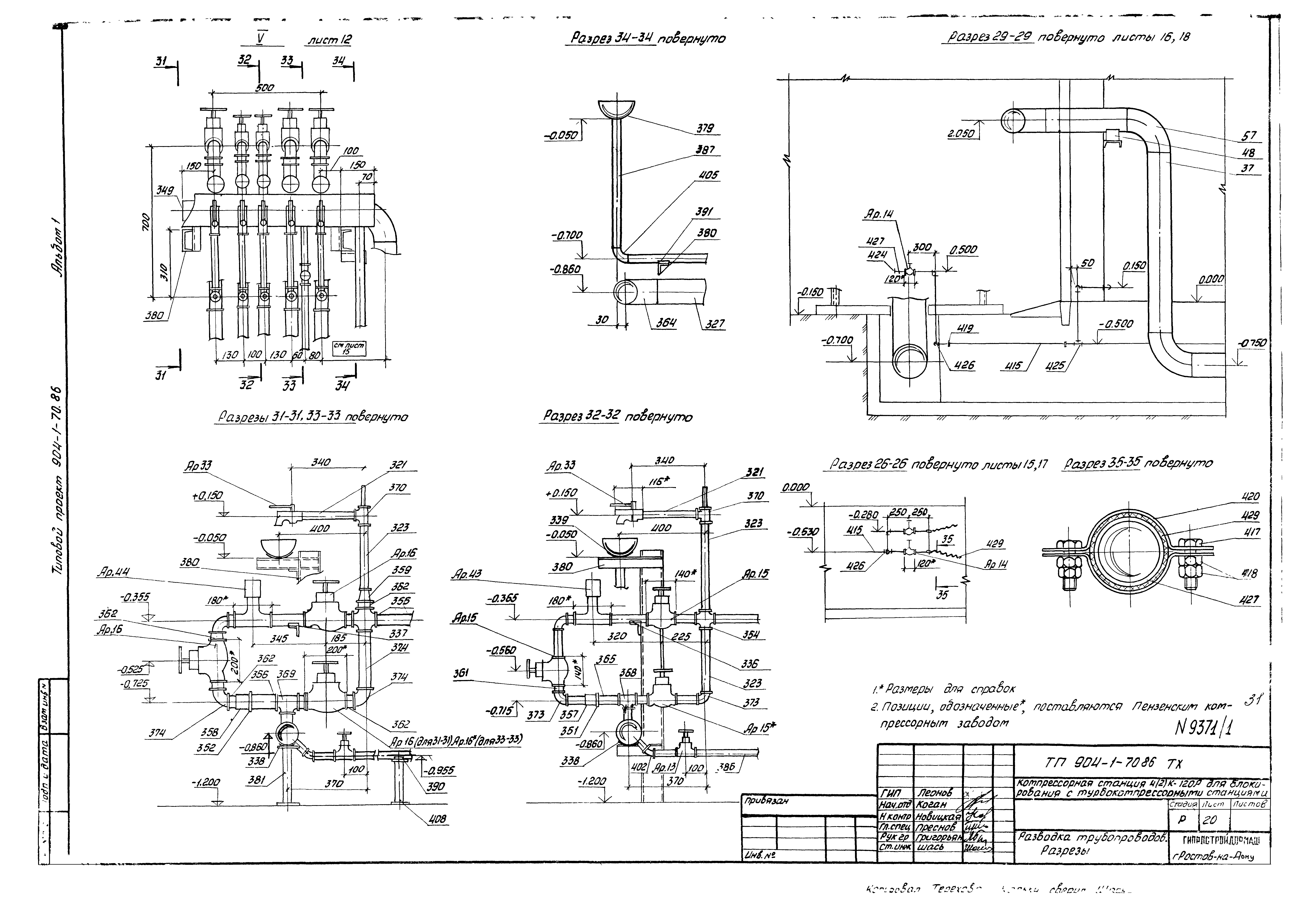
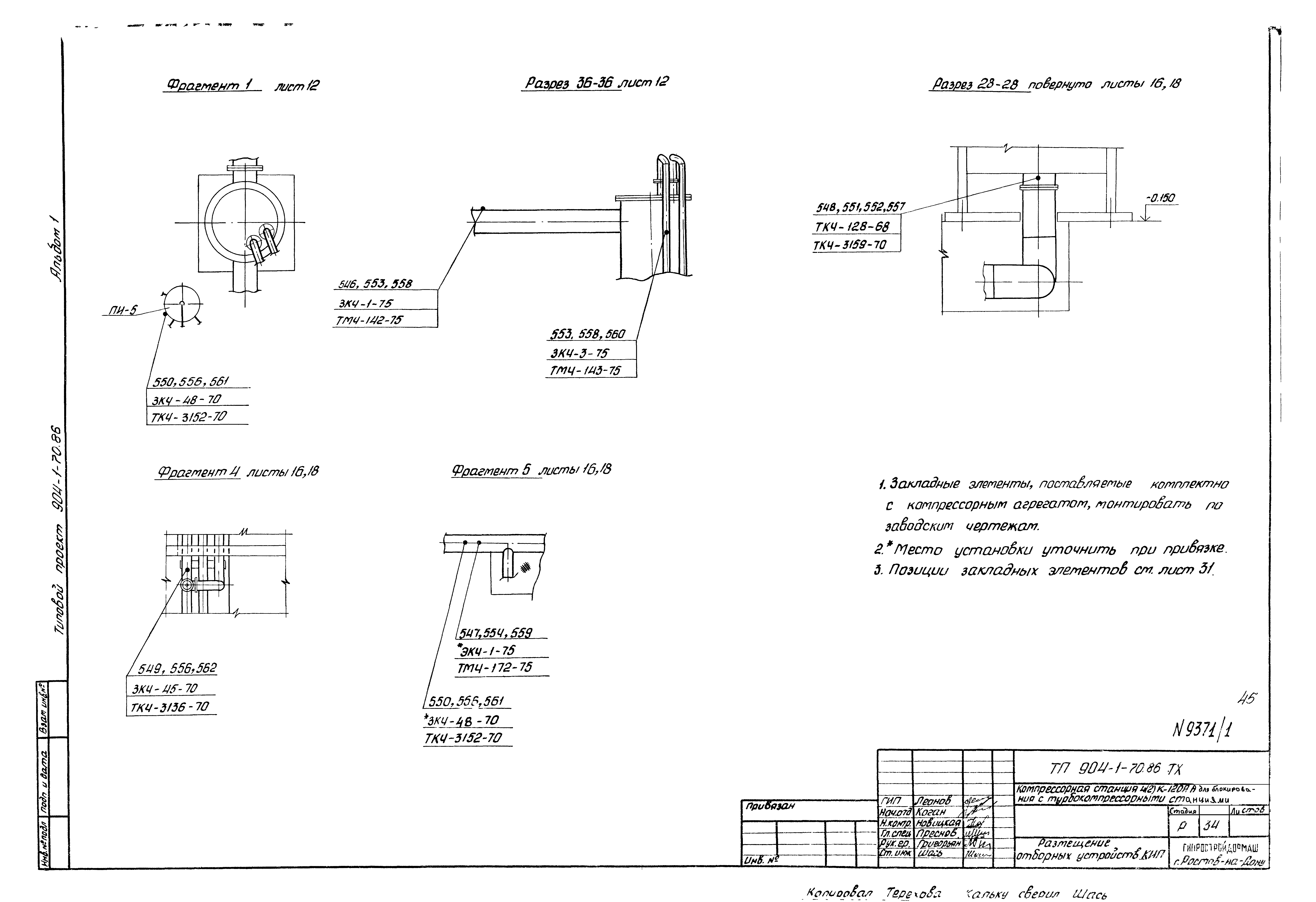
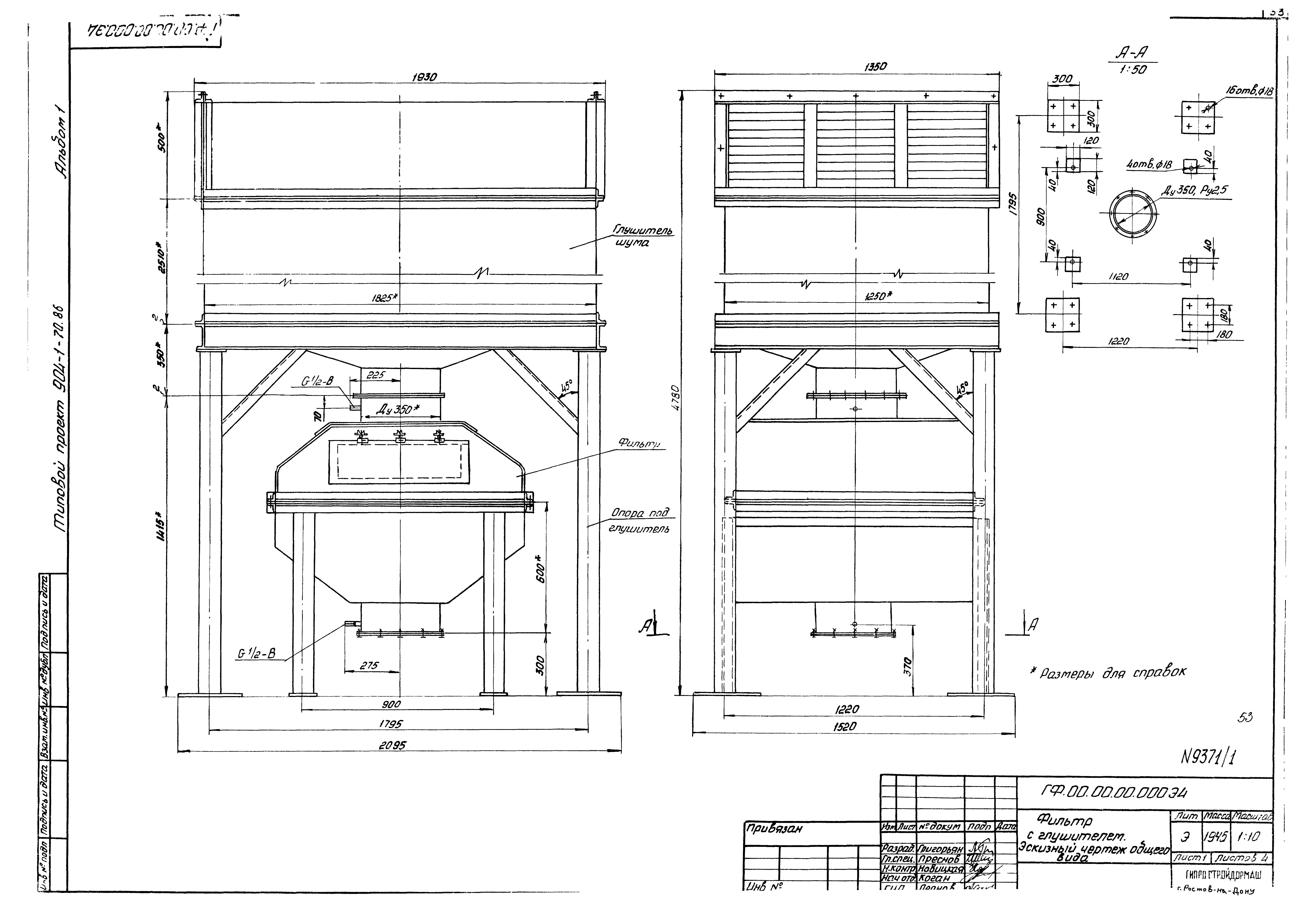
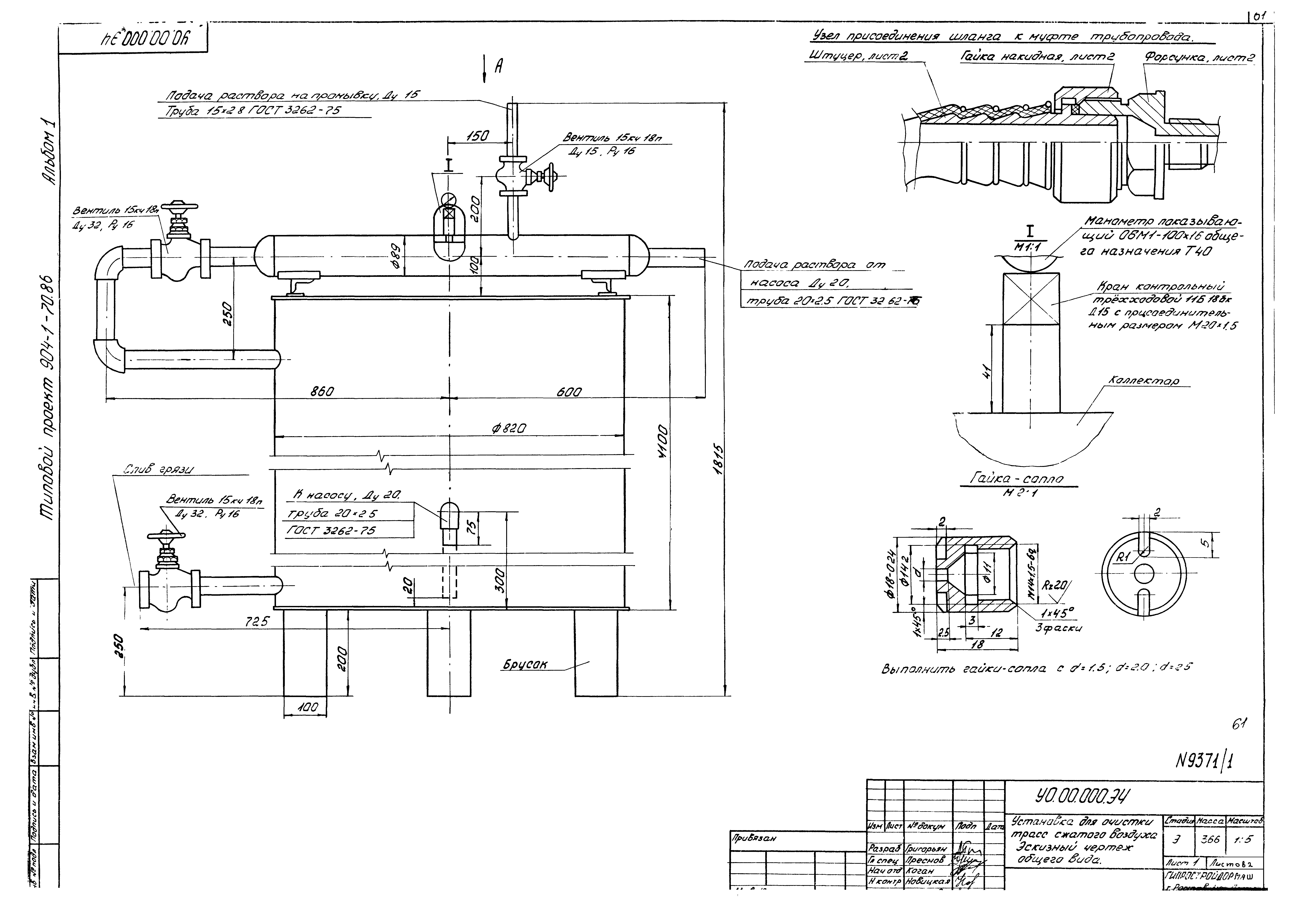
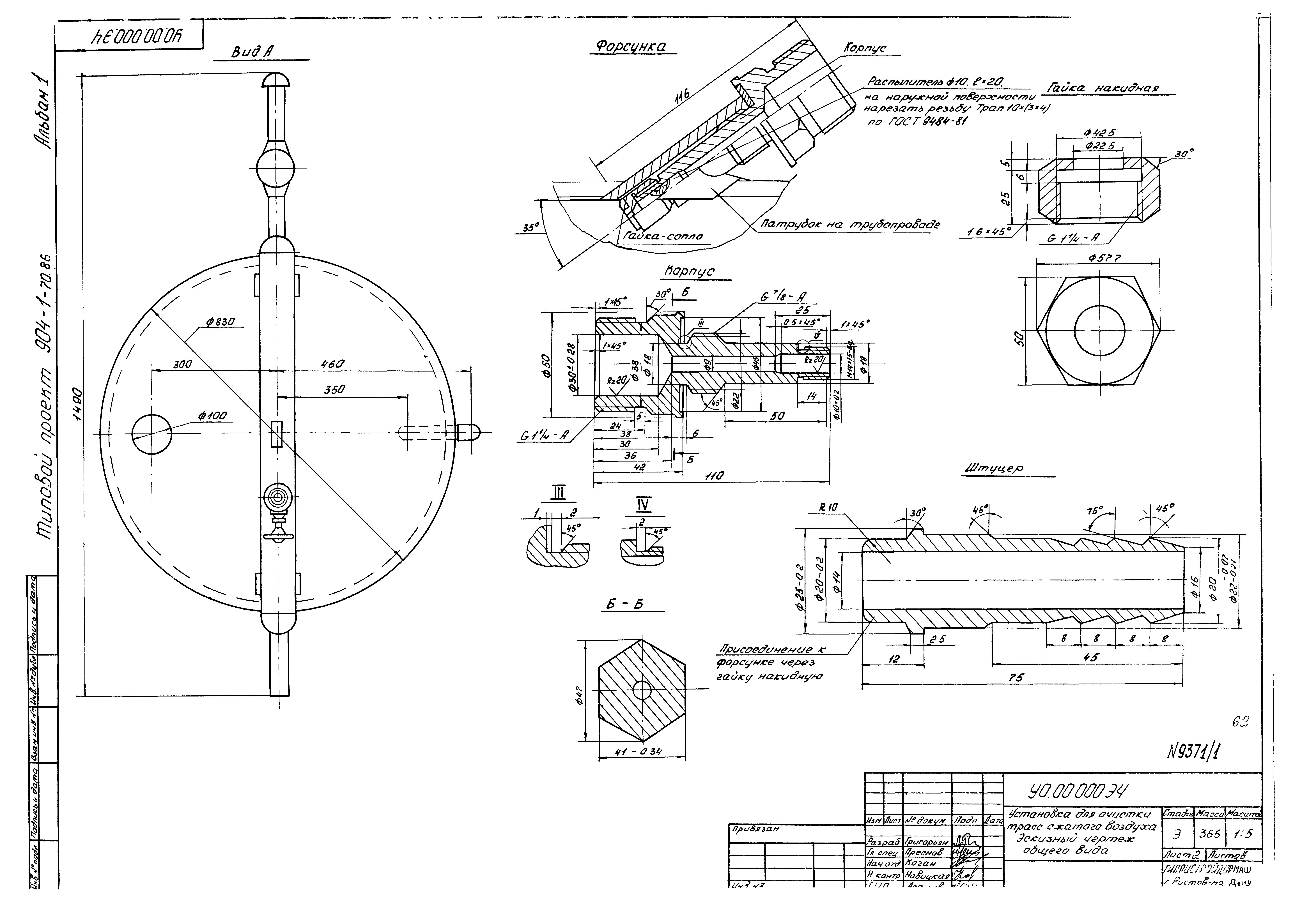
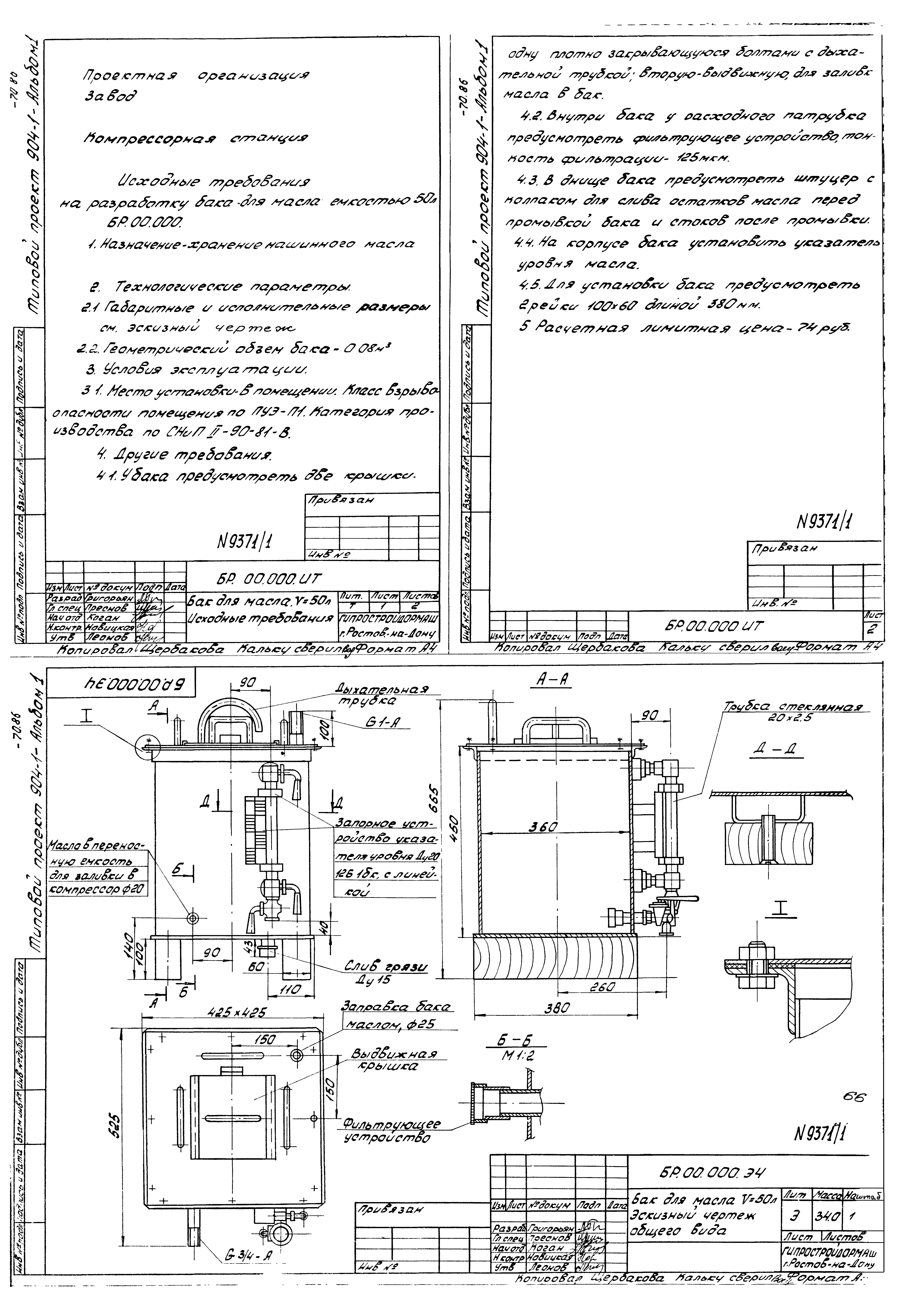
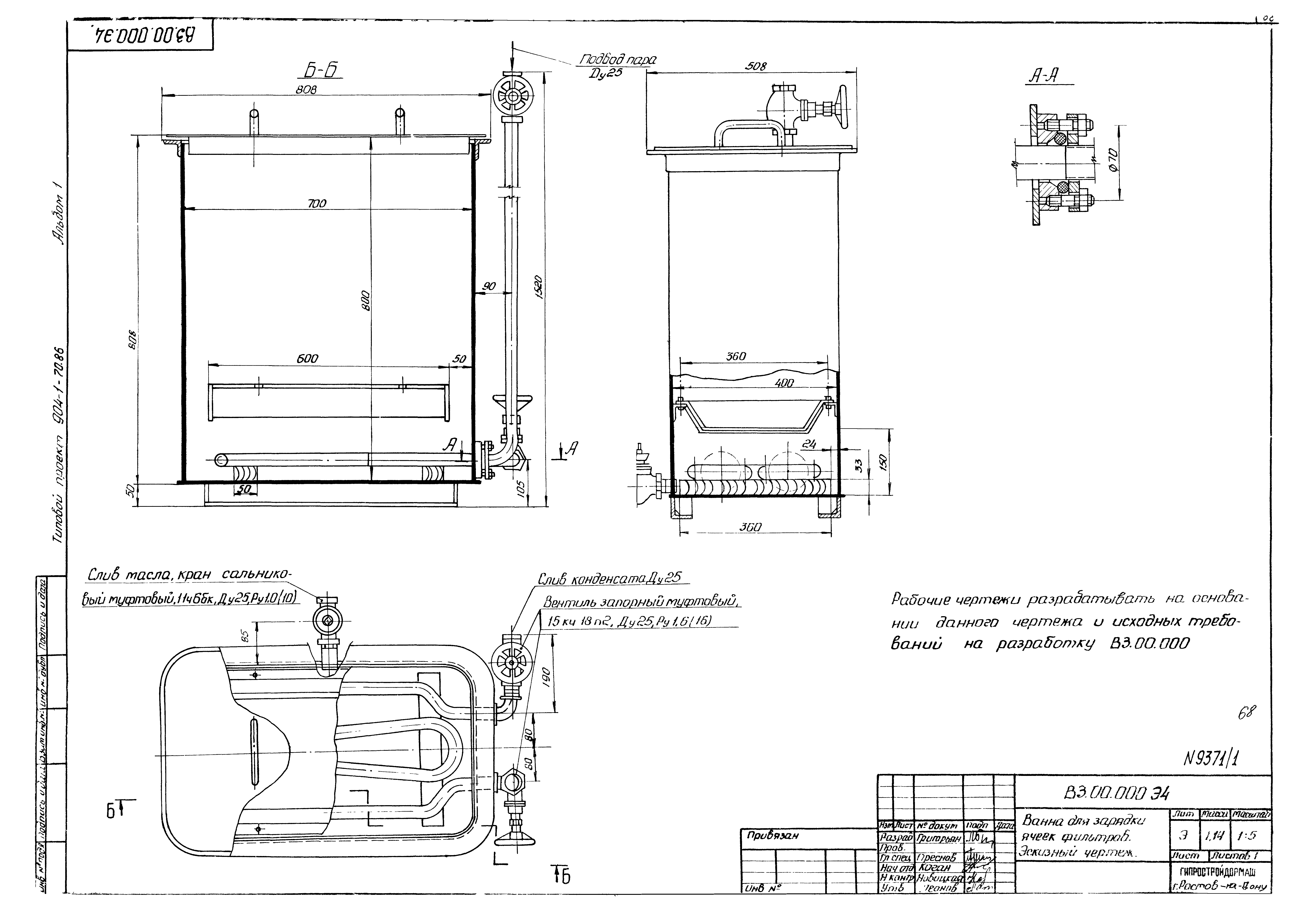
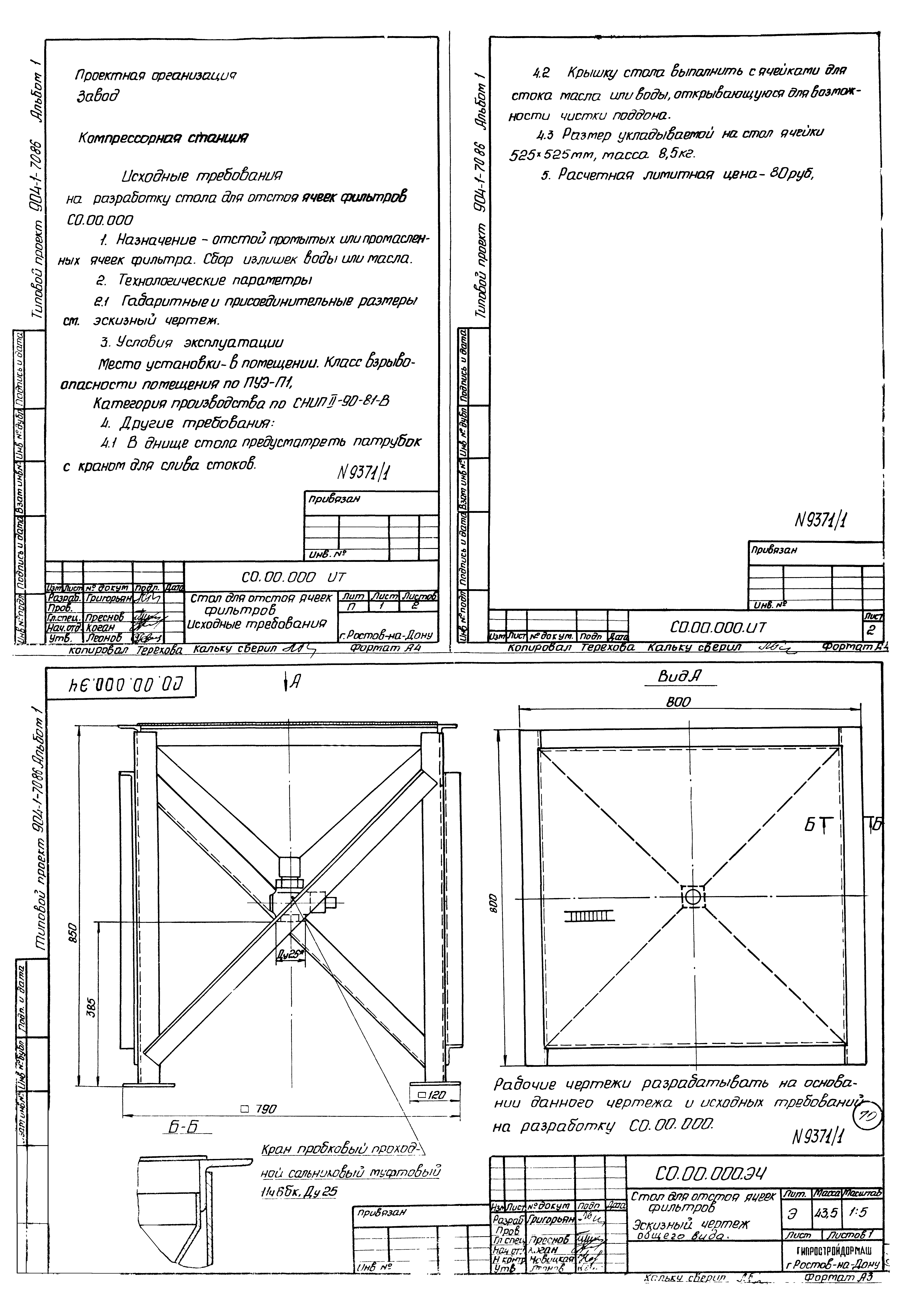
| Оглавление: | Титульный лист Содержание Пояснительная записка (начало) Пояснительная записка (продолжение) Пояснительная записка (окончание) Общие данные (начало) Общие данные (окончание) План расположения оборудования План расположения оборудования. Разрез 1-1 Схема комбинированная принципиальная компрессорного агрегата Схема комбинированная принципиальная компрессорной станции Условные обозначения Помещение для промывки и зарядки ячеек фильтров, установки маслобаков. Разводка трубопроводов Компрессорный агрегат. Разводка трубопроводов Концевой холодильник. Разводка трубопроводов Воздухосборник. Разводка трубопроводов Продувочный бак. Разводка трубопроводов Разводка трубопроводов. План Разводка трубопроводов. План. Разрезы Разводка трубопроводов. Разрезы Спецификация оборудования, арматуры и монтажных материалов трубопроводов Ведомость теплоизоляционных конструкций Размещение отборных устройств КИП Опросный лист на кран Муфта, ТД-1 Пробка, ТД-2 Фланец, ТД-3,ТД-4 Опора, ТУ-1,-2,-3,-4,-5,-6 Воронка, ТУ-7 Опора, ТУ-8 Опорная конструкция, ТУ-9 Опора, ТУ-10 Глушитель шума стравливания. Эскизный чертеж ГШС.120.00.000 ЭЧ Промежуточный бак продувок, ПБ.00.000 Маслосборник, МС.00.000 Фильтр с глушителем. Исходные требования ГФ.00.00.00.000.ИТ Глушитель шума стравливания. Исходные требования ГШС.120.00.000.ИТ Фильтр с глушителем. Эскизный чертеж ГФ.00.00.00.000.ЭЧ Бак продувочный. Исходные требования БП.00.000.ИТ Бак продувочный. Техническое описание БП.00.000.ТО Бак продувочный. Эскизочный чертеж БП.00.000.ЭЧ Установка для очистки трасс сжатого воздуха. Эскизочный чертеж УО.00.000.ЭЧ Установка для очистки трасс сжатого воздуха. Техническое описание и инструкция по эксплуатации УО.00.000.ТО Установка для очистки трасс сжатого воздуха. Исходные требования УО.00.000.ИТ Бак для масла, V=300 л. Исходные требования БМ.00.000.ИТ Бак для масла, V=300 л. Эскизочный чертеж БМ.00.000.ЭЧ Бак для масла, V=50 л. Исходные требования БР.00.000.ИТ Бак для масла, V=50 л. Эскизочный чертеж БР.00.000.ЭЧ Ванна для промывки ячеек фильтров. Исходные требования ВП.00.000.ИТ Ванна для зарядки ячеек фильтров. Исходные требования ВЗ.00.000.ИТ Ванна для промывки ячеек фильтров. Эскизочный чертеж ВП.00.000.ЭЧ Ванна для зарядки ячеек фильтров. Эскизочный чертеж ВЗ.00.000.ЭЧ Стол для отстоя ячеек фильтров. Исходные требования. СО.00.000.ИТ Стол для отстоя ячеек фильтров. Эскизочный чертеж. СО.00.000.ЭЧ |
| Разработан: | Гипростройдормаш |
| Утверждён: | 14.11.1986 Минстройдормаш (Minstroydormash 640) |





































































