Скачать Типовой проект 904-1-70.86 Альбом 3. Автоматизация и КИПДата актуализации: 01.01.2021
|
| Обозначение: | Типовой проект 904-1-70.86 |
| Обозначение англ: | 904-1-70.86 |
| Статус: | действует |
| Название рус.: | Альбом 3. Автоматизация и КИП |
| Дата добавления в базу: | 01.09.2013 |
| Дата актуализации: | 01.01.2021 |
| Дата введения: | 14.11.1986 |
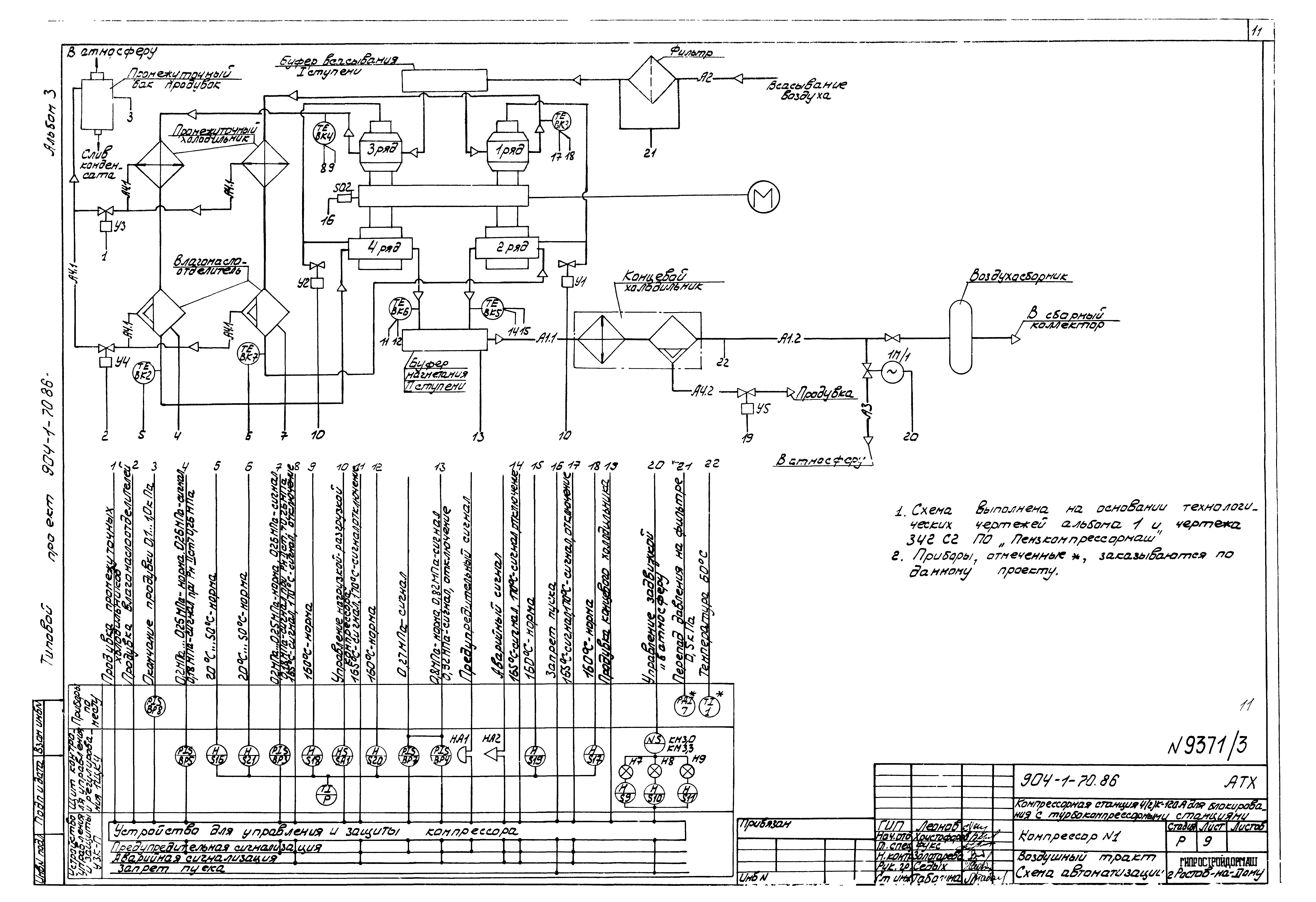
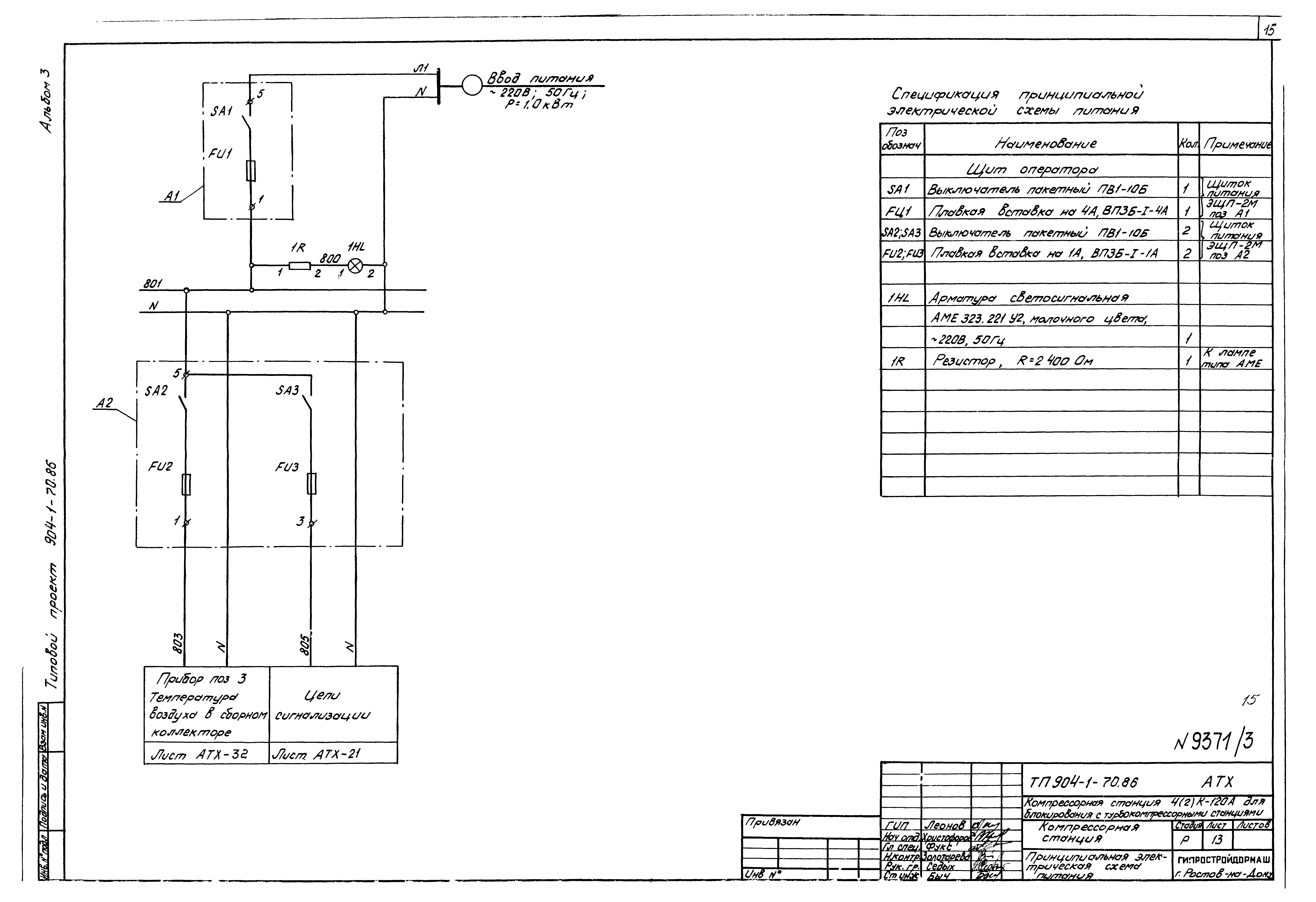
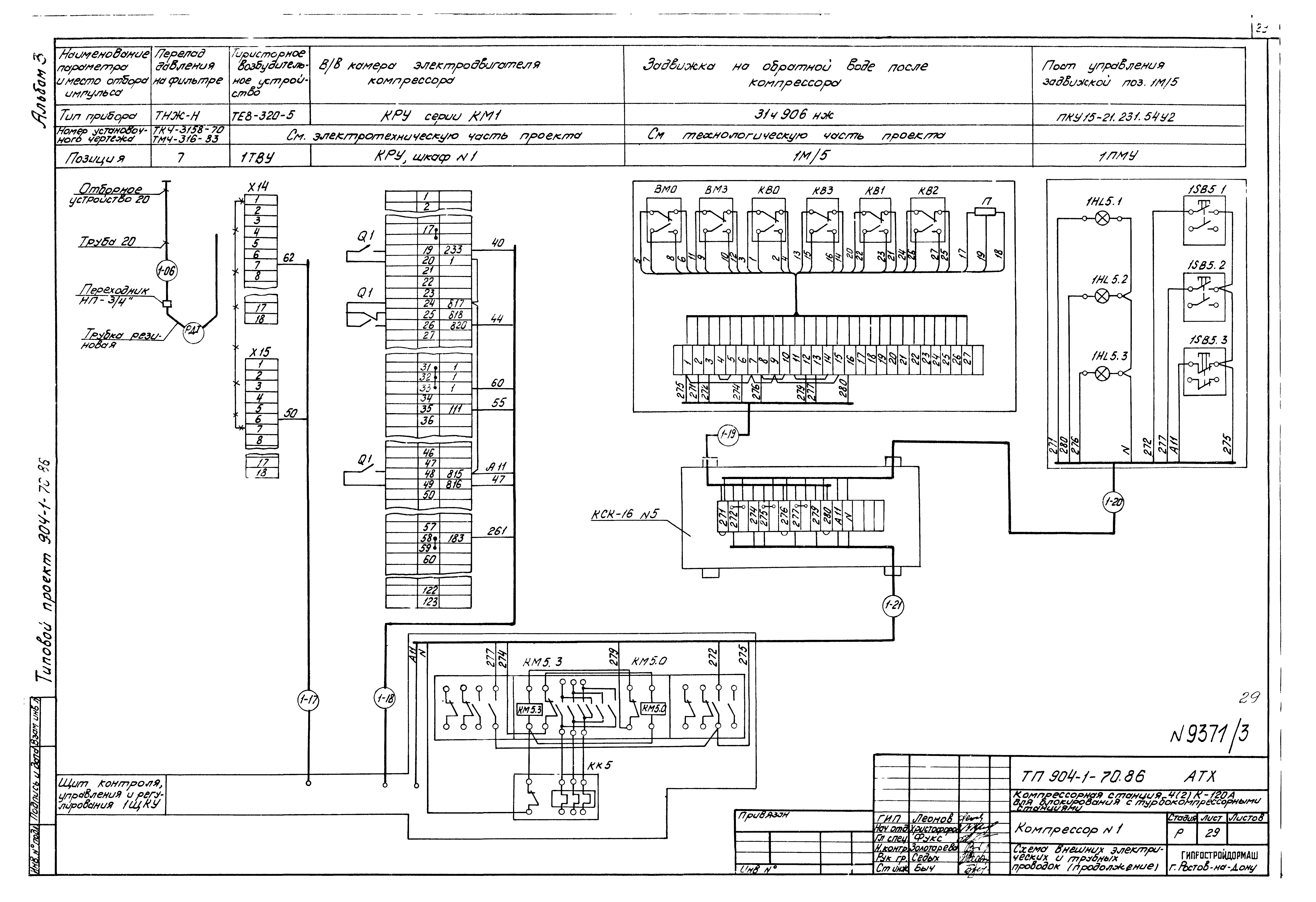
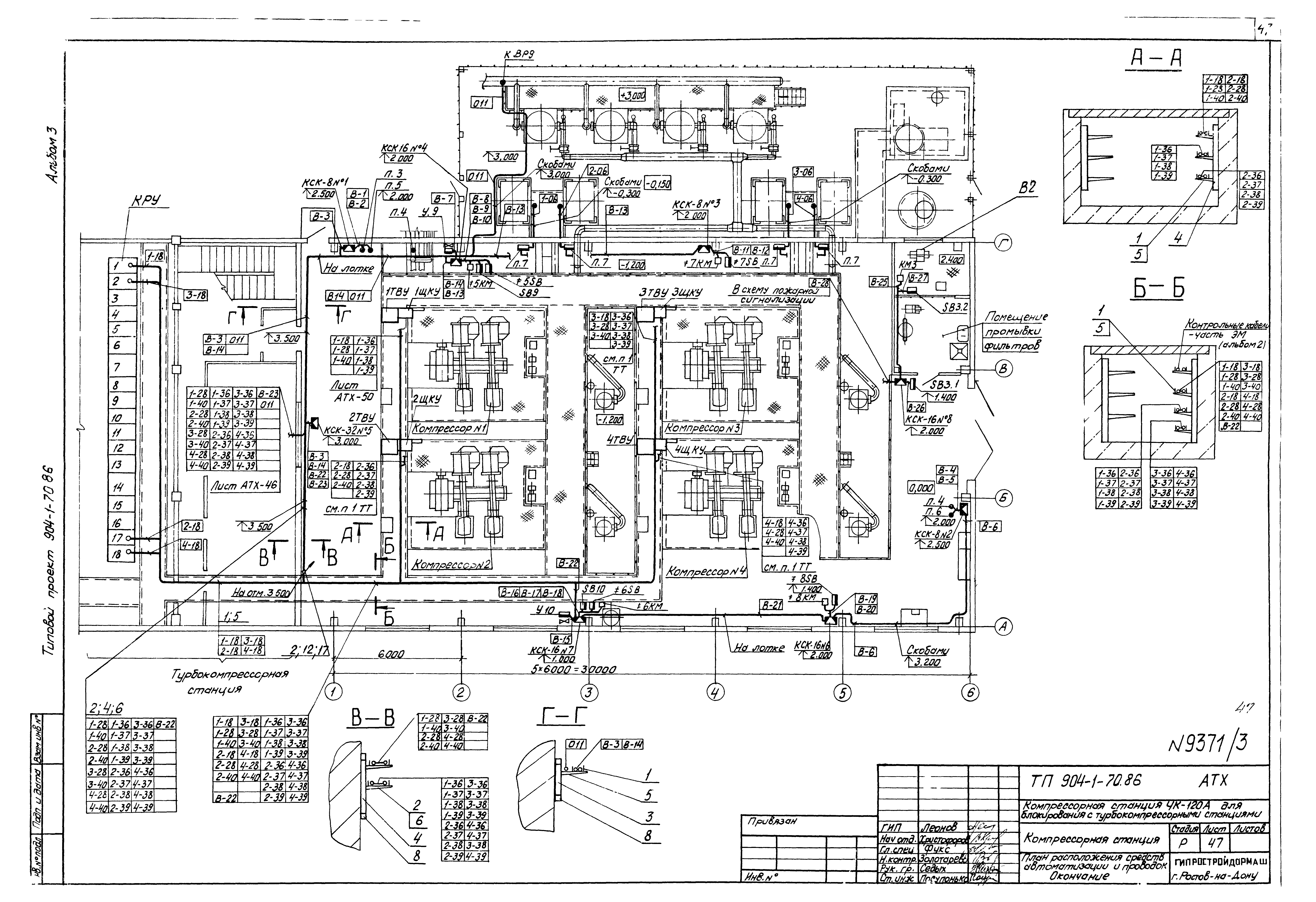
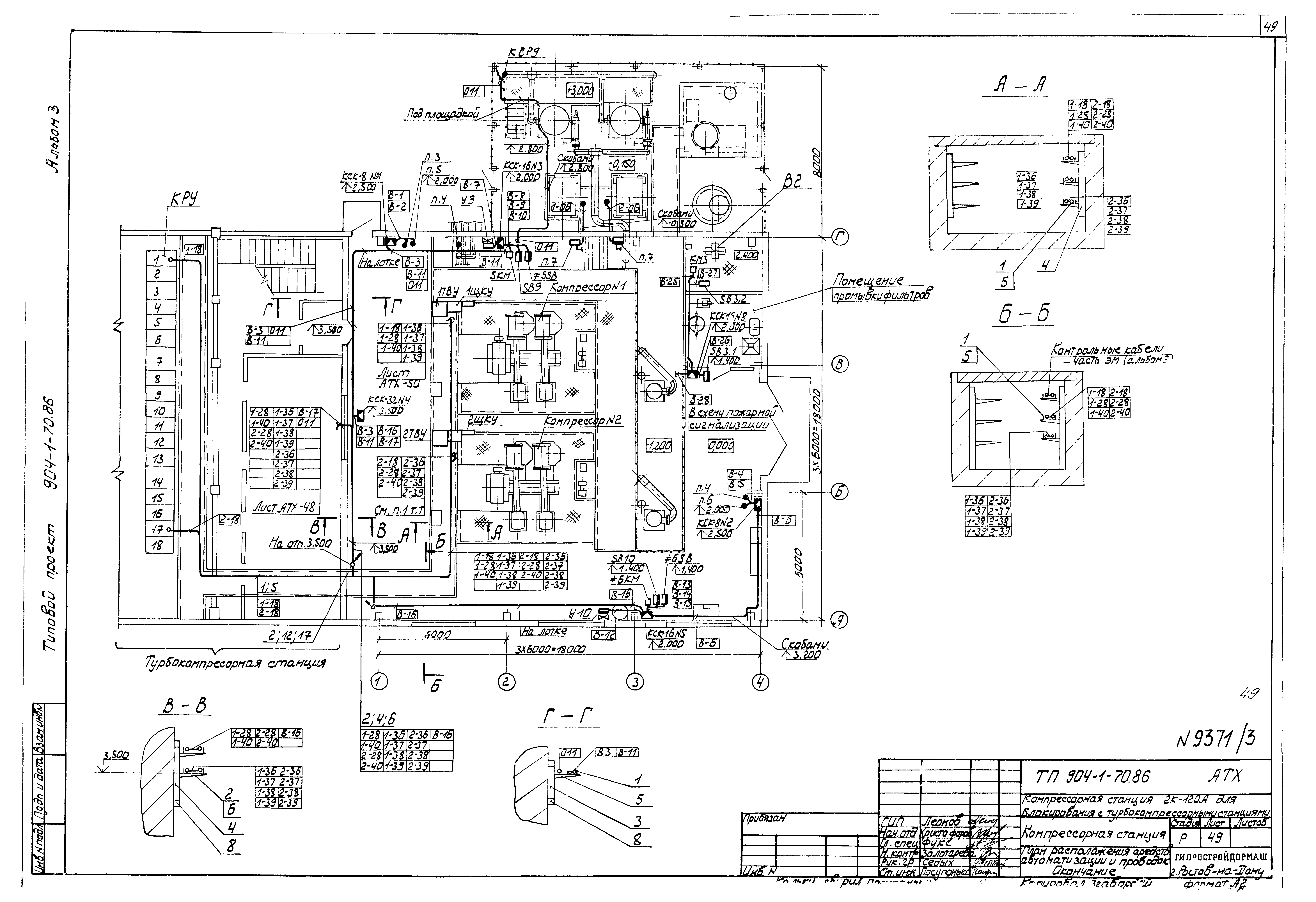
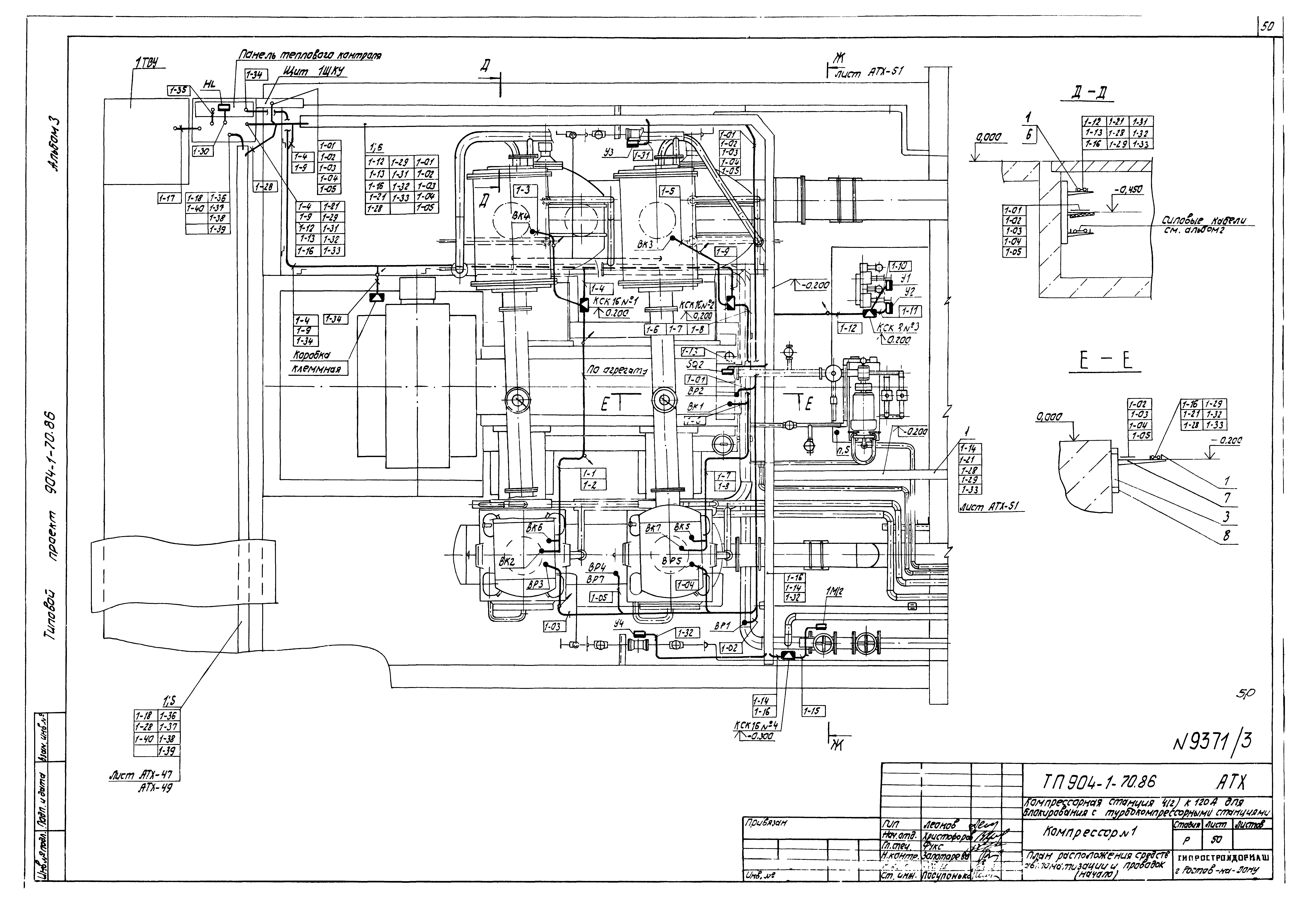
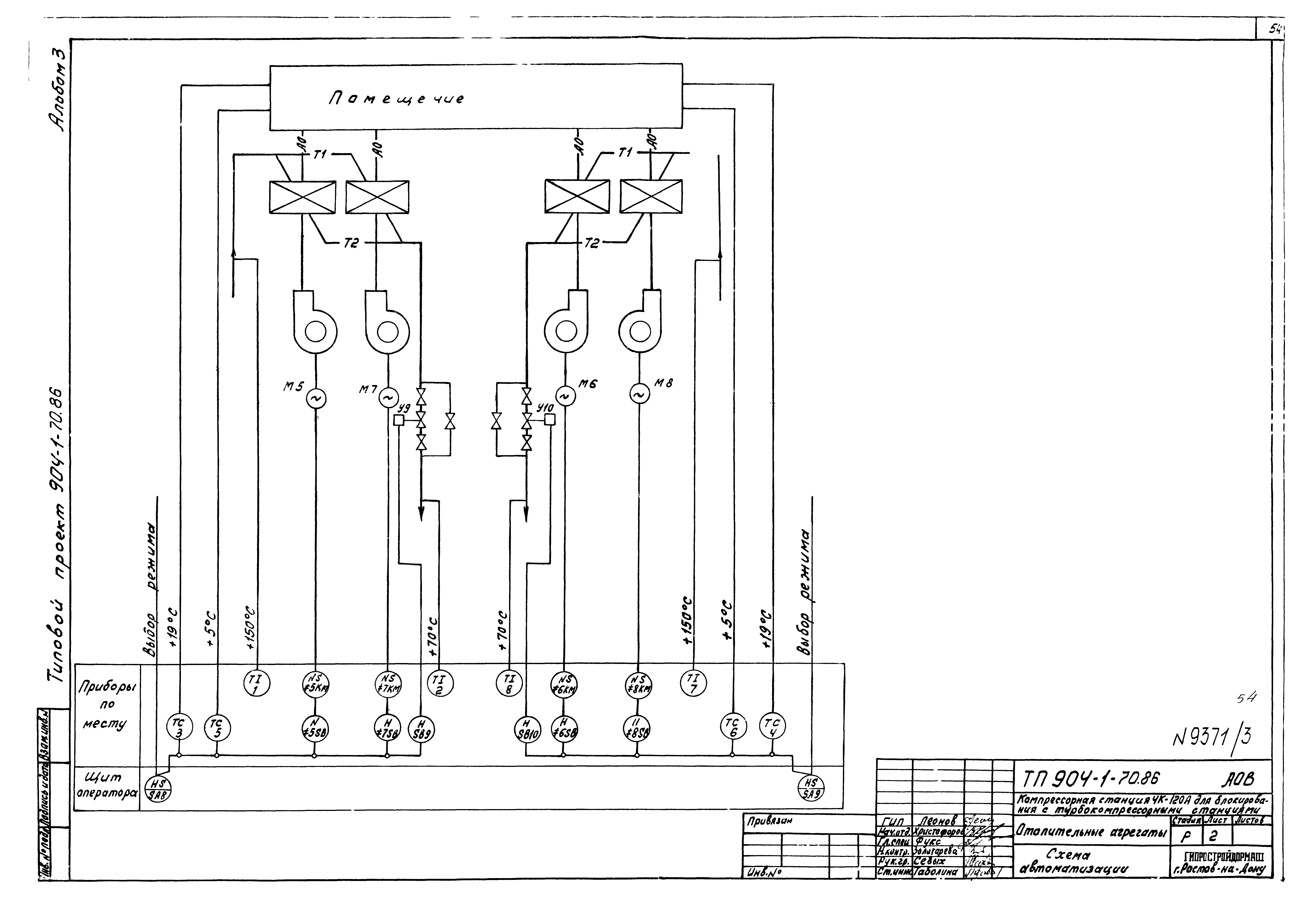
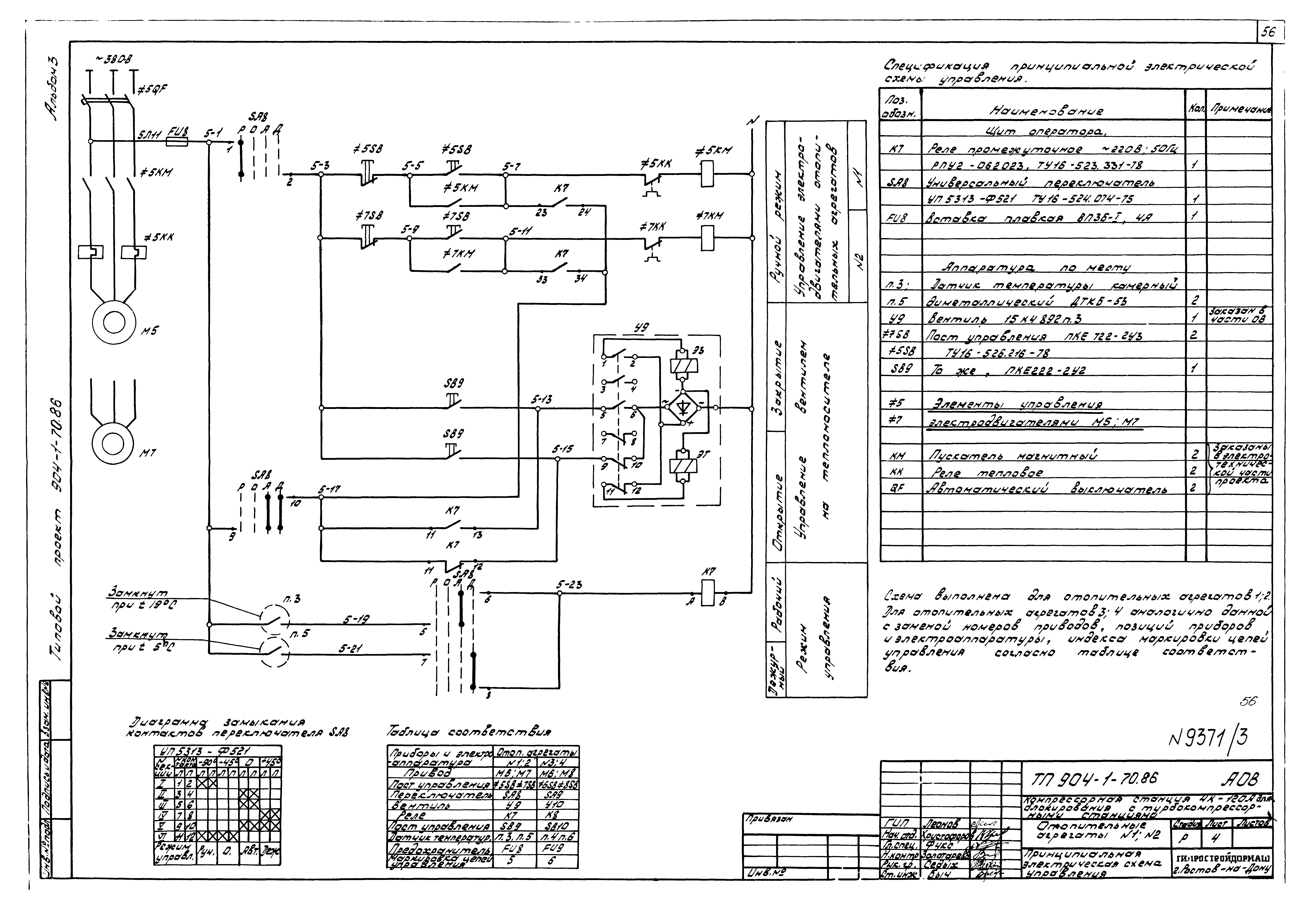
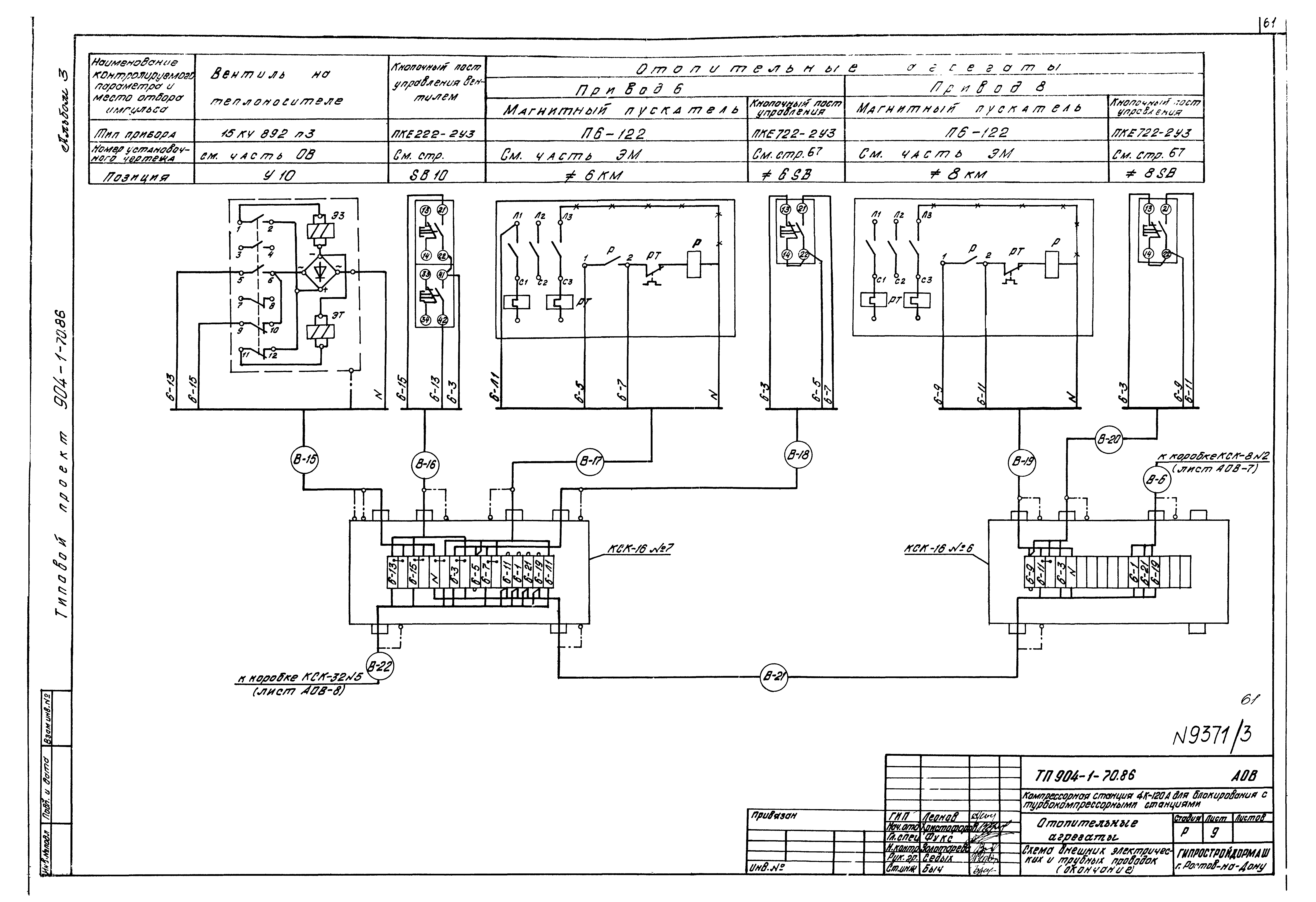
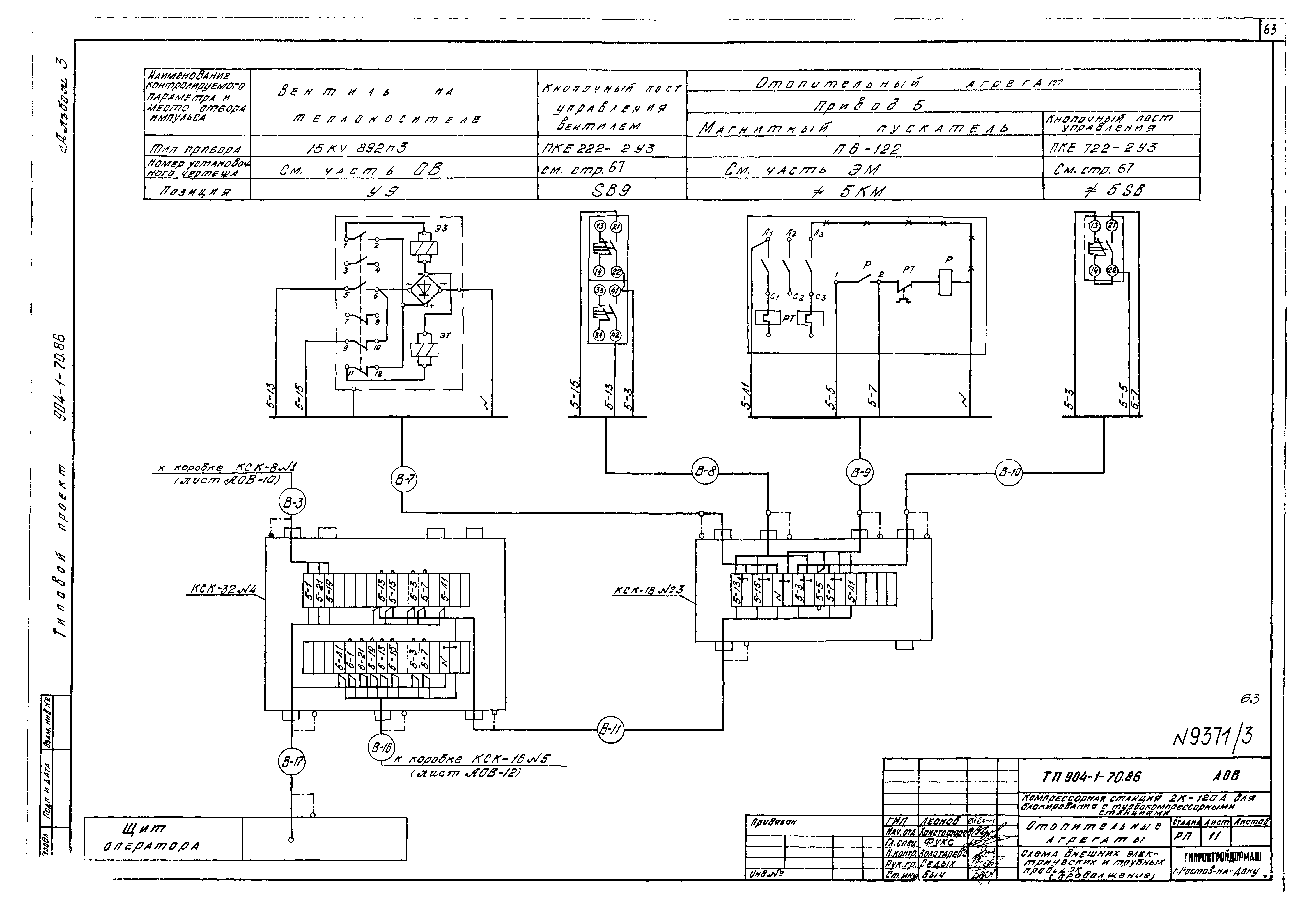
| Оглавление: | Общие данные Компрессор № 1. Воздушный тракт. Схема автоматизации Компрессор № 1. Система водопроводов.. Схема автоматизации Компрессор № 1. Система маслопроводов.. Схема автоматизации Компрессорная станция. Схема автоматизации Компрессорная станция. Принципиальная электрическая схема питания Компрессорная станция. Элементы принципиальной электрической схемы регулирования производительности Компрессорная станция. Элементы принципиальной электрической схемы управления Компрессор № 1. Принципиальная электрическая схема теплового контроля электродвигателя Компрессор № 1. Элемент принципиальной электрической схемы управления двигателем компрессора Задвижка на оборотной воде. Принципиальная электрическая схема управления Компрессорная станция. Принципиальная электрическая схема сигнализации Компрессор № 1. Панель теплового контроля. Общий вид Компрессор № 1. Панель теплового контроля. Таблица технических данных аппаратов Компрессор № 1. Панель теплового контроля. Перечень надписей Компрессор № 1. Панель теплового контроля. Схема соединений и внешних подключений Компрессор № 1. Схема внешних электрических и трубных проводок (начало) Компрессор № 1. Схема внешних электрических и трубных проводок (продолжение) Компрессор № 1. Схема внешних электрических и трубных проводок (окончание) Компрессорная станция. Схема внешних электрических и трубных проводок Компрессор № 1. Щит контроля управления и регулирования 1ЩКУ. Схема внешних подключений Компрессорная станция. Щит оператора. Схема внешних подключений Компрессоры № 1,2. Щит автоматики № 1. Схема внешних подключений Компрессоры № 3,4. Щит автоматики № 2. Схема внешних подключений Журнал кабельных проводок (начало) Журнал кабельных проводок (продолжение) Журнал кабельных проводок (окончание) Журнал кабельных проводок (начало) Журнал кабельных проводок (окончание) Журнал импульсных проводок Компрессорная станция. План расположения средств автоматизации и проводок (начало) Компрессорная станция. План расположения средств автоматизации и проводок (окончание) Компрессорная станция. План расположения средств автоматизации и проводок (начало) Компрессорная станция. План расположения средств автоматизации и проводок (окончание) Компрессор № 1. План расположения средств автоматизации и проводок (начало) Компрессор № 1. План расположения средств автоматизации и проводок (окончание) Панель теплового контроля Общие данные Отопительные агрегаты. Схема автоматизации Отопительные агрегаты. Принципиальная электрическая схема управления Вентсистема В2. Электрические схемы Отопительные агрегаты. Схема внешних электрических и трубных проводок (начало) Отопительные агрегаты. Схема внешних электрических и трубных проводок (продолжение) Отопительные агрегаты. Схема внешних электрических и трубных проводок (окончание) Отопительные агрегаты. Схема внешних электрических и трубных проводок (начало) Отопительные агрегаты. Схема внешних электрических и трубных проводок (продолжение) Отопительные агрегаты. Схема внешних электрических и трубных проводок (окончание) Журнал кабельных проводок План расположения средств автоматизации и проводок Содержание альбома Техническое описание к применению выпуска Перечень технической документации Компрессорная станция 4К-120А Щит оператора. Общий вид Щит оператора. Таблица соединений Щит оператора. Таблица подключения Щит автоматики № 1. Общий вид Щит автоматики № 1. Таблица соединений Щит автоматики № 1. Таблица подключения Щит автоматики № 2. Общий вид Щит автоматики № 2. Таблица соединений Щит автоматики № 2. Таблица подключения Компрессорная станция 2К-120А Щит оператора. Общий вид Щит оператора. Таблица соединений Щит оператора. Таблица подключения |
| Разработан: | Гипростройдормаш |
| Утверждён: | 14.11.1986 Минстройдормаш (Minstroydormash 640) |








































































































