Скачать Типовой проект 904-1-70.86 Альбом 5. Строительные решения для 2 компрессоровДата актуализации: 01.01.2021
|
| Обозначение: | Типовой проект 904-1-70.86 |
| Обозначение англ: | 904-1-70.86 |
| Статус: | действует |
| Название рус.: | Альбом 5. Строительные решения для 2 компрессоров |
| Дата добавления в базу: | 01.09.2013 |
| Дата актуализации: | 01.01.2021 |
| Дата введения: | 14.11.1986 |
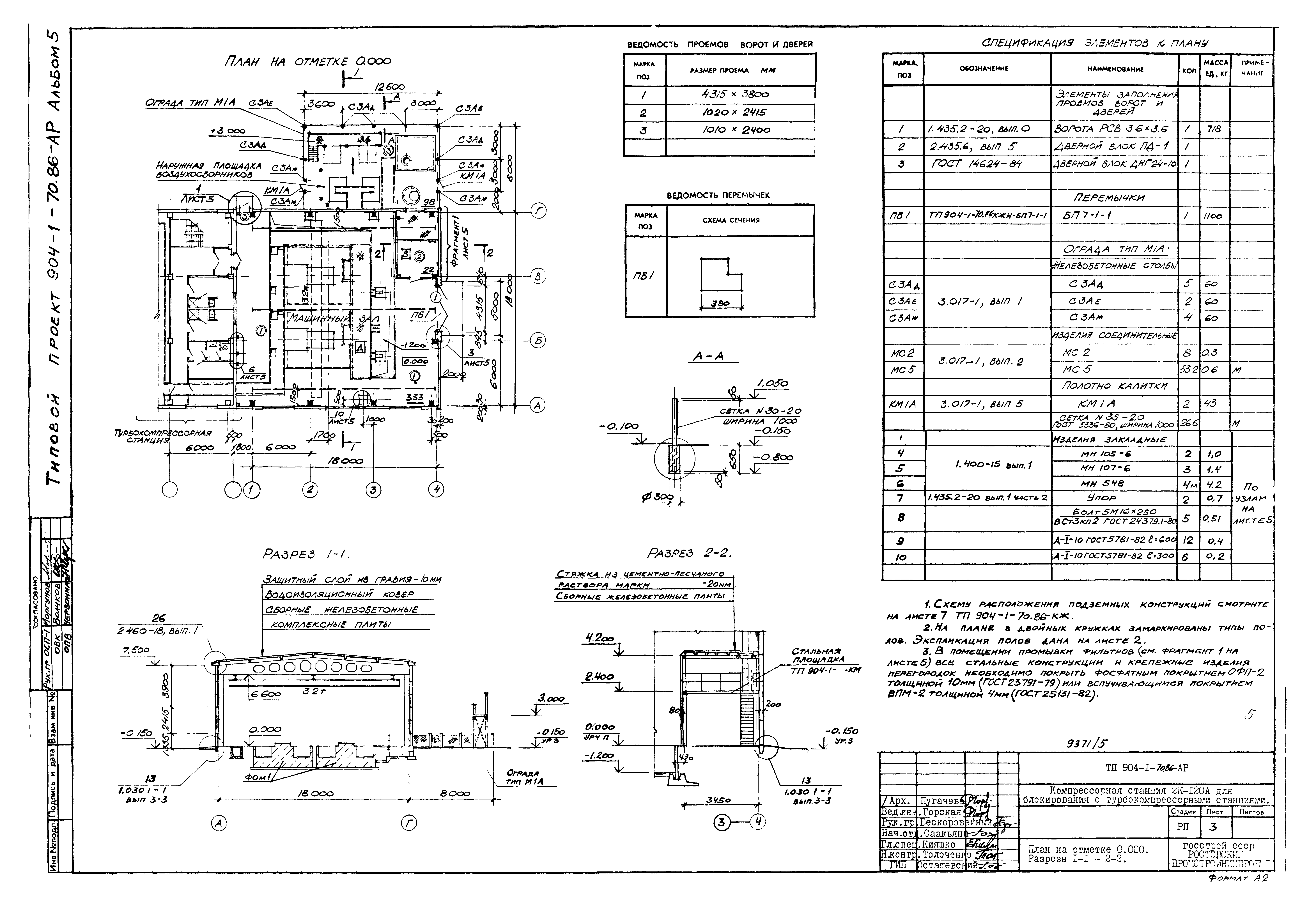
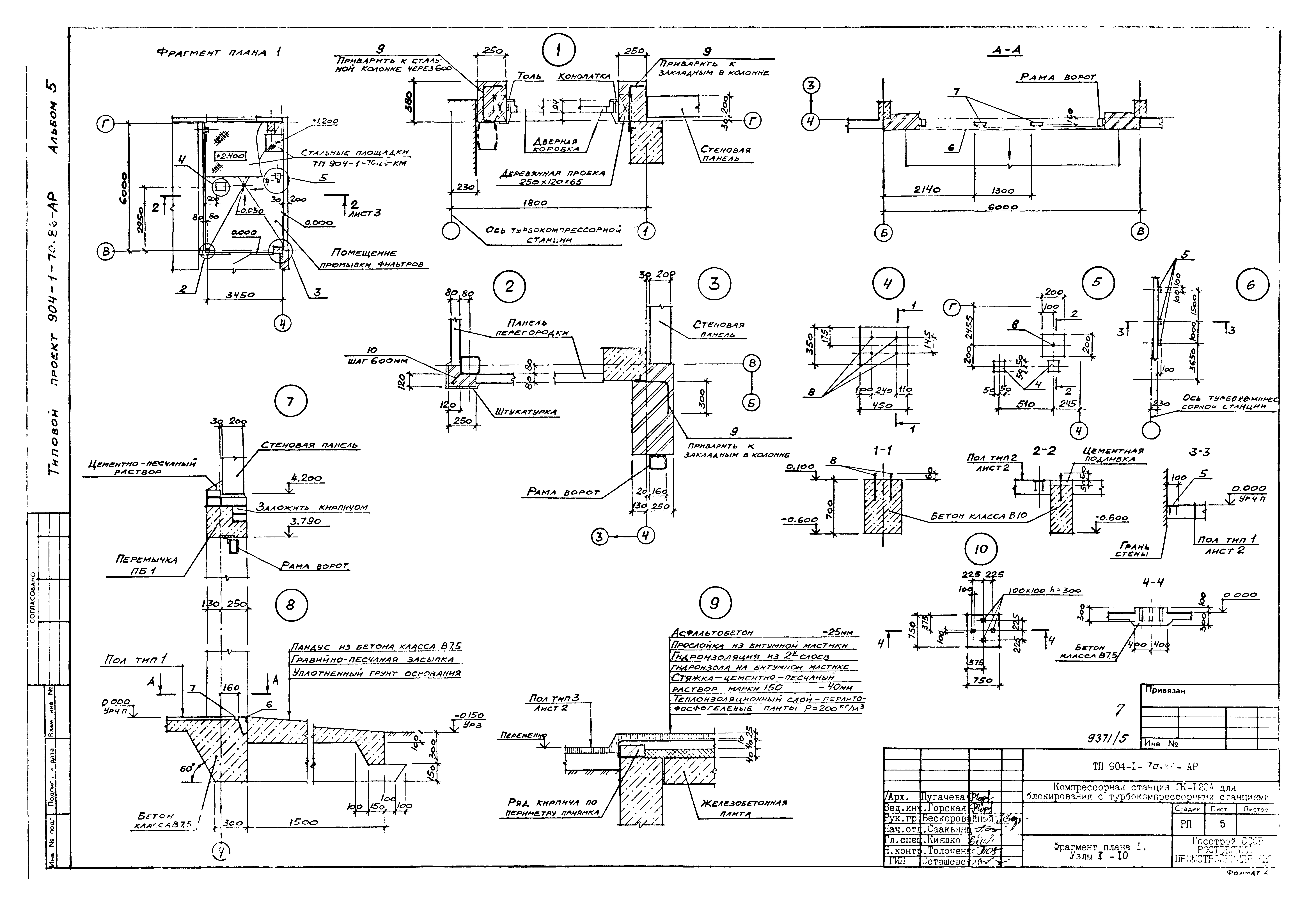
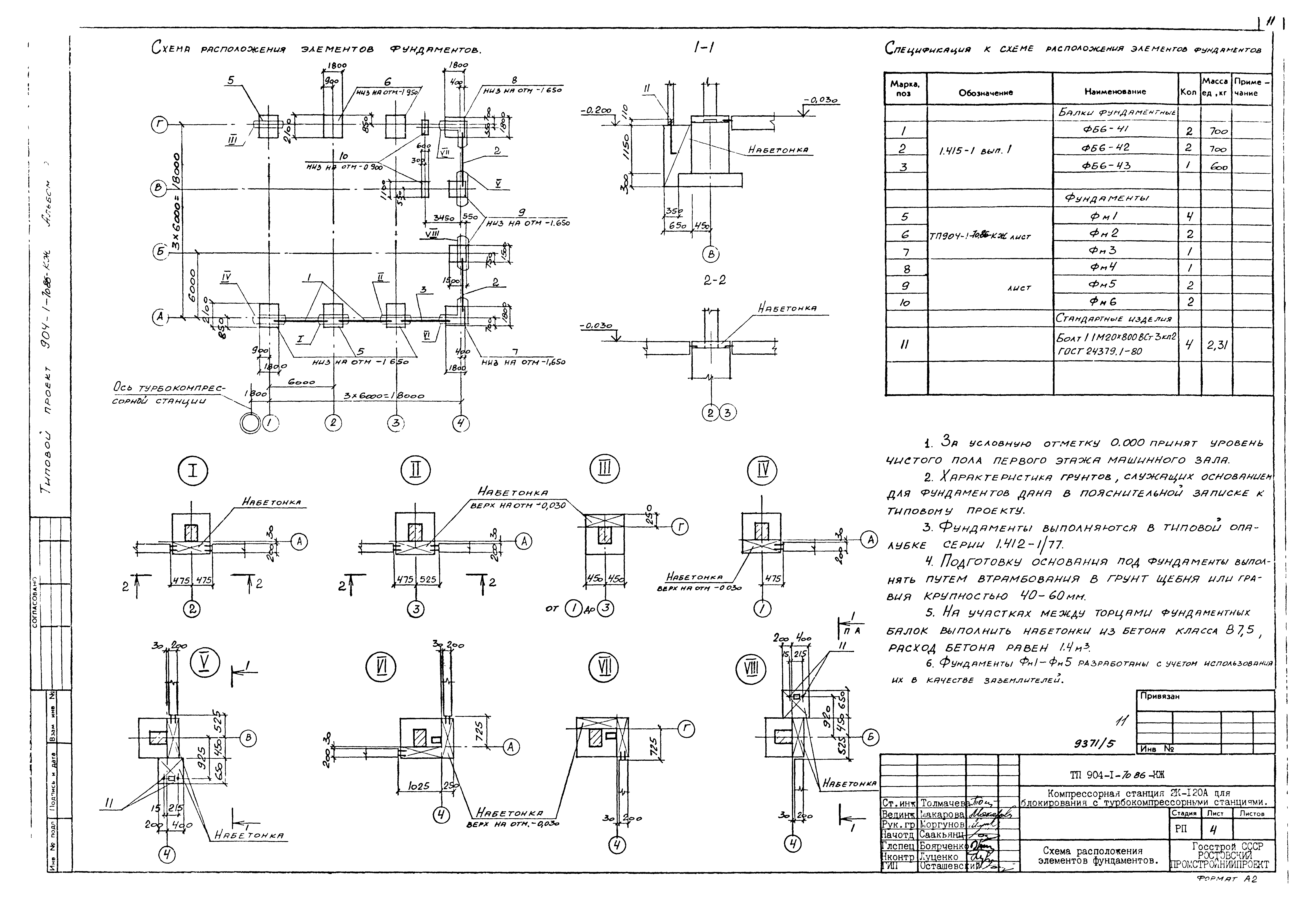
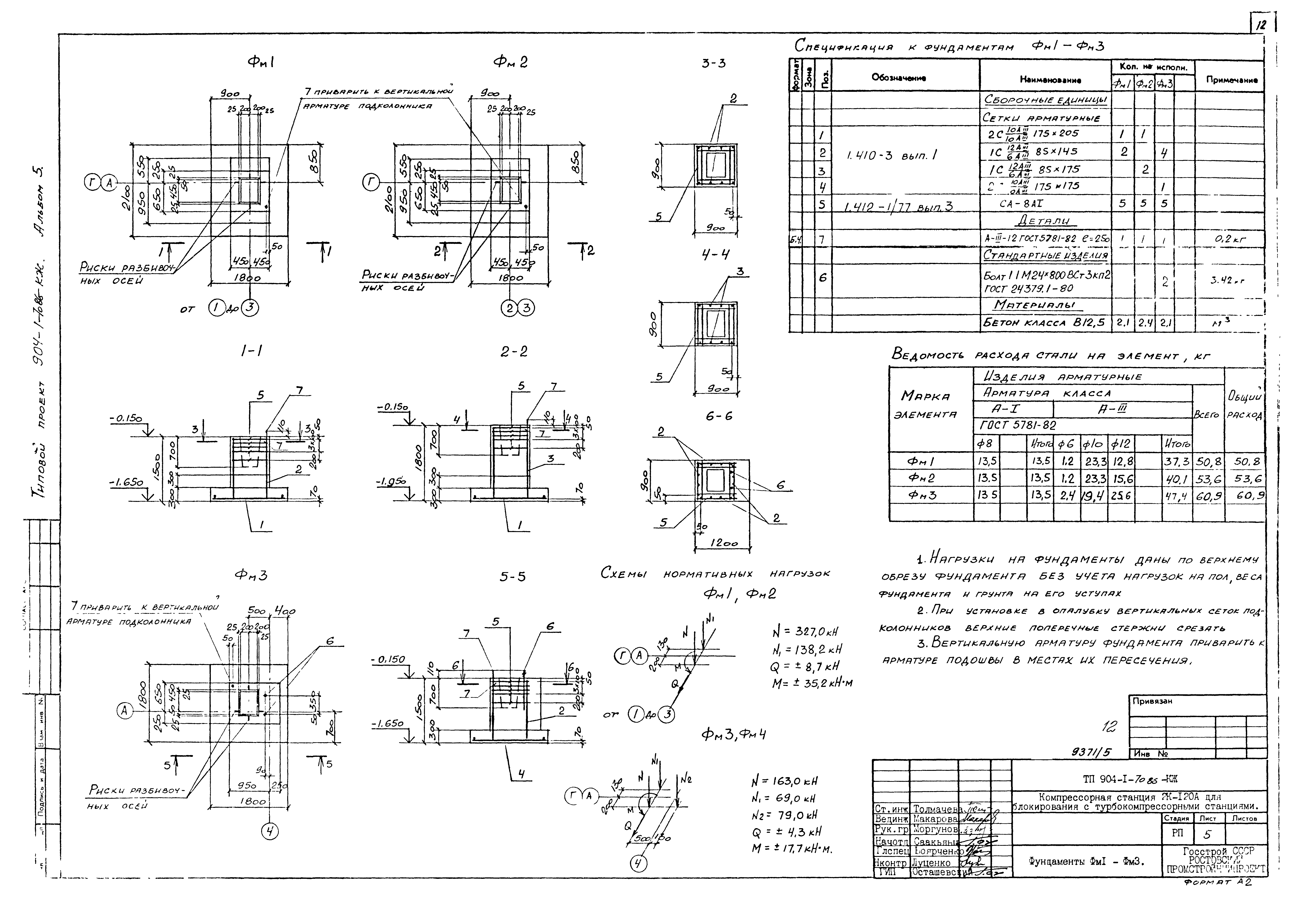
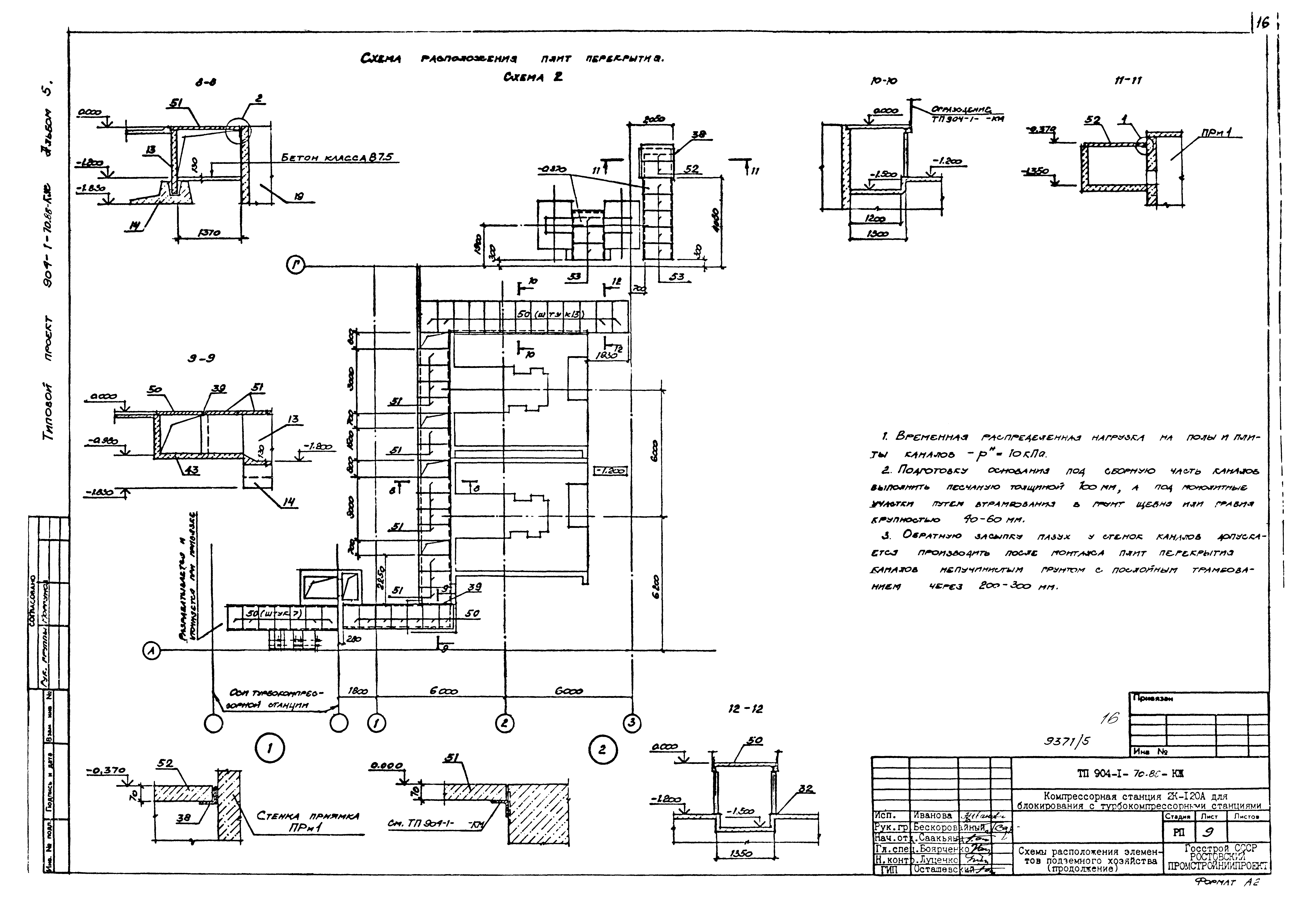
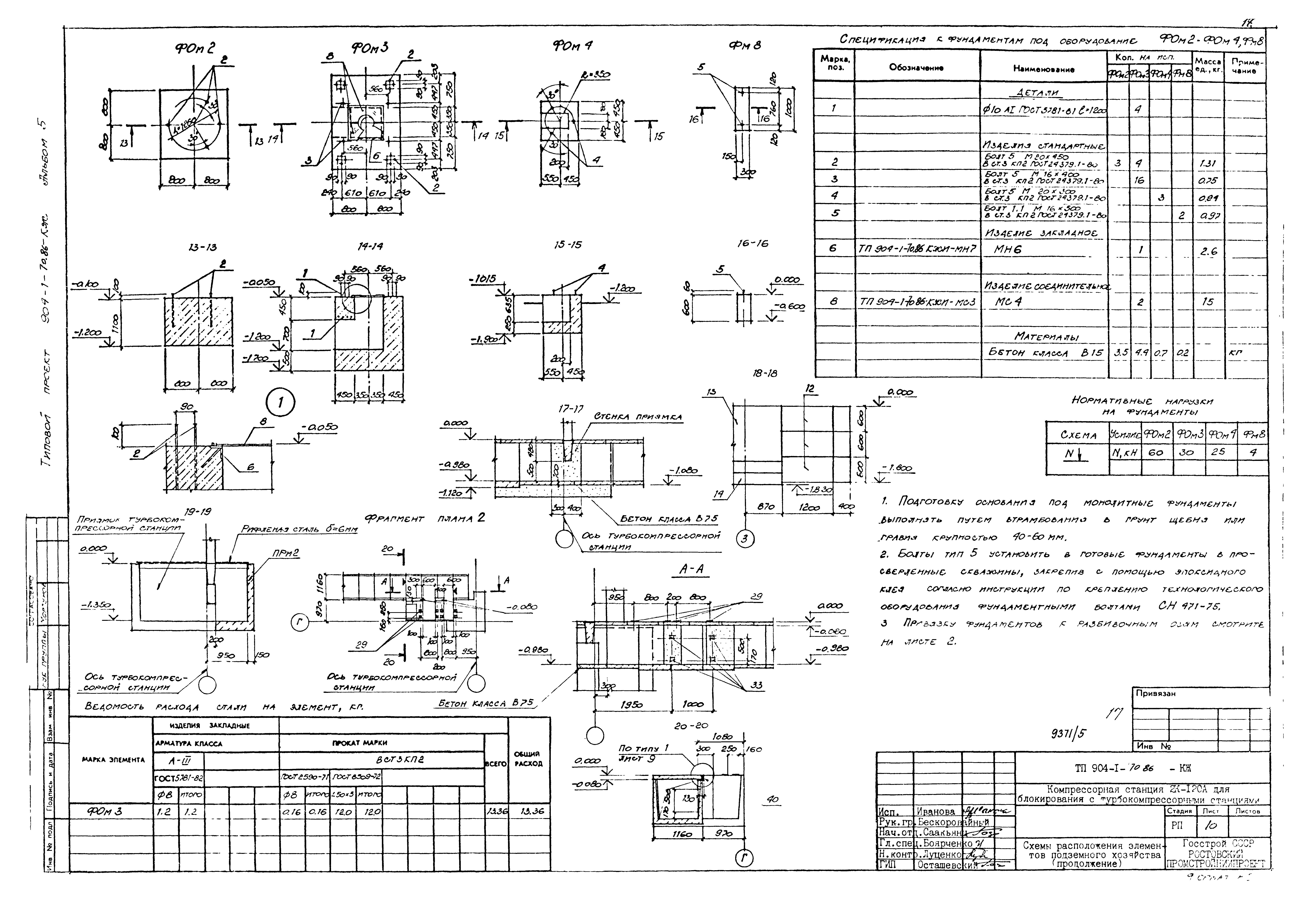
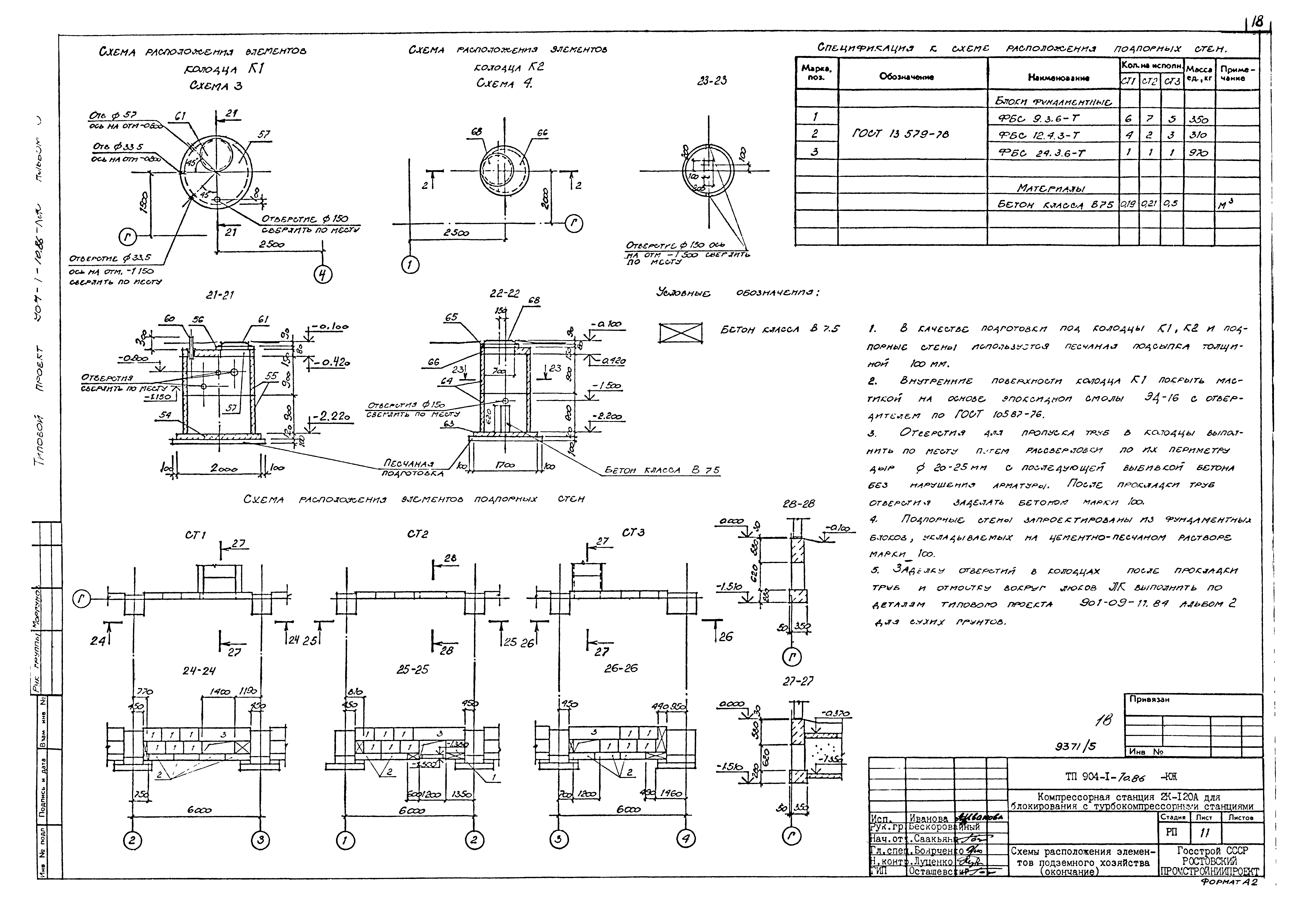
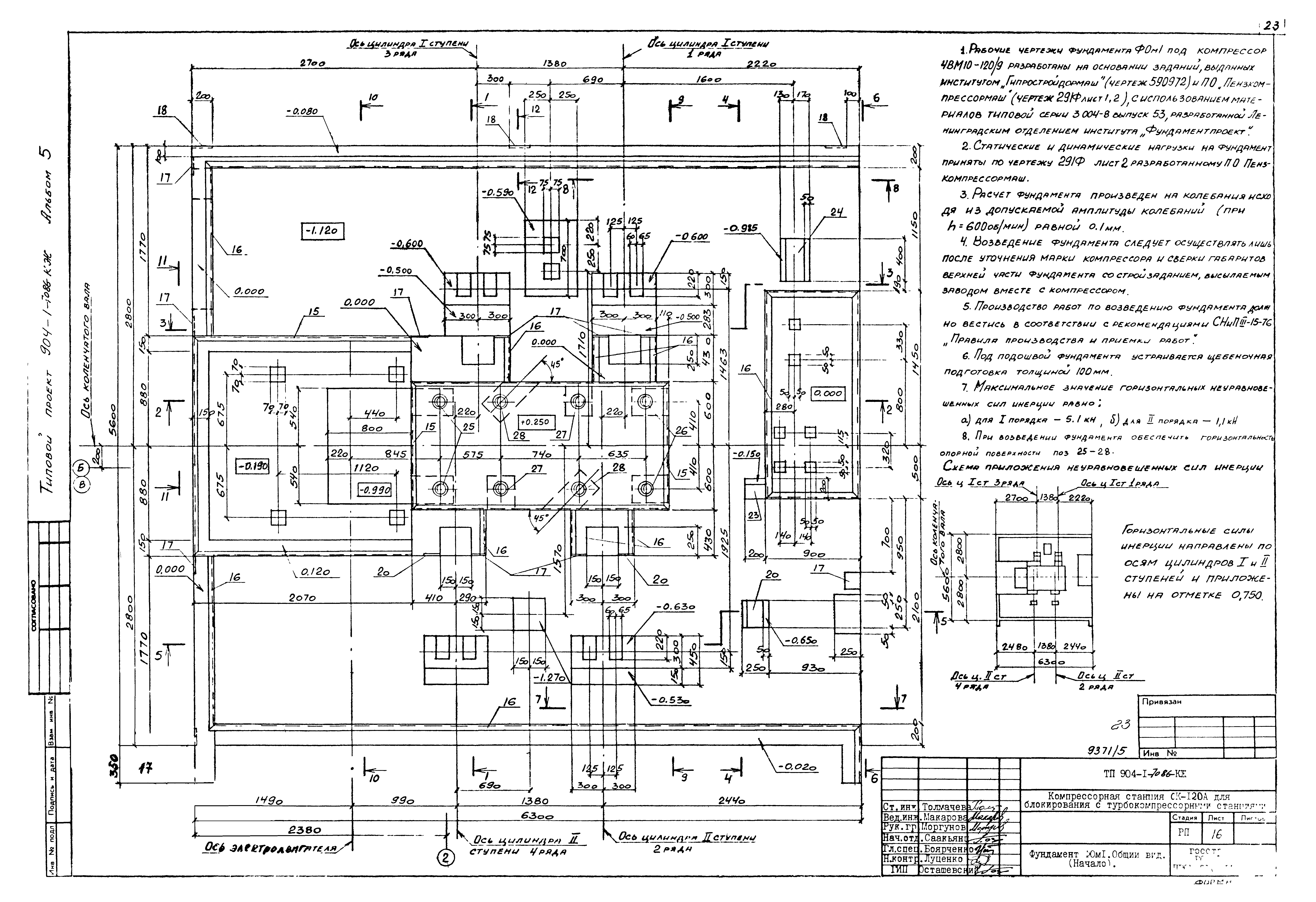
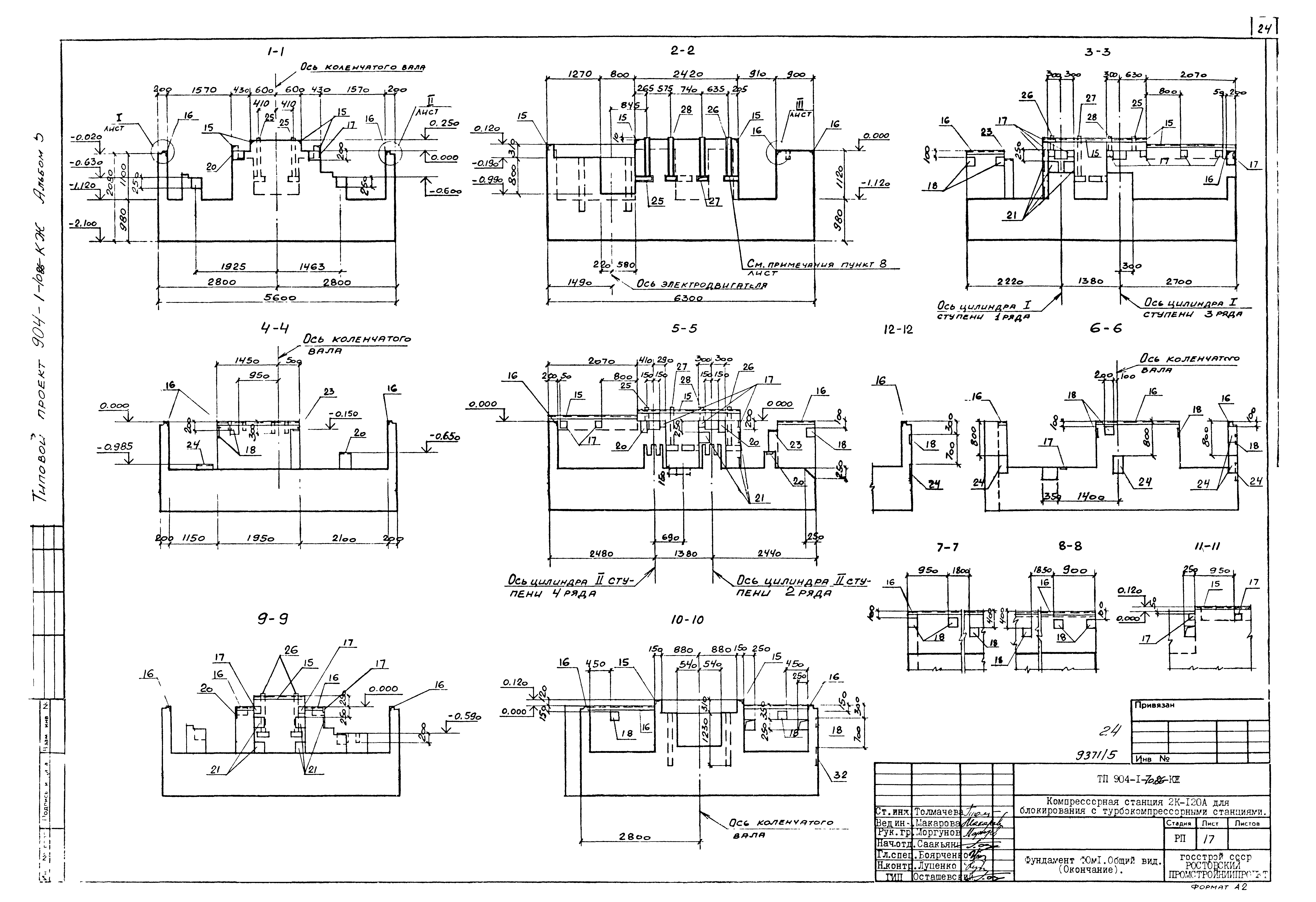
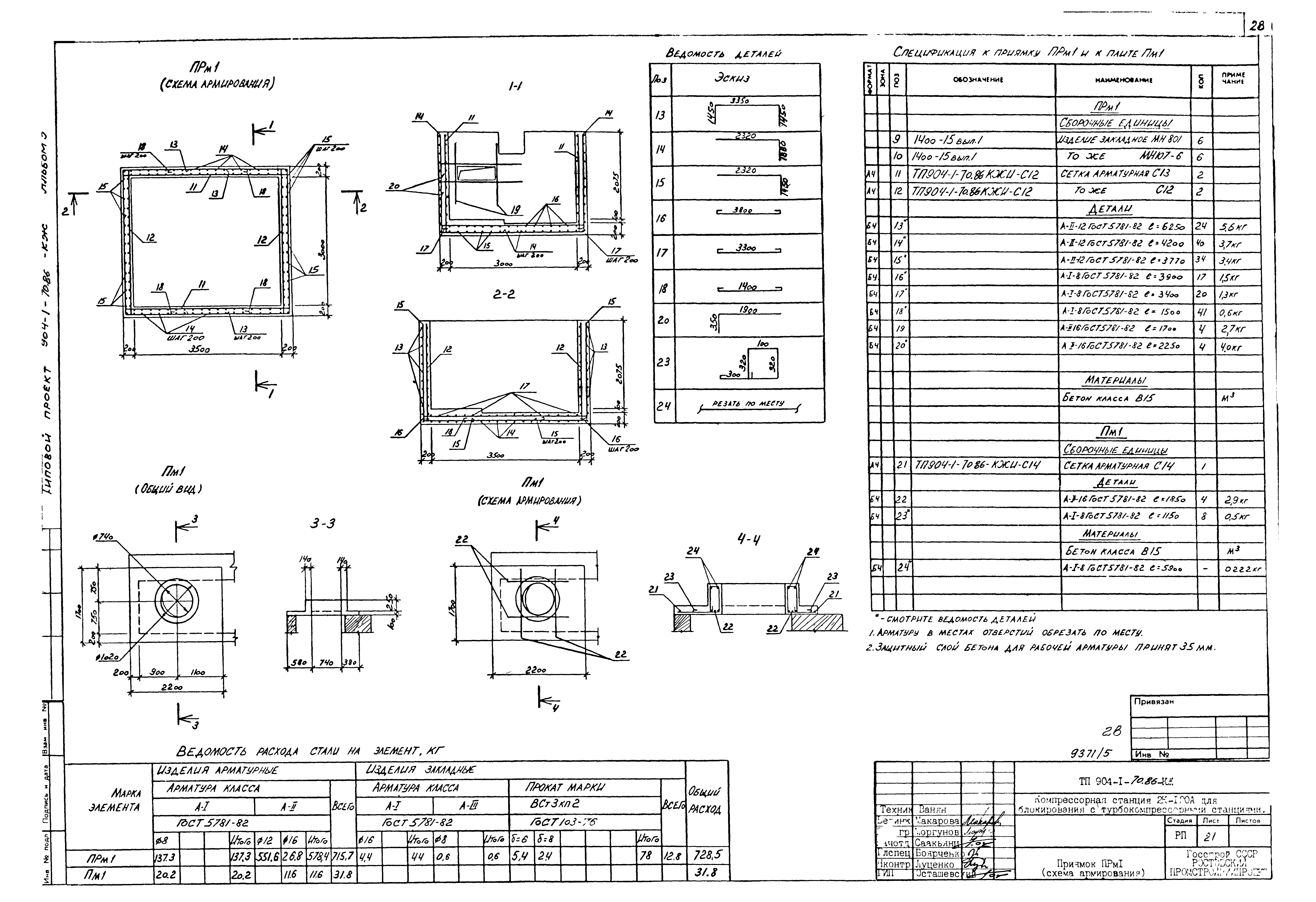
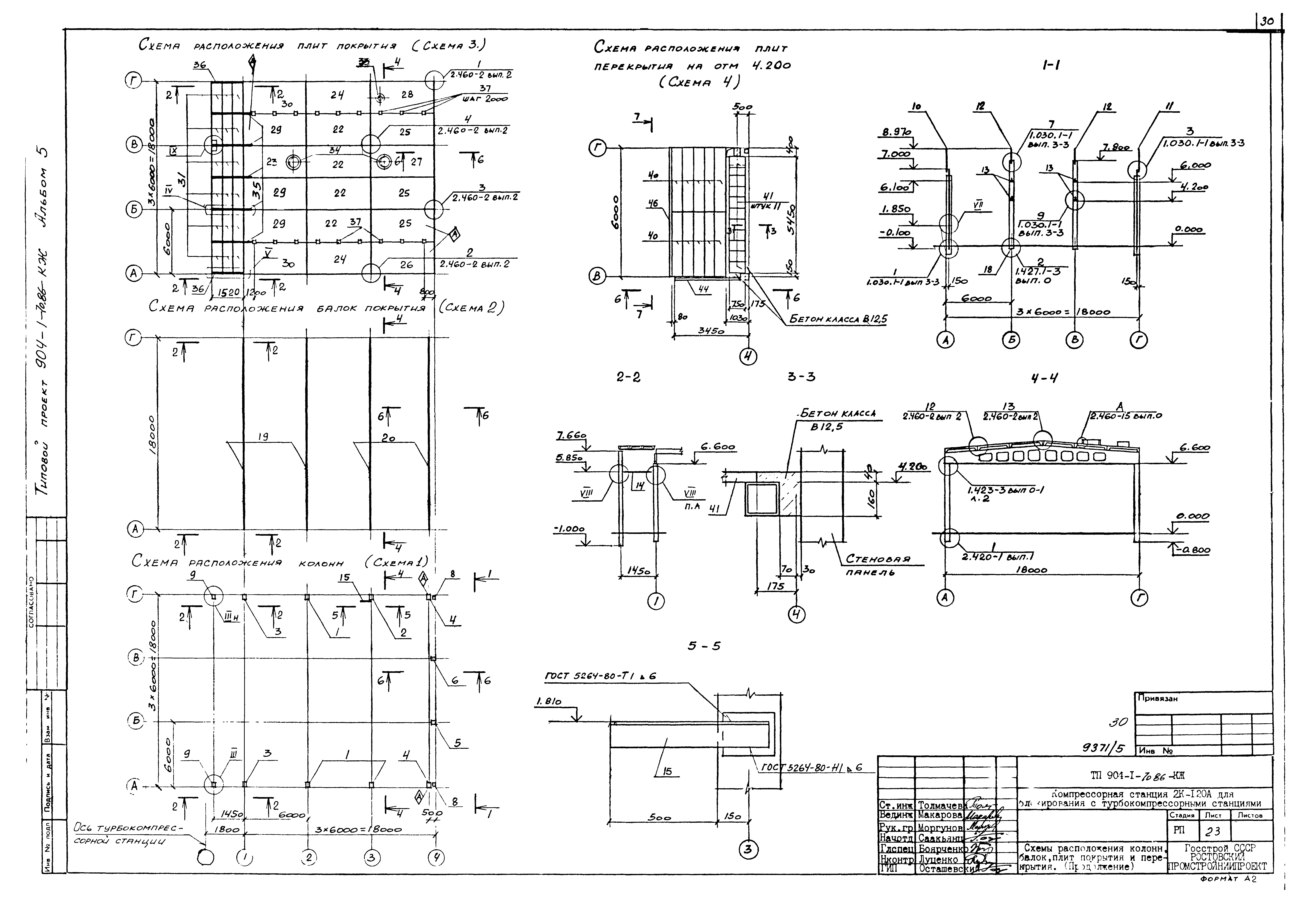
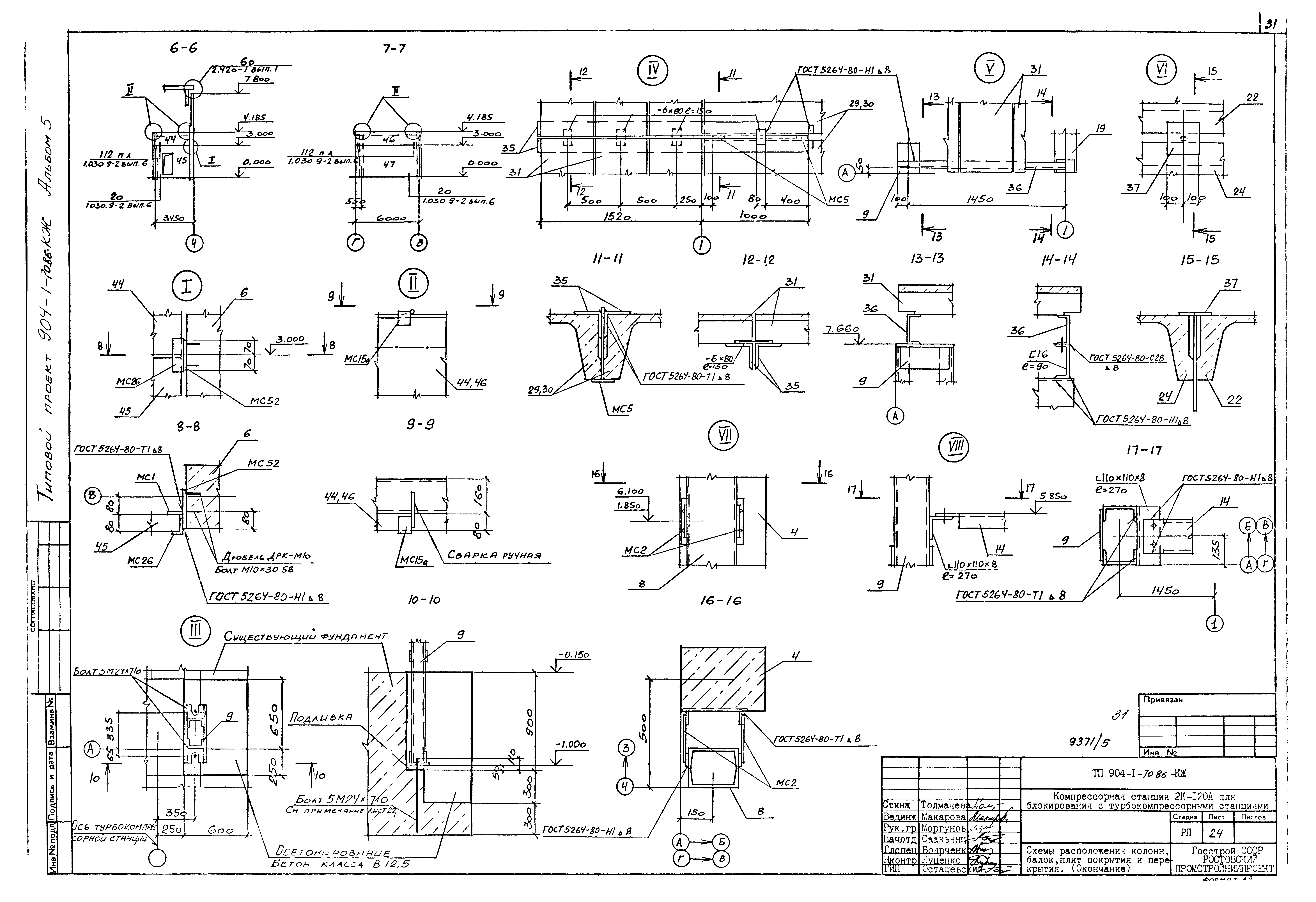
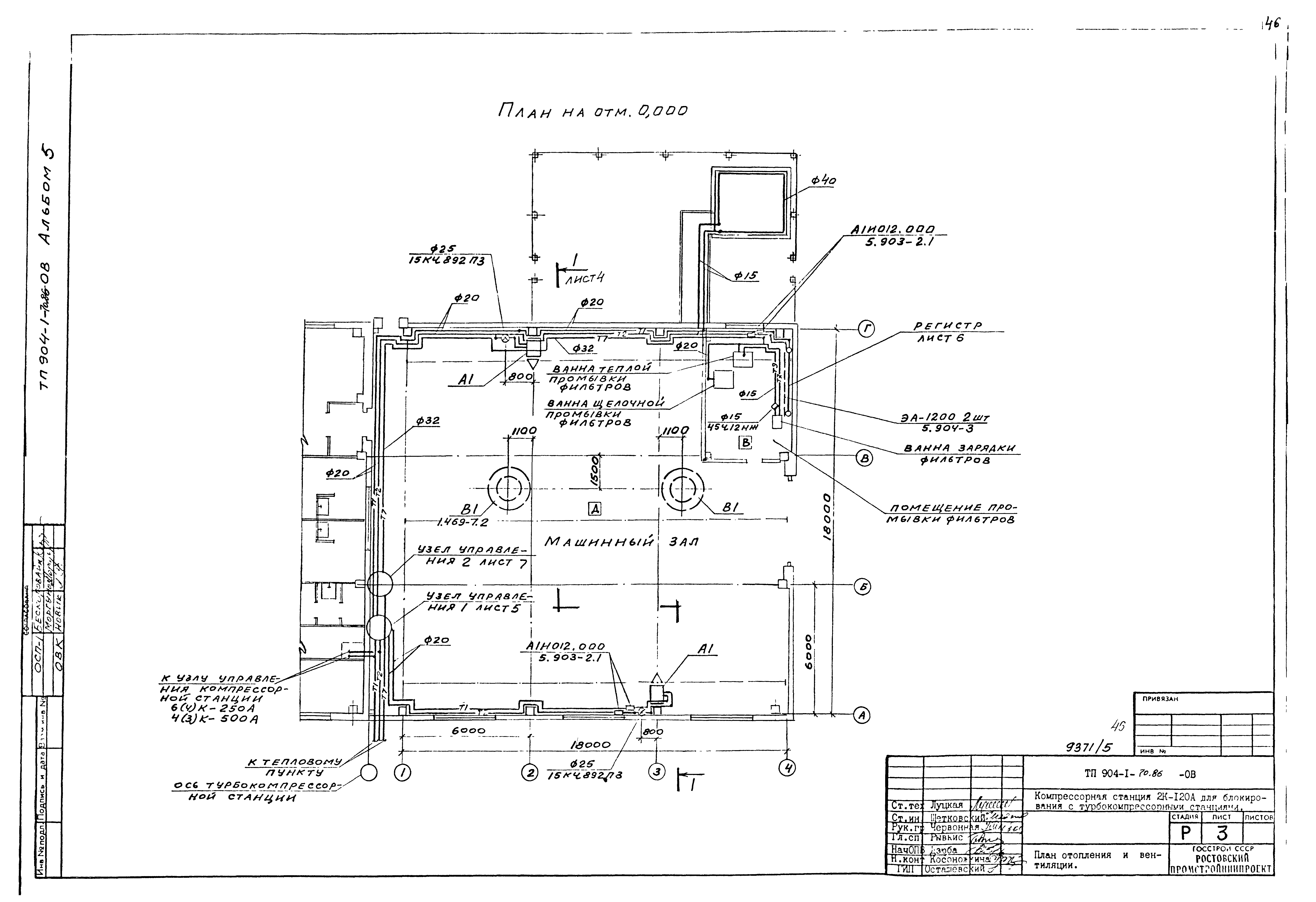
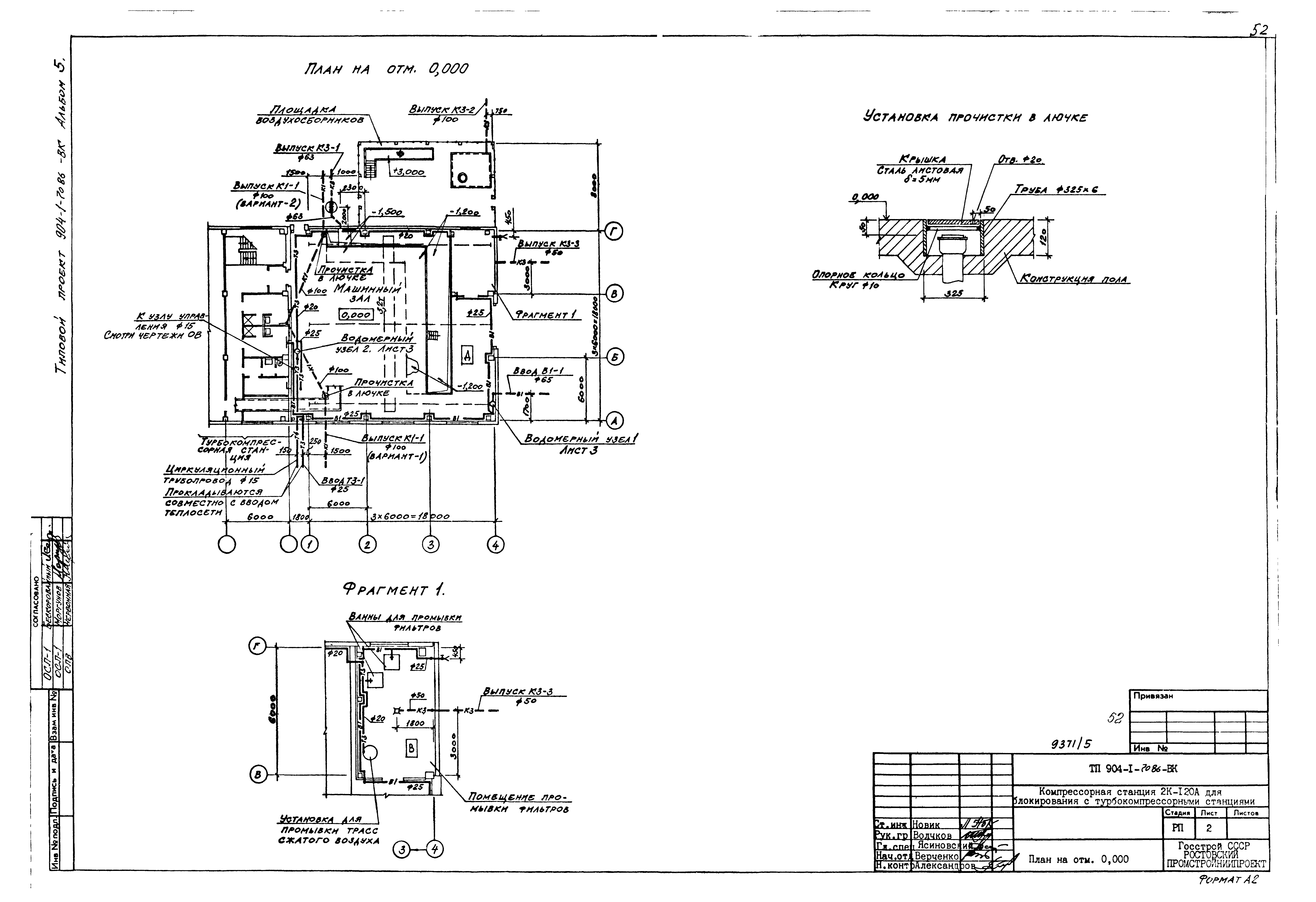
| Оглавление: | ТП 904-1-70.86-ПЗ Пояснительная записка ТП 904-1-70.86-АР Архитектурные решения ТП 904-1-70.86-КЖ Конструкции железобетонные ТП 904-1-70.86-КМ Конструкции металлические ТП 904-1-70.86-ОВ Отопление и вентиляция ТП 904-1-70.86-ВК Внутренние водопровод и канализация |
| Разработан: | Ростовский Промстройниипроект Госстроя СССР |
| Утверждён: | 14.11.1986 Минстройдормаш (Minstroydormash 640) |






















































