Скачать Типовой проект 902-1-71.83 Альбом II. Технологические решения. Внутренний водопровод и канализация. Отопление и вентиляция (из ТП 902-1-70.83)Дата актуализации: 01.01.2021
|
| Обозначение: | Типовой проект 902-1-71.83 |
| Обозначение англ: | 902-1-71.83 |
| Статус: | заменен |
| Название рус.: | Альбом II. Технологические решения. Внутренний водопровод и канализация. Отопление и вентиляция (из ТП 902-1-70.83) |
| Дата добавления в базу: | 01.09.2013 |
| Дата актуализации: | 01.01.2021 |
| Дата введения: | 28.10.1983 |
| Дата окончания срока действия: | 01.11.1990 |
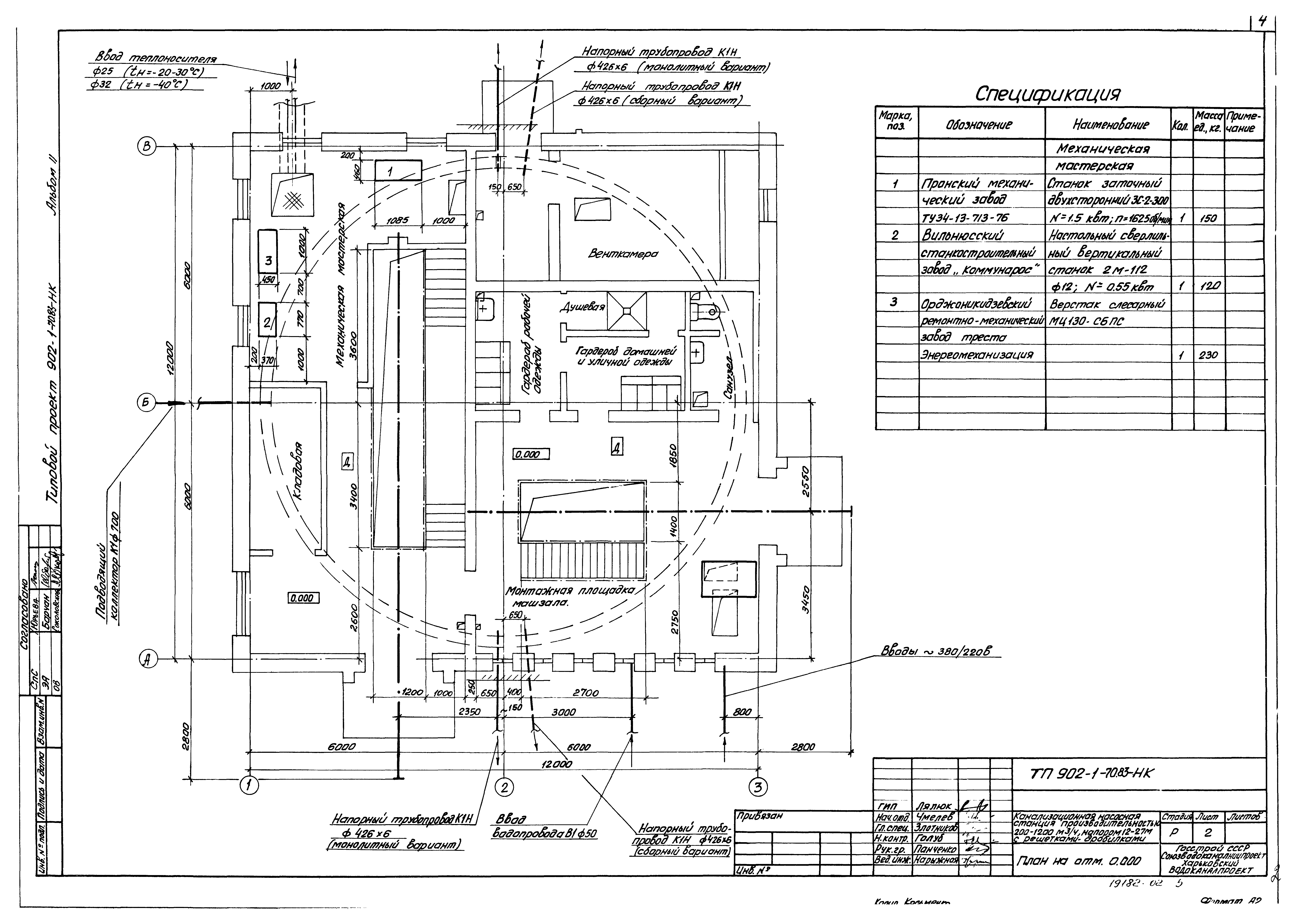
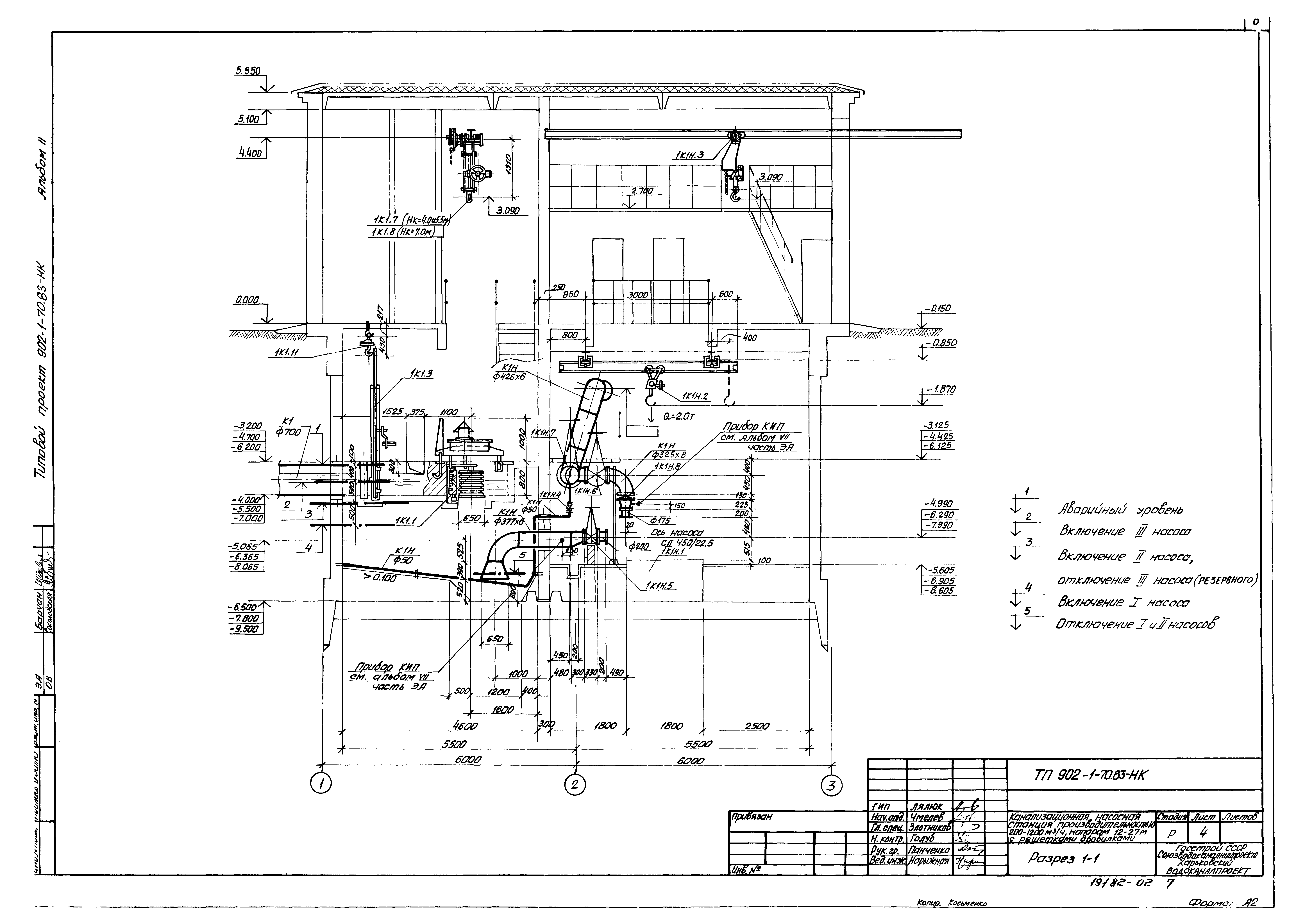
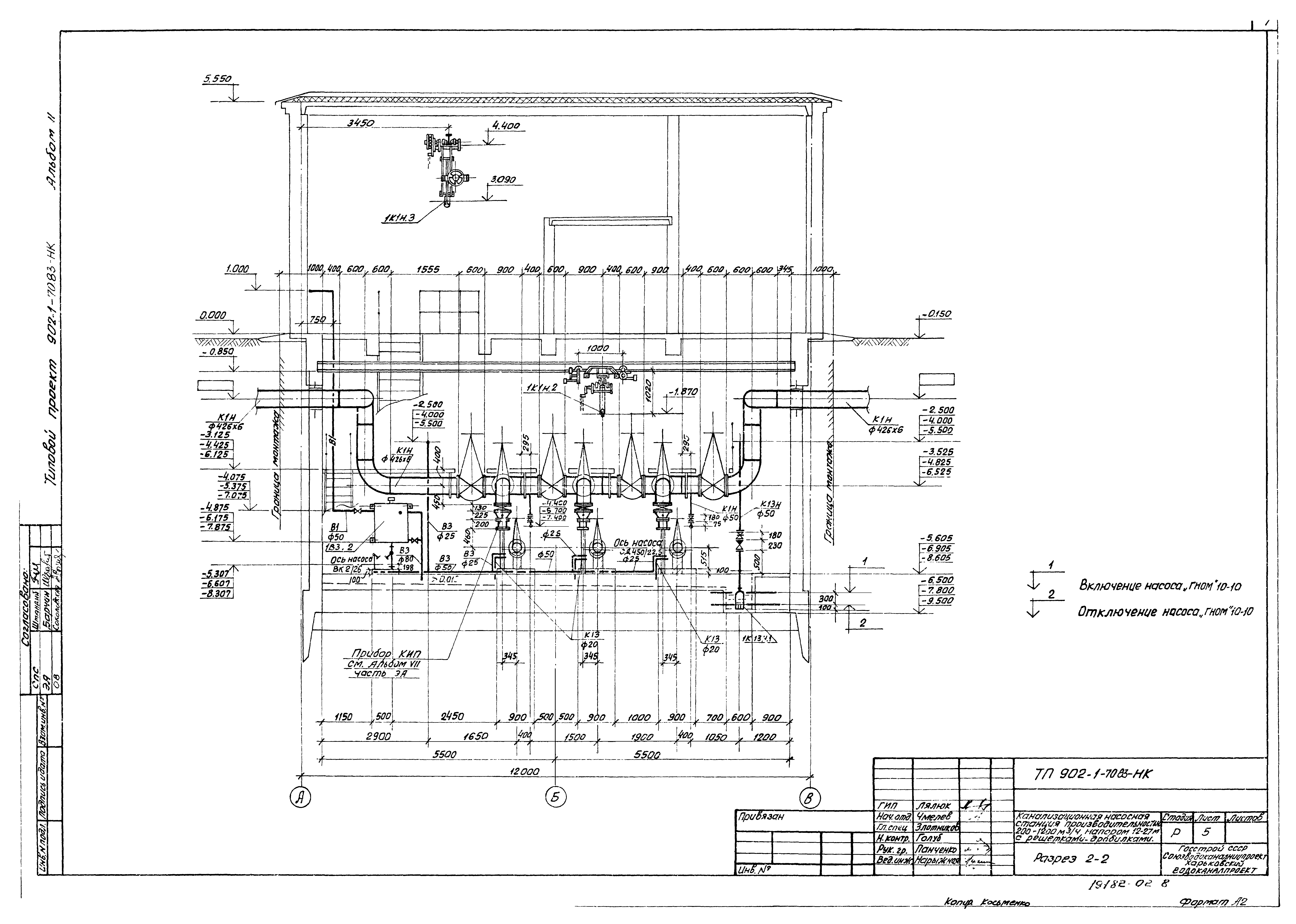
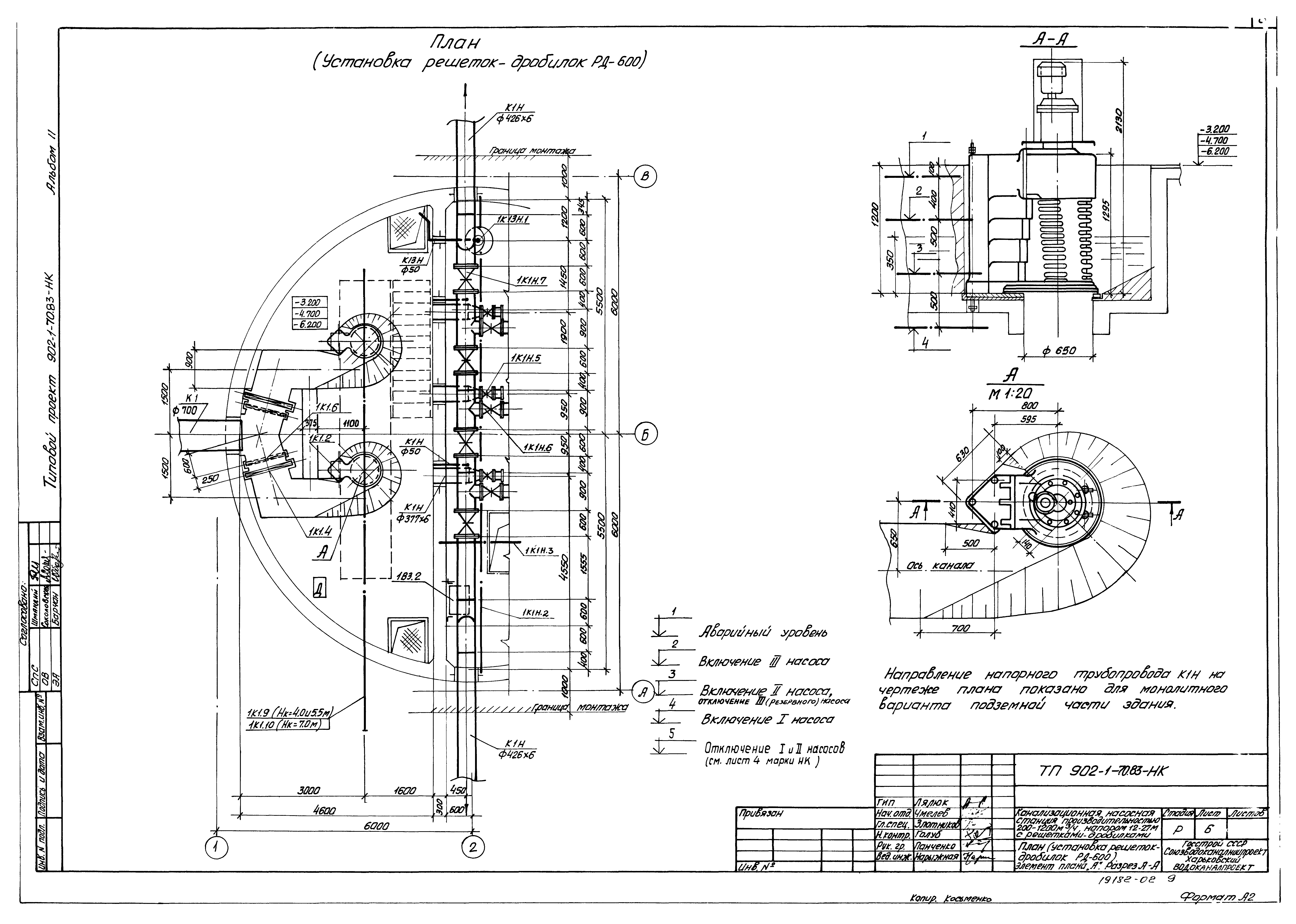
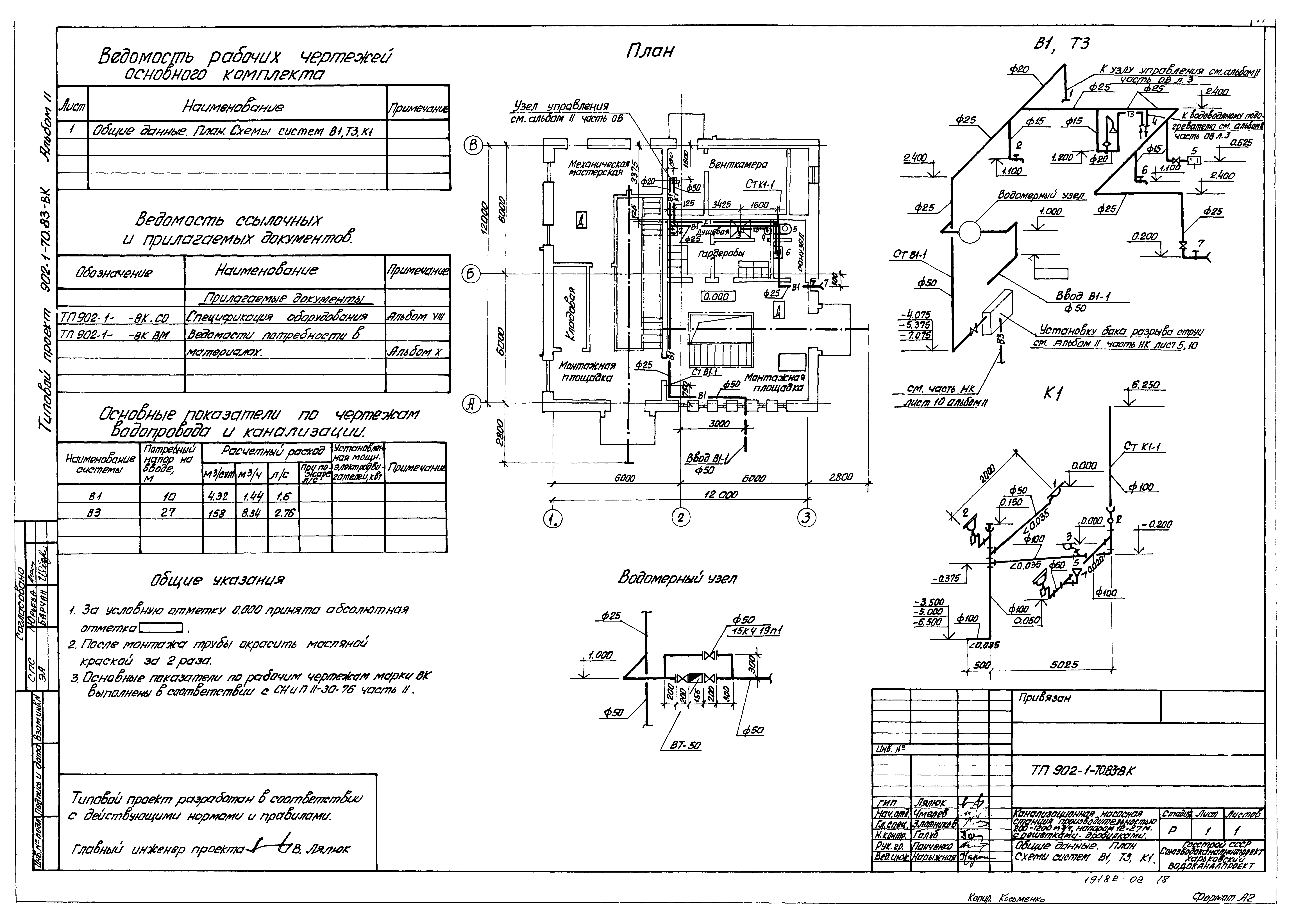
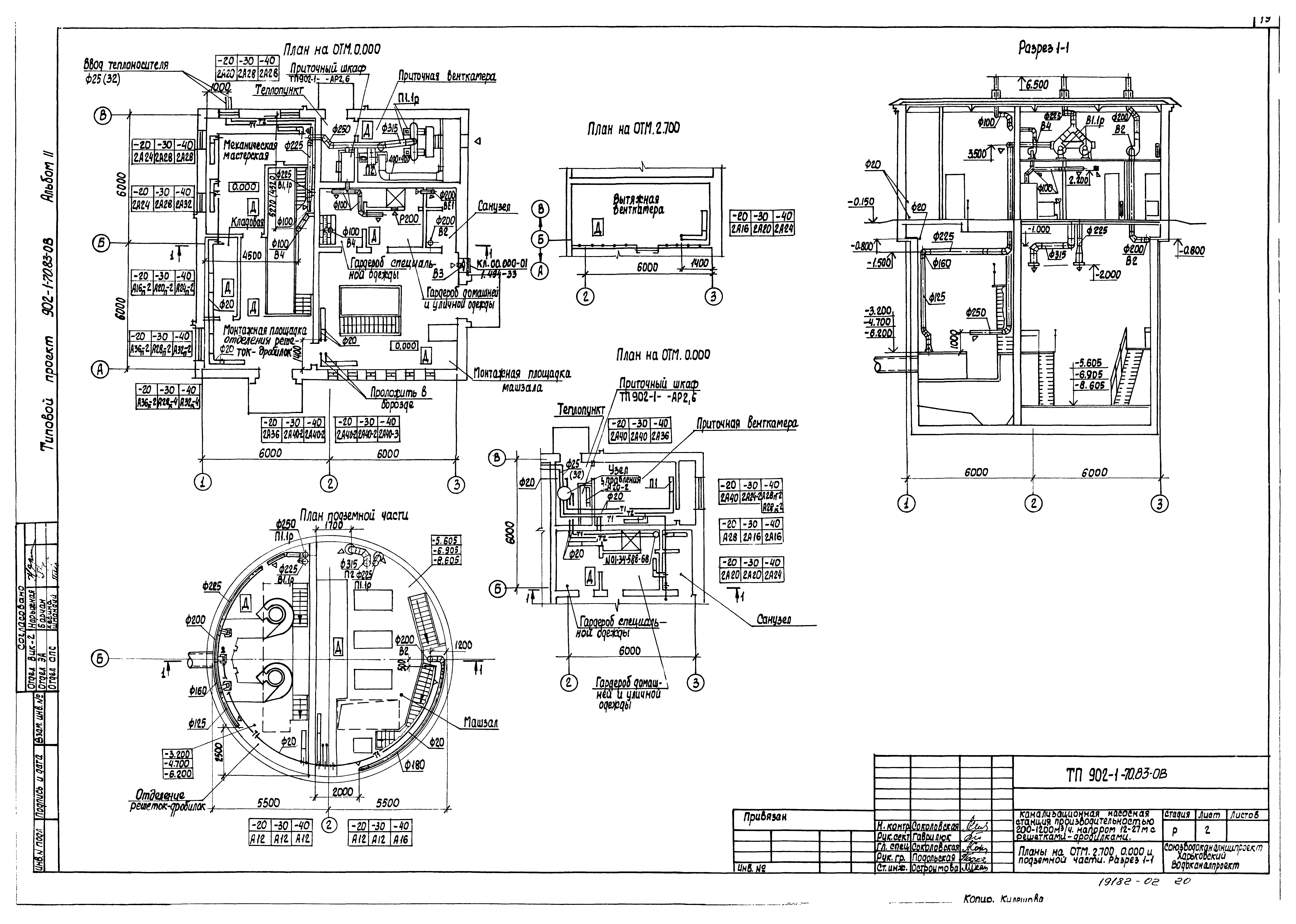
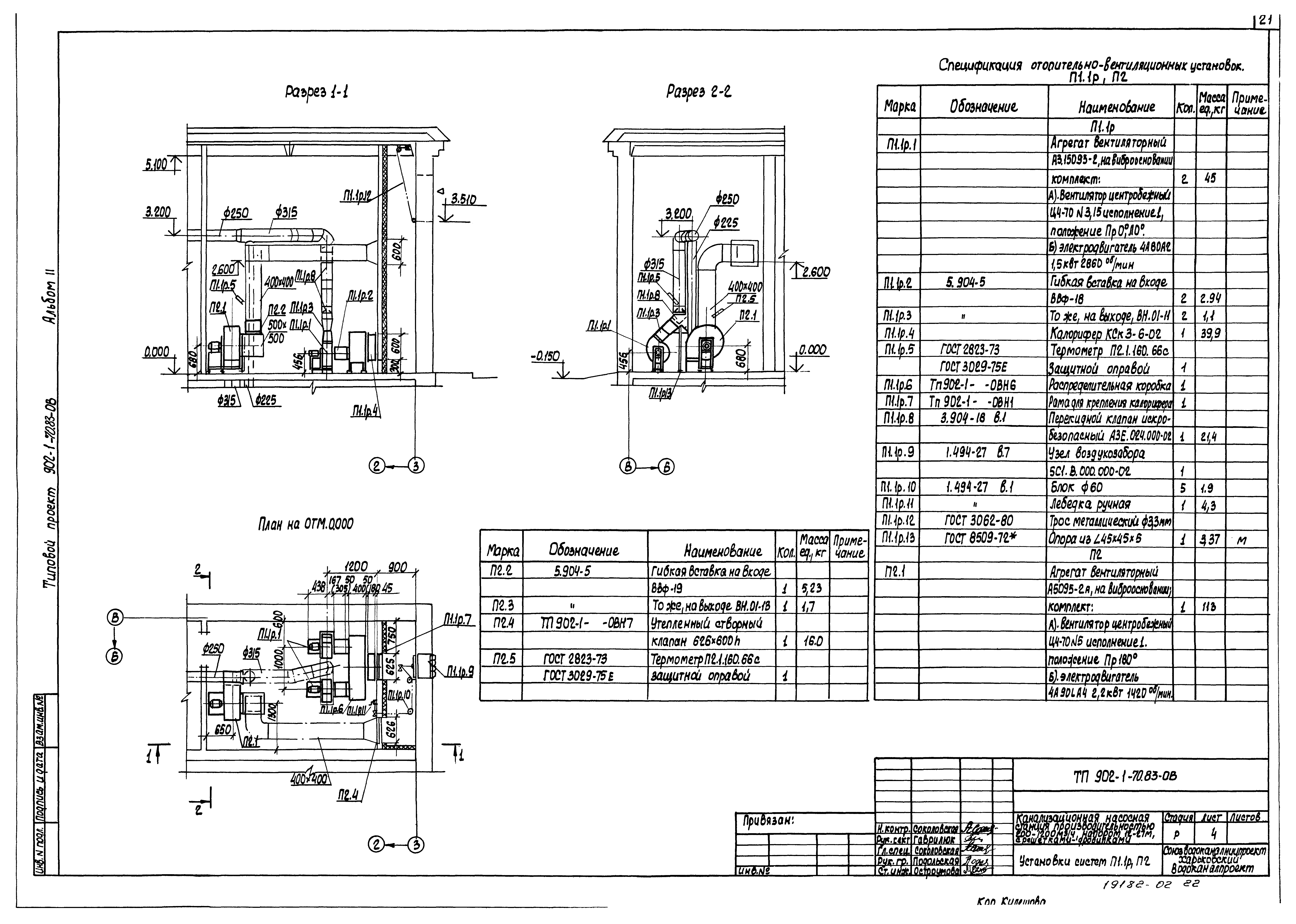
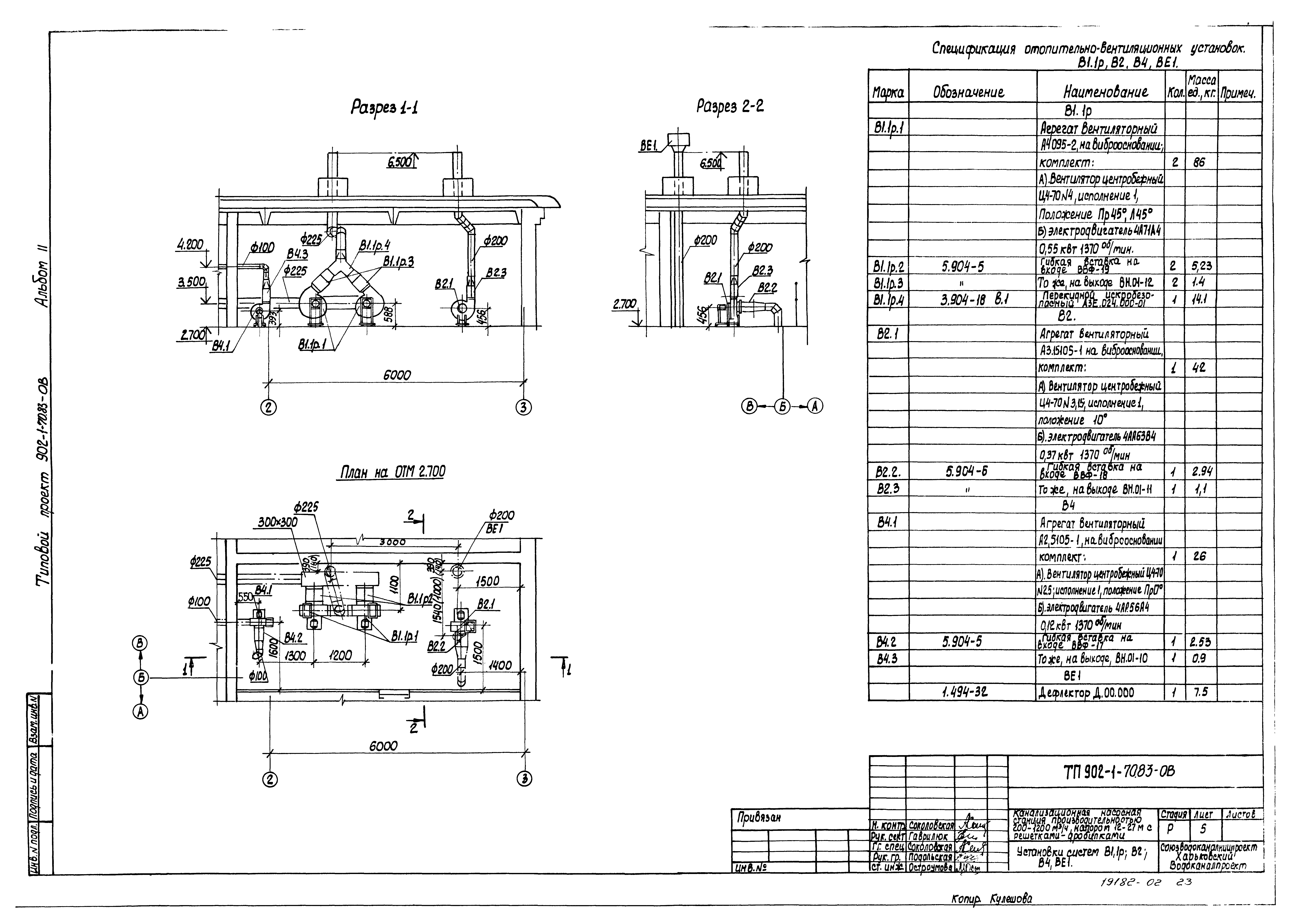
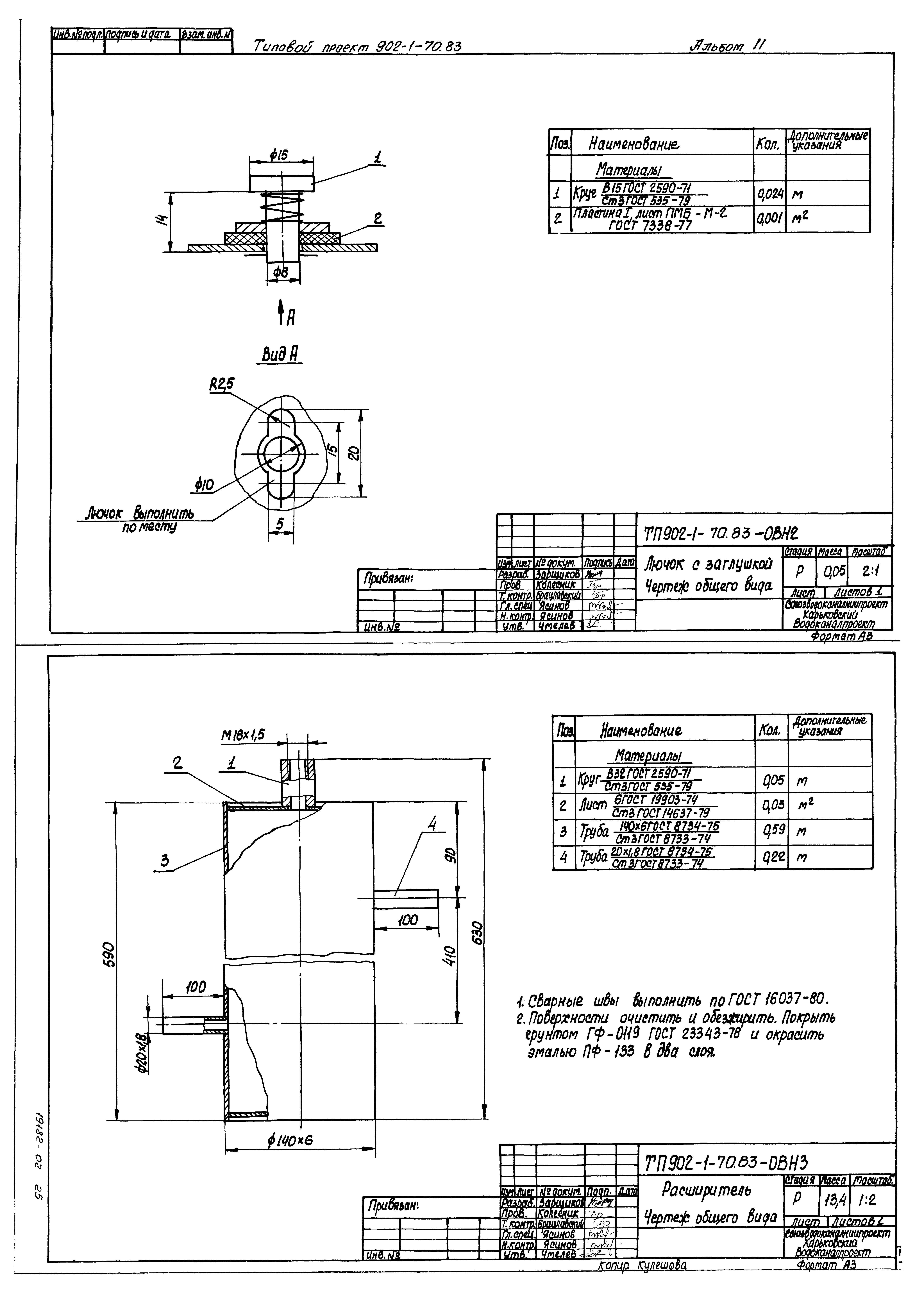
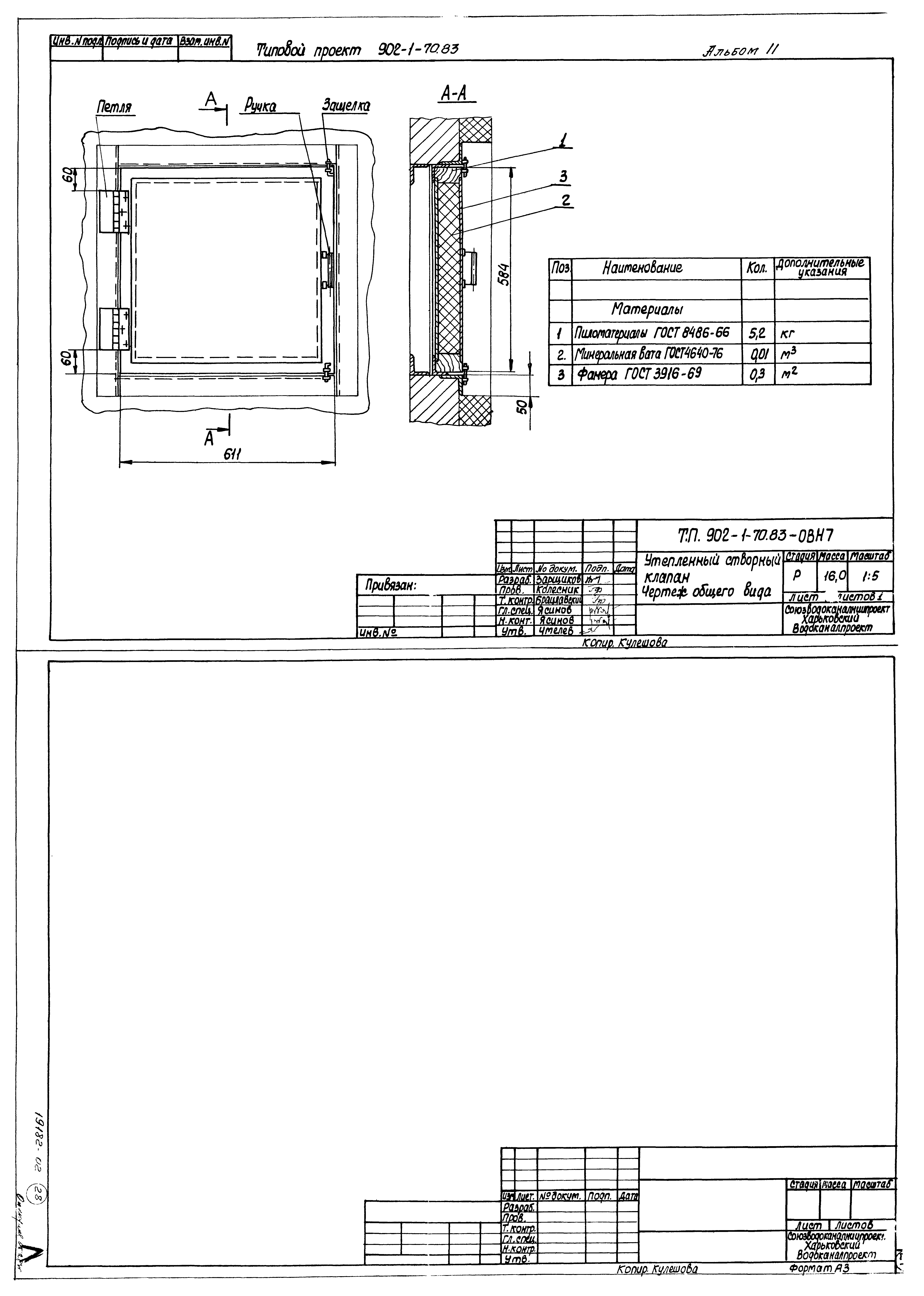
| Оглавление: | Содержание альбома II Основной комплект марки НК Общие данные План на отм. 0.000 План (установка решеток-дробилок КРД 40 м) Разрез 1-1 Разрез 2-2 План (установка решеток-дробилок РД 600). Элемент плана "А". Разрез А-А План приемного резервуара. Разрез 1-1 Аксонометрические схемы 1К1,1К1Н Спецификация 1К1,1К1Н План на отм. □. Аксонометрические схемы 1В3,1К13,1К13Н Спецификация 1В3,1К13Н,1К13 Общие виды нетиповых конструкций марки НКН Ремонтная решетка Монтажный патрубок Устройство отборное с разделительной мембраной для манометра Патрубок Основной комплект марки ВК Общие данные. План. 1,1Т3,2К1 Основной комплект марки ОВ Общие данные Планы на отм. 2.700;0.000 и подземной части. Разрез 1-1 Схемы систем П1.1р;П2;В1.1р;В2;В4;ВЕ1, отопления, теплоснабжения установки П1 и водоподогревателя, узел управления Установки систем П1.1р;П2 Установки систем В1.1р;В2;В4;ВЕ1 Общие виды нетиповых конструкций марки ОВН Рама для крепления калорифера. Чертеж общего вида Лючок с заглушкой. Чертеж общего вида Расширитель. Чертеж общего вида Зонт. Чертеж общего вида Вставка редукционная. Чертеж общего вида Короб воздухосборный. Чертеж общего вида Утепленный створный клапан. Чертеж общего вида |
| Разработан: | Харьковский Водоканалпроект |
| Утверждён: | 27.06.1983 СоюзводоканалНИИпроект (SoyuzvodokanalNIIproject 32) |
| Чем заменён: |



























