Скачать Типовой проект 902-1-76.83 Альбом IV. Строительные решения. Подземная часть. Сборно-монолитный вариант (опускной способ в сухих и мокрых грунтах)Дата актуализации: 01.01.2021
|
| Обозначение: | Типовой проект 902-1-76.83 |
| Обозначение англ: | 902-1-76.83 |
| Статус: | действует |
| Название рус.: | Альбом IV. Строительные решения. Подземная часть. Сборно-монолитный вариант (опускной способ в сухих и мокрых грунтах) |
| Дата добавления в базу: | 01.09.2013 |
| Дата актуализации: | 01.01.2021 |
| Дата введения: | 28.10.1983 |
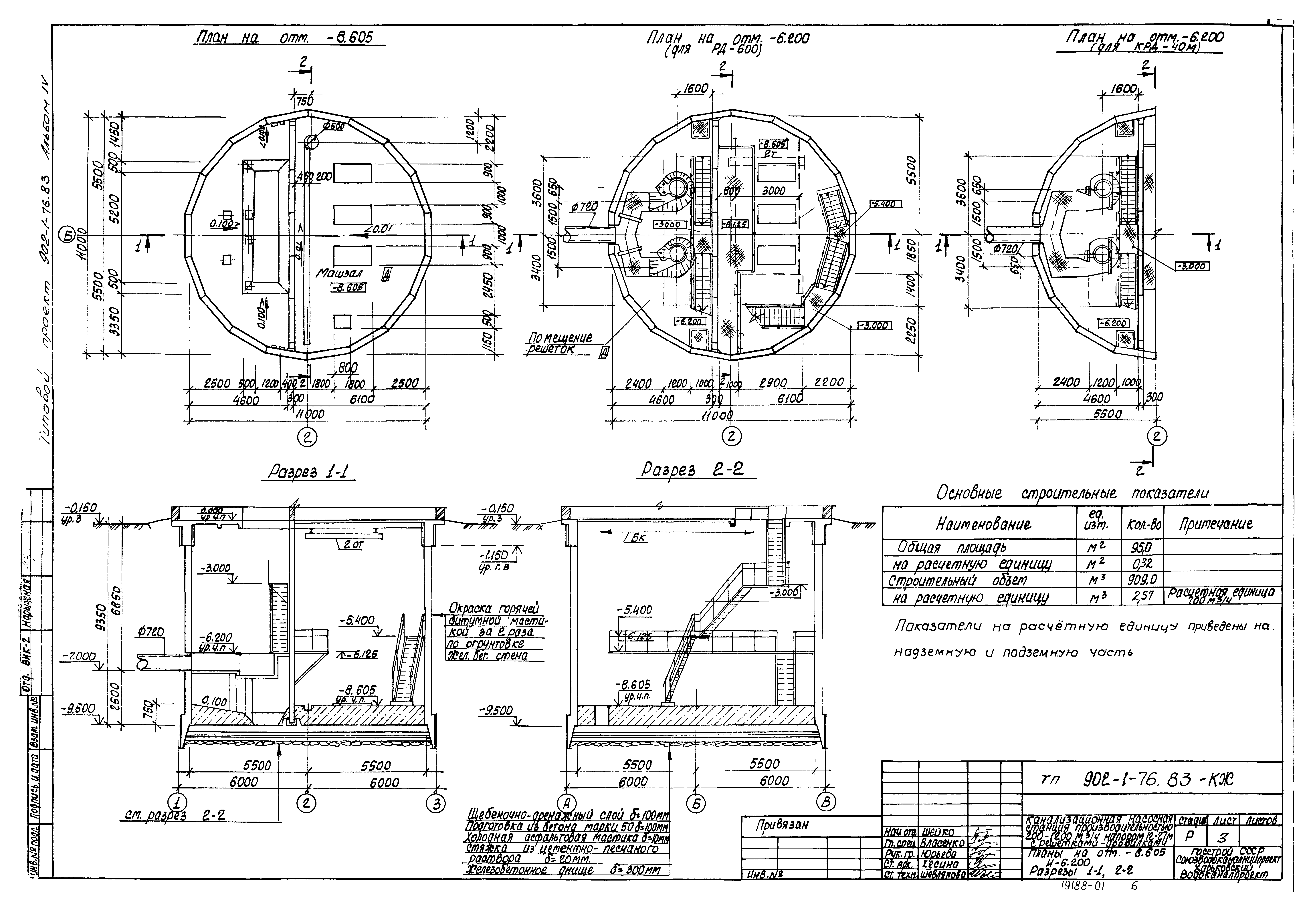
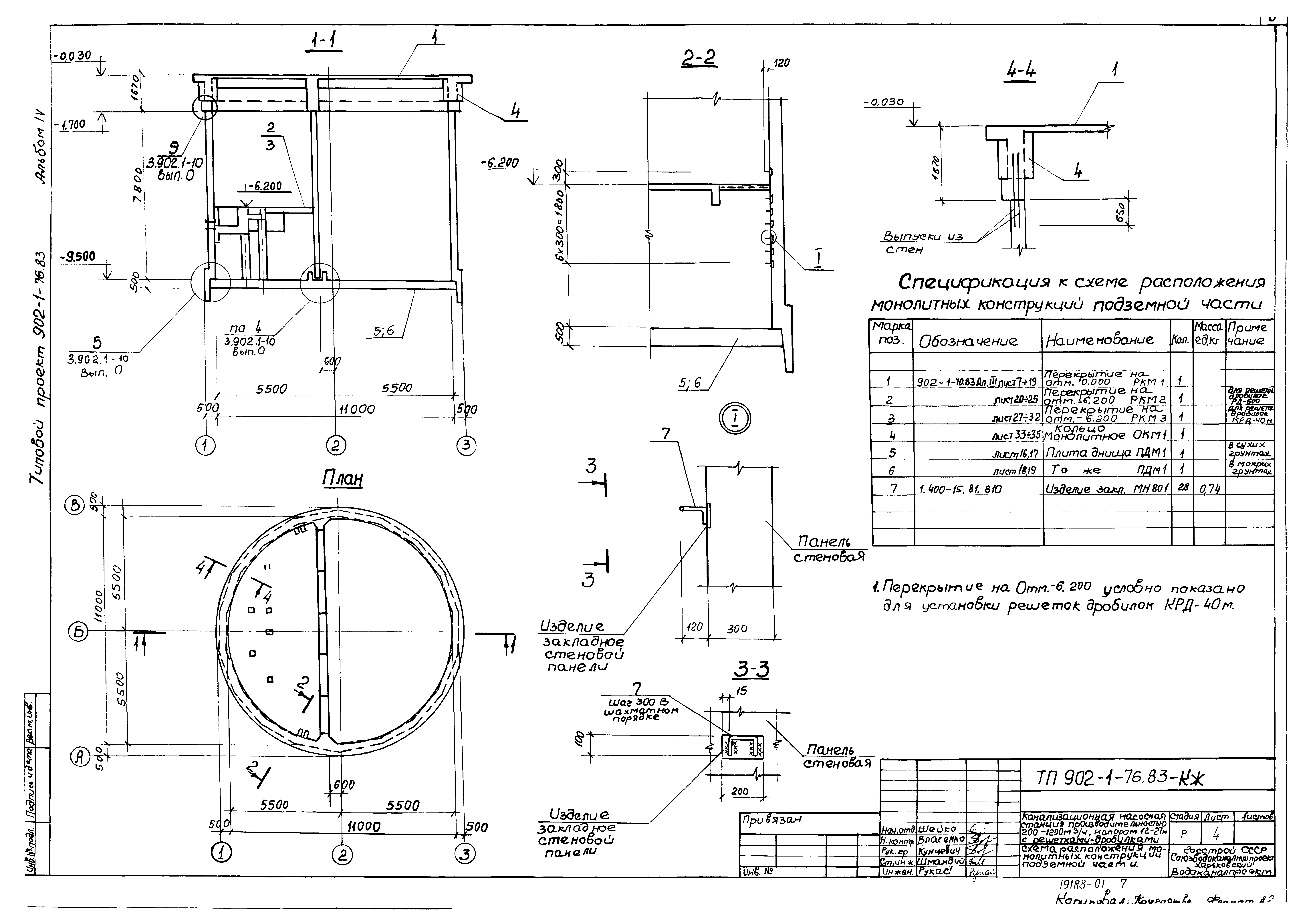
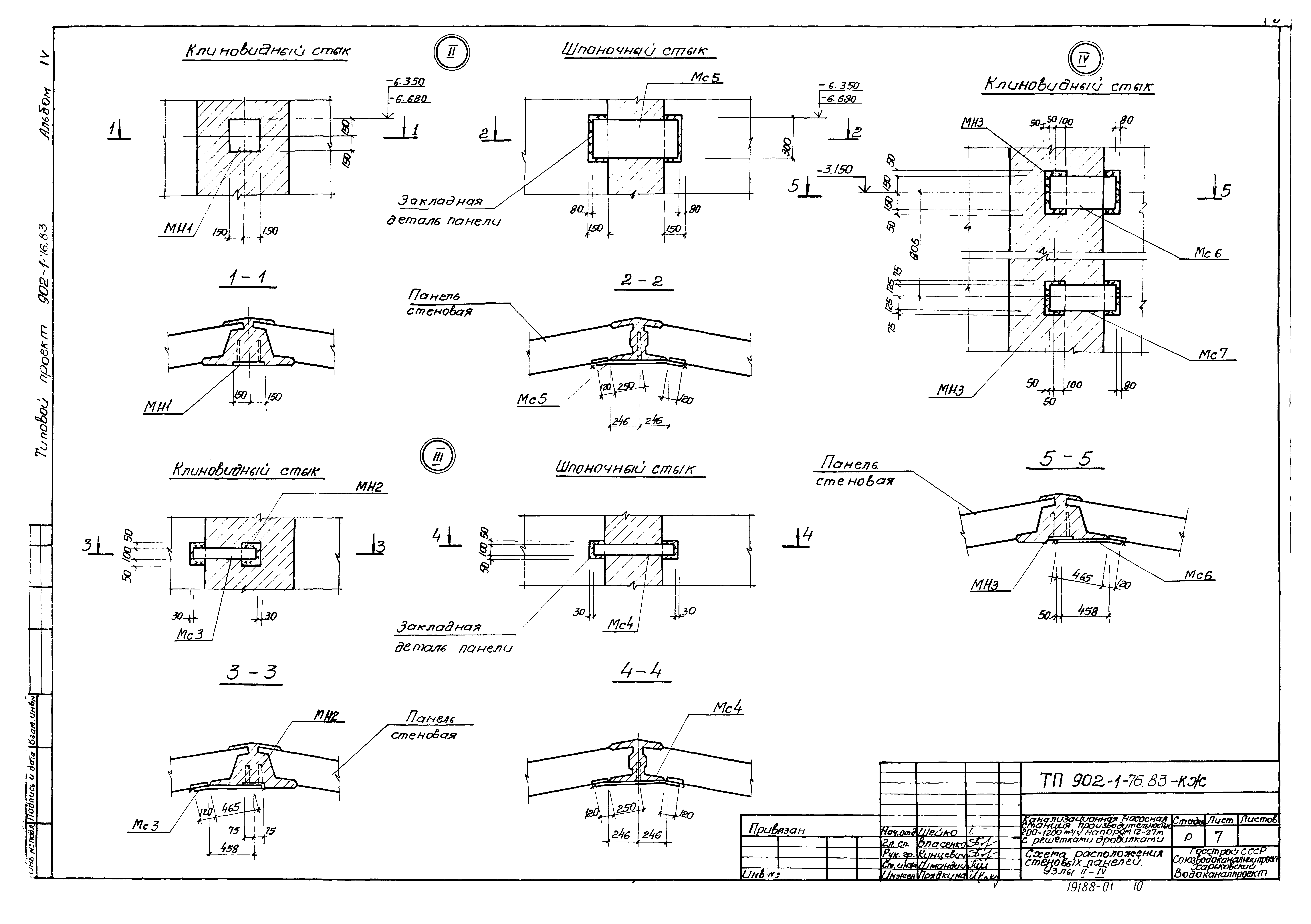
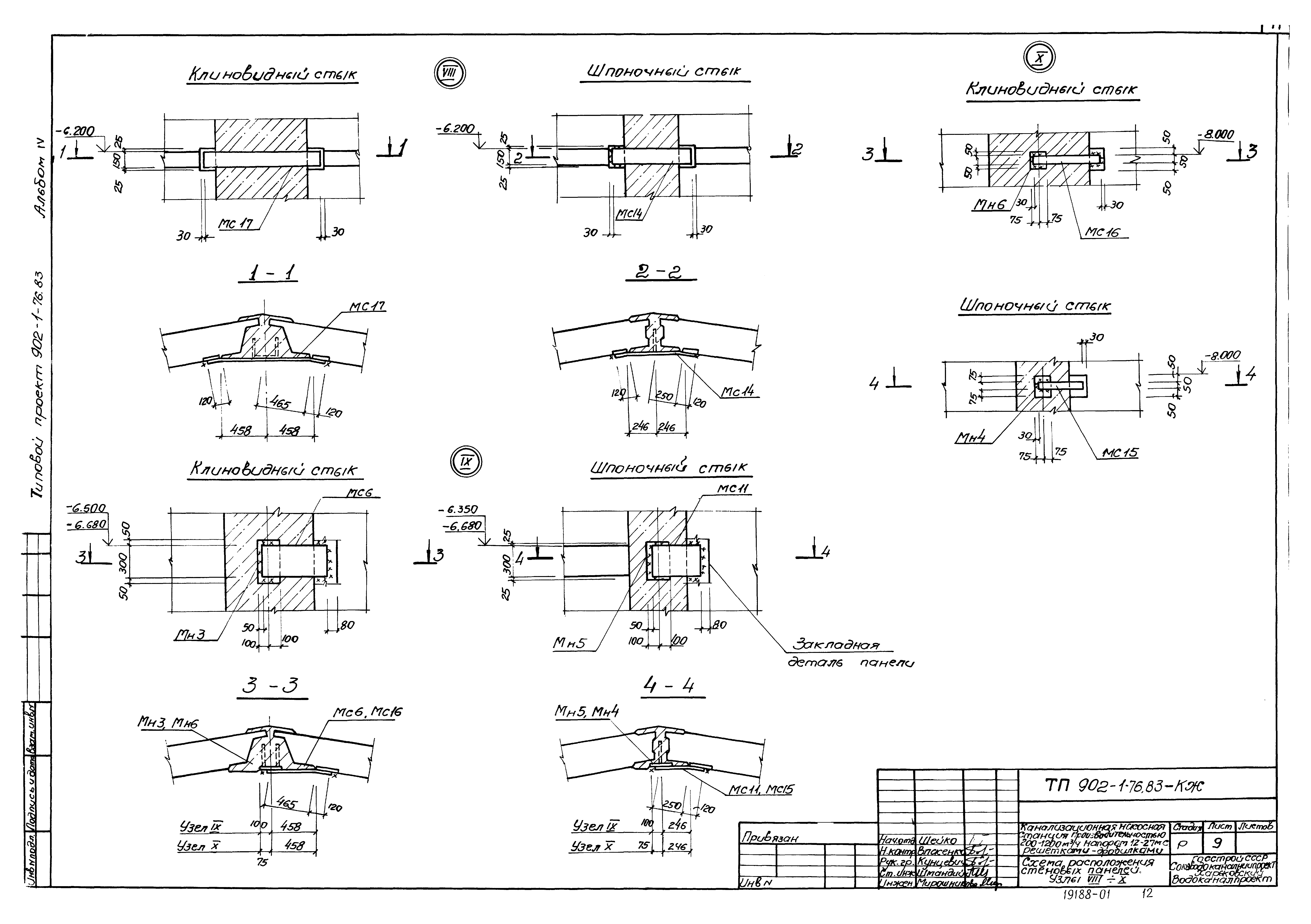
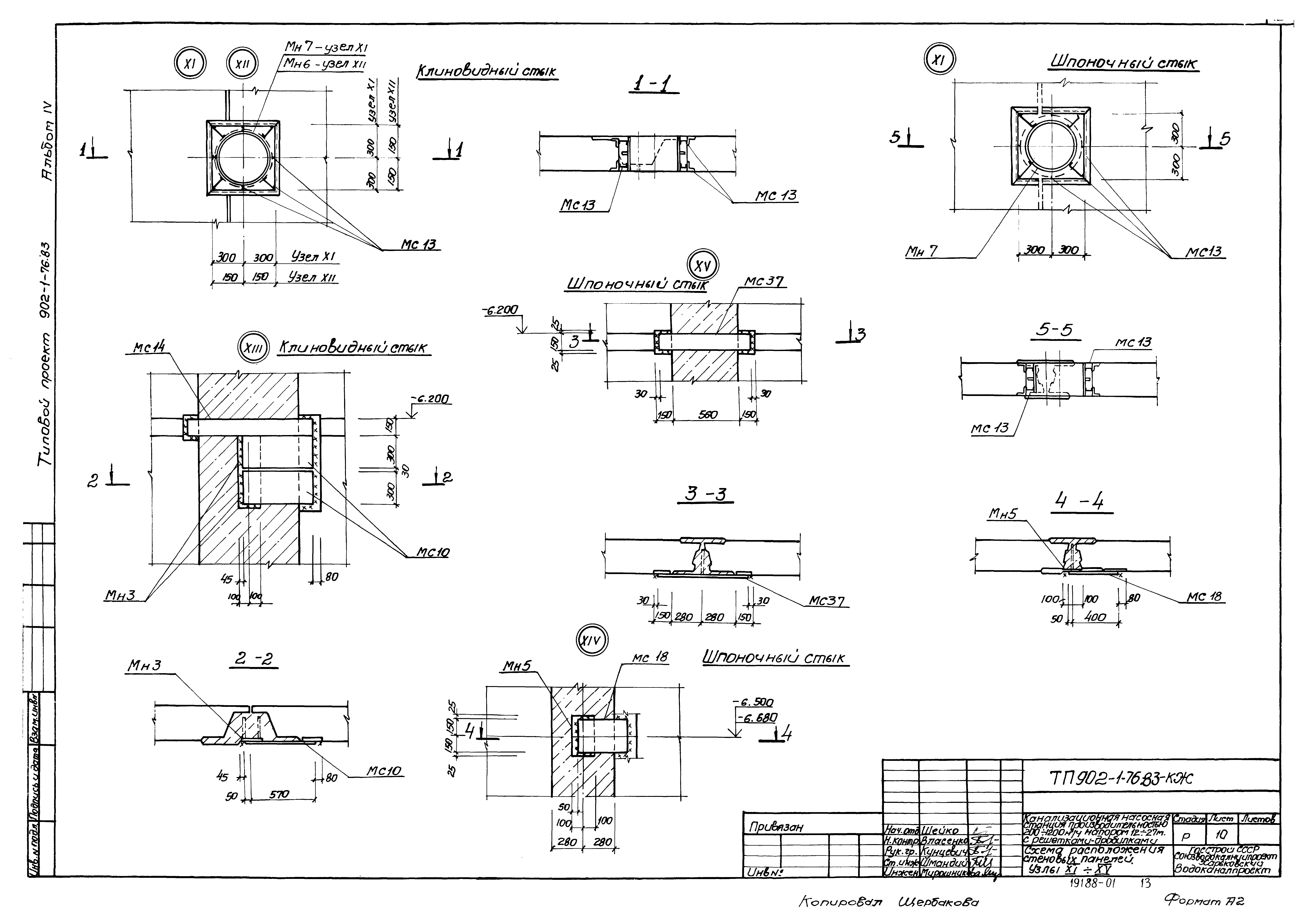
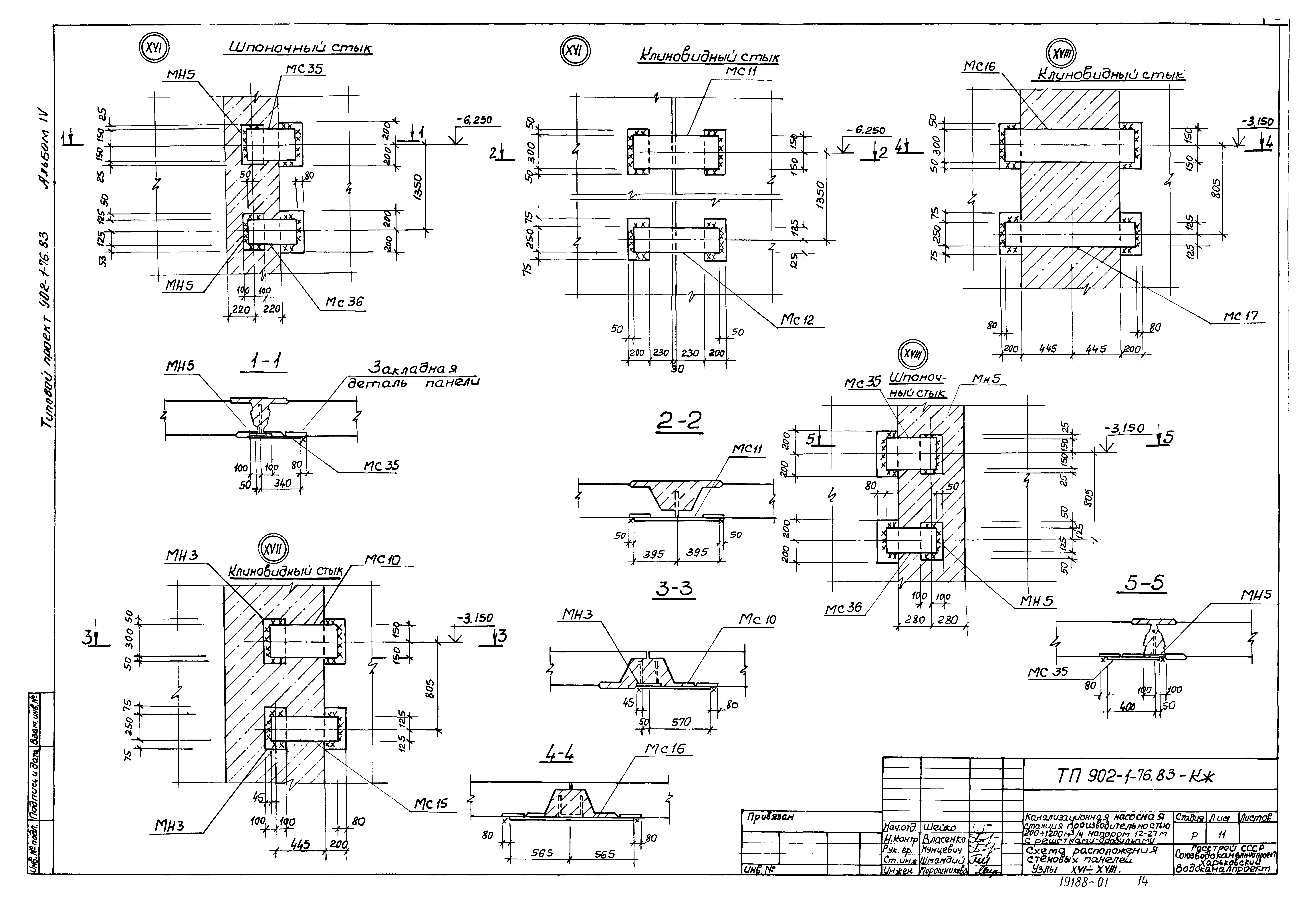
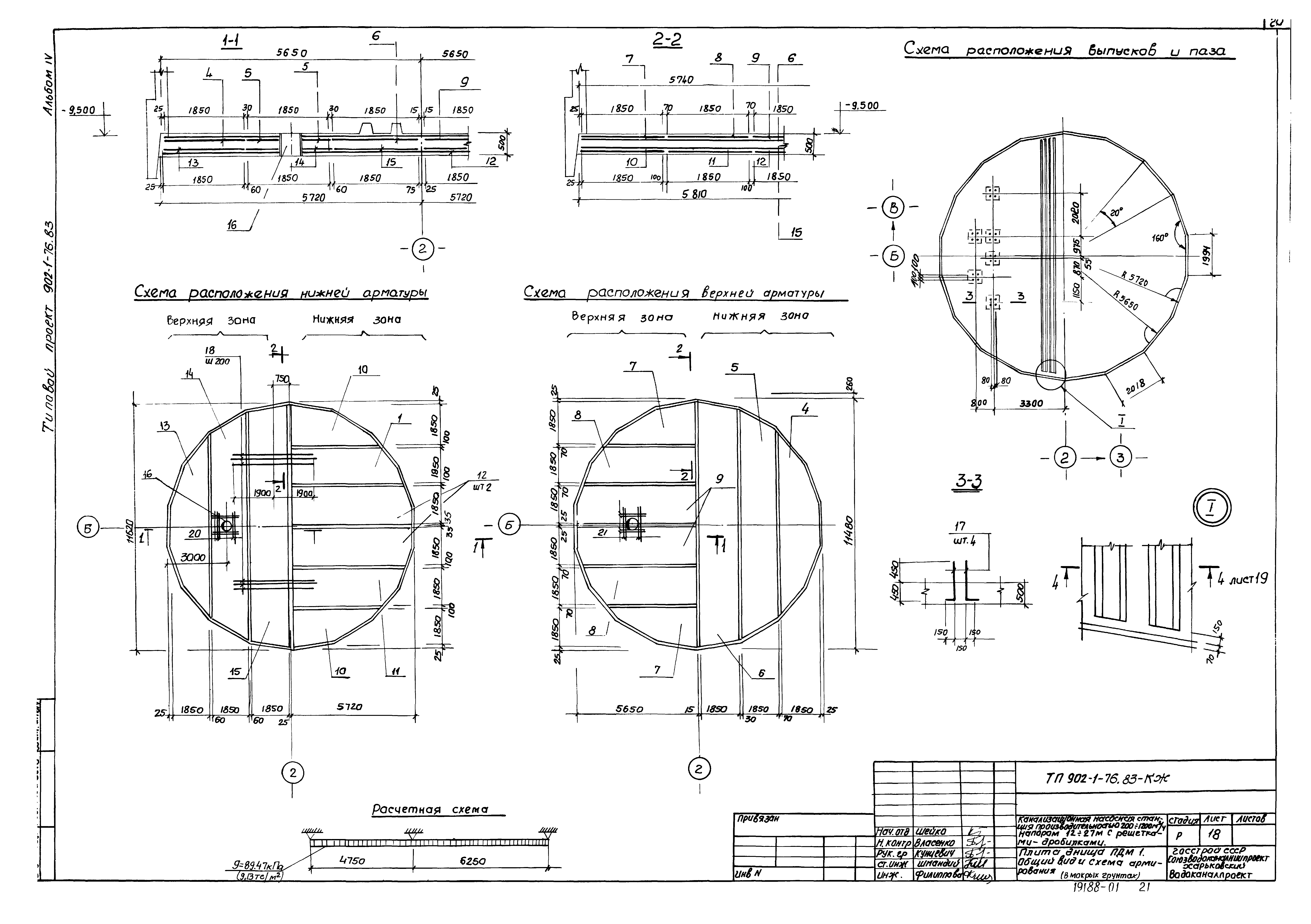
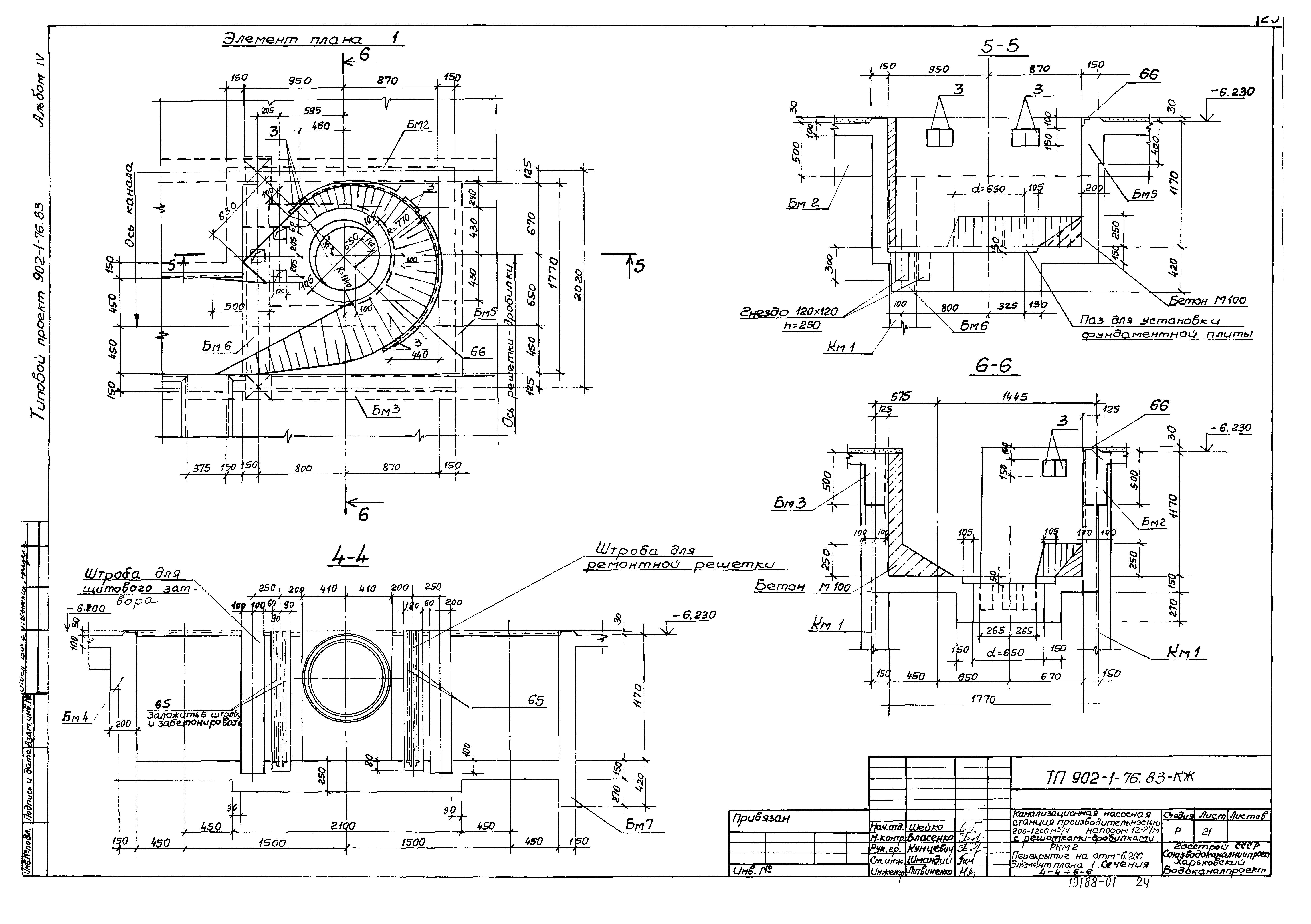
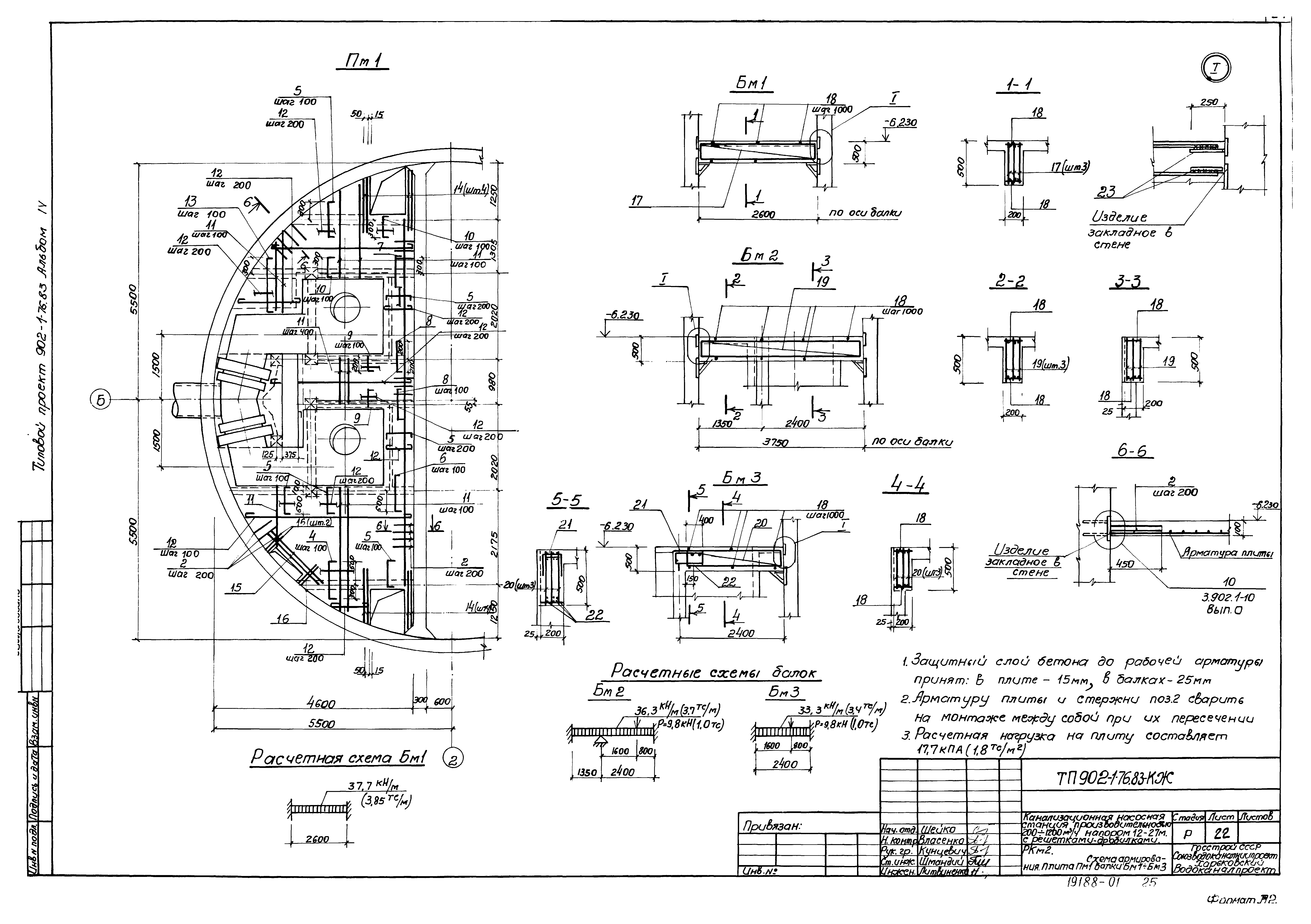
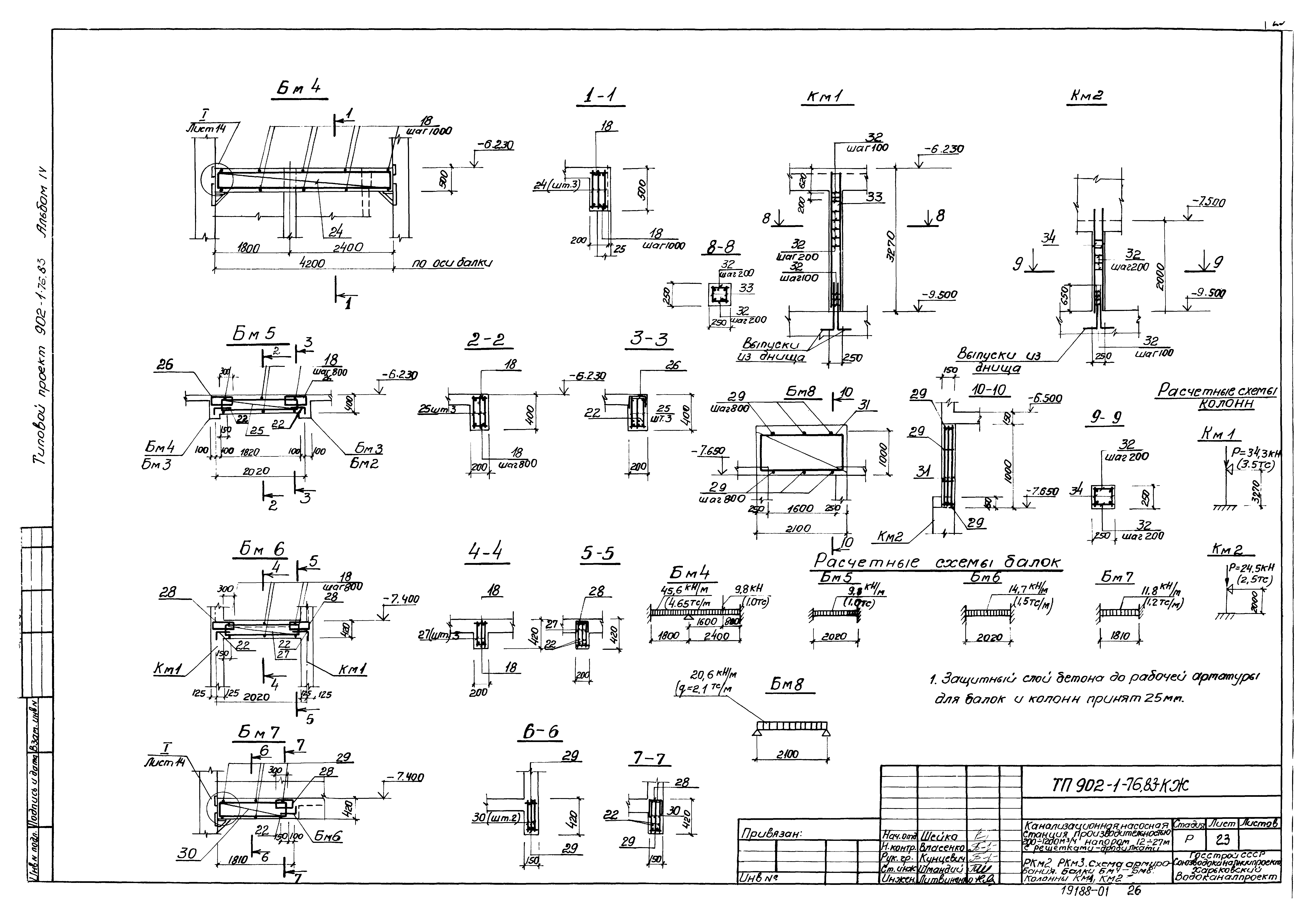
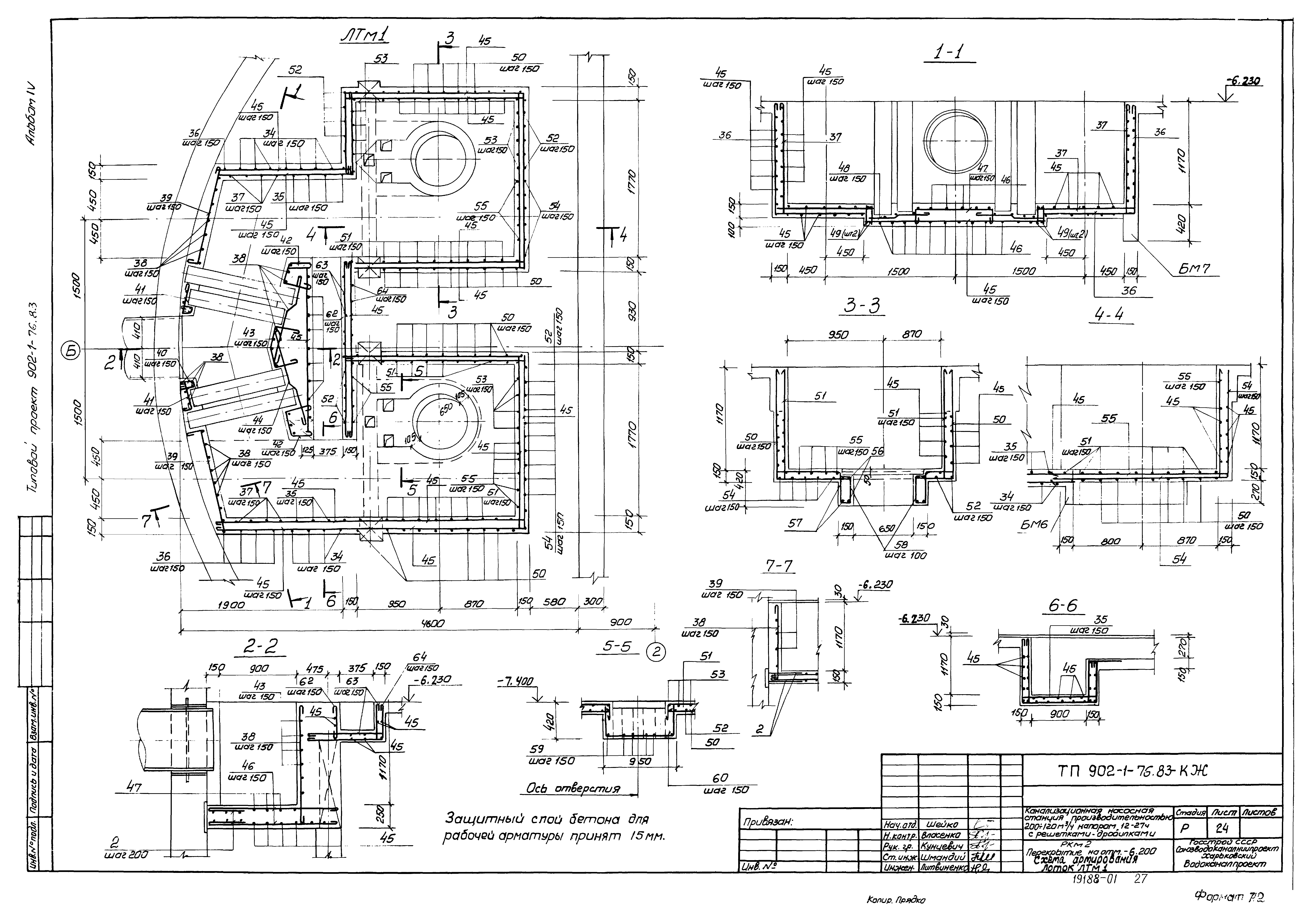
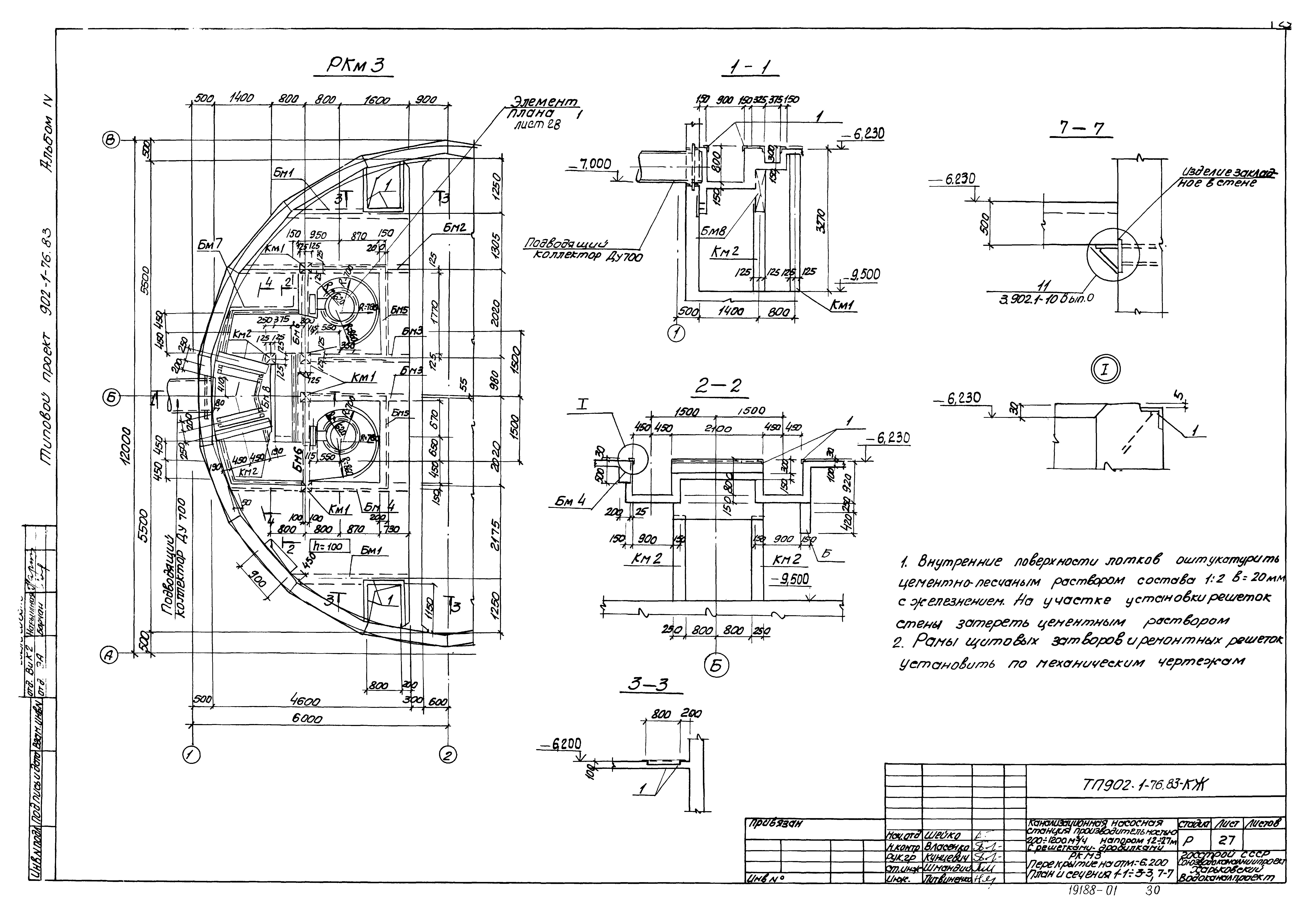
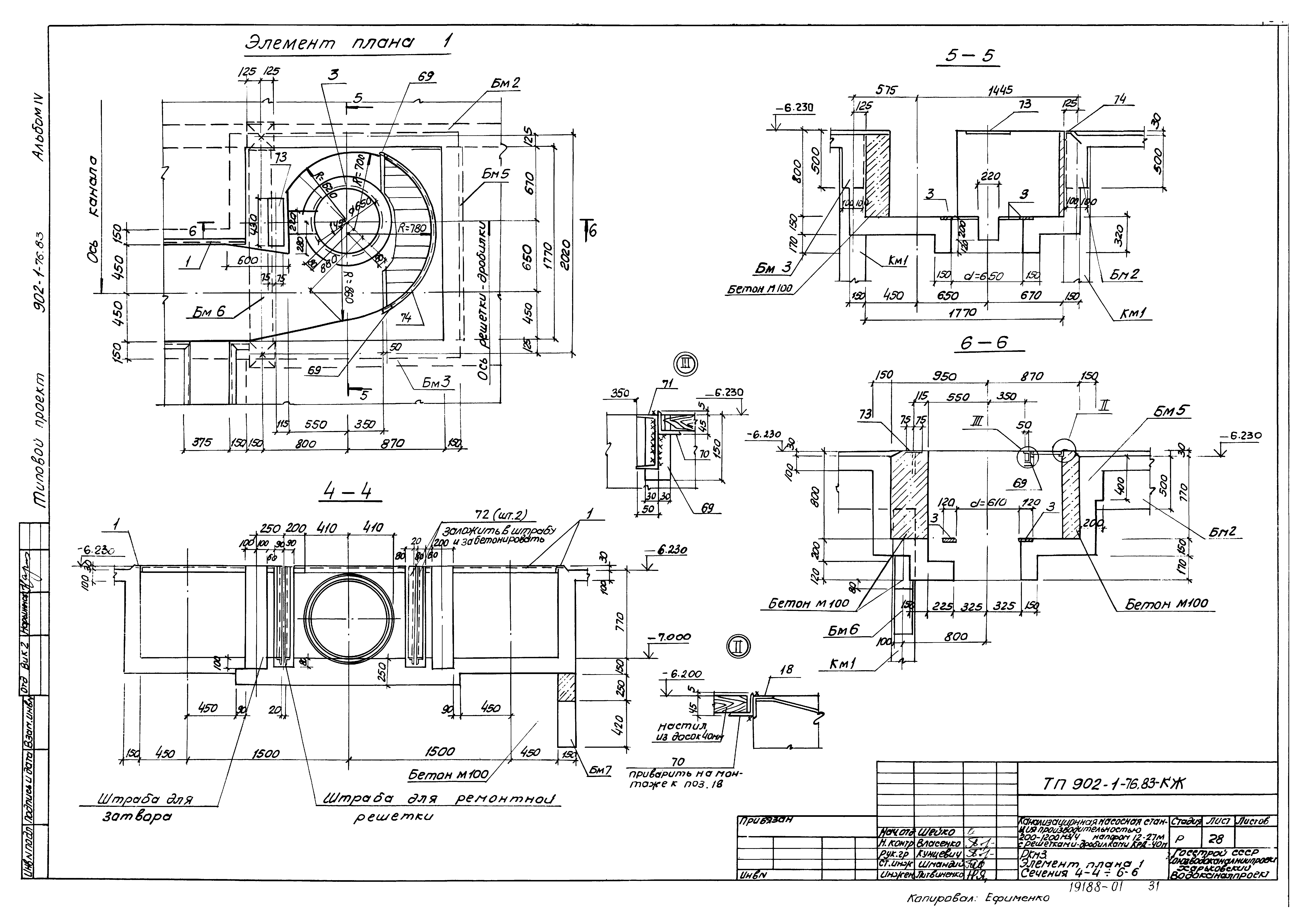
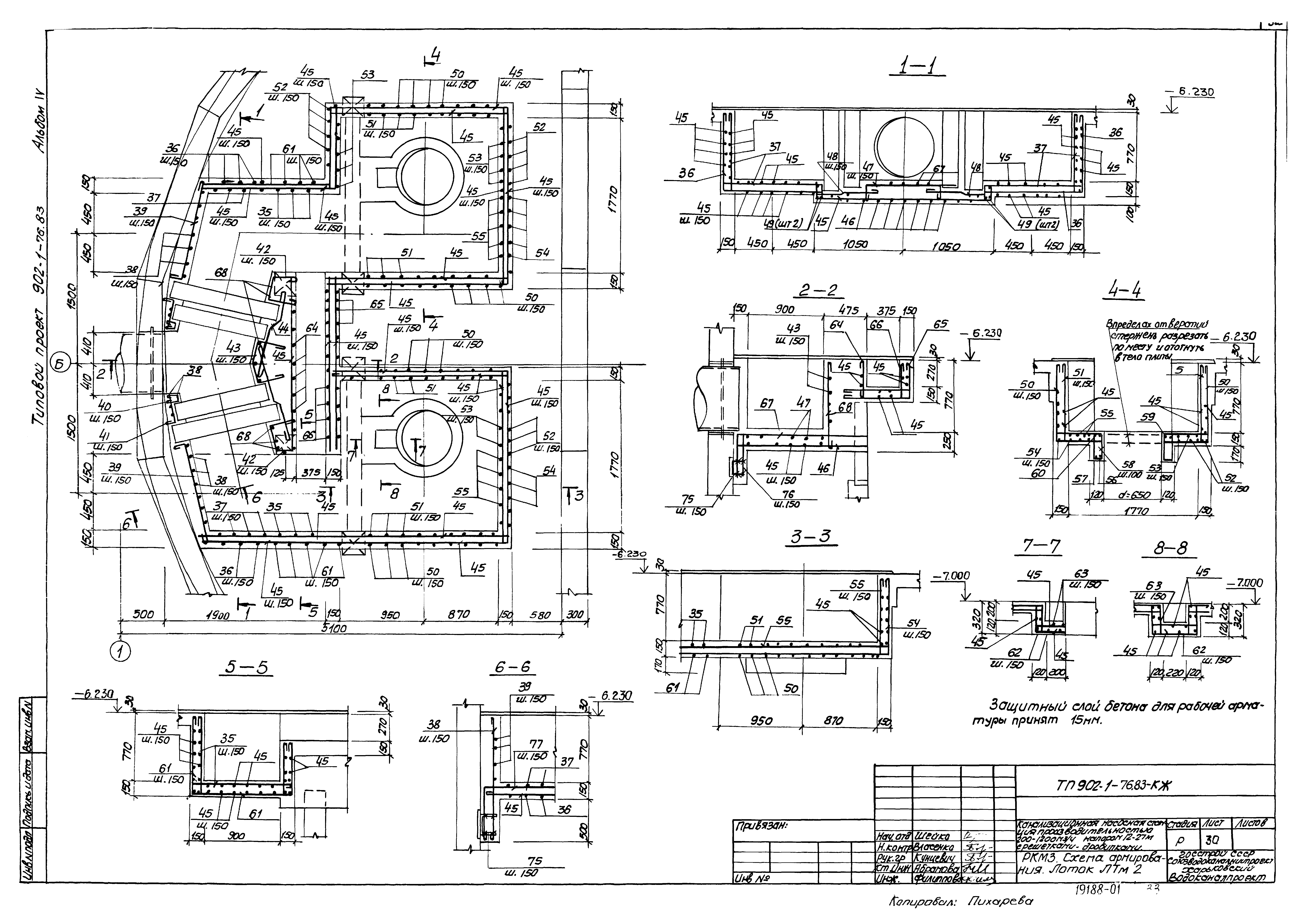
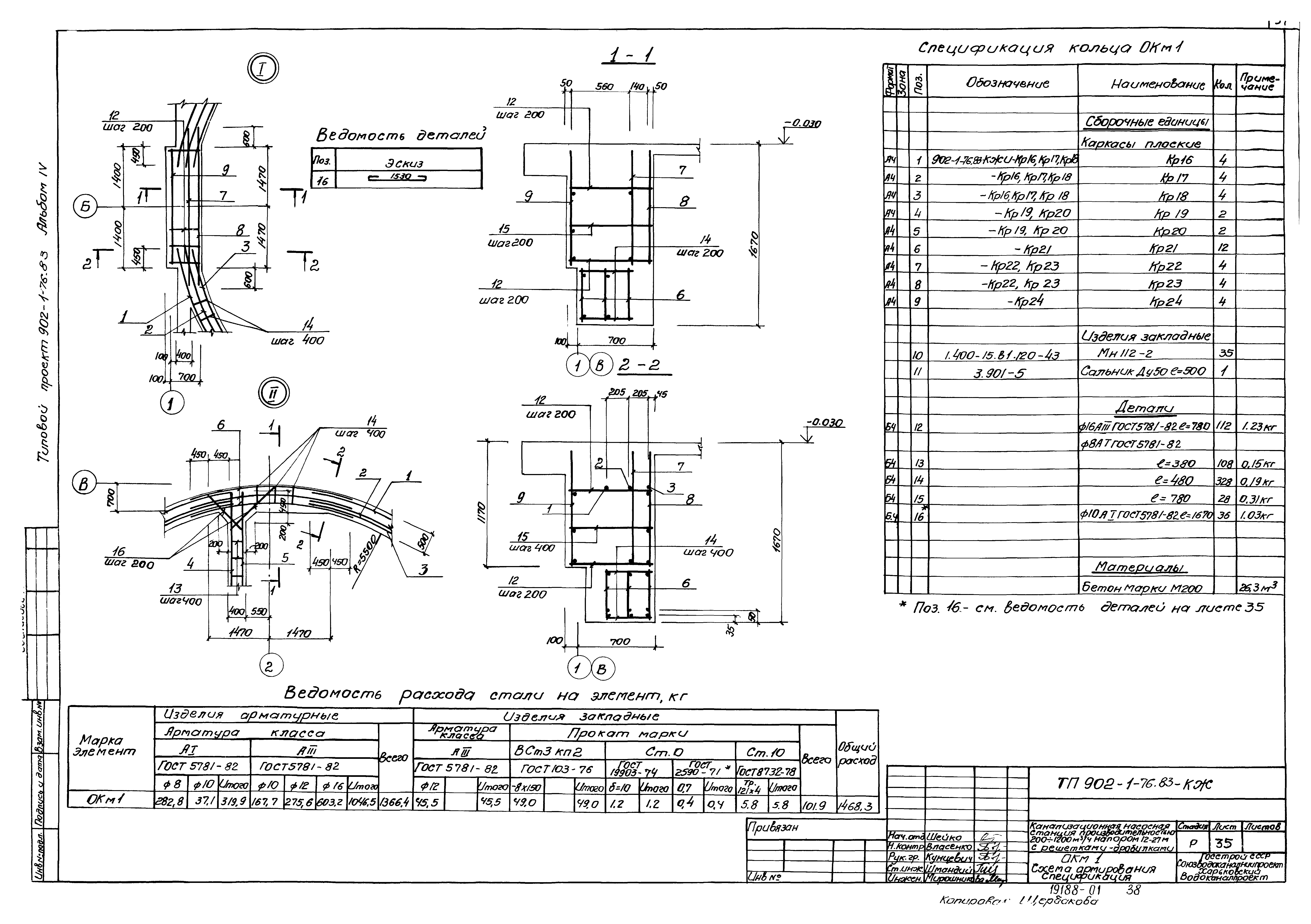
| Оглавление: | Содержание Основной комплект КЖ Общие данные (начало) Общие данные (окончание) Планы подземной части на отм. -6.250 и -8.605. Разрезы 1-1;2-2 Схема расположения монолитных конструкций подземной части Схема расположения стеновых панелей. Разрезы 1-1,2-2 Схема расположения стеновых панелей. Развертка наружной стены. Узел 1 Схема расположения стеновых панелей. Узлы 2-4 Схема расположения стеновых панелей. Узлы 5-7 Схема расположения стеновых панелей. Узлы 8-10 Схема расположения стеновых панелей. Узлы 11-15 Схема расположения стеновых панелей. Узлы 16-18 Схема расположения стеновых панелей. Узлы 19,20 Схема расположения стеновых панелей. Узлы 21-22 Схема расположения стеновых панелей. Спецификация (клиновидный стык). Узел 23 Схема расположения стеновых панелей. Спецификация (шпоночный стык) Плита днища ПДМ1. Общий вид и схема армирования (в сухих грунтах) Плита днища ПДМ1. Схема армирования. Спецификация (в сухих грунтах) Плита днища ПДМ1. Общий вид и схема армирования (в мокрых грунтах) Плита днища ПДМ1. Схема армирования. Спецификация (в мокрых грунтах) РКМ2. Перекрытие на отм. -6.200. План и сечения 1-1-3-3,7-7 РКМ2. Перекрытие на отм. -6.200. Элемент плана 1. Сечения 4-4-6-6 РКМ2. Схема армирования. Плита ПМ1. Балки БМ1-БМ3 РКМ2, РКМ3. Схема армирования. Балки БМ4-БМ8, колонны КМ1,КМ2 РКМ2. Схема армирования. Лоток ЛТМ1 РКМ2. Схема армирования. Спецификация (начало) РКМ2. Схема армирования. Спецификация (окончание) РКМ3. Перекрытие на отм. -6.200. План и сечения 1-1-3-3,7-7 РКМ3. Перекрытие на отм. -6.200. Элемент плана 1. Сечения 4-4-6-6 РКМ3. Схема армирования. Плита ПМ1. Балки БМ1-БМ3 РКМ3. Схема армирования. Лоток ЛТМ2 РКМ3. Схема армирования. Спецификация (начало) РКМ3. Схема армирования. Спецификация (окончание) ОКМ1. Опорное кольцо. Общий вид ОКМ1. Схема армирования ОКМ1. Схема армирования. Спецификация Основной комплект КМ Общие данные (начало) Общие данные (окончание) Схема расположения лестниц и лестничных площадок. Разрезы 1-1,2-2 Схемы узлов лестниц. Узел 1 Узлы 2-5 |
| Разработан: | Харьковский Водоканалпроект |
| Утверждён: | 27.06.1983 СоюзводоканалНИИпроект (SoyuzvodokanalNIIproject 32) |











































