Скачать Серия 1.236-1 Окна и балконные двери общественных зданийДата актуализации: 01.01.2021
|
| Обозначение: | Серия 1.236-1 |
| Обозначение англ: | Series 1.236-1 |
| Статус: | не действует |
| Название рус.: | Окна и балконные двери общественных зданий |
| Дата добавления в базу: | 01.09.2013 |
| Дата актуализации: | 01.01.2021 |
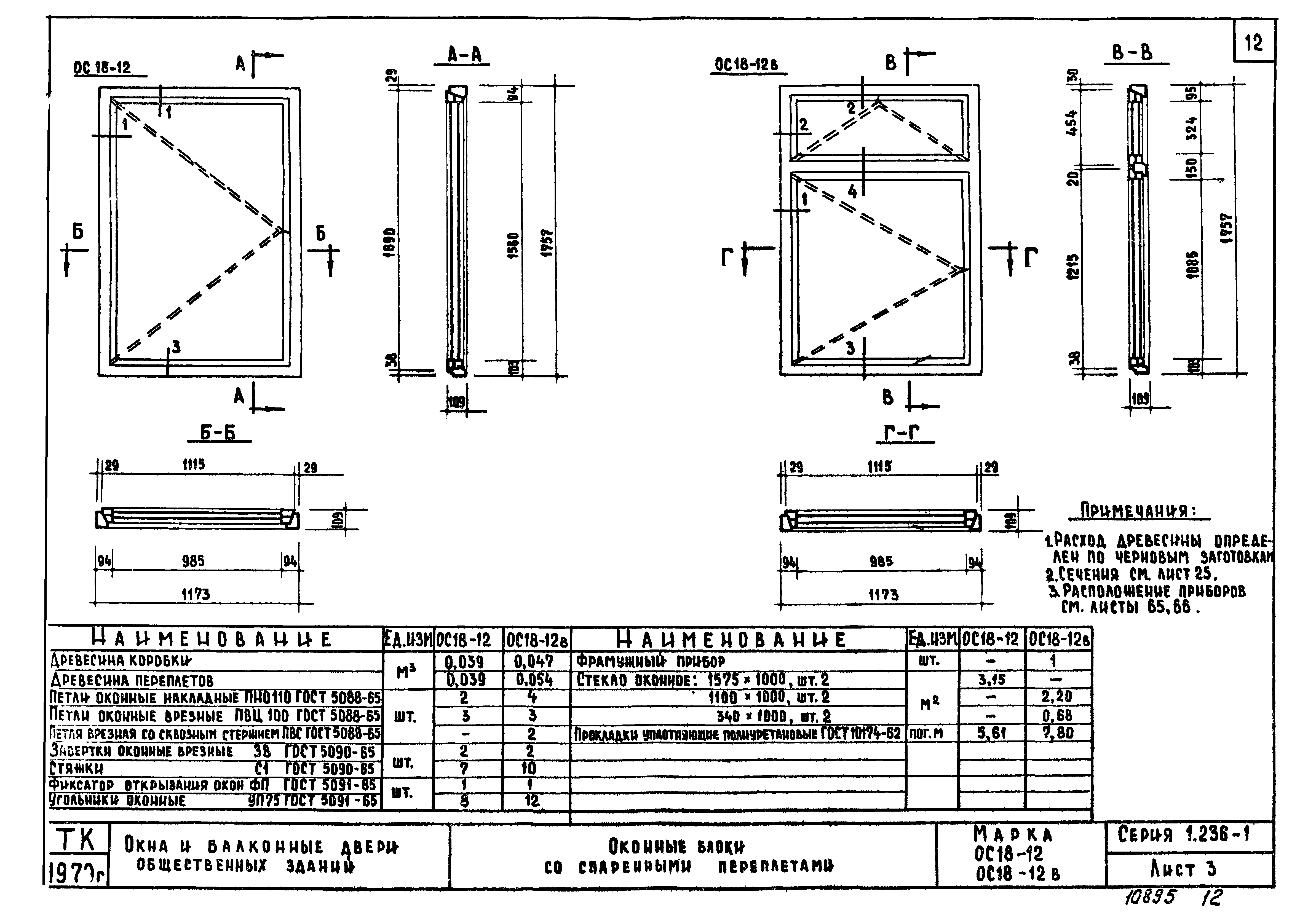
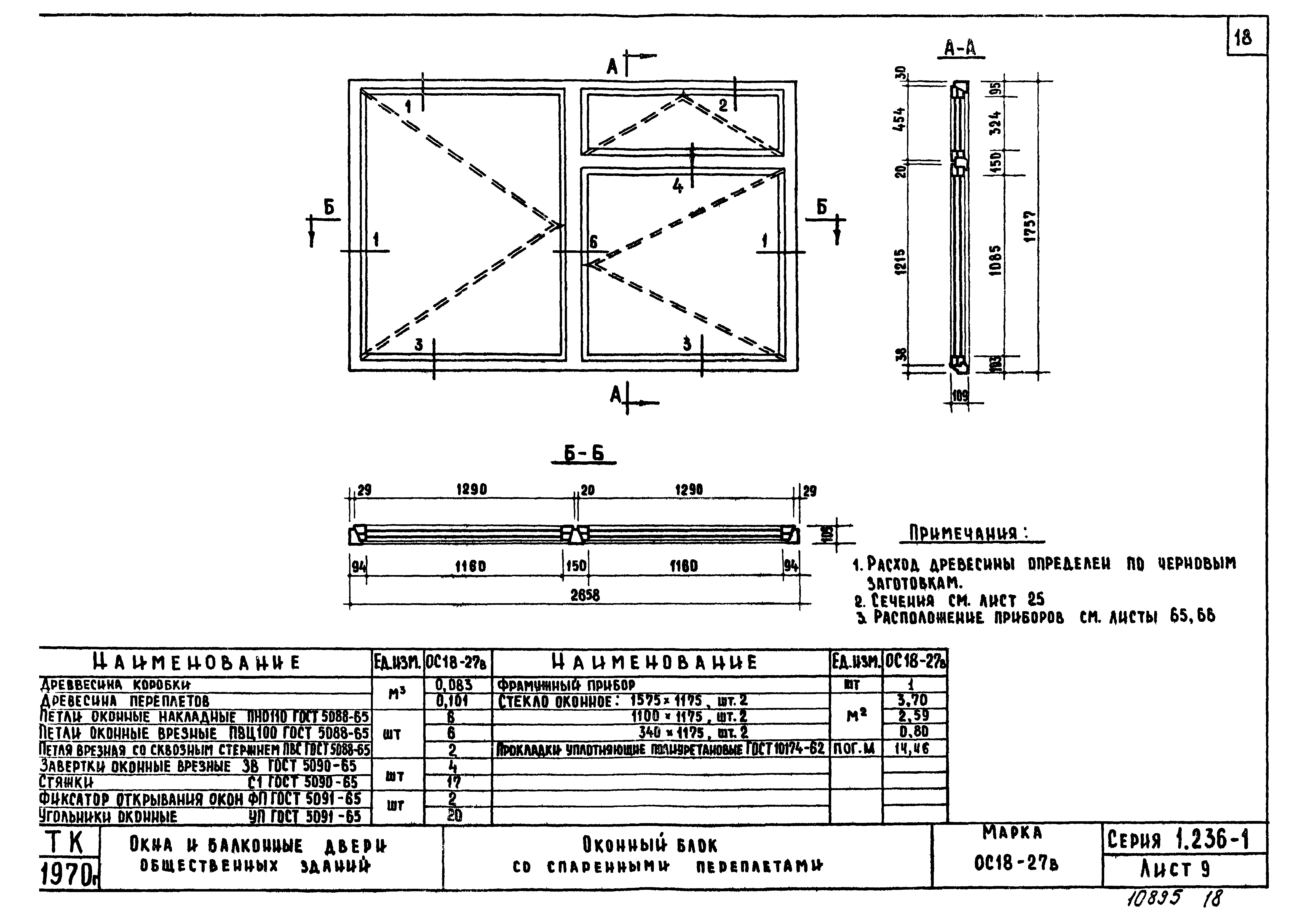
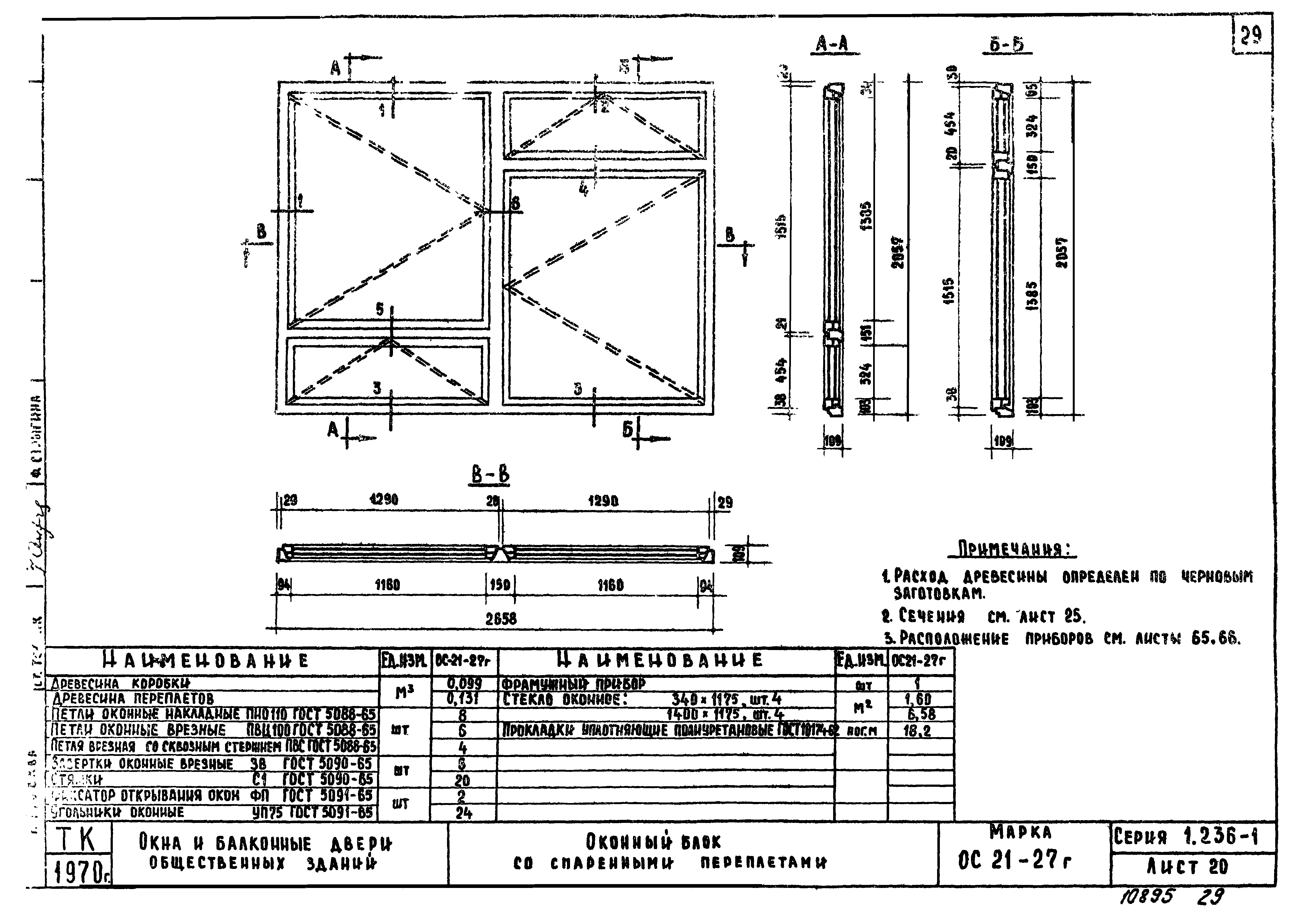
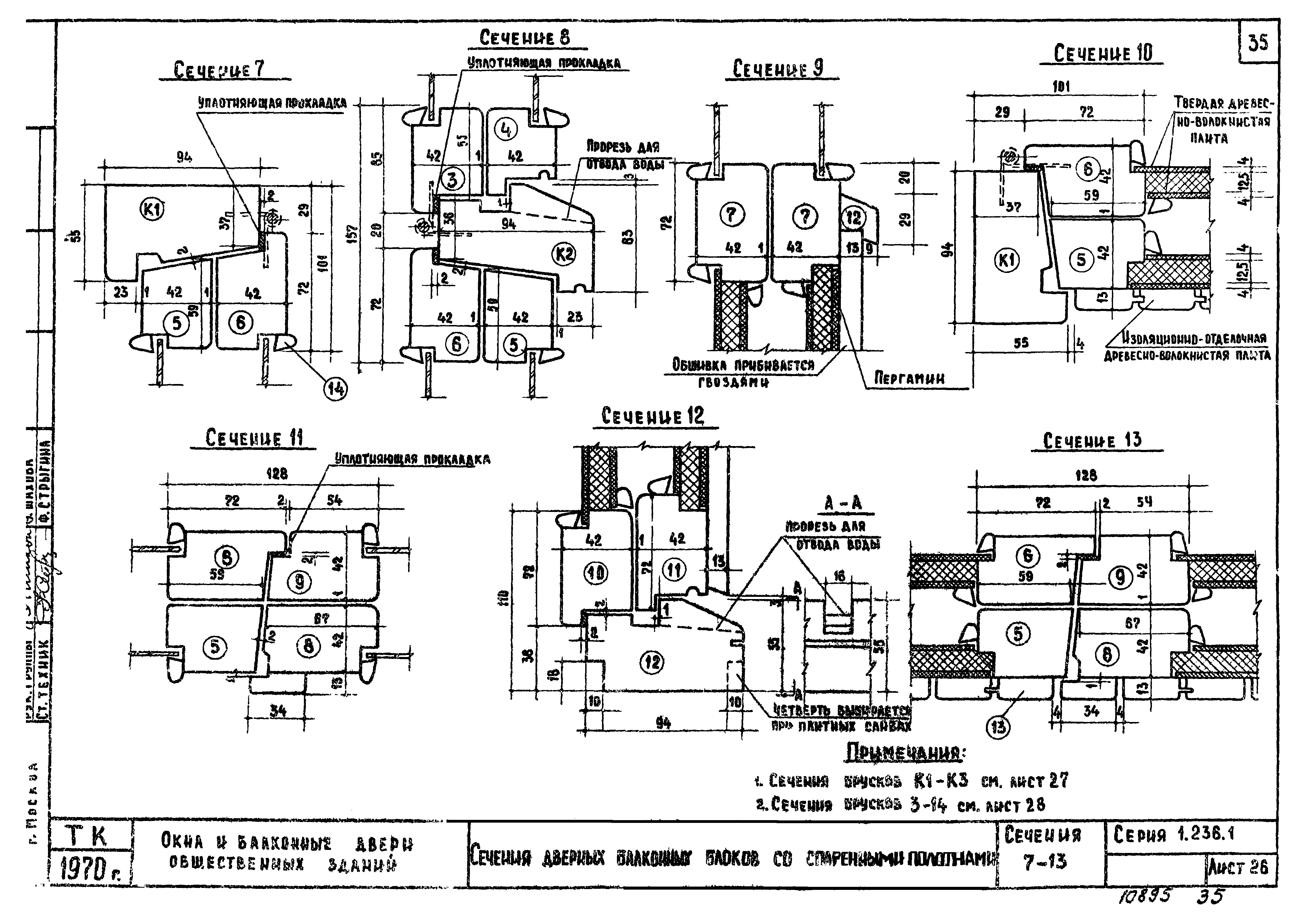
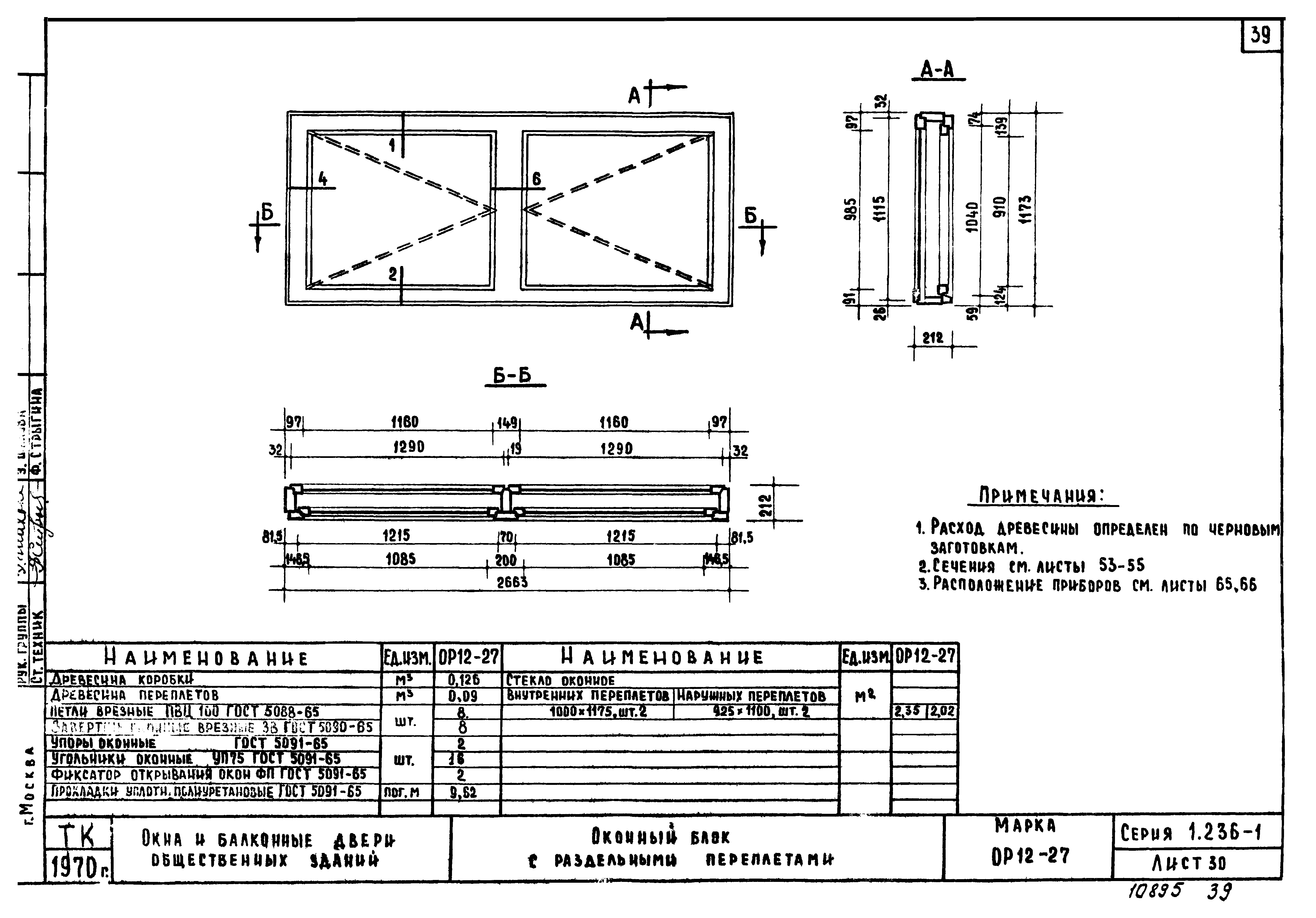
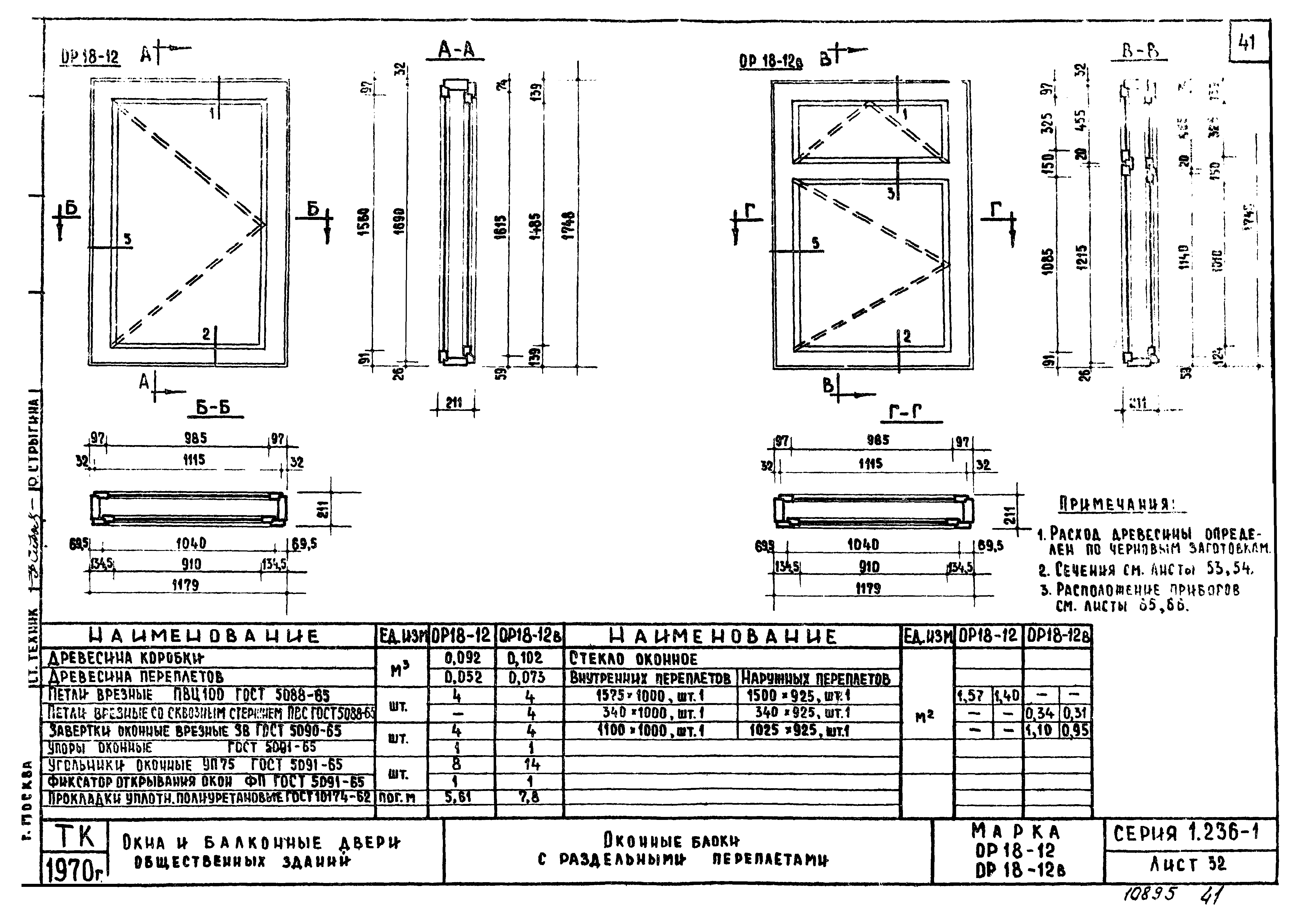
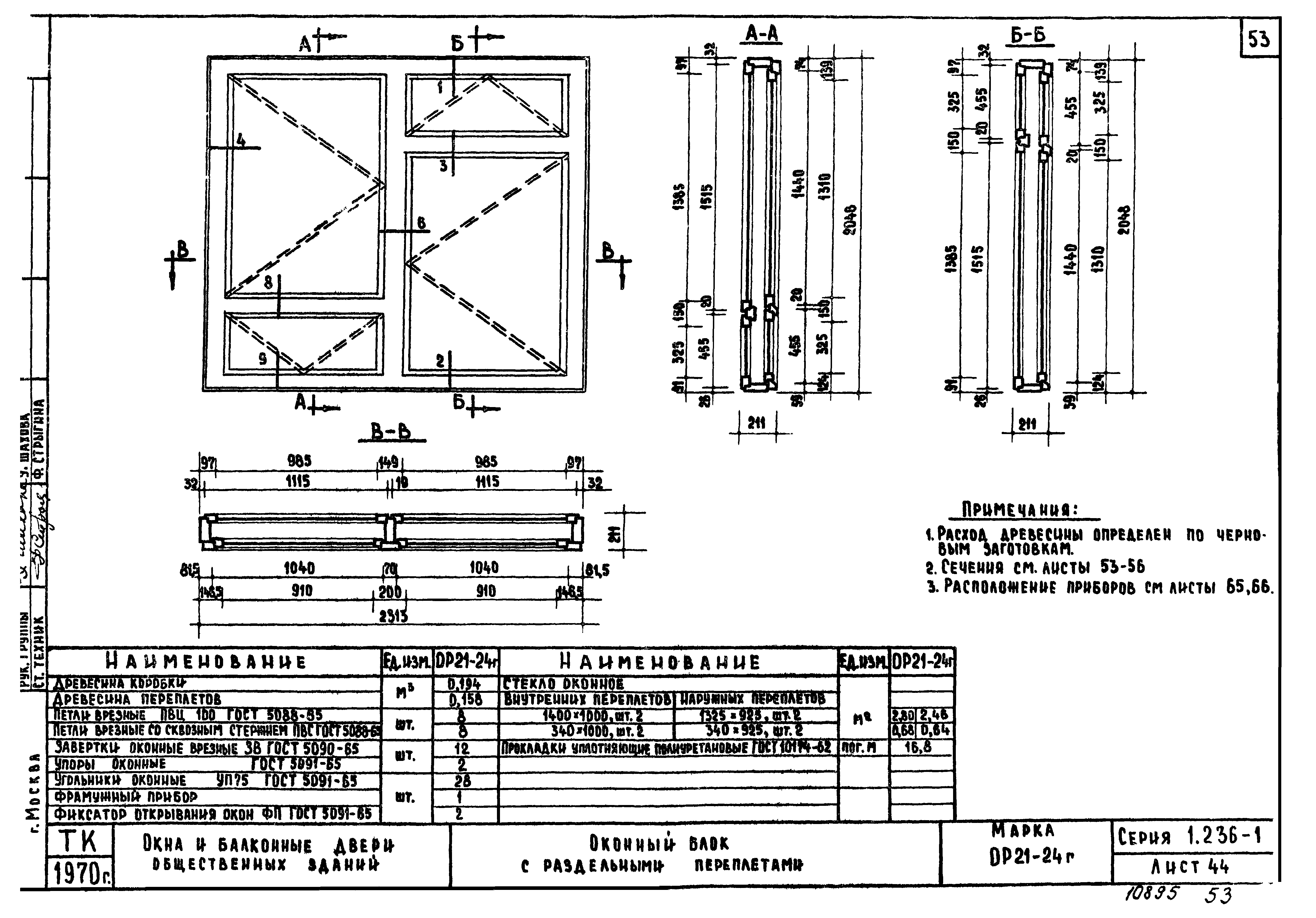
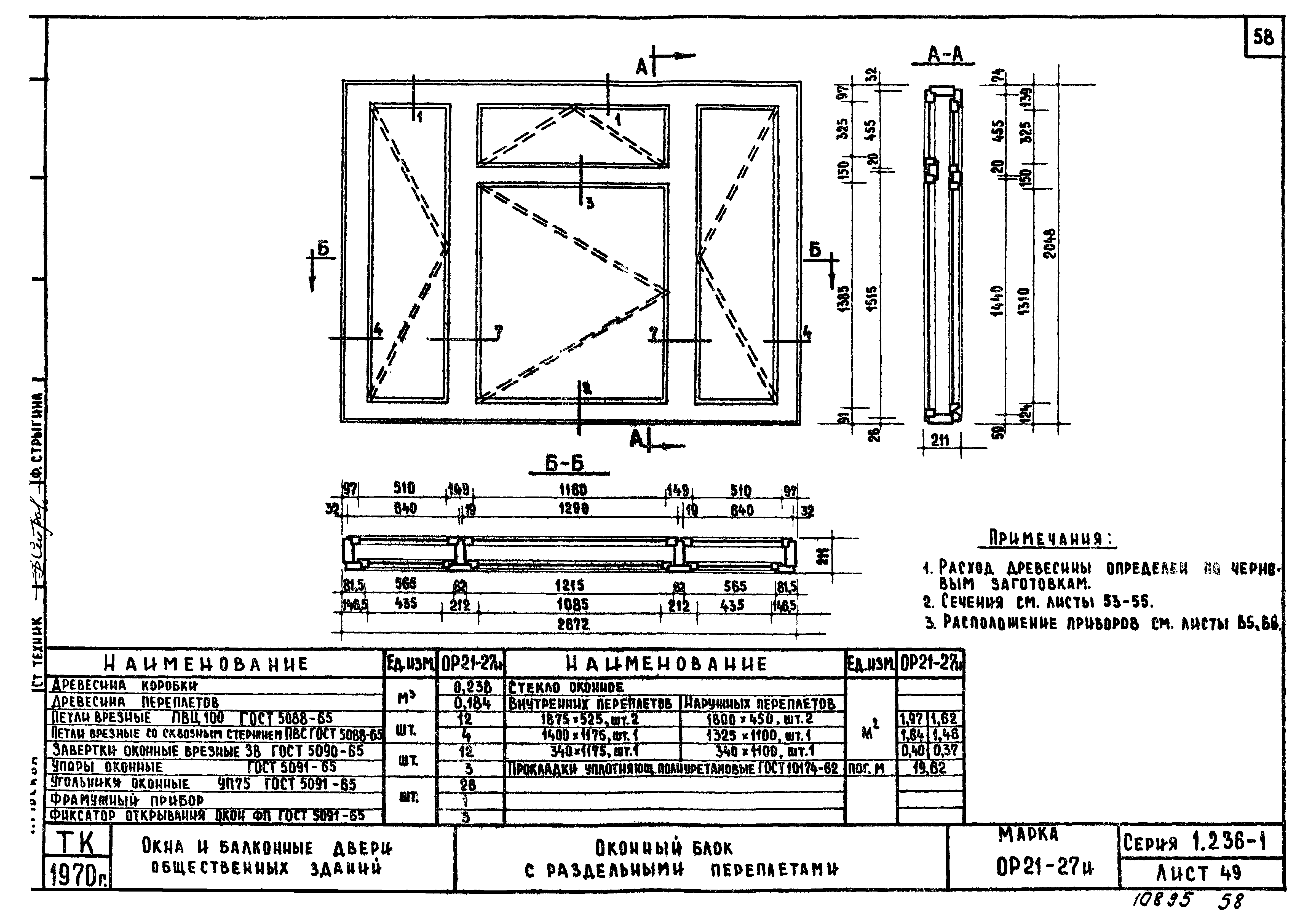
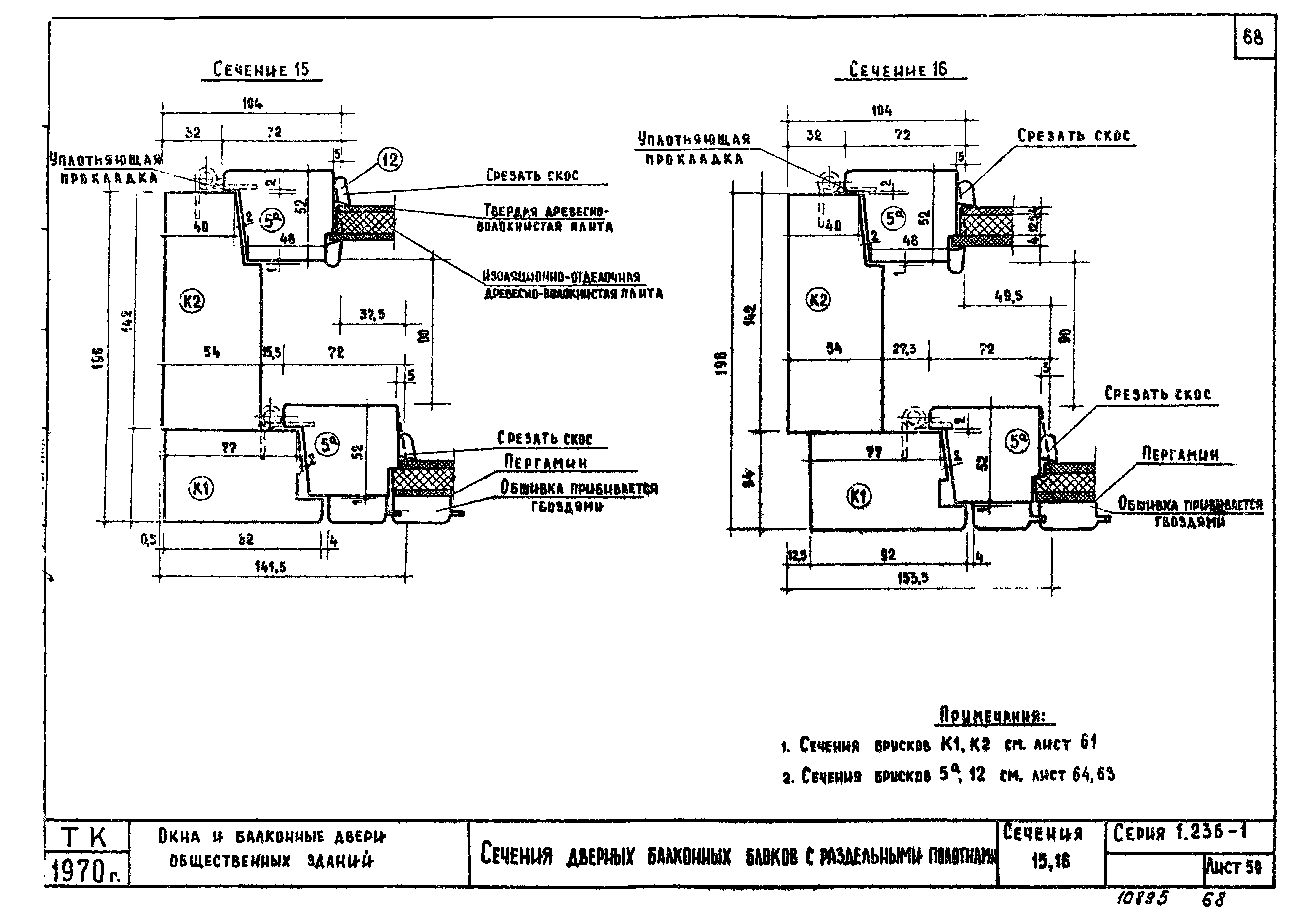
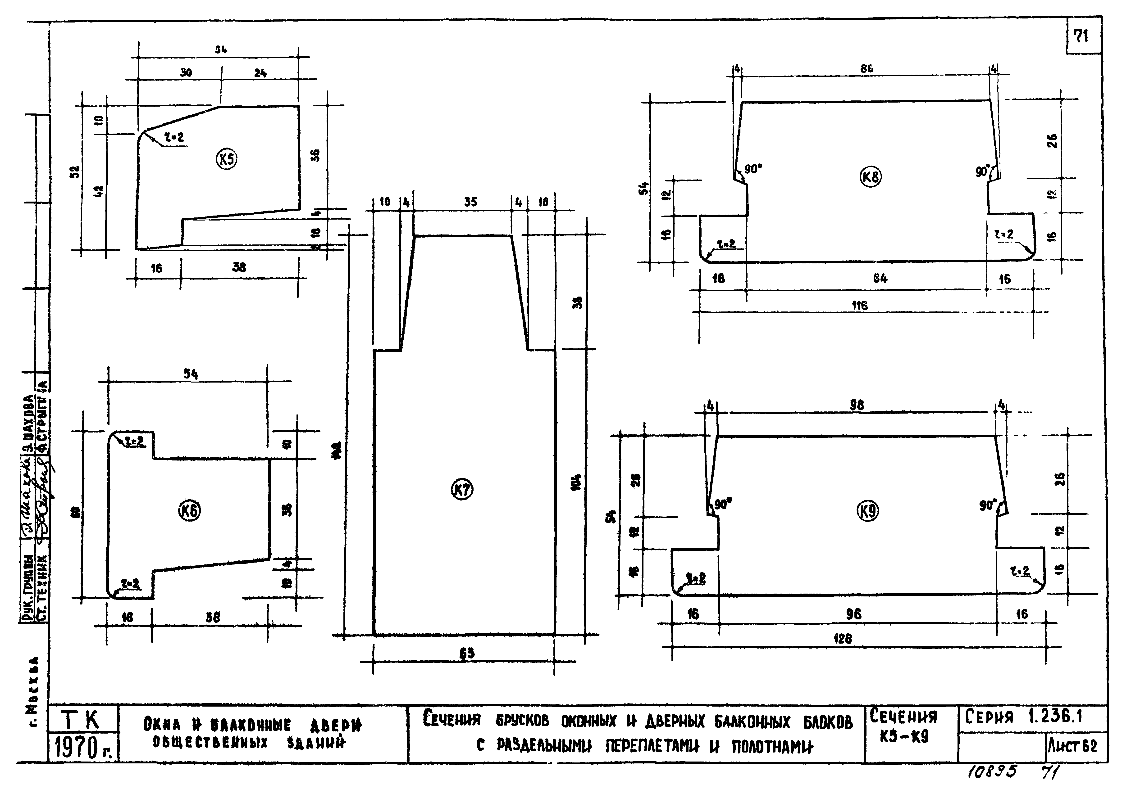
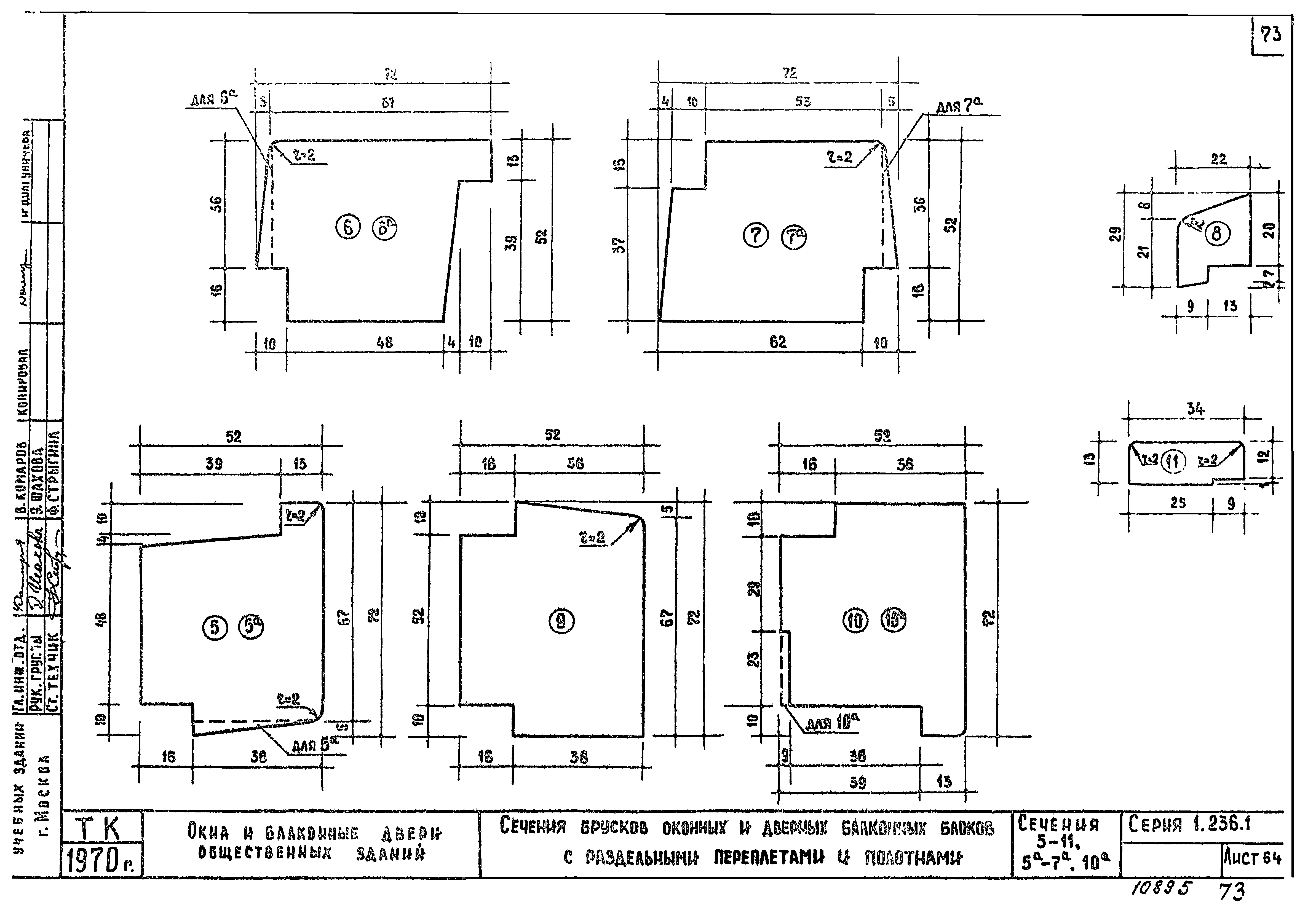
| Оглавление: | Содержание Пояснительная записка Номенклатура оконных и дверных балконных блоков со спаренными и раздельными переплетами и полотнами ОС12-27 Оконный блок со спаренными переплетами ОС18-09;ОС18-09В Оконные блоки со спаренными переплетами ОС18-12;ОС18-12В Оконные блоки со спаренными переплетами ОС18-18;ОС18-18В Оконные блоки со спаренными переплетами ОС18-21;ОС18-21В Оконные блоки со спаренными переплетами ОС18-24;ОС18-24В Оконные блоки со спаренными переплетами ОС18-24Г;ОС18-27 Оконные блоки со спаренными переплетами ОС18-27А Оконный блок со спаренными переплетами ОС18-27В Оконный блок со спаренными переплетами ОС18-27Г Оконный блок со спаренными переплетами ОС18-27И Оконный блок со спаренными переплетами ОС21-09;ОС21-09В Оконные блоки со спаренными переплетами ОС21-12;ОС21-12В Оконные блоки со спаренными переплетами ОС21-19;ОС21-18В Оконные блоки со спаренными переплетами ОС21-21;ОС21-21В Оконные блоки со спаренными переплетами ОС21-24;ОС21-24В Оконные блоки со спаренными переплетами ОС21-24Г;ОС21-27 Оконные блоки со спаренными переплетами ОС21-27А Оконный блок со спаренными переплетами ОС21-27В Оконный блок со спаренными переплетами ОС21-27Г Оконный блок со спаренными переплетами ОС21-27И Оконный блок со спаренными переплетами ОС27-12Е;ОС27-12В Оконные блоки со спаренными переплетами ОС27-18Е;ОС27-27Е Оконные блоки со спаренными переплетами БС28-12В;БС28-18В Дверные балконные блоки со спаренными полотнами Сечения оконных и дверных балконных блоков со спаренными переплетами и полотнами Сечения дверных балконных блоков со спаренными полотнами Сечения брусков оконных и дверных балконных блоков со спаренными переплетами и полотнами Сечение брусков дверных балконных блоков со спаренными полотнами ОР12-27 Оконный блок с раздельными переплетами ОР18-09;ОР18-09В Оконные блоки с раздельными переплетами ОР18-12;ОР18-12В Оконные блоки с раздельными переплетами ОР18-18;ОР18-18В Оконные блоки с раздельными переплетами ОР18-21;ОР18-21В Оконные блоки с раздельными переплетами ОР18-24;ОР18-24В Оконные блоки с раздельными переплетами ОР18-27 Оконный блок с раздельными переплетами ОР18-27А Оконный блок с раздельными переплетами ОР18-27В Оконный блок с раздельными переплетами ОР21-09;ОР21-09В Оконные блоки с раздельными переплетами ОР21-12;ОР21-12В Оконные блоки с раздельными переплетами ОР21-18;ОР21-18В Оконные блоки с раздельными переплетами ОР21-21;ОР21-21В Оконные блоки с раздельными переплетами ОР21-24;ОР21-24В Оконные блоки с раздельными переплетами ОР21-24Г Оконные блоки с раздельными переплетами ОР21-27 Оконные блоки с раздельными переплетами ОР21-27А Оконные блоки с раздельными переплетами ОР21-27В Оконные блоки с раздельными переплетами ОР21-27Г Оконные блоки с раздельными переплетами ОР21-27И Оконные блоки с раздельными переплетами ОР27-12;ОР27-12В Оконные блоки с раздельными переплетами ОР27-18Е;ОР27-27Е Оконные блоки с раздельными переплетами БР28-12В;БР28-18ВДверные балконные блоки с раздельными полотнами Сечения оконных и дверных балконных блоков с раздельными переплетами и полотнами Сечения оконных блоков с раздельными переплетами Сечения дверных балконных блоков с раздельными полотнами Сечения брусков оконных и дверных балконных блоков с раздельными переплетали и полотнами Схема расположения угольников в оконных переплетах и балконных дверных полотнах Схеме расположения приборов в оконных переплетах и балконных дверных полотнах |
| Разработан: | ЦНИИЭП учебных зданий Госкомархитектуры |
| Утверждён: | 31.12.1970 Государственный комитет по гражданскому строительству и архитектуре при Госстрое СССР (221) |









































































