Скачать Серия 1.236-3 Выпуск 4. Тамбуры и входы из тонкостенных электросварных стальных профилей с креплением стекла: двумя уголками - У, уголком и штапиком - УШДата актуализации: 01.01.2021
|
| Обозначение: | Серия 1.236-3 |
| Обозначение англ: | Series 1.236-3 |
| Статус: | не действует |
| Название рус.: | Выпуск 4. Тамбуры и входы из тонкостенных электросварных стальных профилей с креплением стекла: двумя уголками - "У", уголком и штапиком - "УШ" |
| Дата добавления в базу: | 01.09.2013 |
| Дата актуализации: | 01.01.2021 |
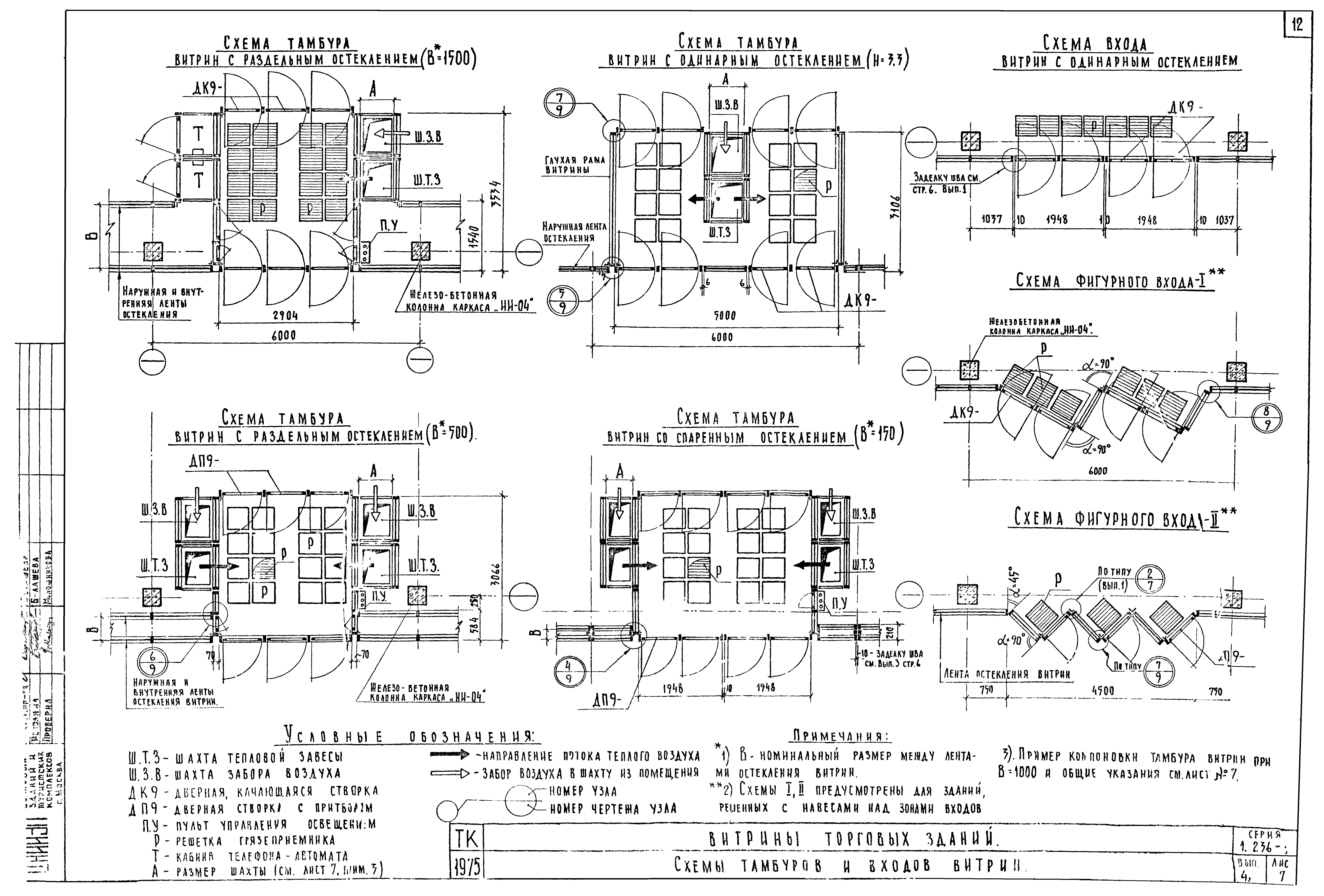
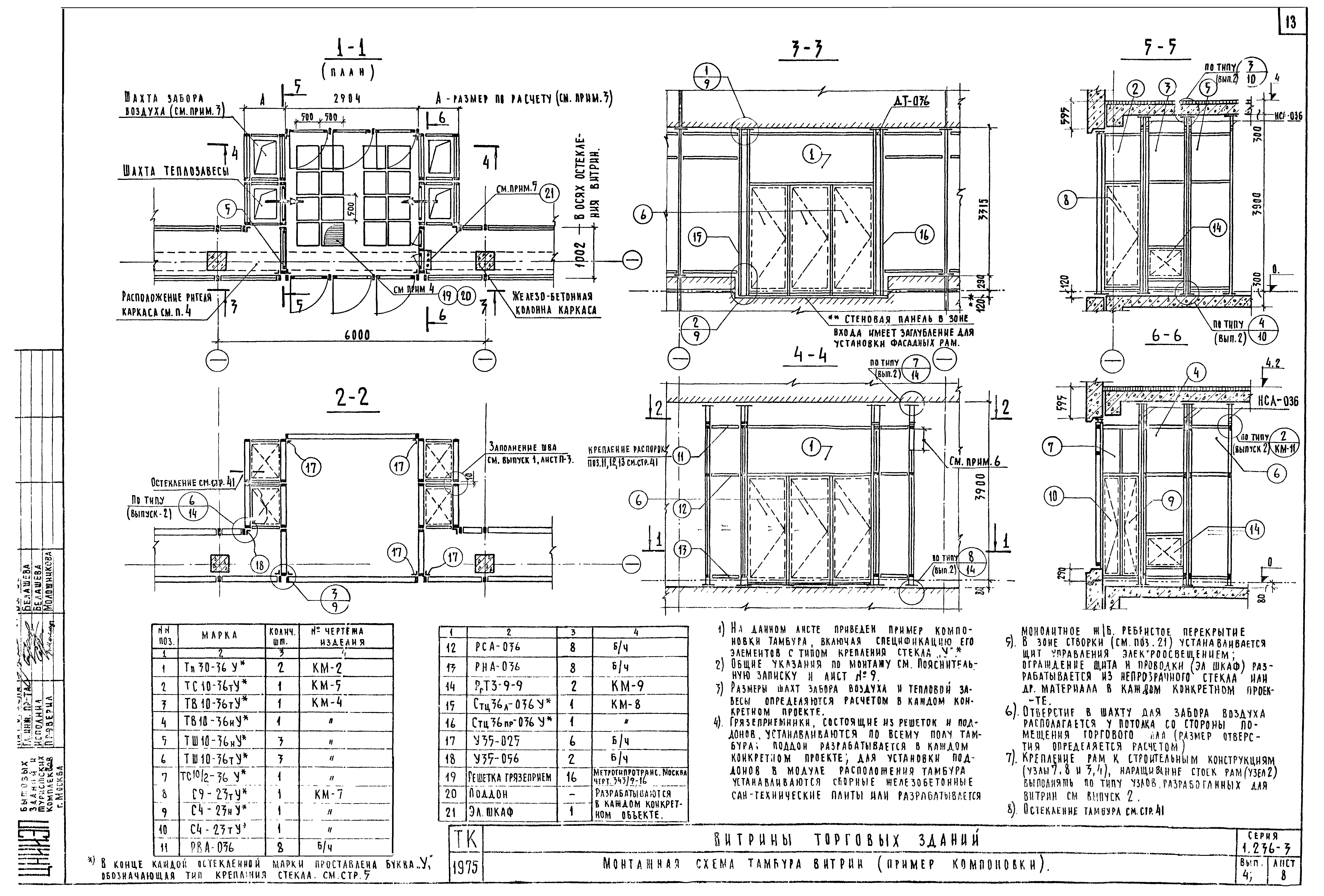
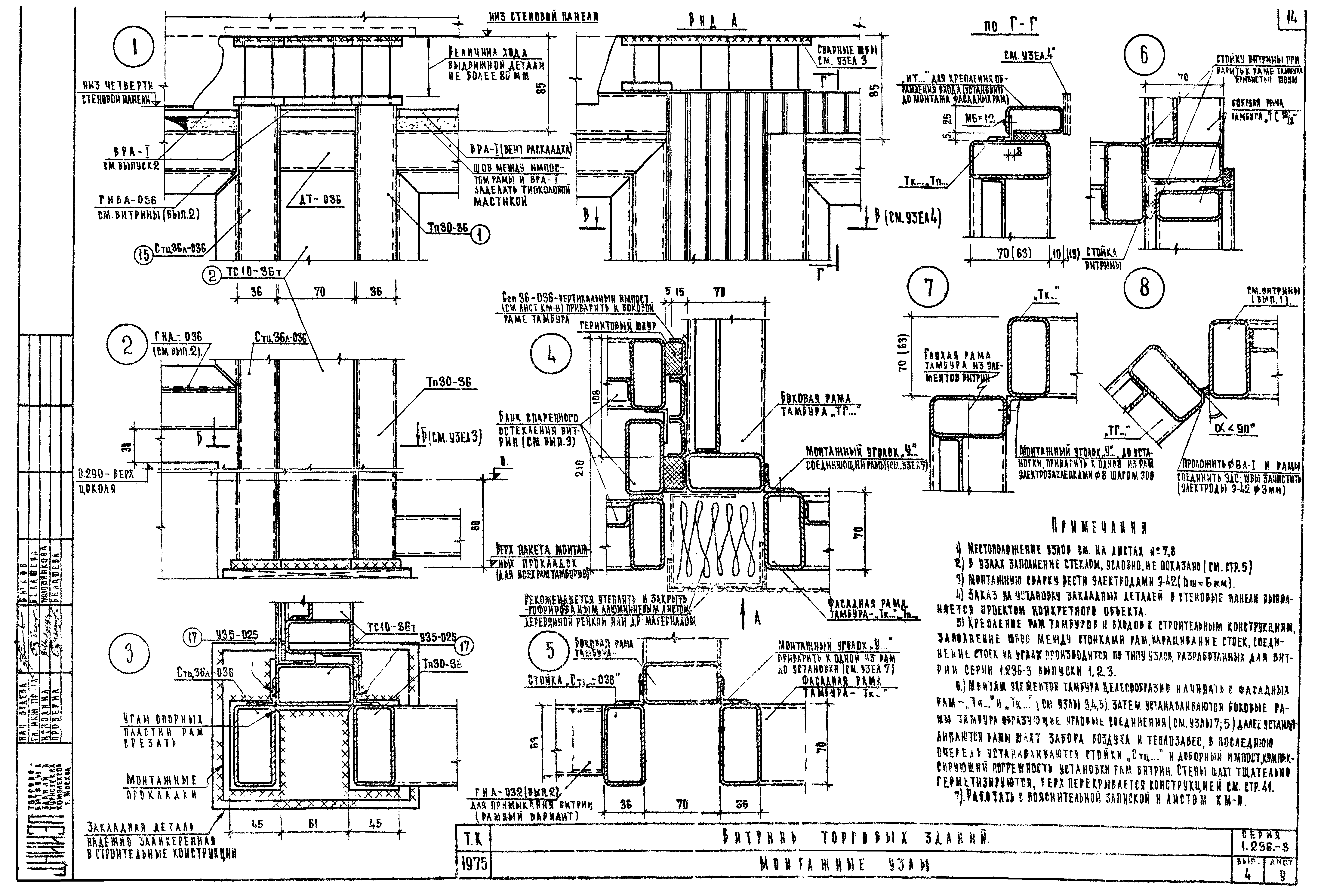
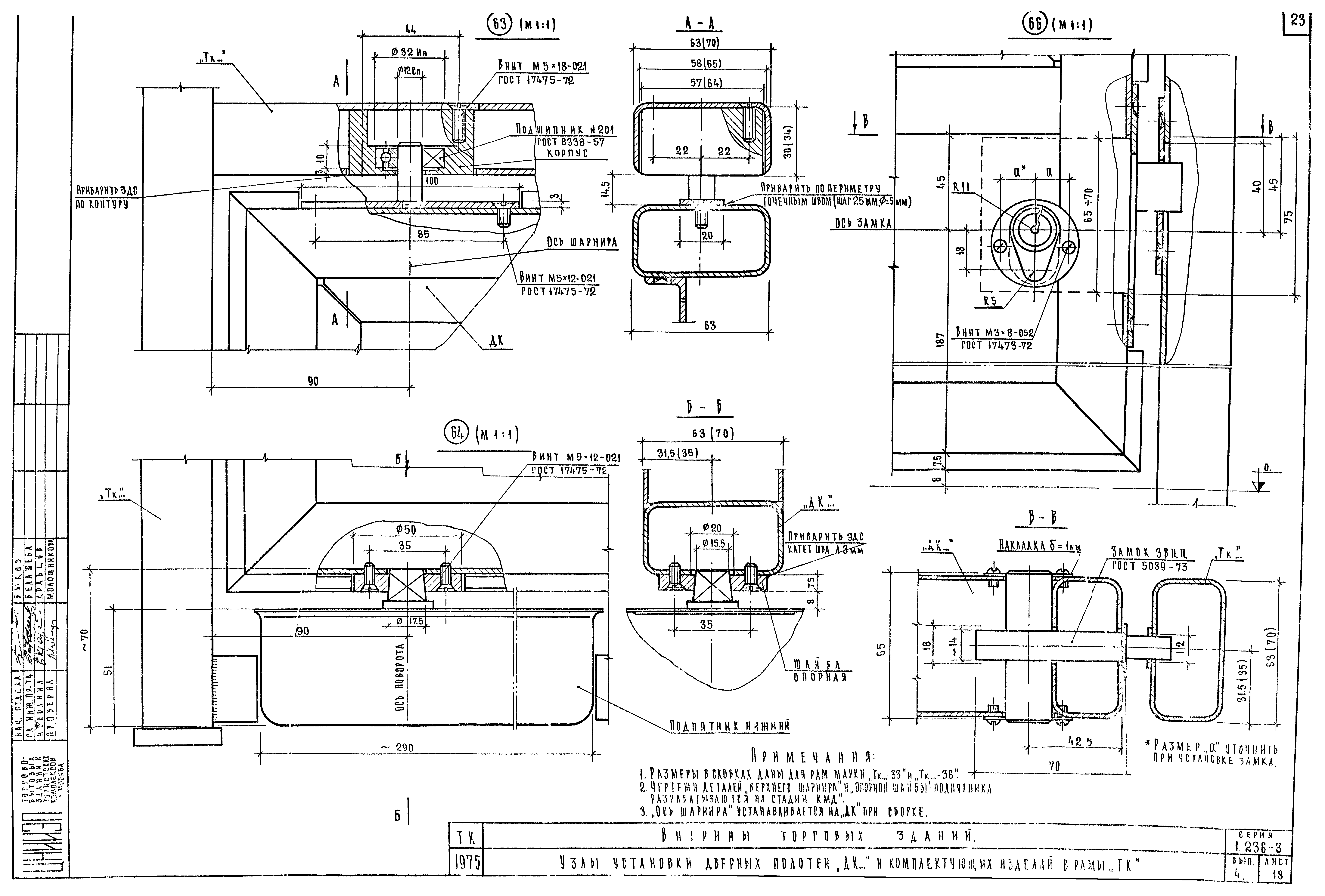
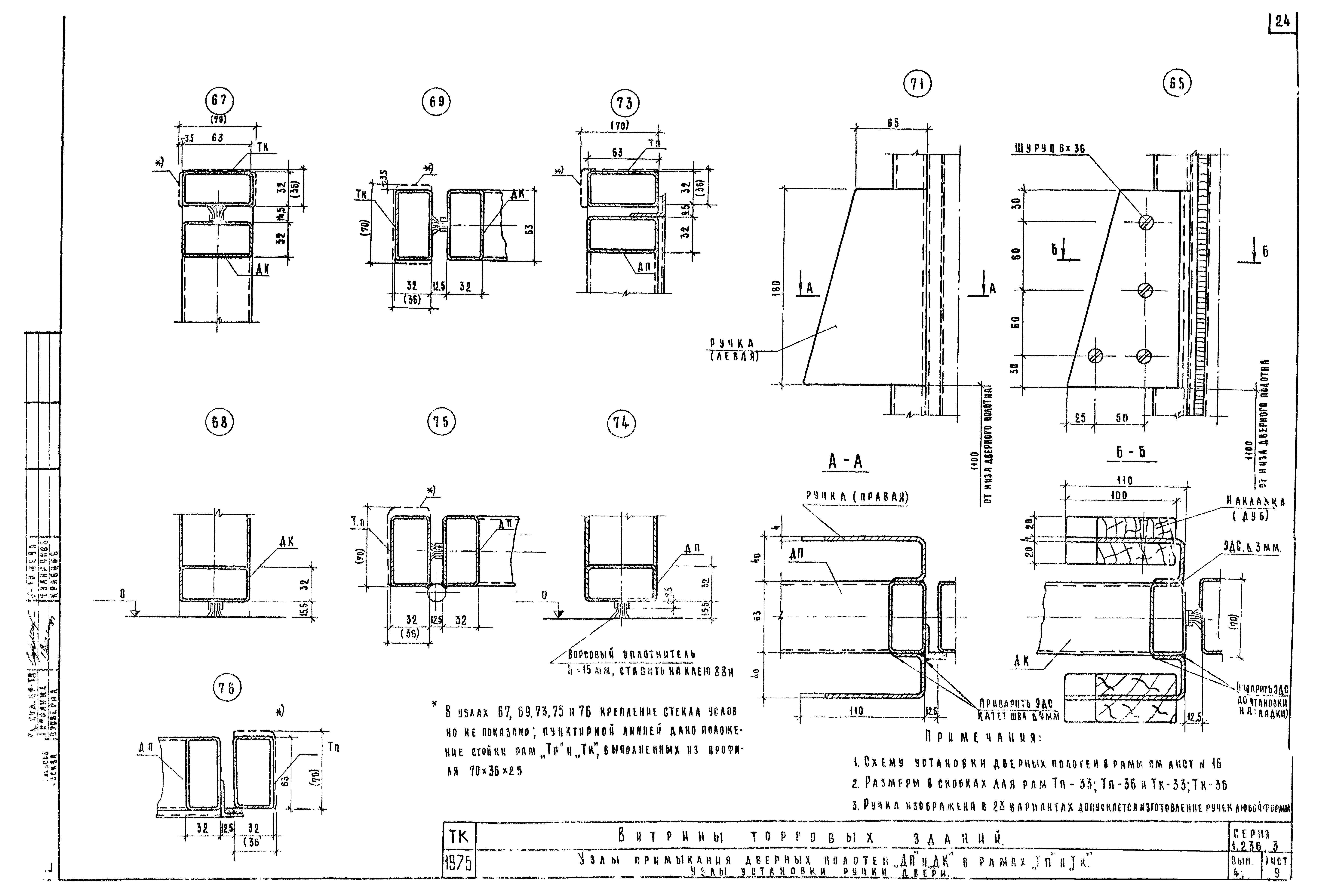
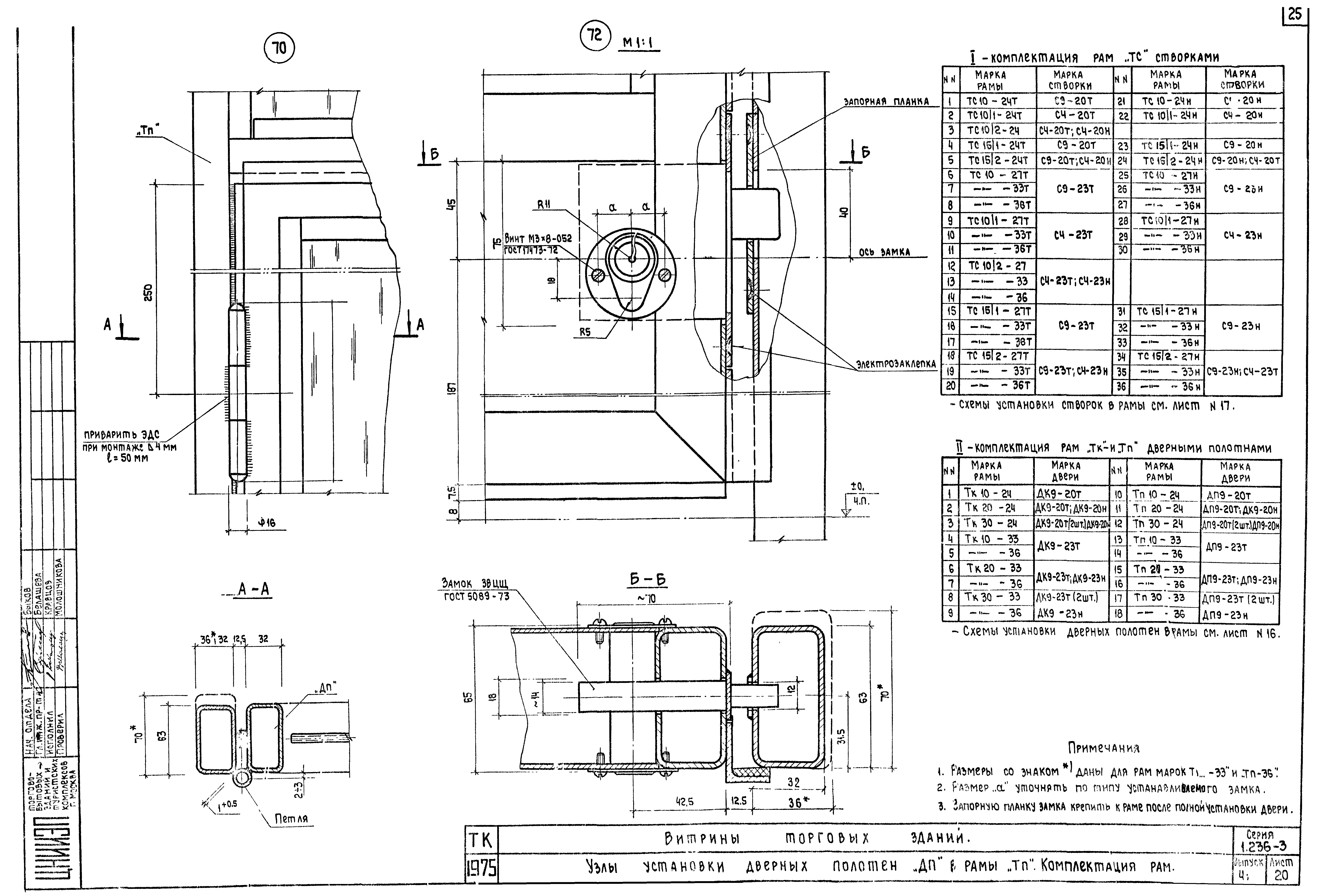
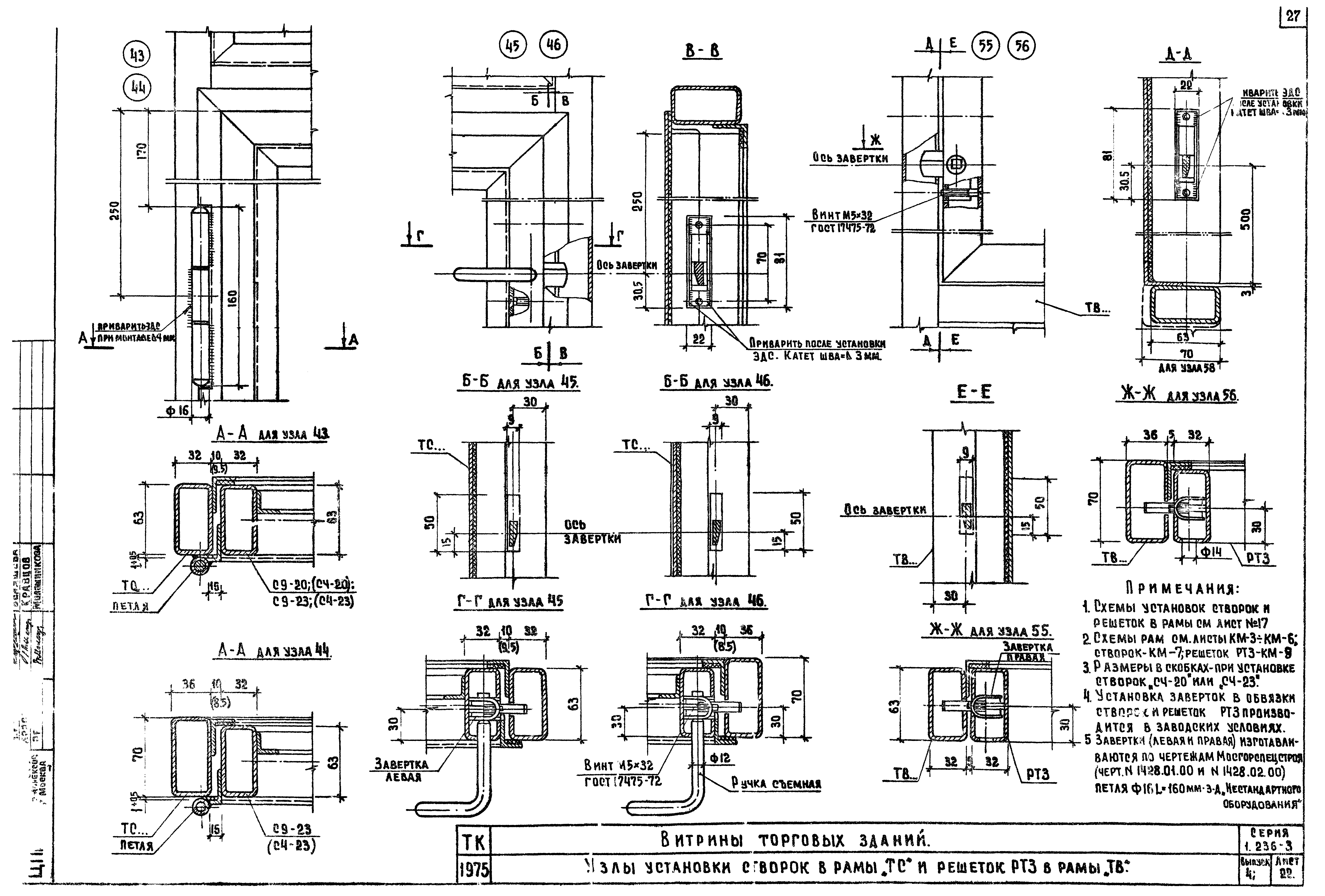
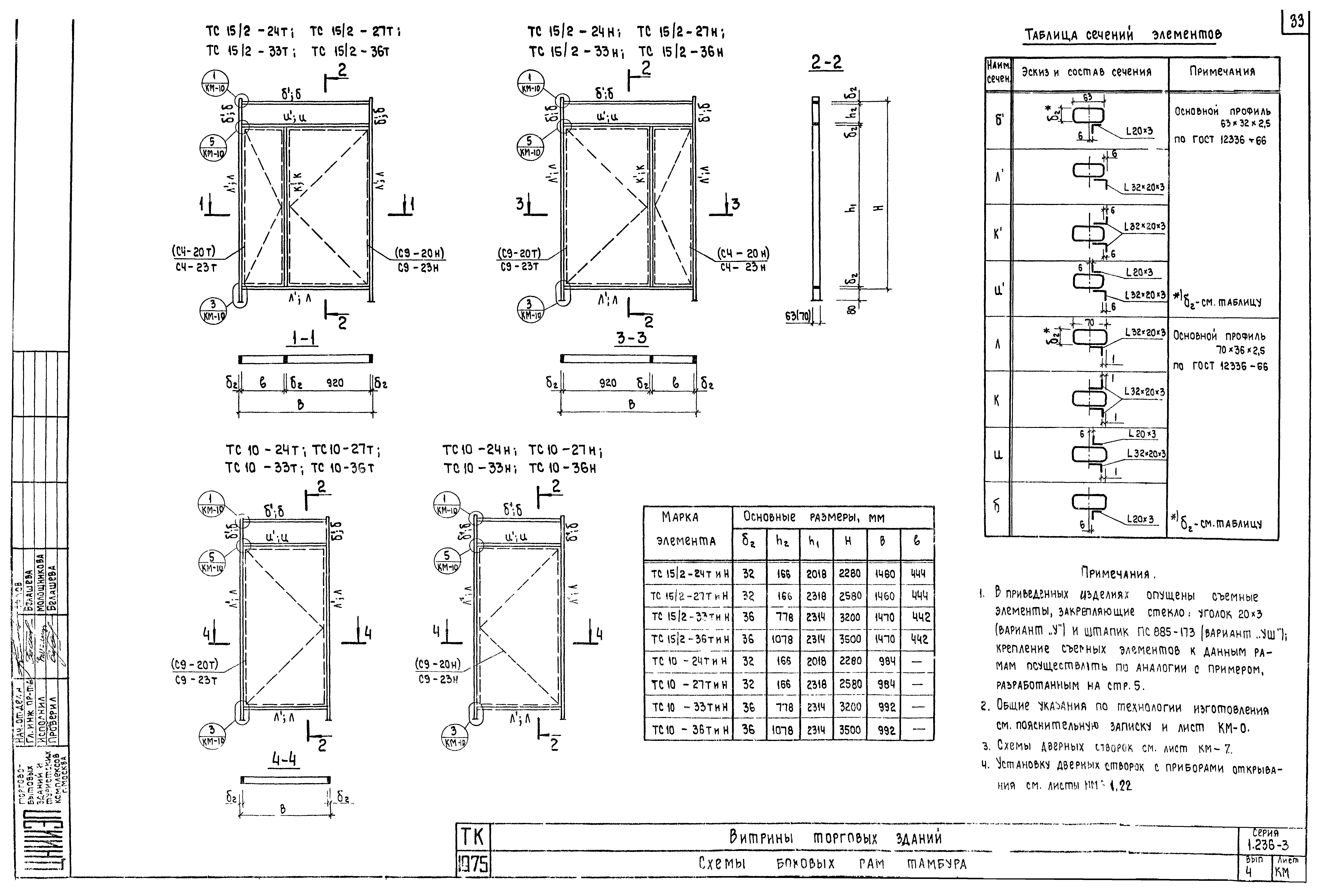
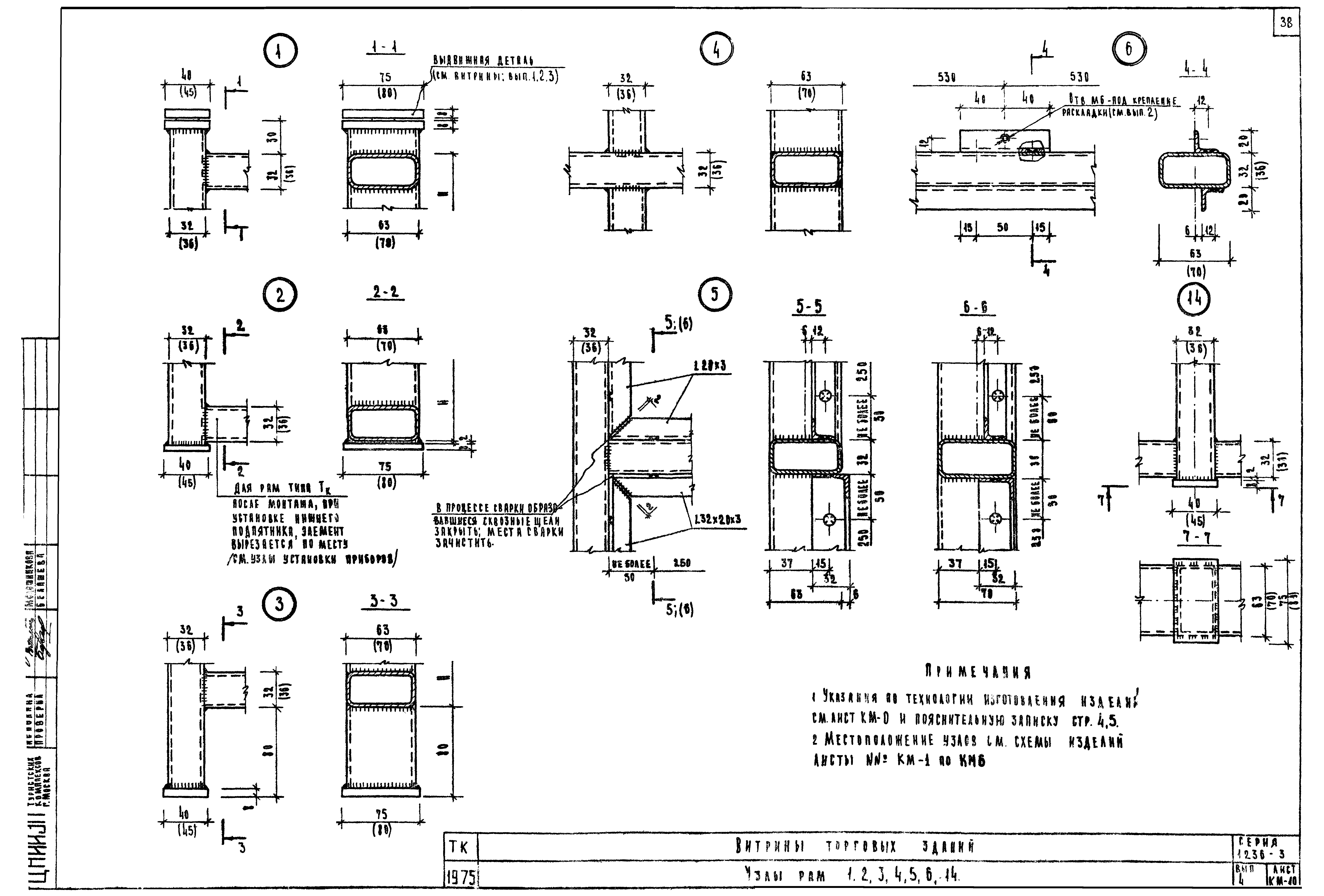
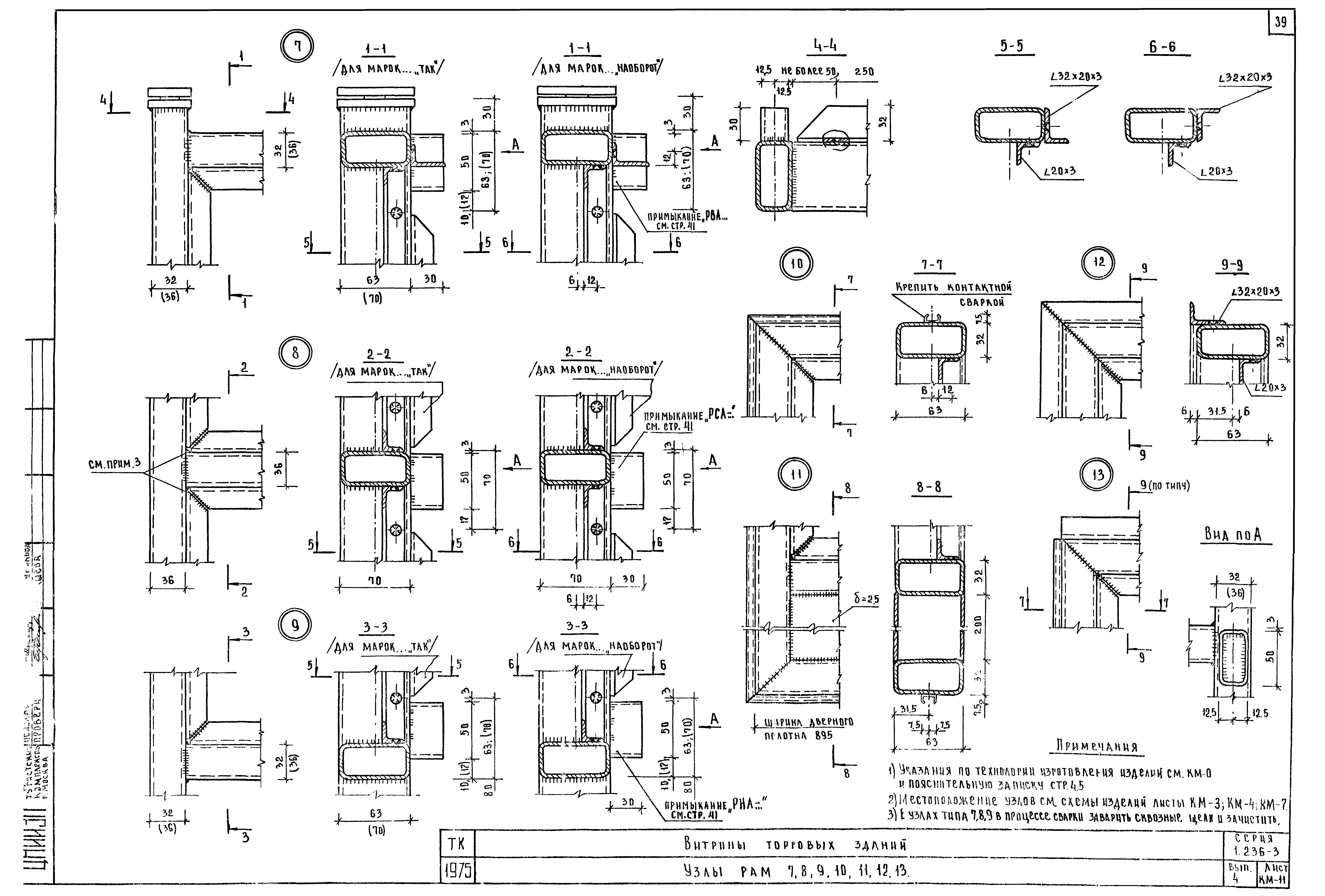
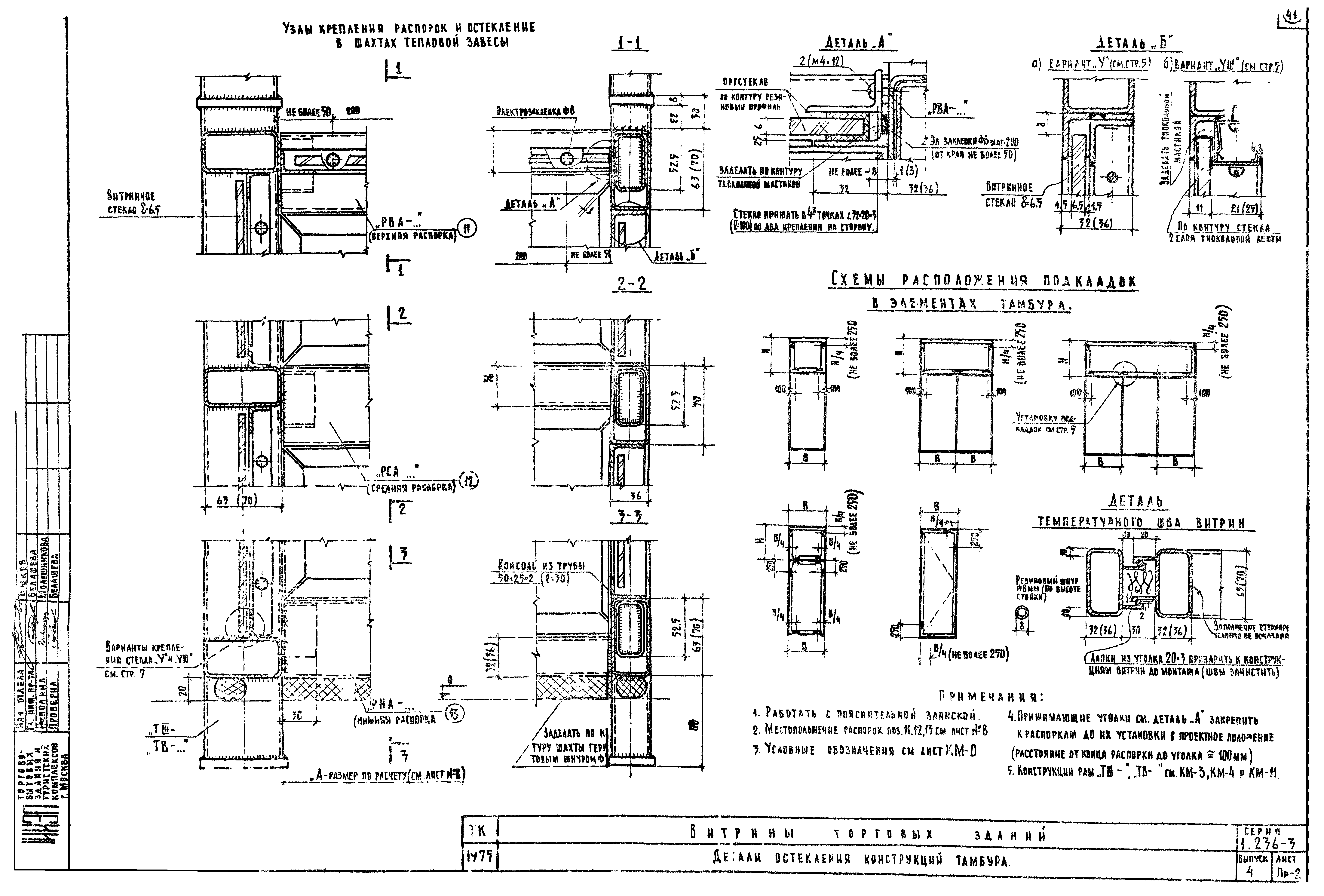
| Оглавление: | Заглавный лист Титульный лист Содержание Пояснительная записка Номенклатура Схемы тамбуров и входов витрин Монтажная схема тамбура витрин (пример компоновки) Монтажные узлы Таблица расхода материалов на фасадные тамбурные элементов типов "ТК" и "ТП" Таблица расхода материалов на боковые тамбурные элементы типов "ТГ" и "ТС" Таблица расхода материалов на боковые тамбурные элементы типа "ТС" Таблица расхода материалов на боковые тамбурные элементы типов "ТВ" и "ТШ" Таблица расхода материалов на тамбурные элементы типов "ДК","ДП","С" и "РТЗ" Таблица расхода материалов на линейные элементы типа "С" Монтажные схемы установки дверных полотен Монтажные схемы установки створок и решеток "РТЗ" Узлы установки дверных полотен "ДК" и комплектующих изделий в рамы "ТК" Узлы примыкания дверных полотен "ДП" и "ДК" в рамах "ТП" и "ТК". Узлы установки ручки двери Узлы установки дверных полотен "ДП" в рамы "ТП". Комплектация рам Узлы примыкания створок в рамах "ТС" и решеток "РТЗ" в рамах "ТВ" Узлы установки створок в рамы "ТС" и решеток "РТЗ" в рамы "ТВ" КМ-0 Заглавный лист КМ-1 Схемы фасадных рам тамбура с качающимися створками КМ-2 Схемы фасадных рам тамбура со створками с притвором КМ-3 Схемы боковых рам тамбура КМ-4 Схемы боковых рам тамбура КМ-5 Схемы боковых рам тамбура КМ-6 Схемы боковых рам тамбура КМ-7 Схемы боковых рам тамбура КМ-8 Схемы стоек тамбура КМ-9 Схемы решеток для шахт теплозавесы КМ-10 Узлы рам 1,2,3,4,5,6,14 КМ-11 Узлы рам 7,8,9,10,11,12,13 Приложение ПР-1 Примеры компоновки тамбуров ПР-2 Детали остекления конструкций тамбура |
| Разработан: | ЦНИИЭП торгово-бытовых зданий и туристских комплексов |
| Утверждён: | 09.02.1976 Госгражданстрой (Gosgrazhdanstroy 35) |









































