Скачать Серия 3.400-3 Выпуск 1. Материалы для проектирования и рабочие чертежи. Конструкции подпорных стенок уголкового профиляДата актуализации: 01.01.2021
|
| Обозначение: | Серия 3.400-3 |
| Обозначение англ: | Series 3.400-3 |
| Статус: | не действует |
| Название рус.: | Выпуск 1. Материалы для проектирования и рабочие чертежи. Конструкции подпорных стенок уголкового профиля |
| Дата добавления в базу: | 01.09.2013 |
| Дата актуализации: | 01.01.2021 |
| Дата введения: | 01.11.1967 |
| Дата окончания срока действия: | 01.10.1983 |
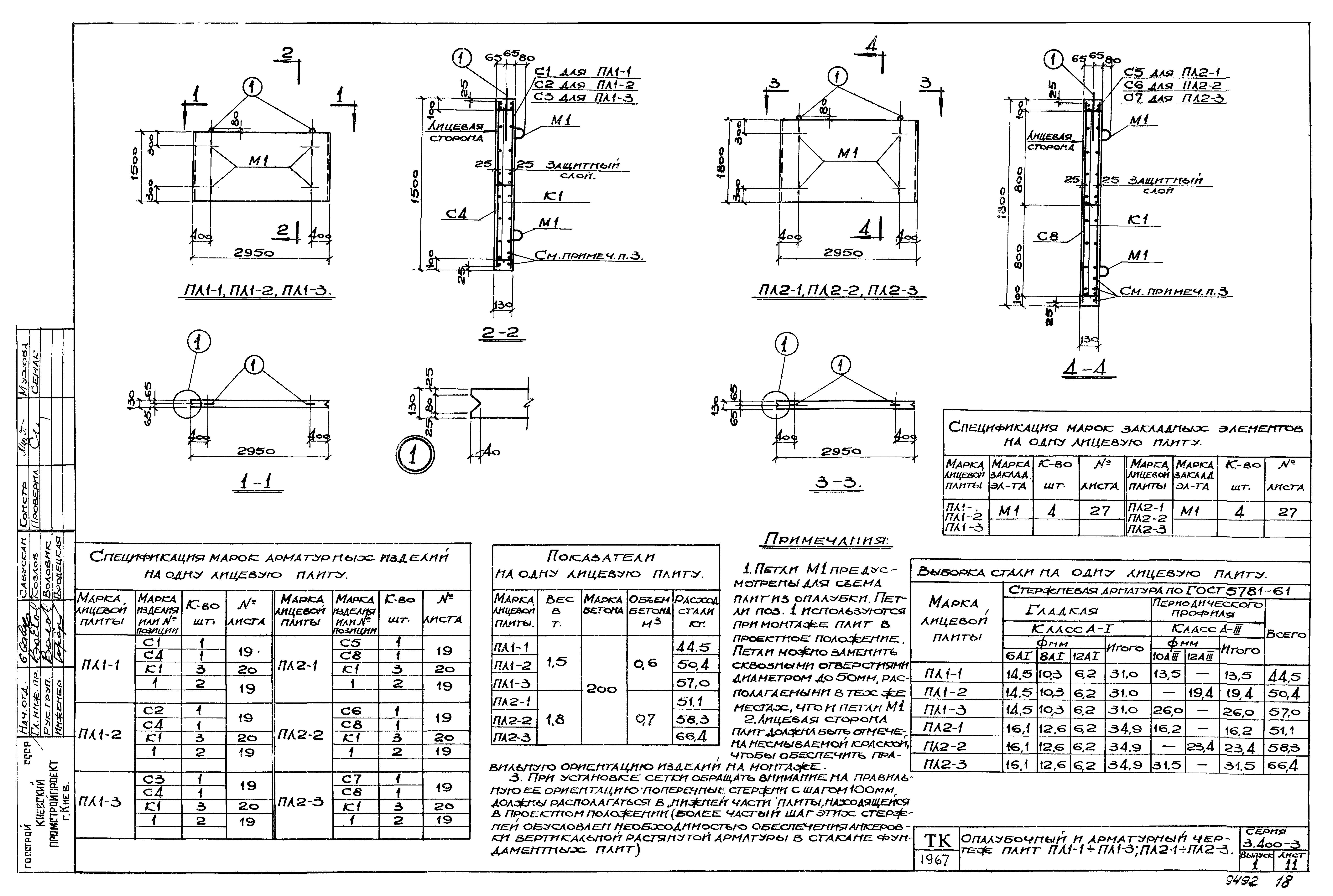
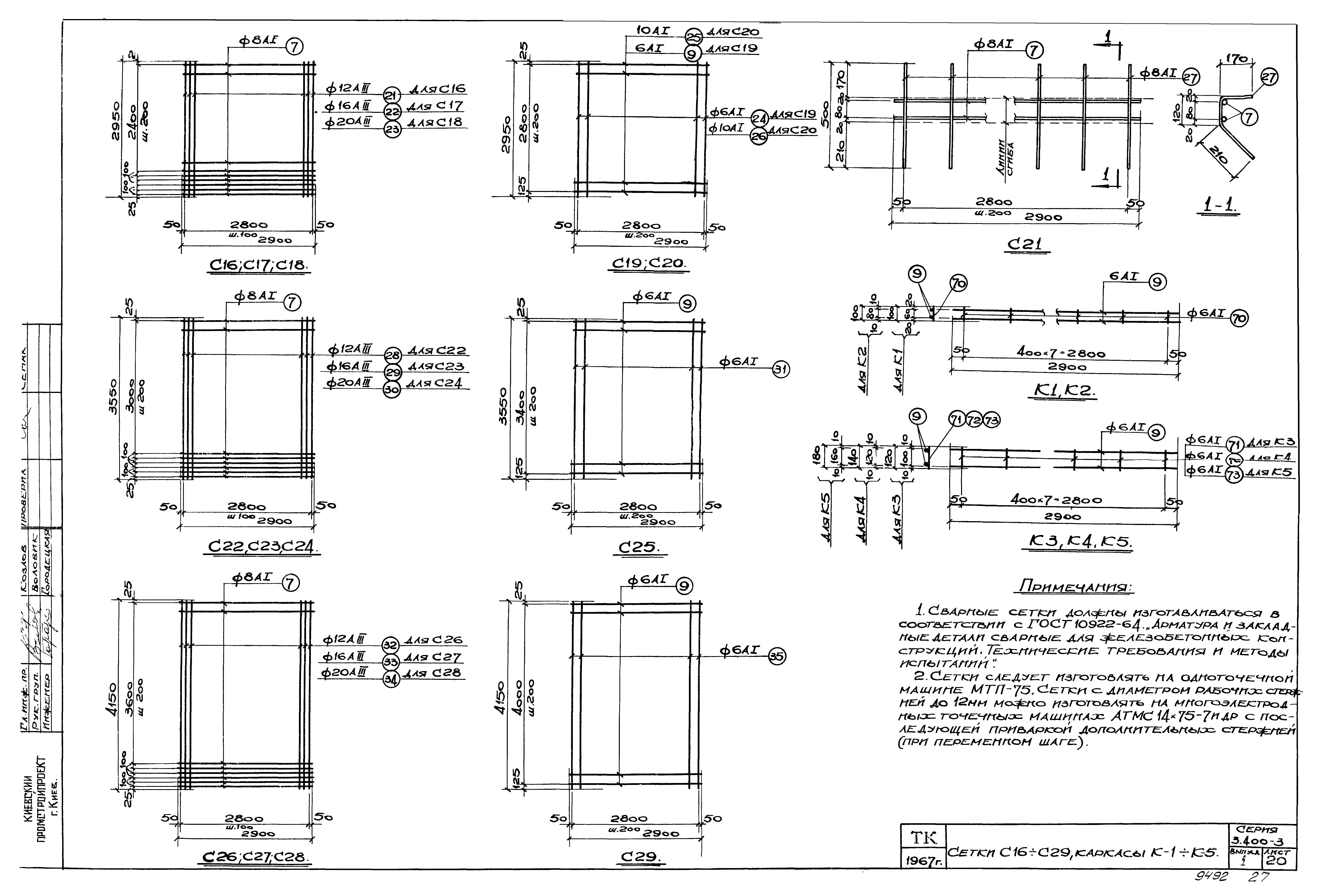
| Оглавление: | Пояснительная записка Ключ для подбора элементов подпорных стенок высотой Нn=1.2 м,1.8 м, и 2.4 м для песчаных грунтов Ключ для подбора элементов подпорных стенок высотой Нn=3.0 м,3.6 м для песчаных грунтов Ключ для подбора элементов подпорных стенок высотой Нn=1.2 м для глинистых грунтов Ключ для подбора элементов подпорных стенок высотой Нn=1.8 м для глинистых грунтов Ключ для подбора элементов подпорных стенок высотой Нn=2.4 м для глинистых грунтов Ключ для подбора элементов подпорных стенок высотой Нn=3.0 м для глинистых грунтов Ключ для подбора элементов подпорных стенок высотой Нn=3.6 м для глинистых грунтов Номенклатура лицевых и фундаментных плит подпорных стенок Габаритные схемы подпорных стенок с горизонтальными фундаментными плитами Габаритные схемы подпорных стенок с наклонными фундаментными плитами Опалубочный и арматурный чертеж плит ПЛ1-1-ПЛ1-3;ПЛ2-1-ПЛ2-3 Опалубочный и арматурный чертеж плит ПЛ3-1-ПЛ3-2;ПЛ4-1-ПЛ4-4 Опалубочный и арматурный чертеж плит ПЛ5-1-ПЛ5-3;ПЛ6-1-ПЛ6-3 Опалубочный и арматурный чертеж плит ПЛ7-1-ПЛ7-3 Вариант армирования плит ПЛ1-ПЛ7 Опалубочный и арматурный чертеж плит ПФ1-1,ПФ1-2,ПФ2-1-ПФ2-3 Опалубочный и арматурный чертеж плит ПФ3-1-ПФ3-3,ПФ4-1-ПФ4-3 Опалубочный и арматурный чертеж плит ПФ5-1-ПФ5-3 Сетки С1-С15, поз. 1-5 Сетки С16-С29, каркасы К-1-К-5 Сетки С37-С50 Сетки С51-С60,С66-С70 Сетки С61-С65,С71-С77, каркасы К6-К10 Спецификация и выборка стали на одно арматурное изделие Конструкции закладных деталей М1-М8 Таблица расхода монолитного бетона цементного раствора на стыки сборных элементов подпорных стенок. Сборочные узлы |
| Разработан: | Киевский Промстройпроект НИИЖБ |
| Утверждён: | 23.08.1967 Госстрой СССР (Государственный комитет Совета Министров СССР по делам строительства) (USSR Gosstroy 156) |
| Чем заменён: |



































