Скачать Разработка и внедрение закрепления стоечных опор на глубоком болоте с учетом физико-механических характеристик торфаДата актуализации: 01.01.2021
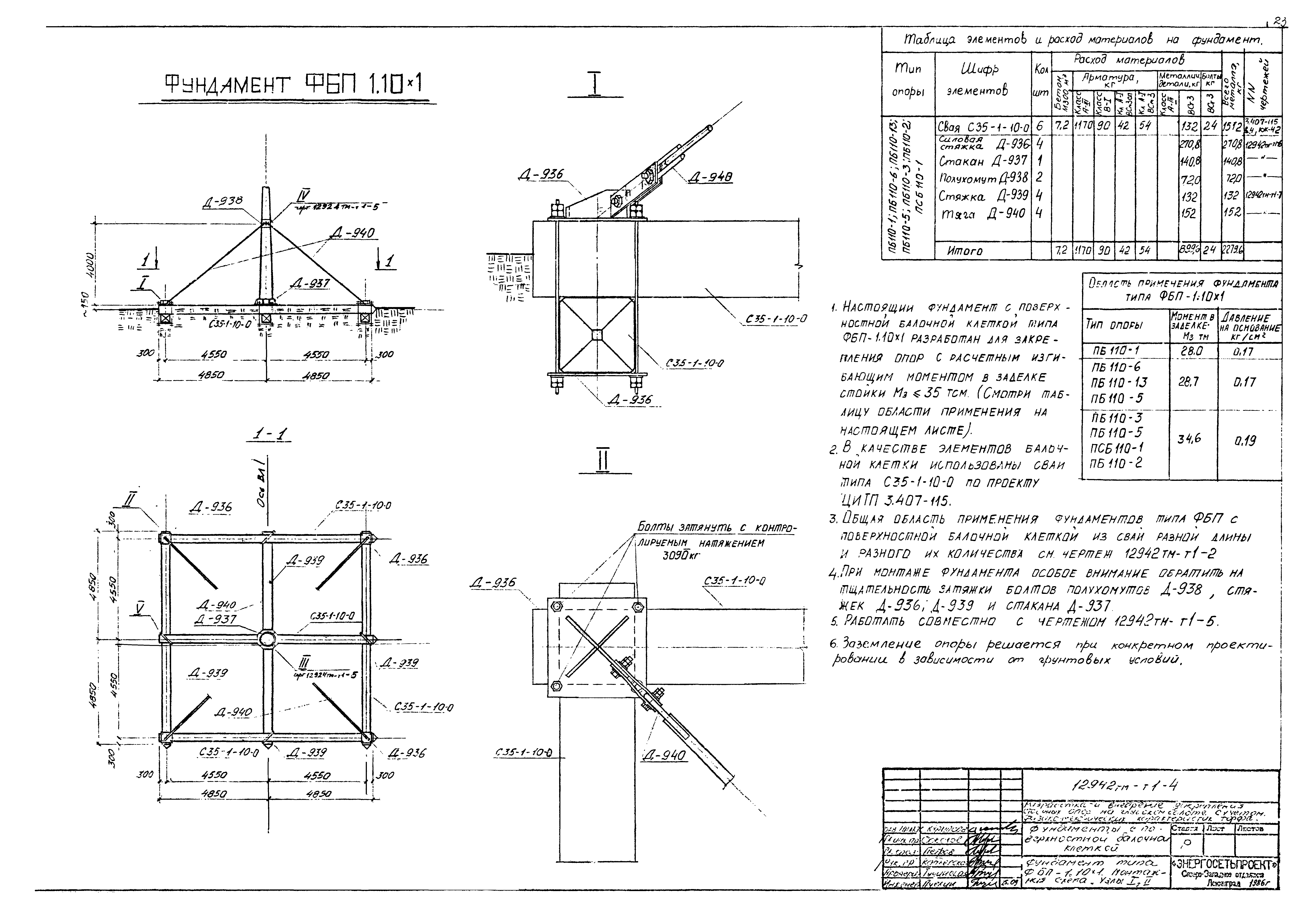
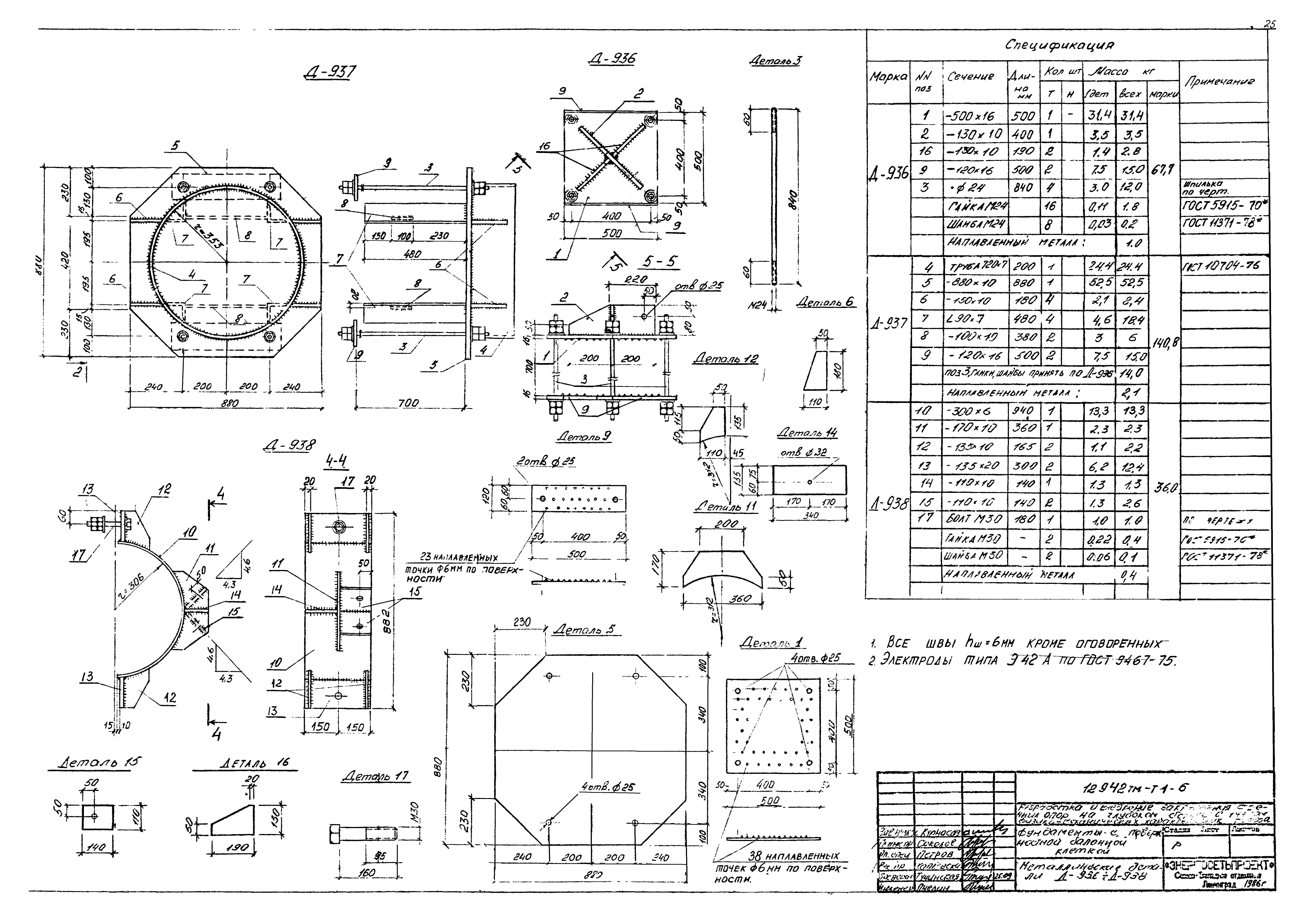
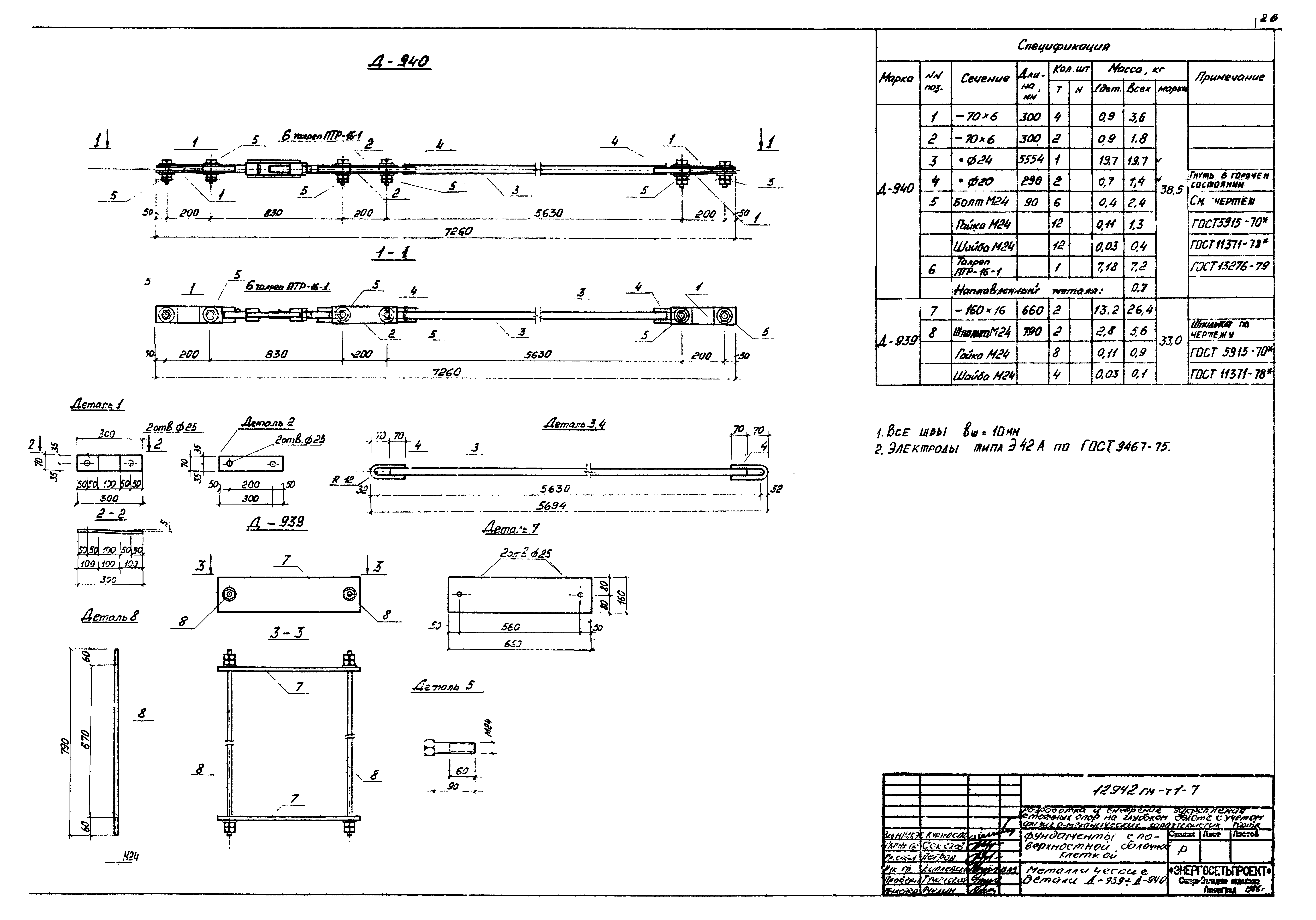
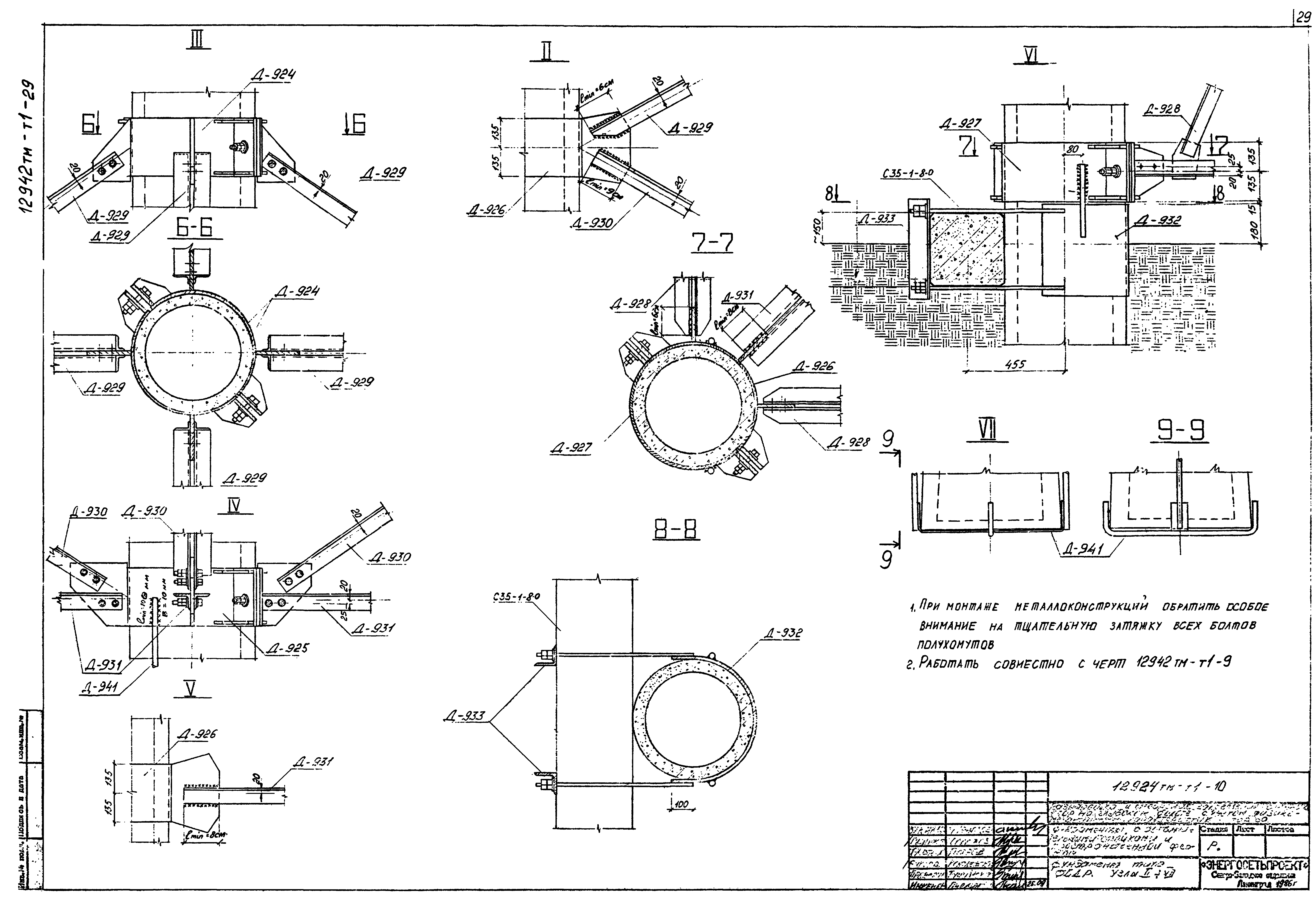
Разработка и внедрение закрепления стоечных опор на глубоком болоте с учетом физико-механических характеристик торфа| Статус: | не действует | | Название рус.: | Разработка и внедрение закрепления стоечных опор на глубоком болоте с учетом физико-механических характеристик торфа | | Дата добавления в базу: | 01.09.2013 | | Дата актуализации: | 01.01.2021 | | Оглавление: | Титульные листы 12942ТМ-Т1 Перечень листов и чертежей 12942ТМ-Т1-1 Пояснительная записка 12942ТМ-Т1-2 Сводная таблица основных параметров фундаментов типа ФБП 12942ТМ-Т1-3 Сводная таблица основных параметров фундаментов типа ФБД,ФБДР,ФБР1 и ФБР2 Фундаменты с поверхностной блочной клеткой 12942ТМ-Т1-4 Фундамент типа ФБП-1.10х1. Монтажная схема. Узлы 12942ТМ-Т1-5 Фундамент типа ФБП-1.10х1. Узлы 12942ТМ-Т1-6 Металлические детали Д-936-Д-938 12942ТМ-Т1-7 Металлические детали Д-939,Д-940 Фундаменты с дополнительными стойками и пространственной фермой 12942ТМ-Т1-8 Фундамент типа ФБД. Монтажная схема. Узлы 12942ТМ-Т1-9 Фундамент типа ФБДР. Монтажная схема. Узлы 12942ТМ-Т1-10 Фундамент типа ФБДР. Узлы 12942ТМ-Т1-11 Металлические детали Д-924-Д-927,Д-934,Д-935,Д-941,Д-942 12942ТМ-Т1-12 Металлические детали Д-928-Д-933 Фундаменты с двумя поверхностными ригелями 12942ТМ-Т1-13 Фундамент типа ФБРх10. Монтажная схема. Узлы 12942ТМ-Т1-14 Металлические детали Д-943-Д-948 | | Разработан: | Северо-западное отделение института Энергосетьпроект
|
                               
|