Скачать Серия 4.407-85 Выпуск 2/71. Альбом III. Архитектурно-строительная часть. Сооружения с подземной частью в сборном железобетонеДата актуализации: 01.01.2021
|
| Обозначение: | Серия 4.407-85 |
| Обозначение англ: | Series 4.407-85 |
| Статус: | не действует |
| Название рус.: | Выпуск 2/71. Альбом III. Архитектурно-строительная часть. Сооружения с подземной частью в сборном железобетоне |
| Дата добавления в базу: | 01.09.2013 |
| Дата актуализации: | 01.01.2021 |
| Дата окончания срока действия: | 01.06.1984 |
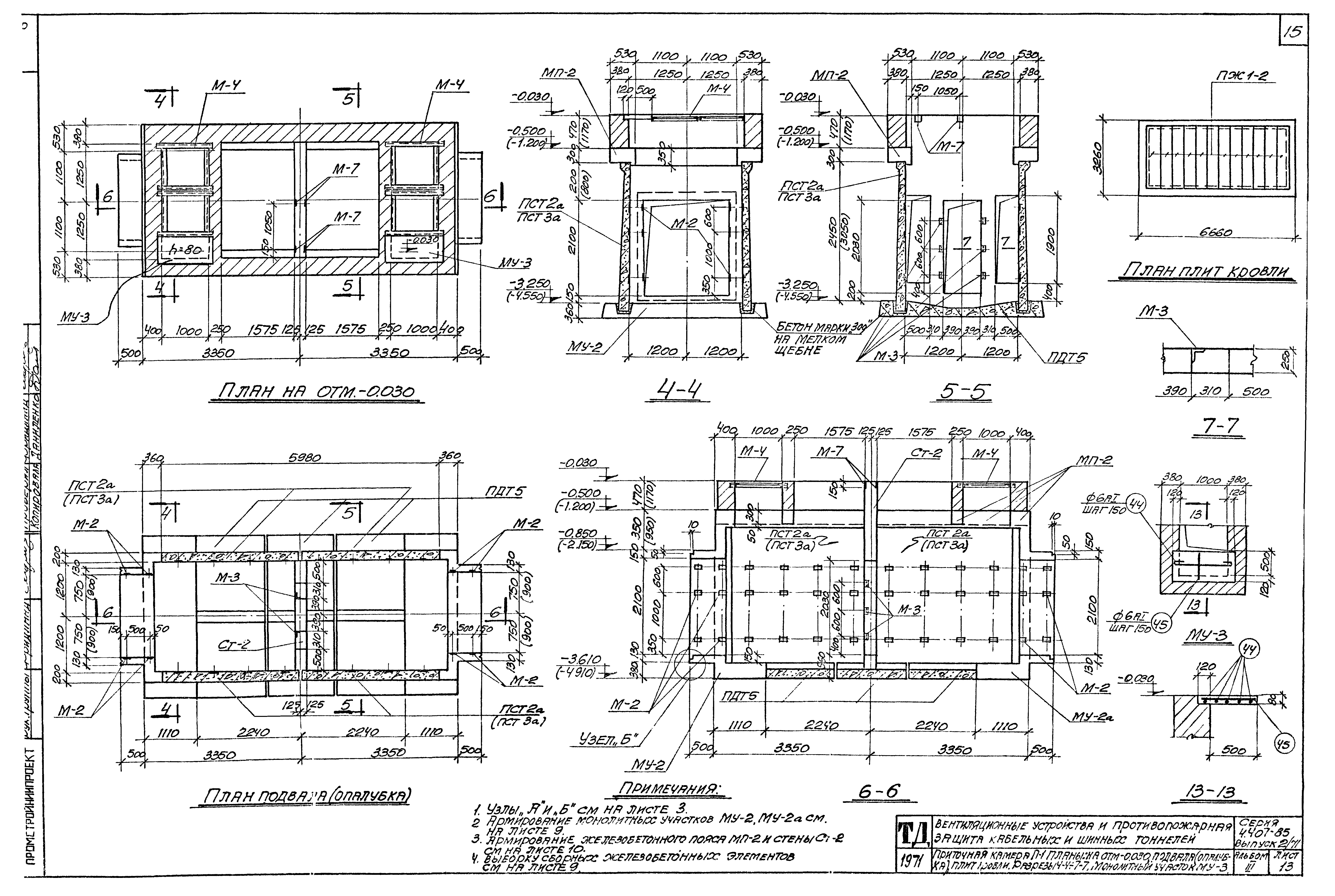
| Оглавление: | Вытяжная камера В-1. Планы и разрез 1-1 Вытяжная камера В-1. Разрезы 2-2,3-3, фасады, план кровли Вытяжная камера В-1. Планы на отм. -0.030, подвала (опалубка), плит кровли. Разрезы 4-4,5-5 Вытяжная камера В-1. Разрезы 6-6-11-11. Монолитные участки МУ-1,МУ-1а Вытяжная камера В-1. Железобетонный пояс МП-1. Стена СТ-1 Вытяжная камера В-2. Планы и разрез 1-1, план кровли Вытяжная камера В-2. План на отм. 4.000, разрезы 2-2,3-3. Фасады Вытяжная камера В-2. План на отм. -0.030, подвала (опалубка), плит на отм. 3.970, плит кровли. Разрезы 4-4,5-5,7-7 Вытяжная камера В-2. Разрез 6-6. Монолитные участки МУ-2 и МУ-2а. Разрезы 8-8-12-12 Вытяжная камера В-2. Приточная камера П-1. Железобетонный пояс МП-2. Стена СТ-2 Приточная камера П-1. Планы и разрез 1-1, план кровли Приточная камера П-1. Разрезы 2-2,3-3, планы проемов на отм. 2.200 и 2.810, фасады Приточная камера П-1. Планы на отм. -0.030 подвала (опалубка), плит кровли. Разрезы 4-4-7-7. Монолитный участок МУ-3 Подвалы камер В-1,В-2,П-1. Спецификация и выборка арматуры Гидроизоляция подвала камеры В-2(П-1) при наличии грунтовых вод Монтажные схемы "П","А","Р", сечения Монтажные схемы сборных железобетонных и рядовых перемычек, спецификация, схемы заполнения проемов, схемы деревянных коробок Спецификации изделий и стекла, экспликация проемов дверей, экспликация полов |
| Разработан: | Харьковский Промстройниипроект |
| Утверждён: | 10.09.1971 Госстрой СССР (Государственный комитет Совета Министров СССР по делам строительства) (USSR Gosstroy 2/2-313) |





















